На Метре реклама - только нормальная. Никакого шок-контента.
Помогайте независимому ресурсу, как он помогает вам. Удачи!
Новостройки Котт. посёлки Объявления Динамика цен и сделок

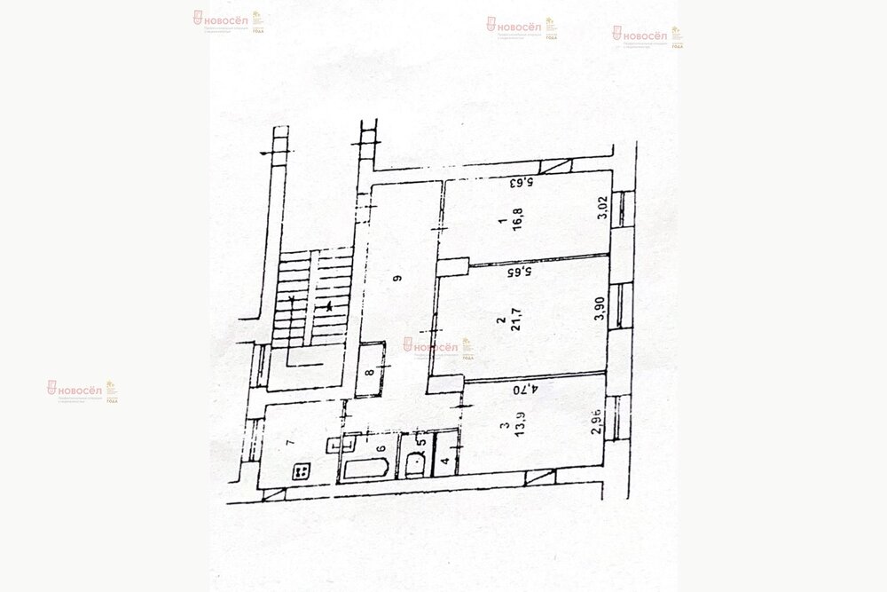
Продажа квартиры: г. Первоуральск, ул. Советская, 11 (городской округ Первоуральск)

  • опубликовано 10.04.2025 , обновлено 2.07.2025
  • 12
Рынок:вторичный
Срок сдачи: 1967 года
Количество комнат:3
Общая площадь:54.5 м2
Жилая площадь:40.9 м2
Площадь кухни:7 м2
Этаж/Этажность дома:4 / 5
Санузел:раздельный
Отделка:дизайнерский
Год постройки:1967
Балкон/лоджия:балкон
Состояние:идеальное
Цена:
5 200 000
Объявление снято с публикации
Коммунальные платежи:оплачиваются отдельно

Продам 3-х комнатную квартиру, 54,5 кв.м. Квартира с хорошим ремонтом, светлая, тёплая и уютная. Перепланировка узаконенная, просторная, совмещенная кухня-гостиная создает современный и комфортный интерьер, две изолированные комнаты, утеплённый балкон служит продолжением одной из комнат, удобно оформленный кабинет. Окна выходят на две стороны, что обеспечивает много света. В квартире остается кухонный гарнитур, остальная мебель по договоренности.Подъезд всегда чистый, хорошие соседи. Во дворе есть парковка, а сам двор тихий и вдали от дороги. В шаговой доступности детская площадка, детский сад 21 и школа 6. Удобная транспортная развязка, рядом остановка ТЦ Марс, до центральной площади всего 5 минут пешком. Эта квартира – отличный выбор для комфортной жизни!
ID объекта в нашей базе: 3972

Объявление снято с публикации

Ипотечный калькулятор

лет
%
Сумма кредита
5200000 ₽
Платеж
22 540 ₽

Актуальные предложения в этом доме

  • 3-к квартира, Советская, 11

    • 54.5 м2
    • 4/5 этаж
    • Состояние:
    4 900 000 ₽ (89900 ₽/м2)
    Продам 3-х комнатную квартиру, 54,5 кв.м. Квартира с хорошим ремонтом, светлая, тёплая и уютная. Перепланировка узаконенная, просторная, совмещенная кухня-гостиная создает современный и комфортный интерьер, две изолированные комнаты, утеплённый балкон служит продолжением одной из комнат, удобно оформленный кабинет. Окна выходят на две стороны, что обеспечивает много света. В квартире остается кухонный гарнитур, остальная мебель по договоренности.Подъезд всегда чистый, хорошие соседи. Во дворе есть парковка, а сам двор тихий и вдали от дороги. В шаговой доступности детская площадка, детский сад 21 и школа 6. Удобная транспортная развязка, рядом остановка ТЦ Марс, до центральной площади всего 5 минут пешком. Эта квартира – отличный выбор для комфортной жизни! Обременений нет! ID объекта в нашей базе: 3972
    размещено: 18.07.2025 , обновлено: 23.10.2025

История предложений в этом доме

объявление снято с публикации в продаже комнат площадь этаж цена,
г. Первоуральск, ул. Советская, 11 (городской округ Первоуральск) - фото квартиры 10 сентября 2025 90 дн. 2 40.8 2/5 3 000 000
г. Первоуральск, ул. Советская, 11 (городской округ Первоуральск) - фото квартиры 11 марта 2022 90 дн. 2 38 5/5 2 249 000
Первоуральск, ул. Советская, 11 - фото квартиры 3 июля 2019 90 дн. 1 34 1/5 1 250 000

Похожие предложения о продаже квартир в г. Первоуральск

  • 3-к квартира, Ватутина, 72

    • 56.3 м2
    • 2/5 этаж
    • Состояние: хорошее
    3 899 000 ₽ (69300 ₽/м2)
    Ищете просторное и светлое жилье? Предлагаю рассмотреть эту квартиру для покупки или выгодного обмена! Это идеальный вариант для тех, кто ценит комфорт, уют и развитую инфраструктуру. Планировка:Смежно-изолированные комнаты. Вы сможете уединиться, а у детей будет свое пространство. Состояние:Квартира ухоженная, светлая, с просторными комнатами правильной формы. Готова к проживанию! Дополнительно:Чистый подъезд и спокойные, порядочные соседи. О дворе и локации: Территория:Просторный двор с детской площадкой. Инфраструктура:Всё самое необходимое — в шаговой доступности: магазины, детские сады, почта. Образование:Рядом школа и престижный Лицей №21. Отдых:Для прогулок есть набережная. Юридическая чистота: Квартира в собственности более 5 лет. Все документы проверены, обременений и ограничений нет. Готова рассмотреть различные варианты расчета. Если вы продаете свою квартиру для расширения — обсудим условия обмена! Не откладывайте! Звоните прямо сейчас, чтобы договориться о просмотре и лично оценить все преимущества этого жилья! ID объекта в нашей базе: 4750
    размещено: 15.10.2025 , обновлено: 20.10.2025
  • 3-к квартира, Трубников, 48б

    • 64.2 м2
    • 4/5 этаж
    • Состояние: идеальное
    6 250 000 ₽ (97400 ₽/м2)
    В ПРОДАЖЕ ТРЕХКОМНАТНАЯ КВАРТИРА В РАЙОНЕ КОРАБЕЛЬНОЙ РОЩИ.- Дом после капитального ремонта, поменяны трубы ХВС и ГВС, отремонтирован подъезд;- Квартира в отличном состоянии, продается с мебелью и техникой;- Большая придомовая территория на которой расположены: парковочные места для автомобилей, детские площадки разделенные по возрастам, закрытая футбольная площадка;- Удобное месторасположение дома, рядом все необходимые для комфортного проживания и экономии времени социальные и муниципальные объекты инфраструктуры: детские сады № 38, № 41, № 44, № 45, Средние общеобразовательные школы № 2, № 9, № 10, Первоуральский политехникум, Городская библиотека № 6, детская школа искусств, Отдел ЗАГС, Парк культуры и отдыха Корабельная роща, в шаговой доступности, остановки общественного транспорта, магазины, аптеки...;- Квартира в чистой продаже, без долгов и обременения. ID объекта в нашей базе: 3605
    размещено: 16.09.2025 , обновлено: 23.10.2025
  • 3-к квартира, Трубников, 26

    • 78.2 м2
    • 4/4 этаж
    • Состояние: идеальное
    6 149 000 ₽ (78600 ₽/м2)
    Для пары, ценящей комфорт и пространство, или Для семьи с детьми или Для сдачи в аренду в премиум сегментеВ ТИХОЙ ЧАСТИ ЦЕНТРАБольшая, теплая, светлая квартира с тремя спальнями и 30 метровой кухней-гостиной, практически со всей мебелью и техникойКВАРТИРА:В редко встречающемся состоянии - «ЗАЕЗЖАЙ И ЖИВИ»!НЕСКОЛЬКО ЛЕТ НАЗАД КАЧЕСТВЕННО ВЫПОЛНЕН КАПИТАЛЬНЫЙ РЕМОНТ:- выровнены все стены- полная замена электропроводки на медную,- окна-металлопластик по всей квартире, включая остекление одного из балконов,- высокого качества сейф-дверь- заменена вся система отопления,- пол: керамогранит в кухне и ванной, в кухне – «система теплый пол»- по вей квартире износостойкий ламинат 33 класса- очень просторная ванная с гидромассажем- сплит-система- межкомнатные двери - массив, в идеальном состоянии, с витражными стеклами- кухонный гарнитур с очень качественной встроенной техникой,- приборы учета воды,- квартира оснащена системой охраны- продумано всё до мелочей► Грамотная планировкой с расширенной прихожей, ► 2 балкона► Вторая спальная комната (детская) 20 кв.м разделена на 2 комнаты, (комфортно для семьи с детьми или чтобы был отдельный кабинет (игровая)► Приятная цветовая гамма, создающая хорошее настроение► Окна - на три стороны света, квартира озаряется солнцем весь день и при этом в ней не бывает жарко – и это ещё одно весомое достоинство квартиры.ОТЛИЧНАЯ ЛОКАЦИЯ:- тихая часть самого Центра с удобным выездом в Екатеринбург- в 3 мин ТРИ детских садика,- школы: №10 (прямо через дорогу), №32 через 2 двора, в 7мин ходьбы: №2, музыкальная, художественная, спортивная школы, ДК НТЗ, Дом детского творчества и пр.- магазины (2 прямо возле дома), банки, ТЦ, аптеки и пр.- автобусные остановки во все районы городаСАМ ДОМ:Всего двух подъездный, малонаселенный, дом с благополучными, давно живущими, соседями!ЮРИДИЧЕСКИ:- 2 взрослых собственника, Квартира в собственности больше 20 лет - лучший показатель её качества и безопасности - История прозрачна, понятна. Продаем в связи с переездом- НИКАКИХ МАТ КАПОВ или иных сертификатов НЕ ИСПОЛЬЗОВАЛОСЬ!(ЗАЛОГ ВАШЕГО СПОКОЙСТВИЯ!!!!!!)- Никаких обременений нет- Любой банк (при необходимости) с удовольствием поможет в её приобретении- Освобождена, в том числе от зарегистрированных, ЧИСТАЯ ПРОДАЖА!ТАКОГО КАЧЕСТВА КВАРТИРЫ БЫВАЮТ КРАЙНЕ РЕДКО!Замечательный вариант не только ДЛЯ ЖИЗНИ, НО И ДЛЯ ДОРОГОЙ АРЕНДЫ В ПРЕМИУМ СЕГМЕНТЕ, например, ТОП-менеджменту!(квартира практически не потребует дополнительных вложений).Поторопитесь. Очень удачный, редкий вариант!Приходите на просмотр! Увидите, она Вам очень понравится! ID объекта в нашей базе: 4601
    размещено: 05.09.2025 , обновлено: 21.10.2025
  • 3-к квартира, Емлина, 18а

    • 59.8 м2
    • 1/5 этаж
    • Состояние: идеальное
    3 950 000 ₽ (66100 ₽/м2)
    Семейная 3к квартира в ухоженном доме и в очень удобном районе Первоуральска. Рядом три школы, самые лучшие детские сады, 3 минуты до Первоуральского металлургического колледжа. Через дорогу от дома Дворец водных видов спорта после реконструкции, Дворец ледовый также после реконструкции, Парк культуры и отдыха с аттракционами и парковой лесной зоной, верёвочный Улей парк. До центра города и площади Победы 7 минут пешком вдоль парка, 3 минуты до ТЦ МАРС. Остановки автобусов с трёх сторон. Район тихий, спокойный, дом очень ухоженный, территория убирается и обслуживается хорошо. Соседи очень доброжелательные. В квартире сделана удобная перепланировка, все узаконено. Сделан качественный ремонт, поменяны все коммуникации. Установлен кондиционер. В санузле теплый пол. Показываем квартиру в будни вечером, в выходные по договоренности. Звоните. ID объекта в нашей базе: 748
    размещено: 07.08.2025 , обновлено: 18.10.2025
  • 3-к квартира, Советская, 11

    • 54.5 м2
    • 4/5 этаж
    • Состояние: идеальное
    4 900 000 ₽ (89900 ₽/м2)
    Продам 3-х комнатную квартиру, 54,5 кв.м. Квартира с хорошим ремонтом, светлая, тёплая и уютная. Перепланировка узаконенная, просторная, совмещенная кухня-гостиная создает современный и комфортный интерьер, две изолированные комнаты, утеплённый балкон служит продолжением одной из комнат, удобно оформленный кабинет. Окна выходят на две стороны, что обеспечивает много света. В квартире остается кухонный гарнитур, остальная мебель по договоренности.Подъезд всегда чистый, хорошие соседи. Во дворе есть парковка, а сам двор тихий и вдали от дороги. В шаговой доступности детская площадка, детский сад 21 и школа 6. Удобная транспортная развязка, рядом остановка ТЦ Марс, до центральной площади всего 5 минут пешком. Эта квартира – отличный выбор для комфортной жизни! Обременений нет! ID объекта в нашей базе: 3972
    размещено: 18.07.2025 , обновлено: 23.10.2025

    3-к квартира, Ватутина, 39

    • 86 м2
    • 5/5 этаж
    • Состояние: хорошее
    5 800 000 ₽ (67400 ₽/м2)
    Объект № 189484. Ваша просторная квартира в сердце города ждет Вас. Мечтаете о жизни в центре событий, в большой и уютной квартире? Ваше желание исполняется! Продается просторная 3-комнатная квартира 85,5 кв.м в самом сердце города! Представьте: Много света и пространства: Большие окна и высокие потолки наполняют квартиру светом и воздухом, создавая ощущение свободы и комфорта. Тепло и уют: Здесь всегда тепло и уютно, даже в самые холодные дни. Идеальное расположение: Вы живете в центре города, где все необходимое находится в шаговой доступности: площадь, стадион, магазины, кафе, транспорт – все под рукой! Виды на город и тихий двор: окна выходят на оживленную улицу Ватутина и в тихий, зеленый двор. Наслаждайтесь городским ритмом и спокойствием одновременно. Замечательные соседи: Дружелюбные и тихие соседи создают атмосферу добрососедства и уюта. Эта квартира – идеальный выбор для тех, кто ценит комфорт, пространство и жизнь в самом центре города! Звоните прямо сейчас и запишитесь на просмотр в удобное для Вас время. ***Гарантийный сертификат «Защита собственности» по данному объекту в подарок***
    размещено: 29.01.2025 , обновлено: 1.11.2025

    3-к квартира, Строителей, 1

    • 66.4 м2
    • 8/9 этаж
    • Состояние: идеальное
    5 600 000 ₽ (84300 ₽/м2)
    Продаётся уютная трёхкомнатная квартира площадью 66.4 квадратных метров на восьмом этаже девятиэтажного панельного дома, расположенного в микрорайоне Техгород по адресу: город Первоуральск, улица Строителей, дом 1. Дом построен в 1986 году и окружён развитой инфраструктурой: рядом находятся школа, детский сад, торговый центр и фитнес-клуб.Квартира порадует вас качественным евроремонтом, который добавляет комфорта и уюта вашему будущему жилищу. Жилая площадь составляет 40.1 квадратных метров, а кухня имеет площадь 8.8 квадратных метров – идеальное пространство для приготовления вкусных блюд и семейных ужинов. Наличие лоджии позволит вам наслаждаться видами на тихий двор и спокойную улицу, создавая атмосферу уединения и покоя.Совмещённый санузел оборудован всем необходимым для вашего удобства. Для маленьких жителей комплекса во дворе установлена детская площадка, где ваши дети смогут безопасно играть и веселиться под присмотром родителей. Также предусмотрена парковка во дворе, что значительно упрощает вопрос с местом для автомобиля.Это отличный вариант как для молодой семьи, так и для тех, кто ценит комфорт и качество жизни. Приглашаем вас ознакомиться с квартирой лично и убедиться во всех её преимуществах! ID объекта в нашей базе: 16641
    размещено: 15.10.2024 , обновлено: 16.10.2025

    3-к квартира, Ватутина, 38

    • 85 м2
    • 4/5 этаж
    • Состояние: хорошее
    5 650 000 ₽ (66500 ₽/м2)
    Продается большая просторная светлая квартира в самом центре города с видом на Администрацию. Квартира в хорошем состоянии. Пластиковые огромные окна, высокие двухуровневые потолки, качественная входная дверь, межкомнатные двери, с/у под кафелем. Квартира с балконом. Окна на ул.Ватутина и во двор. Отличные соседи, домофон. Просторная парковка во дворе для авто,современная детская площадка. Лучшие школы и садики в шаговой доступности. Площадь, стадион и все самое необходимое для городского жителя. Документы готовы. Рассмотрим обмен на 2 комнатную в этом районе. ID объекта в нашей базе: 7298
    размещено: 09.06.2023 , обновлено: 3.11.2025

Приоритет

Увеличивает просмотры в 3 раза

Ваше объявление показывается в списке выше обычных объявлений. подключить