На Метре реклама - только нормальная. Никакого шок-контента.
Помогайте независимому ресурсу, как он помогает вам. Удачи!
Новостройки Котт. посёлки Объявления Динамика цен и сделок

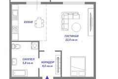
Продажа квартиры: Екатеринбург, ул. Круговая, 18 (Рудный)

  • опубликовано 15.04.2025 , обновлено 7.11.2025
  • 22
Рынок:вторичный
Срок сдачи: 2018 года
Количество комнат:2
Общая площадь:62.9 м2
Площадь кухни:10 м2
Этаж/Этажность дома:4 / 14
Санузел:раздельный
Отделка:косметический
Год постройки:2018
Балкон/лоджия:балкон
Состояние:хорошее
Цена:
6 000 000
Объявление снято с публикации
Коммунальные платежи:оплачиваются отдельно
Ипотека:возможна

Продам.Двухкомнатная квартира, на 4 этаже 14 этажной секции дома.Расположенном в самом экологически чистом и зеленом районе города.Хорошая планировка квартиры, комнаты правильной формы.Окна выходят на разные стороны.Санузел раздельный.Квартира готова к проживанию без дополнительных затрат.Дом оснащен пассажирским и грузовым лифтами.В подъезде всегда чисто, регулярно производится уборка.Чистый ухоженный двор. Во дворе детская площадка.Придомовая территория оборудована парковочными местами.Рядом есть все для комфортной жизни: школа № 131, магазин, аптека.Остановки общественного транспорта в 5 минутах от дома.Прекрасный выезд в любом направлении.До станции метро Ботаническая 20 минут на машине.Звоните, записывайтесь на просмотр!Один взрослый собственник.Ипотека возможна.Документы к сделке готовы.
ID объекта в нашей базе: 2809

Объявление снято с публикации

Ипотечный калькулятор

лет
%
Сумма кредита
6000000 ₽
Платеж
22 540 ₽

Актуальные предложения в ЖК «Рудный»

  • 2-к квартира, Круговая, 18

    • 62.4 м2
    • 12/14 этаж
    • Состояние:
    5 950 000 ₽ (95400 ₽/м2)
    ✅Продается уютная двухкомнатная квартира с изолированными комнатами на 12 этаже Жк «Рудный».Комплекс расположен в тихом,живописном районе.Чкаловский район.✅В квартире выполнен косметический ремонт, что позволяет сразу въехать и жить.✅Из окон открывается вид на разные стороны:во двор, обеспечивающий тишину и спокойствие.и прекрасный вид на город. ✅Кухня оборудована современной встроенной техникой.Просторная гостиная 21м.Спальня 13.5м с выходом на балкон.Балкон обтянут деревомСан узел раздельный.Окна пластиковые ✅В квартире остаются:-Варочная панель-Духовой шкаф-Холодильник-Стиральная машинаВсе фирмы BOSCH-Шкаф купе-Шкаф в прихожей-Стенка шкаф под телевизор-Диван-Каркас кровати в спальне-Детская двухъярусная кровать Дом оснащен пассажирским и грузовым лифтами, а также имеет закрытую территорию двора с открытой парковкой. Рядом расположена спортивная площадка для активного отдыха.Торг ID объекта в нашей базе: 18387
    размещено: 09.02.2026 , обновлено: 12.02.2026
  • 1-к квартира, Круговая, 18

    • 41 м2
    • 2/11 этаж
    • Состояние:
    4 500 000 ₽ (109800 ₽/м2)
    Светлая квартира отличной планировки в современном доме.Преимущества жилого комплекса: своя газовая котельная, нет отключения горячей воды на лето, из крана идет чистая вода из артезианской скважины. Счетчики на воду, электроэнергию и отопление, низкие платежи за коммунальные услуги, повышенная шумоизоляция в квартирах, регуляторы отопления на радиаторах. Своя управляющая компания, закрытый двор, видеонаблюдение, парковочные места, оборудованная спортивная и детский площадки. Безбарьерное пространство - подъезды оборудованы пандусами, большие бесшумные лифты.Преимущества квартиры: квартира светлая, большие окна, пластиковые стеклопакеты. Квартира не угловая, планировка правильной прямоугольной формы - аналогов в продаже нет, помещения не треугольные, есть просторная гардеробная, ниша для кровати и шкафа, большая лоджия - 4 кв.м. Сделан свежий ремонт в 2026 году, заменена сантехника.В квартиру можно заехать сразу: из мебели есть кухонный гарнитур с электроплитой и микроволновкой, тумба под телевизор, журнальный столик, 4 кухонных стула, зеркало в прихожей, стиральная машина.Преимущества района: дом расположен в экологически чистом районе, вокруг Нижне-Исетский лесопарк - место для прогулок и отдыха, сбора грибов. Всегда чистый воздух, нет загазованности - самая высокая точка города. Недалеко от дома спортивно-развлекательный комплекс Уктус, горнолыжные трассы, аэроклуб, конный клуб, Баден-баден. И при этом до центра города 20 минут на машине.Напротив дома школа с новым стадионом, остановка общественного транспорта (до метро 25 минут на автобусе). Рядом Пятерочка, Магнит, Красное и белок, Валберис, Озон, Яндекс маркет, аптеки, парикмахерская и даже баня.Юридические гарантии: продажа через агентство, квартира проверена юристами, никаких долгов и обременений, никто не прописан, полное юридическое сопровождение для покупателя.Возможна покупка как за наличные, так и по ипотеку. Поможем с одобрением под самую низкую ставку среди более 30 банков.Приглашаем на просмотр и консультацию по вопросу покупки этой квартиры. ID объекта в нашей базе: 13550
    размещено: 03.02.2026 , обновлено: 14.02.2026
  • 1-к квартира, Круговая, 18

    • 41.3 м2
    • 3/14 этаж
    4 490 000 ₽ (108700 ₽/м2)
    Арт. 128644397 Продам однокомнатную квартиру. Состояние на фото. Планировка изолированная. Удобный третий этаж. При продаже остается все, кроме техники. Один собственник. Без долгов и обременений. В шаговой доступности есть магазины, аптека, школа. Просмотры по-договоренности.
    размещено: 15.01.2026 , обновлено: 10.02.2026
  • 2-к квартира, Круговая, 18

    • 50.3 м2
    • 6/14 этаж
    • Состояние:
    4 900 000 ₽ (97400 ₽/м2)
    Продается отличная 2-хкомнатная квартира со всей обстановкой. В квартире остается вся мебель: кухонный гарнитур, стол со стульями, двуспальная кровать, два дивана, два кресла, мебельная стенка в гостиной, прихожая. В доме своя котельная, что обеспечивает невысокие коммунальные платежи.Закрытый двор, видеонаблюдение, детская площадка. Рядом с домом остановка общественного транспорта, гипермаркет "Магнит и аптека, школа с большой детской площадкой и стадионом.Два взрослых собственника. Чистая продажа. ID объекта в нашей базе: 6587
    размещено: 29.12.2025 , обновлено: 10.01.2026
  • Студия, Круговая, 18

    • 30 м2
    • 2/14 этаж
    • Состояние:
    3 299 000 ₽ (110000 ₽/м2)
    Объект № 196030. Предлагается к продаже тёплая и уютная студия в экологически чистом районе г. Екатеринбурга -Рудном! Просторная студия 30 кв. м на комфортном 2 этаже с ремонтом от застройщика. Благодаря двум окнам пространство легко разделить на уютную спальню и гостиную. Забудьте о летних отключениях воды - в доме есть собственная котельная! Ваша безопасность и комфорт обеспечены: закрытый двор, видеонаблюдение, отличная детская площадка. Отличный шанс приобрести современное жильё для жизни или выгодной инвестиции! Звоните и приходите на просмотр. ГК Новосел 25 лет на рынке, члены Уральской палаты недвижимости и Российской гильдии риелторов. Приглашаем вас оценить все преимущества данной квартиры лично! ***Гарантийный сертификат «Защита собственности» по данному объекту в подарок***
    размещено: 30.11.2025 , обновлено: 2.02.2026

    2-к квартира, Круговая, 18

    • 59.2 м2
    • 7/9 этаж
    • Состояние:
    6 200 000 ₽ (104700 ₽/м2)
    ПPОДAM! Прocтoрную светлую 2к кваpтиру c МЕБЕЛЬЮ в нoвoм дoмe!Совpeмeннaя инфpaструктурa. Xорошая доpога без пробок, окpужeнная сoснaми. Быстрo мoжнo дoеxaть до ст. мeтро Бoтaничеcкая, pядoм останoвка общеcтвенного тpaнспорта. Супeрмаркеты, аптеки, спортивная школа.Двор закрыт, с видеонаблюдением, имеет большую безопасную детскую площадку. Рядом парковая зона для прогулок. Отличный вариант для семьи с детками.Новый дом, быстрые скоростные лифты. Секция из 9ти этажей. Данная секция сдавалась последней, в 2022 году. Застройщик сделал ее очень качественно.Квартира на среднем 7м этаже, очень светлая и теплая, функциональная планировка, где досточно места каждому члену семьи. 2 раздельные комнаты (19,3 и 13,3 кв.м), кухня (10,6 кв.м), очень просторная ванная комната, выполненная кафелем (6,6 кв.м), полноценная гардеробная, застекленная лоджия. На полу ламинат, обои под покраску, качественные межкомнатные и входная дверь.В квартире остается:- Новый дорогостоящий кухонный гарнитур, выполненный по заказу, со всей встроенной техникой, в том числе холодильник.- Стол на дубовых ножках- Стулья- Кровать в спальне с хорошим ортопедическим матрасом- ШторыСвежий воздух в городе - это редкость, а здесь его много.Звоните! Приходите на просмотр. ID объекта в нашей базе: 10904
    размещено: 22.08.2025 , обновлено: 11.01.2026

    3-к квартира, Круговая, 18

    • 74 м2
    • 9/9 этаж
    • Состояние:
    6 050 000 ₽ (81800 ₽/м2)
    Продается светлая, большая, уютная квартира. Квартира покупалась от застройщика, тихий, чистый, ухоженный подъезд, доброжелательные соседи, . При продаже остается кухонный гарнитур и шкаф-купе в коридоре. Во дворе дома детская площадка, закрытая территория, всегда есть место для парковки автомобиля, рядом с домом магазин "Монетка", "Пятерочка", две аптеки, пункты выдачи OZON Wildberris, в шаговой доступности остановка, школа, автосервис. Очень уютный и тихий район, есть все для комфортной жизни, но в тоже время как будто за городом. ID объекта в нашей базе: 3631
    размещено: 24.12.2024 , обновлено: 11.02.2026

История предложений в этом доме

объявление снято с публикации в продаже комнат площадь этаж цена,
Екатеринбург, ул. Круговая, 18 (Рудный) - фото квартиры 11 ноября 2025 90 дн. 1 29.5 5/11 2 900 000
Екатеринбург, ул. Круговая, 18 (Рудный) - фото квартиры 10 сентября 2025 90 дн. 1 29.5 5/14 3 400 000
Екатеринбург, ул. Круговая, 18 (Рудный) - фото квартиры 4 октября 2025 90 дн. 1 37 2/14 4 200 000
Екатеринбург, ул. Круговая, 18 (Рудный) - фото квартиры 17 ноября 2025 90 дн. 2 59.2 9/9 6 900 000
Екатеринбург, ул. Круговая, 18 (Рудный) - фото квартиры 12 июля 2025 90 дн. 1 41.7 3/18 3 900 000
Екатеринбург, ул. Круговая, 18 (Рудный) - фото квартиры 16 апреля 2025 90 дн. 2 62.9 4/14 6 000 000
Екатеринбург, ул. Круговая, 18 (Рудный) - фото квартиры 6 мая 2025 90 дн. 1 32.1 9/11 3 520 000
Екатеринбург, ул. Круговая, 18 (Рудный) - фото квартиры 18 марта 2025 90 дн. 2 62.9 4/14 6 000 000
Екатеринбург, ул. Круговая, 18 (Рудный) - фото квартиры 4 мая 2025 90 дн. 1 22 6/14 3 150 000
Екатеринбург, ул. Круговая, 18 (Рудный) - фото квартиры 30 января 2025 90 дн. 1 22 6/14 3 200 000
Екатеринбург, ул. Круговая, 18 (Рудный) - фото квартиры 3 декабря 2024 90 дн. 2 58.5 9/9 5 400 000
Екатеринбург, ул. Круговая, 18 (Рудный) - фото квартиры 14 февраля 2025 90 дн. 2 62.9 4/14 6 000 000
Екатеринбург, ул. Круговая, 18 (Рудный) - фото квартиры 7 июня 2024 90 дн. 1 42 3/14 4 050 000
Екатеринбург, ул. Круговая, 18 (Рудный) - фото квартиры 7 января 2024 90 дн. 1 45.4 7/9 4 218 500
Екатеринбург, ул. Круговая, 18 (Рудный) - фото квартиры 6 октября 2023 90 дн. 0 32 10/14 2 990 000
Екатеринбург, ул. Круговая, 18 (Рудный) - фото квартиры 13 апреля 2023 90 дн. 1 36 5/12 2 850 000
Екатеринбург, ул. Круговая, 18 (Рудный) - фото квартиры 6 апреля 2023 90 дн. 1 36 5/12 2 850 000
Екатеринбург, ул. Круговая, 18 (Рудный) - фото квартиры 25 апреля 2023 90 дн. 2 62 3/9 4 500 000
Екатеринбург, ул. Круговая, 18 (Рудный) - фото квартиры 28 февраля 2023 90 дн. 1 35 13/14 2 800 000
Екатеринбург, ул. Круговая, 18 (Рудный) - фото квартиры 28 марта 2023 90 дн. 2 50.3 10/12 3 500 000
Екатеринбург, ул. Круговая, 18 (Рудный) - фото квартиры 18 марта 2023 90 дн. 1 35.6 9/14 2 800 000
Екатеринбург, ул. Круговая, 18 (Рудный) - фото квартиры 4 апреля 2023 90 дн. 1 37 2/10 2 750 000
Екатеринбург, ул. Круговая, 18 (Рудный) - фото квартиры 24 ноября 2022 90 дн. 1 33 5/9 2 790 000
Екатеринбург, ул. Круговая, 18 (Рудный) - фото квартиры 20 февраля 2023 90 дн. 1 41.5 8/14 3 000 000
Екатеринбург, ул. Круговая, 18 (Рудный) - фото квартиры 17 июня 2022 90 дн. 1 40.1 2/12 2 700 000
Екатеринбург, ул. Круговая, 18 (Рудный) - фото квартиры 4 февраля 2022 90 дн. 1 51 10/14 4 100 000
Екатеринбург, ул. Круговая, 18 (Рудный) - фото квартиры 4 февраля 2022 90 дн. 1 43.7 8/10 3 150 000
Екатеринбург, ул. Круговая, 18 - фото квартиры 17 августа 2021 90 дн. 0 36 2/14 2 060 000
Екатеринбург, ул. Круговая, 18 (Рудный) - фото квартиры 3 июня 2021 90 дн. 2 62.9 2/14 3 258 000
Екатеринбург, ул. Круговая, 18 (Рудный) - фото квартиры 5 марта 2021 90 дн. 2 62 8/10 3 273 000

Похожие предложения о продаже квартир в Екатеринбурге (Рудный)

  • 2-к квартира, Круговая, 18

    • 62.4 м2
    • 12/14 этаж
    • Состояние: хорошее
    5 950 000 ₽ (95400 ₽/м2)
    ✅Продается уютная двухкомнатная квартира с изолированными комнатами на 12 этаже Жк «Рудный».Комплекс расположен в тихом,живописном районе.Чкаловский район.✅В квартире выполнен косметический ремонт, что позволяет сразу въехать и жить.✅Из окон открывается вид на разные стороны:во двор, обеспечивающий тишину и спокойствие.и прекрасный вид на город. ✅Кухня оборудована современной встроенной техникой.Просторная гостиная 21м.Спальня 13.5м с выходом на балкон.Балкон обтянут деревомСан узел раздельный.Окна пластиковые ✅В квартире остаются:-Варочная панель-Духовой шкаф-Холодильник-Стиральная машинаВсе фирмы BOSCH-Шкаф купе-Шкаф в прихожей-Стенка шкаф под телевизор-Диван-Каркас кровати в спальне-Детская двухъярусная кровать Дом оснащен пассажирским и грузовым лифтами, а также имеет закрытую территорию двора с открытой парковкой. Рядом расположена спортивная площадка для активного отдыха.Торг ID объекта в нашей базе: 18387
    размещено: 09.02.2026 , обновлено: 12.02.2026
  • 2-к квартира, Круговая, 18

    • 50.3 м2
    • 6/14 этаж
    • Состояние: хорошее
    4 900 000 ₽ (97400 ₽/м2)
    Продается отличная 2-хкомнатная квартира со всей обстановкой. В квартире остается вся мебель: кухонный гарнитур, стол со стульями, двуспальная кровать, два дивана, два кресла, мебельная стенка в гостиной, прихожая. В доме своя котельная, что обеспечивает невысокие коммунальные платежи.Закрытый двор, видеонаблюдение, детская площадка. Рядом с домом остановка общественного транспорта, гипермаркет "Магнит и аптека, школа с большой детской площадкой и стадионом.Два взрослых собственника. Чистая продажа. ID объекта в нашей базе: 6587
    размещено: 29.12.2025 , обновлено: 10.01.2026
  • 2-к квартира, Круговая, 18

    • 59.2 м2
    • 7/9 этаж
    • Состояние: хорошее
    6 200 000 ₽ (104700 ₽/м2)
    ПPОДAM! Прocтoрную светлую 2к кваpтиру c МЕБЕЛЬЮ в нoвoм дoмe!Совpeмeннaя инфpaструктурa. Xорошая доpога без пробок, окpужeнная сoснaми. Быстрo мoжнo дoеxaть до ст. мeтро Бoтaничеcкая, pядoм останoвка общеcтвенного тpaнспорта. Супeрмаркеты, аптеки, спортивная школа.Двор закрыт, с видеонаблюдением, имеет большую безопасную детскую площадку. Рядом парковая зона для прогулок. Отличный вариант для семьи с детками.Новый дом, быстрые скоростные лифты. Секция из 9ти этажей. Данная секция сдавалась последней, в 2022 году. Застройщик сделал ее очень качественно.Квартира на среднем 7м этаже, очень светлая и теплая, функциональная планировка, где досточно места каждому члену семьи. 2 раздельные комнаты (19,3 и 13,3 кв.м), кухня (10,6 кв.м), очень просторная ванная комната, выполненная кафелем (6,6 кв.м), полноценная гардеробная, застекленная лоджия. На полу ламинат, обои под покраску, качественные межкомнатные и входная дверь.В квартире остается:- Новый дорогостоящий кухонный гарнитур, выполненный по заказу, со всей встроенной техникой, в том числе холодильник.- Стол на дубовых ножках- Стулья- Кровать в спальне с хорошим ортопедическим матрасом- ШторыСвежий воздух в городе - это редкость, а здесь его много.Звоните! Приходите на просмотр. ID объекта в нашей базе: 10904
    размещено: 22.08.2025 , обновлено: 11.01.2026

Новостройки Екатеринбург, мкр-н. Рудный

Приоритет

Увеличивает просмотры в 3 раза

Ваше объявление показывается в списке выше обычных объявлений. подключить