Продажа квартиры: Екатеринбург, ул. Вдохновения, 4, ЖК "Солнечный Дом" (Солнечный)
| Рынок: | строящееся жилье |
| Срок сдачи: | 4 квартал 2026 года |
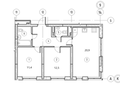
| Количество комнат: | 2 |
| Из них изолированных: | 2 |
| Планировка: | спецпроект |
| Общая площадь: | 60 м2 |
| Жилая площадь: | 23 м2 |
| Площадь кухни: | 28 м2 |
| Этаж/Этажность дома: | 1 / 16 |
| Материал стен: | кирпич-монолит |
| Санузел: | несколько |
| Отделка: | Под чистовую |
| Год постройки: | 2026 |
| Цена: | 8 500 000 ₽
|
| Условия продажи: | «чистая» продажа |
| Ипотека: | Возможна |
Просторная квартира с увеличенной кухней-гостиной, большими спальнями, двумя санузлами. Отделка под чистовую – белые стены, стяжка – все будет подготовлено под финальные покрытия, будут установлены розетки и выключатели, унитаз и умывальник в одном из санузлов.
Дом располагается рядом с губернаторским лицеем, центром художественной гимнастики, аутлетом. Остановка транспорта рядом с домом, уже ходят несколько маршрутов.
Сдача дома в конце 2026 года, ключи в 2027 году.
Уступка от физлица.
Возможна покупка в рассрочку. Звоните, обсудим детали.
Застройщик ЭТАЛОН.







