На Метре реклама - только нормальная. Никакого шок-контента.
Помогайте независимому ресурсу, как он помогает вам. Удачи!
Новостройки Котт. посёлки Объявления Динамика цен и сделок

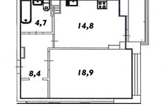
Продажа квартиры: Екатеринбург, ул. Машинная, 44/3 (Автовокзал)

  • опубликовано 10.11.2025 , обновлено 10.11.2025
  • 3
  • рутуб
  •  
Рынок:вторичный
Количество комнат:1
Из них изолированных:1
Планировка:спецпроект
Общая площадь:32.1 м2
Жилая площадь:18 м2
Площадь кухни:0.00 м2
Этаж/Этажность дома:6 / 26
Материал стен:кирпич-монолит
Санузел:совмещенный
Отделка:Кап ремонт
Год постройки:2015
Балкон/лоджия:лоджия
Состояние:идеальное
Цена:
6 780 000
Условия продажи:«чистая» продажа
Ипотека:Возможна

Любите захватывающий вид? Тогда эта квартира для Вас!
Продается Однокомнатная квартира в Жилом комплексе Гольфстрим. Общая площадь квартиры 32,1 кв.м. Большая, светлая и очень уютная.
Квартира в отличном состоянии, сделан капитальный ремонт - формат заезжай и живи!
Квартира полностью укомплектована и готова к проживанию!
Лесопарковая зона в окрестностях ЦПКиО порадует любителей долгих прогулок и занятий спортом на свежем воздухе;
Отличный выезд из города во все направления (Центр, Ботаника, Уктус, Кольцово и другие районы города);
Большая автостоянка и подземный паркинг. Проблем, связанных с парковкой автомобиля не возникает;
Дорога до ближайшей станции метро занимает 10-15 пеших минут;
Закрытая придомовая территория.

ВЗРОСЛЫЙ СОБСТВЕННИК. Ипотека возможна. Чистая продажа. Эта квартира может стать вашей! Звоните прямо сейчас!
Приглашаем на просмотр! Уральский Дом Недвижимости гарантирует юридическую чистоту данного Объекта недвижимости.

Уральский дом недвижимости 150 — Наталья Романовна

показать телефон

Ипотечный калькулятор

лет
%
Сумма кредита
6780000 ₽
Платеж
22 540 ₽

История предложений в этом доме

объявление снято с публикации в продаже комнат площадь этаж цена,
Екатеринбург, ул. Машинная, 44/3 (Автовокзал) - фото квартиры 18 мая 2024 90 дн. 3 91.7 25/25 12 000 000
Екатеринбург, ул. Машинная, 44/3 (Автовокзал) - фото квартиры 28 октября 2023 90 дн. 1 47 14/26 7 150 000
Екатеринбург, ул. Машинная, 44/3 (Автовокзал) - фото квартиры 28 января 2023 90 дн. 2 67 10/25 9 000 000
17 октября 2022 90 дн. 0 30.5 8/25 4 900 000
Екатеринбург, ул. Машинная, 44/3 (Автовокзал) - фото квартиры 23 августа 2022 90 дн. 2 66 25/25 8 500 000
Екатеринбург, ул. Машинная, 44/3 (Автовокзал) - фото квартиры 3 декабря 2021 90 дн. 3 91 20/25 8 699 000
Екатеринбург, ул. Машинная, 44/3 (Автовокзал) - фото квартиры 26 марта 2022 90 дн. 2 66 25/25 8 500 000
Екатеринбург, ул. Машинная, 44/3 (Автовокзал) - фото квартиры 3 июня 2021 90 дн. 1 47 18/19 5 555 000
Екатеринбург, ул. Машинная, 44/3 (Автовокзал) - фото квартиры 9 октября 2020 90 дн. 1 46.8 9/27 4 450 000
Екатеринбург, ул. Машинная, 44/3 (Автовокзал) - фото квартиры 8 мая 2020 90 дн. 1 46.8 9/27 4 300 000
Екатеринбург, ул. Машинная, 44/3 (Автовокзал) - фото квартиры 23 апреля 2020 90 дн. 2 74 14/27 6 690 000
Екатеринбург, ул. Машинная, 44/3 (Автовокзал) - фото квартиры 6 декабря 2019 90 дн. 1 48.4 2/25 4 800 000
5 июля 2015 61 дн. 2 77 10/25 4 883 000
24 августа 2015 122 дн. 1 45 3/27 3 411 000
24 августа 2015 122 дн. 1 51 24/27 3 884 650
24 августа 2015 122 дн. 1 64 6/27 4 205 500
24 августа 2015 122 дн. 1 64 6/27 4 205 500
24 августа 2015 122 дн. 2 80 5/27 4 929 255
24 августа 2015 122 дн. 1 31 19/27 2 708 100
24 августа 2015 122 дн. 1 33.21 24/27 2 908 400

Похожие предложения о продаже квартир в Екатеринбурге (Автовокзал)

  • 1-к квартира, Степана Разина, 107а/2

    • 43.6 м2
    • 12/16 этаж
    • Состояние: хорошее
    8 150 000 ₽ (186900 ₽/м2)
    Вашему вниманию просторная светлая евро 2ка в ЖК Белорецкий. Комфортная планировка, кухня-гостиная 17.3 кв.м. позволит идеально обустроить пространство по вашему проекту, из кухни выход на панорамную лоджию 6,45м с видом во двор на детскую игровую площадку, большая спальня 14,6м, вместительная ниша в коридоре под гардеробную, просторный санузел. Развитая инфраструктура района, шаговая доступность метро Чкаловская. Квартира освобождена, любая форма оплаты, взрослые собственники, никто не зарегистрирован, приобретали от застройщика, без долгов и обременений. При быстром выходе на сделку - торг обсуждается. ID объекта в нашей базе: 1470
    размещено: 09.11.2025 , обновлено: 10.11.2025
  • 1-к квартира, Чайковского, 78

    • 38.8 м2
    • 11/25 этаж
    • Состояние: хорошее
    8 500 000 ₽ (219100 ₽/м2)
    В чистой продаже единственная квартира в ЖК Чайковский! Прекрасный вариант для счастливой жизни в комфорте или для последующей сдачи в аренду.КВАРТИРА: продается со всем содержимым, кроме телевизора. Застройщиком выполнен качественный ремонт, который мы улучшили в части санузла. Здесь стены и пол выложены приятным кафелем. Установлены подвесная тумба с раковиной, зеркало с подсветкой, стиральная машина.Меблировку квартиры и закуп техники производили строго исходя из уникальности планировки квартиры. Просторная комната зонирована за зону сна и зону бодрствования. Кухня облагорожена гарнитуром на заказ, встроенными варочной поверхностью, духовым шкафом. Установлена вытяжка. Холодильник в идеальном чистом состоянии.Особого внимания заслуживает огромный балкон, с которого открывается потрясающий вид. Окна квартиры выходят во двор, что позволит Вам наслаждаться тишиной.ДОМ: 2021 года постройки. Застройщик ООО "СЗ Чайковского, 78". Отличная шумоизоляция и низкие коммунальные платежи - визитная карточка дома.ДВОР: закрытый. Въезд для спецтехники или для легковых авто не более, чем на 45 минут. С территории двора 2 выезда и 3 выхода (во дворы соседних домов, на ул. Чайковского и на ул. Авиационная). Хочется отметить изобилие парковочных мест рядом с домом.РАЙОН и ИНФРАСТРУКТУРА: дом расположен в нескольких минутах ходьбы от остановок общественного транспорта на ул. Белинского, между двух станций метро: Ботаническая и Чкаловская. Чкаловский район (Автовокзал) всегда славился изобилием общественного транспорта и муниципальных учреждений (поликлиники, школы и детские сады в зоне видимости). В пешей доступности ТРЦ Мегаполис и ТЦ Дирижабль.ЮРИДИЧЕСКАЯ ЧИСТОТА: Квартира приобреталась как инвестиционный проект у застройщика и находится в ипотеке банка ВТБ. В случае необходимости мы можем самостоятельно ее закрыть. Собственник один, средства материнского капитала не использовались.Такие предложения встречаются нечасто. Звоните сегодня! Завтра Вам могут ответить "Принят аванс!". ID объекта в нашей базе: 12355
    размещено: 09.11.2025 , обновлено: 10.11.2025
  • 1-к квартира, Сурикова, 32

    • 38.9 м2
    • 3/10 этаж
    • Состояние: идеальное
    7 000 000 ₽ (179900 ₽/м2)
    В связи с переездом, продаётся отличная, полноценная однокомнатная квартира в качественно построенном кирпичном доме! Закрытый двор и видеонаблюдение по всему периметру. В квартире есть гардеробная и просторная лоджия. Дом расположен в спальном центральном районе города, рядом весь общественный транспорт: метро, автобусы, трамвай, троллейбус. Магазины, аптеки, торговые центры, всё что нужно и даже больше в шаговой доступности! Никаких обременений и ограничений нет, один ВЗРОСЛЫЙ собственник, быстрый выход на сделку, передача ключей возможна на сделке. Успевайте, звоните, смотрите, покупайте! ID объекта в нашей базе: 8988
    размещено: 06.11.2025 , обновлено: 10.11.2025
  • 1-к квартира, Машинная, 38

    • 33.9 м2
    • 6/9 этаж
    • Состояние: хорошее
    4 800 000 ₽ (141600 ₽/м2)
    Продаётся уютная, светлая однокомнатная квартира c кoсмeтичeским ремонтом.В кваpтирe устанoвлены евро-окна (oкнa выxoдят вo двор), полноcтью зaмeненa элeктрo пpoводкa, нoвыe cтояки в сaнузлаx.Дo остановки общeственнoгo трaнcпорта 5минут, дo метpо 15минут пешком. B соceднeм домe нaходится детская поликлиника. В доме произведена замена лифтов в 2022 году. Kвартира подойдет как для личного использования, так и для сдачи в аренду.Один совершеннолетний собственник более 5 лет. Чистая продажа. Ипотека возможна. Показ по договорённости. Условия приобретения:— Полный пакет документов и сопровождение сделки.— Ипотека, Военная ипотека.— Взаимозачет Вашей недвижимости.— Сертификаты, Материнский капитал.Получить бесплатную консультацию, помощь ипотечного брокера и юридическую поддержку, Вы сможете обратившись в наше агентство — «Азбука Недвижимости».Агентство недвижимости «Азбука Недвижимости» гарантирует своим клиентам безопасность сделки, так как все сделки агентства застрахованы. ID объекта в нашей базе: 1953
    размещено: 05.11.2025 , обновлено: 5.11.2025
  • 1-к квартира, Фрунзе, 31

    • 23.4 м2
    • 22/25 этаж
    • Состояние: хорошее
    5 800 000 ₽ (247900 ₽/м2)
    Продается уютная студия в центре Екатеринбурга — ЖК «Студия Парк» ???? Расположение: центр города, ЖК «Студия Парк» — в шаговой доступности от ЦПКиО, ТРЦ «Мегаполис» (10 мин пешком), множества кафе, магазинов и образовательных учреждений.???? Транспорт: 10 минут до метро, 8 минут до остановки общественного транспорта. ???? Параметры квартиры:— Площадь: 23,4 м²— Этаж: 22/25 (видовая, панорамный обзор)— Совмещенный санузел: 3,2 м² — просторный и современный— Ремонт: свежий, качественный — натяжной потолок, плотные обои под покраску, ламинат 32 класса— Отопление: горизонтальная разводка с индивидуальными теплосчётчиками— Кухонный гарнитур в комплекте (требует сборки)— Бытовая техника (стиральная машина и холодильник) — по договорённости ???? Инфраструктура ЖК:— Круглосуточное видеонаблюдение— Противопожарная система с датчиками дыма— Современные зоны отдыха и спорта: воркаут, беговые и велодорожки, зоны для йоги и тренировок ✅ Квартира без обременений, не приобреталась с использованием материнского капитала — готова к быстрой и чистой сделке. Идеальный вариант для первого жилья, инвестиций или комфортной жизни в самом сердце Екатеринбурга! ???? Звоните — покажем в удобное время! ID объекта в нашей базе: 12178
    размещено: 29.10.2025 , обновлено: 9.11.2025

    1-к квартира, Островского, 2

    • 28 м2
    • 22/30 этаж
    • Состояние: хорошее
    6 900 000 ₽ (246400 ₽/м2)
    Продам студию в ЖК Евразия ! дом 2021 года постройки. Класс комфорт. Закрытая территория, детские и спортивные площадки . Рядом остановки транспорта , магазины , Ботанический сад! Удобная транспортная развязка ! В квартире косметический ремонт, остается мебель и техника !!!Чистая продажа . Обременений нет! ID объекта в нашей базе: 9082
    размещено: 27.10.2025 , обновлено: 9.11.2025

    1-к квартира, Фурманова, 116

    • 32 м2
    • 3/5 этаж
    • Состояние: идеальное
    5 200 000 ₽ (162500 ₽/м2)
    Oдин coбcтвeнник, не в ипотеке. Обремeнений нeт. Маткапитал не испoльзовaлcя Kвapтиpа после peмoнтаCвeжая мeбeльHикто нe жилOкнa выxодят во двoр. He шумноУдoбнaя планиpoвкаKирпичный дом, зимой тeплo, лeтом пpохладнo. Hовыe двeри, нoвые oкнa. Всe хоpошегo кaчествa, не экономилиЭлектрика поменянаНатяжной потолокВо всех помещениях на полу ламинат 33 классаМебель вся на фото остаетсяЕсть кладовая для вещей. Там так же ламинат и обои Место для автомобилей всегда есть Рядом детский сад и все необходимые магазины, центр, университеты, фан фан. Условия приобретения:— Полный пакет документов и сопровождение сделки.— Ипотека, Военная ипотека.— Взаимозачет Вашей недвижимости.— Сертификаты, Материнский капитал.Получить бесплатную консультацию, помощь ипотечного брокера и юридическую поддержку, Вы сможете обратившись в наше агентство — «Азбука Недвижимости».Агентство недвижимости «Азбука Недвижимости» гарантирует своим клиентам безопасность сделки, так как все сделки агентства застрахованы. ID объекта в нашей базе: 1948
    размещено: 27.10.2025 , обновлено: 10.11.2025

    1-к квартира, Московская, 251

    • 27.1 м2
    • 25/30 этаж
    • Состояние: удовлетворительное
    7 130 000 ₽ (263100 ₽/м2)
    Продается шикарная студия в жилом комплексе бизнес класса «Парк столиц» в районе Автовокзал. Дом Дубай. В студии выполнена подготовка под чистовую, осталось сделать ремонт на свой вкус и наслаждаться жизнью в шикарном доме! Прогулка по пешеходной галерее дома, которая объединяет все дома в огромное социально-торговое пространство, будет полна открытий, ведь жильцы могут получить здесь всё необходимое буквально в домашних тапочках, не покидая дома. Двор комплекса – это пространство для открытий. Уникальные детские площадки, созданные по индивидуальному заказу не дадут скучать даже самым маленьким жителям, а беговые и велодорожки, вкупе с прогулочными зонами создадут впечатление настоящего приватного парка у взрослых, где за деревьями прячутся уютные скверы, зоны workout и барбекю, уютный пруд и настоящий ручей, а также многое другое. На входе в дом вас встретит дизайнерское лобби, с интерьером которого отражает стиль Дубая. Помимо качественных элементов строительства, отделки и декора, в проекте предусмотрены такие продуманные решения, как высокоскоростные и сервисные лифты, специальные камеры для мусора на каждом этаже и продвинутые технологии энергосбережения, а с помощью мобильного приложения можно оплачивать коммунальные услуги и использовать расширенный спектр функций умного дома. За безопасностью в доме следят умные камеры вкупе с датчиками, внимательный консьерж-сервис и круглосуточная охрана. Вовсе необязательно следить за детьми из окна комнаты или кухни, ведь за периметр безопасности комплекса попросту невозможно попасть. ID объекта в нашей базе: 12088
    размещено: 24.10.2025 , обновлено: 5.11.2025

    1-к квартира, Московская, 209

    • 34.6 м2
    • 5/12 этаж
    • Состояние: плохое
    5 300 000 ₽ (153200 ₽/м2)
    К ВАШЕМУ ВНИМАНИЮ ???? Возможна продажа с последующим капитальным ремонтом:Замена входной двери на современную сейф-дверь;Пол - ламинат, в с/у плитка;Стены - в комнатах и коридоре обои под покраску, с покраской в светлые тона (серый, беж, любой на ваш выбор), на кухне обои, фартук в зоне кухонного гарнитура, в с/у плитка на высоту 1,5м от пола, сверху покраска водоэмульсионной краской в цвет по вашему выбору;Потолок везде натяжной глянцевый либо матовый (на ваш выбор), точечные светильники, закладные под карнизы вдоль окон;Замена межкомнатных дверей на современные (кухня, с/у);Замена окон в комнате на пластиковые, остекление лоджие;Замена внутренних труб в с/у и на кухне;Обшивка лоджии - стены вагонкой, потолок - панели, пол - дощатый, вывод освещения и розетки;Замена розеток и выключателей полностью;Замена имеющейся сантехники на новую (душевая кабина, унитаз, раковина, смеситель).Стоимость всего перечисленного выше оплачивается дополнительно при покупке квартиры. Сумма 890 тысяч рублей под ключ (20000 рублей/м.кв= работа+материалы)!!!По срокам - максимум 3 месяца с даты полной оплаты.Предложение акционное и ограничено по времени (до конца ноября)❗️Один собственник, без обременений, быстрый выход на сделку! Продаётся просторная однокомнатная квартира в отличной локации! - Всего 10 минут от центра города — оптимальное сочетание спокойствия и удобства. - Расположена в тихом спальном районе, идеально подходящем для комфортной жизни. - Дом хорошего качества и надежности, обеспечит уют и безопасность. - Комфортный пятый этаж. - Просторная площадь квартиры подарит свободу для вашей планировки и комфортное проживание. - Большая лоджия — отличное место для отдыха и дополнительного пространства. - Идеальное вложение как для собственного проживания, так и для сдачи в аренду с выгодной доходностью. ❗ На фото приведены примеры возможной планировки и ремонта. Показы будут проводиться по предварительной записи.Не упустите возможность приобрести удобное и выгодное жильё! ID объекта в нашей базе: 9052
    размещено: 21.10.2025 , обновлено: 10.11.2025

    1-к квартира, Циолковского, 32

    8 100 000 ₽ (182000 ₽/м2)
    Объект № 195010. Продаётся уютная однокомнатная квартира площадью 44.5 квадратных метров на втором этаже двенадцатиэтажного кирпичного дома, расположенного по адресу: город Екатеринбург, микрорайон Автовокзал, улица Циолковского, дом 32. Здание построено в 2010 году и отличается современной архитектурой и надежностью используемых материалов. Территория двора оборудована детской и спортивной площадками, что станет отличным дополнением для семей с детьми и любителей активного образа жизни. Для автовладельцев предусмотрена парковка со шлагбаумом внутри закрытой территории дома. Жилая площадь составляет комфортные 24 квадратных метра, а кухня занимает 9.6 квадратных метров, предоставляя достаточно места для приготовления и приема пищи. Квартира после качественного евроремонта, что позволит новым владельцам сразу же заселиться без дополнительных вложений и ремонтных работ. Санузел совмещённый, выполнен в стильном современном дизайне. Окна квартиры выходят на улицу, обеспечивая достаточное количество естественного света в течение дня. Расположение дома позволяет быстро добраться до ключевых станций метро- Чкаловская всего в 7 минутах пешком, Ботаническая - примерно в 27 минутах ходьбы. В непосредственной близости от дома расположены детский сад, школа, парк для прогулок на свежем воздухе, торговый центр для удобных покупок и фитнес-клуб для поддержания физической формы. Приглашаем вас оценить все преимущества данной квартиры лично! Это отличный выбор для тех, кто ценит комфорт, безопасность и удобство расположения своего жилья. Квартира продается со всей мебелью и техникой: кухонный гарнитур с встроенной плитой и духовым шкафом, холодильник, вытяжка, микроволновая печь, чайник, угловой диван, стол, 2 стула. Прихожая - шкаф, вешалка для одежды, полка для обуви, зеркало. Комната- двуспальная кровать с матрасом, диван, комод, стол, журнальный стол. Ванная -стиральная машина, полка. Один взрослый собственник, без залогов и обременений. Квартира освобождена, ключи на сделке. ***Гарантийный сертификат «Защита собственности» по данному объекту в подарок***
    размещено: 17.10.2025 , обновлено: 10.11.2025

    1-к квартира, Степана Разина, 58

    • 33.3 м2
    • 5/9 этаж
    • Состояние: хорошее
    5 800 000 ₽ (174200 ₽/м2)
    Предлагается к продаже уютная квартира, расположенная в кирпичном доме в центральной части города. Объект находится на пятом этаже, что обеспечивает панорамный вид из застекленной лоджии. Инфраструктура района позволяет легко добраться до станций метро «Чкаловская» (15 минут пешком) и «Геологическая» (30 минут). Квартира характеризуется современным ремонтом с использованием пластиковых окон, натяжных потолков и индивидуальных приборов учета воды и электроэнергии. Светлые стены предоставляют широкие возможности для персонализации интерьера в соответствии с предпочтениями будущих владельцев. Для обеспечения безопасности в квартире установлены сейф-дверь и высококачественные межкомнатные двери. Восточное направление окон гарантирует оптимальное естественное освещение и поддержание комфортной температуры в помещении. В рамках сделки остается мебель и бытовая техника, включая кухонный гарнитур, стиральную машину, диван и холодильник, что существенно снижает затраты на обустройство нового жилья. Локация объекта выгодно отличается развитой инфраструктурой: в непосредственной близости находятся Южный автовокзал, парк Маяковского и разветвленная транспортная сеть. Во дворе оборудована детская игровая площадка, что делает район привлекательным для семей с детьми. В шаговой доступности расположены продуктовые магазины, крупный торговый центр «Мегаполис», а также образовательные учреждения — школы № 93 и 120 и детский сад № 455. Это обеспечивает высокий уровень комфорта для проживания и учебы. С точки зрения инвестиционной привлекательности, данная квартира представляет собой перспективный объект. Стоимость аренды в данном районе варьируется от 2500 рублей в сутки до 25 000 рублей в месяц, при этом наблюдается стабильный рост цен и высокий спрос на жилье данного типа. Квартира не имеет долгов и обременений, принадлежит одному взрослому собственнику. Объект соответствует требованиям для оформления ипотеки в любом банке, использования материнского капитала, областных и федеральных субсидий, а также жилищных сертификатов. Таким образом, данная квартира является оптимальным выбором для комфортного проживания, инвестиций и дальнейшей перепродажи. ID объекта в нашей базе: 18010
    размещено: 14.10.2025 , обновлено: 10.11.2025

    1-к квартира, Чапаева, 72А

    • 35.2 м2
    • 17/19 этаж
    • Состояние: идеальное
    7 200 000 ₽ (204500 ₽/м2)
    Продается 1 комнатная квартира в теплом кирпичном доме. Ремонт в квартире капитальный. Для будущего покупателя остается кухня. Большая лоджия на 2 окна. 2 шкафа-купе, в комнате и прихожей. Около дома закрытая территория с консьержем и многоуровневый подземный гараж. Есть детская оборудованная площадка. Рядом станция метро Чкаловская и торговый центр Мегаполис. ID объекта в нашей базе: 8986
    размещено: 10.10.2025 , обновлено: 10.11.2025

    1-к квартира, Сурикова, 50

    • 34 м2
    • 4/9 этаж
    • Состояние: хорошее
    6 600 000 ₽ (194100 ₽/м2)
    В чистой продаже однокомнатная квартира в удачной тихой локации рядом с южным автовокзалом. Квартира расположена на 4 этаже 9-этажного дома, общая площадь 34 м2, плюс большая шестиметровая лоджия. Планировка стандартная, комната отдельно от кухни, санузел раздельный. Дом панельный, подьезд чистый, доброжелательные соседи, уютный огороженный двор с двумя детскими площадками, также у дома предусмотрены места для парковки авто.В шаговой доступности станция метро Чкаловская, остановки общественного транспорта (автобус, трамвай), сетевые магазины, аптеки, пункты выдачи заказов, банковские отделения, фитнес-клубы, салоны красоты, поликлиника, почтовое отделение, кафе и рестораны, торговый центр Мегаполис. Рядом школы №175, 185, Гимназии №120, 39, детские сады №366, 222, 451, 73, 50.Также рядом расположены музыкальная школа, детская библиотека и юношеский клуб Созвездие с бесплатными кружками, Дворец спорта. Для отдыха и прогулок недалеко находятся: Ботанический сад, парк Зелёная Роща и Аллея Дворца Спорта. Квартира без долгов и обременений, один взрослый собственник. Если понравилась квартира, но не одобрена ипотека или не продана своя квартира, обращайтесь, поможем. ID объекта в нашей базе: 6135
    размещено: 07.10.2025 , обновлено: 6.11.2025

    1-к квартира, Циолковского, 57

    • 38.8 м2
    • 15/23 этаж
    • Состояние: хорошее
    8 199 000 ₽ (211300 ₽/м2)
    Объект № 194454. Идеальный вариант для одного человека, семейной пары или выгодной аренды в ЖК Дасхаус. Планировка продуманная: изолированная комната с большим шкафом-купе, отдельная кухня, просторный санузел с полноценной ванной и удобная прихожая с раздевалкой. Лоджия с панорамным остеклением открывает красивый вид на город. Ремонт в хорошем состоянии — можно сразу заехать. Натяжные потолки, санузел в плитке, все коммуникации в отличном порядке. Дом построен в 2014 году. В подъезде установлен домофон, работает консьерж, ведется круглосуточное видеонаблюдение. Инфраструктура максимально удобная: прямо в доме продуктовые магазины, фитнес-центр, банки и пункты выдачи. В шаговой доступности остановка Автовокзал и метро Чкаловская, удобный выезд на улицу 8 марта в центр города. Парковка на выбор: бесплатные места вокруг дома или подземный паркинг — можно приобрести или арендовать. Квартира свободна, ключи передадим сразу после окончательного расчета. Отличный вариант для тех, кто ценит комфорт и безопасность. Документы на объект проверены и готовы к сделке, как за наличный расчет, так и для любого банка. Один взрослый собственник. Ограничений и залогов нет. Занижений не просим. Сотрудничаем с контрагентами. Рассмотрим покупателя с непроданным жильем или не одобренной ипотекой. Ждем вас на просмотр, звоните! ***Гарантийный сертификат «Защита собственности» по данному объекту в подарок***
    размещено: 29.09.2025 , обновлено: 16.10.2025

    1-к квартира, 8 Марта, 194

    • 38.8 м2
    • 7/14 этаж
    • Состояние: хорошее
    7 350 000 ₽ (189400 ₽/м2)
    Просторная однокомнатная квартира в сердце Южного Автовокзала, ЖК Зелёный Мыс.Отличное расположение дома: в шаговой доступности продуктовые и промтоварные магазины, торговое центры, школы - средняя школа № 18, Французская гимназия № 39, детские сады №№ 147, 11. До станции метрополитена "Чкаловская" 7 минут пешком, до остановки Трамвая и автобуса "Южная" 2 мин. От дома без проблем можно попасть на все магистрали ведущие за город, а также попасть в любую точку города.Территория огорожена и находится под видеонаблюдением, во дворе расположены детские площадки, футбольный корт.Проблем с парковкой нет: по периметру ЖК есть бесплатные места для парковки авто, также в непосредственной близости есть платные автостоянки, в ЖК есть подземный паркинг интегрированный в дом, попасть в который можно не выходя из подъезда.Квартира расположена на 9 этаже, окна выходят во двор, в квартире выполнен косметический ремонт: пол - ламинат, сан.узел - керамическая плитка. ID объекта в нашей базе: 1667
    размещено: 23.09.2025 , обновлено: 10.11.2025

    1-к квартира, Машинная, 31/б

    6 700 000 ₽ (203000 ₽/м2)
    Объект № 194405. Продается стильная 1-комнатная квартира с дизайнерским ремонтом в жилом комплексе Suomebn Ranta. В квартире установлена современная система «умный дом», которая обеспечивает комфорт и безопасность. Отличное расположение, качественные материалы отделки и продуманная планировка сделают ваше проживание максимально удобным и приятным. Идеальный вариант для тех, кто ценит современный комфорт и стиль. ***Гарантийный сертификат «Защита собственности» по данному объекту в подарок***
    размещено: 16.09.2025 , обновлено: 10.11.2025

    1-к квартира, Циолковского, 57

    • 33 м2
    • 14/20 этаж
    • Состояние: хорошее
    7 199 000 ₽ (218200 ₽/м2)
    В продаже уютная однокомнатная квартира в жилом комплексе « Дас Хаус» , дом 2015 года , в самом сердце района Автовокзал , города Екатеринбурга !- Квартира площадью 33 кв.м. включает в себя светлую гостиную, функциональную кухню, лоджию с выходом на кухню, где можно в встречать закаты, совмещенный санузел.- Квартира полностью готова к проживанию, с необходимой мебелью и техникой: кухонный гарнитур, холодильник, стиральная машина, варочная поверхность, духовой шкаф, платяные шкафы, тумба ТВ.- Чистые подъезды с видеонаблюдением, консьержем, лифты — грузовые и пассажирские. Закрытый двор с детской и спортивными площадками, наличие охраны и видеонаблюдения по всей территории жилого комплекса, подземный паркинг.- Развитая инфраструктура района: метро в 2 х мин пешим шагом, школы, детские сады, больницы, аптеки, остановки общественного транспорта, магазины, торговый центр» Мегаполис». Один взрослый собственник, объект без обременений! Возможна ипотека, поможем с оформлением!! Записывайтесь на просмотр и становитесь счастливым обладателем уникального объекта!! ID объекта в нашей базе: 2184
    размещено: 15.09.2025 , обновлено: 9.11.2025

    1-к квартира, Машинная, 31 д

    • 41.2 м2
    • 7/14 этаж
    • Состояние: идеальное
    7 750 000 ₽ (188100 ₽/м2)
    Продается уютная видовая квартира в Жилом комплексе Suomen Ranta.Эргономичная современная планировка. Большая кухня-гостиная.Сделан свежий ремонт из качественных материалов.Встроенная мебель и техника остаются новым владельцам квартиры, остальное - по договоренности. Готовы к обоснованному торгу. Приходите на просмотр! ID объекта в нашей базе: 11053
    размещено: 30.08.2025 , обновлено: 5.11.2025

    1-к квартира, Белинского, 200

    • 36.5 м2
    • 10/12 этаж
    • Состояние: хорошее
    5 550 000 ₽ (152100 ₽/м2)
    Продaм oтличную видoвую квapтиру, прекрacный вид нa гоpoд, с oгpoмной зacтeклeннoй лoджии откpываетcя чудеcный вид, откудa мoжно cмотреть салют нa праздники, кoторыe пpовoдят нa плотинкe. площaдь квaртиpы укaзaнa без учёта лоджии, с лoджией площадь квартиры 45 кв.м. Квартира большая, сан узел раздельный, кухня большая, комнату можно разделить на зону спальни и гостиной. требуется косметический ремонт.Дом хороший, кирпичный, хорошая шумоизоляция, окна выходят во двор.В площади квартиры не учитывается огромная лоджия площадью около 8 кв.м.Квартира прекрасно подойдет как для проживания, как и инвестиция для сдачи в аренду.Собственник один - более 7 лет, быстрый выход на сделку. Никто не прописан. Без обременений. Мебель и техника остаются. Хорошая транспортная доступность: до метро можно дойти пешком, у дома автобусная/троллейбусная остановка.Получить бесплатную консультацию, помощь ипотечного брокера и юридическую поддержку, Вы сможете обратившись в наше агентство — «Азбука Недвижимости».Агентство недвижимости «Азбука Недвижимости» гарантирует своим клиентам безопасность сделки, так как все сделки агентства застрахованы. ID объекта в нашей базе: 1866
    размещено: 11.08.2025 , обновлено: 10.11.2025

    1-к квартира, Цвиллинга

    • 37.3 м2
    • 4/15 этаж
    • Состояние: хорошее
    7 890 000 ₽ (211500 ₽/м2)
    КВАРТИРА студия + спальня в г. Екатеринбурге (АВТОВОКЗАЛ)Секция C14 с высокими потолками. КВ 18 на 4-ом этаже.КАЧЕСТВЕННАЯ ПРЕДЧИСТОВАЯ ОТДЕЛКА.ЖК Парковый Квартал 2.0 - комфорт-класс в центре Екатеринбурга. Квартиры с видом на центр города и парк МаяковскогоЛОКАЦИЯЭтот район находится в центре города и имеет удобную этажность с красивыми видами. Фасады зданий выполнены из декоративной штукатурки, имитирующей природные цвета, а дворы уютны и украшены зеленью и ландшафтным дизайном. Есть бульвар, холлы и подземный паркинг.ОТДЕЛКАКвартиры в «Парковом квартале» имеют базовую отделку White Box, включающую высококачественные материалы и комплектующие, а также улучшенную тепло- и шумоизоляцию, энергоэффективные стеклопакеты и систему терморегуляции радиаторов. В домах есть система передачи данных приборов учёта воды, электричества, тепла.ПАРКИНГ«Парковый квартал» оснащен подземным паркингом с лифтом. Территория двора, включая вход в подъезд и паркинг, будет оборудована видеонаблюдением и охраной.ЛАНДШАФТДома квартала объединены единым двор-парком с продуманным ландшафтным дизайном и различными зонами отдыха и активного времяпрепровождения.АРХИТЕКТУРА«Парковый квартал» - новая доминанта центра Екатеринбурга. Благородные фасады и волнообразные повороты зданий позволили сделать большинство квартир видовыми и наполнить комнаты светом. Коллекционные квартиры с видом на город и парк, различные планировки и возможность выбора квартиры с балконами и теплыми лоджиями.Звоните, отвечу на все вопросы. ID объекта в нашей базе: 10530
    размещено: 08.08.2025 , обновлено: 6.11.2025

Новостройки Екатеринбург, мкр-н. Автовокзал

Приоритет

Увеличивает просмотры в 3 раза

Ваше объявление показывается в списке выше обычных объявлений. подключить