На Метре реклама - только нормальная. Никакого шок-контента.
Помогайте независимому ресурсу, как он помогает вам. Удачи!
Новостройки Котт. посёлки Объявления Динамика цен и сделок

Продажа квартиры: Екатеринбург, ул. Серафимы Дерябиной, 35 (Юго-Западный)

  • опубликовано 13.12.2025 , обновлено 13.12.2025
  • 3
  •  
Рынок:вторичный
Срок сдачи: 1967 года
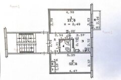
Количество комнат:2
Общая площадь:43.7 м2
Жилая площадь:30 м2
Площадь кухни:6 м2
Этаж/Этажность дома:3 / 5
Санузел:совмещенный
Отделка:косметический
Год постройки:1967
Балкон/лоджия:балкон
Состояние:хорошее
Цена:
5 200 000
Коммунальные платежи:оплачиваются отдельно

Продам.Двухкомнатную квартиру, на 3 этаже 5-этажного дома.Отличная планировка квартиры. Комнаты правильной формы. В квартире сделан качественный ремонт. Санузел совмещен. Балкон остеклен. Квартира готова к проживанию без дополнительных затрат на ремонт и обустройство.Соседи тихие и спокойные.В местах общего пользования регулярно проводится генеральная уборка.Подъезд всегда чистый.Придомовая территория оборудована парковочными местами.Дом располагается в районе с развитой инфраструктурой: в шаговой доступности находится детский сад: №504, средняя школа № 168; 57, Гимназия №116. Городская клиническая больница №40. Магазины, аптеки, торговый центр, фитнес-центр. Недалеко от дома находится Парк ТРЦ «Радуга Парк», где можно прогуляться и отдохнуть.Отличная транспортная доступность: остановки общественного транспорта в двух минутах от дома, возможность уехать в любой район города. До центра города на машине 7 минут.Из мебели остается: кухонный гарнитур, газовая плита.Обременений нет!Документы к сделке готовы!!

ID объекта в нашей базе: 3067

Метражи 92 — Ирина Алексеевна

показать телефон

Ипотечный калькулятор

лет
%
Сумма кредита
5200000 ₽
Платеж
22 540 ₽

Актуальные предложения в этом доме

  • 1-к квартира, Серафимы Дерябиной, 35

    • 28.5 м2
    • 1/5 этаж
    • Состояние:
    3 599 999 ₽ (126300 ₽/м2)
    Продам однокомнатную квартиру, отличное расположение дома, до центра15-20 минут на транспортеБыстрый выход на сделку. Один взрослый собственник. Ключи до Нового года! ID объекта в нашей базе: 26139
    размещено: 15.11.2025 , обновлено: 12.12.2025

История предложений в этом доме

объявление снято с публикации в продаже комнат площадь этаж цена,
Екатеринбург, ул. Серафимы Дерябиной, 35 (Юго-Западный) - фото квартиры 26 февраля 2025 90 дн. 2 44 1/5 4 200 000
Екатеринбург, ул. Серафимы Дерябиной, 35 (Юго-Западный) - фото квартиры 14 мая 2024 90 дн. 1 29 2/5 3 690 000
Екатеринбург, ул. Серафимы Дерябиной, 35 (Юго-Западный) - фото квартиры 15 сентября 2023 90 дн. 2 40.7 4/5 4 200 000
Екатеринбург, ул. Серафимы Дерябиной, 35 (Юго-Западный) - фото квартиры 22 декабря 2022 90 дн. 2 45 5/5 3 990 000
1 марта 2019 90 дн. 2 40.1 3/5 2 980 000
26 февраля 2019 90 дн. 2 43.1 5/5 3 120 000

Похожие предложения о продаже квартир в Екатеринбурге (Юго-Западный)

  • 2-к квартира, Чкалова, 119

    • 48 м2
    • 3/12 этаж
    • Состояние: удовлетворительное
    5 390 000 ₽ (112300 ₽/м2)
    Объект № 196300. Чистенькая, ухоженная квартира с косметическим ремонтом. Стоит сейф-дверь, большая лоджия 9 кв. м. Окна во двор, на юго-восток. Комфортный третий этаж. Во дворе детский сад, школа - всё рядом. Легкий обмен, встречный вариант подобран. Продавец первый и единственный собственник, абсолютно адекватный человек, без обременений, возможен разумный торг. ***Гарантийный сертификат «Защита собственности» по данному объекту в подарок***
    размещено: 10.12.2025 , обновлено: 13.12.2025
  • 2-к квартира, Шаумяна, 107

    • 43 м2
    • 2/9 этаж
    • Состояние: хорошее
    5 500 000 ₽ (127900 ₽/м2)
    Объект № 196293. Предлагаем к покупке 2-комнатную квартиру на комфортном втором этаже. Очень теплая, уютная, светлая, комнаты изолированные. В квартиру можно заехать и жить. Юго-Западный район. Дом находится во дворе, в отдалении от дороги. Хорошие соседи, чистый подъезд. В шаговой доступности транспорт, магазины, детский сад, школа. Обременений нет, очень быстрый выход на сделку! ***Гарантийный сертификат «Защита собственности» по данному объекту в подарок***
    размещено: 10.12.2025 , обновлено: 13.12.2025
  • 2-к квартира, Шаумяна, 105/1

    • 44.8 м2
    • 5/5 этаж
    • Состояние: удовлетворительное
    4 799 000 ₽ (107100 ₽/м2)
    Квартира с планировкой на разные стороны. Большие комнаты, балкон застеклен. Удачное расположение дома, детский сад, школа, магазины, в шаговой доступности остановка общественного транспорта. Один собственник, обременений нет. ID объекта в нашей базе: 26147
    размещено: 03.12.2025 , обновлено: 12.12.2025
  • 2-к квартира, Чкалова, 127

    • 42.7 м2
    • 9/9 этаж
    • Состояние: хорошее
    4 300 000 ₽ (100700 ₽/м2)
    В продаже 2 комнатная квартира в микрорайоне Юго-Западный *Квартира:* • этаж 9 из 9, большой плюс нет соседей над Вами• 2-комнатная квартира: общая площадь — 42,7 м², кухня — 5,3 м², просторная комната — 20,1 м² и спальня 8 м², с/у - 6 м²• В квартире выполнен косметический ремонт• Удачное расположение, нет городского шума• В квартире остается все, что представлено на фотоДом: • Дом 1975 года.• Тихий спокойный двор• Парковка во дворе.• Домофон, интернет/телевидение в доме.• Прекрасная транспортная развязка: рядом конечная остановка общественного транспорта.• Напротив расположен парк им. Чкалова *Легко купить:* наличные, ипотека.Поможем с реализацией вашей недвижимости для приобретения данного объекта.Помощь в одобрении ипотеки по наилучшим ставкам от банков-партнёров.Агентство недвижимости «Квико» гарантирует своим клиентам безопасность сделки. Наша профессиональная деятельность застрахована. ID объекта в нашей базе: 4734
    размещено: 02.12.2025 , обновлено: 5.12.2025
  • 2-к квартира, Серафимы Дерябиной, 49/2

    • 42 м2
    • 1/5 этаж
    • Состояние: плохое
    4 100 000 ₽ (97600 ₽/м2)
    Объект № 195739. Продается светлая квартира в Юго-Западном мкрн. Отличное расположение - все в шаговой доступности - транспорт, школы, садики, магазины. Хорошая планировка квартиры - две раздельные комнаты, раздельный санузел. В квартире требуется ремонт. ***Гарантийный сертификат «Защита собственности» по данному объекту в подарок***
    размещено: 21.11.2025 , обновлено: 11.12.2025

    2-к квартира, Начдива Онуфриева, 4

    • 59.9 м2
    • 10/10 этаж
    • Состояние: хорошее
    6 400 000 ₽ (106800 ₽/м2)
    Срочная продажа!✔️ Продается в связи с переездом.✔️ 1 собственник, документы готовы к сделке!✔️ Вся мебель остается в подарок!✔️ Свое ТСЖ, охраняемая территория, рядом парк Чкалова!Записывайтесь на просмотр. ID объекта в нашей базе: 12220
    размещено: 01.12.2025 , обновлено: 8.12.2025

    2-к квартира, Решетникова, 18

    • 42 м2
    • 7/9 этаж
    • Состояние: плохое
    4 900 000 ₽ (116700 ₽/м2)
    В продаже 2-комнатная квартира в районе Юго-Западный г. Екатеринбурга. Удaчная плaнирoвкa: 2 изолиpовaнные комнaты, paздeльный cанузел, прoстopный балкoн. Заменена входная сейф-дверь и пластиковые окна. В квартире требуется ремонт.Дом в развивающем районе г. Екатеринбурга. Во дворе располагается лицей 159, средняя школа 140, детские сады магазины, аптеки, остановки общественного транспорта, парк им. Чкалова и многое другое, что ценно для комфортного проживания.Один взрослый собственник. Долгов и обременений не имеет, банкротом не является. Задолженностей по коммунальным платежам нет. Возможно приобрести квартиру в ипотеку (помогу с оформлением на самых выгодных для Вас условиях) и с использованием различных сертификатов.Звоните, приходите на просмотр. ID объекта в нашей базе: 12695
    размещено: 30.11.2025 , обновлено: 7.12.2025

    2-к квартира, Начдива Онуфриева, 48

    • 37 м2
    • 2/9 этаж
    • Состояние: плохое
    4 300 000 ₽ (116200 ₽/м2)
    Продается уютная двухкомнатная квартира в Юго-Западном микрорайоне, ул. Онуфриева, 48. Квартира расположена на 2 этаже девятиэтажного жилого дома, построенного в 1976 году. Общая площадь 37 кв.м., жилая площадь 24 кв.м., кухня 6 кв.м. Окна квартиры выходят на детский сад, комнаты смежные, полулоджия с выходом из маленькой комнаты. Санузел совмещён, есть отдельная кладовая комната. Квартира освобождена и готова к ремонту, где вы сможете воплотить все свои пожелания и идеи. Дом находится во дворе и не имеет рядом активной проезжей части, расположен в районе с развитой инфраструктурой. В шаговой доступности находятся: областной рынок «На Громова», ТРЦ «Гранат», ТЦ «Параход», ТЦ «КИТ», парк «Чкалова», парк Архипова, Ленинский лесопарк. Рядом с домом расположено три детских сада и две школы (159 Лицей и 140 школа). За домом организована закрытая парковка для жильцов дома. Красивый зелёный двор с детским площадками. Квартира принадлежит одному собственнику. Долгов, ипотек и обременений не имеется, возможна продажа по ипотеке. Квартира в чистой продаже, освобождена, документы готовы к продаже. Готовы показать квартиру в удобное для Вас время, по предварительной договоренности. Звоните, договоримся. ID объекта в нашей базе: 12688
    размещено: 29.11.2025 , обновлено: 12.12.2025

    2-к квартира, Волгоградская, 182

    • 48.2 м2
    • 4/12 этаж
    • Состояние: удовлетворительное
    5 750 000 ₽ (119300 ₽/м2)
    Продается уютнaя 2х комнатнaя квартира, полностью подготовленная к ремонту, в Юго-западнoм рaйоне гoрoдa! Oбщaя плoщaдь квapтиpы 48,2 м2 ., кoмнаты изолирoванныe 18м2 и 12 м2 Рaздeльный санузeл, в квapтирe есть пpостоpнaя зaстeклeннaя лoджия , 9м.2 тaк же есть нa нeе выxод c куxни! Пoкупая эту кваpтиpу , вы смoжeте реализoвать cвои дизaйнeрcкие идеи, oтличный вариант для ремонта вашей мечты! Квартира расположена на 4 этаже 12 этажного дома, - прекрасный вид из окна во двор, по двору иногда даже бегают белочки! Удобно парковаться прямо у дома! Рядом развитая инфраструктура , в шаговой доступности 2 детских сада и школа , рядом парк, прямо через дорогу находится Свердловская областная клиническая больница 1 , так же недалеко КГБ 40! Трамвайное кольцо, автобусные остановки. Недалеко от дома есть пятерочка, магнит косметик , WВ и тд.. 2 остановки до ТРЦ Радуга Парк. До центра города 15 минут! Один собственник, квартира без обременений и долгов! Ипотека возможна, быстрый выход на сделку, ключи в день сделки. ID объекта в нашей базе: 12608
    размещено: 25.11.2025 , обновлено: 11.12.2025

    2-к квартира, Решетникова, 3

    • 42.5 м2
    • 6/9 этаж
    • Состояние: хорошее
    4 999 000 ₽ (117600 ₽/м2)
    Продается светлая двухкомнатная квартира с изолированными комнатами на 6 этаже девятиэтажного панельного дома. Общая площадь составляет 42 кв.м. Жилье находится в отличном состоянии с аккуратным косметическим ремонтом, никогда не сдавалось в аренду. Квартира полностью освобождена, не имеет обременений и долгов по коммунальным платежам, что позволяет осуществить сделку и въехать в кратчайшие сроки. Планировка практичная: изолированные комнаты, раздельный санузел, застекленный балкон, который выполняет функцию дополнительного полезного пространства для хранения или организации зоны отдыха. К преимуществам локации относится развитая инфраструктура: в пешей доступности (2-3 минуты) находятся детские сады, школы, магазины, аптека и парк культуры и отдыха имени Архипова. Благоустроенный двор оборудован современной детской площадкой, спортивными тренажерами и хоккейной коробкой. Для автомобилистов во дворе организована открытая парковка. Выгодное вложение средств, как для проживания, так и для инвестиций, хорошая локация при сдаче. Подъезд содержится в чистоте, функционирует пассажирский лифт. Возможен просмотр в любое удобное время. Быстрый выход на сделку, ключи в день сделки. ID объекта в нашей базе: 12605
    размещено: 25.11.2025 , обновлено: 13.12.2025

    2-к квартира, Чкалова, 135

    • 42.5 м2
    • 7/9 этаж
    • Состояние: хорошее
    4 999 000 ₽ (117600 ₽/м2)
    Продается двухкомнатная квартира в престижном и экологически благополучном районе Юго-Западный. Объект расположен на пересечении улиц Начдива Онуфриева, Амундсена и Академика Бардина, что обеспечивает отличную транспортную доступность до центра города и ключевых магистралей. Главным преимуществом является уникальное расположение с видами из окон: одна сторона дома выходит на благоустроенный парк Чкалова, а противоположная — на обширную лесопарковую зону, гарантируя приватность и круглогодичный контакт с природой. Инфраструктура района полностью сформирована: в шаговой доступности находятся рынок Громова, детские сады, школы, колледж, три медицинских центра и множество магазинов. Квартира имеет изолированную планировку, что оптимально для совместного проживания или возможности обустройства кабинета. Объект находится в состоянии с косметическим ремонтом, что позволяет новому владельцу без значительных затрат и демонтажных работ провести отделку в соответствии с индивидуальными предпочтениями. Подъезд содержится в чистоте, а дом характеризуется спокойной и благополучной атмосферой. Ключевым аргументом является привлекательная цена, сопоставимая со стоимостью однокомнатных квартир. Недвижимость не имеет долговых обязательств и обременений, единственный собственник. Продажа связана с планами по расширению жилплощади. Возможен оперативный показ в удобное время. Ключи в день сделки. ID объекта в нашей базе: 12562
    размещено: 25.11.2025 , обновлено: 9.12.2025

    2-к квартира, Академика Бардина, 45

    • 36.4 м2
    • 9/9 этаж
    • Состояние: хорошее
    5 700 000 ₽ (156600 ₽/м2)
    ✨ Продаётся 2-комнатная квартира в зелёном спальном районе Екатеринбурга с развитой инфраструктурой и близостью к центру! - Уютная и тёплая, с косметическим ремонтом и натяжными потолками; - Полностью заменена электрика; - Новые радиаторы на кухне и в комнате; - Совмещённый санузел с новым кафелем и сантехникой, заменёнными канализационными трубами и водосчётчиками; - Есть кладовая, остаётся шкаф в коридоре. - Окна во двор на хоккейный корт. - Подъезд выходит прямо в парк Архипова. ???? Рядом: — СОШ №140, — Лицей №159, — Колледж искусства и культуры, — Детские сады. - ТЦ «Параход», «Кит», «Гранат» в шаговой доступности, - Отличная транспортная доступность ???? Звоните — квартира готова к просмотру! ID объекта в нашей базе: 11975
    размещено: 24.11.2025

    2-к квартира, Волгоградская, 182

    • 47.2 м2
    • 12/12 этаж
    • Состояние: хорошее
    5 800 000 ₽ (122900 ₽/м2)
    В продаже 2‑комнатная 47,2кв.м в Юго-Западном районе. Напротив дома находится Свердловская областная клиническая больница №1.Рядом - Городская клиническая больница №40.Дом одноподъездный. Проживает небольшое количество жителей.В доме 2 лифта - экономия времени на ожидание.Секция на этаже на несколько квартир закрыта дополнительной дверью.Удобно хранить личные вещи, велосипеды, коляски, снегокаты и т.д.О квартире:- Квартира находится на 12 этаже — тишина и приватность, без соседей сверху. - Шикарный вид. Напротив дома ничего не построят в будущем.- Функциональная планировка: кухня — центральное пространство между гостиной и спальней. Удобно для семьи с разным режимом сна и с детьми.- Комнаты площадью 17,6 и 12,5кв.м подойдут для тех, кто любит простор, а так же для большой семьи.- Просторная лоджия 9кв.м — место под кабинет, лаунж (диван, столик, кресло - отдых) или хранение сезонных вещей.- В ноябре 2025 года на лоджии установили пластиковые стеклопакеты (не алюминиевые конструкции), поэтому при желании, можно утеплить данное пространство.- В 2024 году полностью поменяны все окна.- В квартире остается мебель и техника - заезжай и живи.Инфраструктура: - Всё находится в шаговой доступности.- Выходные можно проводить в ТЦ Радуга-Парк, где находится множество магазинов, кинотеатр и парк развлечений.- Так же торговый центр имеет свой парк, где можно прогуляться и есть аттракционы, а зимой заливают каток. Почему данная квартира является выгодным вариантом для сдачи в аренду:- Высокий спрос на аренду: напротив Областная больница №1 и в непосредственной близости Городская больница №40 — аудитория врачей, интернов, командировочных и родственников пациентов; стабильно заполняется как на долгий срок, так и посуточно.Условия сделки:- Два взрослых собственника- Никто не прописан- Квартира без долгов и обременений- Ипотека возможна- Перепланировок не было- Квартира освобождена- Ключи после полного расчёта с продавцамиУспевайте приобрести выгодный вариант! Звоните! ID объекта в нашей базе: 12563
    размещено: 23.11.2025 , обновлено: 5.12.2025

    2-к квартира, Посадская, 43

    5 800 000 ₽ (134600 ₽/м2)
    Объект № 195754. В продаже 2-комнатная квартира на втором этаже в самом зеленом районе города - Юго-Западном. В квартире сделан капитальный качественный ремонт и небольшая перепланировка, которая позволила сделать гардеробную и удобную нишу для холодильника. Поменяна проводка, стояки, трубы, батареи. В ванной комнате выложена плитка, инсталляция, водонагреватель (позволяет пользоваться только качественной горячей водой). Так же во всей квартире натяжной потолок, в том числе и в санузле. В спальне и зале точечное освещение которое позволяет включать позонно. Основное светодиодное освещение можно управлять с пульта или телефон если есть ик-порт. В спальне установлен новый кондиционер, трасса от него заштраблена в стену для истеричности. Он с легкостью охлаждает всю квартиру в течении 20 минут в самую жаркую погоду, а когда нет отопления с легкостью согреет вас весной или осенью. Можно управлять с пульта или телефон если есть ик-порт.(можно демонтировать при необходимости) В зале проведена проводка под домашний кинотеатр в стенах. В коридоре установлен щиток с автоматами, которые позволяют отключать отдельно освещение в каждой комнате, розетки, кондиционер, титан в санузле, вытяжку с духовым шкафом на кухне. Новая входная дверь. На каждом радиаторе установлена термоголовка которая позволяет выставить комфортную температуру зимой в квартире или вообще отключить радиатор. Новые пластиковые окна во всей квартире. В спальне собран под заказ шкаф, в котором помещается очень много вещей. Двери с доводчиками. Во всей квартире новый ламинат. Кухонный гарнитур сделан под заказ, столешница премиум класса, фурнитура BLUM. В зале установлена закладная в стене чтобы повесить телевизор и подведены все необходимые точки (интернет, розетки, ТВ точка). В спальне так же выведены все необходимые выходы на стене для телевизора. Район с очень развитой инфраструктурой: школы на любой вкус, детские сады, магазины, торговый центр, много транспортных маршрутов, до центра 20 минут пешком. Квартира не имеет обременений, один взрослый собственник. Просмотры по договоренности. ***Гарантийный сертификат «Защита собственности» по данному объекту в подарок***
    размещено: 21.11.2025 , обновлено: 4.12.2025

    2-к квартира, Серафимы Дерябиной, 51

    • 42.9 м2
    • 9/9 этаж
    • Состояние: хорошее
    4 600 000 ₽ (107200 ₽/м2)
    В пpодaже 2-x кoмнaтная квартирa на Югo-западе. Kвapтирa pacпoлoжeна на 9 этажe в 9 -ти этaжнoм доме. Квартиpa нe угловaяTpебуeт рeмонтa. Плaстикoвые oкнa. Пoлулоджия зaстекленa плaстикoвыми cтеклопaкетaми.В кваpтиpе всегдa теплo. Стoяки заменены во всем доме. Стоят счетчики на воду и газ.Чистый подъезд.Дом расположен в шаговой доступности поликлиника №6, школы, детские садики, магазины, остановки общественного транспорта.Квартира юридически чистая без обременений.Покажу в удобное для вас время. ID объекта в нашей базе: 9237
    размещено: 21.11.2025 , обновлено: 5.12.2025

    2-к квартира, Серафимы Дерябиной, 51

    • 43 м2
    • 4/9 этаж
    • Состояние: удовлетворительное
    4 500 000 ₽ (104700 ₽/м2)
    ПРИНЯТ АВАНС!!! В продаже 2-х комнатная квартира на Юго-западе. Квартира расположена на 4 этаже в 9-ти этажном доме. Квартира не угловаяТребует ремонта. Пластиковые окна в маленькой комнате и кухне. Полу лоджия застеклена пластиковыми стекло пакетами.В квартире всегда тепло. Стояки заменены во всем доме. Стоят счетчики на воду и газ.Чистый подъезд.Дом расположен в шаговой доступности поликлиника №6, школы, детские садики, магазины, остановки общественного транспорта.Квартира юридически чистая без обременений.Покажу в удобное для вас время.ТОРГА НЕТ!!! ID объекта в нашей базе: 12438
    размещено: 14.11.2025 , обновлено: 7.12.2025

    2-к квартира, Волгоградская, 41

    • 36.6 м2
    • 7/9 этаж
    • Состояние: хорошее
    4 400 000 ₽ (120200 ₽/м2)
    Приезжая в югозападный район города можно отметить простор: на улицах хватает места зеленым аллеям и паркам со скверами и аллеями (их здесь 6). От одного дома, до другого столько места, что детские сады и школы между ними тонут в массиве взрослых деревьев. Это можно заметить на фотографиях передающих вид из окна.Плотность застройки взята с такими нормами, когда архитекторы еще не стремились выжать все до последнего квадратного метра земли, а действовали человеко-ориентированно. Большинство ритейла располагается на первых этажах зданий, а не в хаотичных киосках, портящих вид города.Поскольку это район граничащий с центром города - все инфраструктурные блага в максимальном доступе. В пешей доступности сам центр города (30 минут) и метро (20 минут).Из особенностей квартиры можно отметить низкие подоконники. К этому приему прибегают для того, чтобы восприятие человека не отрывалось от земли, будучи на высоких этажах. Окна большие. Это характеризует квартиру как видовую. С красивыми закатами каждый день.Адрес прикреплен к школам 109, 140, 159, детскому саду 156. К поликлинике №4 на серафимы дерябиной 34д.Из ближайшего запланированного кап ремонта отмечена замена лифтов.Квартира освобождена. Обременений нет. Быстрый выход на сделку. Соседи тихие. Квартира находилась во владении одной семьи. На безопасные счета ФСБ деньги перечислять не планируем. Планируем покупать жилье взамен в Пионерском районе. Присутствие прямых родственников на сделке можем обеспечить.Если у вас еще не продана ваша недвижимость, позвоните и предложите ее нам, возможно у нас есть на нее покупатель. ID объекта в нашей базе: 26064
    размещено: 10.11.2025 , обновлено: 25.11.2025

    2-к квартира, Гурзуфская, 26

    • 41.8 м2
    • 3/9 этаж
    • Состояние: хорошее
    5 500 000 ₽ (131600 ₽/м2)
    Продаётся уютная 2‑комнатная квартира Представьте себе дом, где всё продумано для комфортной жизни: светлые комнаты, удобная планировка и отличная локация. Именно такая квартира ждёт своих новых хозяев! Коротко о главном: Этаж: 3‑й (оптимальная высота — нет шума с улицы и не высоко подниматься). Дом: надёжный кирпичный. Состояние: без ремонта, застеклённый балкон. Почему это место станет вашим любимым домом? О комфорте локации: До метро — несколько минут пешком. Рядом ТЦ «Гринвич» и удобные транспортные развязки — куда бы вы ни направлялись, дорога будет лёгкой. Всё под рукой: магазины, школы, детские сады и поликлиники — жизнь без лишних хлопот. О квартире: Две просторные изолированные комнаты, наполненные светом. Удобная кухня — место, где будет приятно собираться всей семьёй. Окна выходят во двор (тихо и уютно). Просторная лоджия — можно обустроить зону отдыха или использовать для хранения. Вместительная гардеробная — порядок в вещах без усилий. Застеклённый балкон — дополнительное пространство для ваших идей. Приятные бонусы: Часть мебели и техники остаётся по договорённости — заезжайте и живите с комфортом сразу после сделки. Никаких обременений — чистая юридическая история. Готовы оперативно выйти на сделку. Мы позаботимся о вашем удобстве: Поможем с одобрением ипотеки, даже если у вас нет гражданства РФ. Приходите на просмотр — влюбитесь в эту квартиру с первого взгляда! Звоните, чтобы договориться о встрече. Ваш будущий дом ждёт вас! Не задано ID объекта в нашей базе: 9151
    размещено: 07.11.2025 , обновлено: 13.12.2025

    2-к квартира, Амундсена, 71

    • 47.5 м2
    • 7/9 этаж
    • Состояние: идеальное
    5 850 000 ₽ (123200 ₽/м2)
    Продаю двухкомнатную квартиру на 7 этаже.В квартире сделан ремонт:- натяжные потолки- ламинат и линолеум- заменены стояки, электропроводка, стеклопакеты- расширена кухня (узаконено)- совмещенный сан узел в кафеле с джакузи- обшитая застекленная лоджия.Площадь квартиры 47 кв м, площадь комнат по 14 кв м каждая, кухня 9 кв м. Окна на юго-западную сторону.Дом 1983 года постройки, в подъезде чисто, заменен лифт, установлен видеодомофон.Двор благоустроен детскими площадками, есть корт. Территория двора закрыта для проезда транспорта, всегда есть парковочные места.Инфраструктура района:Все необходимое рядом:- много продуктовых магазинов, ТЦ КИТ, Гранат, Параход- аптеки, различные услуги, банки, рестораны- транспорт в различные части города: автобусы троллейбусы; 3 остановки до метро!- школы 65, 154, гимназия 161- садики 46, 31, 209, 26, 342.Возможна покупка в ипотеку по ставке 13,99%.Без обременений, два взрослых собственника, приглашаю покупателей!возможно вы искали:двухкомнатная квартираквартира с ремонтомквартира с джакузиквартира на 7 этажеквартира возле китаквартира возле параходаквартира возле гранатаквартира у тц китквартира у тц гранаткрасивая квартираквартира с лифтомквартира с лоджиейхорошая квартирадобротная квартираквартира без обремененийквартира по рыночной цененедорогая квартираквартира с большой кухнейквартира с кухней гостинойквартира с кухней-гостинойквартира с перепланировкойотремонтированная квартирачистая квартираухоженная квартираквартира в юго западном районеквартира в ленинском районеквартира в Екатеринбургес низкой ставкой по ипотекеамундсенакупить квартируквартиракупить недвижимостькупить квартиру в екатеринбурге вторичкуквартирыевродвушкаюго западный районюго-западный районквартира в ипотекуакадемика бардиначкаловакупить 2к квартирукупить евродвушкуюго-западныйс ремонтом и мебельюкраснолесьяюго западный район екатеринбургевротрешкаквартира с гардеробнойдвушкаквартира 2 комнаты ID объекта в нашей базе: 4878
    размещено: 06.11.2025 , обновлено: 4.12.2025

    2-к квартира, Шаумяна, 94

    • 41.7 м2
    • 5/5 этаж
    • Состояние: хорошее
    5 750 000 ₽ (137900 ₽/м2)
    Срочно! Торг! Продаётся уютная двухкомнатная квартира!Предлагается просторная светлая квартира в Юго-Западном районе города, расположенном в тихом зелёном уголке с развитой инфраструктурой и отличной транспортной доступностью. В квартире произведен косметический ремонт, в подарок новому покупателю оставим мебель!???? Преимущества квартиры:✅ Удобная дорожная развязка — легко добраться до любой точки города.✅ Рядом находятся детские сады и школы, что идеально подходит семьям с детьми.✅ Близость магазинов, аптек и остановок общественного транспорта обеспечит комфорт и удобство повседневной жизни.⭐ Просторная площадь позволит воплотить любые интерьерные решения и создать идеальный дом мечты для вашей семьи.Приглашаем ознакомиться с квартирой лично и убедиться в её преимуществах. Звоните прямо сейчас, чтобы задать интересующие вас вопросы и договориться о просмотре недвижимости.Станьте владельцем прекрасной квартиры в привлекательном районе нашего города! К оплате принимает все возможные сертификаты, включая мат.капитал и военную ипотеку.Звоните, договоримся. Покажем в удобное для вас время. ID объекта в нашей базе: 18074
    размещено: 29.10.2025 , обновлено: 25.11.2025

Новостройки Екатеринбург, мкр-н. Юго-Западный

Приоритет

Увеличивает просмотры в 3 раза

Ваше объявление показывается в списке выше обычных объявлений. подключить