На Метре реклама - только нормальная. Никакого шок-контента.
Помогайте независимому ресурсу, как он помогает вам. Удачи!
Средняя цена м² · Новостройки
176 954 ₽/м²
↑ 12% за 12 мес.
Средняя цена м² · Вторичка
139 363 ₽/м²
↑ 9,3% за 12 мес.
Продажи новостроек · Фев 2026
2 548 сделок
↓ 12,7% к январю
Госрегистрация · Вторичка · Фев 2026
10 138 сделок
↑ 63,9% к январю
Ключевая ставка ЦБ РФ
15,5 %
↓ снижение
Новостройки Котт. посёлки Объявления Динамика цен и сделок

Продажа квартиры: Екатеринбург, ул. Татищева, 18 (ВИЗ)

  • опубликовано 29.01.2026 , обновлено 10.03.2026
  • 19
  •  
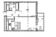
Рынок:вторичный
Количество комнат:2
Из них изолированных:2
Планировка:спецпроект
Общая площадь:54.42 м2
Жилая площадь:15.82 м2
Площадь кухни:24 м2
Этаж/Этажность дома:8 / 24
Материал стен:монолит
Санузел:совмещенный
Год постройки:2020
Балкон/лоджия:лоджия
Состояние:идеальное
Цена:
19 900 000
Условия продажи:«чистая» продажа

В продаже квартира - Евро2 в доме бизнес-класса ЖК Нагорный.

В квартире выполнен дизайнерский ремонт. Вся техника и мебель остается новому собственнику.

На территории комплекса круглосуточная охрана и видеонаблюдение, ресторан, кафе, фитнес-центр, магазины, аптеки и др.
В шаговой доступности остановки общественного транспорта, школы, детские сады, поликлиника и др. Метро 1905 года в 15 минутах пешком.

Ограничений/ обременений нет.
Один совершеннолетний собственник.

Налога не возникает.

РК "Кристалл-Инвест" — Ольга Александровна (риэлтор) 10

показать телефон

Ипотечный калькулятор

лет
%
Сумма кредита
19900000 ₽
Платеж
22 540 ₽

Актуальные предложения в Жилой квартал «Нагорный»

  • 3-к квартира, Татищева, 18

    • 111 м2
    • 2/24 этаж
    40 500 000 ₽ (364900 ₽/м2)
    Арт. 132248129 Предлагается к продаже 3-4 комнатная квартира в ЖК Нагорный. Качественная дизайнерская отделка. Редкая для продажи планировка. Большой холл 22,5 м2, кухня-гостиная 30 м2, 2 спальни, гардеробная 11 м2 (по планировке это еще одна полноценная комната, нынешним собственником оборудована в гардеробную), 3 санузла. Квартира полностью укомплектована мебелью и техникой. Обременений нет. Полная цена в договоре. ЖК Нагорный - один из лучших жилых комплексов Екатеринбурга. Непосредственная близость к центру города, удобная транспортная доступность, остановки транспорта. В комплексе современный фитнес центр с бассейном World Class, ресторан Breadway, ЖизньМарт, кклиника УГМК-Здоровье, иные кафе и магазины. Просмотр в удобное для вас время по предварительному согласованию.
    размещено: 03.03.2026 , обновлено: 15.03.2026

История предложений в этом доме

объявление снято с публикации в продаже комнат площадь этаж цена,
Екатеринбург, ул. Татищева, 20, Жилой квартал  "Нагорный" (ВИЗ) - фото квартиры 28 августа 2025 90 дн. 3 120.8 15/28 22 200 000
Екатеринбург, ул. Татищева, 18 (ВИЗ) - фото квартиры 4 марта 2025 90 дн. 3 111 2/24 36 000 000
Екатеринбург, ул. Татищева, 18 (ВИЗ) - фото квартиры 19 сентября 2025 90 дн. 1 50 17/27 18 500 000
Екатеринбург, ул. Мельникова, 1.2, Жилой квартал  "Нагорный" (ВИЗ) - фото квартиры 6 сентября 2024 90 дн. 3 110.6 17/25 24 000 000
Екатеринбург, ул. Татищева, 20, Жилой квартал  "Нагорный" (ВИЗ) - фото квартиры 29 ноября 2024 90 дн. 2 54.9 10/24 13 790 000
Екатеринбург, ул. Татищева, 18/1 стр, нагорный (ВИЗ) - фото квартиры 19 июля 2023 90 дн. 1 57.3 10/24 9 500 000
Екатеринбург, ул. Татищева, 18 (ВИЗ) - фото квартиры 4 апреля 2023 90 дн. 1 58 20/24 9 800 000
Екатеринбург, ул. Татищева, 18 (ВИЗ) - фото квартиры 1 декабря 2022 90 дн. 1 59 2/24 11 900 000
Екатеринбург, ул. Татищева, 18 (ВИЗ) - фото квартиры 27 декабря 2022 90 дн. 2 62 6/10 12 500 000
Екатеринбург, ул. Татищева, 20 - фото квартиры 20 июня 2023 90 дн. 1 58.7 18/21 9 600 000
Екатеринбург, ул. Татищева, 18 (ВИЗ) - фото квартиры 4 декабря 2022 90 дн. 2 81 16/19 14 350 000
Екатеринбург, ул. Татищева, 18 (ВИЗ) - фото квартиры 16 мая 2022 90 дн. 2 79 16/19 16 600 000
Екатеринбург, ул. Татищева, 18 (ВИЗ) - фото квартиры 27 мая 2022 90 дн. 1 55.4 7/24 10 300 000
Екатеринбург, ул. Татищева, 18, Жилой квартал  "Нагорный" (Татищева, 18) (ВИЗ) - фото квартиры 18 мая 2022 90 дн. 2 89.6 7/28 11 700 000
Екатеринбург, ул. Татищева, 20, Жилой квартал  "Нагорный" (Секция 2.1) (ВИЗ) - фото квартиры 8 апреля 2022 90 дн. 1 55.4 6/28 8 700 000
23 сентября 2021 90 дн. 2 55.3 3/14 6 650 000
21 июля 2021 90 дн. 2 55.3 3/14 6 650 000
26 июня 2021 90 дн. 2 55.3 3/14 6 250 000
Екатеринбург, ул. Татищева, 18 (ВИЗ) - фото квартиры 18 июня 2021 120 дн. 1 55 4/24 8 800 000
Екатеринбург, ул. Татищева, 18 (ВИЗ) - фото квартиры 19 февраля 2021 90 дн. 2 75 4/24 8 490 000
Екатеринбург, ул. Татищева, 18 (ВИЗ) - фото квартиры 30 января 2021 90 дн. 3 71.2 10/24 8 500 000
31 декабря 2020 90 дн. 1 59 12/28 6 970 000
22 декабря 2020 90 дн. 2 87.2 16/28 10 028 000
Екатеринбург, ул. Татищева, 18 (ВИЗ) - фото квартиры 19 декабря 2020 90 дн. 2 75 8/24 8 800 000
20 ноября 2020 90 дн. 1 59 8/28 6 780 000
12 января 2021 90 дн. 1 54.9 16/28 6 900 000
1 ноября 2020 90 дн. 1 59 26/28 7 316 000
30 сентября 2020 90 дн. 1 59.6 19/28 6 794 400
1 января 2021 90 дн. 1 54.9 22/28 7 191 900
5 декабря 2020 90 дн. 1 54.4 23/28 7 126 400

Похожие предложения о продаже квартир в Екатеринбурге (ВИЗ)

  • 2-к квартира, Татищева, 18

    • 78.8 м2
    • 12/24 этаж
    • Состояние: идеальное
    24 000 000 ₽ (304600 ₽/м2)
    2 спальни + просторная кухня-гостиная с выходом на большую теплую лоджию с панорамным остеклением! ЖК «Нагорный» - бизнес‑класс, центральная городская локация! Дизайнерский ремонт, мебель, техника - все остается, в квартире практически не жили. Квартира видовая, расположена в доме, стоящем в глубине комплекса, вдали от дорог. Большая теплая лоджия - утром можно пить кофе, вечером чай или не чай. Сидеть спокойно в тишине и смотреть на город, небо, звезды. А может захочется делать тут утреннюю практику или читать книгу вечером, в общем, сценарии бесконечны, в помощь теплый пол, панорамное остекление, красивые виды и отсутствие шума! Все окна с видом на город, вечером для вас будут красиво светиться огни, в праздничные дни можно любоваться салютами! ЖК «Нагорный» — ультрасовременное жилое пространство, состоящее из домов бизнес-класса. Входная группа спроектирована по аналогии с пятизвёздочным отелем, есть служба ресепшен, которая помогает решать бытовые вопросы резидентов. Из центрального лобби можно пройти в ресторан и подняться в фитнес-центр, в лобби можно попасть из любого дома ЖК через чистый теплый светлый паркинг. Двор большой, закрытый создан в концепции «всегда цветущий двор-сад», большим количеством зон и приятной музыкой в стиле lounge. Безопасность жителей - современная домофонная система, разделение доступов, закрытый двор, видеонаблюдение, подземный паркинг, УК работает 24/7. В шаговой доступности — набережная Верх-Исетского пруда, летом тут можно покататься на сапах, яхтах, утренняя или вечерняя пробежка по набережной доступна круглый год! За 15 минут можно дойти до площади 1905 года, 5–7 минут понадобится, чтобы по выделенной велодорожке доехать до нее на велосипеде. В ЖК есть вся необходимая для комфортной жизни инфраструктура, включая современный большой фитнес центр с бассейном. Инфраструктура района: - Фитнес с бассейном и ресторан - сюда вы можете попадать в домашних тапочках. - Магазины, рестораны, медицина, салоны и др. все в шаге от вас! - Школы, садики, развивающие и спортивные центры. - Музеи, театры, спортивная арена Все преимущества Центрального района! Транспортная доступность: Для автомобилистов удобные выезды по разным направлениям. Для тех, кто пользуется общественным транспортом рядом есть трамвайные и автобусные остановки в разных направлениях. Паркинги и кладовки в продаже и аренде есть. Без обременений. 2 совершеннолетних собственника. Звоните, отвечу на вопросы, договоримся на просмотр. ID объекта в нашей базе: 14437
    размещено: 15.03.2026
  • 2-к квартира, Мельникова, 27

    • 64.1 м2
    • 4/25 этаж
    • Состояние: идеальное
    16 400 000 ₽ (255900 ₽/м2)
    64 кв.м. комфорта!!! 2-к квартира на Мельникова, 27 (ВИЗ).Прямая продажа от собственника (помощь с юридическим сопровождением). Жду вашего звонка! Характеристики объекта: Площадь: 64 кв. м. (просторная прихожая, раздельные комнаты, кухня). Этаж: 4 из 25. Состояние: Хорошее, «жилое». Квартира полностью готова к проживанию, не требует косметических вложений "на входе".Локация: Тихий, сложившийся микрорайон. Рядом школы, детсады, супермаркеты и остановки общественного транспорта.Хорошая транспортная доступность и полная инфраструктура внутри района делают это предложение выгодным вложением. Инвестиционная привлекательность: Квартира расположена в районе с перспективой развития рекреационной зоны (планируется строительство парка). Это существенно повысит ликвидность объекта и комфорт проживания в перспективе 2-3 лет. ID объекта в нашей базе: 12319
    размещено: 02.03.2026 , обновлено: 10.03.2026
  • 2-к квартира, Гаринский, 3

    • 65.5 м2
    • 7/25 этаж
    • Состояние: идеальное
    23 600 000 ₽ (360300 ₽/м2)
    Полный эксклюзив! Новая меблированная 2-комнатная квартира евро-формата в элитном жилом комплексе Гаринский Residence с современным дизайнерским ремонтом с видом на центр города в доме с выходом в парк Дворца молодежи! В квартире комфортная планировка: просторная кухня-гостиная 41,8 м2, спальня с зоной кабинета 15,3 м2, в спальне большой шкаф-купе, два санузла (один с ванной, второй с душевой кабиной), гардероб. Ремонт закончен в ноябре 2024. Превосходный продуманный дизайн, удобство использования и настоящий комфорт: реализован дизайнерский проект, мебель, техника, свет и декор европейских производителей. - Установлены теплые полы в санузлах. - Отличная шумоизоляция (тишина даже в период самого большого трафика). - Квартира оснащена европейской системой климат-контроля и приборами учета всех потребляемых коммунальных услуг. Комплекс охлаждения по инновационной системе Chiller-Fancoil способен круглогодично работать и обеспечивать охлаждение воздуха в помещениях. - Высота потолков 2.8 м. - Установлен умный дом, управляющий шторами и светом, возможны доп.настройки. -Кухня и вся мебель изготовлена на заказ по индивидуальным проектам с техникой премиум класса. - Дорогой свет, предусматривающий различные световые сценарии. - Дизайнерская мебель и премиальная сантехника. В обоих санузлах предусмотрены места для хранения, скрытые розетки везде, в т.ч. в диванной зоне. - В доме имеется своя котельная, передача показаний осуществляется дистанционно. Покупатель получает ВСЕ ЭТО ВМЕСТЕ С КВАРТИРОЙ: дорогой новый ремонт класса люкс, встроенную мебель и технику, и свет- всё это абсолютно новое, в упаковке! Квартира полностью готова к проживанию и находится в идеальном состоянии! Комфортное проживание здесь представлено всеми атрибутами: рядом все магазины, фитнес- центры с бассейнами для профессионального плавания, двухуровневый теплый подземный паркинг и что особо радует парк Дворца Молодежи и центр города! Парк 22 Партсъезда, полностью отреставрированный в 2021 г. с современными беговыми и велосипедными дорожками, тенистыми аллеями, детскими игровыми комплексами, площадками для настольного тенниса, баскетбола, футбола, уличными тренажёрами и множеством скамеек для отдыха. В доме кофейня-пекарня Французский пекарь. В доме своя газовая котельная, гостевой санузел. Также действует служба консьержа, охрана, современные скоростные лифты, выполнена качественная отделка холлов и подъездов. Дом оборудован собственным двором с ландшафтным дизайном и детской площадкой. В шаговой доступности детские сады, школы, гимназии, торговые центры и рестораны. ПО ПРОПИСКЕ самые лучшие в Екатеринбурге: 1 школа, 59 и 2 гимназии! ЮРИДИЧЕСКАЯ ЧИСТОТА: чистая продажа, 1 взрослый собственник, купивший от застройщика. Мат. капитал и прочие сертификаты не использованы. Обременений и занижений нет, никто не прописан, ключи на сделке. Быстрый выход на сделку. Редкое предложение нового жилья с концептуальным дизайнерским ремонтом!
    размещено: 17.11.2024 , обновлено: 15.03.2026
  • 2-к квартира, Татищева, 47а

    • 76.3 м2
    • 13/30 этаж
    • Состояние: плохое
    17 000 000 ₽ (222800 ₽/м2)
    Вашему вниманию замечательная двухкомнатная квартира в ЖК «Крылов-2». Дом бизнес-класса. Закрытая территория дома. Видеонаблюдение. Ресепшен с зоной ожидания для гостей. Подземный паркинг. Свое ТСЖ. Очень удачная планировка: просторная кухня -гостиная с лоджией; две изолированные комнаты, в одной из которых есть достаточно большая гардеробная; два сан. узла. Отличная шумоизоляция и теплоизоляция квартиры. ШИКАРНЫЙ ВИД из окна! Центр города! В шаговой доступности есть абсолютно все для комфортной жизни. Юридически «чистая» квартира. Приглашаем на просмотр (возможен в любое время, но по предварительной договоренности), записаться можно по телефону. ID объекта в нашей базе: 12842
    размещено: 08.12.2025 , обновлено: 7.03.2026
  • 2-к квартира, Татищева, 20

    • 79.8 м2
    • 18/28 этаж
    • Состояние: хорошее
    23 400 000 ₽ (293200 ₽/м2)
    Объект № 195532. Продается отличная видовая квартира в ЖК бизнес класса «Нагорный». Окна квартиры выходят на акваторию Верх-Исетского пруда с его шикарными восходами и закатами. Вокруг развитая инфраструктура с продуктовыми супермаркетами, аптеками, медицинским и фитнес центром с бассейном, салоном красоты а так же с рестораном с возможностью доставки горячих блюд прямо в квартиру. В пешей доступности расположены три школы и несколько детских садов, Екатеринбург-Арена и множество других учреждений, 10-15 мин до ТЦ Пассаж и ТРЦ Гринвич. С квартирой можем продать паркинг! Звони прямо сейчас! ***Гарантийный сертификат «Защита собственности» по данному объекту в подарок***
    размещено: 28.11.2025 , обновлено: 26.01.2026

    2-к квартира, Нагорная, 12

    • 64 м2
    • 4/31 этаж
    • Состояние: идеальное
    15 600 000 ₽ (243800 ₽/м2)
    Продам просторную полноценную 2-комнатную квартиру в ЖК Бизнес класса "Высота" (дом сдан в 2022 году. застройщик Форум Групп)Планировка квартиры современная и удобная для жизни: просторная кухня-гостиная, две полноценные спальни, два полноценных сан узла.Территория дома огорожена, видеонадлюдение, консьерж сервис, охрана.В квартире выполнен ремонт: ламинат, обои под покраску, установлен кухонный гарнитур с техникой и остров. Отличная шумоизоляция квартиры, по периметру квартиры - всего 1 стена с соседней квартирой. Великолепный двор (без машин и без разгрузок), современные места общество пользования, качественная постройка.Рядом с домом развитая инфраструктура: остановки трамваем на ул. Татищева и ул. Верх-Исетский бульвар, парк 22 Партсъезда, школа 1, Дворец молодежи, Екатеринбург Арена, магазины, кафе.Подробности по телефону, приглашаю на просмотр квартиры. ID объекта в нашей базе: 2185
    размещено: 18.09.2025 , обновлено: 15.03.2026

    2-к квартира, Мельникова, 3

    • 51 м2
    • 12/24 этаж
    14 500 000 ₽ (284300 ₽/м2)
    Объект № 194091. Продаётся уютная квартира в жилом комплексе «Нагорный». Дом бизнес класса, качественный подход к резидентам! Развитая инфраструктура: рядом магазины, школы, детские сады, остановки общественного транспорта. Удобное расположение с хорошей транспортной доступностью в любой район города. Дворы благоустроены, есть игровые и спортивные площадки. Огороженная территория с контролем доступа, видеонаблюдение. Парковочные места для жителей. Дополнительные преимущества квартиры: светлая и тёплая. Большие окна с красивым видом. Лоджия. Новые коммуникации и сантехника. Все детали можем обсудить по телефону. ***Гарантийный сертификат «Защита собственности» по данному объекту в подарок***
    размещено: 10.09.2025 , обновлено: 13.03.2026

    2-к квартира, Юмашева, 18

    • 67.5 м2
    • 17/17 этаж
    • Состояние: идеальное
    14 000 000 ₽ (207400 ₽/м2)
    Эксклюзивное предложение: квартира в центре Екатеринбурга с собственной терассой 50 кв.м. Кухня-гостинная 28 к.м. и две спальни (почти по 10кв.м. каждая). На площадке одна квартира, соседей нет. Квартира новая тоько после чистовой отделки. Всё сделано дорогими качественными материалами. Дом расположен почти на берегу реки Исеть. С терассы шикарный вид с 17го этажа на реку и город. Тихая улица, нет шумных дорог. Закрытая территория двора, охрана. У дома есть подземный паркинг. Возможна ипотека. ID объекта в нашей базе: 25775
    размещено: 18.06.2025 , обновлено: 25.02.2026

    2-к квартира, Малышева, 4/б

    • 79.3 м2
    • 12/17 этаж
    • Состояние: хорошее
    16 100 000 ₽ (203000 ₽/м2)
    Объект № 192011. При быстром выходе на сделку покупателям хороший торг. Двухкомнатная квартира в кирпичном доме в самом центре города. Комнаты правильной формы, большая кухня-столовая, просторный холл, два санузла, две лоджии. Квартира имеет отличные видовые характеристики. Квартира теплая, светлая, с низкими коммунальными платежами. В доме есть подземный паркинг, двор закрыт, видеонаблюдение по всему периметру. В доме очень редко продаются квартиры, хорошие соседи приятным бонусом новым собственникам. В шаговой доступности: гимназия № 2, ТЦ Алатырь, Дворец Молодежи и современный парк, Центральный стадион. Удобные выезды во все направления нашего города. Один собственник, документы готовы к продаже, быстрый выход на сделку. Все подробности можно узнать на просмотре. ***Гарантийный сертификат «Защита собственности» по данному объекту в подарок***
    размещено: 26.05.2025 , обновлено: 4.03.2026

    2-к квартира, Верх-Исетский, 18/а

    • 53.7 м2
    • 4/13 этаж
    14 950 000 ₽ (278400 ₽/м2)
    Объект № 191196. Уникальная локация дома с двумя выходами: в современный парк (реставрация в 2021 году), в тихий двор с детской площадкой. В квартире индивидуальное планировочное решение, продуманный, современный дизайн и мебель. Отличный вариант для семьи с детьми. В квартире остается вся встроенная мебель и бытовая техника. Просторная спальня с рабочим местом, детская комната, кухня-гостиная, гардеробная комната. Высота потолков 3 метра. Сделан качественный ремонт, встроенная мебель и мебель из натурального шпона, качественная сантехника, кондиционер, видеодомофон. На этаже всего 5 квартир. В доме своя газовая котельная, охрана, помещение для хранения велосипедов и колясок, гостевой санузел. Звоните, приглашаем на просмотр. ***Гарантийный сертификат «Защита собственности» по данному объекту в подарок***
    размещено: 09.04.2025 , обновлено: 28.02.2026

    2-к квартира, Юмашева, 15

    • 83 м2
    • 23/25 этаж
    • Состояние: хорошее
    15 220 000 ₽ (183400 ₽/м2)
    Объект № 189041. Предлагаем просторную, светлую 2 ком.квартиру в ЖК бизнес-класса Адмирал. Одна из лучших локаций города- в 5 минутах езды от площади 1905 года. Тихий центр. Также рядом находятся школа и детский сад. Для поддержания здоровья и активного образа жизни в шаговой доступности располагается парк и фитнес-центр, бассейн. Вся инфраструктура в шаговой доступности. Просторная кухня-гостиная с шикарным видом на город, 2 санузла, вместительная гардеробная, просторные комнаты. Квартира очень теплая. На всё установлены индивидуальные приборы учета. Идеально подойдёт тем, кто ценит комфорт и удобство. В квартире остается мебель, кухня. В доме всего один подъезд и 4 скоростных лифта. Круглосуточная охрана. Прекрасная шумоизоляция- соседей вы не услышите, что обеспечит спокойный и тихий отдых. Для семей с детьми особенно важно отметить, что во дворе дома расположены детская и спортивная площадки, где малыши смогут безопасно играть и заниматься спортом. Жители дома могут чувствовать себя в безопасности благодаря наличию консьержа, круглосуточной охране и закрытой территории. Приглашаем на просмотр. ***Гарантийный сертификат «Защита собственности» по данному объекту в подарок***
    размещено: 30.12.2024 , обновлено: 15.03.2026

Новостройки Екатеринбург, мкр-н. ВИЗ

Приоритет

Увеличивает просмотры в 3 раза

Ваше объявление показывается в списке выше обычных объявлений. подключить