На Метре реклама - только нормальная. Никакого шок-контента.
Помогайте независимому ресурсу, как он помогает вам. Удачи!
Новостройки Котт. посёлки Объявления Динамика цен и сделок

Продажа гаража, паркинга: Екатеринбург, ул. Новгородцевой, 2 (ЖБИ)

  • опубликовано 4.03.2021 , обновлено 18.12.2025
  • 24
Тип объекта: Гараж
Тип здания:
Кадастровый номер:66:41:0705006:14364
Улица:Новгородцевой
Длина/ширина/высота:- / - / -
Электричество:
Смотровая яма:Нет
Овощная яма:Нет
Охрана:Нет
Отопление:Нет
Цена:
370 000
Объявление снято с публикации
Коммунальные платежи:оплачиваются отдельно

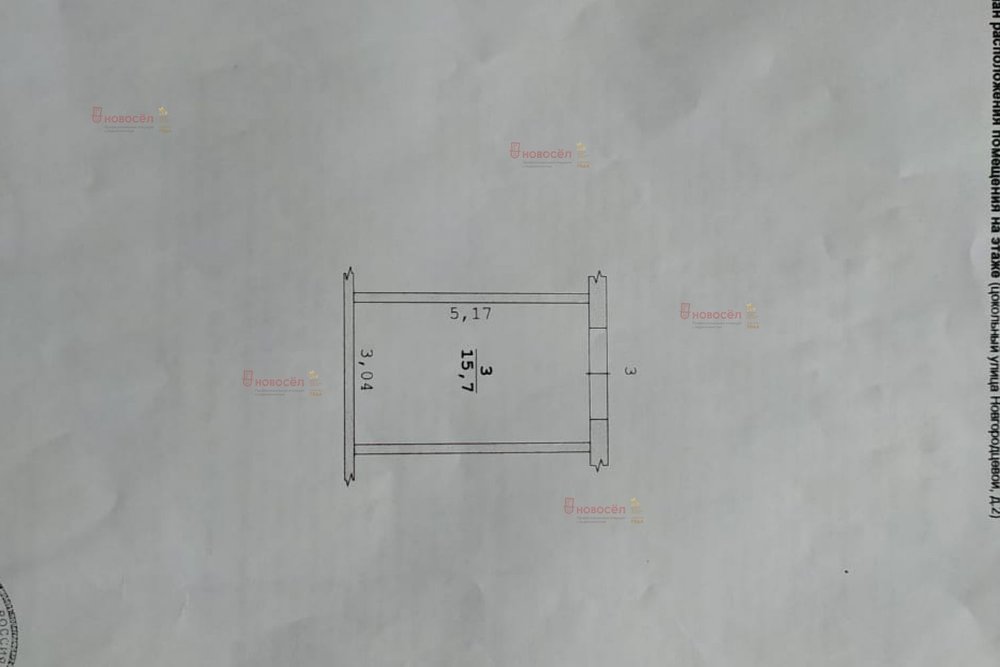
Объект № 137813. Вашему вниманию гаражный бокс, расположенный на первом этаже гаражного комплекса ПГСК-467. Гаражный бокс капитальной постройки.
Назначение жилое. Площадь 15.7 кв.м. В наличии есть смотровая яма и овощехранилище. В гаражном комплексе всегда тепло, сухо и чисто.
Правление комплекса тщательно следит за состоянием и порядком. Круглосуточное видеонаблюдение, охрана. В гараже есть электрический тэн, для дополнительного обогрева.
Гараж оформлен в собственность, 1 взрослый собственник. Документы готовы. Возможность приобретения в ипотеку.

Объявление снято с публикации

Актуальные предложения поблизости

  • Гараж - Новгородцевой, 2

    Екатеринбург, ЖБИ
    • -/-/- м
    • Наземный
    • Тепл.
    700 000 ₽
    Продается гаражный бокс в Кировском районе Екатеринбурга Новгородцевой 2. (ЖБИ). Гаражный комплекс ПГСК № 467 - построен в 1996 году - из железобетонных панелей и блоков, 2 этажа, 2 отдельный въездов на каждый этаж. Количество гаражных боксов в гаражном комплексе 66 штук. Площадь продаваемого бокса 15 квадратных метров, железные ворота с калиткой, под всем гаражом имеется подвальное помещение. Удобное место нахождения позволяет пользоваться гаражными боксами в полном объеме в любое время года. Гаражный комплекс оборудован электричеством, вентиляцией, пожарной сигнализацией. Гаражный бокс продается в чистой продаже.
    размещено: 10.11.2025 , обновлено: 17.12.2025

История предложений

объявление снято с публикации в продаже площадь цена,
Екатеринбург, ул. Новгородцевой, 2 (ЖБИ) - фото гаража 22 июня 2021 90 дн. 14 270 000

Похожие предложения о продаже гаражей в Екатеринбурге (ЖБИ)

  • Паркинг - Рассветная, 12

    Екатеринбург, ЖБИ
    • -/-/- м
    1 650 000 ₽
    Продам гаражный бокс на втором уровне в гаражном кооперативе РАССВЕТНАЯ 12.- Удобное расположение и удобный заезд;- Годовой кооперативный платеж 4500 руб. (Содержание, охрана, зимой вывоз снега). ID объекта в нашей базе: 3536
    размещено: 16.12.2025 , обновлено: 24.12.2025
  • Паркинг - 40-летия Комсомола, 2г

    Екатеринбург, ЖБИ
    • -/-/- м
    890 000 ₽
    Отличное решение для безопасной парковки вашего авто. Охраняемый паркинг с лифтом для владельцев. Звоните ID объекта в нашей базе: 822
    размещено: 12.12.2025 , обновлено: 16.12.2025
  • Гараж - Новгородцевой, 2

    Екатеринбург, ЖБИ
    • -/-/- м
    • Наземный
    • Тепл.
    700 000 ₽
    Продается гаражный бокс в Кировском районе Екатеринбурга Новгородцевой 2. (ЖБИ). Гаражный комплекс ПГСК № 467 - построен в 1996 году - из железобетонных панелей и блоков, 2 этажа, 2 отдельный въездов на каждый этаж. Количество гаражных боксов в гаражном комплексе 66 штук. Площадь продаваемого бокса 15 квадратных метров, железные ворота с калиткой, под всем гаражом имеется подвальное помещение. Удобное место нахождения позволяет пользоваться гаражными боксами в полном объеме в любое время года. Гаражный комплекс оборудован электричеством, вентиляцией, пожарной сигнализацией. Гаражный бокс продается в чистой продаже.
    размещено: 10.11.2025 , обновлено: 17.12.2025
  • Паркинг - Владимира Высоцкого, 1/4

    Екатеринбург, ЖБИ
    • -/-/- м
    1 090 000 ₽
    В ПРОДАЖЕ гаражный бокс 17 метров на 2 этаже. Гараж сухой, вдоль стены установлены стеллажи. Круглосуточная охрана, въезд по пропуску. По периметру гаражного бокса установлены камеры. В комплексе поддерживается чистота и свет. Содержание гаража 7.000 руб В ГОД. ID объекта в нашей базе: 10356
    размещено: 21.07.2025 , обновлено: 24.12.2025

Приоритет

Увеличивает просмотры в 3 раза

Ваше объявление показывается в списке выше обычных объявлений. подключить