Коттедж - ул. Зеленая Поляна, 20
Екатеринбург, Кольцово
Объект № 196988. Предлагается к продаже просторный дом для большой семьи.
Дом строился для себя, поэтому качество, планировка, двор - все продуманно до мелочей!
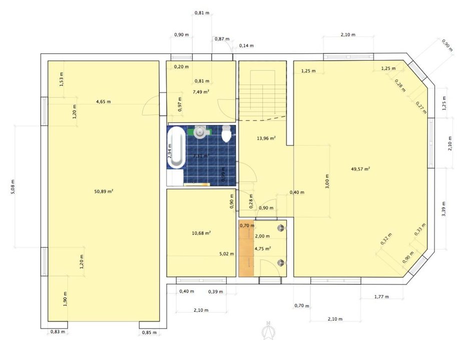
1 этаж: прихожая, кухня, холл, котельная со скважиной, комната (спальня), большая комната, с/у.
2 этаж: 3 комнаты, гардероб, с/у (под унитаз с раковиной), место отдыха.
Наружные стены выполнены из твинблока 400 мм, внутренние стены из твинблока 200 мм. Проведена вся проводка, есть электричество. Скважина глубиной 74 метра, располагается внутри дома, в котельной. Установлен глубинный нанос «Водолей».
Вкопаны железобетонные кольца отдельно под туалет (вкопано 3 железобетонных кольца каждый 200*90 см и загерметизированы гидроизоляционной смолой и снаружи и внутри) и отдельно под ванную с кухней (вкопано 3 железобетонных кольца каждый 120*90 см). На первом и 2 этаже установлены плиты перекрытия. Пол первого этажа подготовлен под установку теплого пола (постелен в два слоя пеноплекс, каждый слой по 50 мм). Чердак утеплен - целлюлозный Эковата экстра высотой 30 см. Окна пластиковые пятикамерные. В большой комнате балконный блок, выход на террасу, под которую уже залит фундамент.
Баня (зарегистрирована) размером 5*4 м, 2 комнаты (парилка и комната отдыха). Готова под эксплуатацию. В комнате отдыха установлен теплый пол (электрический). В комнатах установлен напольный кафель. Проведено под землей от дома электричество и трубы под ГВС, ХВС. Под слив для бани закопаны 3 железобетонных кольца (1м*90см)
Передний двор и дорожка к бане уложен тротуарной плиткой. На заднем дворе имеется беседка.
Теплица, огород и высокими грядками, плодоносящая яблоня, ягодные культуры.
Рядом развита вся инфраструктура школа, детские сады, ходит общественный транспорт. Возможен быстрый выезд на дублер Сибирского тракта. ***Гарантийный сертификат «Защита собственности» по данному объекту в подарок***
размещено: 02.02.2026
, обновлено: 5.03.2026







