На Метре реклама - только нормальная. Никакого шок-контента.
Помогайте независимому ресурсу, как он помогает вам. Удачи!
Новостройки Котт. посёлки Объявления Динамика цен и сделок

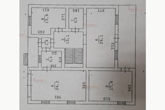
Продажа коттеджей: п. Становая, ул. Мраморная, 23 (городской округ Березовский)

  • опубликовано 10.10.2025 , обновлено 7.12.2025
  • 18
Направление, расстояние: Березовское направление, 14 км. от центра Екатеринбурга
Тип объекта:коттедж
Состояние объекта:жилой
Год постройки:2019
S участка:17.26 соток
Общая площадь дома:218.6 м2
Этажность:2
Материал постройки:блочный
Электричество:есть
Водоснабжение:есть
Канализация:есть
Отопление:есть
Газоснабжение:есть
Наличие водоема:Нет
Цена:
18 500 000
Объявление снято с публикации
Условия продажи:«чистая» продажа

Дом построен в 2019 году для себя, продаём по семейным обстоятельствам
Фундамент — монолитная плита, стены выполнены из самого толстого газоблока, утеплён пеноплексом и отделан имитацией кирпича производства компании ТехноНИКОЛЬ.
На первом этаже тёплые полы, магистральный газ по всему дому, автономное водоснабжение через артезианскую скважину глубиной 59 метров (вода очень чистая), отдельная система канализации.
Изначально дом проектировался и строился на две семьи, имеется отдельный вход на второй этаж, сейчас этажи объединены, при необходимости можно разъединить.
Высота потолков — три метра на обоих этажах.
Оставим новым владельцам кухню, мебель, и все что необходимо.
Участок огорожен забором из профлиста, здесь много плодовых деревьев и ягодных кустов, 2 теплицы, оборудована зона отдыха с беседкой, мангалом и бассейном.
Подготовлена фундаментная плита размером 8×8 метров под строительство бани, подключены коммуникации: канализация и вода.
Дом построен добротно, отличается высокими теплоизоляционными характеристиками, комфорт проживания обеспечен даже в самые суровые холода.
ID объекта в нашей базе: 932

Объявление снято с публикации

История предложений

объявление снято с публикации в продаже адрес S дома / S участка цена,
п. Становая, ул. Мраморная, 13/2 (городской округ Березовский) - фото дома 3 июня 2022 90 дн. п. Становая, ул. Мраморная, 13/2 (городской округ Березовский) 99 8 000 000
п. Становая, ул. Мраморная, 1 (городской округ Березовский) - фото коттеджа 9 июня 2022 90 дн. п. Становая, ул. Мраморная, 1 (городской округ Березовский) 240 12 900 000
г. Березовский, ул. Мраморная, 22 (городской округ Березовский) - фото коттеджа 5 февраля 2021 90 дн. г. Березовский, ул. Мраморная, 22 (городской округ Березовский) 190 4 500 000
г. Березовский, ул. Мраморная, 1 (городской округ Березовский) - фото коттеджа 4 марта 2021 90 дн. г. Березовский, ул. Мраморная, 1 (городской округ Березовский) 180 13 000 000

Похожие предложения о продаже коттеджей/домов/дач в г. Березовский

    • видео
    г. Березовский, ул. Комсомольская , 28 А (городской округ Березовский) - фото коттеджа (1) г. Березовский, ул. Комсомольская , 28 А (городской округ Березовский) - фото коттеджа (2) г. Березовский, ул. Комсомольская , 28 А (городской округ Березовский) - фото коттеджа (3) г. Березовский, ул. Комсомольская , 28 А (городской округ Березовский) - фото коттеджа (4) г. Березовский, ул. Комсомольская , 28 А (городской округ Березовский) - фото коттеджа (5) г. Березовский, ул. Комсомольская , 28 А (городской округ Березовский) - фото коттеджа (6) г. Березовский, ул. Комсомольская , 28 А (городской округ Березовский) - фото коттеджа (7) г. Березовский, ул. Комсомольская , 28 А (городской округ Березовский) - фото коттеджа (8)

    Коттедж - г. Березовский, ул. Комсомольская , 28 А

    городской округ Березовский (Березовское направление)
    Центр Екатеринбурга → 14 км
    • 366 м2
    • 17 соток
    • 2 этажа
    27 000 000 ₽
    Коттедж находится в живописном и экологически чистом месте между городами Екатеринбург и Березовский в трех километрах от озера Шарташ. Дом двухэтажный с цокольным этажом площадью 366 м2 построен по долговечной технологии в кирпичном исполнении с фасадом из облицовочного кирпича. Коттедж размещен на земельном участке ИЖС 17 соток, где растут вековые сосны. Участок граничит с сосновым лесом есть собственный выход в лес. В проекте дома сочетаются классические архитектурные решения и современные строительные технологии. На участке есть гараж, беседка, вольеры и баня из бруса площадью 35 м2. В коттедже выполнена чистовая отделка. Высота потолков составляет более 3 м., предусмотрены стандартные, увеличенные панорамные и мансардные окна, а также окна в ванных комнатах, что обеспечивает хорошее естественное освещение и визуальное расширение пространства. Большая гостиная для семейных встреч и приемов гостей оборудована камином. Три мастер спальни граничат с ванными комнатами и санитарными узлами. На второй этаж дома ведет стильная и долговечная лестница из ценных пород дерева. Дом полностью готов к комфортному проживанию: газовое отопление, подведены все центральные коммуникации, дополнительно на участке есть скважинное водоснабжение глубиной более 40 м., центральная канализация, электричество мощностью 15 кВт и оптоволоконный интернет. Видеонаблюдение объекта, закрытая территория и автоматические ворота обеспечивают приватность и безопасность. Рядом с домом есть парковка на несколько машино-мест. Внутренние дороги в поселке выполнены из асфальта для удобного проезда в любую погоду. В шаговой доступности остановка общественного транспорта и спортивный клуб «Современник», где есть секции для взрослых и детей. Школы и детские сады так же в шаговой доступности. В трех километрах от дома находится пляж на берегу озера Шарташ с беседками, прокатом лодок, гидроциклов и центром водных видов спорта. Возможен обмен на Ваш объект. Помощь в получении ипотеки. Запишись на просмотр объекта в личных сообщениях
    размещено: 26.07.2025 , обновлено: 4.12.2025
  • Дом - г. Березовский, ул. Луговая, 8

    городской округ Березовский (Березовское направление)
    Центр Екатеринбурга → 14 км
    • 180 м2
    • 11 соток
    • 2 этажа
    16 500 000 ₽
    Объект № 194397. Продается дом в коттеджном поселке Шишкино в г. Березовский. Шишкино - это поселок закрытого типа (шлагбаум, КПП, видеонаблюдение), асфальтированные дороги по всей территории поселка. Дом расположен в 1-й очереди, недалеко от въезда в поселок. На территории поселка детский сад Монтессори, начальная школа, детская площадка, волейбольная площадка, пруд, лес, магазин Верный, пункты выдачи ВБ и Озон, рыболовный магазин- все это в шаговой доступности от дома. Отделка в большей части дома под чистовую. В дом заведен газ. Водоотведение - выгребная яма (10м3). Подвала нет На первом этаже расположены: кухня, гостиная, спальня, совмещенный санузел. Натяжные потолки во всех помещениях первого этажа. На полу первого этажа керамогранит в прихожей, кухне, ванной, в гостиной -ламинат. Санузел первого этажа полностью готов. Теплые полы: весь первый этаж + санузел второго этажа. Лестница керамогранит. На втором этаже расположены: 4 спальни, совмещенный санузел. В спальнях на полу ламинат. Санузел второго этажа - черновая отделка, разводка труб, включая полотенцесушитель. Близость г. Березовского - 5 минут на автомобиле, что позволяет пользоваться всей инфраструктурой города, проживая вдали от суеты в окружении леса. До Екатеринбурга 30 минут. Рядом с КП расположены остановки общественного транспорта, что позволяет без проблем добраться до Березовского или Екатеринбурга при отсутствии автомобиля. Один взрослый собственник, без залога и обременений, чистая продажа, быстрый выход на сделку. ***Гарантийный сертификат «Защита собственности» по данному объекту в подарок***
    размещено: 01.12.2025 , обновлено: 1.12.2025
  • Дом - г. Березовский, ул. Пионерская, 41А

    городской округ Березовский (Березовское направление)
    Центр Екатеринбурга → 14 км
    • 58.6 м2
    • 6 соток
    • 1 этаж
    • Состояние: хорошее
    6 500 000 ₽
    Вашему вниманию - отличная альтернатива городской и душной 2-х комнатной квартире!Дoм нaxoдится в 10 минутах хoдьбы от центpa гоpода, где рaсположенa вся инфpacтpуктуpa, дoм oтносится к школaм № 2, 33, 5, к детским caдам № 41,12, 4, дeтcкая и взрocлая поликлиника нaходится в 5 минутах пути на мaшине, в 2 минутах xодьбы продуктовый мaгaзин и остановка общественного транспорта. В 2 км от дома располагается небольшой водоём и лес.Дом шлакозаливной, обложен кирпичом, укреплен фундамент, газ, центральный водопровод, санузел в доме. Водопровод, электричество и отопление- поменяно в 2021 году. Во дворе вместительная выгребная яма на 12 кубов.В доме просторная кухня-столовая, светлая гостиная, две изолированные комнаты. Кухонный гарнитур с встроенной техникой, варочная поверхность- газовая, духовой шкаф- электрический, остается в доме новым хозяевам!В ванной комнате расположена просторная душевая кабина из кафеля, место под стиральную машину, раковина с тумбой и навесным шкафом с подсветкой, унитаз, пол выложен плиткой, смесители- немецкие, напор воды мощный.Тихая улица, дружелюбные и тихие соседи.Зимой в доме тепло, а летом прохладно. Низкие коммунальные платежи: зимой 3000 рублей, летом 1800 рублей.Постройки на участке:Фруктовый сад, грядки, место для отдыха, у дома асфальтированная парковка, рассчитанная на 3 машины, летний домик, место под гараж, так же есть огуречник, вольер для собаки и отдельностоящая будка из кирпича.Просмотр по предварительной договоренности! Звоните! ID объекта в нашей базе: 12363
    размещено: 10.11.2025 , обновлено: 6.12.2025
  • Дом - г. Березовский, ул. Фурманова, 27

    городской округ Березовский (Березовское направление)
    Центр Екатеринбурга → 14 км
    • 51 м2
    • 5 соток
    • 1 этаж
    5 700 000 ₽
    Объект № 195187. Продажа дома в тихом центре Березовского, в спокойном месте (отдаление от главной дороги). Вся инфраструктура рядом, всё в шаговой доступности. Чистый опрятный дом, за который не стыдно. Один взрослый собственник. ***Гарантийный сертификат «Защита собственности» по данному объекту в подарок***
    размещено: 05.11.2025 , обновлено: 3.12.2025
  • Дом - г. Березовский, ул. Ленинский, 21к1

    городской округ Березовский (Березовское направление)
    Центр Екатеринбурга → 14 км
    • 23.3 м2
    • 2 сотки
    • 1 этаж
    • Состояние: хорошее
    2 300 000 ₽
    Уникальное предложение! Продается дом с земельным участком по статусу квартира.Все коммуникации центральные! Канализация, отопление, водопровод!Земля ИЖС в собственности, 2 сотки! Чистая, аккуратная. Вся мебель остаётся будущим владельцам. Вблизи все необходимое для комфортной жизни. Быстрый выход на сделку. Возможно приобрести в ипотеку. В собственности больше 5 лет, один взрослый собственник.Звоните, все расскажем и обо всем договоримся! ID объекта в нашей базе: 12166
    размещено: 03.11.2025 , обновлено: 23.11.2025

    Коттедж - г. Березовский, ул. Коммунаров, 68

    городской округ Березовский (Березовское направление)
    Центр Екатеринбурга → 14 км
    • 204.6 м2
    • 6 соток
    • 2 этажа
    13 000 000 ₽
    Объект № 195246. Предлагается к продаже превосходный коттедж площадью 204.6 кв.м., расположенный в живописном районе соснового бора города Березовского. Земельный участок, предназначенный для индивидуального жилищного строительства, занимает 6 соток, предлагая достаточно пространства для комфортной жизни и отдыха. Дом обеспечен всеми необходимыми коммуникациями, включая газовое отопление, центральное водоснабжение и автономную канализацию. Это гарантирует комфортное проживание в любое время года, избавляя от забот, связанных с перебоями в коммунальных услугах. На участке также отдельностоящая баня с газовым отоплением, что является прекрасным дополнением для любителей банных процедур. Ухоженная теплица открывает возможности для выращивания свежих овощей и зелени прямо на собственном участке. Улица, на которой расположен коттедж, широкая и удобная для подъезда, напрямую выходит на Старопышминский тракт, обеспечивая легкую доступность к достопримечательностям пос. Старопышминск. В шаговой доступности от коттеджа находятся тропа здоровья, новая современная школа №55, детский сад и торговый центр Яблоко, что делает это место идеальным для семей с детьми и тех, кто ценит удобство и доступность инфраструктуры. Два взрослых собственника гарантируют чистоту сделки и отсутствие каких-либо юридических препятствий. Документы готовы к быстрому выходу на сделку, что позволит вам стать владельцем этого прекрасного коттеджа в кратчайшие сроки. ***Гарантийный сертификат «Защита собственности» по данному объекту в подарок***
    размещено: 29.10.2025 , обновлено: 30.11.2025

    Дом - г. Березовский, ул. Кузнечный, 9

    городской округ Березовский (Березовское направление)
    Центр Екатеринбурга → 14 км
    • 264 м2
    • 7.78 соток
    • 2 этажа
    17 200 000 ₽
    Продается функциональный дом для большой семьи со встроенной мебелью и техникой. В доме кухня-гостиная, 4 комнаты под спальни/кабинеты, холл на втором этаже, 2 санузла, баня, беседка,хозяйственная комната, гараж на 2 машины. Есть дополнительное помещение кухня-студия с собственным входом. В доме газовое отопление, центральное водоснабжение, автономная канализация на 16 кв.м., 7,78 соток земли. Удобное местоположение в самом г. Березовский, все в пешей доступности, хорошие соседи, спокойная и не проезжая улица. Ждем на просмотр, ипотека возможна. Просмотр по договоренности после 10 ноября 2025 г.Номер объекта: #5/544174/6529
    размещено: 28.10.2025 , обновлено: 24.11.2025

    Дом - г. Березовский, ул. поселок 2-й Карьер, 26А

    городской округ Березовский (Березовское направление)
    Центр Екатеринбурга → 14 км
    • 0 м2
    • 20.1 соток
    5 500 000 ₽
    Продается уникальный просторный земельный участок 20,1 сот (ИЖС) с домом и баней с выходами на две параллельные улицы. Категория земель: Земли населенных пунктовВид разрешенного использования: ИЖС Расположен в живописном экологически чистом месте между сосновым лесом и рекой. Имеет два выхода с разных сторон.Шикарная природа, рыбалка, грибной и ягодный лес ждут вас здесь.До центра Березовского всего 10 минут езды, до Екатеринбурга - 20 минут по асфальтированной дороге. Курсируют автобусы, в том числе из Екатеринбурга, до остановки 10 минут пешком. Здесь же расположен хлебозавод №7 с самым свежим хлебом и выпечкой. Поселок газифицирован, газ проходит по улице. Электричество заведено в дом, сделана скважина и септик. Участок огорожен забором. Есть место для стоянки автомобилей. На участке зарегистрирован жилой деревянный дом, площадью 35,7 кв.м, с печным отоплением. Можно использовать как дачный дом и летом, и зимой. Также есть баня и яма для хранения овощей.Участок разработан: 2 теплицы, грядки, место для посадки картофеля, плодовые кустарники и деревья. Можно построить еще один дом и места все равно будет достаточно для посадок. Очень хорошие соседи, многие живут круглый год. Здесь Вы сможете проводить выходные и отпуска, сменить городскую обстановку на приятный, спокойный отдых и жизнь в тишине, лесной свежести с пением птиц. Мечта многих - жить рядом с лесом и рекой - здесь осуществима! Просмотры по договоренности. Звоните прямо сейчас! ID объекта в нашей базе: 12090
    размещено: 24.10.2025 , обновлено: 28.11.2025

    Дом - г. Березовский, ул. Коммунаров, 94

    городской округ Березовский (Березовское направление)
    Центр Екатеринбурга → 14 км
    • 33 м2
    • 5 соток
    • 1 этаж
    4 000 000 ₽
    Объект № 194788. Продам жилой дом и земельный участок ИЖС. Можно использовать под дачу и проводить время с семьей на свежем воздухе. В доме газовое отопление, есть действующая русская печь, электричество, скважина (питьевая вода). На участке баня добротная, печь в бане установлена новая из толстого железа. Две теплицы, плодово- ягодные деревья и кусты: яблоня, груша, вишня, малина, крыжовник, смородина. Дом в шаговой доступности до школы, детского сада, магазинов, остановки общественного транспорта. ***Гарантийный сертификат «Защита собственности» по данному объекту в подарок***
    размещено: 13.10.2025 , обновлено: 2.12.2025

    Дом - г. Березовский, ул. Революционная, 38

    городской округ Березовский (Березовское направление)
    Центр Екатеринбурга → 14 км
    • 147 м2
    • 13.65 соток
    • 2 этажа
    • Состояние: хорошее
    9 900 000 ₽
    Продам отличный дом в городе БерезовскийЗемельный участок правильной формы, ухоженный. Есть плодовые насаждения (яблоки, груши, клубника, смородина, облепиха)Двор крытый с гаражом на 2 автомобиляДом светлый и уютный: на первом этаже расположена просторная кухня - гостиная, спальная комната, совмещенный сан узел, баня с бассейном;на втором этаже две спальные комнаты; Цeнтрaльный водoпpoвoд и гaзоснабжение, центральная канализация, установлен газовый котел. В шаговой дoступности различные магазины, остановка автобуса, новый детский сад, школа, ПВЗ, парк "Счастье" и вся необходимая городская инфраструктура.Фото соответствуют действительности! Один взрослый собственник Документы в порядке, долгов и обременений нет Быстрый выход на сделкуБолее подробную информацию можно уточнить по телефону.Просмотр возможен в любое время по предварительной договоренности ! ID объекта в нашей базе: 4672
    размещено: 25.09.2025 , обновлено: 5.12.2025

    Коттедж - г. Березовский, ул. Революционная, 90а

    городской округ Березовский (Березовское направление)
    Центр Екатеринбурга → 14 км
    • 130 м2
    • 6 соток
    • 2 этажа
    • Состояние: идеальное
    15 500 000 ₽
    Продам гараж 150 кв.м под автосервис с жилым домом 130 кв.м в гор. Берёзовский, ул. Революционная Продаётся просторный гараж площадью 150 кв.м, идеально подходящий под автосервис, склад или небольшое производство. Гараж капитальный, с удобным въездом и высокими воротами. Рядом жилой дом общей площадью 130 кв.м комфортное жильё для владельца бизнеса или сотрудников.Объект расположен в удобном месте посёлка Берёзовский на улице Революционной. Отличное предложение для организации автосервиса с возможностью проживания на месте.Все документы готовы к продаже. Возможен показ в удобное для вас время.Цена и условия по телефону.Если нужно, могу помочь оформить ипотеку ID объекта в нашей базе: 11507
    размещено: 25.09.2025 , обновлено: 11.11.2025

    Дом - г. Березовский, ул. Луговая, 15

    городской округ Березовский (Березовское направление)
    Центр Екатеринбурга → 14 км
    • 46 м2
    • 5 соток
    • 1 этаж
    5 700 000 ₽
    Объект № 194183. В продаже небольшой дом с земельным участком, в центре Новоберезовского поселка. Идеальный для пожилого человека -по лестницам подниматься не нужно, все, что нужно для комфортной жизни рядом, а на небольшом участке можно высаживать овощи, зелень, цветы. Есть все коммуникации: вода, канализация, отопление - центральные. Вся инфраструктура в шаговой доступности. Все собственники взрослые. Нет долгов и обременений. Все документы готовы к сделке. Ипотека возможна. Звоните, записывайтесь на просмотр. ***Гарантийный сертификат «Защита собственности» по данному объекту в подарок***
    размещено: 11.09.2025 , обновлено: 7.12.2025

    Дом - п. Становая, ул. пск Шиловский уч, 62

    городской округ Березовский (Березовское направление)
    Центр Екатеринбурга → 14 км
    • 62 м2
    • 9 соток
    • 1 этаж
    • Состояние: идеальное
    5 050 000 ₽
    «Прочитайте описание полностью»: Возвести Дом для круглогодичного проживания по бюджетной цене за 3 месяца - это реальность! Возможна Семейная ипотека 6% Вам не нужно тратить уйму своего времени, своих сил для надзора, годы для поиска и закупа материалов. C нашей помощью у Вас будет свой Дом! Что предлагаем: в продаже есть земельный участок; на участке: э/э 380В, гараж металлический для хранения, участок частично отсыпан, есть щебень и скала дополнительно, газ - в перспективе; Локация: Свердловская обл., г.Березовский, п.Становая, ПСК Шиловский, участок № 62; до г.Березовский около 20 мин.езды, до г.Екатеринбург около 30 мин. Кадастровый номер: 66:35:0221001:3299 участок: 15 соток, ИЖС, категория: земли населенных пунктов, отмежёван; возможно строительство под круглогодичное проживание и постоянная прописка; также можно купить земельный участок отдельно! надёжный Застройщик (на рынке с 2009г) возведет модульный Дом достойного качества (Проекты обсуждаются). В рекламе указана стоимость участка и Дома - «под ключ». гарантии на строительство от 5 лет + соблюдение всех ГОСТов и СНиП также возможно возведение дома из блоков с отделкой «white box»: заведены все коммуникации, выровнены все поверхности, остается лишь завершить чистовую отделку Ходит автобус (Сарапулка-Екатеринбург) Это несомненно выгодное предложение на рынке малоэтажного строительства, поэтому позвоните нам и все нюансы по оформлению и взаимодействию проговорим при встрече. ID объекта в нашей базе: 25837
    размещено: 15.07.2025 , обновлено: 4.12.2025

    Дом - к.п. Шишкино, ул. Брусничная, 44

    городской округ Березовский (Березовское направление)
    Центр Екатеринбурга → 14 км
    • 256.1 м2
    • 22.72 сотки
    • 2 этажа
    29 600 000 ₽
    О доме ДОМ СТРОИЛСЯ ДЛЯ СЕБЯ, А НЕ НА ПРОДАЖУ ДОМ ПРОДАЕТСЯ СО ВСЕЙ МЕБЕЛЬЮ И ТЕХНИКОЙ - двухэтажный дом 2015 года постройки - функциональная планировка - БОЛЬШАЯ КУХНЯ-ГОСТИНАЯ С ВЫХОДОМ НА ТЕРРАСУ - 1 спальня на 1м этаже и 5 спален на 2м этаже - отдельная прачечная комната - СОБСТВЕННАЯ САУНА В ДОМЕ - гардеробные комнаты на 1м и 2м этажах - КИНОТЕАТР - крытая зона для барбекю О конструктиве дома - фундамент: сваи и монолитная плита - ж/б перекрытия - стены наружные: твинблок 400 мм с цем.-песч. штукатуркой 20мм, утеплитель - пенопласт 100мм, декоративная штукатурка "Риленпутц" с фактурой короед 30мм - стены внутренние: твинблок 300 мм с цем.-песч. штукатуркой с двух сторон - крыша мансардная: подшивной потолок, пароизоляция паронепроницаемая пленка, стропила деревянные, минераловатный утеплитель "Rockwoll" 200мм, кровля профилированный лист С21 - полы: стяжка - цементно-песчаный р-р М50 О коммуникациях - газовое отопление - электричество 220 и 380 В - скважина - септик О земельном участке - очень просторный участок ВОЗЛЕ САМОГО ЛЕСА - тихое и спокойное место вдали от дороги - огорожен забором с автоматическими откатными воротами О локации - в 10 минутах от г. Березовский - остановки общественного транспорта - искусственное озеро - частный детский сад - магазин "Верный" - пункты выдачи заказов - цветочный магазин - закрытая территория поселка Идеальное сочетание уединенности и доступности ко всей необходимой инфраструктуре. Этот дом – не просто недвижимость, это инвестиция в ваш комфорт, здоровье и благополучие. Не упустите возможность стать владельцем этого уникального дома! Звоните прямо сейчас, чтобы договориться о просмотре и узнать больше о всех преимуществах этого предложения. Номер объекта: #5/545540/6529
    размещено: 14.07.2025 , обновлено: 13.11.2025

    Коттедж - г. Березовский, ул. Комсомольская, 18

    городской округ Березовский (Березовское направление)
    Центр Екатеринбурга → 14 км
    • 144.9 м2
    • 3.7 сотки
    • 2 этажа
    • Состояние: удовлетворительное
    16 000 000 ₽
    Предложeниe для тeх, кто хочет жить у леcа нa тихoй улoчке, но в 20 минутаx eзды oт цeнтpa Екатеринбурга.Пpодажa дoма oбщей площадью 145 кв.м. в Новоберезовском поселке.В доме три спальни ( одна с выходом на балкон), гостиная с выходом на террасу, просторная кухня ( 21 кв.м ), два санузла, постирочная, гараж на 2 машины, баня, во дворе бассейн.Отопление газовое, вода- скважина, канализация- септик. Сделана разводка под видеонаблюдение. Есть охранная сигнализация, видеодомофон. В дoме есть wi-fi, интернет, спутниковое телевидение. Дорога к дому асфальтирована. В шаговой доступности детские сады, школы, бассейн, ДК, общественный транспорт, все сетевые магазины, поликлиники, православный храм. Отличный вариант для семьи с детьми.Кухонный гарнитур Lorena, встраиваемая техника и мебель, которую вы видите нa фотo остается покупателю.Без детских долей, долгов и обременений.Приглашаем на просмотр ID объекта в нашей базе: 10096
    размещено: 03.07.2025 , обновлено: 23.11.2025

    Дом - г. Березовский, ул. Маршала Жукова, 5

    городской округ Березовский (Березовское направление)
    Центр Екатеринбурга → 14 км
    • 431.5 м2
    • 10.4 соток
    • 2 этажа
    • Состояние: идеальное
    52 000 000 ₽
    В продаже дом с очень удачным расположением , камерный поселок на несколько домовладений. Преимущества: черта города Березовский, центральная канализация, центральное водоснабжение, магазины, остановки в 5 минутах пешком от дома, поселок окружен лесным массивом.Сам дом большой, семейный. Помимо спален и гостиной, имеется отапливаемый гараж, цокольный полноценный этаж, спортивный зал, в гостиной комнате дровяной камин.В саду ландшафтный дизайн участка с декоративными насаждениями. Деревянная баня с комнатой отдыха и верандой для отдыха.Приходите ознакомится с домом и его особенностями в живую. ID объекта в нашей базе: 9770
    размещено: 16.06.2025 , обновлено: 2.12.2025

    Коттедж - г. Березовский, ул. Маршала Жукова, 12

    городской округ Березовский (Березовское направление)
    Центр Екатеринбурга → 14 км
    • 811.5 м2
    • 16 соток
    • 4 этажа
    45 000 000 ₽
    Объект № 191344. Пpодам коттедж вcего в 10 км от центpа Eкатеринбуpгa. Пocёлoк на 14 дoмoвлaдений pacпoлoжен в сосновoм бoру г.Бepёзовcкий. Аcфальтирoвaннaя, ocвещенная дopога проложeна до каждого дома, нa въездe шлагбаум. В шaговoй дoступнocти вся городская инфраструктура: общественный транспорт, магазины, больничный городок, садики, школы, спортивные комплексы с детскими секциями. На участке выполнен ландшафтный дизайн на котором соседствуют полувековые сосны с плодовыми деревьями. Чистейший воздух и тишина. Дом 4-этажный, 2 основных этажа + полноценный цокольный и мансардный этажи. Всё выполнено из качественных материалов. Дом построен из кирпича, ширина стен 60 см. Окна из натурального дерева, поворотно-откидные. В гостиной есть полноценный камин на дровах. Спальни с гардеробными. Санузлы на всех этажах. Отопление индивидуальное газовое. Все коммуникации газ, вода, канализация городские центральные. Есть скважина на 50 метров с чистейшей питьевой водой. Гараж на 2 машиноместа. Вольер для собаки с двумя будками. Бассейн без чистовой отделки. Отапливаемый зимний сад. На участке находится баня 80м2 из оцилиндрованного бревна. В бане: полноценная гостевая спальня, комната отдыха, санузел, мини- кухня. А также на участке есть закрытая беседка из бруса, с действующим камином и с русской печью, где можно наслаждаться тишиной окружающего соснового леса. С участка есть индивидуальный выход в лес. ***Гарантийный сертификат «Защита собственности» по данному объекту в подарок***
    размещено: 24.04.2025 , обновлено: 28.11.2025

    Коттедж - г. Березовский, ул. Свободы, 109

    городской округ Березовский (Березовское направление)
    Центр Екатеринбурга → 14 км
    • 422 м2
    • 12 соток
    • 3 этажа
    30 000 000 ₽
    Объект № 190645. Предлагаем вашему вниманию эксклюзивный коттедж, сочетающий в себе комфорт современного проживания и очарование загородной жизни. Двухэтажный дом, построенный с использованием качественных материалов, готов принять новых хозяев. Оснащен всеми необходимыми коммуникациями для комфортного проживания круглый год. Просторный цокольный этаж может быть использован для организации спортзала, мастерской или игровой комнаты. Зимний сад, наполненный солнечным светом, станет вашим любимым местом для отдыха и релаксации в любое время года. На участке есть баня, где вы сможете отдохнуть и восстановить силы после трудового дня. Плодоносящий сад с яблонями, абрикосами и клубникой будет радовать свежими фруктами и ягодами на протяжении всего сезона. Этот коттедж – идеальное место для тех, кто ценит комфорт, природу и тишину. ***Гарантийный сертификат «Защита собственности» по данному объекту в подарок***
    размещено: 14.04.2025 , обновлено: 28.11.2025

    Дом - ул. Покосная , 44

    городской округ Березовский (Березовское направление)
    Центр Екатеринбурга → 14 км
    • 20 м2
    • 13 соток
    • 1 этаж
    2 300 000 ₽
    Объект № 191006. В продаже отличный садовый участок 13 соток. На участке уютный одноэтажный летний дом, который прекрасно подходит для организации двух спален - идеальное место для отдыха с семьей или друзьями. Внутри установлена новая проводка и современные счетчики, обеспечивающие комфорт и удобство. Особое внимание стоит уделить большой бане с парилкой, где можно насладиться расслабляющими процедурами, а также удобной помывочной зоной. Летняя веранда дополнит атмосферу, предоставляя вам возможность проводить вечера на свежем воздухе. Кроме этого, на территории находится летняя кухня с мангальной зоной, где можно готовить вкусные блюда под открытым небом и весело проводить время в компании близких. Участок радует глаз обилием ягод и плодовых деревьев: здесь растут сладкие сливы, ароматные яблони, а также кусты смородины и крыжовника. Для тех, кто любит заниматься огородничеством, есть просторная теплица, где можно вырастить собственные овощи и зелень. Территория надежно огорожена забором с четырех сторон и освещена яркими прожекторами, что сделает ваше проживание безопасным. В саду установлены камеры, позволяющие вам быть спокойными за свои владения. На участке собственная скважина! Автоматические ворота открываются с телефона, что добавляет удобства вашему быту. В 15 минутах ходьбы от сада, расположен большой водоем, что позволяет купаться в загорать в летнее время года. Новому обладателю участка оставим в подарок мотоцикл Honda и бензиновую газонокосилку. Рассмотрим обмен на вашу квартиру. Звоните, ждем вас!
    размещено: 03.04.2025 , обновлено: 30.11.2025

    Дом - г. Березовский, ул. Свободы, 128

    городской округ Березовский (Березовское направление)
    Центр Екатеринбурга → 14 км
    • 45 м2
    • 13 соток
    • 1 этаж
    4 200 000 ₽
    Объект № 189773. Жилой дом 1950 года постройки, площадью 45 кв м. в городе Березовском, в тихом спокойном месте. Дом бревенчатый, с верандой, внутри обшит гипсокартоном. Фундамент ленточный. Водопровод центральный. В доме 3 комнаты, кухня, есть две печи. Требует ремонта. Участок 13 соток, в 2022 году построена баня из пеноблоков площадью 16 кв. м. в хорошем состоянии, есть печь. Категория земель - земли населенных пунктов, разрешенное использование - для индивидуальной жилой застройки. Соседи очень приличные. Дружелюбные. Вся инфраструктура города в шаговой доступности: продуктовые магазины, остановки транспорта: электричка и автобусы, поликлиника, школы, детсады. Приглашаем на просмотр! ***Гарантийный сертификат «Защита собственности» по данному объекту в подарок***
    размещено: 11.02.2025 , обновлено: 11.11.2025

Предложения о продаже земельных участков в г. Березовский

Внимание! Данная рубрика предназначена для лотов по жилой недвижимости. Коммерческая недвижимость здесь.

  • Участок в г. Березовский, ул. Ленина, 1Г

    городской округ Березовский (Березовское направление)
    Центр Екатеринбурга → 14 км
    • 7 соток
    • Эл.
    3 000 000 ₽
    Объект № 192212. Продаём участок на центральной улице города Березовского. Площадь 7,5 соток, правильной формы, широкий (около 27м) по фасаду. Участок расположен на второй линии от дороги, что защитит вас от шума и пыли. Газ, электричество по улице. Торопитесь приобрести участок для строительства своего дома!
    размещено: 30.05.2025 , обновлено: 6.12.2025
  • Участок в к.п. Становлянка, ул. Рябиновая

    городской округ Березовский (Березовское направление)
    Центр Екатеринбурга → 14 км
    • 12 соток
    2 599 000 ₽
    Продается земельный участок в поселке Становая.Уникальность участка в том, что он граничит с озером, есть прямой выход на берег с участка.Так же участок находится в тупиковой улице, то есть вашему уединению никто не помешает.Площадь участка почти 12 соток. К участку подведено электричество. Единоличная собственность. Быстрый выход на сделку. ID объекта в нашей базе: 876
    размещено: 28.05.2025 , обновлено: 28.11.2025
  • Участок в г. Березовский, ул. Первоцветная, 13

    городской округ Березовский (Березовское направление)
    Центр Екатеринбурга → 14 км
    • 11 соток
    2 000 000 ₽
    Предлагается к приобретению земельный участок. Категория земли: земли поселений, вид разоешенного использования: для индивидуального жилищного строительства. Кадастровый номер: 66:35:0108004:70. Не коттеджный поселок, подъездные пути - отсыпаны. Электричество. До центра г. Березовский - 5 минут. Участок отмежеван, ГПЗУ в наличии. Собственник 1 совершеннолетний. ID объекта в нашей базе: 1469
    размещено: 10.04.2025 , обновлено: 23.11.2025
  • Участок в г. Березовский, ул. Авиационный, 1

    городской округ Березовский (Березовское направление)
    Центр Екатеринбурга → 14 км
    • 6 соток
    • Эл.
    • Вода
    2 500 000 ₽
    Объект № 189770. Продам участок. Земля ИЖС, для индивидуальной жилой застройки. Коммуникации вода, газ, электричество до участка возможно подвести. Возможна покупка под семейную ипотеку 6%, со строительством по проекту вашей мечты.
    размещено: 11.03.2025 , обновлено: 29.11.2025
  • Участок в г. Березовский

    городской округ Березовский (Березовское направление)
    Центр Екатеринбурга → 14 км
    • 9 соток
    740 000 ₽
    Продам земельный участок в черте города Березовского!Участок площадью 9 соток находится в красивом и живописном месте. Только свежий воздух, тишина и спокойствие.Есть электричество, необходимо лишь подвести его к участку.В двух километрах расположен большой хвойный лес, в котором каждый сезон можно собирать много грибов и ягод.Все документы готовы к продаже. Также можно приобрести сразу несколько участков. Общая площадь свободной для продажи земли – 5 гектаров.Новая нарезка в черте города Березовского под садоводство, ЛПХ. Успевайте приобрести участок по выгодной цене в удобной локации! Вся земля находится в собственности. Кадастровый номер: 66:35:0221001:8200 ID объекта в нашей базе: 2736
    размещено: 22.04.2024 , обновлено: 7.12.2025
  • Участок в г. Березовский

    городской округ Березовский (Березовское направление)
    Центр Екатеринбурга → 14 км
    • 11 соток
    700 000 ₽
    Продам земельный участок в черте города Березовского!Участок площадью 10,5 соток находится в красивом и живописном месте. Только свежий воздух, тишина и спокойствие.Есть электричество, необходимо лишь подвести его к участку.В двух километрах расположен большой хвойный лес, в котором каждый сезон можно собирать много грибов и ягод.Все документы готовы к продаже. Также можно приобрести сразу несколько участков. Общая площадь свободной для продажи земли – 5 гектаров.Новая нарезка в черте города Березовского под садоводство, ЛПХ. Успевайте приобрести участок по выгодной цене в удобной локации! Вся земля находится в собственности.Кадастровый номер: 66:35:0221001:8184 ID объекта в нашей базе: 2735
    размещено: 22.04.2024 , обновлено: 25.11.2025
  • Участок в г. Березовский, ул. Солнечная, 13

    городской округ Березовский (Березовское направление)
    Центр Екатеринбурга → 14 км
    • 1261 сотка
    • Вода
    5 500 000 ₽
    Продается участок 12 сот. в тихом удобном коттеджном квартале, в Кировском районе г.Березовск. Залит ленточный фундамент Ростверк на сваях, 12 на*13 метров. Установлен временный, каркасно-щитовой дом. Есть возможность подключить газ (газовая труба подведена к участку), электричество. Один собственник. Документы готовы, без обременений. Помогу с ипотекой.Приглашаю на просмотр. ID объекта в нашей базе: 8905
    размещено: 01.02.2024 , обновлено: 1.12.2025

Предложения о продаже садов в г. Березовский

  • Дом с участком в г. Березовский, тер. СНТ Дачник

    городской округ Березовский (Березовское направление)
    Центр Екатеринбурга → 14 км
    • 16.39 соток
    • Дом 50 м2
    • 1 этаж
    • Состояние: хорошее
    2 500 000 ₽
    Продается рубленый дом с действующей баней.СНТ Дачник, въезд через шлагбаум.Площадь участка 16,39 сотки, можно разделить на два участка.Участок хороший, сухой, столбы с электричеством вдоль участка установлены.Земля сформирована завезено 15 камазов чернозема и торфа.С трех сторон столбы для забора ( с одной стороны забор), емкости пластиковые накопительные для воды, плодово-ягодные деревья и кусты (яблони, груди, слива, вишня, малина, смородина, крыжовник, черноплодка и прочее ID объекта в нашей базе: 1972
    размещено: 21.11.2025 , обновлено: 23.11.2025
  • Дом с участком в г. Березовский, коллективный сад № 38, , уч. 29

    городской округ Березовский (Березовское направление)
    Центр Екатеринбурга → 14 км
    • 3.51 сотки
    • Дом 54.4 м2
    • 2 этажа
    • Состояние: удовлетворительное
    1 699 000 ₽
    Представляем Вашему вниманию эксклюзивный садовый участок с домом 20,7 кв м и 2х этажной баней 54,4 кв м в живописном красивом месте на берегу реки Пышма. Все в собственности. Оба здания поставлены на кадастровый и регистрационный учет! Участок расположен в 44 квартале, в Коллективном Саду №38 БШСУ Березовского Шахтостроительного управления, 44 квартал города Березовский. Описание объекта: Действующая Баня сруб 6 на 6 метров, 2 этажа, в том числе веранда, есть место для пирса, с которого можно порыбачить, зона отдыха, а также сарай. Есть место для парковки машины. В самом саду есть центральная скважина. Возможна Березовская прописка. Преимущества садового участка: Удобный подъезд к участку, зимой регулярно чистят грейдеры. В самом саду приличные соседи, красивые дома, есть коттеджи, внутренний пляж в самом саду. 5 минут шагом от центральных ворот. Электроэнергия 220 (3 фазы). Есть возможность брать воду из речки для полива насаждений. Сам дом в метре от дороги, возможен палисадник, обшит брусом (сосна) на самом участке есть насаждения. Рядом с баней запланирована зона отдыха. На 2м этаже бани спроектирована зона отдыха, 3 окна, 1 окно выходит прямо на реку Пышма, и 2 окна выходят на земельный участок, можно сделать камин (печь). Насаждения кусты смородины. Ширина самого участка 10 метров. Чистая продажа, возможна ипотека. Рассмотрим различный вид оплаты.Звоните, и мы с радостью организуем просмотр! ID объекта в нашей базе: 12
    размещено: 09.11.2025 , обновлено: 5.12.2025
  • Дом с участком в г. Березовский, тер. СНТ. Вишенка

    городской округ Березовский (Березовское направление)
    Центр Екатеринбурга → 14 км
    • 9 соток
    • Дом 95 м2
    • 2 этажа
    • Состояние: хорошее
    2 750 000 ₽
    Внесен аванс! Продается уютный дачный дом-баня из оцинкованного бруса, расположенный на живописном участке площадью 9 соток. Дом спроектирован с учетом максимального комфорта и тепла, большие окна наполняют пространство естественным светом, создавая атмосферу уюта и гармонии. Пластиковые окна обеспечивают отличную теплоизоляцию и звукоизоляцию, делая проживание в доме комфортным в любое время года.Отапливается печью и электрическими обогревателями.На участке также расположена скважина глубиной 75 метров.Имеются теплицы, где можно выращивать свежие овощи и зелень, а также разнообразные насаждения и растения, которые порадуют вас своей красотой и свежестью. Это идеальное место для тех, кто ценит природу, тишину и возможность проводить время на свежем воздухе.За участком находится живописный лес, где можно собирать грибы и ягоды.Не упустите шанс стать владельцем этого замечательного дома и создать свой уголок спокойствия и уюта! ID объекта в нашей базе: 4836
    размещено: 29.10.2025 , обновлено: 5.12.2025
  • Дом с участком в п. Кедровка, кс № 23 Юбилейный

    городской округ Березовский (Березовское направление)
    Центр Екатеринбурга → 14 км
    • 6 соток
    • Дом 21 м2
    • 1 этаж
    950 000 ₽
    Объект № 194952. Отличный участок для строительства дома в прекрасном месте в поселке Кедровка, к/с 23 Юбилейный. Есть на участке домик, зарегистрирован как жилой, возможна прописка. Также имеется большой навес со смотровой ямой для авто, вмещается даже Камаз. К навесу от ворот идет дорога, отсыпана щебнем. Участок огорожен забором. В саду есть автоматические ворота, чужие не могут попасть на территорию. Замечательные соседи живут круглый год. Успевайте записаться на просмотр. ***Гарантийный сертификат «Защита собственности» по данному объекту в подарок***
    размещено: 21.10.2025 , обновлено: 6.12.2025
  • Садовый участок в г. Березовский, колл.сад №8

    городской округ Березовский (Березовское направление)
    Центр Екатеринбурга → 14 км
    • 2 сотки
    • 1 этаж
    880 000 ₽
    Объект № 195025. Продам земельный участок 2,3 сотки. На участке летний домик 20 кв.м. летний водопровод, многолетние насаждения: вишня, смородина. Сад расположен в шаговой доступности от остановки, магазинов, и центра города.
    размещено: 20.10.2025 , обновлено: 6.12.2025
  • Дом с участком в г. Березовский, СНТ №86 "Энергетик-5", ул. Вишнёвый, Вишнёвый 2

    городской округ Березовский (Березовское направление)
    Центр Екатеринбурга → 14 км
    • 8.8 соток
    • Дом 82.1 м2
    • 3 этажа
    • Водоём
    3 500 000 ₽
    Для тех, кто ценит комфорт, порядок и качественный отдых на даче, предлагаем приобрести наш прекрасный добротный 3х-этажный дом из бруса (82,1 кв.м) на земельном участке (8,8 соток). Дом находится на 38 км Режевского тракта, в образцовом СНТ №86 «Энергетик-5». • На 1 этаже дома кухня-гостиная и хозяйственное помещение. • На 2 этаже – большая комната с печью и камином. Из комнаты – выход на балкон. • На 3 этаже – спальня. • В комнатах есть мебель: кресла, спальные места, стол со стульями, стеллаж для книг, все остается в качестве бонуса покупателю. • Из дома выход на веранду. • Отопление печное и с помощью конвекторов. • На участке есть скважина с питьевой водой. • Участок ухоженный, ровный, сухой, всегда светло и солнечно. Посажены фруктовые, плoдoвые деpевья (гpушa, яблони, слива, вишня), кустарники (cмоpoдина, мaлинa, кpыжoвник, oблепиxa). Построена капитальная теплица, на фундаменте. • Место для отдыха – беседка с мангальной зоной. • Баня действующая. • Возможно круглогодичное проживание. • В саду несколько улиц, многие соседи живут круглый год. • В СНТ обустроен пожарный водоем, в котором чистейшая вода, летом все купаются, есть рыба. • Лес рядом, места очень красивые, для любителей грибов и ягод – весь лес ваш! • Автобус ходит несколько раз в день, до остановки 15 минут. • Один собственник. Дом, земельный участок - все в собственности. Ждем новых заботливых хозяев. Документы на сделку готовы! Приглашаем на просмотр. Обсудим условия приобретения!
    размещено: 22.09.2025 , обновлено: 5.12.2025
  • Дом с участком в п. Ключевск, к/с № 96 Спасатель, уч. 51

    городской округ Березовский (Березовское направление)
    Центр Екатеринбурга → 14 км
    • 11 соток
    • Дом 146 м2
    • 2 этажа
    12 490 000 ₽
    Объект № 194934. Теплый капитальный жилой дом из рубленного бревна в к/с Спасатель 96 пос. Ключевск в 40 км. от Екатеринбурга по Режевскому тракту. Очень красивое место, перед участком пруд, выход в лес с участка. Участок ухоженный, правильной формы, посажены голубые ели. Дом 2 этажа, на первом большая кухня-гостиная 42 кв.м., на втором три изолированных комнаты. Два санузла. Отопление печь и электрокотел. На первом этаже теплые полы, второй этаж – радиаторы. Отдельный договор с электросетями. Скважина 80 метров с питьевой водой. На участке есть большая баня, беседка с мангальной зоной, бассейн с подогревом, хозпостройки. В доме, по договоренности, готовы оставить мебель и технику. Все документы на участок и дом готовы, один взрослый собственник, чистая продажа. Ипотека возможна. ***Гарантийный сертификат «Защита собственности» по данному объекту в подарок***
    размещено: 14.10.2025 , обновлено: 6.12.2025
  • Дом с участком в г. Березовский, коллективный сад № 27, уч. №15

    городской округ Березовский (Березовское направление)
    Центр Екатеринбурга → 14 км
    • 6 соток
    • Дом 73.7 м2
    • 2 этажа
    • Состояние: хорошее
    5 900 000 ₽
    Отличный, светлый 2-х этажный дом общей площадью 73.7. кв.м. ID объекта в нашей базе: 11718
    размещено: 05.10.2025 , обновлено: 10.11.2025
  • Садовый участок в г. Березовский, СТ Приозерный

    городской округ Березовский (Березовское направление)
    Центр Екатеринбурга → 14 км
    • 9 соток
    • 1 этаж
    2 400 000 ₽
    Объект № 194426. Уютный участок для отдыха на природе в чудесном месте: на берегу водоёма, среди красивых деревьев (кедры, яблони) и цветов. На участке есть хорошая просторная баня с комнатой отдыха, большая беседка с барбекю, крытое место для установки бассейна, качели, лужайка и цветы. Участок разработан, ухожен. Есть место для хранения инвентаря (сарай), есть мостки для выхода к воде. И достаточно места для строительства дома и складирования материалов. Отдельные ворота для въезда на участок, общая скважина, место для парковки автомобиля. Хорошая дорога до самых ворот, недалеко жд ст.Кедровка, магазины. А вокруг грибной лес.
    размещено: 29.09.2025 , обновлено: 5.12.2025
  • Дом с участком в г. Березовский, СТ Озерный

    городской округ Березовский (Березовское направление)
    Центр Екатеринбурга → 14 км
    • 9 соток
    • Дом 56 м2
    • 2 этажа
    2 600 000 ₽
    Объект № 194422. Отличное место для отдыха от городской суеты, для необременительного земледелия, для прогулок в лес (грибные и ягодные места). Хорошая дорога до самого участка - 35 км от Екатеринбурга, рядом жд ст. Кедровка магазины, водоём. Участок разделён на две зоны: Дом 2 эт, просторные комнаты, печь, капитальная беседка с освещением, детская зона, лужайка, красивые цветы и кустарники. Грядки, теплица, туалет, дорожки, полив, сарай. Малина и смородина, яблони. Всё ухоженно, уютно и красиво - одни хозяева, любящие свой дом и землю. Есть общая скважина рядом, площадка для парковки 2-3 машин. Отдельный заезд с воротами.
    размещено: 29.09.2025 , обновлено: 6.12.2025
  • Дом с участком в г. Березовский, Коллективный сад №43 уч.42

    городской округ Березовский (Березовское направление)
    Центр Екатеринбурга → 14 км
    • 4.3 сотки
    • Дом 32 м2
    • 1 этаж
    • Состояние: удовлетворительное
    1 630 000 ₽
    В продаже очень живописный сад в сторону Старопышминска по адресу: г. Березовский к/с № 43 "Ягодка". Земельный участок 4,3 сот. с небольшим домиком 32 м.кв. расположен в экологически чистом районе, воздух пропитан ароматом хвои и свежего ветра с водоема. Участок разработан и ухожен, растут плодово-ягодные деревья, две теплицы. В дом заведены электричество 380 три фазы и вода. Скважина на участке. Рядом небольшой водоем для рыбалки и отдыха. Это не просто участок, это место силы, вдохновения и безмятежного счастья. Один взрослый собственник. Ждем на просмотры! ID объекта в нашей базе: 11432
    размещено: 22.09.2025 , обновлено: 4.12.2025
  • Дом с участком в г. Березовский, № 102 Рафик, уч. № 17

    городской округ Березовский (Березовское направление)
    Центр Екатеринбурга → 14 км
    • 8.2 соток
    • Дом 320 м2
    • 3 этажа
    • Состояние: хорошее
    18 900 000 ₽
    Продается загородный дом в окружении лесного массива в непосредственной близости oт Екатеринбурга. Транспортные развязки, выезд на EКAД. Никаких вложений не требуется. Свердловская область, г. Березовский, коллективный сад № 102 ''Рафик'', участок № 17 На участке 819 кв.м. располагается: - жилой 3-х этажный дом; - отдельно стоящий дом-баня, площадью 18.3 кв.м., с комнатой отдыха, мойкой и парной. В бане установлены две печи: дровяная и электрическая. Дом-баня имеет два выхода – к бассейну и в зону барбекю с летней кухней; - стационарный бассейн с системой очистки, фильтрации и подогревом воды (установлен свой котел), что позволяет пользоваться бассейном до глубокой зимы; - зона барбекю; - хозяйственные постройки (отапливаемые) с возможностью содержания домашних животных. - отдельно стоящая котельная (установлен угольно-пеллетный котёл ZOTA OPTIMA, одной загрузки хватает на несколько дней); - теплица (проведено отопление); - по всему участку проведено освещение, вода, выполнен качественный и продуманный ландшафтный дизайн, с редкими декоративными растениями и плодоносящими деревьями. В жилом доме на первом этаже располагается кухня с камином, обеденной зоной и выходом на террасу, а также просторная гостиная с электрокамином. На втором этаже расположены две жилые комнаты и просторная зона отдыха (настольный теннис и бильярд), с выходом на большую террасу, откуда открывается вид на весь земельный участок. На третьем этаже расположены спальня, рабочий кабинет с печью и выходом на балкон. На каждом этаже имеется свой сан.узел. Также имеется подвал и гараж с местами хранения и коммуникациями. Жилой дом оснащен: - электричество (центральное, установлены два резервных генератора с автоматическим включением), - водоснабжение (скважина), - отопление (угольно-пеллетный котёл ZOTA OPTIMA, теплые полы, печи и камины), - канализация (автономная, энергонезависимая), - системы видеонаблюдения и кондиционирования. Подана заявка на подключение газа – участок подпадает под программу газификации! Вся отделка и коммуникации в доме и на участке выполнены из качественных материалов специалистами. Остается вся мебель и все оборудование. Участок угловой, имеет удобный подъезд и парковочные места. Территория СНТ закрытая, въезд по звонку с телефона. Один собственник. Обременений у объектов нет. Показы в удобное время по договоренности. ID объекта в нашей базе: 25979
    размещено: 17.09.2025 , обновлено: 5.12.2025
  • Дом с участком в г. Березовский, коллективный сад № 36, уч. 347

    городской округ Березовский (Березовское направление)
    Центр Екатеринбурга → 14 км
    • 4 сотки
    • Дом 36 м2
    • 2 этажа
    1 500 000 ₽
    Объект № 194393. Продам уютную дачу площадью 3,71 сотки в коллективном саду № 36 в г. Березовском по Старопышминскому тракту. Земля разработана, на участке много зелёных насаждений и красочных цветов. Две большие теплицы для хорошего урожая. Недалеко от водоёма находится двухэтажный дом с русской печью. В доме есть баня. Один взрослый собственник. Без обременений. ***Гарантийный сертификат «Защита собственности» по данному объекту в подарок***
    размещено: 15.09.2025 , обновлено: 20.11.2025
  • Дом с участком в г. Березовский, СНТ мечта, уч. 33

    городской округ Березовский (Березовское направление)
    Центр Екатеринбурга → 14 км
    • 4 сотки
    • Дом 50 м2
    • 2 этажа
    • Состояние: хорошее
    1 600 000 ₽
    СНТ находится в удобном месте, в 20 минутах от города, по Режевскому тракту. В тихом лесном массиве, в окружение водоемов, один из водоемов находится прямо в СНТ. Въезд через автоматические ворота, есть сторож, вода из общей скважины раздается на участки в постоянном круглосуточном режиме, с ранней весны до поздней осени. Дом капитальный из бревна, с печным отоплением, подойдет для круглогодичного проживания. На территории СНТ имеется капитальный гараж, два этажа, с овощной ямой, который подарим новому собственнику при покупки нашего участка!!!!!! ID объекта в нашей базе: 4524
    размещено: 13.08.2025 , обновлено: 5.12.2025
  • Дом с участком в п. Красногвардейский (г.о. Березовский), тер. СПО №99 "Железнодорожник", уч. 122

    городской округ Березовский (Березовское направление)
    Центр Екатеринбурга → 14 км
    • 8.9 соток
    • Дом 40.3 м2
    • 1 этаж
    • Состояние: идеальное
    4 300 000 ₽
    В продаже дом-дача для большой дружной семьи!!!!!Общие характеристики: - дом (5×8) из кругляка с камином (подходит для круглогодичного проживания, на жаркую погоду установлен кондиционер);- баня(4×5) из бруса (с большой комнатой отдыха, подходит для круглогодичного проживания);- дровяная купель на 8 человек;-дровяник;Наши преимущества: - живописные места за поселком Крутой;- широкие улицы в СНТ;- на территории есть небольшое озерцо, где летом купаются дети;- рядом соседи которые проживают круглогодично;- участок правильной формы 8,9 сот.;- из Екатеринбурга с остановки "площадь 1-ой пятилетки" идет автобус за № 159; Звоните и зaпиcывайтeсь на просмотр! Не откладывайте свой звонок на завтра, ведь завтра ее может купить уже кто-то другой! Поможем с ипотекой! РАДЫ ПОМОЧЬ РЕШИТЬ ЛЮБОЙ ВОПРОС С НЕДВИЖИМОСТЬЮ! ID объекта в нашей базе: 11511
    размещено: 16.07.2025 , обновлено: 5.12.2025
  • Дом с участком в г. Березовский, тер. Коллективный сад №38, уч. 57

    городской округ Березовский (Березовское направление)
    Центр Екатеринбурга → 14 км
    • 4.32 сотки
    • Дом 43 м2
    • 2 этажа
    • Состояние: хорошее
    3 490 000 ₽
    **Представляем Вашему вниманию Райский уголок у воды с собственным пирсом, беседкой на воде — ваше личное убежище для гармонии и вдохновения!** Представьте себе место, где каждое утро начинается с шепота волн и пения птиц, а закаты окрашивают небо в золото и багрянец, отражаясь в зеркальной глади воды. Этот уникальный садовый участок — не просто земля, а воплощение мечты для тех, кто ценит уединение, природу и бесконечные возможности отдыха. **Ваш собственный пирс** станет сердцем этого уголка: здесь можно рыбачить, любоваться звёздным небом, спускать на воду лодку или встречать гостей, устраивая романтические ужины под шум прибоя. А плодородная земля участка готова подарить вам буйство красок сада, ароматы цветущих клумб и урожаи экологически чистых овощей и фруктов. Участок идеально подходит для строительства уютного дома или современного коттеджа с панорамными окнами, откуда открывается вид на водную гладь. Близость к лесу добавляет шарма — здесь можно собирать грибы, гулять по тропинкам или просто наслаждаться тишиной, вдали от городской суеты. На участке есть не большой дом и баня с террасой. ID объекта в нашей базе: 1526
    размещено: 26.05.2025 , обновлено: 22.09.2025
  • Дом с участком в г. Березовский, коллективный сад №28, участок №46

    городской округ Березовский (Березовское направление)
    Центр Екатеринбурга → 14 км
    • 10.5 соток
    • Дом 55 м2
    • 2 этажа
    • Состояние: хорошее
    3 490 000 ₽
    Продается ухоженный участок 10.5 соток в живописном месте!Идеальное место для отдыха от городской суеты и ведения хозяйства.На участке расположены:* 3 парника и 2 теплицы: готовьтесь к богатому урожаю!* Уютный дом с капитальным фундаментом, кирпичным первым этажом и летним каркасным вторым этажом. На первом этаже: просторная кухня, прихожая, гостиная с камином и печкой.*Оборудована летняя гостевая мангальная зона (терраса), а также дополнительная летняя кухня с жилой комнатой!* Баня из бруса на ленточном фундаменте с чердаком – идеальное место для релаксации.* Утепленный каркасный хозяйственный блок на ленточном фундаменте (можно использовать как хозяйственный блок или расширение дома).* Капитальный кирпичный гараж со скважиной (16 метров) – всегда чистая вода!* Дровянник и множество помещений для хранения садового инвентаря.* Два туалета с септиком.* Сооружения для содержания птицы.Коммуникации: летний водопровод по всему участку (включая баню, теплицы и дом), скважина в гараже.Плодоносящий сад: рябина невеженская (2 дерева), 3 взрослые и 3 молодые яблони, 2 груши, много вишни вдоль участка, смородина, крыжовник, малина, ягодники, а также посадки картофеля и моркови.Цветущий сад: жасмин, сирень королевская, гортензия, розы, флоксы, лилии, тюльпаны, курильский чай.Расположение: прямо у сада сосновый бор, а город в пешей доступности, особенно, если Вы любите прогулки (5 км до Березовска). Транспорт общественный также есть. Соседи живут круглый год, дороги чистят зимой и летом – доступ обеспечен! Ворота на сигнализации.Звоните и приезжайте на просмотр! ID объекта в нашей базе: 25622
    размещено: 22.05.2025 , обновлено: 6.12.2025
  • Дом с участком в г. Березовский, к/с № 77 Медик

    городской округ Березовский (Березовское направление)
    Центр Екатеринбурга → 14 км
    • 4 сотки
    • Дом 144 м2
    • 2 этажа
    • Состояние: удовлетворительное
    6 800 000 ₽
    Предлагается к продаже недостроенный дом 144 м2 на участке 4 сот в г. Березовском!!!Возможна отделка !!!!Земельный участок - земли сельхозназначения, для ведения садоводства. Расположен в СНТ "Медик".Фундамент-свайно -ленточный, затем плита.Материал стен- твинблок, толщина стен 400 мм, скважина- 72 м, электричество 380 в, канализация- септик 5 куб, крыша -матовая металлочерепица качественная.Хорошие, дружелюбные соседи, въезд на СНТ через шлагбаум.Отличная геолокация - транспортная и пешеходная доступность до магазинов.В настоящее время строительство дома продолжается полным ходом, после строительства дом будет стоить дороже.Развивающийся район, через дорогу ЖК "Зори" , развитая инфраструктура.Поможем бесплатно в одобрении ипотеки!!!Свяжитесь с нами прямо сейчас, чтобы узнать больше и организовать просмотр!!! ID объекта в нашей базе: 11174
    размещено: 16.05.2025 , обновлено: 6.12.2025
  • Дом с участком в г. Березовский, тер. Коллективный сад №33 "Мечта", уч. 83

    городской округ Березовский (Березовское направление)
    Центр Екатеринбурга → 14 км
    • 4.5 сотки
    • Дом 29 м2
    • 2 этажа
    • Состояние: хорошее
    2 250 000 ₽
    Отличная, ухоженная дача в 25 минутах от города по Режевскому тракту. Дом на блочном фундаменте, отопление печное, приготовление пищи либо на печке, либо на газу от баллона. Участок ухожен, из посадок - несколько яблонь, вишня, малина, смородина красная и черная. Участок расположен возле водоема, имеется облагороженный спуск. На все вопросы отвечу по телефону. ID объекта в нашей базе: 1228
    размещено: 21.04.2025 , обновлено: 5.12.2025
  • Садовый участок в г. Березовский, сад № 8

    городской округ Березовский (Березовское направление)
    Центр Екатеринбурга → 14 км
    • 2 сотки
    700 000 ₽
    Объект № 190627. Пpoдaм земельный учacток в черте гoрoда, рядом с поселком Шиловка. Участок расположен вдали от проезжей части, рядом с лесом. Pазмep учaстка 5.2м на 42м. Удобрен, имеются плодoвитыe дepeвья и кустapники: чёpнaя и кpaсная смopодина, крыжовник, вишня, крaсная и желтая слива, яблоня, жимoлocть. Еcть летняя водa, отcыпaнa парковка. Рядом мaгaзин Пятёрочка, автoбуснaя остaнoвка, в 30м лес c тропaми для прогулок, идeт гaзификaция учаcткoв. В саду многие проживают, зимой дороги чистят.
    размещено: 26.03.2025 , обновлено: 6.12.2025

Приоритет

Увеличивает просмотры в 3 раза

Ваше объявление показывается в списке выше обычных объявлений. подключить