На Метре реклама - только нормальная. Никакого шок-контента.
Помогайте независимому ресурсу, как он помогает вам. Удачи!
Новостройки Котт. посёлки Объявления Динамика цен и сделок

Продажа коттеджей: с. Грязновское, ул. Ленина, 100 (городской округ Богданович)

  • опубликовано 21.10.2025 , обновлено 5.01.2026
  • 9
  •  
Направление, расстояние: Тюменское направление, 74 км. от центра Екатеринбурга
Кадастровый номер:66:07:0301002:744
Тип объекта:коттедж
Состояние объекта:жилой
S участка:33 соток
Общая площадь дома:139 м2
Жилая площадь:50 м2
Этажность:1
Материал постройки:кирпичный
Электричество:есть
Водоснабжение:есть
Газоснабжение:есть
Наличие водоема:Нет
Цена:
5 000 000
Условия продажи:«чистая» продажа

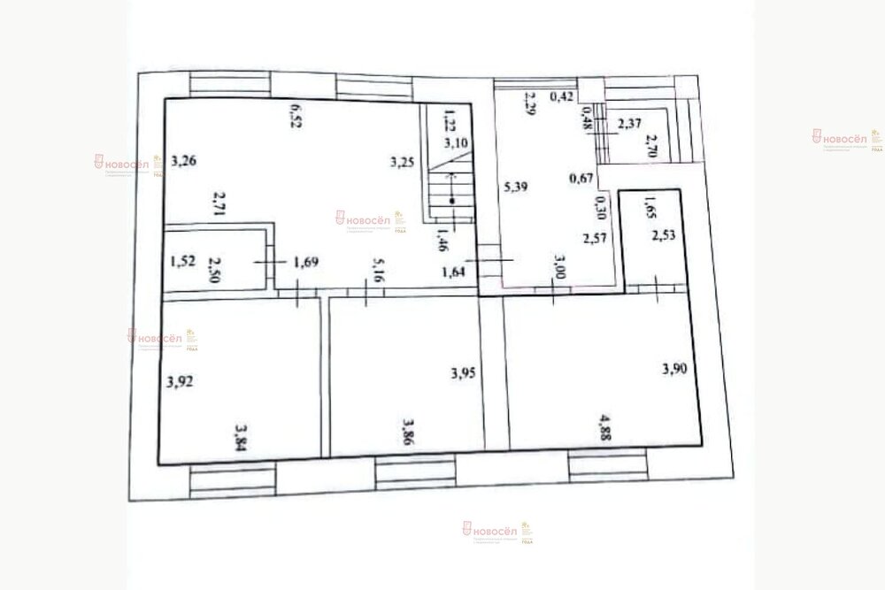
Объект № 195086. Предлагается к продаже замечательный загородный кирпичный дом площадью 119 м² с функциональной планировкой.
Отличительная особенность недвижимости — высокое качество строительства и современные инженерные решения. Предчистовая отделка позволяет обустроить пространство по своему вкусу.
Материал стен: внешние стены выполнены из прочного кирпича толщиной 85 см, внутренние перегородки изготовлены из качественного газобетона.

Планировка: три уютные спальни (одна из которых мастер-спальня), просторная кухня-гостиная, два санузла (один уже сделан и функционирует). Увеличенные оконные проемы с тройным остеклением гарантируют много света и сохранения тепла зимой. Дополнительные метры полезного пространства обеспечивает тёплый и сухой цокольный этаж площадью 20 м², пригодный под хозяйственное помещение (прачечную).

Инженерия и коммуникации: современная система отопления - эффективный двухконтурный электронный газовый котел вместе с теплым водяным полом обеспечит равномерное распределение тепла по всему дому и цоколю. Автономная скважина глубиной 37 метров обеспечит чистой водой круглый год. Надежный фундамент из бутового камня гарантирует высокую прочность, долговечность и экологичность, а также защиту от воздействия влаги и подземных вод.

Площадь участка позволяет создать уникальный ландшафтный дизайн и наслаждаться прекрасными видами природы. Участок порадует садоводов наличием плодоносящих деревьев и кустарников: яблонь, вишен, малины, ирги.

Инфраструктура района: Село располагает всеми необходимыми объектами социальной инфраструктуры: школа, детский сад, поликлиника, магазин, аптека, дом культуры и др., обеспечивающие высокий уровень комфорта проживания. Благодаря новым транспортным развязкам вы сможете оперативно добираться до Екатеринбурга и ближайших населённых пунктов.

Создавайте своё идеальное пространство и наслаждайтесь жизнью в гармонии с природой и комфортом современного жилья! Этот дом станет вашим семейным гнездом на долгие годы вперёд. Звоните прямо сейчас, чтобы организовать просмотр и убедиться лично в преимуществах покупки именно этого дома. ***Гарантийный сертификат «Защита собственности» по данному объекту в подарок***

История предложений

объявление снято с публикации в продаже адрес S дома / S участка цена,
с. Грязновское, ул. Ленина, 61А (городской округ Богданович) - фото дома 30 августа 2025 90 дн. с. Грязновское, ул. Ленина, 61А (городской округ Богданович) 86.7 3 100 000

Похожие предложения о продаже коттеджей/домов/дач в с. Грязновское

  • Дом - с. Грязновское, ул. Новая, 13-1

    городской округ Богданович (Тюменское направление)
    Центр Екатеринбурга → 74 км
    • 39 м2
    • 17 соток
    • 1 этаж
    2 250 000 ₽
    Объект № 192685. В продаже частный дом в экологичном районе нашей области. Хорошо подойдет при переходе от проживания в квартире к жизни на земле. Кроме того, перспективный вариант для дачи. Дом оборудован всеми необходимыми коммуникациями (газ, вода, отопление, канализация). Все работает и обслуживается. На просторном приусадебном участке земля разработана. При рациональном использовании, прокормит большую семью. Все дома по соседству - жилые, хорошие, отзывчивые соседи, ровная асфальтированная дорога. В самом селе развита инфраструктура, действуют магазины, развлекательные программы есть учебные учреждения и клубы по интересам. Дом готов к продаже, рассмотрим и ипотеку, и различные сертификаты. ***Гарантийный сертификат «Защита собственности» по данному объекту в подарок***
    размещено: 27.06.2025 , обновлено: 14.01.2026

Приоритет

Увеличивает просмотры в 3 раза

Ваше объявление показывается в списке выше обычных объявлений. подключить