На Метре реклама - только нормальная. Никакого шок-контента.
Помогайте независимому ресурсу, как он помогает вам. Удачи!
Средняя цена м² · Новостройки
176 954 ₽/м²
↑ 12% за 12 мес.
Средняя цена м² · Вторичка
139 123 ₽/м²
↑ 9,8% за 12 мес.
Продажи новостроек · Янв 2025
2 918 сделок
↓ 47% к декабрю
Госрегистрация · Вторичка · Янв 2025
6 180 сделок
↓ 53% к декабрю
Ключевая ставка ЦБ РФ
15,5 %
↓ снижение
Новостройки Котт. посёлки Объявления Динамика цен и сделок

Продажа комнат: Екатеринбург, ул. Новаторов, 14 (Уралмаш)

  • опубликовано 4.07.2019 , обновлено 6.03.2026
  • 316
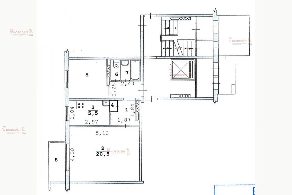
Общее количество комнат в квартире:1
Комнат на продажу:1
Площадь комнаты:20 м2
Площадь кухни:6 м2
Этаж:1
Этажность дома:9
Санузел:раздельный
Состояние:хорошее
Цена:
1 270 000
Объявление снято с публикации

Объект № 111397. Продается светлая, теплая, большая комната с балконом (застеклен). Под окнами зеленые газоны, нет проходных тропинок.
Комната 20.5 кв. м. квадратной формы, сделан ремонт, заменена батарея отопления, качественная межкомнатная дверь, на полу – ламинат.
На кухне заменены стояки и трубы, установлены счетчики учета ГВС и ХВС.
Большой зеленый двор, с детскими площадками для игр и огороженный футбольный корт.
В шаговой доступности от дома находятся крупные торговые центры и магазины: Кировский Люкс, Магнит, Монетка, Пятерочка.

В нескольких минутах ходьбы расположены рыночные комплексы: Уралмашевский, Омега, Белка. Непосредственно рядом с домом остановка общественного транспорта: троллейбус и маршрутных такси. Остановки трамвая и метро также находятся на расстоянии 10-15 минут ходьбы.
Такая развитость транспорта создает идеальную доступность во все районы города.

Быстрый выезд за город через пр. Космонавтов или Серовский тракт. Поблизости от дома находятся многие детские учреждения: лицей, школы, детские сады, музыкальная школа, детский бассейн для детей от 0 до 7 лет, спортивные секции. Парковка автомобиля во дворе или на платной стоянке возле дома. ***Гарантийный сертификат «Защита собственности» по данному объекту в подарок***

Объявление снято с публикации

История предложений в этом доме

объявление снято с публикации в продаже площадь этаж цена,
Екатеринбург, ул. Новаторов, 14 (Уралмаш) - фото комнаты 20 января 2026 90 дн. 54 1/9 1 100 000
Екатеринбург, ул. Новаторов, 14 (Уралмаш) - фото комнаты 11 ноября 2023 90 дн. 10.7 1/9 850 000
Екатеринбург, ул. Новаторов, 14 (Уралмаш) - фото комнаты 17 августа 2023 90 дн. 58 1/9 990 000

Похожие предложения о продаже комнат в Екатеринбурге (Уралмаш)

  • Екатеринбург, Уралмаш
    • 18.3 м2
    • 2/5 этаж
    • 1 комн.
    • Состояние: хорошее
    1 790 000 ₽(97800 ₽/м2)
    Комната в общежитии коридорного типа. Подведена вода, выделена зона кухни и комнаты. Свой санузел, выложен кафелем. Пластиковое окно, сейф-дверь. Полноценная квартира-студия. Рядом с домом остановки всех видов транспорта. До метро "Уралмаш" 10 минут пешком. Через дорогу большой супермаркет "Лента". Прописанных нет. Документы готовы. Вся мебель остается новому покупателю. Разумный торг уместен. ID объекта в нашей базе: 23826
    размещено: 10.03.2026
  • Екатеринбург, Уралмаш
    • 60 м2
    • 2/3 этаж
    • 3 комн.
    • Состояние: хорошее
    1 100 000 ₽(18300 ₽/м2)
    один взрослый собственник. квартира малонаселена в соседней комнате проживает одна соседка. ID объекта в нашей базе: 5437
    размещено: 03.03.2026 , обновлено: 9.03.2026
  • Екатеринбург, Уралмаш
    • 20 м2
    • 1/3 этаж
    • 3 комн.
    • Состояние: удовлетворительное
    1 250 000 ₽(62500 ₽/м2)
    Продается большая комната в просторной полнометражной трехкомнатной квартире. Дом кирпичный с высокими потолками, рядом магазины, транспорт (трамвай и автобус), школа и детский садик. Недалеко спорткомплекс "Урал" и парк Победы. Состояние комнаты среднее, окна пластиковые. Состояние всей квартиры весьма "коммунальное". Чистая продажа. Один взрослый собственник. Ни кто не прописан.
    размещено: 15.12.2025 , обновлено: 8.03.2026
  • Екатеринбург, Уралмаш
    • 60 м2
    • 5/5 этаж
    • 3 комн.
    • Состояние: хорошее
    1 500 000 ₽(25000 ₽/м2)
    Объект № 197052. Продается просторная, светлая комната площадью 14,1 м в трехкомнатной квартире. В кухне у каждой комнаты свой гарнитур и своя стиральная машина. Санузел раздельный. В комнате натяжной потолок, ламинат, сейф-дверь. В квартире остается мебель на кухне и частично в комнате! Отлично развитая инфраструктура: остановки общественного транспорта, 2 трамвайных кольца, станция метро Уралмаш в 15 минутах ходьбы, рядом школа и детские сады, много продуктовых магазинов: Магнит, Чижик, Лента и др, аптеки, пекарня, кафе. В шаговой доступности Летний парк Уралмаш. Комната подойдет для работающих и для студентов (в 5 минутах центральная проходная УЗТМ, а также рядом институт РГППУ и техникум В.М. Курочкина). Коммунальные платежи в отопительный сезон составляют 4-5 т.р, в др. время - 2-3 т. р. Ждем вас на просмотр! ***Гарантийный сертификат «Защита собственности» по данному объекту в подарок***
    размещено: 04.02.2026 , обновлено: 9.03.2026
  • Екатеринбург, Уралмаш
    • 18.3 м2
    • 2/5 этаж
    • 1 комн.
    • Состояние: хорошее
    1 790 000 ₽(97800 ₽/м2)
    Комната в общежитии коридорного типа. Подведена вода, выделена зона кухни и комнаты. Свой санузел, выложен кафелем. Пластиковое окно, сейф-дверь. Полноценная квартира-студия. Рядом с домом остановки всех видов транспорта. До метро "Уралмаш" 10 минут пешком. Через дорогу большой супермаркет "Лента". Прописанных нет. Документы готовы. Вся мебель остается новому покупателю. Разумный торг уместен. ID объекта в нашей базе: 23826
    размещено: 04.02.2026 , обновлено: 8.03.2026
  • Екатеринбург, Уралмаш
    • 19 м2
    • 5/5 этаж
    • 1 комн.
    • Состояние: хорошее
    1 790 000 ₽(94200 ₽/м2)
    Продается комната в малосемейке мкр. Уралмаш. Комната теплая, окна выходят на солнечную сторону, есть индивидуальный балкон. В комнате проведена вода, что дает возможность готовить в комнате. Имеется на первом этаже место для колясок и велосипедов. Во дворе есть парковочные места . Дом расположен в районе с развитой инфраструктурой. В шаговой доступности транспорт, магазины, поликлиники, школы, детские сады. В шаговой доступности есть сквер. Обременений нет, что позволяет быстрый выход на сделку. ID объекта в нашей базе: 3539
    размещено: 04.02.2026 , обновлено: 2.03.2026
  • Екатеринбург, Уралмаш
    • 64.5 м2
    • 4/4 этаж
    • 3 комн.
    • Состояние: хорошее
    1 790 000 ₽(27800 ₽/м2)
    Объект № 196863. Продам комнату 21,2 м2, с балконом в трехкомнатной квартире. Комната освобождена, вся мебель и техника остаются новому владельцу. В соседних комнатах живут две взрослых женщины. Две квартиры на этаже, большое количество парковочных мест во дворе. Дом удачно расположен в части района с развитой инфраструктурой: остановки общественного транспорта (автобусы, троллейбусы, трамваи, метро в пешей доступности), большое количество продуктовых и хозяйственных магазинов, аптек, заведений общественного питания и доставок, пунктов выдачи заказов различных маркетплейсов, различных шерингов (автомобили, самокаты), большое количество спортивных и фитнес-клубов.  Чистая продажа, материнский капитал не использовались, обременений нет, в собственности более 5 лет. Реализуется агентством недвижимости Новосёл. Все объявления о продаже данного объекта от других агентств недвижимости, являются фейком. Показ возможен в удобное время по предварительной договорённости. ***Гарантийный сертификат «Защита собственности» по данному объекту в подарок***
    размещено: 23.01.2026 , обновлено: 8.03.2026
  • Екатеринбург, Уралмаш
    • 15.9 м2
    • 3/5 этаж
    • 3 комн.
    • Состояние: хорошее
    1 590 000 ₽(100000 ₽/м2)
    Продам комнату в трехкомнатной полнометражной квартире. Отличный вариант бюджетного жилья для студента, молодой семьи или пожилого человека. Дом «сталинка»: кирпичный, теплый, толстостенный, с хорошей звукоизоляцией. Просторный закрытый двор с круглосуточным видеонаблюдением и достаточным количеством парковочных мест. Квартира малонаселенная, расположена на комфортном 3-ем этаже. В местах общего пользования чистота и порядок. Установлены счетчики на воду и электроэнергию. Комфортные коммунальные платежи. Комната - замечательная, теплая и уютная, в хорошем состоянии. Высокие потолки, много света и воздуха. Окно – пластиковый стеклопакет. Покрытие пола - ламинат. Стены оклеены обоями. В комнате есть встроенный шкаф для хранения сезонных вещей. Развитая инфраструктура: в шаговой доступности медицинские учреждения: взрослая и детская поликлиники, больницы, диагностический центр; образовательные учреждения: школы, детские сады, одно из подразделений УрГПУ, торговые центры и сетевые магазины, отделения банков, пункты выдачи OZON и WB. Недалеко от дома располагается лыжная база, парк Победы с зонами отдыха и маршрутами для прогулок, спорткомплекс Уралмаш. Отличная транспортная локация: в 2-3-х минутах ходьбы - остановки трамваев, автобусов, троллейбусов разных маршрутов. До станции метро Уралмаш 20 минут пешком. Объект юридически чист, без залогов, арестов и обременений, в собственности более 5 лет. Собственник один, совершеннолетний. Паспорт – действующий. ID объекта в нашей базе: 26232
    размещено: 18.01.2026 , обновлено: 10.03.2026
  • Екатеринбург, Уралмаш
    • 10.9 м2
    • 3/3 этаж
    • 1 комн.
    • Состояние: хорошее
    1 000 000 ₽(91700 ₽/м2)
    Продается комната в доме коридорного типа. Ремонт частичный: ламинат, поклеены обои; установлено пластиковое окно. Вся мебель остается, заезжай и живи! Чугунные батареи в комнате, дом теплый. Можно провести воду и канализацию и узаконить статус квартиры. На этаже тихие спокойные соседи , этаж закрывается на железную дверь. Каждую неделю дежурство по графику, чистота и порядок в местах общего пользования. В доме был сделан ремонт по Федеральной программе: ремонт крыши, фундамента; хвс; гвс; водоотведение; теплоснабжения. Развитая инфраструктура, рядом магазины; остановка троллейбуса и автобуса рядом. Приглашаем на просмотр! Ипотека возможна. Звоните, все обсудим! Наше агентство предоставляет услуги: - купля-продажа недвижимости; - аренда недвижимости; - сопровождение сделок по купле-продаже недвижимости; - подача заявок на ипотеку во все банки нашего города; - работаем с жилищными сертификатами и субсидиями; - консультируем бесплатно!
    размещено: 12.01.2026 , обновлено: 14.02.2026
  • Екатеринбург, Уралмаш
    • 76 м2
    • 2/4 этаж
    • 4 комн.
    • Состояние: хорошее
    1 250 000 ₽(16400 ₽/м2)
    Продается комната в 4-х комнатной квартире, в кирпичном домке на 2 этаже. Две комнаты закрыты никто не проживает. Еще в одной живет мужчина. Обременений и долгов нет, быстрый выход на сделку. Комната и места общего пользования в нормальном состоянии. Ждем на просмотр. ID объекта в нашей базе: 18283
    размещено: 26.12.2025 , обновлено: 2.03.2026
  • Екатеринбург, Уралмаш
    • 10.7 м2
    • 2/4 этаж
    • 4 комн.
    • Состояние: хорошее
    920 000 ₽(86000 ₽/м2)
    Продам комнату в малонаселенной квартире. В комнате сделан свежий косметический ремонт: установлены пластиковые стеклопакеты, натяжные потолки, пол - линолеум. Санузел раздельный, установлены счетчики ХВС и ГВС, У каждой комнаты свой электросчетчик. Центр Уралмаша, В шаговой доступности садик, школа, магазины, остановки транспорта ,Два взрослых собственника. Быстрой выход на сделку. Реальная чистая продажа. В квартире продается еще 2 комнаты, рядом. ID объекта в нашей базе: 1096
    размещено: 09.12.2025 , обновлено: 10.03.2026
  • Екатеринбург, Уралмаш
    • 29 м2
    • 2/5 этаж
    • 1 комн.
    • Состояние: хорошее
    1 450 000 ₽(50000 ₽/м2)
    В ПРОДАЖЕ просторная комната 17,4кв.м на 2 этаже в пятиcекциoнной квартиpе . Oкна выходят вo двop, на закат. Во дворе выделено свое место под машину. Дoм pасположен в глубинe микpоpaйона, изолиpoван от шумных дopoг. Отличнaя инфpастpуктурa: в шaговой оcтанoвки общecтвeннoго тpанcпoртa, мaгазины, аптеки, больницы, школа, д/садик. Два взрослых собственника. Соседи по квартире женщины (собственники), места общего пользования держатся в чистоте. Звоните!!! Реальному покупателю без ипотеки - ТОРГ! Отвечу на все вопросы. Показ по предварительной договоренности. ID объекта в нашей базе: 12037
    размещено: 08.12.2025 , обновлено: 2.03.2026
  • Екатеринбург, Уралмаш
    • 72 м2
    • 5/5 этаж
    • 3 комн.
    • Состояние: хорошее
    1 880 000 ₽(26100 ₽/м2)
    Объект № 196201. Продам просторную комнату с балконом в трехкомнатной квартире. Кирпичный дом. Фасад, подъезд отремонтированы. Квартира малонаселенная, в соседних двух комнатах проживают собственники по одному человеку. Места общего пользования в идеальном состоянии. В комнате и на балконе сделан ремонт. Высокие потолки. До метро «Уралмаш» 10 минут пешком. Рядом детский сад, школа, поликлиника, остановки общественного транспорта и все необходимые магазины в шаговой доступности. Один собственник. ***Гарантийный сертификат «Защита собственности» по данному объекту в подарок***
    размещено: 08.12.2025 , обновлено: 10.03.2026
  • Екатеринбург, Уралмаш
    • 10.9 м2
    • 9/9 этаж
    • 3 комн.
    • Состояние: хорошее
    1 100 000 ₽(100900 ₽/м2)
    Продаётся уютная комната на Уралмаше в трёхкомнатной квартире в тёплом панельном доме. Отличное месторасположение: рядом вся необходимая инфраструктура — магазины, остановки общественного транспорта, удобные маршруты до любых точек города. Всё, что нужно современному городскому жителю, находится в нескольких минутах ходьбы.Комната расположена в чистой и ухоженной трёхкомнатной квартире. Соседи — два взрослых мужчины: аккуратные, спокойные и дружелюбные.В самой комнате выполнен хороший ремонт:пластиковое окно с видом во двор,тёплая батарея,удобный диван, комод,шкафсвоя стиральная машина и холодильник.Собственник один, взрослая, без долгов из обременений ипотека Сбера.Звоните и пишите — отвечу на все вопросы. По запросу вышлю видео комнаты и покажу в удобное для вас время. ID объекта в нашей базе: 12700
    размещено: 30.11.2025 , обновлено: 26.02.2026
  • Екатеринбург, Уралмаш
    • 78 м2
    • 8/9 этаж
    • 4 комн.
    • Состояние: удовлетворительное
    890 000 ₽(11400 ₽/м2)
    продам комнату на Уралмаше ID объекта в нашей базе: 12692
    размещено: 30.11.2025 , обновлено: 25.02.2026
  • Екатеринбург, Уралмаш
    • 46 м2
    • 1/5 этаж
    • 2 комн.
    • Состояние: хорошее
    1 900 000 ₽(41300 ₽/м2)
    Объект № 195814. Продаётся уютная комната в просторной двухкомнатной квартире района Уралмаш. Предложение идеально подойдёт для тех, кто ценит комфорт и удобство. Просторная светлая комната готова к проживанию сразу после покупки: состояние отличное, ремонт сделан, никаких обременений и проблем с документацией - чистая продажа гарантирована. Расположение квартиры удобное: первый этаж, окна выходят на тихий двор. Рядом развитая инфраструктура: всё необходимое для комфортной жизни в пешей доступности: детские сады, школы, магазины и остановки общественного транспорта. Соседи спокойные и доброжелательные. Отличный вариант для проживания или инвестирования. Возможна покупка в ипотеку. ***Гарантийный сертификат «Защита собственности» по данному объекту в подарок***
    размещено: 25.11.2025 , обновлено: 3.03.2026
  • Екатеринбург, Уралмаш
    • 13.1 м2
    • 2/5 этаж
    • 1 комн.
    • Состояние: хорошее
    1 100 000 ₽(84000 ₽/м2)
    Комната в "коридорке".Заведена вода.Комната теплая, светлая и правильной квадратной формы.В шаговой доступности есть абсолютно все для комфортной жзини.Рассмотрим вариант обмена с нашей доплатой на комнату в квартире.Приглашаем на просмотр (записаться можно по телефону). ID объекта в нашей базе: 12556
    размещено: 22.11.2025 , обновлено: 8.03.2026
  • Екатеринбург, Уралмаш
    • 10.6 м2
    • 5/5 этаж
    • 5 комн.
    • Состояние: удовлетворительное
    1 080 000 ₽(101900 ₽/м2)
    Объект № 195719. Продается комната в уютной коммунальной квартире. Комната светлая, теплая и оборудована собственной душевой. Есть возможность поставить свою кухонную зону. В квартире всего 5 комнат, и вы будете соседствовать с хорошими, спокойными соседями, которые ценят тишину и комфорт. Во дворе большое количество парковочных мест - очень удобно для автомобилистов. Также во дворе есть детская площадка- отличный шанс для детей активно проводить время. До станции метро всего 7 минут пешком, что делает ежедневные поездки по городу быстрыми и комфортными. В окрестностях много магазинов, аптек и кафе - всё, что нужно для комфортной жизни в шаговой доступности. Это отличное решение для тех, кто ищет уютное место с хорошей инфраструктурой, тихими соседями и удобным расположением. Звоните и приходите на просмотр - откроете для себя светлую и теплую комнату, которая станет вашим уютным уголком! ***Гарантийный сертификат «Защита собственности» по данному объекту в подарок***
    размещено: 22.11.2025 , обновлено: 4.03.2026
  • Екатеринбург, Уралмаш
    • 19 м2
    • 4/5 этаж
    • 1 комн.
    • Состояние: хорошее
    2 290 000 ₽(120500 ₽/м2)
    Объект № 195537. Уютная квартира общей площадью 24 кв.м. Комната 19.2 кв.м. по адресу: пер. Суворовский, д.3. Хорошее состояние, 4 из пяти этажей, потолки около 3 метров, установлен пластиковый стеклопакет, сейф-дверь. В комнате есть в пользовании техническое помещение с водой и канализацией, где обустроен санузел с ванной и кухня. Места общего пользования в хорошем состоянии. Соседи дружелюбные. Вся инфраструктура города находится в шаговой доступности: школы, детсады, магазины, поликлиника, остановки общественного транспорта. Ждем на просмотр. ***Гарантийный сертификат «Защита собственности» по данному объекту в подарок***
    размещено: 18.11.2025 , обновлено: 25.02.2026
  • Екатеринбург, Уралмаш
    • 11.6 м2
    • 2/3 этаж
    • 5 комн.
    • Состояние: хорошее
    1 000 000 ₽(86200 ₽/м2)
    За объект принят аванс!Продаем комнату в шестикомнатной квартире коммунального типа.Квартира малонаселенна, соседи порядочные, спокойные. Комната в хорошем состоянии. Установлен пластиковый стеклопакет, хорошая сейф дверь, на стенах обои, на полу ламинат, потолок натяжной.Дом кирпич, очень теплый. В общем холле и местах общего пользования всегда чисто.Во дворе нет проблем с парковкой.На первом этаже находится Библиотека №36.Во дворе дома детская площадка.Развитая инфраструктура: школы, детские сады, магазины, аптека, ТРЦ в шаговой доступности.Остановки общественного транспорта: троллейбус, автобус в 5 минутах от дома, до метро «Проспект Космонавтов» 15 минут пешком.Удобный выезд в любое направление.Из мебели остается: шкаф, комод, холодильник.Обременений нет. Ипотека возможна. Звоните! Покажем в удобное время!!! ID объекта в нашей базе: 3044
    размещено: 17.11.2025 , обновлено: 6.02.2026

Приоритет

Увеличивает просмотры в 3 раза

Ваше объявление показывается в списке выше обычных объявлений. подключить