2-к квартира, Тенистая, 6/2
Адрес: г.Екатеринбург, район Верх-Исеткий, мкр. Широкая речка, ул.Тенистая д.6/2 ЖК "Домино"
Дом: это многоэтажный 10-ти жилой ,2 подъезд, 4/9 этажа, лиф в доме грузо пассажирский.
Преимущества: Закрытый дом, Видео наблюдение, Охрана, Подземный паркинг в доме. Центральное отопление. В квартирах предусмотрены счётчики на тепло, воду, электричество,отопление. Благоустроенная территория двора ,детская и спортивная площадка.
Квартира:
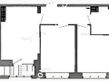
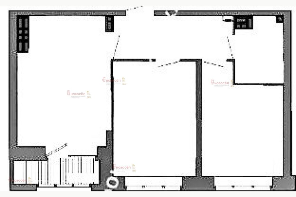
Просторная двухкомнатная квартира на 4-м этаже с лоджией.
Отличная планировка: Общая площадь: 50 кв.м, кухня-зал 16 кв. м с выходом на лоджию . Высота потолков 2.7 кв.м.
Коридор просторный и санузел совмещенный оборудован ванной -отделка кафель. Кликайте на фото планировки в объявление.
Мебель: кухонный гарнитур, 2 стулья,1 стол кухонный, диван двухспальный, тумба под ТВ.
Техника: Холодильник; стиральная машина; стеклокерамика -плита электро с духовым шкафом ; Вытяжка.
Для кого: Пожелание: приоритет - семейной паре с детьми также рассмотрим.Квартира освобождена сдается на долгий срок, чистоплотным аккуратным гражданам. Ограничения: без животных, курение в квартире запрещено.
Инфраструктура: школа, детские сады, магазины, супермаркеты Магнит,Перекресток 2шт, кафе быстрое питание остановка общественного транспорта возле дома 5 минут пешком.
Транспорт: автобусы 64,85 и т.д много в пешей доступности.
Стоимость аренды квартиры: 33000 рублей +коммунальные платежи (лето 3500р/зима 5000р)
Коммунальные платежи оплачиваются отдельно, по счётчикам.
На длительный срок. Заезд возможен с 29 марта 2026 г. Просмотр по договоренности.Звоните!
Страховой депозит: 33 000 рублей, можно разбить оплату на два месяца.
Минимальный срок аренды 11 месяцев. (Только долгосрочная аренда квартиры).
На сделку с собой: паспорт и оплату
1 вариант полная оплата 66 000рублей
2 вариант рассрочка (на 2 месяца)49 500 рублей. Звоните!
аренда( для семьи или пары или семьи с детьми) внимание с животными не возьму. Квартира готова к заселению. У собственника могут дополнительные вопросы к арендаторам. Подробно по телефону: Звоните! Работаю без выходных, покажу квартиру в удобное для Вас время!.
ID объекта в нашей базе: 5404
размещено: 01.03.2026
, обновлено: 29.03.2026















