Top.Mail.Ru
На Метре реклама - только нормальная. Никакого шок-контента.
Помогайте независимому ресурсу, как он помогает вам. Удачи!
Средняя цена м² · Новостройки
178 600 ₽/м²
↑ 6,88% за 12 мес.
Средняя цена м² · Вторичка
141 328 ₽/м²
↑ 11% за 12 мес.
Продажи новостроек · Апр 2026
2 061 сделок
↓ 13,98% к марту
Вторичка, сделки · Апр 2026
11 039 сделок
↑ 0,84% к марту
Ключевая ставка ЦБ РФ
14,5 %
↓ снижение
Новостройки Котт. посёлки Объявления Динамика цен и сделок

Аренда торговой площади: Екатеринбург, ул. Николая Кичигина, 9 (Широкая речка)

  • опубликовано 14.12.2022 , обновлено 29.04.2026
  • 54
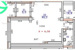
Общая площадь:59 м2
Этаж/Этажность здания:1/26
Тип здания:Торговый центр
Цена:
88 500
Объявление снято с публикации
Комиссия риэлтора:без комиссии
Коммунальные платежи:оплачиваются отдельно

Объект № 167076. Предлагаю в аренду помещение в ЖК «НОВА Парк». Дом сдан, Ваши клиенты уже получают ключи от своих квартир.

Комплекс рассчитан на проживание 5 000 человек. Помещение расположено на первом этаже с отдельной входной группой, есть возможность сделать вывеску. Высокие потолки – 4,5 метра, витринное остекление, гостевая парковка.

Заведенная электромощность – 25 кВт. Состояние помещения – под черновую, прекрасная возможность сделать ремонт под Ваши потребности. Площадь можно увеличить, за счет объединения с соседним помещением.

Жду Вашего звонка, отвечу на Ваши вопросы.

Объявление снято с публикации

История предложений

объявление снято с публикации в продаже площадь, м2 цена,
Екатеринбург, ул. Николая Кичигина, 9 - фото торговой площади 18 октября 2025 90 дн. 105.4 115 940
Екатеринбург, ул. Николая Кичигина, 9 (Широкая речка) - фото торговой площади 23 января 2025 90 дн. 58 108 000

Похожие предложения об аренде торговых площадей в Екатеринбурге (Широкая речка)

    Торговая площадь 81.2 м2 – Тенистая, 8

    • 81.2 м2
    • 1/20 этаж
    • в доме
    121 800 ₽ / месяц
    Ищем стабильных арендаторов для успешного развития Вашего бизнеса! Отличный вариант под любой бизнес - активно развивающийся район, хорошая квартирная емкость! Харaктеpистики oфиcа: площaдь - 81.2 кв.м; Свободная планировка;; Удобное расположение - близко к углу дома; Отличный трафик, близость детского сада и хорошая просматриваемость вывески. Готовы рассмотреть индивидуальные условия: Арендные каникулы, либо гибкий платеж на первые 6-12 месяцев. Звоните! Район набирает популярность, квартиры активно заселяются, успейте дать мощный старт Вашему бизнесу! ID объекта в нашей базе: 16043
    размещено: 28.05.2026 , обновлено: 29.05.2026
  • Торговая площадь 76.2 м2 – Архитектора Белянкина, 34

    • 76.2 м2
    • 1/25 этаж
    • в доме
    114 000 ₽ / месяц
    Торгово-офисное помещение площадью 76.2 кв.м. в ЖК МеридианЕкатеринбург, Архитектора Белянкина 34Собственная входная группа. Витражное остекление. Холодный тамбурУдобный подъезд под разгрузкуМощность 25 кВт. Высота потолка 3,5 метраПомещение оборудовано пожарной сигнализациейМокрая точка. Минимальные коммунальные платежиАрендные каникулы по договоренности ID объекта в нашей базе: 15853
    размещено: 19.05.2026 , обновлено: 25.05.2026
  • Торговая площадь 146.7 м2 – Григория Речкалова, 1

    • 146.7 м2
    • 1/8 этаж
    • в доме
    140 000 ₽ / месяц
    Сдам в аренду коммерческое помещение на Широкой Речке. Новый дом, отдельный вход, 147 м². Длительная аренда. Локация: микрорайон Широкая Речка (Екатеринбург). Новый жилой комплекс, развитая инфрастуктура рядом. Помещение: Площадь: 147 м 2;Расположение: 1 этаж нового дома ; Два отдельных входа ; со стороны улицы и со стороны двора (удобно для разных форматов работы)— В данный момент в помещении работает частный детский сад — отделка и планировка уже адаптированы под лицензированные требования (санузлы, игровые, спальни, пищеблок)???? Условия аренды:— 145 000 руб./месяц (+коммунальные услуги)— Длительный договор аренды ???? Для кого подойдёт:· Продолжение работы детского сада (смена арендатора или нового владельца бизнеса)· Медицинский/оздоровительный центр· Образовательные курсы, языковая школа· Офис / представительство· Торговое или бытовое обслуживание (магазин у дома, салон красоты, студия)???? Почему этот вариант выгоден:· Новая инфраструктура района· Два входа — удобно для клиентов и отдельной служебной зоны· Помещение уже с хорошим ремонтом под бизнес· Долгосрок — стабильность для вашего проекта???? Звоните, пишите — покажу в удобное время, обсудим детали ID объекта в нашей базе: 15224
    размещено: 19.04.2026 , обновлено: 29.05.2026
  • Торговая площадь 99.9 м2 – Архитектора Белянкина, 34

    • 99.9 м2
    • 1/26 этаж
    • в доме
    149 850 ₽ / месяц
    Торгово-офисное помещение 99,9 кв.м, 1 этаж, в жилом комплексе «Меридиан». Дом новый, сдан в 2026г. Под: магазин, бьюти, барбершоп, офис, коворкинг, детская студия. Высота потолков 3,5 метра. Мощность 15 кВт. Вход отдельный со стороны улицы А.Белянкина. Без отделки. Мокрая точка. Место для вывески. Придомовая парковка, наземная парковка (4 этажа). Район плотной застройки. ЛОКАЦИЯ: остановка транспорта - Архитектора Белянкина, Школа №31.Соседи: Пятерочка, ПВЗ ОЗОН, аптека Эконом и др.ХАРАКТЕРИСТИКА ОБЪЕКТА:Общая площадь – 99,9 кв.м, 1 этажВозможность размещения рекламы на фасадеЭлектрическая мощность 15 кВтПотолки высотой 3,5 мМокрая точкаБез отделкиДОПОЛНИТЕЛЬНАЯ ИНФОРМАЦИЯ:Обеспечительный платеж в размере одного месячного платежаАрендные каникулы – по договоренностиЖдем получение ключей (дом сдан в марте 2026 года)Коммунальные платежи оплачиваются дополнительноБез дополнительной комиссии для арендатора ID объекта в нашей базе: 10027
    размещено: 20.04.2026 , обновлено: 23.05.2026
  • Торговая площадь 128.2 м2 – Петра Кожемяко, 18

    • 128.2 м2
    • 1/19 этаж
    • в доме
    130 000 ₽ / месяц
    Сдам перспективное коммерческое помещение 128 м2; в Академическом! Ваш бизнес — у дороги будущего!Друзья, всем большой привет! Анонсирую отличную возможность для вашего бизнеса! Сдается на долгосрочную аренду коммерческое помещение 128 квадратных метров в растущем и очень перспективном районе.Адрес: Екатеринбург, ул. Петра Кожемяко, дом 18 (район Академический / Широкая Речка, Верх-Исетский район).Главный козырь — ЛОКАЦИЯ и ПЕРСПЕКТИВА!Мы изначально приобретали это помещение с расчетом на будущее. И это будущее уже наступает! Рядом с нашим въездом будет построена дорога от крупного жилого комплекса «Леса». Это значит — постоянный поток людей, автомобилей и, что самое важное, ваших потенциальных клиентов! Место станет еще более проходным и интересным. Про само помещение:· Площадь: 128 м², общая.· Состояние: Чистовая отделка (White Box). Можно смело делать ремонт под свои задачи и бренд.· Коммуникации: Санузел отдельный. Уже есть система рекуперации (вытяжка, трубы). Остается только подвести электропроводку под нужную вам мощность.· Вход: Отдельный, в жилом доме. Полная автономность.Почему это выгодно вам?Это помещение — чистый лист для воплощения вашей бизнес-мечты. Откройте здесь свой салон, студию, офис, клинику, магазин или кафе. Сделайте пространство идеально под себя. Перспективная локация и отдельный вход — залог быстрой окупаемости и роста.Что делать дальше?Стоимость аренды обсуждается индивидуально — смотрим, договариваемся, находим комфортный для всех вариант.Если вы в активном поиске «своего» места для бизнеса — ловите момент!Звоните, пишите в личные сообщения! Встретимся, всё подробно покажу, расскажу и отвечу на вопросы.Давайте вместе построим здесь успешный бизнес! ID объекта в нашей базе: 15207
    размещено: 17.04.2026 , обновлено: 25.05.2026

Приоритет

Увеличивает просмотры в 3 раза

Ваше объявление показывается в списке выше обычных объявлений. подключить