На Метре реклама - только нормальная. Никакого шок-контента.
Помогайте независимому ресурсу, как он помогает вам. Удачи!
Новостройки Котт. посёлки Объявления Динамика цен и сделок

Продажа квартиры: Екатеринбург, пер. Выездной, 2 (Вокзальный)

  • опубликовано 16.11.2018 , обновлено 19.11.2025
  • 145
Рынок:вторичный
Срок сдачи: 1962 года
Количество комнат:2
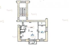
Общая площадь:43 м2
Жилая площадь:28 м2
Площадь кухни:5.5 м2
Этаж/Этажность дома:3 / 4
Материал стен:кирпич
Год постройки:1962
Балкон/лоджия:балкон
Состояние:хорошее
Цена:
2 470 000
Объявление снято с публикации
Торг:торг
Ипотека:возможна

ID объекта в нашей базе: 116
Предлагаем приобрести для комфортного проживания двухкомнатную квартиру, с косметическим современным ремонтом. Комнаты смежные. Окна пластиковые, балкон застеклён, сейф-дверь, санузел совмещённый. Окна во двор, солнечная сторона.
Квартира в 15 минутах до метро. Центр города в шаговой доступности. Вся инфраструктура. Отличный вариант.
Возможна любая форма оплаты: ипотека, материнский капитал. Документы готовы, один взрослый собственник.
Если Вам понравился наш вариант, а на покупку не хватает денежных средств, то мы согласуем Вам ипотеку.
Если у Вас обмен или своя недвижимость еще не продана, предложите нам, возможно сейчас на нее есть покупатель

Объявление снято с публикации

Ипотечный калькулятор

лет
%
Сумма кредита
2470000 ₽
Платеж
22 540 ₽

История предложений в этом доме

объявление снято с публикации в продаже комнат площадь этаж цена,
Екатеринбург, ул. Выездной, 2 (Вокзальный) - фото квартиры 7 мая 2025 90 дн. 1 30 2/4 2 900 000
Екатеринбург, ул. Выездной, 2 (Вокзальный) - фото квартиры 13 октября 2024 90 дн. 1 29.6 1/4 3 350 000
Екатеринбург, ул. Выездной, 2 (Вокзальный) - фото квартиры 4 февраля 2022 90 дн. 1 30 4/4 3 150 000
Екатеринбург, ул. Выездной, 2 (Вокзальный) - фото квартиры 2 июня 2021 90 дн. 2 42 3/4 2 650 000
Екатеринбург, ул. Выездной, 2 (Вокзальный) - фото квартиры 29 июня 2021 90 дн. 2 43 3/4 2 650 000
Екатеринбург, ул. Выездной, 2 - фото квартиры 2 октября 2020 90 дн. 1 31 4/4 2 180 000

Новостройки Екатеринбург, мкр-н. Вокзальный

Приоритет

Увеличивает просмотры в 3 раза

Ваше объявление показывается в списке выше обычных объявлений. подключить