На Метре реклама - только нормальная. Никакого шок-контента.
Помогайте независимому ресурсу, как он помогает вам. Удачи!
Новостройки Котт. посёлки Объявления Динамика цен и сделок

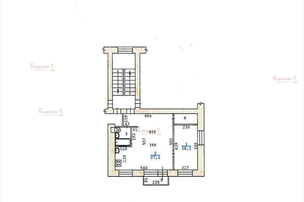
Продажа квартиры: Екатеринбург, ул. Выездной, 2 (Вокзальный)

  • опубликовано 17.12.2020 , обновлено 31.08.2025
  • 48
Кадастровый номер:66:41:0206017:1480
Рынок:вторичный
Срок сдачи: 1962 года
Количество комнат:2
Общая площадь:43 м2
Жилая площадь:32.2 м2
Площадь кухни:3.5 м2
Этаж/Этажность дома:3 / 4
Санузел:совмещенный
Год постройки:1962
Состояние:плохое
Цена:
2 650 000
Объявление снято с публикации
Коммунальные платежи:оплачиваются отдельно
Ипотека:возможна

Объект № 134781. Маленькая уютная квартира в кирпичном доме, расположенном в 1 остановке от метро. Перепланировка узаконена.
Двор благоустроен по современным стандартам.
По прописке закреплены школы 104 (гимназия), 155 (гимназия), 208 школа. Продовольственные магазины в шаговой доступности. ***Гарантийный сертификат «Защита собственности» по данному объекту в подарок***

Объявление снято с публикации

Ипотечный калькулятор

лет
%
Сумма кредита
2650000 ₽
Платеж
22 540 ₽

История предложений в этом доме

объявление снято с публикации в продаже комнат площадь этаж цена,
Екатеринбург, ул. Выездной, 2 (Вокзальный) - фото квартиры 7 мая 2025 90 дн. 1 30 2/4 2 900 000
Екатеринбург, ул. Выездной, 2 (Вокзальный) - фото квартиры 13 октября 2024 90 дн. 1 29.6 1/4 3 350 000
Екатеринбург, ул. Выездной, 2 (Вокзальный) - фото квартиры 4 февраля 2022 90 дн. 1 30 4/4 3 150 000
Екатеринбург, ул. Выездной, 2 (Вокзальный) - фото квартиры 2 июня 2021 90 дн. 2 42 3/4 2 650 000
Екатеринбург, ул. Выездной, 2 - фото квартиры 2 октября 2020 90 дн. 1 31 4/4 2 180 000
21 ноября 2018 92 дн. 2 43 3/4 2 470 000

Новостройки Екатеринбург, мкр-н. Вокзальный

Приоритет

Увеличивает просмотры в 3 раза

Ваше объявление показывается в списке выше обычных объявлений. подключить