На Метре реклама - только нормальная. Никакого шок-контента.
Помогайте независимому ресурсу, как он помогает вам. Удачи!
Новостройки Котт. посёлки Объявления Динамика цен и сделок

Продажа квартиры: Екатеринбург, ул. Машиностроителей, 73 (Уралмаш)

  • опубликовано 14.01.2019 , обновлено 3.10.2025
  • 793
Рынок:вторичный
Срок сдачи: 1963 года
Количество комнат:2
Из них изолированных:1
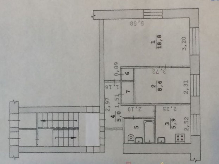
Общая площадь:42 м2
Жилая площадь:27 м2
Площадь кухни:5 м2
Этаж/Этажность дома:1 / 5
Материал стен:кирпич
Санузел:раздельный
Отделка:евроремонт
Год постройки:1963
Состояние:хорошее
Цена:
2 550 000
Объявление снято с публикации
Условия продажи:«чистая» продажа
Ипотека:возможна

Объект № 103402. Квартира расположена в центральной части Уралмаша. В квартире сделан хороший ремонт. Комнаты изолированные. Санузел совмещенный с хорошим ремонтом - ванна акриловая. На полу ламинат, натяжные потолки. Установлены счетчики на воду и двухтарифный эл.счетчик. Окна ПВХ. Остается кухонный гарнитур и шкаф - купе.
Во дворе достаточно парковочных мест, детская площадка. В шаговой доступности школа, детский сад, больница, супермаркеты, аптеки, остановка транспорта.
Квартира в ипотеке (Абсолют банк). Желающим купить объект оказываем помощь в согласовании ипотечного кредита. Если у Вас обмен или своя недвижимость еще не продана, предложим выгодное сотрудничество! ***Гарантийный сертификат «Защита собственности» по данному объекту в подарок***

Объявление снято с публикации

Ипотечный калькулятор

лет
%
Сумма кредита
2550000 ₽
Платеж
22 540 ₽

Актуальные предложения в этом доме

  • 2-к квартира, Машиностроителей, 73

    • 42 м2
    • 4/5 этаж
    • Состояние:
    3 990 000 ₽ (95000 ₽/м2)
    Объект № 195755. Продается евродвушка! Сделана перепланировка - узаконена. Большая кухня - гостиная и спальня. В шаговой доступности - остановки транспорта, магазины, детский сад, школы, аптеки и т.д. Торг обсуждается. ***Гарантийный сертификат «Защита собственности» по данному объекту в подарок***
    размещено: 21.11.2025 , обновлено: 22.11.2025
  • 2-к квартира, Машиностроителей, 73

    • 42 м2
    • 1/5 этаж
    • Состояние:
    3 799 000 ₽ (90500 ₽/м2)
    Объект № 194706. Продается 2-комнатная квартира с изолированными комнатами. Теплая, с плиткой в с/у и ламинатом на полу, стеклопакеты. Развита инфраструктура: школы, садики, остановки транспорта в шаговой доступности. Звоните! ***Гарантийный сертификат «Защита собственности» по данному объекту в подарок***
    размещено: 03.10.2025 , обновлено: 26.11.2025

История предложений в этом доме

объявление снято с публикации в продаже комнат площадь этаж цена,
Екатеринбург, ул. Машиностроителей, 73 (Уралмаш) - фото квартиры 5 февраля 2022 90 дн. 3 57.4 2/5 3 950 000
Екатеринбург, ул. Машиностроителей, 73 (Уралмаш) - фото квартиры 14 октября 2021 90 дн. 3 57.6 1/5 3 450 000
Екатеринбург, ул. Машиностроителей, 73 (Уралмаш) - фото квартиры 3 сентября 2021 90 дн. 3 57.6 1/5 3 450 000
Екатеринбург, ул. Машиностроителей, 73 (Уралмаш) - фото квартиры 19 августа 2021 90 дн. 3 57.6 1/5 3 450 000
Екатеринбург, ул. Машиностроителей, 73 (Уралмаш) - фото квартиры 9 апреля 2020 90 дн. 3 77 4/5 4 400 000

Похожие предложения о продаже квартир в Екатеринбурге (Уралмаш)

  • 2-к квартира, Кировградская, 51/а

    • 46 м2
    • 3/5 этаж
    • Состояние: удовлетворительное
    3 300 000 ₽ (71700 ₽/м2)
    Объект № 192451. Срочно продам двухкомнатную квартиру на Уралмаше. Квартира теплая, светлая, с изолированными комнатами на разные стороны. Комфортный 3 этаж. Рядом с домом расположены магазины, детский сад во дворе, в шаговой доступности школа, остановки общественного транспорта, парк Победы, лыжная база. ***Гарантийный сертификат «Защита собственности» по данному объекту в подарок***
    размещено: 16.06.2025 , обновлено: 26.11.2025

Новостройки Екатеринбург, мкр-н. Уралмаш

Приоритет

Увеличивает просмотры в 3 раза

Ваше объявление показывается в списке выше обычных объявлений. подключить