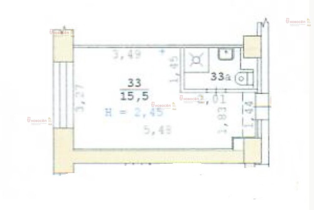
2-к квартира, Индустрии, 62
Мечтаете о светлой и уютной квартире в самом сердце Уралмаша? Она ждет вас! Продается прекрасная квартира на втором этаже теплого блочного дома. Идеальная планировка с раздельными комнатами и просторным коридором создаст комфорт для всей семьи.
Квартира готова к вашим идеям: частично сделан косметический ремонт, установлен натяжной потолок в кухне, плитка в ванной и санузле (стены до потолка), а потолки украшены панелями со светильниками. Установлены счетчики на все коммуникации (электричество, ГВС, ХВС). Современные окна ПВХ обеспечивают тишину и тепло. Балкон застеклен и обшит ПВХ. Надежная сейф-дверь для вашего спокойствия.
Приятным бонусом остается кухонный гарнитур.
Дом, в котором хочется жить: Чистый и ухоженный подъезд. Активные соседи, которые заботятся о доме и контролируют расходы на капремонт. Установлены пластиковые окна и новый домофон. Дом стал еще теплее благодаря обновлению температурных швов. Современный лифт. Красивый двор с детской площадкой. Всегда есть место для вашего автомобиля.
Рядом есть все для комфортной жизни:Школы №27, №81, № 178 с углубленным изучением отдельных предметов. Екатеринбургская школа № 9, реализующая адаптированные основные общеобразовательные программыДетские сады №165, №203, №536.В шаговой доступности: магазины, ТЦ «Калинка» и Кировский-Люкс, аптеки и пр. услуги быта.Отличная транспортная доступность: остановки автобусов, трамваев и маршрутных такси в шаговой доступности. Станция метро и ТРЦ «Омега» расположены в 12 минутах ходьбы. Поездка до центра города на автомобиле займет всего 15 минут. Удобный выезд на основные магистрали обеспечивает легкое перемещение в любом направлении.
Возможно приобретение в ипотеку.
ID объекта в нашей базе: 18690
размещено: 11.04.2026
, обновлено: 13.04.2026
