На Метре реклама - только нормальная. Никакого шок-контента.
Помогайте независимому ресурсу, как он помогает вам. Удачи!
Новостройки Котт. посёлки Объявления Динамика цен и сделок

Продажа квартиры: Екатеринбург, ул. Сахарова, 68 (Академический)

  • опубликовано 13.02.2019 , обновлено 20.05.2023
  • 190
Рынок:вторичный
Срок сдачи: 2016 года
Количество комнат:3
Из них изолированных:1
Общая площадь:79 м2
Жилая площадь:45 м2
Площадь кухни:12 м2
Этаж/Этажность дома:11 / 24
Материал стен:кирпич
Санузел:раздельный
Отделка:евроремонт
Год постройки:2016
Состояние:хорошее
Цена:
5 250 000
Объявление снято с публикации
Условия продажи:«чистая» продажа
Ипотека:возможна

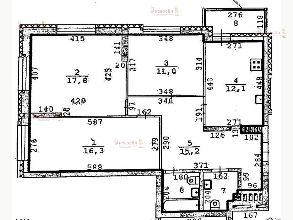
Объект № 104783. Продается трехкомнатная квартира в новом доме, район «Академический»! Дом 2016 года постройки, возведенный согласно современному высокому уровню инженерной технологии!
Спроектирована удобная подземная парковка. В ближайшее время начнется благоустройство набережной реки и строительство центрального парка.
Квартира светлая, окна выходят на две стороны. Выполнен качественный ремонт, установлены современные радиаторы с терморегулятором, счетчики на ГВС и ХВС, а также электроэнергию и отопление, что позволит оплачивать лишь используемые ресурсы.
Планировка функциональная: прихожая с гардеробной зоной, два сан. узла, гостиная 17,8 м.кв. правильной квадратной формой с двумя окнами, потолки 2,7 м.
В подарок остается кухонный гарнитур со встроенной техникой (варочная поверхность, духовой шкаф, посудомоечная машина), шкаф-купе.
Вы оцените также социальную инфраструктуру района, ведь абсолютно все в шаговой доступности: магазины, банки, салоны красоты, фитнес клубы, кафе. В непосредственной близости находятся детские сады, средние общеобразовательные школы. Также свои двери горожанам открыл крупный торговый центр с кинотеатром, фитнес клубом, бассейном. До остановочного комплекса несколько минут пешком. Транспорт: Автобус, маршрутное такси.
Район расположен в южной части Екатеринбурга, близ транспортных артерий, что делает передвижение быстрым и удобным. Наличие лесов и речки придает кварталу мощный «природный» контекст. В целях обеспечения безопасности жителей района создано специальное предприятие - ЗАО Гарант, дом, двор оборудованы видеокамерами. Во дворе располагаются детские площадки со спортивными игровыми конструкциями для детей разных возрастов. ***Гарантийный сертификат «Защита собственности» по данному объекту в подарок***

Объявление снято с публикации

Ипотечный калькулятор

лет
%
Сумма кредита
5250000 ₽
Платеж
22 540 ₽

История предложений в этом доме

объявление снято с публикации в продаже комнат площадь этаж цена,
Екатеринбург, ул. Сахарова, 68 (Академический) - фото квартиры 28 марта 2023 90 дн. 2 61 19/24 5 700 000
Екатеринбург, ул. Сахарова, 68 (Академический) - фото квартиры 16 апреля 2022 90 дн. 2 67 6/24 6 200 000
Екатеринбург, ул. Сахарова, 68 (Академический) - фото квартиры 10 ноября 2020 90 дн. 2 59.9 20/24 4 280 000
Екатеринбург, ул. Сахарова, 68 (Академический) - фото квартиры 21 августа 2019 90 дн. 2 61 3/24 4 649 887
7 июня 2019 90 дн. 1 40 14/24 3 120 000

Похожие предложения о продаже квартир в Екатеринбурге (Академический)

  • 3-к квартира, Краснолесья, 137

    • 80 м2
    • 10/16 этаж
    • Состояние: идеальное
    5 990 000 ₽ (74900 ₽/м2)
    Продается квартира с отличной планировкой просторная кухня-гостиная и две изолированные комнаты-спальни. Сделан качественный ремонт. Дом очень удачно расположен, находится внутри двора, вдали от шумных дорог, при этом очень удобный выезд на основные транспортные магистрали города. В шаговой доступности д/сады 43 и 52, школа 23, ТЦ Академический и другие социальные объекты, лесопарковая зона. Обмен на 2-х комн. плюс доплата. ID объекта в нашей базе: 2654
    размещено: 27.05.2020 , обновлено: 13.12.2025

Новостройки Екатеринбург, мкр-н. Академический

Приоритет

Увеличивает просмотры в 3 раза

Ваше объявление показывается в списке выше обычных объявлений. подключить