На Метре реклама - только нормальная. Никакого шок-контента.
Помогайте независимому ресурсу, как он помогает вам. Удачи!
Новостройки Котт. посёлки Объявления Динамика цен и сделок

Продажа квартиры: Екатеринбург, ул. Сахарова, 68 (Академический)

  • опубликовано 30.07.2020 , обновлено 30.03.2025
  • 134
Кадастровый номер:66:41:0000000:94608
Рынок:вторичный
Срок сдачи: 2016 года
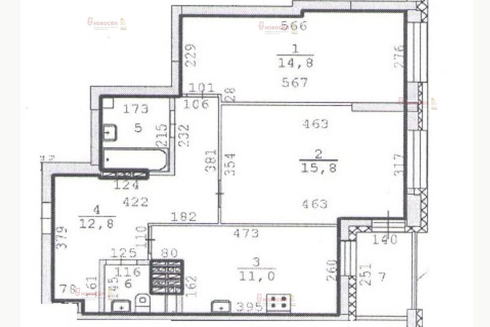
Количество комнат:2
Общая площадь:59.9 м2
Жилая площадь:30.6 м2
Площадь кухни:11 м2
Этаж/Этажность дома:20 / 24
Санузел:раздельный
Отделка:евроремонт
Год постройки:2016
Состояние:хорошее
Цена:
4 280 000
Объявление снято с публикации
Коммунальные платежи:оплачиваются отдельно
Ипотека:возможна

Объект № 127813. Двухкомнатная квартира с хорошей планировкой. Комнаты изолированные, одна из комнат с выходом на застеклённую лоджию. Замечательный вид на город открывается с высоты 20 этажа. Очень светлая и солнечная. Просторная кухня, установлен кухонный гарнитур. Окна квартиры выходят во двор, квартира в хорошем состоянии и готова к проживанию без дополнительных вложений. Функциональный коридор с спроектированной нишей. Установлен шкаф-купе, остаётся при продаже. Два санузла.
Отличное расположение дома, всё рядом: школа, детский садик, магазины, транспортная остановка. ***Гарантийный сертификат «Защита собственности» по данному объекту в подарок***

Объявление снято с публикации

Ипотечный калькулятор

лет
%
Сумма кредита
4280000 ₽
Платеж
22 540 ₽

История предложений в этом доме

объявление снято с публикации в продаже комнат площадь этаж цена,
Екатеринбург, ул. Сахарова, 68 (Академический) - фото квартиры 28 марта 2023 90 дн. 2 61 19/24 5 700 000
Екатеринбург, ул. Сахарова, 68 (Академический) - фото квартиры 16 апреля 2022 90 дн. 2 67 6/24 6 200 000
Екатеринбург, ул. Сахарова, 68 (Академический) - фото квартиры 21 августа 2019 90 дн. 2 61 3/24 4 649 887
7 июня 2019 90 дн. 1 40 14/24 3 120 000
Екатеринбург, ул. Сахарова, 68 (Академический) - фото квартиры 14 марта 2020 90 дн. 3 79 11/24 5 250 000

Новостройки Екатеринбург, мкр-н. Академический

Приоритет

Увеличивает просмотры в 3 раза

Ваше объявление показывается в списке выше обычных объявлений. подключить