На Метре реклама - только нормальная. Никакого шок-контента.
Помогайте независимому ресурсу, как он помогает вам. Удачи!
Новостройки Котт. посёлки Объявления Динамика цен и сделок

Продажа квартиры: Екатеринбург, ул. Мостовая, 53 (УНЦ)

  • опубликовано 5.03.2019 , обновлено 17.12.2025
  • 343
Рынок:вторичный
Срок сдачи: 2019 года
Количество комнат:1
Из них изолированных:1
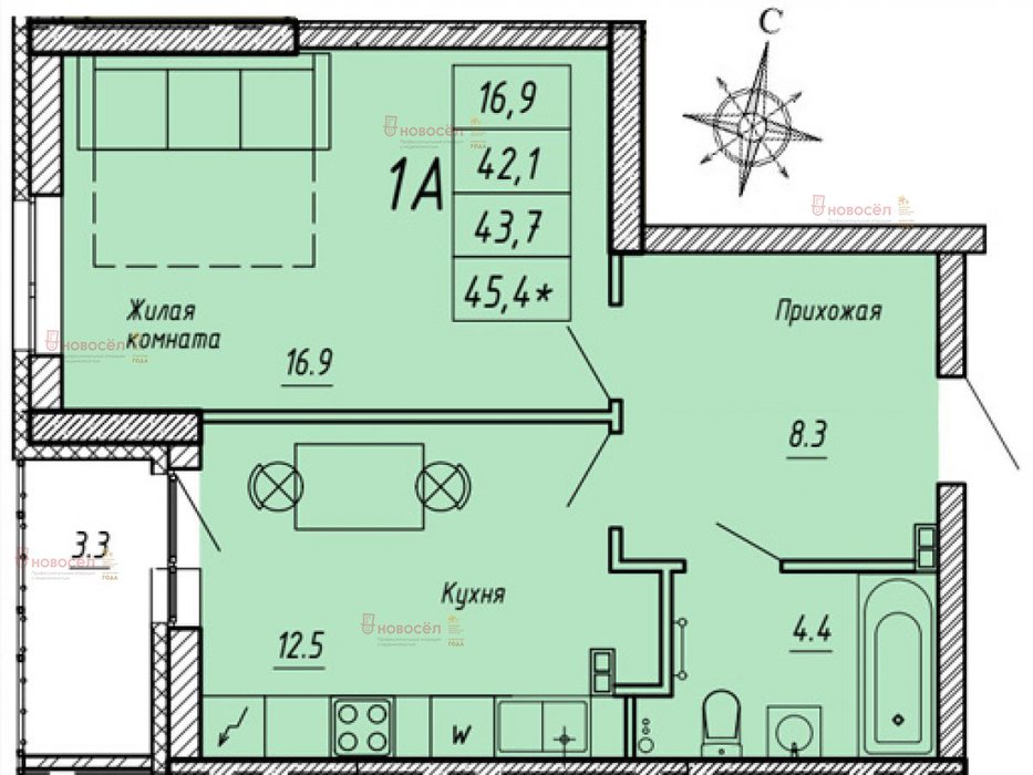
Общая площадь:45 м2
Жилая площадь:17 м2
Площадь кухни:12 м2
Этаж/Этажность дома:22 / 25
Санузел:совмещенный
Год постройки:2019
Цена:
2 650 000
Объявление снято с публикации
Условия продажи:«чистая» продажа
Ипотека:возможна

Объект № 105823. Срочно! Продам по уступке однокомнатную квартиру 45 кв.м. в ЖК На Мостовой (ул. Мостовая-Предельная), у застройщика таких квартир уже нет.
Отделка под чистовую, сейф дверь, счетчики на тепло, воду, электричество установлены. Своя газовая котельная позволит значительно сэкономить на коммунальных платежах.
Собственный закрытый двор, просторная территория с детской и спортивной площадками, зеленые благоустроенные зоны, цветочные клумбы, а также прогулочные зоны отдыха и велодорожки.
На первых этажах продуктовые магазины, аптека, офисы, коммерческий мини садик и спортивный зал для занятия различными видами спорта.
Недалеко от ЖК находится остановка общественного транспорта. Дом сдается в июне 2019 г. Собственник один. ***Гарантийный сертификат «Защита собственности» по данному объекту в подарок***

Объявление снято с публикации

Ипотечный калькулятор

лет
%
Сумма кредита
2650000 ₽
Платеж
22 540 ₽

Актуальные предложения в этом доме

  • 2-к квартира, Мостовая, 53

    • 44 м2
    • 5/5 этаж
    • Состояние:
    2 999 997 ₽ (68200 ₽/м2)
    ПРОДАЕТСЯ НЕ КВАРТИРА, А ВОЗМОЖНОСТЬ! АДРЕС : ул. МОСТОВАЯ 53Две изолированные комнаты в ЛУЧШЕМ районе — ваша мечта начинается с чистого листа! Смотрите правде в глаза: ДА, ей нужна ваша забота! Но это не минус,а главный БОНУС! Вы не переплачиваете за старый чужой ремонт, а получаете идеальный «холст» для создания своего идеального гнёздышка с нуля! Почему это КРУТОЙ шанс? Давайте по фактам: ПЛАНИРОВКА — МЕЧТА:· ДВЕ ИЗОЛИРОВАННЫЕ КОМНАТЫ — это приватность и комфорт для семьи, детей, гостей или домашнего офиса! + · КУХНЯ 7 КВ.М. — уютное пространство для кулинарных подвигов и душевных посиделок! · НАСТОЯЩИЙ БАЛКОН — ваша будущая зона для завтраков на свежем воздухе или мини-сада! ЛОКАЦИЯ:Забудьте про«где тут что?» — ВСЁ РЯДОМ!:· Для семьи: Школа и детский сад — рукой подать!· Для отдыха: Ухоженный парк для прогулок · Для шопинга и спорта: Торговый центр и фитнес-клуб — всё в шаговой доступности!· Для mobility: Остановка у дома — уехать в любой конец города проще простого! ТЕХНИЧЕСКИЕ ПЛЮСЫ:· В квартире есть ГАЗ — это реальная экономия на коммуналке! · Все коммуникации на месте — можно смело планировать ремонт!Кому подойдёт эта жемчужина? · Молодой семье, которая хочет обустроить всё «под себя» без переплаты.· Творческим личностям, которые видят в «убитом» состоянии безграничный потенциал! · Практичным инвесторам, готовым вложиться в ремонт и получить ликвидный актив в топовой локации! Не смотрите на обои — смотрите на ВОЗМОЖНОСТЬ! Цена — адекватная, локация — бесценная, потенциал — огромный!Готовы превратить эту «заготовку» в шедевр? Пишите, звоните, смотрим! ID объекта в нашей базе: 12879
    размещено: 10.12.2025 , обновлено: 24.01.2026

История предложений в этом доме

объявление снято с публикации в продаже комнат площадь этаж цена,
Екатеринбург, ул. Мостовая, 53 (УНЦ) - фото квартиры 27 октября 2023 90 дн. 1 29 4/5 3 650 000
Екатеринбург, ул. Мостовая, 53 (УНЦ) - фото квартиры 21 февраля 2023 90 дн. 2 43.6 3/5 4 200 000
Екатеринбург, ул. Мостовая, 53 (УНЦ) - фото квартиры 31 мая 2023 90 дн. 2 44 3/5 3 500 000
Екатеринбург, ул. Мостовая, 53 (УНЦ) - фото квартиры 5 августа 2022 90 дн. 2 44 3/5 3 650 000
Екатеринбург, ул. Мостовая, 53 (УНЦ) - фото квартиры 22 августа 2023 90 дн. 2 44 5/5 3 290 000
Екатеринбург, ул. Мостовая, 53 (УНЦ) - фото квартиры 10 февраля 2022 90 дн. 3 61 1/5 4 200 000
Екатеринбург, ул. Мостовая, 53 (УНЦ) - фото квартиры 3 июня 2021 90 дн. 2 44 3/5 2 380 000
Екатеринбург, ул. Мостовая, 53 (УНЦ) - фото квартиры 29 января 2021 90 дн. 1 33 3/5 2 350 000
Екатеринбург, ул. Мостовая, 53 (УНЦ) - фото квартиры 12 декабря 2020 90 дн. 2 43.6 3/5 2 600 000
Екатеринбург, ул. Мостовая, 53 (УНЦ) - фото квартиры 12 декабря 2020 90 дн. 2 43 4/5 3 100 000
Екатеринбург, ул. Мостовая, 53 (УНЦ) - фото квартиры 21 ноября 2020 90 дн. 2 45 1/5 3 100 000
Екатеринбург, ул. Мостовая, 53 (УНЦ) - фото квартиры 24 ноября 2020 90 дн. 2 42 2/5 3 000 000
Екатеринбург, ул. Мостовая, 53 (УНЦ) - фото квартиры 3 ноября 2020 90 дн. 2 43 4/5 2 400 000
Екатеринбург, ул. Мостовая, 53 (УНЦ) - фото квартиры 9 февраля 2021 90 дн. 2 44 5/5 2 690 000
Екатеринбург, ул. Мостовая, 53 (УНЦ) - фото квартиры 2 октября 2020 90 дн. 2 43 4/5 2 750 000
Екатеринбург, ул. Мостовая, 53 (УНЦ) - фото квартиры 28 мая 2020 90 дн. 2 43 2/5 3 060 000
Екатеринбург, ул. Мостовая, 53 (УНЦ) - фото квартиры 2 февраля 2022 90 дн. 2 43 5/5 2 950 000
Екатеринбург, ул. Мостовая, 53 (УНЦ) - фото квартиры 12 февраля 2020 90 дн. 1 29 4/5 2 000 000
Екатеринбург, ул. Мостовая, 53 (УНЦ) - фото квартиры 2 декабря 2019 90 дн. 2 43.6 4/5 2 590 000
Екатеринбург, ул. Мостовая, 53 (УНЦ) - фото квартиры 4 декабря 2019 90 дн. 2 44 2/5 2 750 000
Екатеринбург, ул. Мостовая, 53 (УНЦ) - фото квартиры 4 июня 2020 90 дн. 2 43.6 5/5 2 600 000
27 декабря 2018 90 дн. 3 53 1/5 2 690 000
23 июня 2015 61 дн. 3 53 3/5 3 470 000
13 мая 2014 61 дн. 2 42.7 5/5 2 700 000
Екатеринбург, ул. Мостовая, 53 (УНЦ) - фото квартиры 15 мая 2020 90 дн. 1 28.5 3/5 2 120 000

Новостройки Екатеринбург, мкр-н. УНЦ

Приоритет

Увеличивает просмотры в 3 раза

Ваше объявление показывается в списке выше обычных объявлений. подключить