Продажа квартиры: Екатеринбург, ул. Щербакова, 7 (Уктус)
- опубликовано 15.08.2019 , обновлено 16.03.2026
- 469
| Рынок: | вторичный |
| Количество комнат: | 1 |
| Из них изолированных: | 1 |
| Планировка: | «хрущевка» |
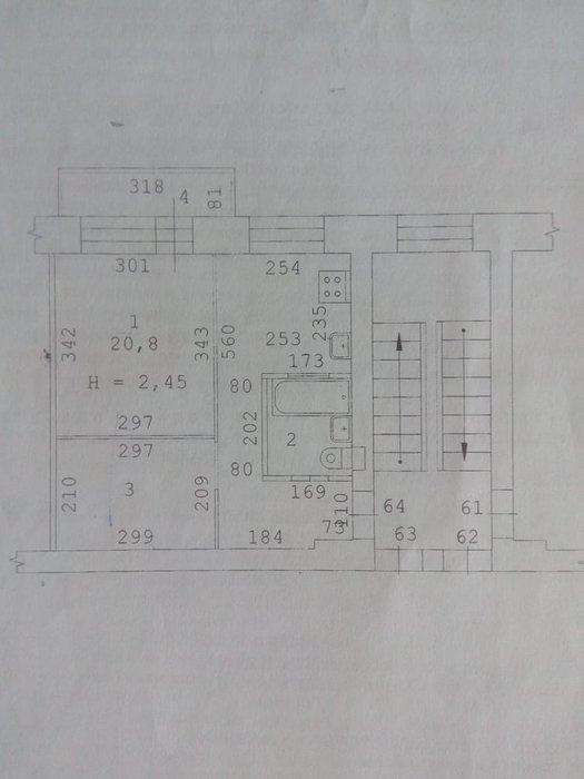
| Общая площадь: | 30 м2 |
| Жилая площадь: | 20 м2 |
| Площадь кухни: | 4 м2 |
| Этаж/Этажность дома: | 2 / 5 |
| Материал стен: | кирпич |
| Санузел: | совмещенный |
| Отделка: | ремонт |
| Год постройки: | 1965 |
| Стеклопакеты: | пластик |
| Перепланировка: | нет |
| Балкон/лоджия: | балкон |
| Состояние: | хорошее |
| Цена: | 2 230 000 ₽
|
Объявление снято с публикации | |
| Торг: | да |
| Условия продажи: | «чистая» продажа |
| Ипотека: | возможна |
Продажа 1-комнатной квартиры, ул. Щербакова д. 7
Квартира находится в районе Уктус. Удачное месторасположение в 5 минутах от метро Ботаническая, через дорогу ТРЦ «Глобус», развитая инфраструктура района, шаговая доступность школ, детских садов, высших учебных заведений, детская площадка во дворе, транспортная развязка, все это и многое другое создает уникальную возможность для комфортного проживания в городе. Жилая комната поделена на две комнаты, перепланировка узаконена.
Сделан полный косметический ремонт с заменой окон, дверей, сантехники, проводки, потолков, стояков и труб, благодаря чему можно заезжать с вещами и жить. Начиная от планировки, заканчивая самой атмосферой – все пропитано домашним очагом.
- Материал – Кирпич.
- Площадь – 30,1/20.1/4.
- Этаж - 2/5.
Сети и инженерные системы.
- Оптико-волоконные линии связи и телевидения HD коммерческих провайдеров.
- Двух тарифные счетчики.
- Точка доступа WI-FI.
- Телефония.
Дополнительная информация:
- Удобный подъезд и транспортное сообщение.
- Бесплатная парковка.
- Чистая продажа.
