На Метре реклама - только нормальная. Никакого шок-контента.
Помогайте независимому ресурсу, как он помогает вам. Удачи!
Новостройки Котт. посёлки Объявления Динамика цен и сделок

Продажа квартиры: Екатеринбург, ул. Латвийская, 48/1 (Компрессорный)

  • опубликовано 25.10.2019 , обновлено 10.09.2025
  • 178
Рынок:вторичный
Срок сдачи: 2017 года
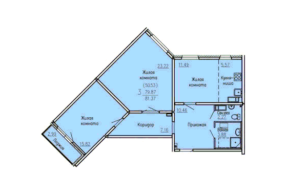
Количество комнат:3
Общая площадь:81.3 м2
Жилая площадь:50.53 м2
Площадь кухни:5.57 м2
Этаж/Этажность дома:22 / 22
Санузел:раздельный
Год постройки:2017
Цена:
4 878 000
Объявление снято с публикации
Условия продажи:«чистая» продажа
Ипотека:возможна

Варианты покупки:
• ОБМЕН с бронированием (продажа вашей БЕСПЛАТНО!);
• Ипотека без первоначального взноса;
• Ипотека от 4,9%, ипотечные каникулы на время стройки (минимальный платеж до ввода).
• Материнский капитал, рассрочка.
Подробности по телефону – звоните! Покажу в удобное для вас время. Оценка вашей квартиры - бесплатно, ипотека — бесплатно. Звоните!

Дом СДАН! Прекрасная возможность встретить Новый год в новой квартире!
Жилой комплекс расположен в динамично развивающемся районе Екатеринбурга с развитой инфраструктурой и чистым воздухом.
Дом оснащен автономной газовой котельной, которая установлена под крышей, что позволяет бесперебойно обеспечивать жильцов горячим водоснабжением, независимо от сезонных ремонтно-восстановительных работ, и при этом значительно экономить на коммунальных платежах.
Проверенное соотношение цена-качество!
КВАРТИРА – тип ЕВРО функционал 3х комнатной! Отлично подойдет для семейной пары с детьми.
• Евро-планировка – большая кухня-гостиная, как общая территория для общения и досуга;
• Отделка чистовая, установлено сантехническое и бытовое оборудование – заезжай без хлопот и дополнительных вложений!
Ставки на ипотеку снижаются, цены пока на уровне летних – самое время покупать! Звоните! Найду лучшее решение для вас!

ДОПОЛНИТЕЛЬНАЯ ИНФОРМАЦИЯ:Понравился наш вариант, а на покупку не хватает средств? Мы согласуем ипотеку дешевле, чем в банке. За счет партнерской программы, более 10 банков снижают ставку для наших клиентов. У Вас обмен и своя недвижимость еще не продана? Предложите её, у нас более 100 агентов и чаще всего, покупатель уже есть.Никакой комиссии при покупке данного объекта недвижимости!Звоните и приходите на просмотр!!!

#объект в нашей базе №8343536#

Объявление снято с публикации

Ипотечный калькулятор

лет
%
Сумма кредита
4878000 ₽
Платеж
22 540 ₽

Актуальные предложения в ЖК «Хрустальные ключи»

  • 2-к квартира, Латвийская, 56

    • 48 м2
    • 11/18 этаж
    • Состояние:
    5 000 000 ₽ (104200 ₽/м2)
    Объект № 195315. Продается 2-комнатная квартира в ЖК Хрустальные ключи, застройщик ЛСР. В квартире две изолированные комнаты на разные стороны. Большая кухня 12 кв.м. оборудованная гарнитуром. В просторной прихожей остается встроенный шкаф- купе. В доме собственная котельная. Установлены счетчика на воду и отопление. Сквозной подъезд с удобным входом с разных сторон дома. Возле дома детские площадки, наземные парковки, в шаговой доступности школа, детский сад. ***Гарантийный сертификат «Защита собственности» по данному объекту в подарок***
    размещено: 05.11.2025 , обновлено: 2.12.2025
  • 2-к квартира, Латвийская, 56/3

    • 51.6 м2
    • 12/25 этаж
    • Состояние:
    5 810 000 ₽ (112600 ₽/м2)
    Продаётся прекрасная 2-х комнатная квартира, в ЖК «Хрустальные Ключи», в микрорайоне Компрессорный Октябрьского района.Квартира в отличном состоянии, вложений не требует, очень уютная, светлая, теплая, общая площадь 51,6 кв.м., просторная кухня-гостиная с выходом на лоджию, с панорамным остеклением, две комнаты изолированные, площадью 11,41 кв.м. и 16,68 кв.м., окна на разные стороны, санузел раздельный в кафеле, в квартире натяжные потолки, на полу ламинат 33 класса, окна пластиковые, сейф-дверь. Покупателям остается в подарок кухонный гарнитур.Коммунальные платежи не большие, т.к. в жилом комплексе своя газовая котельная.Двор ухоженный, просторный с разнообразными детскими площадками для разного возраста, есть спортивные площадки.Дом «комфорт» класса, 2020 года, спецпроект, два лифта (грузовой и пассажирский), видеонаблюдение в подъезде и во дворе.Вся инфраструктура в шаговой доступности: детские садики, школы, магазины, аптеки, поликлиника, спортивный комплекс «Факел», остановка транспорта, есть две станции железнодорожных «Компрессорный завод» и «Исток», удобная автомобильная транспортная развязка, выезд на Сибирский тракт и ЕКАД, на машине доехать до центра можно за 20 минут. Парковка автомобилей наземная, большая, есть две платных автостоянки.Обременений нет. Один взрослый собственник. Материнский капитал не использовался. Ипотека возможна. Обмен найден, готовы быстро выйти на сделку. ID объекта в нашей базе: 3624
    размещено: 04.11.2025 , обновлено: 1.12.2025
  • 1-к квартира, Латвийская, 54

    • 33.5 м2
    • 7/13 этаж
    • Состояние:
    4 150 000 ₽ (123900 ₽/м2)
    Продаётся светлая и уютная 1-комнатная квартира в районе Компрессорный. Идеальное расположение! Всё под рукой: школы, сады, магазины и остановка транспорта в 50 метрах от подъезда. Дом с автономной котельной (всегда тепло и низкие коммунальные платежи). Во дворе — просторная гостевая парковка. Приятный бонус для нового хозяина: в квартире остаётся диван и кухонный гарнитур. Технику можно обсудить. Чистая продажа: Один собственник (взрослый). Никто не прописан, нет обременений. Все документы в полном порядке, готовы к быстрой продаже. Помогу с одобрением ипотеки. ID объекта в нашей базе: 11888
    размещено: 04.11.2025 , обновлено: 27.11.2025
  • 1-к квартира, Латвийская, 58

    • 22.5 м2
    • 1/25 этаж
    • Состояние:
    2 800 000 ₽ (124400 ₽/м2)
    Небольшая квартира-студия с качественным ремонтом от застройщика и с приятной ценой расположена в одном из домов жилого комплекса "Хрустальные ключи". Отличный вариант в качестве первого жилья. Одним из плюсов данного комплекса является наличие собственной газовой котельной, а это - сниженные коммунальные платежи, отсутствие отключения горячего водоснабжения. Социальная инфраструктура района хорошо развита, достаточное количество предприятий торговли, медицинские, спортивные, культурно-развлекательные объекты, детские сады и школы. Удаленность от центра города около 13 км, с транспортной доступностью все нормально, конечная остановка автобусов в шаговой доступности, при наличии личного транспорта - быстрый выезд на Кольцовский тракт и ЕКАД. Документы для продажи готовы. Возможна покупка объекта с привлечением ипотечных средств. Обсудим ваши предложения о цене. ID объекта в нашей базе: 3853
    размещено: 21.10.2025 , обновлено: 2.12.2025
  • 1-к квартира, Латвийская, 58

    • 21.5 м2
    • 13/25 этаж
    • Состояние:
    3 000 000 ₽ (139500 ₽/м2)
    Приглашаем вас на просмотр этой уютной студии! Записывайтесь на удобное для вас время! Дом расположен в районе с развитой инфраструктурой. В шаговой доступности находятся детские сады и магазины, что очень удобно для семей с детьми. ID объекта в нашей базе: 9045
    размещено: 20.10.2025 , обновлено: 2.12.2025

    3-к квартира, Латвийская, 54

    • 69.4 м2
    • 14/18 этаж
    • Состояние:
    7 700 000 ₽ (111000 ₽/м2)
    Данная квартира представляет собой идеальный вариант для тех, кто ищет уютное и комфортное жилье в живописном месте. Она полностью меблирована и оснащена всем необходимым для комфортного проживания. Три раздельные спальни позволяют каждому члену семьи иметь свое личное пространство, что особенно важно для семей с разнополыми детьми. Также, в шаговой доступности находятся все необходимые объекты инфраструктуры, такие как магазины, спортивный комплекс, школы, детские сады и поликлиника, парк для прогулок, церковь и тп.Кроме того, до центра города можно добраться на общественном транспорте (35-40 мин) или электричке (15-20), что делает данную квартиру еще более привлекательной. В целом, это отличный выбор для тех, кто хочет жить в комфортабельном и уютном жилье в экологически чистом районе.Приходите на просмотр, будем рады! ID объекта в нашей базе: 17973
    размещено: 06.10.2025 , обновлено: 22.11.2025

    Студия, Латвийская, 56

    2 850 000 ₽ (125600 ₽/м2)
    Объект № 194550. Просторная квартира-студия в ЖК «Хрустальные ключи». Студия с чистовой отделкой. Своя котельная, низкие коммунальные платежи. Современное благоустройство жилого комплекса. Общедоступная парковка во дворе, множество парковочных мест. В пешей доступности остановка общественного транспорта и станция электропоездов. Удобный выезд на основные тракты города. Детские сады, ясли, образовательные учреждения, магазины и многое другое. Звоните, чтобы узнать подробности! ***Гарантийный сертификат «Защита собственности» по данному объекту в подарок***
    размещено: 26.09.2025 , обновлено: 1.12.2025

    2-к квартира, Латвийская, 58/2

    • 53.5 м2
    • 10/25 этаж
    • Состояние:
    5 500 000 ₽ (102800 ₽/м2)
    Продам отличную двухкомнатную квартиру в ЖК "Хрустальные ключи"Функциональная планировка: просторная кухня-гостиная и две отдельные комнаты.На этаже рядом с квартирой есть кладовка в собственности !Дом оборудован двумя пассажирскими и одним грузовым лифтом. В доме собственная котельная (минимальные коммунальные расходы, нет перебоев с горячей водой и отоплением). Чистый воздух. Просторная придомовая территория с большими детскими и спортивными площадками. В шаговой доступности различные магазины, ПВЗ, школа, детские сады, ФОК «Факел», аптеки, больница, детская поликлиника, большой парк.Фото соответствует действительностиЧистая продажаБыстрый выход на сделку ! ID объекта в нашей базе: 4554
    размещено: 21.08.2025 , обновлено: 2.12.2025

    1-к квартира, Латвийская, 58

    • 25.3 м2
    • 15/25 этаж
    • Состояние:
    2 949 000 ₽ (116600 ₽/м2)
    Продаётся однокомнатная квартира-студия с просторной планировкой, и видовыми характеристиками из окон.О квартире:Просторная комната с кухонной зоной, зонирование можно предусмотреть по своему вкусу.Прихожая, позволяющая удобно хранить мебель и вещи, в которую можно вместить большой шкаф без ущерба к проходному пространству.Санузел оснащен душевой кабиной и нишей для хранения различной утвари.Квартира полностью готова к проживанию и воплощению ваших дизайнерских идей, обои под покраску, ламинат и двери установлены в нейтральном гармонирующем оттенке. Всё находится в отличном состоянии, мебель для новых покупателей частично оставляем. О дворе и инфраструктуре:Во дворе оборудованы разнообразные игровые зоны для детей всех возрастов, которые ограничены доступом автомобилей - безопасность детей гарантирована, беговые и велодорожки, прогулочные тротуары и всё для отдыха предоставлено для жителей ЖК.Развитая инфраструктура: в шаговой доступности остановки общественного транспорта, сетевые магазины, аптеки, парикмахерская и множество других видов услуг.Идеальный вариант для тех, кто ищет своё уютное гнёздышко или первое собственное жильё! Инвестиционно локация тоже привлекательна, всегда есть желающие на аренду. Звоните, чтобы узнать подробности и договориться о просмотре! Ваша новая квартира ждет вас! ID объекта в нашей базе: 17795
    размещено: 14.08.2025 , обновлено: 29.11.2025

    Студия, Латвийская, 58

    • 23 м2
    • 17/25 этаж
    • Состояние:
    2 750 000 ₽ (119600 ₽/м2)
    Продам очень светлую, тёплую квартиру студию! Состояние квартиры идеальное от застройщика, как купили никто не жил, энергия чистая. Шикарные детские площадки, велодорожки, не проездные. Рядом с домом расположена автобусная остановка, детские сады и школа. Идеальный вариант для начинающих в приобретение своей недвижимости. ID объекта в нашей базе: 3955
    размещено: 07.04.2025 , обновлено: 1.12.2025

    3-к квартира, Латвийская, 56

    • 59.3 м2
    • 11/16 этаж
    • Состояние:
    6 900 000 ₽ (116400 ₽/м2)
    Предлагается к продаже квартира отличной планировки. Просторный коридор, раздельный санузел, просторная кухня, где можно расположить гостей и три жилые комнаты. Все жилые комнаты примерно квадратной формы среднего размера, что очень удобно, нет сильно вытянутых комнат! Светлая, просторная трёхкомнатная квартира с окнами на две стороны. Из окон вид на двор с обеих сторон на современные детские площадки.В квартире ремонт от застройщика, один владелец. В доме СОБСТВЕННАЯ КОТЕЛЬНАЯ! Поэтому всегда есть горячая вода и отопление, которое можно настроить под себя ручкой регулировки на батареях. Квартира тёплая!Так же за счет этого оплата коммунальных услуг намного дешевле. Летом 3500₽, зимой 4500₽.В доме два лифта(грузовой и пассажирский).Квартира расположена с торца дома, соседи по этажу есть только со стороны одной комнаты. С другой стороны, квартира соседствует с колясочной. Поэтому в квартире всегда тихо и спокойно. Соседи тоже спокойные.Квартира находится на одиннадцатом этаже и помимо детской площадки из окон открывается прекрасный вид вдаль, то есть окна не выходят в окна рядом стоящего дома. Можно насладиться видом по вечерам.Квартира расположена в спальном районе, вблизи лесопарков, поэтому всегда свежий и чистый воздух. Вблизи находятся продуктовые, хозяйственные и другие магазины. В пешей доступности расположены детские сады и школы. Так же пешком можно дойти до спортивного сооружения ФОК "Факел". Это ледовая арена, где есть секции по фигурному катанию на коньках и хоккею. Рядом с катком расположено большое футбольное поле с беговыми прорезиненными дорожками, где так же есть секции для детей по футболу, гимнастике, киокусинкай и другие. Тренажерный зал и всяческие секции для взрослых. Район спальный и маленький, все друг друга знают, отношения соседей приятные, дети спокойно гуляют. Активисты дома на все праздники приглашают аниматоров, проводятся шоу программы для детей, не обязательно выезжать в центр города за развлечениями.В квартире остаётся в подарок полностью кухня со встроенной техникой: электрическая плита, посудомойка, вытяжка, духовой шкаф. Остальное возможно по согласованию ID объекта в нашей базе: 2694
    размещено: 28.07.2023 , обновлено: 6.11.2025

    2-к квартира, Латвийская, 56/2, ЖК "Хрустальные ключи"

    3 551 000 ₽ (69100 ₽/м2)
    Продаётся отличная 2 х комнатная квартира в ЖК Хрустальные ключи. Располагается в Компрессорном районе Екатеринбурге. В доме установлены скоростные лифты, имеются пандусы для колясок. На крыше своя газовая котельная что уменьшает коммунальные платежи. Большая кухня - гостиная как дополнительная и две спальни. Что не маловажно раздельный санузел. Квартира с полным ремонтом. Остаётся установить ванну или душевую кабину, по вашему выбору. Заезжай и живи! Возможна ипотека! Помогу одобрить ипотеку или продать вашу недвижимость. Дом сдан! Звоните, записывайтесь на просмотр!
    размещено: 03.10.2021 , обновлено: 29.11.2025

История предложений в этом доме

объявление снято с публикации в продаже комнат площадь этаж цена,
Екатеринбург, ул. Латвийская, 56 (Компрессорный) - фото квартиры 18 ноября 2025 90 дн. 0 22.4 8/18 3 090 000
Екатеринбург, ул. Латвийская, 58/2 (Компрессорный) - фото квартиры 16 ноября 2025 90 дн. 1 35.9 9/25 4 100 000
Екатеринбург, ул. Латвийская, 58/2 (Компрессорный) - фото квартиры 23 сентября 2025 90 дн. 1 21.9 22/24 2 940 000
Екатеринбург, ул. Латвийская, 48/1 (Компрессорный) - фото квартиры 8 ноября 2025 90 дн. 2 61 8/19 7 100 000
Екатеринбург, ул. Латвийская, 56/3 (Компрессорный) - фото квартиры 22 сентября 2025 90 дн. 2 30.8 22/25 2 900 000
Екатеринбург, ул. Латвийская, 48/2 (Компрессорный) - фото квартиры 24 сентября 2025 90 дн. 1 40.3 20/22 4 800 000
Екатеринбург, ул. Латвийская, 56/3 (Компрессорный) - фото квартиры 25 июля 2025 90 дн. 1 34.2 10/18 3 500 000
Екатеринбург, ул. Латвийская, 56 (Компрессорный) - фото квартиры 30 августа 2025 90 дн. 1 31.6 2/12 4 000 000
Екатеринбург, ул. Латвийская, 58 (Компрессорный) - фото квартиры 15 октября 2025 90 дн. 1 32.1 3/25 3 599 000
Екатеринбург, ул. Латвийская, 48/2 (Уктус) - фото квартиры 22 июля 2025 90 дн. 1 40.3 20/22 4 800 000
Екатеринбург, ул. Латвийская, 58/2 (Компрессорный) - фото квартиры 10 июня 2025 90 дн. 2 36.7 23/25 3 870 000
Екатеринбург, ул. Латвийская, 56 (Компрессорный) - фото квартиры 1 июня 2025 90 дн. 3 59.1 18/18 5 890 000
Екатеринбург, ул. Латвийская, 56 корпус 3 (Компрессорный) - фото квартиры 1 мая 2025 90 дн. 1 34.2 17/25 3 750 000
Екатеринбург, ул. Латвийская, 56 (Компрессорный) - фото квартиры 7 мая 2025 90 дн. 1 32.3 5/18 3 900 000
Екатеринбург, ул. Латвийская, 58 (Компрессорный) - фото квартиры 1 июня 2025 90 дн. 2 32.1 21/25 4 500 000
Екатеринбург, ул. Латвийская, 56 (Компрессорный) - фото квартиры 29 апреля 2025 90 дн. 3 59.1 18/18 5 990 000
Екатеринбург, ул. Латвийская, 56 (Компрессорный) - фото квартиры 12 апреля 2025 90 дн. 3 59.1 18/18 6 100 000
Екатеринбург, ул. Латвийская, 56/3 (Компрессорный) - фото квартиры 24 апреля 2025 90 дн. 2 35.2 20/25 3 890 000
Екатеринбург, ул. Латвийская, 56/3 (Компрессорный) - фото квартиры 22 июля 2025 90 дн. 2 51.4 1/18 4 650 000
Екатеринбург, ул. Латвийская, 56/3 (Компрессорный) - фото квартиры 16 июня 2025 90 дн. 1 33.5 3/25 4 000 000
Екатеринбург, ул. Латвийская, 56 (Компрессорный) - фото квартиры 7 апреля 2025 90 дн. 1 23 14/18 2 950 000
Екатеринбург, ул. Латвийская, 48/2 (Компрессорный) - фото квартиры 22 марта 2025 90 дн. 1 37.9 4/22 4 100 000
Екатеринбург, ул. Латвийская, 54 (Птицефабрика) - фото квартиры 3 августа 2025 90 дн. 2 69.3 7/16 6 750 000
Екатеринбург, ул. Латвийская, 56 (Компрессорный) - фото квартиры 25 июля 2025 90 дн. 3 59.3 6/18 6 000 000
Екатеринбург, ул. Латвийская, 56/3 (Компрессорный) - фото квартиры 22 февраля 2025 90 дн. 2 51 3/25 4 800 000
Екатеринбург, ул. Латвийская, 56/3 (Компрессорный) - фото квартиры 11 октября 2024 90 дн. 1 34.3 17/25 3 680 000
Екатеринбург, ул. Латвийская, 48/1 (Компрессорный) - фото квартиры 8 октября 2024 90 дн. 1 38.4 1/19 3 900 000
Екатеринбург, ул. Латвийская, 54 (Компрессорный) - фото квартиры 30 января 2025 90 дн. 3 69 16/16 5 940 000
Екатеринбург, ул. Латвийская, 56 (Компрессорный) - фото квартиры 12 ноября 2024 90 дн. 3 61.7 12/18 7 000 000
Екатеринбург, ул. Латвийская, 56 (Компрессорный) - фото квартиры 2 октября 2024 90 дн. 2 47.4 10/18 4 590 000

Похожие предложения о продаже квартир в Екатеринбурге (Компрессорный)

  • 3-к квартира, Латвийская, 38

    • 58.5 м2
    • 3/5 этаж
    • Состояние: удовлетворительное
    4 199 000 ₽ (71800 ₽/м2)
    Просторная трехкомнатная квартира ждет своих новых хозяев!Квартиру расположена в панельном теплом доме с чистым освещаемым двором. Особенности вашей будущей недвижимости:- Просторные светлые комнаты ждут вашего творчества и воплощения самых смелых дизайнерских решений.- Окна, выходящие на природный ландшафт, наполняют жилье свежестью и умиротворением.- Высококачественный строительный материал обеспечивает надежное сохранение тепла зимой и приятную прохладу летом.- Тихое расположение вдали от шумных магистралей гарантирует здоровый сон и полное восстановление сил каждый день.Откройте для себя радость жизни в гармонии с природой, наслаждаясь каждым моментом в своем новом уютном жилище. Сделайте первый шаг навстречу мечте уже сегодня! Не откладывайте на завтра, первый шаг к своей мечте! Звоните! ID объекта в нашей базе: 18091
    размещено: 03.11.2025 , обновлено: 25.11.2025
  • 3-к квартира, Прибалтийская, 33

    • 58.1 м2
    • 1/9 этаж
    • Состояние: удовлетворительное
    4 600 000 ₽ (79200 ₽/м2)
    Теплая светлая квартира. Все комнаты изолированные, санузел раздельный, лоджия. Большой зеленый двор с детской площадкой, рядом спортивная площадка. В шаговой доступности школа, садик, магазины, транспорт, парк, стадион. Без обременений. Квартира освобождена.
    размещено: 24.07.2025 , обновлено: 30.11.2025
  • 3-к квартира, Латвийская, 58/4

    • 56.5 м2
    • 12/25 этаж
    • Состояние: идеальное
    6 070 000 ₽ (107400 ₽/м2)
    Продаётся просторная светлая квартира 56,5 кв.м в новом доме на 12 этаже. Большая кухня-гостиная с окнами на две стороны, две большие спальные комнаты, из окна шикарный вид, много зелени, тишина и свежий воздух. Выполнен качественный ремонт, стеклопакеты REHAU с гарантийным сроком. В доме один подъезд и 3 лифта. В доме своя газовая котельная, это значительно уменьшает платежи по коммунальным услугам и обеспечивает бесперебойную подачу горячей воды. Во дворе несколько детских площадок, корт. Рядом детские сады, школа. Удобно добираться до центра города на электричке. Один взрослый собственник, никто не прописан, без обременений, быстрый выход на сделку. ID объекта в нашей базе: 1057
    размещено: 29.08.2025 , обновлено: 11.11.2025
  • 3-к квартира, Латвийская, 37

    • 63.7 м2
    • 3/9 этаж
    • Состояние: хорошее
    5 890 000 ₽ (92500 ₽/м2)
    Без обременений и долгов! Один взрослый собственник! Комфортный третий этаж! Закрытый зеленый двор с детской площадкой, д/сад в 100 метрах! Обмен подобран! Удобная функциональная планировка: изолированные комнаты, окна на 2 стороны, раздельный с/у, просторная лоджия на 2 окна, дополнительное место для хранения (кладовка)! Натяжные потолки; пластиковые окна, ванна– кафель, счетчики на свет и воду. В подарок покупателю: кухонный гарнитур, прихожая, шкаф-купе! Удачное месторасположение дома: рядом вся инфраструктура: школы, д/сады, сетевые магазины, ледовая арена «Факел», стадион, банк, остановки транспорта, поликлиники и многое другое! Помощь в одобрении ипотеки! Приглашаем на просмотры в удобное для Вас время. Звоните! ID объекта в нашей базе: 8644
    размещено: 15.08.2025 , обновлено: 11.11.2025
  • 3-к квартира, Латвийская, 38

    • 53.1 м2
    • 3/5 этаж
    • Состояние: хорошее
    4 500 000 ₽ (84700 ₽/м2)
    Продается уютная квартира в пятиэтажном теплом доме в самом центре спального микрорайона компрессорный. В микрорайоне Компрессорный расположена вся необходимая инфраструктура: детские сады, школы, магазины, аптеки, парки, спортивные площадки, поликлиники, пункты выдачи Озон и Валдбейриз, имеется почтовое отделение, 2 завода (для тех кто также думает о рабочих местах).Квартира расположена на 3 этаже. В квартире сделан качественный ремонт, установлены пластиковые окна, новые двери, сантехника и радиаторы отопления, натянуты натяжные потолки (за исключением 1 комнаты). Есть балкон (застеклен), который выходит на мини-парк с небольшим прудом. В квартире покупателям остается все необходимое на первое время кухонный гарнитур, 2 шкафа купе в комнатах, стенка сервант в гостиной, прихожая. Из техники - водонагреватель, остальное по договоренности.Квартира идеально подойдет для молодой семьи с детьми, так как в шаговой доступности расположены магазин, ФОК "Факел" со своим футбольным стадионом, сосновый парк с храмом, школа №53 (5 мин), детский сад (10 мин).Приезжайте познакомим Вас как с Вашей будущей квартирой, так и с микрорайоном в целом. ID объекта в нашей базе: 17438
    размещено: 22.05.2025 , обновлено: 21.11.2025

    3-к квартира, Латвийская, 49

    • 70.1 м2
    • 10/10 этаж
    • Состояние: плохое
    6 099 000 ₽ (87000 ₽/м2)
    Объект № 191289. Трехкомнатная квартира в кирпичном доме. Дом расположен в мкрн. Компрессорный, 2003 года постройки, кирпичный. В доме ТСЖ, небольшие коммунальные платежи. Инфраструктура района развита, все блага цивилизации в шаговой доступности. Квартира на 10/10 этаже, лифт идет до 10 этажа. Общая площадь 70.1кв.м, жилая 46 кв.м, кухня 9.8 кв.м. Квартира требует косметического ремонта. Мебель готовы оставить по согласованию. Юридически 3 совершеннолетних собственника, без перепланировок, обременения отсутствуют. Документы готовы. Остальная информация по телефону, звоните. ***Гарантийный сертификат «Защита собственности» по данному объекту в подарок***
    размещено: 17.04.2025 , обновлено: 25.11.2025

    3-к квартира, Прибалтийская, 33

    • 59 м2
    • 4/9 этаж
    • Состояние: удовлетворительное
    4 600 000 ₽ (78000 ₽/м2)
    Объект № 190641. Продаётся уютная трёхкомнатная квартира площадью 59.1 квадратных метров на четвёртом этаже девятиэтажного панельного дома, расположенного в спокойном районе Екатеринбурга по адресу: Компрессорный м-н, Прибалтийская улица, 33. Это прекрасный вариант для тех, кто ценит комфорт и удобство. Жилая площадь составляет 35.3 квадратных метра, а кухня радует своими размерами - 8.3 квадратных метра, что позволяет свободно разместиться всей семье за обеденным столом. Наличие раздельного санузла добавляет дополнительное удобство для большой семьи или гостей. В квартире удобные системы хранения: шкаф-купе (оставим в подарок новым собственникам), кладовки, антресоли. Из окон открывается приятный вид на двор и улицу, позволяющий наслаждаться городскими пейзажами без лишнего шума. Для вашего комфорта в квартире проведён газ. Также имеется балкон, где можно устроить уютное место для отдыха или хранения вещей. В доме сделан капитальный ремонт. Расположение дома идеально подходит для семей с детьми благодаря близости школы и детского сада, а также наличию детской и спортивной площадок прямо во дворе. Для активного образа жизни рядом расположены парк. Рядом находятся продуктовый магазин, аптеки, что делает повседневную жизнь ещё более удобной. Безопасность жителей обеспечивается системой домофона. Для автомобилистов предусмотрена парковка во дворе. Квартира без обременений, 2 взрослых собственника, чистая продажа, быстрый выход на сделку. Приглашаем вас ознакомиться с этой замечательной квартирой, которая ждёт своих новых владельцев. Это отличный выбор для тех, кто мечтает о собственном уголке в тихом и зелёном районе города. ***Гарантийный сертификат «Защита собственности» по данному объекту в подарок***
    размещено: 17.03.2025 , обновлено: 22.11.2025

Новостройки Екатеринбург, мкр-н. Компрессорный

Приоритет

Увеличивает просмотры в 3 раза

Ваше объявление показывается в списке выше обычных объявлений. подключить