На Метре реклама - только нормальная. Никакого шок-контента.
Помогайте независимому ресурсу, как он помогает вам. Удачи!
Новостройки Котт. посёлки Объявления Динамика цен и сделок

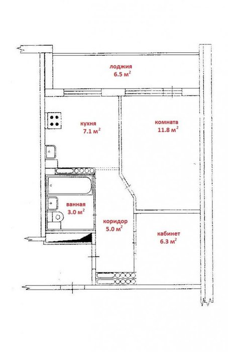
Продажа квартиры: Екатеринбург, ул. Амундсена, 67 (Юго-Западный)

  • опубликовано 30.01.2020 , обновлено 5.02.2025
  • 156
Рынок:вторичный
Срок сдачи: 1983 года
Количество комнат:1
Общая площадь:33 м2
Жилая площадь:18 м2
Площадь кухни:0.00 м2
Этаж/Этажность дома:9 / 12
Год постройки:1983
Балкон/лоджия:лоджия
Цена:
2 800 000
Объявление снято с публикации
Коммунальные платежи:оплачиваются отдельно
Ипотека:возможна

Квартира в хорошем состоянии, окна пластиковые, на полу ламинат. Перепланировка согласована. В подарок оставим кухонный гарнитур.
ID объекта в нашей базе: 7820

Объявление снято с публикации

Ипотечный калькулятор

лет
%
Сумма кредита
2800000 ₽
Платеж
22 540 ₽

История предложений в этом доме

объявление снято с публикации в продаже комнат площадь этаж цена,
Екатеринбург, ул. Амундсена, 67 (Юго-Западный) - фото квартиры 28 августа 2025 90 дн. 1 34.3 9/12 3 990 000
Екатеринбург, ул. Амундсена, 67 (Юго-Западный) - фото квартиры 27 июля 2024 90 дн. 1 32 3/12 4 600 000
Екатеринбург, ул. Амундсена, 67 (Юго-Западный) - фото квартиры 27 июня 2024 90 дн. 2 48.6 6/12 4 700 000
Екатеринбург, ул. Амундсена, 67 (Юго-Западный) - фото квартиры 30 июля 2024 90 дн. 1 34 4/12 3 900 000
Екатеринбург, ул. Амундсена, 67 (Юго-Западный) - фото квартиры 1 мая 2024 90 дн. 2 48.2 3/12 4 990 000
Екатеринбург, ул. Амундсена, 67 (Юго-Западный) - фото квартиры 18 октября 2023 60 дн. 1 34.8 6/12 3 950 000
Екатеринбург, ул. Амундсена, 67 (Юго-Западный) - фото квартиры 2 сентября 2023 90 дн. 1 34.5 4/12 4 070 000
Екатеринбург, ул. Амундсена, 67 (Юго-Западный) - фото квартиры 3 июня 2023 90 дн. 2 48 2/12 4 600 000
Екатеринбург, ул. Амундсена, 67 (Юго-Западный) - фото квартиры 4 августа 2022 90 дн. 2 47.5 1/12 4 370 000
Екатеринбург, ул. Амундсена, 67 (Юго-Западный) - фото квартиры 9 ноября 2021 90 дн. 1 33 11/12 3 700 000
Екатеринбург, ул. Амундсена, 67 (Юго-Западный) - фото квартиры 13 ноября 2021 90 дн. 2 47.6 8/12 4 100 000
Екатеринбург, ул. Амундсена, 67 (Юго-Западный) - фото квартиры 22 октября 2021 90 дн. 1 34 8/12 3 500 000
Екатеринбург, ул. Амундсена, 67 (Юго-Западный) - фото квартиры 9 сентября 2021 90 дн. 2 48 2/12 4 450 000
Екатеринбург, ул. Амундсена, 67 (Юго-Западный) - фото квартиры 19 октября 2021 90 дн. 2 48 1/12 3 700 000
Екатеринбург, ул. Амундсена, 67 (Юго-Западный) - фото квартиры 8 апреля 2021 90 дн. 2 48 3/12 3 890 000
Екатеринбург, ул. Амундсена, 67 (Юго-Западный) - фото квартиры 27 января 2021 90 дн. 2 48 5/12 4 020 000
Екатеринбург, ул. Амундсена, 67 (Юго-Западный) - фото квартиры 2 ноября 2020 90 дн. 2 48 12/12 4 000 000
Екатеринбург, ул. Амундсена, 67 (Юго-Западный) - фото квартиры 29 октября 2020 90 дн. 1 33.8 12/12 2 800 000
Екатеринбург, ул. Амундсена, 67 (Юго-Западный) - фото квартиры 26 ноября 2020 90 дн. 2 48 12/12 4 000 000
Екатеринбург, ул. Амундсена, 67 (Юго-Западный) - фото квартиры 16 октября 2020 90 дн. 1 33.8 12/12 2 800 000
Екатеринбург, ул. Амундсена, 67 (Юго-Западный) - фото квартиры 2 февраля 2022 90 дн. 1 37 10/12 3 100 000
Екатеринбург, ул. Амундсена, 67 (Юго-Западный) - фото квартиры 6 августа 2020 90 дн. 1 33 9/12 2 670 000
Екатеринбург, ул. Амундсена, 67 (Юго-Западный) - фото квартиры 13 августа 2020 90 дн. 1 41 2/12 3 250 000
Екатеринбург, ул. Амундсена, 67 (Юго-Западный) - фото квартиры 26 июня 2020 90 дн. 1 34 4/12 2 630 000
Екатеринбург, ул. Амундсена, 67 (Юго-Западный) - фото квартиры 14 июля 2020 90 дн. 1 34 1/12 2 499 000
Екатеринбург, ул. Амундсена, 67 (Юго-Западный) - фото квартиры 19 марта 2020 90 дн. 1 32.7 4/12 3 300 000
Екатеринбург, ул. Амундсена, 67 (Юго-Западный) - фото квартиры 4 декабря 2019 90 дн. 2 48 12/12 3 600 000
Екатеринбург, ул. Амундсена, 67 (Юго-Западный) - фото квартиры 29 августа 2019 90 дн. 2 48 7/12 3 300 000
Екатеринбург, ул. Амундсена, 67 (Юго-Западный) - фото квартиры 17 июля 2019 90 дн. 2 47.4 10/12 3 400 000
22 мая 2019 90 дн. 2 48 9/12 3 520 000

Похожие предложения о продаже квартир в Екатеринбурге (Юго-Западный)

  • 1-к квартира, Академика Бардина, 6/1

    • 23.5 м2
    • 5/5 этаж
    • Состояние: хорошее
    3 000 000 ₽ (127700 ₽/м2)
    Продается квартира С РЕМОНТОМ в центре Екатеринбурга! Квартира отличной планировки: большая просторная комната, отдельная кухонная зона. Дом кирпичный, окна выходят на солнечную сторону: летом всегда прохладно, зимой же тепло. Очень теплый дом, В доме заменены стояки ХВС, ГВС, канализации. Сделали косметический ремонт (обои поклеили, разетки протянули, положили фанеру на пол под линолеум, натяжной потолок с встроенными лампами). В квартире остаётсяостается кухонный гарнитур, Встроенный шкаф в комнате (делали на заказ). Коммунальные платежи небольшие. Идеально подойдет как для личного проживания, так и для сдачи в аренду. В шаговой близости продуктовые магазины, ТЦ МЕГА, парк Громова, несколько деловых центров, медицинские учреждения, салоны красоты, товары для животных и вообще все, что только можно придумать в этом и состоит прелесть проживания в центре города! Отличная инфраструктура и для семей с детьми: детский сад во дворе, рядом школы. Конечно же, рядом остановки любых видов транспорта (автобусы, троллейбусы. Юридически чистый объект. Чистая продажа. Возможно приобретение в ипотеку. Приглашаем на просмотр!
    размещено: 15.10.2025 , обновлено: 11.12.2025
  • 1-к квартира, Академика Бардина, 6/2

    • 18.6 м2
    • 4/5 этаж
    • Состояние: хорошее
    3 195 000 ₽ (171800 ₽/м2)
    Отличная квартира ждет своих новых хозяев! -ЧИСТАЯ ПРОДАЖА, БЫСТРЫЙ ВЫХОД НА СДЕЛКУ, никто не живет. -ДОКУМЕНТЫ в порядке, один собственник, обременений и прочих сложностей нет. -РАСПОЛОЖЕНИЕ ДОМА: тихий район с хорошей инфраструктурой. Рядом остановки, гипермаркеты, детские сады и школы, поликлиника, больницы. Недалеко: ТЦ Гранат, Кит, ТРЦ Радуга-Парк. -ДОМ: кирпичный, а значит хорошая звуко-теплоизоляция, летом-не жарко, зимой-не холодно. -ЭТАЖ: комфортный 4-й. За счет этажа квартира светлая и солнечная, вид ничего не загораживает. -КВАРТИРА: -в середине дома,не угловая. -состояние хорошее, можно сразу заехать и жить. Мебель остается. Приглашаем на просмотр! ID объекта в нашей базе: 26159
    размещено: 24.11.2025 , обновлено: 10.12.2025
  • 1-к квартира, Серафимы Дерябиной, 35

    • 28.5 м2
    • 1/5 этаж
    • Состояние: удовлетворительное
    3 599 999 ₽ (126300 ₽/м2)
    Продам однокомнатную квартиру, отличное расположение дома, до центра15-20 минут на транспортеБыстрый выход на сделку. Один взрослый собственник. Ключи до Нового года! ID объекта в нашей базе: 26139
    размещено: 15.11.2025 , обновлено: 12.12.2025
  • 1-к квартира, Ясная, 1/6

    • 18.1 м2
    • 5/5 этаж
    • Состояние: хорошее
    2 600 000 ₽ (143600 ₽/м2)
    В продаже готовый вариант студии по отличному ценнику в данном районе.Свежий ремонт: ламинат, натяжные потолки, новая сантехника, пластиковое окно и надежная дверь!Дом - коридорного типа, свой с/у, своя душевая и кухня.Готовы укомплектовать студию необходимой мебелью и техникой для переезда под ключ по согласованию.Готовы оперативно передать ключи!Отличный район для жизни - шаговая доступность всей инфраструктуры. Пешая достаупность центра города! Хорошая транспортная развязка. Достаточное количество магазинов в шаговой доступности. ТЦ Фан-фан в 1 минуте от дома!Хорошая инвестиция. Варианты в этом доме всегда растут в цене и отлично сдаются в аренду по средней стоимости от 24+к.у.!Показываем ежедневно по предварительной договоренности. Сотрудничаем с контрагентами!Ипотека возможна - помогу с согласованием, любая форма расчета! Звоните! ID объекта в нашей базе: 12368
    размещено: 10.11.2025 , обновлено: 10.12.2025
  • 1-к квартира, Громова, 146

    • 28 м2
    • 5/5 этаж
    • Состояние: хорошее
    3 390 000 ₽ (121100 ₽/м2)
    Светлая, теплая квартира в кооперативном доме 1973 года постройки. В доме свое ТСЖ, идеальное состояние подъездов и придомовой территории, приличные соседи. Окна на солнечную сторону, на юго-восток. Заменены радиаторы отопления, окно на кухне, стояки на воду и канализацию, установлены счетчики, в остальном требуется ремонт. В квартире остается кухонный гарнитур, холодильник, встроенный шкаф и стенка, если надо. Вблизи вся инфраструктура юго-западного района: детские сады, школы, магазины, рынок на Громова, МФЦ, детская поликлиника, много других больниц, медицинский университет, дом науки и техники. Остановки общественного транспорта во все точки города. Для прогулок и занятий сортом парк им.Чкалова и Юго-Западный лесопарк. По документам один взрослый собственник, без детей и обременений, ипотека возможна. ID объекта в нашей базе: 11078
    размещено: 01.09.2025 , обновлено: 10.12.2025

Новостройки Екатеринбург, мкр-н. Юго-Западный

Приоритет

Увеличивает просмотры в 3 раза

Ваше объявление показывается в списке выше обычных объявлений. подключить