На Метре реклама - только нормальная. Никакого шок-контента.
Помогайте независимому ресурсу, как он помогает вам. Удачи!
Новостройки Котт. посёлки Объявления Динамика цен и сделок

Продажа квартиры: Екатеринбург, ул. Московская, 214/1 (Юго-Западный)

  • опубликовано 1.06.2020 , обновлено 2.10.2025
  • 86
Кадастровый номер:66:41:0404009:1108
Рынок:вторичный
Срок сдачи: 1987 года
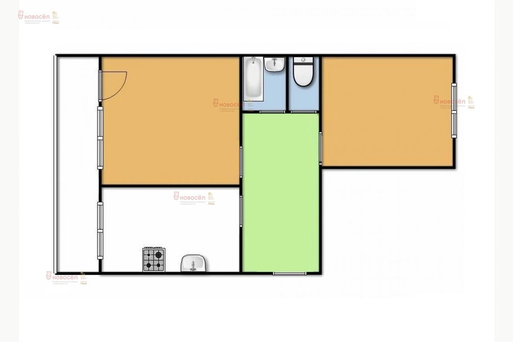
Количество комнат:2
Общая площадь:48 м2
Жилая площадь:28 м2
Площадь кухни:8 м2
Этаж/Этажность дома:3 / 9
Санузел:раздельный
Отделка:евроремонт
Год постройки:1987
Состояние:хорошее
Цена:
3 399 000
Объявление снято с публикации
Коммунальные платежи:оплачиваются отдельно
Ипотека:возможна

Объект № 125028. Квартира отличной планировки с просторной кухней и с комнатами на разные стороны.
Оставляем кухонный гарнитур со встроенной варочной поверхностью, духовым шкафом, вытяжкой; шкаф-купе в комнате.
В доме в этом году закончили капитальный ремонт. Во дворе расположено 2 детских сада, а в соседнем дворе школа и гимназия № 161. Рядом ТЦ КИТ, Гранат; супермаркеты Перекресток и Пятерочка, фитнес-центр для детей и взрослых. Остановки транспорта в любую точку города, а для автолюбителей недалеко Московская-Объездная.
Продажа простая, чистая, без обременений. Рассмотрим покупателей с ипотекой, с материнским и другими видами сертификатов. Если понравилась наша квартира, а у Вас не продана своя, то можем помочь в ее реализации. ***Гарантийный сертификат «Защита собственности» по данному объекту в подарок***

Объявление снято с публикации

Ипотечный калькулятор

лет
%
Сумма кредита
3399000 ₽
Платеж
22 540 ₽

Актуальные предложения в этом доме

  • 3-к квартира, Московская, 214/1

    7 270 000 ₽ (115800 ₽/м2)
    Квартира для вас в самом востребованном районе Екатеринбурга! Квартира находится в популярном у жителей города Юго-Западном районе Екатеринбурга. Этот район интересен своей сложившейся развитой инфраструктурой. Здесь расположены школы и гимназия, садики , развлекательные и торговые и офисные центры, поликлинники, основные транспортные развязки ( выезд на ЕКАД). Из района можно быстро (10 мин. )доехать в центр Екатеринбурга. Дом находится в 10 минутах езды от станции метро Чкаловская, рядом с которой автовокзал для междугородних направлений Свердловской области и всевозможные виды общественного транспорта: автобус, троллейбус, трамвай, которые идут во всех направлениях города.Квартира готова к продаже. Юридически чистый объект. Быстро выйдем с вами на сделку, при необходимости поможем вам с оформлением ипотеки на покупку данной квартиры.Дом в котором расположена квартира 1998 г. постройки. Рядом расположены супермаркеты Монетка, Верный, ТЦ КИТ ,ГРАНАТ, известный мц Здоровье 365. Есть парковка во дворе. Квартира с косметическим ремонтом, площадью 62,8 кв.м, с раздельными комнатами, просторной спальней и раздельным с/у. Большая вместительная лоджия. Приглашаем на просмотр! Уральский Дом Недвижимости гарантирует юридическую чистоту данного Объекта недвижимости.
    размещено: 31.10.2025 , обновлено: 1.11.2025

История предложений в этом доме

объявление снято с публикации в продаже комнат площадь этаж цена,
Екатеринбург, ул. Московская, 214/1 (Юго-Западный) - фото квартиры 21 сентября 2021 90 дн. 3 64 2/9 5 400 000
Екатеринбург, ул. Московская, 214/1 (Юго-Западный) - фото квартиры 13 августа 2021 90 дн. 1 33.3 7/9 3 190 000
Екатеринбург, ул. Московская, 214/1 (Юго-Западный) - фото квартиры 22 мая 2021 90 дн. 3 64 1/9 3 990 000
27 ноября 2018 90 дн. 2 47 7/9 3 250 000
24 января 2019 90 дн. 4 78 3/9 5 200 000

Похожие предложения о продаже квартир в Екатеринбурге (Юго-Западный)

  • 2-к квартира, Начдива Онуфриева, 30

    • 42.4 м2
    • 5/9 этаж
    • Состояние: удовлетворительное
    4 100 000 ₽ (96700 ₽/м2)
    Объект № 195083. Полноценная двухкомнатная квартира в спальном районе Юго-Западный. Комнаты изолированные, раздельный санузел. Удобный 5 этаж. Квартира готова к ремонту. Освобождена. Инфраструктура района очень развита: остановки общественного транспорта в шаговой доступности, детская поликлиника, магазины, областной рынок «На Громова», садики, школы. Юридическая сторона: один совершеннолетний собственник, никаких обременений, долгов, материнских капиталов. Все выписаны. К сделке полностью готовы. Оперативный показ. Скорее звоните! ***Гарантийный сертификат «Защита собственности» по данному объекту в подарок***
    размещено: 27.10.2025 , обновлено: 30.10.2025
  • 2-к квартира, Академика Бардина, 7к2

    • 42.6 м2
    • 1/5 этаж
    • Состояние: плохое
    3 649 000 ₽ (85700 ₽/м2)
    Продается двухкомнатная квартира с ИЗОЛИРОВАННЫМИ КОМНАТАМИ в Юго-Западном микрорайоне.Высокий первый этаж, в окна не заглянешь. Квартира ТРЕБУЕТ КАПИТАЛЬНОГО РЕМОНТА, что представляет отличную возможность сделать ее такой, какой вы всегда мечтали, реализовать свои дизайнерские решения, и не переплачивать за чужой, ненужный ремонт!Чистый подъезд после ремонта. Благополучные соседи.Зеленый двор с детской площадкой. Огороженная бесплатная парковка для автомобилей.В шаговой доступности все, что нужно для комфортной жизни: поликлиника, больница, детские сады, школы, различные сетевые магазины. Недалеко ТРЦ Гранат, и Парк им. 50-летия ВЛКСМ для прогулок и отдыха.Отличная транспортная доступность в любой район города. Рядом остановки общественного транспорта. Возможна продажа в ипотеку.Звоните, покажем в удобное для вас время. ID объекта в нашей базе: 11798
    размещено: 10.10.2025 , обновлено: 22.10.2025
  • 2-к квартира, Чердынская, 10

    • 38.6 м2
    • 1/3 этаж
    • Состояние: хорошее
    3 990 000 ₽ (103400 ₽/м2)
    Продается 2-х комнатная квартира в кирпичном доме в Верх-Исетском районе с отличной локацией. Идеальная квартира для пары или небольшой семьи. Квартира заинтересует также инвесторов и свободных людей. Ремонт косметический. Установлены пластиковые окна в комнатах, заменены радиаторы отопления и стояки водоснабжения. Новым хозяевам остаются мебель и бытовая техника. Все окна выходят во двор, так как дом расположен вдали от транспортных магистралей. На окнах установлены решетки. Двор просторный, очень зеленый и тихий. С современной детской площадкой и кортом. Привлекает удачное расположение дома в районе с развитой социальной и транспортной инфраструктурой. Рядом находятся остановки общественного транспорта. Удобный выезд на основные магистрали. Ценится также близость торгового центра «Радуга Парк», больничных комплексов, детских садов и средней школы, супермаркетов, аптек, банков и пр. Недавно произведен капитальный ремонт дома. Документы готовы, один совершеннолетний собственник. Без залогов и обременений. Рассмотрим любые формы оплаты. Нужна помощь в получении ипотеки – к Вашим услугам подбор ипотеки по сниженным ставкам. ЗВОНИТЕ.ЗАПИСЫВАЙТЕСЬ НА ПРОСМОТР. Лучше один раз увидеть! Не задано ID объекта в нашей базе: 26039
    размещено: 04.10.2025 , обновлено: 18.10.2025
  • 2-к квартира, Ясная, 36к1

    • 45.3 м2
    • 5/5 этаж
    • Состояние: удовлетворительное
    4 190 000 ₽ (92500 ₽/м2)
    Продаю двухкомнатную квартиру в тихом прицентральном районе. В объявлении есть ответы на большинство вопросов, время на чтение – менее минуты.Квартира продается свободно. Не угловая. Комнаты отдельные, окна выходят на разные стороны, есть балкон. Очень теплая, легко проветривать.Квартира чистая, соседи хорошие, в доме практически нет арендаторов, адекватные взрослые собственники. Важно! 5 этаж, однако ни одной протечки ни в подъезде, ни в квартире, крыша в идеальном состоянии.Рядом весь нужный транспорт, магазины и аптеки, торговые центры, спортзалы, школы и детские сады, 40 больница, парки и скверы. Все, что необходимо.Реальная чистая продажа. Ключи сразу. Никаких обменов и долгих цепочек. Коммунальные платежи – летом до 4000, зимой до 5500.Можно в ипотеку, можно с материнским капиталом, можно с наличными, можно с безналичными, можно с аккредитивом и безопасными расчетами. В военную ипотеку нельзя, долго.Долгов, проблем, обременений нет. Один взрослый собственник на основании договора купли-продажи. Согласие супруги не требуется. Никто не прописан. Предусмотрен разумный торг, обсуждается лично на квартире. Предусмотрен бонус профессионалам рынка недвижимости.Отвечаю на звонки с 09:00 до 21:00. Лучше звонить, а не писать. О просмотре прошу договариваться за сутки. Спасибо. Иван. ID объекта в нашей базе: 6539
    размещено: 16.09.2025 , обновлено: 30.10.2025
  • 2-к квартира, Академика Бардина, 41

    • 36.7 м2
    • 5/9 этаж
    • Состояние: удовлетворительное
    4 299 000 ₽ (117100 ₽/м2)
    Продается малогабаритная двухкомнатная квартира – под ремонт. Хорошее месторасположение, развитая инфраструктура, в шаговой доступности детские сады, школы, лицей № 159, остановки общественного транспорта, магазины, аптеки, рядом отделение полиции. Удобная транспортная развязка, выезд на объездную дорогу. Чистая продажа, один взрослый собственник, ипотека возможна. ID объекта в нашей базе: 397
    размещено: 06.08.2025 , обновлено: 11.10.2025

    2-к квартира, Шаумяна, 105/1

    • 45.6 м2
    • 2/5 этаж
    • Состояние: удовлетворительное
    4 250 000 ₽ (93200 ₽/м2)
    ПРОДАМ двухкомнатную квартиру Шаумяна 105/1 на втором этаже. Квартира под ремонт. Комнаты на разные стороны. Два взрослых собственника. Или обменяю на однокомнатную квартиру с ремонтом в районе улиц Викулова, Репина (ЖК Тихомиров) с моей доплатой. ID объекта в нашей базе: 10096
    размещено: 09.09.2024 , обновлено: 30.10.2025

    2-к квартира, Посадская, 51

    • 44 м2
    • 5/5 этаж
    • Состояние: удовлетворительное
    4 320 000 ₽ (98200 ₽/м2)
    Объект № 181313. Продается двухкомнатная квартира. Комнаты на разные стороны. Квартира требует косметического ремонта. Развитая инфраструктура района. Квартира освобождена. Быстрый выход на сделку. Чистая продажа. Ждем на просмотр! ***Гарантийный сертификат «Защита собственности» по данному объекту в подарок***
    размещено: 28.02.2024 , обновлено: 8.10.2025

Новостройки Екатеринбург, мкр-н. Юго-Западный

Приоритет

Увеличивает просмотры в 3 раза

Ваше объявление показывается в списке выше обычных объявлений. подключить