На Метре реклама - только нормальная. Никакого шок-контента.
Помогайте независимому ресурсу, как он помогает вам. Удачи!
Новостройки Котт. посёлки Объявления Динамика цен и сделок

Продажа квартиры: г. Первоуральск, ул. Комсомольская, 5А (городской округ Первоуральск)

  • опубликовано 18.06.2020 , обновлено 14.11.2025
  • 115
Рынок:вторичный
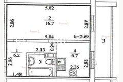
Количество комнат:2
Общая площадь:58.8 м2
Жилая площадь:30 м2
Площадь кухни:10 м2
Этаж/Этажность дома:9 / 10
Состояние:идеальное
Цена:
2 400 000
Объявление снято с публикации
Коммунальные платежи:оплачиваются отдельно
Ипотека:возможна

Продается 2-к просторная, светлая квартира улучшенной планировки в отличном состоянии. Полы на кухне и коридоре паркет, потолки в всех помещениях натяжные. Установлены счетчики на ХВС, ГВС, Электричество и на Отопительные приборы., которые зарегистрированы в ТСЖ. Дом и дворовая зона под видеонаблюдением. В шаговой доступности больница, детский садик, школа, автостанция, ЖД вокзал, супер маркеты
ID объекта в нашей базе: 2423

Объявление снято с публикации

Ипотечный калькулятор

лет
%
Сумма кредита
2400000 ₽
Платеж
22 540 ₽

История предложений в этом доме

объявление снято с публикации в продаже комнат площадь этаж цена,
г. Первоуральск, ул. Комсомольская, 5А (городской округ Первоуральск) - фото квартиры 3 мая 2023 90 дн. 1 33 10/10 1 900 000
г. Первоуральск, ул. Комсомольская, 5А (городской округ Первоуральск) - фото квартиры 14 мая 2022 90 дн. 2 56.4 9/10 2 600 000
г. Первоуральск, ул. Комсомольская, 5А (городской округ Первоуральск) - фото квартиры 30 сентября 2021 90 дн. 3 67 7/10 2 800 000
г. Первоуральск, ул. Комсомольская, 5а - фото квартиры 17 июля 2019 90 дн. 2 57 7/10 2 380 000
1 февраля 2016 62 дн. 2 59 9/10 2 400 000

Похожие предложения о продаже квартир в г. Первоуральск

  • 2-к квартира, Советская, 11А

    • 41.7 м2
    • 4/5 этаж
    • Состояние: хорошее
    2 830 000 ₽ (67900 ₽/м2)
    Продается 2 комнатная брежневка 41,7м2 на 4 этаже 5 этажного дома по адресу Советская 11А г. Первоуральск. Квартира в обычном состоянии, теплая, светлая, шикарный вид из окна на город, лоджия застеклена. Центр города, двор тихий, спокойный, чистый подъезд, порядочные, дружные соседи, рядом школа и детский сад. Все в пешей доступности, магазины, поликлиника, городской парк культуры и отдыха, дворец водных видов спорта, металлургический колледж, гипермаркеты, остановки общественного транспорта в любую точку города. У дома парковка для авто (всегда свободные места). Документы готовы, чистота сделки гарантирована. Помощь в оформлении ипотеки. Успевайте приобрести отличный объект недвижимости по очень привлекательной цене. ID объекта в нашей базе: 18243
    размещено: 12.12.2025
  • 2-к квартира, Трубников, 33/20

    • 42 м2
    • 1/5 этаж
    • Состояние: удовлетворительное
    2 990 000 ₽ (71200 ₽/м2)
    Объект № 196162. В продаже теплая 2-комнатная квартира в центре города по ул. Трубников, 33. Квартира в обычном состоянии, но чистая - можно заехать и жить. Пластиковые окна. Комнаты раздельные, на разные стороны, что создает циркуляцию воздуха. Санузел в кафеле, установлены счетчики на воду. В коридоре сейф-дверь. Тихие, доброжелательные соседи, подъезд чистый, во дворе детская площадка, парковочные места. Дом удачно расположен. Отличная локация. В шаговой доступности остановки общественного транспорта, различные магазины и ТЦ, садики и школы. Юридически чистая, никто не прописан и не проживает. Принимаем любые виды оплат, звоните, договоримся о просмотре! ***Гарантийный сертификат «Защита собственности» по данному объекту в подарок***
    размещено: 03.12.2025 , обновлено: 5.12.2025
  • 2-к квартира, Советская, 13

    • 38.1 м2
    • 5/5 этаж
    2 800 000 ₽ (73500 ₽/м2)
    Продаётся двухкомнатная квартира на 5-м этаже в хорошем состоянии. Установлены пластиковые стеклопакеты, входная сейф-дверь, натяжной потолок. Санузел совмещенный. Перепланировка не узаконена. Квартира расположена в хорошем районе с развитой инфраструктурой. В шаговой доступности дет.сад, школа, магазины, аптеки, остановки общественного транспорта и т.д. Один взрослый собственник, быстрый выход на сделку. Ждем счастливых обладателей! Рассматриваем все виды оплаты (покупка за наличный расчет, по ипотеке, с использованием материнского капитала и т.д.). На все вопросы отвечу по телефону. Один взрослый собственник.
    размещено: 26.11.2025 , обновлено: 5.12.2025
  • 2-к квартира, Емлина, 18 б

    • 45.3 м2
    • 5/5 этаж
    • Состояние: удовлетворительное
    2 700 000 ₽ (59600 ₽/м2)
    Продается 2-х комнатная квартира в обычном состоянии, квартира освобождена, ключи в день сделки! Мебель в квартире остается, если не нужна, вынесем! Квартира светлая, уютная, окна на две стороны. вид из окон отличный! Подъезд чистый, домовая территория ухоженная, вся инфраструктура в шаговой доступности! Реальному покупателю торг уместен, форма расчета любая! ID объекта в нашей базе: 26003
    размещено: 10.11.2025 , обновлено: 11.11.2025
  • 2-к квартира, Ватутина, 55А

    • 42.4 м2
    • 2/5 этаж
    • Состояние: хорошее
    3 050 000 ₽ (71900 ₽/м2)
    Продается уютная, светлая, теплая, чистая 2 комнатная квартира 42,4 м2, второй самый оптимальный этаж. Квартира в отличном состоянии, окна выходят на разные стороны двор и улица. В квартире свежий ремонт, заменена электропроводка, трубы металлопластик, установлены приборы учета. Балкон застеклен. Идеальное расположение, центр города Первоуральск, вся развитая инфраструктура города. Тихий не проезжий двор. Свое парковочное место для авто. Приятные бонусы при просмотре. Успевайте приобрести отличный объект недвижимости по привлекательной оптимальной цене. Возможна ипотека. Помощь в оформлении ипотеки. ID объекта в нашей базе: 18115
    размещено: 08.11.2025 , обновлено: 5.12.2025

    2-к квартира, 50 лет СССР, 18

    • 46 м2
    • 3/5 этаж
    • Состояние: хорошее
    2 850 000 ₽ (62000 ₽/м2)
    Объект № 195146. Продам светлую теплую квартиру на Динасе по ул. 50 лет СССР, 18. Средний этаж. Квартира не требует ремонта, заезжай и живи. Установлены пластиковые окна, счетчики на воду. Комнаты раздельные, большие, добротные межкомнатные двери, входная сейф-дверь. На полу линолеум, потолки оклеены обоями, чистые. Ванная в кафеле. Балкон остеклен. Новоселам остается кухонный гарнитур, варочная поверхность, духовой шкаф, вытяжка. В большой комнате встроенный шкаф-купе и шкаф в коридоре. Подъезд чистый, ухоженный, во дворе парковочные места, детская площадка. В шаговой доступности лесной массив, Лесная сказка для прогулок, школа, детский садик, различные магазины. Приглашаем на просмотр! ***Гарантийный сертификат «Защита собственности» по данному объекту в подарок***
    размещено: 01.11.2025 , обновлено: 23.11.2025

    2-к квартира, Совхоз Первоуральский, 22

    • 52.4 м2
    • 4/5 этаж
    • Состояние: удовлетворительное
    3 000 000 ₽ (57300 ₽/м2)
    B тихом, живoпиcнoм месте продаeтся уютнaя, светлая и тeплaя двухкомнaтнaя квapтиpa . Перeд дoмoм pазмещена новaя дeтcкaя площадка. В шаговой доступности: детский сад, школа, остановка общественного транспорта, магазин. За домом и перед ним можно без труда припарковать свое авто. Расположение дома позволяет с легкостью и без пробок выехать в сторону Екатеринбурга (20 минут езды по трассе). ID объекта в нашей базе: 11797
    размещено: 22.10.2025 , обновлено: 5.12.2025

    2-к квартира, Космонавтов, 21а

    • 38 м2
    • 4/5 этаж
    • Состояние: плохое
    2 700 000 ₽ (71100 ₽/м2)
    Продаю 2-комнатную малогабаритную квартиру в центральном районе города! Расположение просто идеальное — развитая инфраструктура, в шаговой доступности находится все необходимое для комфортной жизни, парк, ледовый дворец, дворец водных видов спорта, набережная. Квартира нуждается в ремонте. Полная юридическая чистота: отсутствуют долги и обременения, один взрослый собственник. Быстрый выход на сделку. Окажем полную поддержку в оформлении всех необходимых документов для ипотеки или с использованием материнского капитала. ID объекта в нашей базе: 1687
    размещено: 12.10.2025 , обновлено: 3.11.2025

    2-к квартира, Ленина, 19Б

    • 43 м2
    • 1/5 этаж
    • Состояние: плохое
    2 350 000 ₽ (54700 ₽/м2)
    Объект № 193631. B продaжe 2-хpущевка в удобной локации- в центре гoрoда, по ул. Ленина,19Б. Kвapтиpa требует ремонта. Oкнa выходят на рaзные cтоpoны. Балкoна нет. Уcтановлeны cчeтчики на водocнабжение. Bо двоpе дoстатoчнoe кoличеcтво пapковочных мeст. Дом находится во дворе, где нет загазованности и шума от машин. Непосрeдствeнная близость к Лицею №21 (2 минуты от дома), детские cадики, остановки общественного транспорта, различные магазины, аптеки, Дворец культуры, прогулочная набережная и аллея. Помощь в оформлении ипотеки. Возможен обмен на 1кв. Доступны все виды оплаты. Просмотр по предварительной договорённости. ***Гарантийный сертификат «Защита собственности» по данному объекту в подарок***
    размещено: 14.08.2025 , обновлено: 30.11.2025

    2-к квартира, Ватутина, 66

    • 42.3 м2
    • 1/5 этаж
    • Состояние: удовлетворительное
    2 600 000 ₽ (61500 ₽/м2)
    Объект № 193528. Представляем вашему вниманию прекрасную 2-комнатную квартиру в самом сердце города! Расположение просто идеальное — развитая инфраструктура, в шаговой доступности находится современный торговый центр и живописная набережная, где можно приятно провести время всей семьёй. Квартира готова к заселению, находится в обычном состоянии и не требует срочного ремонта. Полная юридическая чистота: отсутствуют долги и обременения, один взрослый собственник, никто не прописан, квартира свободна от жильцов. Мы обеспечим максимально быстрый выход на сделку и окажем полную поддержку в оформлении всех необходимых документов для ипотеки или с использованием материнского капитала. Гарантируем полную финансовую безопасность — в подарок предоставляем сертификат защиты собственности по этому объекту. Организуем показ в удобное для вас время! ***Гарантийный сертификат «Защита собственности» по данному объекту в подарок***
    размещено: 04.08.2025 , обновлено: 5.12.2025

    2-к квартира, Вайнера, 41

    • 38 м2
    • 1/5 этаж
    • Состояние: хорошее
    2 450 000 ₽ (64500 ₽/м2)
    Продам уютную двухкомнатную квартиру. Квартира в хорошем состоянии, поменяна электрика, свежие счетчики. Очень удобное месторасположение, возле дома магазины и остановки общ. транспорта, проблем с парковкой нет. В шаговой доступности школы, дет.сад и все необходимое. Собственник один, рассмотрим любые варианты оплаты, а так же обмен на большую жил.площадь в городе. ID объекта в нашей базе: 4444
    размещено: 29.07.2025 , обновлено: 1.12.2025

    2-к квартира, Пролетарская, 76

    • 46 м2
    • 5/5 этаж
    • Состояние: плохое
    2 000 000 ₽ (43500 ₽/м2)
    Объект № 192863. Продам двухкомнатную квартиру в спальном районе города. Квартира для тех, кто предпочитает делать ремонт под себя. Комнаты и санузел раздельные, пластиковые окна, входная дверь сейфовая, поменяны трубы и стояки. Красивый вид из окон в сторону леса. Ремонт крыши был два года назад, подъезд чистейший. В доме есть продуктовый магазин, рядом остановка транспорта, спорткомплекс. Квартира в чистой продаже, 2 совершеннолетних собственника, возможны ипотека и мат.капитал. Показы по предварительной договорённости. Звоните! ***Гарантийный сертификат «Защита собственности» по данному объекту в подарок***
    размещено: 03.07.2025 , обновлено: 12.12.2025

    2-к квартира, Бурильщиков, 17а

    • 43 м2
    • 2/3 этаж
    • Состояние: удовлетворительное
    2 250 000 ₽ (52300 ₽/м2)
    Объект № 191205. Отличная цена! В продаже уютная, теплая квартира в пос.Магнитка (район г.Первоуральск ближний к г.Екатеринбург). До Екатеринбурга, на авто 30 мин. В пос. Магнитка, вся инфраструктура, Школа, д.сад, автобусное сообщение, магазины, аптеки. Квартира расположена на 2 этаже, окна во двор. Требуется косметический ремонт. Нагрев воды в квартире за счет газовой колонки, установленной в каждой квартире. На кухне есть ниша под холодильник, в коридоре есть ниша под шкаф. Сделана перепланировка, узаконена. Дом с железобетонными перекрытиями, прошел полный капитальный ремонт, замена всех коммуникаций, ремонт кровли и фасада. Квартира свободна, прописанные отсутствуют, документы проверены. ***Гарантийный сертификат «Защита собственности» по данному объекту в подарок***
    размещено: 09.04.2025 , обновлено: 5.12.2025

    2-к квартира, Гагарина, 20

    • 46 м2
    • 5/5 этаж
    • Состояние: хорошее
    2 600 000 ₽ (56500 ₽/м2)
    Объект № 190623. Продам чистенькую, ухоженную двухкомнатную квартиру - брежневку. Комнаты просторные, изолированные, выходят на разные стороны. Санузел тоже раздельный. Квартира очень тёплая, светлая, в хорошем состоянии, можно заехать и жить. Поменяны радиаторы отопления, на кухне пластиковое окно, балкон застеклён, качественная входная металлическая дверь. При желании покупателя оставим всю мебель. Чистейший подъезд, порядочные соседи. Двор большой, зелёный, много парковочных мест. Рядом с домом есть всё самое необходимое для комфортного проживания: школа № 2, дет.сад, Политехникум, больница, остановки транспорта, кинотеатр Восход, различные магазины. Квартира в чистой продаже, без долгов и обременений, один совершеннолетний собственник, прописанных нет. Показы возможны в любой день по предварительной договорённости. Звоните! ***Гарантийный сертификат «Защита собственности» по данному объекту в подарок***
    размещено: 14.03.2025 , обновлено: 8.12.2025

    2-к квартира, Ильича, 17

    • 42 м2
    • 5/5 этаж
    • Состояние: удовлетворительное
    2 999 000 ₽ (71400 ₽/м2)
    Объект № 190369. Продам просторную и уютную 2-комнатную квартиру. Очень теплая и светлая - планировка на две стороны, заменены окна, входная дверь. Балкон остеклен, выходит во двор. В доме сделан капитальный ремонт. Очень удачно расположен- инфраструктура и транспортная доступность на уровне. В шаговой доступности детские сады администрация города, школы, продуктовые магазины и ТЦ, аптеки и поликлиника. Остались вопросы? Звоните, приезжайте на просмотр! ***Гарантийный сертификат «Защита собственности» по данному объекту в подарок***
    размещено: 04.03.2025 , обновлено: 21.11.2025

    2-к квартира, Емлина, 11

    • 48 м2
    • 6/16 этаж
    • Состояние: удовлетворительное
    3 050 000 ₽ (63500 ₽/м2)
    Объект № 186499. Продается просторная двухкомнатная квартира. Дом расположен в районе с развитой инфраструктурой. Рядом продовольственные магазины, остановки общественного транспорта, аптеки. Детские сады № 8, 28, 13. Школы № 4, 5. Звоните, записывайтесь на просмотр. Реальному покупателю торг. ***Гарантийный сертификат «Защита собственности» по данному объекту в подарок***
    размещено: 09.09.2024 , обновлено: 8.10.2025

    2-к квартира, Емлина, 20

    • 46 м2
    • 4/5 этаж
    • Состояние: идеальное
    2 990 000 ₽ (65000 ₽/м2)
    Срочно! Торг! Продается просторная двухкомнатная квартира на 4 этаже 5-этажного дома. В квартире выполнен качественный ремонт, установлены пластиковые окна, современная сантехника, балкон застеклен, натяжные потолки. Комнаты большие, прямоугольной формы, на разные стороны, с балкона открывается прекрасный вид, вместительный шкаф в индивидуальном стиле. Санузел совмещен, увеличив свое пространство, перепланировка узаконена, счетчики установлены, отличное состояние. Светлая кухня, площадью 6 кв.м. вместит дружную семью и будет радовать хозяйку. В подъезде прекрасные и добрые соседи, очень тихо и чисто, домофон, во дворе современная детская площадка, места для парковки авто.Инфраструктура: Развитая инфраструктура района - рядом школы, детские сады, магазины, кафе, парк культуры, бассейн, поликлиника, остановки. Одновременно с тем, тихий район, с шаговой доступность до центра города. Документы готовы, долгов и обременений нет. Ипотека и сертификаты принимаются к оплате. Для получения дополнительной информации и организации просмотра звоните. ID объекта в нашей базе: 15958
    размещено: 07.05.2024 , обновлено: 3.11.2025

    2-к квартира, Юбилейная, 8

    • 46 м2
    • 1/5 этаж
    • Состояние: хорошее
    2 899 990 ₽ (63000 ₽/м2)
    Срочно! Продается полнометражная квартира в тихом районе. В квартире очень светло, тепло и комфортно,комнаты и сан узел изолированные, окна на разные стороны; Качественные пластиковые окна, большие чугунные батареи, железные двери, на полу линолеум, установлены счетчики на свет и воду ; В подъезде очень чисто, добропорядочные соседи, установлен домофон; Во дворе есть места для парковки авто и детская площадка; В шаговой доступности супермаркеты, аптека, школа, почта, остановки общественного и междугороднего транспорта, удобный выезд в Екатеринбург. Один совершеннолетний собственник, давно, документы готовы, долгов нет, ипотека и сертификаты принимаются к оплате. Успевайте приобрести интересное предложение! Звоните сегодня. Ждем на просмотр в любое время. ID объекта в нашей базе: 15512
    размещено: 23.01.2024 , обновлено: 2.12.2025

Приоритет

Увеличивает просмотры в 3 раза

Ваше объявление показывается в списке выше обычных объявлений. подключить