На Метре реклама - только нормальная. Никакого шок-контента.
Помогайте независимому ресурсу, как он помогает вам. Удачи!
Новостройки Котт. посёлки Объявления Динамика цен и сделок

Продажа квартиры: г. Первоуральск, ул. Комсомольская, 5А (городской округ Первоуральск)

  • опубликовано 14.03.2023 , обновлено 14.11.2025
  • 38
Кадастровый номер:66:58:0116002:8574
Рынок:вторичный
Количество комнат:1
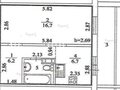
Общая площадь:33 м2
Жилая площадь:17 м2
Площадь кухни:7 м2
Этаж/Этажность дома:10 / 10
Санузел:совмещенный
Отделка:евроремонт
Состояние:хорошее
Цена:
1 900 000
Объявление снято с публикации
Коммунальные платежи:оплачиваются отдельно
Ипотека:возможна

Объект № 169696. Продам 1-комнатную квартиру по ул. Комсомольская, 5А, на 10 этаже, откуда открывается красивый вид на город. Квартира в обычном состоянии, теплая, светлая. Из кухни выход на большую лоджию (на два окна). Установлены счетчики на воду и новый на эл., отопление.
В доме свое ТСЖ, низкие коммунальные платежи. Бесперебойно работает лифт OTIS. Во дворе вместительная парковка, детская площадка, в шаговой доступности магазины, остановка общественного транспорта, школа, поликлиника.
Квартира освобождена, без арестов и долгов. Просмотр в любое время, по договоренности. Принимаем любые виды оплат. Ждем на просмотр! ***Гарантийный сертификат «Защита собственности» по данному объекту в подарок***

Объявление снято с публикации

Ипотечный калькулятор

лет
%
Сумма кредита
1900000 ₽
Платеж
22 540 ₽

История предложений в этом доме

объявление снято с публикации в продаже комнат площадь этаж цена,
г. Первоуральск, ул. Комсомольская, 5А (городской округ Первоуральск) - фото квартиры 14 мая 2022 90 дн. 2 56.4 9/10 2 600 000
г. Первоуральск, ул. Комсомольская, 5А (городской округ Первоуральск) - фото квартиры 30 сентября 2021 90 дн. 3 67 7/10 2 800 000
г. Первоуральск, ул. Комсомольская, 5А (городской округ Первоуральск) - фото квартиры 19 января 2021 90 дн. 2 58.8 9/10 2 400 000
г. Первоуральск, ул. Комсомольская, 5а - фото квартиры 17 июля 2019 90 дн. 2 57 7/10 2 380 000
1 февраля 2016 62 дн. 2 59 9/10 2 400 000

Похожие предложения о продаже квартир в г. Первоуральск

  • 1-к квартира, Чусовая, 1к1

    • 34.9 м2
    • 5/5 этаж
    • Состояние: хорошее
    1 899 000 ₽ (54400 ₽/м2)
    Рассмотрим обмен на 2х-3х комнатную квартиру с доплатой в пешей доступности от школы № 15. Без обременений! 2017 год постройки! Низкие коммунальные платежи! Собственная котельная, всегда есть горячая вода! Чистая и ухоженная! Тихий, зеленый двор с детской площадкой, д/сад в 100 метрах! Всегда есть парковочные места! Транспортная доступность, остановка рядом! Удобная функциональная планировка: комната правильной прямоугольной формы, просторные кухня, коридор и лоджия (застеклена). Пластиковые окна, счетчики на свет и воду. В подарок покупателю: помощь в одобрении ипотеки! Приглашаем на просмотры в удобное для Вас время. Звоните! ID объекта в нашей базе: 9094
    размещено: 31.10.2025 , обновлено: 12.11.2025
  • 1-к квартира, Ватутина, 12

    • 30.3 м2
    • 3/4 этаж
    • Состояние: хорошее
    1 650 000 ₽ (54500 ₽/м2)
    Объект № 194958. Продам однокомнатную квартиру гостиничного типа в центре города. Дом сталинского типа с высокими потолками. На этаже всего пять квартир, соседи приличные. Квартира очень тёплая в хорошем состоянии: балкон застеклён, поменяны окна, радиаторы отопления, входная дверь сейфовая, установлены душевая кабина, две раковины (подвод воды согласован). Также, в пользовании только этой квартиры, в соседнем помещении расположен туалет. При необходимости можно пользоваться общей ванной. Рядом с домом есть всё необходимое для комфортного проживания: Остановки транспорта, школа, дет.сад, больничный городок, кинотеатр Восход, парк с прогулочными зонами. Квартира юридически чистая, без долгов и обременений, один совершеннолетний собственник, возможны ипотека и мат.капитал, поможем с оформлением. показы возможны по предварительной договорённости. Звоните! ***Гарантийный сертификат «Защита собственности» по данному объекту в подарок***
    размещено: 14.10.2025 , обновлено: 4.12.2025
  • 1-к квартира, Химиков, 1

    • 21 м2
    • 5/5 этаж
    • Состояние: хорошее
    1 780 000 ₽ (84800 ₽/м2)
    Объект № 194605. В продаже однокомнатная квартира в спальном районе г. Первоуральска. Установлены пластиковые окна, в гостиной натяжной потолок, поменяны радиаторы отопления, кухня совмещена с утепленным балконом остекленным пластиковым стеклопакетом. Кухонный гарнитур остается. Соседи не шумные, дружелюбные. Рядом магазин Светофор, Магнит, Лента, поликлиника, дет.сад, школы, парк, до автостанции и ж/д 10 мин. Торг приветствуется/Рассмотрим варианты обмена на сад с домом и баней в черте города с Вашей доплатой. Предлагайте! ***Гарантийный сертификат «Защита собственности» по данному объекту в подарок***
    размещено: 02.10.2025 , обновлено: 10.11.2025
  • 1-к квартира, Советских Космонавтов, 8

    • 30.6 м2
    • 5/5 этаж
    • Состояние: удовлетворительное
    2 350 000 ₽ (76800 ₽/м2)
    Продается светлая, теплая квартира в отличном районе города.Всё в шаговой доступности: остановки, магазины, торговый центр «Марс», парк для отдыха и прогулок, Ледовый дворец, новый бассейн, набережная, ИКЦ.Один собственник. Чистая продажа. Документы готовы. Никто не прописан. Без обременений.Дом кирпичный, выгодно расположен вдали от дороги, зеленый двор.Рядом несколько садиков, школы 5,6, остановки, больница. Окна выходят во двор-север и на зеленую зону-восток. Балкон застеклен. санузел совмещен. Подоконники широкие. Во дворе большая парковка - места хватит всем и гостям тоже. ID объекта в нашей базе: 547
    размещено: 16.08.2025 , обновлено: 4.12.2025
  • 1-к квартира, Емлина, 21

    • 28 м2
    • 9/10 этаж
    • Состояние: хорошее
    2 310 000 ₽ (82500 ₽/м2)
    Этот вариант можно купить как для проживания и как готовый бизнес, квартира оборудована под салон-парикмахерскую. Все выводы под ванну, раковины, плиту, все на месте, поэтому все быстро сможете установить на места.Рядом остановки транспорта, магазины, детские садики, школы и т.д.Продаем в связи с переездом в Екатеринбург.Обременений нет, собственник один, быстрый выход на сделку.Записывайтесь на просмотр! ID объекта в нашей базе: 11783
    размещено: 27.05.2025 , обновлено: 5.12.2025

Приоритет

Увеличивает просмотры в 3 раза

Ваше объявление показывается в списке выше обычных объявлений. подключить