На Метре реклама - только нормальная. Никакого шок-контента.
Помогайте независимому ресурсу, как он помогает вам. Удачи!
Новостройки Котт. посёлки Объявления Динамика цен и сделок

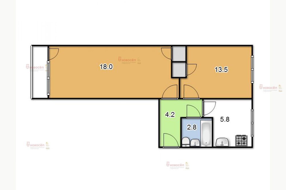
Продажа квартиры: г. Березовский, ул. Академика Королева, 6 (городской округ Березовский)

  • опубликовано 14.08.2020 , обновлено 10.03.2025
  • 98
Кадастровый номер:66:35:0111007:881
Рынок:вторичный
Количество комнат:2
Общая площадь:44 м2
Жилая площадь:31 м2
Площадь кухни:6 м2
Этаж/Этажность дома:4 / 5
Санузел:раздельный
Отделка:евроремонт
Состояние:хорошее
Цена:
2 650 000
Объявление снято с публикации
Коммунальные платежи:оплачиваются отдельно
Ипотека:возможна

Объект № 127721. Предлагаем отличный вариант 2-комнатной квартиры. Полностью готова к проживанию, окна на разные стороны, балкон застеклен. Санузел раздельный, входная дверь заменена. Хорошие соседи.
Дом расположен вдали от проезжей части, но в шаговой доступности: лицей №3, гимназия №7, детские сады, различные магазины, мфц, банк, остановка общественного транспорта, стадион Энергетик, ДК Современник, сосновый лес с белками. Шикарный вариант для семьи.
Рассмотрим вариант обмена. Принимаем к оплате любые виды сертификатов, в т.ч. материнский капитал. Возможна продажа по ипотеке. Ипотека от 7.4 %, скидка 0.3% на процентную ставку при приобретении в ипотеку ПАО Сбербанк, также согласование без отчета об оценке. ***Гарантийный сертификат «Защита собственности» по данному объекту в подарок***

Объявление снято с публикации

Ипотечный калькулятор

лет
%
Сумма кредита
2650000 ₽
Платеж
22 540 ₽

История предложений в этом доме

объявление снято с публикации в продаже комнат площадь этаж цена,
г. Березовский, ул. Академика Королева, 6 (городской округ Березовский) - фото квартиры 27 ноября 2024 90 дн. 3 61.6 2/5 4 600 000
г. Березовский, ул. Академика Королева, 6 (городской округ Березовский) - фото квартиры 5 апреля 2023 90 дн. 1 30 4/5 2 350 000
г. Березовский, ул. Академика Королева, 6 (городской округ Березовский) - фото квартиры 18 февраля 2023 90 дн. 2 44 3/5 2 900 000
г. Березовский, ул. Академика Королева, 6 (городской округ Березовский) - фото квартиры 29 июля 2022 90 дн. 1 30.3 5/5 2 300 000
г. Березовский, ул. Академика Королева, 6 (городской округ Березовский) - фото квартиры 23 ноября 2021 90 дн. 3 62 3/5 4 050 000
г. Березовский, ул. Академика Королева, 6 (городской округ Березовский) - фото квартиры 25 марта 2021 90 дн. 1 30 5/5 1 680 000
г. Березовский, ул. Академика Королёва, 6 (городской округ Березовский) - фото квартиры 6 сентября 2019 90 дн. 2 44 2/5 2 400 000

Похожие предложения о продаже квартир в г. Березовский

  • 2-к квартира, городок Больничный, 2

    • 41.5 м2
    • 1/2 этаж
    • Состояние: удовлетворительное
    3 400 000 ₽ (81900 ₽/м2)
    Агентство Дом Недвижимости продает 2-х комнатную квартиру со смежными комнатами. Дом расположен в центре г. Березовского рядом с поликлиникой, больницей, детской поликлиникой, магазинами, близи остановок общественного транспорта. Квартира очень теплая, светлая, в удовлетворительном состоянии, требует косметического ремонта. Установлены пластиковые окна, входная сейф дверь, домофон, счетчики горячей и холодной воды. Санузел совмещен, в удовлетворительном состоянии. Соседи аккуратные и дружелюбные. Окна комнаты выходят в зеленый двор. Прекрасно подойдет как первое жильё для студента или молодой семье. Чистая продажа, 1 совершеннолетний собственник. Звоните и мы договоримся о просмотре! Купить, продать комнату в агентстве Дом Недвижимости выгодно, безопасно и легко.
    размещено: 27.11.2025 , обновлено: 29.11.2025
  • 2-к квартира, Красных Героев, 9

    • 44.6 м2
    • 5/5 этаж
    • Состояние: удовлетворительное
    3 290 000 ₽ (73800 ₽/м2)
    Продается двухкомнатная квартира в теплом кирпичном доме. Комнаты изолированы- на разные стороны, удачная планировка, чистый подъезд, зеленый двор. Все объекты инфраструктуры в шаговой доступности: магазины, аптеки, остановки общественного транспорта- всё для комфортной жизни!!! ID объекта в нашей базе: 8728
    размещено: 08.09.2025 , обновлено: 3.12.2025
  • 2-к квартира, Ленинский, 8

    • 43.1 м2
    • 1/2 этаж
    • Состояние: хорошее
    3 400 000 ₽ (78900 ₽/м2)
    К продаже представлена двухкомнатная квартира ! В тихом месте города Березовский. По документам площадь 43 м , а по факту около 50.Санузел совмещенный. Все счетчики поменяны. Высокие потолки , за счет этого квартира очень просторная. Плюсом в бонус идет огород около 4 соток, баня действующая. Огород ухожен. Собственники взрослые. Без ограничений и обременений. ID объекта в нашей базе: 10682
    размещено: 08.08.2025 , обновлено: 3.11.2025

Новостройки г. Березовский

Приоритет

Увеличивает просмотры в 3 раза

Ваше объявление показывается в списке выше обычных объявлений. подключить