На Метре реклама - только нормальная. Никакого шок-контента.
Помогайте независимому ресурсу, как он помогает вам. Удачи!
Новостройки Котт. посёлки Объявления Динамика цен и сделок

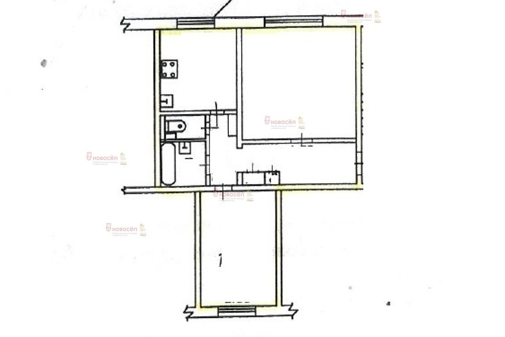
Продажа квартиры: г. Верхняя Пышма, ул. Успенский, 97 (городской округ Верхняя Пышма)

  • опубликовано 1.10.2020 , обновлено 10.08.2025
  • 26
Кадастровый номер:66-66-66-66-66-66
Рынок:вторичный
Количество комнат:2
Общая площадь:50 м2
Жилая площадь:30 м2
Площадь кухни:7 м2
Этаж/Этажность дома:1 / 5
Санузел:раздельный
Отделка:евроремонт
Состояние:хорошее
Цена:
3 350 000
Объявление снято с публикации
Коммунальные платежи:оплачиваются отдельно
Условия продажи:«чистая» продажа
Ипотека:возможна

Объект № 131250. Продам 2 комнатную квартиру в доме улучшенной планировки, в самом центе города. Квартира в хорошем состоянии, остается кухонный гарнитур и, при необходимости, мебель.
Рядом все, что нужно для жизни: школы, садик, магазины, аптеки.
Звоните, ждем на просмотры. Помощь в оформлении ипотеки. Один собственник, быстрый выход на сделку. ***Гарантийный сертификат «Защита собственности» по данному объекту в подарок***

Объявление снято с публикации

Ипотечный калькулятор

лет
%
Сумма кредита
3350000 ₽
Платеж
22 540 ₽

История предложений в этом доме

объявление снято с публикации в продаже комнат площадь этаж цена,
г. Верхняя Пышма, ул. Успенский, 97 (городской округ Верхняя Пышма) - фото квартиры 10 апреля 2025 90 дн. 2 40.6 1/5 3 990 000
20 апреля 2024 90 дн. 2 41.8 2/5 4 550 000
г. Верхняя Пышма, ул. Успенский, 97 (городской округ Верхняя Пышма) - фото квартиры 2 апреля 2024 90 дн. 2 44 3/5 4 100 000
г. Верхняя Пышма, ул. Успенский, 97 (городской округ Верхняя Пышма) - фото квартиры 7 октября 2023 90 дн. 2 44 4/5 3 100 000
г. Верхняя Пышма, ул. Успенский, 97 (городской округ Верхняя Пышма) - фото квартиры 29 декабря 2021 90 дн. 2 42 5/5 2 650 000
г. Верхняя Пышма, ул. Успенский, 97 (городской округ Верхняя Пышма) - фото квартиры 20 июля 2021 90 дн. 2 41.5 3/5 2 550 000
г. Верхняя Пышма, ул. Успенский, 97 (городской округ Верхняя Пышма) - фото квартиры 16 августа 2021 90 дн. 2 42 5/5 2 550 000
г. Верхняя Пышма, ул. Успенский, 97 (городской округ Верхняя Пышма) - фото квартиры 23 октября 2020 90 дн. 1 31 2/5 1 870 000
г. Верхняя Пышма, ул. Успенский, 97 (городской округ Верхняя Пышма) - фото квартиры 26 сентября 2020 90 дн. 2 41.2 3/5 2 390 000
г. Верхняя Пышма, ул. Успенский, 97 (городской округ Верхняя Пышма) - фото квартиры 25 октября 2020 90 дн. 1 30 5/5 1 950 000
15 июня 2019 90 дн. 1 39 1/5 2 330 000

Похожие предложения о продаже квартир в г. Верхняя Пышма

  • 2-к квартира, Калинина, 64

    • 45.5 м2
    • 4/5 этаж
    • Состояние: удовлетворительное
    3 900 000 ₽ (85700 ₽/м2)
    Продаётся 2х-кoмнaтная квартира, общей площадью 45.5 м2, окна выходят на разные стороны. Установлены счетчики на воду (ГВС/ХВС), электричество. Чистый подъезд. Дом расположен в центральной части города с хорошо развитой инфраструктурой и транспортной доступностью. В шаговой доступности остановка общественного транспорта, школа на против дома, детский сад, магазины, аптеки, кафе, пункты выдачи. Во дворе большая детская и спортивная площадки. Чистая продажа, один взрослый собственник! Квартира без залогов и обременений, освобождена. ID объекта в нашей базе: 226
    размещено: 10.12.2025
  • 2-к квартира, Успенский, 107

    • 45 м2
    • 4/5 этаж
    • Состояние: плохое
    3 450 000 ₽ (76700 ₽/м2)
    Продам квартиру в центре города . Нужен ремонт. Чистая продажа . ID объекта в нашей базе: 702
    размещено: 08.12.2025 , обновлено: 9.12.2025
  • 2-к квартира, Юбилейная, 7

    • 47.7 м2
    • 4/5 этаж
    4 300 000 ₽ (90100 ₽/м2)
    Объект №553. Представляем вашему вниманию уютную, просторную и очень теплую квартиру. Идеальный вариант для семьи с детками.Квартира на 4 этаже в 5-ти этажном доме, комнаты изолированные, окна на две стороны.Отличная площадь - 47,7 м2, которая вмешает в себя кухню, две просторных спальни, совмещенный санузел, гардероб и прихожую.В квартире выполнен ремонт под чистовую, произведена замена всей электрики, провода заменены на медные, собран новый качественный эл.щиток, проложены ТВ и интернет кабеля.Выполнено оштукатуривание стен, установлены направляющие под натяжной потолок и светильники. Пол наливной, окна стеклопакеты, откосы окон заменены на гипсокартон!Санузел готов под ключ!На пол на всю квартиру уже закуплен ламинат и плитка на пол. Новым владельцам останется только выбрать обои, межкомнатные двери, цвет натяжных потолков и дизайн светильников. Почти все грязные работы уже выполнены, но не выполнен сам ремонт, что является прекрасной возможностью обустроить жильё согласно вашим индивидуальным предпочтениям и вкусам. Инфраструктура: во дворе дома находится Детский сад № 42, школа № 2. В пешей доступности Детский сад № 23, школа № 33, поликлиника детская и взрослая, стоматология, больница, микрохирургия глаза, магазины : Верный, Монетка, Магнит, Пятерочка и др., остановки общественного транспорта. Во дворе всегда есть места для парковки.Чистая продажа, обременений нет, один взрослый собственник. В собственности более 5 лет!Этот вариант жилья станет отличным выбором для тех, кто ценит комфорт, уединённость и возможность создать свой уникальный интерьер. Приглашаем вас ознакомиться с квартирой, которая может стать вашим новым счастливым домом!Приобретая эту квартиру, вы получаете возможность создать свой уникальный уголок уюта и комфорта в спокойном районе с развитой инфраструктурой.
    размещено: 15.10.2025 , обновлено: 1.12.2025
  • 2-к квартира, Кривоусова, 12

    • 39.3 м2
    • 1/2 этаж
    • Состояние: удовлетворительное
    3 290 000 ₽ (83700 ₽/м2)
    Дом напротив Ледовой арены, где прекрасная площадка с различными тренажерами. Квартира со смежными комнатами и маленькой кладовой. Очень теплая, светлая. Пластиковые окна. Идеальный вариант под аренду. Кухонный гарнитур, холодильник, стиральная машина остаются. Один взрослый собственник, никто не прописан, быстрый выход на сделку. ID объекта в нашей базе: 6137
    размещено: 09.10.2025 , обновлено: 18.11.2025
  • 2-к квартира, Мичурина, 4

    • 48.9 м2
    • 5/5 этаж
    • Состояние: хорошее
    4 200 000 ₽ (85900 ₽/м2)
    Отличная квартира общей площадью 48.9 кв.м. ID объекта в нашей базе: 11717
    размещено: 05.10.2025 , обновлено: 11.12.2025

    2-к квартира, Огнеупорщиков, 12

    • 45.8 м2
    • 4/5 этаж
    • Состояние: хорошее
    4 300 000 ₽ (93900 ₽/м2)
    Продается 2-х комнатная квартира , в хорошем доме , в центре города. Окна выходят во двор на разные стороны, 2 полноценные изолированные комнаты, кухня , раздельный санузел.Дом теплый, идеальная шумоизоляция. В шаговой доступности - торговый центр , школа ,садики , остановки общественного транспорта, рядом выезд на Серовский тракт. ID объекта в нашей базе: 1025
    размещено: 09.07.2025 , обновлено: 11.12.2025

    2-к квартира, Машиностроителей, 4/1

    • 36.9 м2
    • 3/9 этаж
    • Состояние: удовлетворительное
    3 799 000 ₽ (103000 ₽/м2)
    Объект № 192697. Продается 2-комнатная квартира в спальном районе. Комнаты смежные, санузел совмещенный, в кафеле, установлен водонагреватель. Вид из окон на зеленый двор. Окна- пластик, двери - шпон. Покрытие пола - линолеум. Качественная сейф-дверь. Солнечная сторона, много света и тепла. Дом 9 этажей, 1981 года постройки. Развитая инфраструктура района, школа и детский сад напротив дома, аптеки, магазины, остановка автобуса в шаговой доступности. Документы проверены, 1 взрослый собственник. Ждем на просмотр! ***Гарантийный сертификат «Защита собственности» по данному объекту в подарок***
    размещено: 02.07.2025 , обновлено: 11.12.2025

Новостройки г. Верхняя Пышма

Приоритет

Увеличивает просмотры в 3 раза

Ваше объявление показывается в списке выше обычных объявлений. подключить