На Метре реклама - только нормальная. Никакого шок-контента.
Помогайте независимому ресурсу, как он помогает вам. Удачи!
Новостройки Котт. посёлки Объявления Динамика цен и сделок

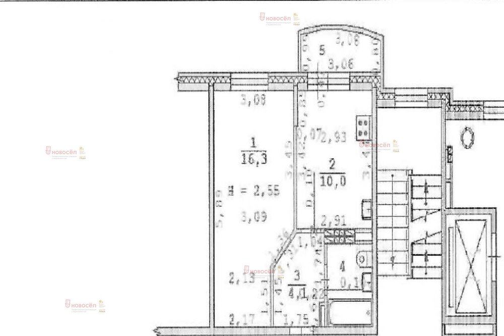
Продажа квартиры: Екатеринбург, ул. Славянская, 49 (Химмаш)

  • опубликовано 19.10.2020 , обновлено 11.06.2025
  • 35
Кадастровый номер:66:41:0509005:519
Рынок:вторичный
Срок сдачи: 2007 года
Количество комнат:1
Общая площадь:34 м2
Жилая площадь:16 м2
Площадь кухни:10 м2
Этаж/Этажность дома:6 / 10
Санузел:совмещенный
Отделка:евроремонт
Год постройки:2007
Состояние:хорошее
Цена:
2 700 000
Объявление снято с публикации
Коммунальные платежи:оплачиваются отдельно
Ипотека:возможна

Объект № 131595. Отличная однокомнатная квартира в кирпичном доме 2007 г. постройки, общая площадь - 34 кв.м, комната 16,3 кв.м, кухня 10 кв.м, планировка изолированная. Квартира в хорошем состоянии, есть все необходимое.
Остается мебель, шкаф-купе, кухонный гарнитур, посудомойка, водонагревательный котел. Лоджия утеплена, сделан теплый пол. Окна во двор. ***Гарантийный сертификат «Защита собственности» по данному объекту в подарок***

Объявление снято с публикации

Ипотечный калькулятор

лет
%
Сумма кредита
2700000 ₽
Платеж
22 540 ₽

Актуальные предложения в этом доме

  • 3-к квартира, Славянская, 49

    • 62.5 м2
    • 4/10 этаж
    • Состояние:
    7 800 000 ₽ (124800 ₽/м2)
    Продается уютная квартира с комфортной планировкой. Развитая инфраструктура района включает в себя все необходимое для комфортной жизни-в пешей доступности школы и детские сады, остановки общественного транспорта и магазины. Так же рядом лес и стадион-есть все для занятий спортом и прогулок на свежем воздухе.Просторный двор с площадкой для детских игр. Чистый подъезд, хорошая управляющая компания.Состояние квартиры позволяет сразу заехать и жить в свое удовольствие! Остается кухонный гарнитур , встроенные шкафы, водонагреватель.Звоните, ответим на все вопросы! Просмотры по согласованию в удобное для вас время. ID объекта в нашей базе: 3020
    размещено: 20.10.2025

История предложений в этом доме

объявление снято с публикации в продаже комнат площадь этаж цена,
Екатеринбург, ул. Славянская, 49 (Химмаш) - фото квартиры 22 мая 2024 90 дн. 2 50.4 7/10 5 400 000
Екатеринбург, ул. Славянская, 49 (Химмаш) - фото квартиры 29 февраля 2024 90 дн. 1 34.5 1/10 3 700 000
Екатеринбург, ул. Славянская, 49 (Химмаш) - фото квартиры 21 марта 2024 90 дн. 2 50.4 7/10 5 500 000
Екатеринбург, ул. Славянская, 49 (Химмаш) - фото квартиры 3 июня 2023 90 дн. 1 38 7/10 3 550 000
Екатеринбург, ул. Славянская, 49 (Химмаш) - фото квартиры 8 апреля 2023 90 дн. 2 50.8 5/10 4 430 000
Екатеринбург, ул. Славянская, 49 (Химмаш) - фото квартиры 14 февраля 2023 90 дн. 3 62 5/10 5 300 000
Екатеринбург, ул. Славянская, 49 (Химмаш) - фото квартиры 12 ноября 2022 90 дн. 2 49.3 5/10 4 600 000
Екатеринбург, ул. Славянская, 49 (Химмаш) - фото квартиры 18 августа 2021 90 дн. 3 61.7 6/10 4 700 000
Екатеринбург, ул. Славянская, 49 (Химмаш) - фото квартиры 1 сентября 2021 90 дн. 1 37.9 3/10 2 900 000
Екатеринбург, ул. Славянская, 49 (Химмаш) - фото квартиры 30 июня 2021 90 дн. 2 51 10/10 4 150 000
Екатеринбург, ул. Славянская, 49 (Химмаш) - фото квартиры 6 мая 2021 90 дн. 2 38 4/10 2 730 000
Екатеринбург, ул. Славянская, 49 (Химмаш) - фото квартиры 14 июля 2021 90 дн. 1 34.5 1/10 2 770 000
Екатеринбург, ул. Славянская, 49 (Химмаш) - фото квартиры 8 апреля 2021 90 дн. 1 37.8 4/10 2 730 000
Екатеринбург, ул. Славянская, 49 (Химмаш) - фото квартиры 21 февраля 2021 90 дн. 2 50 1/10 3 580 000
Екатеринбург, ул. Славянская, 49 (Химмаш) - фото квартиры 26 февраля 2021 90 дн. 1 37.7 7/10 2 950 000
Екатеринбург, ул. Славянская, 49 (Химмаш) - фото квартиры 22 декабря 2020 90 дн. 2 50.3 6/10 3 300 000
Екатеринбург, ул. Славянская, 49 (Химмаш) - фото квартиры 3 июня 2020 90 дн. 1 42 10/10 2 600 000
Екатеринбург, ул. Славянская, 49 (Химмаш) - фото квартиры 13 августа 2020 90 дн. 1 36 10/10 2 680 000
Екатеринбург, ул. Славянская, 49 (Химмаш) - фото квартиры 15 мая 2020 90 дн. 1 38.3 3/10 2 550 000
Екатеринбург, ул. Славянская, 49 (Химмаш) - фото квартиры 25 марта 2020 90 дн. 1 38.1 6/10 2 349 000
Екатеринбург, ул. Славянская, 49 (Химмаш) - фото квартиры 13 марта 2020 90 дн. 1 38.1 6/10 2 349 000
Екатеринбург, ул. Славянская, 49 (Химмаш) - фото квартиры 10 августа 2019 90 дн. 1 34.1 3/10 2 490 000
10 апреля 2019 90 дн. 1 38 4/10 2 830 000
4 декабря 2018 90 дн. 1 37 6/10 2 350 000

Похожие предложения о продаже квартир в Екатеринбурге (Химмаш)

  • 1-к квартира, Бородина, 11

    • 28.8 м2
    • 3/5 этаж
    • Состояние: хорошее
    3 100 000 ₽ (107600 ₽/м2)
    Продается уютная, светлая, однокомнатная квартира в хорошем состоянии. В шаговой доступности школы, детские садики, магазины, аптеки. Два взрослых собственника, в собственности более пяти лет. Основание — договор купли-продажи. Никто не прописан. Свободная продажа. Материнский капитал при покупке не использовался. Показ по договоренности. Условия приобретения: — Полный пакет документов и сопровождение сделки — Ипотека, Военная ипотека — Взаимозачет Вашей недвижимости — Сертификаты, Материнский капитал Получить бесплатную консультацию, помощь ипотечного брокера и юридическую поддержку, Вы сможете обратившись в наше агентство — «Азбука Недвижимости». Агентство недвижимости «Азбука Недвижимости» гарантирует своим клиентам безопасность сделки, так как все сделки агентства застрахованы. ID объекта в нашей базе: 1915
    размещено: 29.09.2025 , обновлено: 19.10.2025
  • 1-к квартира, Инженерная, 28

    • 29 м2
    • 3/5 этаж
    • Состояние: хорошее
    3 490 000 ₽ (120300 ₽/м2)
    Объект № 194921. Предлагается к продаже уютная однокомнатная квартира на удобном 3 этаже. В квартире сделан качественный ремонт, квартира очень теплая. В шаговой доступности все необходимое для проживания: сетевые магазины, школы, садики. Один собственник. Без обременений. Приходите на просмотр. ***Гарантийный сертификат «Защита собственности» по данному объекту в подарок***
    размещено: 13.10.2025 , обновлено: 20.10.2025
  • 1-к квартира, Инженерная, 23

    • 30 м2
    • 4/5 этаж
    • Состояние: хорошее
    3 080 000 ₽ (102700 ₽/м2)
    Объект № 194753. Представляем вам прекрасную однокомнатную квартиру, расположенную на 4-м этаже 5-этажного дома. Общая площадь составляет комфортные 30 м², идеально подходящие для жизни и творчества. Квартира отличается особой атмосферой тепла и уюта. Чистый и обновленный подъезд добавляет приятных ощущений, начиная с первого шага. Окруженный зелёными насаждениями район обеспечивает покой и приятную атмосферу вдали от городской суеты. Приятным дополнением является соседство с живописным Нижне-Исетским прудом, где можно наслаждаться прогулками и свежим воздухом. Район также выделяется развитой инфраструктурой, позволяющей быстро решать любые бытовые вопросы. Здесь есть всё необходимое для комфортной жизни: продуктовые магазины, аптеки, места общественного питания и зоны активного отдыха. Идеально подойдёт тем, кто мечтает жить в атмосфере спокойствия и красоты природы, наслаждаясь удобствами развитого района. ***Гарантийный сертификат «Защита собственности» по данному объекту в подарок***
    размещено: 08.10.2025 , обновлено: 20.10.2025
  • 1-к квартира, Черняховского, 48

    • 30 м2
    • 1/5 этаж
    • Состояние: хорошее
    2 880 000 ₽ (96000 ₽/м2)
    Квартира светлая, в комнате два окна, очень теплая, чистенькая, с косметическим ремонтом, остается вся мебель и техника, заезжай и живи.Дом и подъезд в хорошем состоянии, всегда есть парковочное место.Район насыщен всей необходимой инфраструктурой. В пешей доступности находятся школы, детские сады, клиники и магазины. Обременений нет, записывайтесь на просмотр.... ID объекта в нашей базе: 11877
    размещено: 06.10.2025 , обновлено: 20.10.2025
  • 1-к квартира, Косарева, 15

    • 32.1 м2
    • 1/10 этаж
    • Состояние: удовлетворительное
    2 990 000 ₽ (93100 ₽/м2)
    Не упустите возможность приобрести уютную однокомнатную квартиру в одном из лучших кирпичных домов УП в мкр. Химмаш. Оцените основные преимущества нашего предложения: Кирпичный дом - хорошо сохраняет тепло и имеет лучшую шумоизоляцию. Выше срок службы. Высокий первый этаж - под окнами никто не ходит. Приятный бонус - в подарок покупателям остается абсолютно вся мебель и техника. В ванной комнате сделан капитальный ремонт с заменой всех коммуникаций. Доброжелательные и тихие соседи, с которыми никогда не возникает конфликтов. Родители малышей и школьников по достоинству оценят местоположение дома. Совсем рядом находятся муниципальные детские садики № 526 и № 277, школа № 105, бассейн "Кристалл". Удобная транспортная развязка, в шаговой доступности остановки общественного транспорта (троллейбус, автобус). Один собственник, чистая продажа! Не откладывайте свой звонок, завтра вам могут ответить: "Продано"! ID объекта в нашей базе: 172
    размещено: 16.09.2025 , обновлено: 20.10.2025

    1-к квартира, Бородина, 4

    • 30 м2
    • 5/5 этаж
    • Состояние: хорошее
    2 850 000 ₽ (95000 ₽/м2)
    Квартира освобождена, можно сразу заехать и жить. Рядом 2 школы и 2 детских сада. Квартира светлая и тёплая. Кровлю отремонтировали в 2023 году. В квартире установлены: сейф-дверь, новые стеклопакеты с ключами, полностью сменена проводка на медную. Быстрый выход на сделку, документы готовы. 1 взрослый собственник. ID объекта в нашей базе: 11103
    размещено: 02.09.2025 , обновлено: 2.10.2025

    1-к квартира, Инженерная, 28

    • 28.1 м2
    • 5/5 этаж
    • Состояние: хорошее
    3 199 000 ₽ (113800 ₽/м2)
    Объект № 191139. Продаем однокомнатную квартиру в кирпичном доме в спальном микрорайоне Химмаш. Дом 1982г. (3 очередь- кирпич). Удачное расположение – все в шаговой доступности: детские сады, школы, много магазинов, бассейн (200 м от дома), парки, лодочная станция. Много транспорта: автобусы, троллейбусы- до остановки 500 метров. Удобный выезд на Объездную. Функциональная планировка: комната правильной формы, просторная гардеробная. Кирпичные стены обеспечивают отличную тепло- и звукоизоляцию. Квартира в отличном состоянии: выполнен косметический ремонт, натяжные потолки, сделан санузел, балкон остеклен, установлена хорошая сейф-дверь. Возможен быстрый выход на сделку. Один взрослый собственник, материнский капитал не использовался, обременений нет. Если нужно- поможем с оформлением ипотеки. Звоните, записывайтесь на просмотр. ***Гарантийный сертификат «Защита собственности» по данному объекту в подарок***
    размещено: 21.08.2025 , обновлено: 20.10.2025

    1-к квартира, Бородина, 7

    • 33.4 м2
    • 4/5 этаж
    • Состояние: удовлетворительное
    2 800 000 ₽ (83800 ₽/м2)
    ID объекта в нашей базе: 3523
    размещено: 18.08.2025 , обновлено: 5.10.2025

    1-к квартира, Профсоюзная, 61

    • 35 м2
    • 11/12 этаж
    • Состояние: плохое
    3 390 000 ₽ (96900 ₽/м2)
    Объект № 192879. Продается однокомнатная квартира с панорамным видом на водоём, горы и парусники. Что Вас ждет? В этом уютном уголке, в прочном доме, Вы сможете перепланировать комнату на 2 самостоятельные. В квартире требуется ремонт- проживали пожилые люди. Почему стоит купить именно эту квартиру? Уникальное сочетание комфорта, локации и красоты из окна. Отличная транспортная доступность. Развита инфраструктура: магазины, школы, парки в шаговой доступности. Не упусти шанс стать обладателем этой замечательной квартиры! Звони прямо сейчас и записывайся на просмотр. ***Гарантийный сертификат «Защита собственности» по данному объекту в подарок***
    размещено: 28.07.2025 , обновлено: 17.10.2025

    1-к квартира, Инженерная, 7

    • 29 м2
    • 4/5 этаж
    • Состояние: хорошее
    3 000 000 ₽ (103400 ₽/м2)
    Объект № 193264. Предлагается к продаже уютная однокомнатная квартира на Химмаше. В квартире сделан ремонт, окна пластиковые, ламинат, натяжные потолки. Новому собственнику в подарок мебель и техника. Подъезд чистый, соседи спокойные. Развитая инфраструктура, несколько садиков, 2 школы, поликлиника в шаговой доступности. Один собственник, без обременений. Звоните и приходите на просмотр. ***Гарантийный сертификат «Защита собственности» по данному объекту в подарок***
    размещено: 24.07.2025 , обновлено: 8.10.2025

    1-к квартира, Косарева, 19

    • 31.4 м2
    • 4/5 этаж
    • Состояние: хорошее
    3 180 000 ₽ (101300 ₽/м2)
    Объект № 192859. Отличная квартира в спальном районе. Выполнен косметический ремонт. Соседи дружные, большой зеленый двор, оборудованная детская площадка, с парковочными местами нет проблем. Инфраструктура развитая, все в шаговой доступности: торговый центр, детские и образовательные центры, спортивно-оздоровительный комплекс, лесопарковая зона, удобная транспортная развязка. Документы готовы, ипотека и все виды сертификатов возможны, два взрослых собственника. ***Гарантийный сертификат «Защита собственности» по данному объекту в подарок***
    размещено: 21.07.2025 , обновлено: 15.10.2025

    1-к квартира, Черняховского, 41

    • 37.8 м2
    • 1/2 этаж
    • Состояние: хорошее
    3 085 000 ₽ (81600 ₽/м2)
    Продается однокомнатная полнометражная квартира в центре Химмаша. Квартира очень теплая. Рядом вся необходимая инфраструктура (поликлиника, дет.сады, школы, аптеки, магазины, сбербанк, пункты выдачи). Два совершеннолетних собственника, рассмотрим обмен на 2-х комнатную квартиру на Химмаше с нашей доплатой. ID объекта в нашей базе: 17594
    размещено: 26.06.2025 , обновлено: 19.10.2025

    1-к квартира, Инженерная, 11

    • 30.6 м2
    • 2/5 этаж
    • Состояние: удовлетворительное
    2 650 000 ₽ (86600 ₽/м2)
    Продается уютная однокомнатная квартира площадью 30.6 квадратных метров на втором этаже пятиэтажного кирпичного дома, расположенного по адресу: Екатеринбург, Химмаш м-н, улица Инженерная, 11. Дом построен в 1970 году и окружен зелеными насаждениями, создающими приятную атмосферу для жизни.Квартира имеет жилую площадь 17.4 квадратных метра и функциональную кухню площадью 6 квадратных метров, где можно удобно разместить все необходимое для приготовления пищи. Санузел совмещен, что является удобством для экономии пространства.Расположение квартиры позволяет быстро добраться до основных городских магистралей, а также насладиться прогулками по окрестностям. Рядом расположены магазины «Продукты», «Кировский» и супермаркет, что значительно упрощает процесс покупок и экономит ваше время.Это отличное предложение для тех, кто ценит комфорт, тишину и природу рядом с домом. Приглашаем вас ознакомиться с квартирой и убедиться во всех ее преимуществах лично! Если Вам понравилась эта квартира, а на ее приобретение не хватает средств, мы для Вас в кратчайшие сроки одобрим ипотеку, за счет партнерской программы ставки по кредиту ниже!!! Если Вы хотите обменять свою недвижимость, предложите ее нашему Агентству, возможно сейчас на нее есть покупатель!!! Срочно!!! Торг!!! ID объекта в нашей базе: 17117
    размещено: 07.03.2025 , обновлено: 13.10.2025

    1-к квартира, Черняховского, 48

    • 31 м2
    • 2/5 этаж
    • Состояние: хорошее
    2 800 000 ₽ (90300 ₽/м2)
    Объект № 186200. Продается 1-комнатная квартира с отдельной спальней! Квартира светлая, теплая. За счет кирпичных стен отличная звуко- и теплоизоляция. В комнате поставлена перегородка так, что получается 2 части: с выходом на балкон и с окном. Соседи приветливые. Во дворе есть детская игровая площадка. Рядом с домом есть магазины, аптеки, взрослая поликлиника. В шаговой доступности школы № 86 и 105, детские сады № 201, 277 и 256, остановки общественного транспорта. Помогу с оформлением ипотеки. Рассматриваем покупателей с плохой кредитной историей и с трудностями подтверждения дохода. Если есть своя квартира, расскажите об этом, возможно, сейчас у нас есть на нее покупатель. Звоните, записывайтесь на просмотр! ***Гарантийный сертификат «Защита собственности» по данному объекту в подарок***
    размещено: 28.08.2024 , обновлено: 20.10.2025

Приоритет

Увеличивает просмотры в 3 раза

Ваше объявление показывается в списке выше обычных объявлений. подключить