На Метре реклама - только нормальная. Никакого шок-контента.
Помогайте независимому ресурсу, как он помогает вам. Удачи!
Новостройки Котт. посёлки Объявления Динамика цен и сделок

Продажа квартиры: Екатеринбург, ул. Белинского, 147 (Автовокзал)

  • опубликовано 28.10.2020 , обновлено 21.02.2026
  • 28
Рынок:вторичный
Срок сдачи: 1979 года
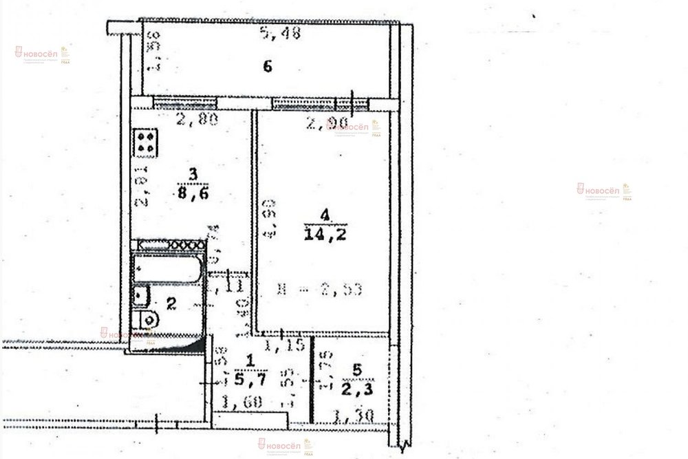
Количество комнат:1
Общая площадь:33 м2
Жилая площадь:14 м2
Площадь кухни:8 м2
Этаж/Этажность дома:12 / 12
Санузел:совмещенный
Отделка:косметический
Год постройки:1979
Состояние:удовлетворительное
Цена:
3 200 000
Объявление снято с публикации
Коммунальные платежи:оплачиваются отдельно
Ипотека:возможна

Объект № 132392. Продам 1-квартиру 33,6 кв. м. Отличная кухня 8,6 кв.м, комната 14,2 кв.м. с просторной застеклённой лоджией. Окна во двор. Установлены счетчики ХВС/ ГВС. В подъезде в 2021 году будет ремонт.
Развитая инфраструктура, дом не у дороги.
Один взрослый собственник, быстрый выход на сделку. ***Гарантийный сертификат «Защита собственности» по данному объекту в подарок***

Объявление снято с публикации

Ипотечный калькулятор

лет
%
Сумма кредита
3200000 ₽
Платеж
22 540 ₽

Актуальные предложения в этом доме

  • 1-к квартира, Белинского, 147

    • 34.2 м2
    • 2/12 этаж
    • Состояние:
    5 650 000 ₽ (165200 ₽/м2)
    Отличная квартира с удачной планировкой в лучшей локации! Комфортный этаж,чистый подъезд, просторная лоджия, окна на восток-РАССВЕТЫ!!! Все объекты инфраструктуры в шаговой доступности: магазины, аптеки, школа, остановки общественного транспорта в любую точку города-всё для счастливой жизни! В подарок покупателю остаётся кухонный гарнитур и шкаф. Чистая продажа, ипотека возможна! ID объекта в нашей базе: 9760
    размещено: 25.02.2026

История предложений в этом доме

объявление снято с публикации в продаже комнат площадь этаж цена,
Екатеринбург, ул. Белинского, 147 (Автовокзал) - фото квартиры 6 мая 2023 90 дн. 2 48 4/12 5 300 000
Екатеринбург, ул. Белинского, 147 (Автовокзал) - фото квартиры 3 февраля 2023 90 дн. 1 34 5/9 3 550 000
Екатеринбург, ул. Белинского, 147 (Автовокзал) - фото квартиры 26 ноября 2022 90 дн. 2 48 4/12 5 250 000
Екатеринбург, ул. Белинского, 147 (Автовокзал) - фото квартиры 25 ноября 2022 90 дн. 2 47.6 1/12 4 860 000
21 сентября 2022 90 дн. 2 48 1/12 4 757 000
Екатеринбург, ул. Белинского, 147 (Автовокзал) - фото квартиры 29 июня 2022 90 дн. 2 47 11/12 5 300 000
Екатеринбург, ул. Белинского, 147 (Автовокзал) - фото квартиры 29 мая 2021 90 дн. 2 47.5 8/12 4 500 000
Екатеринбург, ул. Белинского, 147 (Автовокзал) - фото квартиры 16 марта 2021 90 дн. 2 47.4 7/12 4 250 000
Екатеринбург, ул. Белинского, 147 (Автовокзал) - фото квартиры 30 ноября 2020 90 дн. 1 33.6 12/12 3 300 000
Екатеринбург, ул. Белинского, 147 (Автовокзал) - фото квартиры 2 февраля 2022 90 дн. 2 48.6 7/12 4 200 000
Екатеринбург, ул. Белинского, 147 (Автовокзал) - фото квартиры 2 октября 2020 90 дн. 2 48 1/12 3 810 000
Екатеринбург, ул. Белинского, 147 (Автовокзал) - фото квартиры 2 февраля 2022 90 дн. 2 49 7/12 4 150 000
Екатеринбург, ул. Белинского, 147 (Автовокзал) - фото квартиры 12 апреля 2020 90 дн. 2 58 7/12 3 790 000
Екатеринбург, ул. Белинского, 147 (Автовокзал) - фото квартиры 12 марта 2020 90 дн. 2 48 12/12 3 200 000
Екатеринбург, ул. Белинского, 147 (Автовокзал) - фото квартиры 13 декабря 2019 90 дн. 2 48.1 12/12 3 450 000
3 июля 2017 91 дн. 2 48 6/12 3 350 000
1 июля 2016 91 дн. 2 47.8 4/12 3 650 000
15 ноября 2015 61 дн. 2 53 8/12 3 350 000

Похожие предложения о продаже квартир в Екатеринбурге (Автовокзал)

  • 1-к квартира, Степана Разина, 51

    • 18.4 м2
    • 5/5 этаж
    • Состояние: хорошее
    2 570 000 ₽ (139700 ₽/м2)
    В продаже уютная квартира-студия площадью 18.4 кв.м с собственной кухней и санузлом в очень привлекательной локации микрорайона Автовокзал.В стоимость входит кухонный гарнитур с варочной поверхностью Hansa и вытяжкой Lex и кровать с матрасом.Также по договоренности можем оставить шкаф и стиральную машину.Квартира расположена на 5том этаже кирпичного дома, сделан косметический ремонт. Установлена сейф-дверь, пластиковое окно, в коридоре на полу линолеум, в комнате ламинат и натяжной потолок, в ванной на стенах и потолке пластиковые панели. Есть счетчики на воду и электричество.Квартира подойдет как для проживания, так и для сдачи в аренду, такие студии пользуются большим спросом у студентов.Расположение дома имеет огромные преимущества, до центра можно добраться за 15-20 минут. В 10ти минутах пешком от дома станция метро Чкаловская и ТЦ Мегаполис, так же рядом остановки Фрунзе(трамвай и автобус), во дворе детский сад 77, в паре минут гимназия 120, школа 93, у дома находится Гипермаркет Магнит и множество других магазинов, а также аптеки и другие объекты социальной инфраструктуры.В относительной близости ЦПКиО, парк Зеленая роща, Дендропарк и ТРЦ Гринвич.Один взрослый собственник. ID объекта в нашей базе: 5248
    размещено: 08.02.2026 , обновлено: 19.02.2026
  • 1-к квартира, Фурманова, 60

    • 18.5 м2
    • 5/5 этаж
    • Состояние: хорошее
    2 800 000 ₽ (151400 ₽/м2)
    Продается ухоженная квартира-студия в центре города!Вариант как для жизни, так и для сдачи в аренду. На полу ламинат, обои на стенах, санузел в кафельной плитке.Вся инфраструктура в шаговой доступности: школы, детские сады, УрГЭУ СИНХ, Горно-геологическая академия, взрослая и детская поликлиники, цирк, дендрологический парк, южный автовокзал.Транспортная развязка отличная: метро, трамвай, автобус, троллейбус.Обременений нет, взрослые собственники.Успевайте приобрести выгодный вариант недвижимости! ID объекта в нашей базе: 12125
    размещено: 12.01.2026 , обновлено: 22.02.2026
  • 1-к квартира, Машинная, 42/1

    • 18.6 м2
    • 4/5 этаж
    • Состояние: плохое
    2 600 000 ₽ (139800 ₽/м2)
    Продаётся студия со статусом квартира по адресу: ул. Машинная, 42/1.Отличный вариант для первого жилья или сдачи в аренду!Полноценная квартира с собственной душевой, санузлом и кухонной зоной. Не комната и не малосемейка!Преимущества: Квартира требует ремонта, а значит вы не переплачиваете за чужой дизайн и можете реализовать свои идеи с нуля.По желанию покупателя можем предложить качественный ремонт “под ключ” от 12 000 руб./м2 и полную мебелировку. Планировка позволяет сделать удобное и современное пространство под себя. Кирпичный дом - лучше сохраняет тепло и имеет лучшую шумоизоляцию. Выше срок службы. Ухоженная придомовая территория с детской площадкой. В доме расположен детский клуб «Свезар». Благодаря удачному расположению дома его жители могут пользоваться развитой и отлаженной инфраструктурой двух микрорайонов – Автовокзал и Ботанический. В шаговой доступности работают супермаркеты, аптеки, фитнес-центры, салоны красоты и медицинские центры, в 5 минутах на машине расположены круглосуточный гипермаркет «О`Кей», ТЦ «Дирижабль» и «Ботаника Молл». Жилой комплекс связан удобным сообщением с крупными автомагистралями - ул. Белинского, ул. Машинная, ЕКАД, Новокольцовский тракт. За 16 минут можно доехать до Международного аэропорта «Кольцово». Рядом остановки общественного транспорта, до метро "Ботаническая" 11 мин пешком. Квартира отлично подойдёт:• для студентов и молодых специалистов;• как стартовое жильё;• для сдачи в аренду — район стабильно востребован.???? Звоните, с удовольствием покажу квартиру и отвечу на все вопросы. ID объекта в нашей базе: 191
    размещено: 18.12.2025 , обновлено: 22.02.2026
  • 1-к квартира, Фрунзе, 102

    • 70 м2
    • 4/9 этаж
    • Состояние: хорошее
    2 300 000 ₽ (32900 ₽/м2)
    Предлагаем вашему вниманию комнату в четырех комнатной квартире. Плюсы:1. Квартира мало населена( по одному соседу)2.. Из комнаты свой выход на огромную лоджию 7 метров!! это еще плюс к жилой площади которую можно использовать по своему назначению.3. Дом кирпичный, новый лифт.Один собственник быстрый выход на сделку. Ипотека возможна., помощь в оформлении! Звоните с удовольствием покажем!! ID объекта в нашей базе: 12026
    размещено: 03.12.2025 , обновлено: 20.02.2026
  • 1-к квартира, 8 Марта, 73

    • 22.2 м2
    • 3/4 этаж
    • Состояние: идеальное
    4 000 000 ₽ (180200 ₽/м2)
    Продается квартира студия 22,2 м².Статус КВАРТИРА в самом центре Екатеринбурга.Окна во двор.В студии высокие потолки 3,3м.Дом кирпичный.Сделан ремонт, полностью меблирована, продается со всей обстановкой (Техника по договорённости).Квартира очень жаркая.Сделан капитальный ремонт, включающий в себя:- замену электропроводки- замену батарей, поставлены вентили- узаконена вода и перепланировка- на полу хороший ламинатНаш объект подходит под ипотеку.Дом находится в районе Автовокзала — удобное расположение: в шаговой доступности 2 станции метро.Остановка транспорта — в 1 минуте ходьбы. Развитая инфраструктура: рядом торговые центры, магазины, аптеки, школы и детские сады.Прогулочный парк Зеленая роща, Аллея Дворца спорта и Дворец спорта в шаговой доступности.Р.S. В продаже 2 соседних квартиры. Можем продать обе в одни руки. ID объекта в нашей базе: 12494
    размещено: 17.11.2025 , обновлено: 8.02.2026

    1-к квартира, Степана Разина, 51

    • 13.2 м2
    • 1/5 этаж
    • Состояние: хорошее
    2 600 000 ₽ (197000 ₽/м2)
    Предлагается к продаже уютная студия на первом этаже в монолитном доме. Дом очень теплый, находится в районе Автовокзала, на границе с центром города. Установлены счетчики электроэнергии и воды. Низкие коммунальные платежи. Мебель и техника по договоренности. ID объекта в нашей базе: 4732
    размещено: 09.10.2025 , обновлено: 22.02.2026

    1-к квартира, Хуторская, 1

    • 20 м2
    • 19/25 этаж
    • Состояние: идеальное
    3 990 000 ₽ (199500 ₽/м2)
    Уютная видовая (вид на реку Исеть) квартира-студия с современным ремонтом, не требует дополнительных вложений. Заезжай и живи! Остается вся мебель и техника (кухонный гарнитур, варочная поверхность, вытяжка, холодильник, стиральная машинка, диван, шкафы, прихожая, обеденный стол, стулья, тумбочка под телевизор)Низкие коммунальные платежи - около 2000 руб (счётчики на воду, электричество, отопление) Расположение дома предлагает отличные возможности для активного отдыха и прогулок благодаря близости парка Маяковского и набережной реки Исеть. Для молодых семей особенно актуальна развитая инфраструктура района: рядом находятся школа и детский сад, а также торговый центр, где можно приобрести все необходимое для повседневной жизни.Хотя квартира расположена в динамично развивающемся районе, она предоставляет возможность жить в тихой и спокойной обстановке, одновременно имея быстрый доступ ко всем необходимым объектам инфраструктуры. ID объекта в нашей базе: 3751
    размещено: 14.02.2025 , обновлено: 23.02.2026

Новостройки Екатеринбург, мкр-н. Автовокзал

Приоритет

Увеличивает просмотры в 3 раза

Ваше объявление показывается в списке выше обычных объявлений. подключить