На Метре реклама - только нормальная. Никакого шок-контента.
Помогайте независимому ресурсу, как он помогает вам. Удачи!
Новостройки Котт. посёлки Объявления Динамика цен и сделок

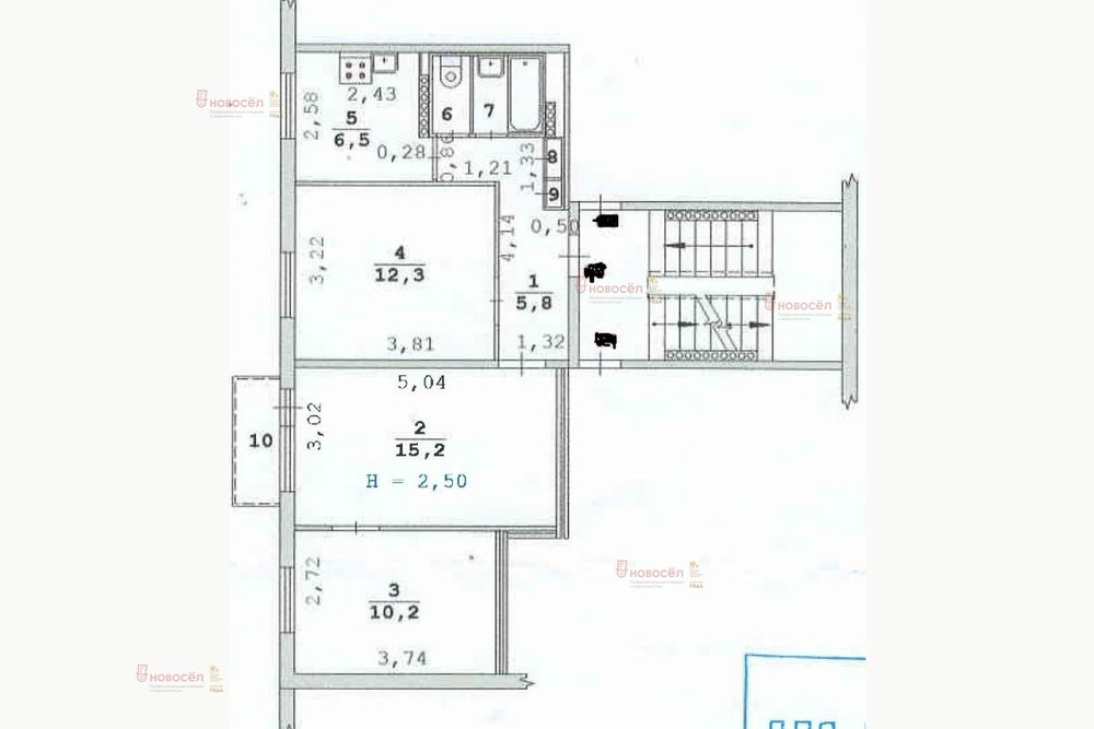
Продажа квартиры: Екатеринбург, ул. Авиационная, 61/2 (Автовокзал)

  • опубликовано 24.02.2021 , обновлено 1.07.2025
  • 38
Кадастровый номер:66:41:0501054:858
Рынок:вторичный
Срок сдачи: 1970 года
Количество комнат:3
Общая площадь:55 м2
Жилая площадь:38 м2
Площадь кухни:6 м2
Этаж/Этажность дома:2 / 5
Санузел:совмещенный
Отделка:евроремонт
Год постройки:1970
Состояние:хорошее
Цена:
3 600 000
Объявление снято с публикации
Коммунальные платежи:оплачиваются отдельно
Ипотека:возможна

Объект № 138062. Продается отличная квартира в самом центре района, вдали от дорог, с зеленым двором. 2 этаж. Квартира на одну сторону дома, западную, вид на зеленый двор. Состояние квартиры чистое, косметическое. Заменены стеклопакеты, сейф-дверь. Обои, линолеум, санузел в кафеле. Остается кухня. Установлены приборы учета на воду и двухтарифный на эл-во. В шаговой доступности все социально значимые объекты, удобная транспортная доступность. Два взрослых собственника, обременений нет. ***Гарантийный сертификат «Защита собственности» по данному объекту в подарок***

Объявление снято с публикации

Ипотечный калькулятор

лет
%
Сумма кредита
3600000 ₽
Платеж
22 540 ₽

История предложений в этом доме

объявление снято с публикации в продаже комнат площадь этаж цена,
Екатеринбург, ул. Авиационная, 61/2 (Автовокзал) - фото квартиры 8 марта 2024 90 дн. 2 44 4/5 4 299 000
Екатеринбург, ул. Авиационная, 61/2 (Автовокзал) - фото квартиры 31 декабря 2021 90 дн. 1 31 1/5 3 250 000
Екатеринбург, ул. Авиационная, 61/2 (Автовокзал) - фото квартиры 31 декабря 2021 90 дн. 2 31.5 1/5 3 250 000
Екатеринбург, ул. Авиационная, 61/2 (Автовокзал) - фото квартиры 26 декабря 2021 90 дн. 3 54 2/5 4 190 000
Екатеринбург, ул. Авиационная, 61/2 (Автовокзал) - фото квартиры 15 декабря 2021 90 дн. 1 31.5 1/5 3 250 000
Екатеринбург, ул. Авиационная, 61/2 (Автовокзал) - фото квартиры 15 декабря 2021 90 дн. 2 31.5 1/5 3 250 000
Екатеринбург, ул. Авиационная, 61/2 (Автовокзал) - фото квартиры 25 июля 2021 90 дн. 2 43 1/5 3 450 000
Екатеринбург, ул. Авиационная, 61/2 (Автовокзал) - фото квартиры 19 марта 2021 90 дн. 2 43.5 1/5 3 070 000
Екатеринбург, ул. Авиационная, 61/2 (Автовокзал) - фото квартиры 21 февраля 2021 90 дн. 3 55 2/5 3 600 000
Екатеринбург, ул. Авиационная, 61/2 (Автовокзал) - фото квартиры 13 августа 2020 90 дн. 2 43.2 1/5 2 620 000
Екатеринбург, ул. Авиационная, 61/2 (Автовокзал) - фото квартиры 9 апреля 2020 90 дн. 2 43 5/5 2 750 000
Екатеринбург, ул. Авиационная, 61/2 (Автовокзал) - фото квартиры 26 марта 2020 90 дн. 2 42 3/5 2 800 000
Екатеринбург, ул. Авиационная, 61/2 (Автовокзал) - фото квартиры 3 октября 2020 90 дн. 3 54 5/5 3 450 000
14 октября 2018 92 дн. 1 28 4/5 2 390 000
3 августа 2018 92 дн. 2 44.1 5/5 2 990 000
18 июня 2011 61 дн. 2 43 2/5 2 500 000
Екатеринбург, ул. Авиационная, 61/2 (Автовокзал) - фото квартиры 20 августа 2019 90 дн. 2 44 4/5 3 500 000

Новостройки Екатеринбург, мкр-н. Автовокзал

Приоритет

Увеличивает просмотры в 3 раза

Ваше объявление показывается в списке выше обычных объявлений. подключить