На Метре реклама - только нормальная. Никакого шок-контента.
Помогайте независимому ресурсу, как он помогает вам. Удачи!
Новостройки Котт. посёлки Объявления Динамика цен и сделок

Продажа квартиры: Екатеринбург, ул. Амундсена, 118 (УНЦ)

  • опубликовано 27.05.2021 , обновлено 28.06.2025
  • 13
Кадастровый номер:66:41:0404016:3104
Рынок:вторичный
Срок сдачи: 2014 года
Количество комнат:1
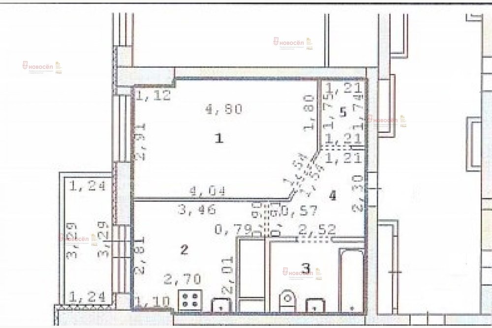
Общая площадь:34 м2
Жилая площадь:18 м2
Площадь кухни:8 м2
Этаж/Этажность дома:24 / 25
Санузел:совмещенный
Отделка:евроремонт
Год постройки:2014
Цена:
3 150 000
Объявление снято с публикации
Коммунальные платежи:оплачиваются отдельно
Ипотека:возможна

Объект № 142549. Вашему вниманию предлагаем уютную видовую квартиру с шикарным видом на небо и уральские лесистые взгорья. Самое выгодное предложение в доме по соотношению цена-качество.
Дом: ЖК Форест, 2014г., комфорт-класс. 3 высокоскоростных лифта, консьерж, видеоэкран с информацией для жителей, пункт книгообмена. УК Юит-Брусника.
Квартира: Теплая, светлая, с ремонтом, качественным кухонным гарнитуром, оборудованной гардеробной комнатой (закрывается на дверь), вместительным санузлом в кафеле, и очень просторной лоджией с плиткой на полу.
Наземная парковка с постоянным наличием свободных мест, так же предусмотрен подземный отапливаемый паркинг (330 000 рублей стоимость покупки). Возле дома оборудованная детская площадка, баскетбольная площадка, лесопарк для семейных прогулок и прогулок с питомцами.
Один совершеннолетний собственник, без обременений, прописанных нет, квартира уже освобождена и подготовлена для будущего покупателя.
Помощь в согласовании ипотеки по самым выгодным ставкам! Рассмотрим оплату материнским капиталом. Приглашаем на просмотр. ***Гарантийный сертификат «Защита собственности» по данному объекту в подарок***

Объявление снято с публикации

Ипотечный калькулятор

лет
%
Сумма кредита
3150000 ₽
Платеж
22 540 ₽

История предложений в этом доме

объявление снято с публикации в продаже комнат площадь этаж цена,
Екатеринбург, ул. Амундсена, 118 (УНЦ) - фото квартиры 24 мая 2025 90 дн. 1 51 3/25 5 850 000
Екатеринбург, ул. Амундсена, 118 (УНЦ) - фото квартиры 30 августа 2024 90 дн. 3 70.4 9/24 6 750 000
Екатеринбург, ул. Амундсена, 118 (УНЦ) - фото квартиры 23 октября 2024 90 дн. 1 51.9 3/25 6 300 000
7 мая 2024 90 дн. 1 51 13/26 5 200 000
Екатеринбург, ул. Амундсена, 118 (УНЦ) - фото квартиры 3 апреля 2024 90 дн. 3 70 21/27 6 620 000
Екатеринбург, ул. Амундсена, 118 (УНЦ) - фото квартиры 24 января 2024 90 дн. 1 37 19/24 4 500 000
Екатеринбург, ул. Амундсена, 118 (УНЦ) - фото квартиры 28 ноября 2023 90 дн. 1 37 18/24 4 820 000
Екатеринбург, ул. Амундсена, 118 (УНЦ) - фото квартиры 7 июля 2023 90 дн. 2 51.6 11/25 4 350 000
Екатеринбург, ул. Амундсена, 118 (УНЦ) - фото квартиры 27 июня 2023 90 дн. 1 51.6 11/25 3 900 000
Екатеринбург, ул. Амундсена, 118 (УНЦ) - фото квартиры 15 марта 2023 90 дн. 1 51.8 18/27 5 135 969
Екатеринбург, ул. Амундсена, 118 (УНЦ) - фото квартиры 13 февраля 2023 90 дн. 1 51.8 18/24 5 175 000
Екатеринбург, ул. Амундсена, 118 (УНЦ) - фото квартиры 23 февраля 2023 90 дн. 3 70 10/24 6 800 000
Екатеринбург, ул. Амундсена, 118 (УНЦ) - фото квартиры 17 декабря 2022 90 дн. 3 70.1 9/24 5 300 000
Екатеринбург, ул. Амундсена, 118 (УНЦ) - фото квартиры 1 сентября 2022 90 дн. 1 36 7/25 3 800 000
Екатеринбург, ул. Амундсена, 118 (УНЦ) - фото квартиры 31 мая 2022 90 дн. 3 74 18/25 7 500 000
Екатеринбург, ул. Амундсена, 118 (УНЦ) - фото квартиры 20 мая 2022 90 дн. 3 74 18/25 7 500 000
Екатеринбург, ул. Амундсена, 118 (УНЦ) - фото квартиры 9 мая 2022 90 дн. 3 74 18/25 7 500 000
Екатеринбург, ул. Амундсена, 118 (УНЦ) - фото квартиры 28 апреля 2022 90 дн. 3 74 18/25 7 500 000
Екатеринбург, ул. Амундсена, 118 (УНЦ) - фото квартиры 12 апреля 2022 90 дн. 3 74 18/25 7 500 000
Екатеринбург, ул. Амундсена, 118 (УНЦ) - фото квартиры 19 марта 2022 90 дн. 1 35.7 15/25 3 600 000
Екатеринбург, ул. Амундсена, 118 (УНЦ) - фото квартиры 31 марта 2022 90 дн. 3 74 18/25 7 750 000
Екатеринбург, ул. Амундсена, 118 (УНЦ) - фото квартиры 18 марта 2022 90 дн. 1 35.7 15/25 3 550 000
Екатеринбург, ул. Амундсена, 118 (УНЦ) - фото квартиры 6 мая 2022 90 дн. 1 38 20/24 3 750 000
Екатеринбург, ул. Амундсена, 118 (УНЦ) - фото квартиры 6 марта 2022 90 дн. 3 74 18/25 7 750 000
Екатеринбург, ул. Амундсена, 118 (УНЦ) - фото квартиры 22 ноября 2022 90 дн. 1 51.5 16/25 4 490 000
Екатеринбург, ул. Амундсена, 118 (УНЦ) - фото квартиры 25 марта 2022 90 дн. 1 37.8 11/25 4 300 000
Екатеринбург, ул. Амундсена, 118 (УНЦ) - фото квартиры 20 апреля 2021 90 дн. 2 50 1/25 3 900 000
Екатеринбург, ул. Амундсена, 118 (УНЦ) - фото квартиры 22 мая 2021 90 дн. 1 34 20/25 2 690 000
Екатеринбург, ул. Амундсена, 118 (УНЦ) - фото квартиры 24 апреля 2021 90 дн. 3 74 5/25 6 250 000
Екатеринбург, ул. Амундсена, 118 (УНЦ) - фото квартиры 12 декабря 2020 90 дн. 1 37 11/25 3 100 000

Новостройки Екатеринбург, мкр-н. УНЦ

Приоритет

Увеличивает просмотры в 3 раза

Ваше объявление показывается в списке выше обычных объявлений. подключить