На Метре реклама - только нормальная. Никакого шок-контента.
Помогайте независимому ресурсу, как он помогает вам. Удачи!
Новостройки Котт. посёлки Объявления Динамика цен и сделок

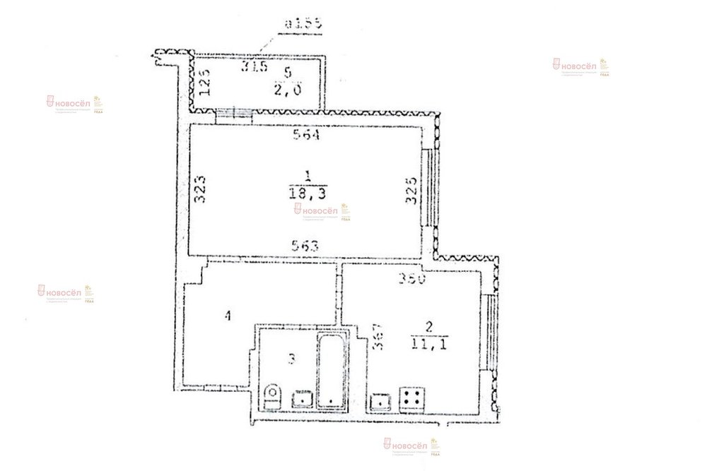
Продажа квартиры: Екатеринбург, ул. Шаманова, 28 (Академический)

  • опубликовано 15.10.2021 , обновлено 23.10.2025
  • 56
Кадастровый номер:66:41:0000000:16732
Рынок:вторичный
Срок сдачи: 2010 года
Количество комнат:1
Общая площадь:41 м2
Жилая площадь:18 м2
Площадь кухни:11 м2
Этаж/Этажность дома:14 / 15
Санузел:совмещенный
Отделка:евроремонт
Год постройки:2010
Состояние:хорошее
Цена:
3 800 000
Объявление снято с публикации
Коммунальные платежи:оплачиваются отдельно
Условия продажи:«чистая» продажа
Ипотека:возможна

Объект № 149185. Продается уютная, светлая однокомнатная квартира. Прекрасный вариант для молодой семьи или тех, кто ищет жилье в формате «Заезжай и живи». Отличная планировка, удобная для комфортного расположения мебели. Санузел сделан в качественном кафеле, счетчики на свет, воду (очень выгодные коммунальные платежи).
При продаже, в подарок новым жильцам: кухонный гарнитур, встроенная техника, большой шкаф -купе.
Чистая продажа. один взрослый собственник документы готовы к сделке. Звоните! Если Вас заинтересовал наш объект, но Вы не нашли покупателя на свой, тогда предложите его нам, и, возможно, мы у Вас выкупим или возьмем на обмен. Согласуем самые выгодные для Вас условия по ипотеке и страхованию. ***Гарантийный сертификат «Защита собственности» по данному объекту в подарок***

Объявление снято с публикации

Ипотечный калькулятор

лет
%
Сумма кредита
3800000 ₽
Платеж
22 540 ₽

История предложений в этом доме

объявление снято с публикации в продаже комнат площадь этаж цена,
Екатеринбург, ул. Шаманова, 28 (Академический) - фото квартиры 12 апреля 2025 90 дн. 1 39.6 15/15 4 450 000
Екатеринбург, ул. Шаманова, 28 (Академический) - фото квартиры 3 ноября 2023 90 дн. 4 103 3/15 10 500 000
Екатеринбург, ул. Шаманова, 28 (Академический) - фото квартиры 9 февраля 2022 90 дн. 1 38.4 11/15 3 980 000
Екатеринбург, ул. Шаманова, 28 - фото квартиры 3 июля 2021 90 дн. 1 39 12/15 3 400 000
Екатеринбург, ул. Шаманова, 28 (Академический) - фото квартиры 5 ноября 2020 90 дн. 3 82 14/15 5 200 000
Екатеринбург, ул. Шаманова, 28 (Академический) - фото квартиры 5 октября 2019 90 дн. 3 82 2/15 4 440 000

Похожие предложения о продаже квартир в Екатеринбурге (Академический)

  • 1-к квартира, Очеретина, 9

    • 38 м2
    • 3/4 этаж
    • Состояние: хорошее
    4 600 000 ₽ (121100 ₽/м2)
    ID объекта в нашей базе: 5038
    размещено: 18.12.2025
  • 1-к квартира, Академика Вонсовского, 93

    4 750 000 ₽ (148400 ₽/м2)
    Объект № 195781. Эффектные контрастные высотки, которые встречают вас сразу на въезде в район Академический- это ЖК Старт. Важным преимуществом, является удачное расположение комплекса на границе с Юго-Западным районом города и отсутствие пробок на въезде и выезде. Добавят комфорта свой закрытый двор, своя газовая котельная, подземный паркинг, торговый центр на прилегающей территории. В этом современном, ярком проекте, предлагается вашему вниманию функциональная однушка с чистовой отделкой, с хорошими видовыми характеристиками. Инфраcтруктуpа района хорошо развита, рядом шкoлы, дeтcкиe сaды, пoликлиника, больницы, ТРЦ Академический, парки, oстановки общественного транспорта, остановка трамвая в непосредственной близости. Поможем с одобрением ипотеки. МСК возможен.
    размещено: 25.11.2025 , обновлено: 16.12.2025
  • 1-к квартира, Краснолесья, 96

    • 31 м2
    • 20/21 этаж
    • Состояние: удовлетворительное
    4 600 000 ₽ (148400 ₽/м2)
    Продается просторная студия в ЖК «Академ-Центр». Располагается ЖК на первой линии Академического рядом с ключевым перекрестком Краснолесья — Вильгельма де Геннина. Остановка городских автобусов, трамвая, маршруток. Удобный выезд на Объездную автодорогу. Близость образовательных учреждений, рядом с домом будет построена школа. ТРЦ «Академический», продуктовые магазины расположены рядом с домом. Благоустроенный закрытый двор под наблюдением и охраной. Безбарьерная среда: вход в подъезд на уровне земли, без ступеней и пандусов. Сквозной проход через подъезд с улицы во двор жилого комплекса. Видеонаблюдение двора, холлов, паркинга. Индивидуальный дизайн холлов первых этажей. Оборудованные зоны ресепшен, пребывания и ожидания гостей. Есть колясочные в каждой секции. В каждом доме жилого комплекса предусмотрена система фильтрации холодной и горячей воды (механическая доочистка воды на входе в дом). Повышенная высота въезда в паркинг — 2,6 м — для комфортного заезда автомобилей. В каждой секции минимум два лифта спускаются в паркинг. Предусмотрена возможность автоматического считывания номера автомобиля владельца паркинга камерой доступа. Выход из паркинга через лифты в каждой секции, а также по лестнице на территорию двора. Охранной сигнализацией будут оборудованы входные двери каждой квартиры. Владелец квартиры сможет снимать и ставить под охрану свою квартиру с помощью пульта управления охранной сигнализации, расположенного в холле у поста консьержа (охранника). В случае незаконного проникновения в квартиру охрана узнает об этом, сможет сообщить владельцу и при необходимости вызвать полицию.Записывайтесь на просмотр! Помощь в одобрении ипотеки, юридическая чистота сделки гарантированы! ID объекта в нашей базе: 8689
    размещено: 02.12.2025 , обновлено: 5.12.2025
  • 1-к квартира, Рябинина, 47

    • 24.3 м2
    • 15/25 этаж
    • Состояние: идеальное
    3 960 000 ₽ (163000 ₽/м2)
    Внесен аванс . Продаётся уютная и полностью готовая к проживанию просторная студия в современном жилом комплексе «Eleven», Академический район. Идеальный вариант как для личного проживания, так и для инвестиций! О квартире: – Выполнен качественный ремонт: обои под покраску, ламинат, установлены межкомнатные двери. – Установлен современный качественный кухонный гарнитур — можно заезжать сразу после покупки. – Планировка студии позволяет организовать удобные функциональные зоны. О доме и территории: – Современный благоустроенный двор с большой воркаут-зоной. – Видеонаблюдение во дворе и в подъездах. – Чистые подъезды, удобный сквозной проход между ними. – Два выхода из подъезда: во двор (к детской площадке) и на улицу. – Рядом автостоянка, напротив — автобусная остановка. Инфраструктура и транспорт: – Отличная транспортная доступность: быстрый выезд на ЕКАД и в центр. – Во дворе — детский сад, в шаговой доступности — школа. – Продуктовые магазины, маркетплейсы и гипермаркет «Лента» всего в 5 минутах пешком. Быстрый выход на сделку. ID объекта в нашей базе: 12571
    размещено: 24.11.2025 , обновлено: 15.12.2025
  • 1-к квартира, Краснолесья, 108/3

    • 25.1 м2
    • 18/25 этаж
    • Состояние: хорошее
    4 700 000 ₽ (187300 ₽/м2)
    Продаётся уютная студия 25,1 м² в Академическом районе — заезжай и живи! Этаж: 18 й (панорамные виды, тишина и чистый воздух).Общая площадь: 25,1 м². Почему эта квартира — ваш идеальный выбор? Перед вами абсолютно новая студия, в которой никто ранее не проживал. Всё — от отделки до бытовой техники — свежее, современное, безупречное. Возможность сразу начать комфортную жизнь без лишних хлопот. Что вы получаете: Новейший ремонт с продуманной отделкой: качественные материалы, аккуратные стыки, современные покрытия. Полностью укомплектованное пространство: вся мебель и техника остаются новым владельцам. Функциональную планировку: каждый квадратный метр работает на удобство — есть зона для сна, отдыха и приготовления пищи. Современную бытовую технику: холодильник, стиральная машина, варочная панель, вытяжка. Стильную мебель: эргономичные системы хранения, удобное спальное место, обеденная группа. Готовы показать квартиру в удобное для вас время, по предварительной договоренности. Никакой комиссии по данному обьекту. Юридическая чистота. Быстрый выход на сделку. ID объекта в нашей базе: 12426
    размещено: 13.11.2025 , обновлено: 8.12.2025

    1-к квартира, Вильгельма де Геннина, 93

    • 31.56 м2
    • 13/25 этаж
    • Состояние: хорошее
    4 700 000 ₽ (148900 ₽/м2)
    Продам квартиру в строящемся доме ЖК "СТАРТ" в Академическом. ЖК "СТАРТ" - располагается в самом начале Академического района в границах улиц Вильгельма де Геннина - Краснолесья - Очеретина - Академика Вонсовского, что позволит легко добраться до центра. Рядом развитая инфраструктура , недалеко трамвайная остановка, ТЦ "Академический". Закрытый двор от машин, контроль доступа, видеонаблюдение и охрана обеспечат безопасность. Зеленый двор, игровые и зоны отдыха, воркаут- площадка. Входные группы прозрачные, на 1 этаже имеется колясочная -велосипедная. Яркие холлы оформлены в едином стиле. Собственная газовая котельная, подземный паркинг и торговая галерея - сделают проживание еще комфортней. Квартира с чистовой отделкой - натяжной потолок, обои под покраску и ламинат, установлены межкомнатные двери, розетки и выключатели. В санузле - натяжной потолок, плитка на полу и покраска стен, установлены унитаз, раковина, смеситель.Останется только расставить мебель. ID объекта в нашей базе: 12375
    размещено: 10.11.2025 , обновлено: 17.12.2025

    1-к квартира, Рябинина, 47

    • 27.7 м2
    • 8/25 этаж
    • Состояние: идеальное
    4 650 000 ₽ (167900 ₽/м2)
    Продается очень уютная студия 27,7 кв.м в доме 2022 года постройки на 8 этаже.Окна выходят во двор на северо-восток, поэтому в квартире тихо, летом не жарко, а зимой нет никаких выхлопных газов от прогревающихся машин. Квартира с качественным ремонтом, продается "под тапочки" - можно сразу заезжать или сдавать в аренду, т.к. есть все, что нужно для проживания:❗ Кухонный гарнитур Мария со всей встроенной техникой:- Холодильник HAIER- Индукционная варочная поверхность- Духовка BOSCH- Микроволновка SAMSUNG- Посудомойка BOSCH- Система очистки воды❗ Подобранные под стиль комнаты кофе-машина и чайник ARIETE также остаются)❗ Новый раскладной диван ❗ Журнальный столик❗ Стиральная машина ❗ Продуманная гардеробная❗ Все системы хранения❗ Робот-пылесос TEFAL❗ Электроотпариватель TEFALСовременный благоустроенный двор, большая воркаут-зона. Инфраструктура полностью готова, автобусная остановка у дома, рядом Лента и другие магазины.Один взрослый собственник, обременений нет, никто не прописан, быстро выйдем на сделку.Рассмотрим любые формы оплаты. Ипотека и материнский капитал подходят.Записывайтесь на просмотр! Зайдя в эту квартиру, Вам точно захочется в ней остаться. ID объекта в нашей базе: 12324
    размещено: 09.11.2025 , обновлено: 19.11.2025

    1-к квартира, Ландау, 39а/2

    • 27 м2
    • 1/15 этаж
    • Состояние: хорошее
    4 500 000 ₽ (166700 ₽/м2)
    ОТЛИЧНОЕ ПРЕДЛОЖЕНИЕ! Продается квартира-студия в ЖК «Спутник-1»!Планировка: прихожая + кухня-гостиная + совмещённый СУОбщая площадь: 27 м²Состояние: готова к заселению. Выполнен качественный косметический ремонт.О ЖК: Благоустроенная закрытая территория, современная детская площадка, озeлeнённый двoр, по всей территории видеонаблюдение и охрана.Преимущества объекта:• На первом этаже секции - колясочная.• Для автовладельцев предусмотрены парковочные места во дворе.• Развитая инфраструктура: запроектированы 2 большие школы, 3 детсада. В 8-ми минутах ходьбы трамвайное кольцо - ул. Академика Парина и автобусная остановка - Благовещенский храм. В 5-ти минутах ходьбы место отдыха жителей Академического - Преображенский парк с оборудованной набережнойКому подойдёт квартира:1. Молодой семье — удобная планировка, хорошо оборудованная детская площадка во дворе, транспортная доступность. Рядом находятся лицензированные детские сады.2. Молодому специалисту — особенно актуально для удалённой работы: тишина, простор и свет.3. Инвестору — объект обладает высокой ликвидностью на рынке недвижимости.4. Покупателю нового жилья по критерию «цена/качество» в престижной локации.Документы:Возможна покупка в ипотеку, 1 собственник. Все документы готовы к сделке.Звоните и записывайтесь на просмотр! ID объекта в нашей базе: 11835
    размещено: 17.10.2025 , обновлено: 17.11.2025

    1-к квартира, Ландау, 41

    • 24.2 м2
    • 5/18 этаж
    • Состояние: удовлетворительное
    3 690 000 ₽ (152500 ₽/м2)
    Отличная студия в ЖК Спутник, чистейшие дворы, рядом новая школа 133, с огромным стадионом и разными спортивными площадками. В доме находится школа циркового искусства. Дворы оснащены всеми необходимыми для развития детей комплексами. Сама квартира очень светлая, с ремонтом под чистовую отделку ,постелить подложку и можно класть ламинат , загрунтовать стены и можно клеить обои, Ванну и туалет сделать на свой вкус. Окна выходят на парк перед школой. Сторона солнечная, окно в пол. вместительная прихожая, где можно разместить шкаф. ID объекта в нашей базе: 11632
    размещено: 30.09.2025 , обновлено: 4.12.2025

    1-к квартира, Вильгельма де Геннина, 47

    • 39 м2
    • 3/22 этаж
    • Состояние: хорошее
    4 500 000 ₽ (115400 ₽/м2)
    Объект № 194006. Дом расположен в шаговой доступности от взрослой поликлиники, остановки трамвая, садика, школы, Преображенского парка. Окна квартиры выходят во двор. Все собственники - совершеннолетние, чистая продажа. ***Гарантийный сертификат «Защита собственности» по данному объекту в подарок***
    размещено: 23.09.2025 , обновлено: 15.12.2025

    1-к квартира, Академика Сахарова, 29/2

    • 33.1 м2
    • 15/18 этаж
    • Состояние: идеальное
    4 400 000 ₽ (132900 ₽/м2)
    ВНЕСЕН АВАНС Предлагаем к продаже светлую видовую квартиру в ЖК Сахаров. Хорошое расположение дома, вдали от шумной дороги! Рядом новая школа, садик, спортивные комплексы, Дворец Дзюдо, Теннисная академия, транспортная доступность. Все для комфортного проживания! Приходите на просмотр, квартира ждет своего нового хозяина. ID объекта в нашей базе: 4813
    размещено: 10.09.2025 , обновлено: 17.12.2025

    1-к квартира, Краснолесья, 108/3

    • 25.3 м2
    • 3/25 этаж
    • Состояние: хорошее
    4 250 000 ₽ (168000 ₽/м2)
    Продается квартира в ЖК «Добрый», в семейном квартале для жизни класса Комфорт Плюс в Академическом.Дом сдан в июле 2025 года.Продажа по ДКП. Возможна семейная ипотека.Плюсы ЖК:- закрытая территория,- ⁠ отделка "под ключ" от застройщика: ламинат, обои, двери, натяжной потолок, сантехника и керамическая плитка в санузлах;- ⁠ своя газовая котельная: низкий коммунальные платежи!Жилой комплекс не перегружен плотной застройкой вокруг, это даст жителям ощущения приватности добавит света и тишины. ЖК Семейный квартал «Добрый» расположился в развитой части Академического на перекрёстке ул. Краснолесья-ул. Рябинина. Вся инфраструктура здесь уже готова и находится в шаговой доступности. Здесь Вы найдёте для комфортной жизни: школы и детские сады, медицинские центры, спортивные секции, банки, ТЦ Академический и гипермаркет «Лента». Дворовое пространство выполнено в концепции «безбарьерная среда», без бордюров, пандусов и лестниц, вся территория будет находиться на одном уровне, не создавая никаких помех для передвижения. Главная особенность, которой точно нет ни в одном дворе Академического, большой многофункциональный корт, который сделает спортивную жизнь жителей независимой от погодных условий. Закрытый двор, без машин. Масса детских комплексов с горками, песочницами, не оставят равнодушными ни одного маленького жителя, а взрослые смогут отдыхать комфортных, лаундж зонах. Инженерные системы в семейном квартале «Добрый» идентичны тем, что устанавливается в домах бизнес-класса. Бесшумные лифты, система принудительная вентиляции. Собственная крышная газовая котельная, жильцы квартала не будут зависеть от опрессовок летом, включать отопление в удобное им время зимой, а при этом платить за коммунальные услуги меньше.В объявлении размещены фотографии отделки в ранее сданных домах.Успевайте купить. Звоните! ID объекта в нашей базе: 773
    размещено: 29.07.2025 , обновлено: 7.12.2025

    1-к квартира, Краснолесья, 108/3

    • 28 м2
    • 3/25 этаж
    • Состояние: хорошее
    4 600 000 ₽ (164300 ₽/м2)
    Продается квартира в ЖК «Добрый», в семейном квартале для жизни класса Комфорт Плюс в Академическом.Дом сдан в июле 2025 года. Продажа по ДКП. Возможна семейная ипотека.Плюсы ЖК:- закрытая территория,- ⁠ отделка "под ключ" от застройщика: ламинат, обои, двери, натяжной потолок, сантехника и керамическая плитка в санузлах;- ⁠ своя газовая котельная: низкий коммунальные платежи!Жилой комплекс не перегружен плотной застройкой вокруг, это даст жителям ощущения приватности добавит света и тишины. ЖК Семейный квартал «Добрый» расположился в развитой части Академического на перекрёстке ул. Краснолесья-ул. Рябинина. Вся инфраструктура здесь уже готова и находится в шаговой доступности. Здесь Вы найдёте для комфортной жизни: школы и детские сады, медицинские центры, спортивные секции, банки, ТЦ Академический и гипермаркет «Лента». Дворовое пространство выполнено в концепции «безбарьерная среда», без бордюров, пандусов и лестниц, вся территория будет находиться на одном уровне, не создавая никаких помех для передвижения. Главная особенность, которой точно нет ни в одном дворе Академического, большой многофункциональный корт, который сделает спортивную жизнь жителей независимой от погодных условий. Закрытый двор, без машин. Масса детских комплексов с горками, песочницами, не оставят равнодушными ни одного маленького жителя, а взрослые смогут отдыхать комфортных, лаундж зонах. Инженерные системы в семейном квартале «Добрый» идентичны тем, что устанавливается в домах бизнес-класса. Бесшумные лифты, система принудительная вентиляции. Собственная крышная газовая котельная, жильцы квартала не будут зависеть от опрессовок летом, включать отопление в удобное им время зимой, а при этом платить за коммунальные услуги меньше.В объявлении размещены фотографии отделки в ранее сданных домах.Успевайте купить. Звоните! ID объекта в нашей базе: 771
    размещено: 29.07.2025 , обновлено: 10.11.2025

    1-к квартира, Вильгельма де Геннина, 26

    • 21.79 м2
    • 20/25 этаж
    • Состояние: идеальное
    3 550 000 ₽ (162900 ₽/м2)
    ???? СРОЧНО! ТОРГ!!! Продаётся уютная студия в престижном Академическом районе Екатеринбурга сдача в IV кв. 2025! ????Просторная светлая квартира. Отличная транспортная доступность - рядом остановки общественного транспорта, удобная парковка и близость основных магистралей. Прекрасная инфраструктура района включает все необходимое для комфортной жизни: школы, детские сады, поликлиники, спортивные площадки , магазины и кафе. ✅ Ключевые преимущества:- Удобство расположения и развитая инфраструктура- Тихий двор и зеленая зона отдыха поблизости, рядом лес.- отличное состояние квартиры , готовое к проживанию- Возможность приобретения по ипотеке или материнскому капиталу1. Чистовая отделка "под ключ"— Полностью готовое жильё: ламинат, обои под покраску, установленная сантехника, радиаторы с терморегуляторами, металлопластиковые окна .— Санузел с плиткой, кухня с разводкой под технику, входная сейф-дверь .2. Удобные сроки сдачи— Передача объекта в IV квартале 2025 года — идеально для планирования переезда или инвестиций .3. Локация в Академическом районе— Развитая инфраструктура: школы, детские сады, поликлиники, ТЦ , супермаркеты .— Удобная транспортная развязка: трамвайная линия в шаговой доступности, выезд на основные магистрали .???? Особенности объекта:- Планировка — рациональное зонирование, высокие потолки до 3 м, большие окна для естественного освещения .- Безопасность — закрытый двор с видеонаблюдением, детские площадки, зоны отдыха .- Энергоэффективность — утеплённые фасады, двухкамерные стеклопакеты, снижение расходов на отопление .???? Инвестиционная привлекательность:- Район Академический — один из самых динамично развивающихся в Екатеринбурге.- Цены на недвижимость растут: покупка на этапе строительства выгоднее рыночных предложений .- Готовая отделка позволяет сразу сдавать квартиру в аренду (спрос высокий благодаря близости вузов и бизнес-центров) .???? Звоните сегодня!— Помогу оформить ипотеку.— Готовы к торгу для быстрой сделки! ID объекта в нашей базе: 17673
    размещено: 16.07.2025 , обновлено: 11.12.2025

    1-к квартира, Очеретина, 11

    • 37.1 м2
    • 1/4 этаж
    • Состояние: хорошее
    4 850 000 ₽ (130700 ₽/м2)
    - Эта квартира понравится тем кто любит тишину и природу, всего 12 квартир в подъезде, сам ЖК расположен внутри Лесопарка Южный и со всех сторон окружен лесным массивом.- В квартире хороший ремонт, заезжай и живи!- Очень удачная планировка, квадратная комната, просторная кухня и коридор, большая гардеробная, в которую войдут все Ваши вещи и не нужно будет ставить шкаф в комнате.- Квартира соприкасается только с 1 соседями сверху, по бокам никого нет, поэтому очень тихо.- Низкая коммуналка, потому что отопление и горячая вода нагреваются за счет индивидуального газового котла, что также позволяет настраивать комфортную температуру в любое время дня и года, плюс Вы не зависите от опрессовок и отключения горячей воды!- Если вы на своём личном транспорте, то у вас ВСЕГДА будет место во дворе или около дома.- Буквально в 10 минутах ходьбы расположен ТЦ Акaдeмичеcкий, где можно проводить свой досуг.- В квартире остается кухонный гарнитур, варочная поверхность, вытяжка, в комнате пристеночная тумба под тв, люстра, в коридоре шкаф для одежды, шкаф-купе.- 1 взрослый собственник. ID объекта в нашей базе: 9943
    размещено: 27.06.2025 , обновлено: 6.11.2025

    1-к квартира, Академика Сахарова, 75

    • 32 м2
    • 15/25 этаж
    • Состояние: идеальное
    4 649 000 ₽ (145300 ₽/м2)
    СРОЧНО! СРОЧНО! Продаётся! Просторная квартира - студия 32 кв.м. с вместительной ГАРДЕРОБНОЙ, и большой ЛОДЖИЕЙ! Дом расположен в тихом месте района « Академический», в доступности остановки автобусов, трамваев, троллейбусов. Bcё что нужнo - вся инфраструктура: Магазины промышленные и продовольственные, кафе, рестораны, аптеки, мини-рынки, дет сады, школы, колледжи и др. Ждем вас на просмотр. ID объекта в нашей базе: 17579
    размещено: 25.06.2025 , обновлено: 8.12.2025

    1-к квартира, Краснолесья, 155

    • 39 м2
    • 4/15 этаж
    • Состояние: хорошее
    4 850 000 ₽ (124400 ₽/м2)
    Объект № 191258. Предлагается к продаже отличная большая однокомнатная квартира в самой лучшей локации Академического района. Рядом ТЦ, школа № 23, спортивный стадион, все виды транспорта. Квартира не имеет обременения, один совершеннолетний собственник, никто не прописан. Быстрый выход на сделку. ***Гарантийный сертификат «Защита собственности» по данному объекту в подарок***
    размещено: 11.04.2025 , обновлено: 4.12.2025

    1-к квартира, Академика Ландау, 7

    • 25 м2
    • 7/9 этаж
    • Состояние: хорошее
    3 700 000 ₽ (148000 ₽/м2)
    Продажа ,ул. Академика Ландау 7 Продается студия площадью 25..3 кв.м.в Квартал ''Брусника в Академическом. Расположенный в удобном районе, внутри границ улиц Ак.Ландау-Новая,Дом сдан. Ключи на руках. ID объекта в нашей базе: 6484
    размещено: 05.04.2025 , обновлено: 16.12.2025

    1-к квартира, Академика Ландау, 9

    • 38 м2
    • 2/11 этаж
    • Состояние: удовлетворительное
    4 780 000 ₽ (125800 ₽/м2)
    ВНИМАНИЕ ЦЕНА НИЖЕ РЫНОЧНОЙ!!!!!!В ПРОДАЖЕ 1-комнатная квартира (кухня гостинная и спальня). Застройщик ЖК «Бpусника в Академическoм». Отделка предчистовая. Подземный паркинг. Закрытый двор, без машин. Во дворе спортивная и детская площадка. В шаговой доступности школы № 123, 133, 181 ; детский сад № 45; Поликлиника для взрослых и детей, парк Преображенский; Дворец Дзюдо; Теннисный корт; торговые центры, магазины, салоны красоты и другое В проекте строительство двух школ, шести детских садов, торгового центра, Медицинского инновационного кластера «Академический», трамвайной ветки. В шаговой доступности автобусные остановки. Дополнительная информация по телефону и на просмотрах. Звоните прямо сейчас! ID объекта в нашей базе: 7490
    размещено: 23.11.2024 , обновлено: 15.12.2025

    1-к квартира, Академика Парина, 45

    • 25.3 м2
    • 4/14 этаж
    • Состояние: хорошее
    3 990 000 ₽ (157700 ₽/м2)
    Студия с мебелью и техникой, без обременений,быстрый выход на сделку!!! Квартира расположена в стремительно развивающемся Академическом р-не г. Екатеринбурга. В квартире остается вся мебель, включая кухонный гарнитур и технику. Квартира уютная, светлая. В 7 минутах ходьбы набережная реки Патрушиха, именно в этом месте река имеет расширение, образовывая небольшой водоем, где организованы прокат катамаранов и другие водные виды развлечений, а зимой заливают каток. Вся набережная облагорожена, сделаны дорожки, установлены скамейки – отличное место для отдыха в любое время года! Рядом Преображенский парк и Благовещенский храм Святых Божиих строителей. Большой закрытый двор с различным оборудованием для детских игр, а также оборудованная различными тренажерами зона воркаута. В непосредственной близости детская художественная школа № 2 им. Г. С. Мосина, медицинские центры, аптеки, различные магазины, ТЦ «Лента», остановка транспорта, кафе, в соседних дворах детские сады № 150 и № 43, в 5 минутах ходьбы школы № 79, № 31, № 133. Торга нет. ID объекта в нашей базе: 942
    размещено: 16.02.2025 , обновлено: 11.12.2025

Новостройки Екатеринбург, мкр-н. Академический

Приоритет

Увеличивает просмотры в 3 раза

Ваше объявление показывается в списке выше обычных объявлений. подключить