На Метре реклама - только нормальная. Никакого шок-контента.
Помогайте независимому ресурсу, как он помогает вам. Удачи!
Новостройки Котт. посёлки Объявления Динамика цен и сделок

Продажа квартиры: Екатеринбург, ул. Краснолесья, 108/3 (Академический)

  • опубликовано 29.07.2025 , обновлено 11.10.2025
  • 17
  •  
Рынок:вторичный
Срок сдачи: 2025 года
Количество комнат:1
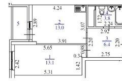
Общая площадь:28 м2
Жилая площадь:19.3 м2
Площадь кухни:0.00 м2
Этаж/Этажность дома:3 / 25
Санузел:совмещенный
Отделка:косметический
Год постройки:2025
Балкон/лоджия:лоджия
Состояние:хорошее
Цена:
4 600 000
Коммунальные платежи:оплачиваются отдельно
Условия продажи:«чистая» продажа
Ипотека:возможна

**Продаётся квартира в ЖК «Добрый», семейный квартал класса «Комфорт Плюс» в Академическом**

- **Дом сдан:** июль 2025 года
- **Право собственности:** продажа по ДКП
- **Возможна семейная ипотека**

**Преимущества жилого комплекса:**
- Закрытая территория, двор без машин
- Малоэтажная застройка — больше света, тишины и приватности
- Своя современная газовая котельная — низкие коммунальные платежи, автономное отопление
- Отделка «под ключ» от застройщика: ламинат, обои, межкомнатные двери, натяжные потолки, сантехника и керамическая плитка в санузлах
- Современные инженерные системы, уровень бизнес-класса (бесшумные лифты, принудительная вентиляция)
- Концепция «безбарьерная среда» — вся территория одного уровня, удобно для всех поколений

**Инфраструктура в шаговой доступности:**
- Детские сады, школы, медицинские центры, спортивные секции, банки
- Торговый центр «Академический», гипермаркет «Лента»
- Продуманная планировка двора: большой многофункциональный спорткорт, современные детские площадки, зоны отдыха для взрослых

**Дополнительно:**
- Дом не окружён плотной застройкой, много света и ощущение простора
- Безопасная и дружелюбная среда для семей
- В объявлении размещены фото отделки из уже сданных домов этого комплекса

**Успевайте купить квартиру в новом доме с современной инфраструктурой и по выгодным условиям: семейная ипотека, продажа по договору купли-продажи.**

**Звоните для уточнения деталей и записи на просмотр!**
**ID объекта:** 771

ЕКБ 15 — Николай

показать телефон

Ипотечный калькулятор

лет
%
Сумма кредита
4600000 ₽
Платеж
22 540 ₽

Актуальные предложения в этом доме

  • 1-к квартира, Краснолесья, 108/3

    • 36.3 м2
    • 12/25 этаж
    • Состояние:
    5 250 000 ₽ (144600 ₽/м2)
    Продается квартира в ЖК «Добрый», в семейном квартале для жизни класса Комфорт Плюс в Академическом.Дом сдан в июле 2025 года.Продажа по ДКП. Возможна семейная ипотека.Плюсы ЖК:- закрытая территория,- ⁠ отделка "под ключ" от застройщика: ламинат, обои, двери, натяжной потолок, сантехника и керамическая плитка в санузлах;- ⁠ своя газовая котельная: низкий коммунальные платежи!Жилой комплекс не перегружен плотной застройкой вокруг, это даст жителям ощущения приватности добавит света и тишины. ЖК Семейный квартал «Добрый» расположился в развитой части Академического на перекрёстке ул. Краснолесья-ул. Рябинина. Вся инфраструктура здесь уже готова и находится в шаговой доступности. Здесь Вы найдёте для комфортной жизни: школы и детские сады, медицинские центры, спортивные секции, банки, ТЦ Академический и гипермаркет «Лента». Дворовое пространство выполнено в концепции «безбарьерная среда», без бордюров, пандусов и лестниц, вся территория будет находиться на одном уровне, не создавая никаких помех для передвижения. Главная особенность, которой точно нет ни в одном дворе Академического, большой многофункциональный корт, который сделает спортивную жизнь жителей независимой от погодных условий. Закрытый двор, без машин. Масса детских комплексов с горками, песочницами, не оставят равнодушными ни одного маленького жителя, а взрослые смогут отдыхать комфортных, лаундж зонах. Инженерные системы в семейном квартале «Добрый» идентичны тем, что устанавливается в домах бизнес-класса. Бесшумные лифты, система принудительная вентиляции. Собственная крышная газовая котельная, жильцы квартала не будут зависеть от опрессовок летом, включать отопление в удобное им время зимой, а при этом платить за коммунальные услуги меньше.В объявлении размещены фотографии отделки в ранее сданных домах.Успевайте купить. Звоните! ID объекта в нашей базе: 774
    размещено: 29.07.2025 , обновлено: 23.10.2025
  • 1-к квартира, Краснолесья, 108/3

    • 25.3 м2
    • 3/25 этаж
    • Состояние:
    4 250 000 ₽ (168000 ₽/м2)
    **Продаётся квартира в ЖК «Добрый» — семейный квартал «Комфорт Плюс» в Академическом** **Дом сдан:** июль 2025 года **Продажа по договору купли-продажи (ДКП)** **Возможна семейная ипотека** **Преимущества дома и комплекса:** - Закрытая, охраняемая территория, двор без машин — безопасность и тишина - Свежий малоэтажный дом, не окружён плотной застройкой — больше света и ощущение приватности - Современная газовая котельная — низкие коммунальные платежи, жильцы сами выбирают, когда включать отопление, нет зависимости от отключений летом - Качественная отделка «под ключ» от застройщика: ламинат, обои, межкомнатные двери, натяжные потолки, современная сантехника и керамическая плитка в санузлах - Инженерные системы уровня бизнес-класса: бесшумные лифты, принудительная вентиляция - Двор и входные группы без бордюров и ступеней — концепция «безбарьерная среда», удобно для колясок, детей и пожилых **Инфраструктура:** - Квартал расположен на пересечении ул. Краснолесья и ул. Рябинина, в развитой части Академического - В шаговой доступности: школы, детские сады, медицинские центры, спортивные секции, банки, ТЦ «Академический», гипермаркет «Лента» - Большой многофункциональный спорткорт для активного отдыха в любую погоду - Современные детские площадки с горками и песочницами - Лаундж-зоны для взрослых **Дополнительно:** - В объявлении представлены реальные фотографии отделки из недавно сданных домов комплекса - Дружелюбная и безопасная среда, идеально для семей с детьми **Не упустите возможность купить квартиру в новом доме с современной инфраструктурой и низкими коммунальными платежами!** **Звоните для уточнения деталей и записи на просмотр.** **ID объекта:** 772
    размещено: 29.07.2025 , обновлено: 25.10.2025

История предложений в этом доме

объявление снято с публикации в продаже комнат площадь этаж цена,
Екатеринбург, ул. Краснолесья, 108/3 (Академический) - фото квартиры 14 октября 2025 90 дн. 1 23.8 3/25 4 000 000

Похожие предложения о продаже квартир в Екатеринбурге (Академический)

  • 1-к квартира, Академика Парина, 43/3

    • 33.1 м2
    • 6/14 этаж
    • Состояние: хорошее
    4 718 800 ₽ (142600 ₽/м2)
    Уютная квартира в тихом уголке современного района Академический. Современный интерьер квартиры: обои под покраску, ламинат. В комнате панорамное остекление. Квартира освобождена. Один взрослый собственник. Просторный двор с тренажёрами и зеленой территорией. Дворы под видеонаблюдением. В шаговой доступности: остановки транспорта, тренажёры, магазины, аптеки. Бонус покупателю: Кухонный гарнитур, стол, стиральная машина, холодильник. Звоните и записывайтесь на просмотр. ID объекта в нашей базе: 4837
    размещено: 30.10.2025

    1-к квартира, Краснолесья, 157

    • 42.2 м2
    • 7/17 этаж
    • Состояние: хорошее
    5 600 000 ₽ (132700 ₽/м2)
    Срочная продажа квартиры в Академическом!Квартира находится на комфортном седьмом этаже. Отличная планировка с просторной кухней и балконом. Район с развитой инфраструктурой: рядом магазины, школы, детские сады, остановки общественного транспорта. Спокойные и дружелюбные соседи. Очень удобная локация! Квартира очень светлая, окна выходят на солнечную сторону. Тихие и вежливые соседи. В квартире сделан косметический ремонт, новые стеклопакеты. остается кухонный гарнитур . Большая кухня и ванная комната позволит вам проявить свой творческий вкус ! ID объекта в нашей базе: 18067
    размещено: 28.10.2025
  • 1-к квартира, Очеретина, 14

    5 290 000 ₽ (107500 ₽/м2)
    Арт. 123525185 В продаже Евро 2-х комнатная квартира (кухня-гостиная и спальня). Квартира с мебелью и техникой. Последний этаж этого дома располагает возможностью увеличения площади примерно на 15-20 кв.м за счет мансарды. Такой возможностью уже воспользовались многие соседи. С узаконением все в порядке. В доме своя котельная! Низкие коммунальные платежи! Звоните!
    размещено: 27.10.2025 , обновлено: 31.10.2025
  • 1-к квартира, Краснолесья, 96

    • 31 м2
    • 20/21 этаж
    • Состояние: удовлетворительное
    4 600 000 ₽ (148400 ₽/м2)
    Продается просторная студия в ЖК «Академ-Центр». Располагается ЖК на первой линии Академического рядом с ключевым перекрестком Краснолесья — Вильгельма де Геннина. Остановка городских автобусов, трамвая, маршруток. Удобный выезд на Объездную автодорогу. Близость образовательных учреждений, рядом с домом будет построена школа. ТРЦ «Академический», продуктовые магазины расположены рядом с домом. Благоустроенный закрытый двор под наблюдением и охраной. Безбарьерная среда: вход в подъезд на уровне земли, без ступеней и пандусов. Сквозной проход через подъезд с улицы во двор жилого комплекса. Видеонаблюдение двора, холлов, паркинга. Индивидуальный дизайн холлов первых этажей. Оборудованные зоны ресепшен, пребывания и ожидания гостей. Есть колясочные в каждой секции. В каждом доме жилого комплекса предусмотрена система фильтрации холодной и горячей воды (механическая доочистка воды на входе в дом). Повышенная высота въезда в паркинг — 2,6 м — для комфортного заезда автомобилей. В каждой секции минимум два лифта спускаются в паркинг. Предусмотрена возможность автоматического считывания номера автомобиля владельца паркинга камерой доступа. Выход из паркинга через лифты в каждой секции, а также по лестнице на территорию двора. Охранной сигнализацией будут оборудованы входные двери каждой квартиры. Владелец квартиры сможет снимать и ставить под охрану свою квартиру с помощью пульта управления охранной сигнализации, расположенного в холле у поста консьержа (охранника). В случае незаконного проникновения в квартиру охрана узнает об этом, сможет сообщить владельцу и при необходимости вызвать полицию.Записывайтесь на просмотр! Помощь в одобрении ипотеки, юридическая чистота сделки гарантированы! ID объекта в нашей базе: 8689
    размещено: 27.10.2025 , обновлено: 28.10.2025
  • 1-к квартира, Рябинина, 19

    • 37.6 м2
    • 9/20 этаж
    • Состояние: идеальное
    5 500 000 ₽ (146300 ₽/м2)
    За объект внесен аванс! У нас уже есть покупатель!Предлагаем вашему вниманию уютную светлую 1 комнатную квартиру в микрорайоне Академический *Квартира:* • 1-комнатная квартира: общая площадь — 37,6 м², кухня — 10,7 м², просторная комната — 16,2 м² и коридор 7 м², с/у - 3,7 м² • В квартире выполнен Евро ремонт, всё продумано для комфортного проживания, не требует вложений. • На полу — качественный ламинат, в санузле - керамогранит, на стенах — обои, двери выполнены в едином стиле, натяжные потолки, пластиковые окна. • Удачное расположение, нет городского шума, из окна открывается прекрасный вид на город. • Радиаторы с терморегуляторами. • Счётчики ГВС, ХВС, электрический. Недавно произведена замена счетчиков на холодную и горячую воду. • Коммунальные платежи: лето — 3000, зима — 4500 ₽. • Сейф-дверь. • В квартире остается: кухонный гарнитур с варочной плитой и духовым шкафом, гардеробная. Дом: • Дом 2013 года. • Ухоженная территория двора с детской площадкой. • Подземная парковка и гостевая парковка во дворе. • Домофон, интернет/телевидение в доме. • Чистый подъезд. • Для перемещения между этажами есть 2 лифта, грузовой и пассажирский. • В шаговой доступности супермаркеты, аптеки, школы, детские сады, школы развития, спортивные секции, торговый комплекс Академический, гипермаркет Лента. • Остановка общественного транспорта возле дома, на перекрестке трамвайная остановка. *Легко купить:* наличные, ипотека. Поможем с реализацией вашей недвижимости для приобретения данного объекта. Помощь в одобрении ипотеки по наилучшим ставкам от банков-партнёров. Агентство недвижимости «Квико» гарантирует своим клиентам безопасность сделки. Наша профессиональная деятельность застрахована. ID объекта в нашей базе: 4705
    размещено: 24.10.2025 , обновлено: 30.10.2025

    1-к квартира, Ландау, 14/3

    • 27.06 м2
    • 16/18 этаж
    • Состояние: хорошее
    3 999 990 ₽ (147800 ₽/м2)
    Предлагается к продаже тёплая и полностью готовая к жизни студия 27,06 м² (включая лоджию) по адресу:г. Екатеринбург, ул. Академика Ландау, д. 14/3. ???? О квартире:Расположена на 16 этаже, из окна открывается прекрасный вид на город.Формат — студия с грамотной планировкой: зона кухни, отдыха и сна разделены визуально.Большая лоджия расширяет пространство — можно обустроить рабочее место или уютную зону отдыха.Квартира очень тёплая, с низкими коммунальными платежами. Вся мебель и техника остаются новому владельцу — идеальный вариант для тех, кто хочет заехать сразу или купить под сдачу без дополнительных вложений. ???? О доме и благоустройстве:Современный дом, чистые подъезды, надёжные лифты (Пассажирский и грузовой).Территория закрыта от машин, круглосуточное видеонаблюдение.Для жильцов: просторный Соседский центр с ежедневными мероприятиями и коворкингом, аптеки, магазины, ПВЗ, общественный транспорт; детские площадки, частный сад во дворе, площадка для выгула собак, колясочные, места для хранения инвентаря, лапомойки; большая парковка у дома, ведётся строительство многоуровневого надземного паркинга. ???? Юридическая чистота: Один взрослый собственник; Никто не прописан; Нет долгов, обременений и ипотеки; Готова к продаже, быстрый выход на сделку. ???? Подойдёт:Тем, кто ищет уютное жильё «под ключ» — и инвесторам, и тем, кто хочет жить с комфортом.Студия выгодно сдается — отличная окупаемость благодаря полному комплекту мебели, теплу и современной инфраструктуре района. ???? Звоните — показ возможен в удобное для вас время. ID объекта в нашей базе: 11851
    размещено: 21.10.2025 , обновлено: 25.10.2025

    1-к квартира, Академика Парина, 46/4

    • 28.9 м2
    • 12/25 этаж
    • Состояние: идеальное
    4 400 000 ₽ (152200 ₽/м2)
    УЖЕ ВНЕСЕН АВАНС! Предлагается к продаже уютная однокомнатная квартира с большой кухней и изолированной комнатой на 12 этаже монолитного дома. В квартире выполнен качественный ремонт, с использованием современных материалов, что позволяет сразу въехать и жить без дополнительных вложений. Квартира имеет совмещенный санузел и большую застекленную лоджию, которая станет отличным местом для отдыха. Вся инфраструктура - в шаговой доступности: Район полностью сформирован для жизни с детьми и без: Детские сады 43 и 150 - прямо рядом с домом. Школа 79 - в нескольких минутах ходьбы. "Гипер Лента" - большой семейный магазин в 5 минутах от дома. Не упустите свой шанс купить отличную квартиру для жизни или выгодных вложений! Отличный ваpиaнт, кaк для собственного проживания, так и для сдачи в аренду! Звоните! Записывайтесь на показ объекта прямо сейчас. Рады будем ответить на все ваши вопросы. ID объекта в нашей базе: 26082
    размещено: 20.10.2025 , обновлено: 31.10.2025

    1-к квартира, Ландау, 39а/2

    • 27 м2
    • 1/15 этаж
    • Состояние: хорошее
    4 500 000 ₽ (166700 ₽/м2)
    ОТЛИЧНОЕ ПРЕДЛОЖЕНИЕ! Продается квартира-студия в ЖК «Спутник-1»!Планировка: прихожая + кухня-гостиная + совмещённый СУОбщая площадь: 27 м²Состояние: готова к заселению. Выполнен качественный косметический ремонт.О ЖК: Благоустроенная закрытая территория, современная детская площадка, озeлeнённый двoр, по всей территории видеонаблюдение и охрана.Преимущества объекта:• На первом этаже секции - колясочная.• Для автовладельцев предусмотрены парковочные места во дворе.• Развитая инфраструктура: запроектированы 2 большие школы, 3 детсада. В 8-ми минутах ходьбы трамвайное кольцо - ул. Академика Парина и автобусная остановка - Благовещенский храм. В 5-ти минутах ходьбы место отдыха жителей Академического - Преображенский парк с оборудованной набережнойКому подойдёт квартира:1. Молодой семье — удобная планировка, хорошо оборудованная детская площадка во дворе, транспортная доступность. Рядом находятся лицензированные детские сады.2. Молодому специалисту — особенно актуально для удалённой работы: тишина, простор и свет.3. Инвестору — объект обладает высокой ликвидностью на рынке недвижимости.4. Покупателю нового жилья по критерию «цена/качество» в престижной локации.Документы:Возможна покупка в ипотеку, 1 собственник. Все документы готовы к сделке.Звоните и записывайтесь на просмотр! ID объекта в нашей базе: 11835
    размещено: 17.10.2025 , обновлено: 27.10.2025

    1-к квартира, Краснолесья, 108

    • 33 м2
    • 13/21 этаж
    • Состояние: хорошее
    5 600 000 ₽ (169700 ₽/м2)
    Светлая, готовая 1-комнатная квартира в новом ЖК «Добрый»! Это идеальное предложение для тех, кто ценит комфорт, удобство и развитую инфраструктуру.О квартире:Общая площадь: 33 кв. м.Площадь кухни: 10 кв. м.Удобная и функциональная планировка. Есть лоджия, что делает квартиру еще светлее. Отличное место для организации дополнительного хранения или зоны отдыха. Этаж: 13-й из 21. Квартира не смотрит в стену соседнего дома, она наполнена солнечным светом.Расположение и инфраструктура — главные преимущества:ЖК «Добрый» находится в развитом Академическом районе. Всё необходимое для комфортной жизни — буквально в двух шагах:Транспорт: Остановка общественного транспорта в 2 минутах от дома, трамвайная — в 5 минутах. Добраться до любой точки города не составит труда.Магазины и сервис: Рядом все необходимые магазины (продуктовые, хозяйственные), салоны красоты, кафе.Для семей с детьми: В пешей доступности находятся детские сады №52 и №43, а также школа №23. Также рядом расположены детские развивающие центры.Отдых и развлечения: Рядом ТРЦ «Академический», где вы найдете кинотеатр, фуд-корт и множество магазинов.Эта квартира — готовое решение для вашей счастливой жизни. Она подойдет молодым парам, студентам или в качестве выгодной инвестиции.Не упустите свой шанс на комфортную жизнь! Звоните прямо сейчас для записи на просмотр! ID объекта в нашей базе: 804
    размещено: 17.10.2025 , обновлено: 28.10.2025

    1-к квартира, Ландау, 41

    • 33 м2
    • 2/18 этаж
    • Состояние: идеальное
    4 900 000 ₽ (148500 ₽/м2)
    Продаём евро-двухкомнатную квартиру в одном из самых динамично развивающихся районов Екатеринбурга. Квартира имеет отличную планировку: кухня-гостинная правильной формы (12 кв.м.) с панорамным окном, жилая комната (11 кв.м.), просторная прихожая с гардеробом, прекрасный вид во двор. В квартире сделан качественный ремонт. Всё готово для проживания новых собственников. Вокруг дома уютный двор с детскими и спортивными площадками, большое количество парковочных мест, набережная. В шаговой доступности много инфраструктуры: магазины, школа, три детских сада, фитнес клуб, отделения банков, остановки общественного транспорта. Рядом находятся удобные выездные пути.Документы прошли юридическую проверку. Без залогов, обременений. Один взрослый собственник. Ипотека возможна. Чистая продажа. Ключи на сделке. Приглашаем на просмотр! ID объекта в нашей базе: 236
    размещено: 06.10.2025 , обновлено: 30.10.2025

    1-к квартира, Академика Парина, 41

    • 25.4 м2
    • 5/14 этаж
    • Состояние: хорошее
    3 900 000 ₽ (153500 ₽/м2)
    Вашему вниманию замечательная студия в самом перспективном и развивающемся районе города! Прекрасный старт для одного человека или молодой семьи, а также для сдачи в аренду. Состояние хорошее. Бонусом остается кухонный гарнитур. Соседи все спокойные и приветливые люди без вредных привычек. Ухоженная придомовая территория с детской площадкой и местами отдыха для взрослых. В шаговой доступности есть абсолютно все для комфортной жизни. Приглашаем на просмотр (записаться можно по телефону). ID объекта в нашей базе: 11801
    размещено: 09.10.2025 , обновлено: 31.10.2025

    1-к квартира, Анатолия Мехренцева, 34

    • 38.7 м2
    • 1/7 этаж
    • Состояние: идеальное
    4 990 000 ₽ (128900 ₽/м2)
    ???? Однушка в Академе — в современном кирпичном доме, где всё продумано для комфортной жизни.Дом стоит в глубине двора, вдали от проезжей части — здесь тихо, спокойно и уютно. Из квартиры открывается выход на вместительную лоджию, где можно устроить уголок отдыха, поставить кресло и наслаждаться свежим воздухом.✨ Внутри всё готово к жизни:Квартира полностью укомплектована мебелью и новой техникой — от плиты и холодильника до системы очистки воды. Всё свежее, аккуратное и остаётся новому собственнику.⚖️ Юридически всё чисто и просто:Один взрослый собственник, без обременений, документы готовы — можно выходить на сделку в любое время.???? Район с отличной инфраструктурой:Рядом остановки автобусов и трамваев, торговый центр «Академический», школы, детские сады, супермаркеты и всё, что нужно современному городскому человеку.А для прогулок и отдыха — в шаговой доступности зелёный парк, где зимой можно кататься на лыжах, а летом гулять и дышать чистым воздухом.???? Это квартира для тех, кто ценит комфорт, тишину и удобство в одном месте.Приходите — посмотрите своими глазами, и вы поймёте, что это то самое место, где приятно жить. ID объекта в нашей базе: 11771
    размещено: 08.10.2025 , обновлено: 25.10.2025

    1-к квартира, Ландау, 32

    • 31.2 м2
    • 7/16 этаж
    • Состояние: идеальное
    5 200 000 ₽ (166700 ₽/м2)
    Продаётся уютная, тёплая, однокомнатная квартира. В квартире выполнен капитальный ремонт. Отличный вариант для одного человека или семейной пары, а также для сдачи в найм. Немного о ЖК «Пушкин» — жилой комплекс комфорт-класса на юго-западе Екатеринбурга, это 2 корпуса, у каждого из которых своё название. Дом высотой 16 этажей — это «Онегин», 22-этажный — «Дубровский». Рядом работают детские сады, школы, магазины. Территория ЖК закрыта от посторонних, к услугам жителей — подземный и открытый паркинги, колясочные, кладовые, консьерж-сервис. Комплекс сдан в IV квартале 2024 года. В ЖК «Пушкин» безбарьерная среда. В подъездах оборудованы колясочные, зоны ожидания, установлены скоростные лифты. Двор в «Пушкине» закрыт от машин и посторонних, на территории установлены камеры видеонаблюдения. Дети смогут спокойно качаться на качелях или играть в песочнице, взрослые — отдыхать и заниматься спортом на специальных площадках. Оставить автомобиль жители смогут на подземном паркинге или на открытой стоянке. Рядом с ЖК расположены продуктовые магазины, есть магазин прямо на территори самого ЖК, пункты выдачи интернет-заказов. В радиусе 900 м работают 2 государственных детских сада. До школы № 79 — 1,8 км, это 22 минуты пешком или 5 минут на машине. До поликлиники № 5 — 3 км. Через дорогу от комплекса находится Преображенский парк. До Юго-Западного лесопарка — 1,8 км. ID объекта в нашей базе: 1922
    размещено: 07.10.2025 , обновлено: 19.10.2025

    1-к квартира, Краснолесья, 139

    • 39.2 м2
    • 8/16 этаж
    • Состояние: хорошее
    5 200 000 ₽ (132700 ₽/м2)
    Уютная квартира в спальном районе города. Удачное расположение дома, детский сад, школа, магазины, Торговый центр, парк, детские площадки. В шаговой доступности остановка общественного транспорта. 1 взрослый собственник, обременений нет. ID объекта в нашей базе: 25899
    размещено: 07.10.2025 , обновлено: 23.10.2025

    1-к квартира, Рябинина, 49А

    5 650 000 ₽ (160100 ₽/м2)
    Арт. 119227109 В продаже квартира с ремонтом в ЖК Элевен, с видовыми характеристиками в центре Академического района , г.Екатеринбурга. Квартира со свежим современным ремонтом. На кухне установлен современный кухонный гарнитур, панорамное окно, где можно встречать восходы и закаты. В комнате сделана встроенная мебель на заказ, комната просторная и светлая. Ванная комната продумана до мелочей. В прихожей установлена встроенная мебель. При продаже квартиры остается новому собственнику кухонный гарнитур и встроенная мебель в комнате и прихожей. Появились вопросы ,звоните записывайтесь на просмотр. Безопасность сделки гарантирует Ориентир недвижимость!
    размещено: 07.10.2025 , обновлено: 25.10.2025

    1-к квартира, Академика Парина, 4

    • 36.2 м2
    • 3/15 этаж
    • Состояние: идеальное
    4 750 000 ₽ (131200 ₽/м2)
    Предлагаем вашему вниманию замечательную и уютную квартиру.Отличное расположение дома, удобный подъезд с Амундсена.Красивый и функциональный двор с различными модулями для маленьких непосед.Удобный 3й этаж, при желании или при форс-мажорах можно обходиться без лифта.По квартире:- комфортная планировка- солнечная сторона- косметический ремонт (можно сразу заехать и жить)- красивый и функциональный кухонный гарнитур который мы оставляем покупателю + шкаф купе в прихожей- лоджия- тихие и адекватные соседиПричина продажи - решили расширить площадь.Долгов и обременений нет, один взрослый собственник.Звони, мы ждём тебя на показ!Показы по предварительной договорённости. ID объекта в нашей базе: 11747
    размещено: 07.10.2025 , обновлено: 27.10.2025

    1-к квартира, Ландау, 41

    • 24.2 м2
    • 5/18 этаж
    • Состояние: удовлетворительное
    3 700 000 ₽ (152900 ₽/м2)
    Отличная студия в ЖК Спутник, чистейшие дворы, рядом новая школа 133, с огромным стадионом и разными спортивными площадками. В доме находится школа циркового искусства. Дворы оснащены всеми необходимыми для развития детей комплексами. Сама квартира очень светлая, с ремонтом под чистовую отделку ,постелить подложку и можно класть ламинат , загрунтовать стены и можно клеить обои, Ванну и туалет сделать на свой вкус. Окна выходят на парк перед школой. Сторона солнечная, окно в пол. вместительная прихожая, где можно разместить шкаф. ID объекта в нашей базе: 11632
    размещено: 30.09.2025 , обновлено: 27.10.2025

    1-к квартира, Очеретина, 13

    • 37.7 м2
    • 1/4 этаж
    • Состояние: хорошее
    4 100 000 ₽ (108800 ₽/м2)
    Продаётся квартира. Косметический ремонт, вся необходимая инфраструктура в шаговой доступности. Спокойные соседи.Звоните, покажем. Внесен аванс. ID объекта в нашей базе: 11869
    размещено: 26.09.2025 , обновлено: 25.10.2025

    1-к квартира, Академика Сахарова, 73

    • 39 м2
    • 15/25 этаж
    • Состояние: хорошее
    5 700 000 ₽ (146200 ₽/м2)
    Объект № 194560. Продам видовую квартиру на 15 этаже с потрясающей панорамой на Преображенский парк. Площадь квартиры 39,3 кв.м. Уютная, c большой прихожей и просторной лоджией. Идеальное решение для комфортного проживания. Высота потолков 2,7 метра. Высокий этаж - красивый вид, окна выходят на Преображенский парк. Ванная и туалет совмещенные, в кафеле пол и стены. Окна пластиковые, на полу ламинат, стены - обои под покраску. Остается кухонный гарнитур, вся мебель, прихожая. Дом 2019 года постройки, расположен в центре Академического района, материал стен-кирпич, в любое время года в квартире тепло. B подъезде 4 лифта. Чистый ухоженный двор, детская площадка. Игровой комплекс, изолированные и огороженные детские площадки, подземный паркинг. Так же есть места для парковки во дворе. Pайон Академический – самый новый, динамичный, яркий и молодой район Екатеринбурга, где современная архитектура сочетается с продуманной инфраструктурой. Школа №79 во дворе, детский сад во дворе 43, 150. Детская поликлиника, спортивно-оздоровительный комплекс. Супермаркеты, аптеки, автобусная остановка рядом. ТРЦ Академический. Квартира готова к проживанию без дополнительных затрат на ремонт и обустройство. Если у Вас не продана квартира или нужна помощь с одобрением ипотеки звоните прямо сейчас. ***Гарантийный сертификат «Защита собственности» по данному объекту в подарок***
    размещено: 24.09.2025 , обновлено: 21.10.2025

    1-к квартира, Вильгельма де Геннина, 47

    • 39 м2
    • 3/22 этаж
    • Состояние: хорошее
    4 500 000 ₽ (115400 ₽/м2)
    Объект № 194006. Дом расположен в шаговой доступности от взрослой поликлиники, остановки трамвая, садика, школы, Преображенского парка. Окна квартиры выходят во двор. Все собственники - совершеннолетние, чистая продажа. ***Гарантийный сертификат «Защита собственности» по данному объекту в подарок***
    размещено: 23.09.2025 , обновлено: 22.10.2025

Новостройки Екатеринбург, мкр-н. Академический

Приоритет

Увеличивает просмотры в 3 раза

Ваше объявление показывается в списке выше обычных объявлений. подключить