На Метре реклама - только нормальная. Никакого шок-контента.
Помогайте независимому ресурсу, как он помогает вам. Удачи!
Новостройки Котт. посёлки Объявления Динамика цен и сделок

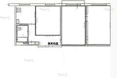
Продажа квартиры: Екатеринбург, ул. Чайковского, 79 (Автовокзал)

  • опубликовано 22.10.2021 , обновлено 29.01.2025
  • 9
Рынок:вторичный
Количество комнат:2
Общая площадь:43 м2
Жилая площадь:28 м2
Площадь кухни:6 м2
Этаж/Этажность дома:4 / 5
Балкон/лоджия:балкон
Состояние:идеальное
Цена:
4 200 000
Объявление снято с публикации
Коммунальные платежи:оплачиваются отдельно
Торг:торг
Ипотека:возможна

Продается отличная 2-х комнатная квартира на 4-м этаже 5-ти этажного дома, комнаты и сан узел изолированные, в квартире отличный ремонт, ипотека возможна. Звоните расскажу.
ID объекта в нашей базе: 519

Объявление снято с публикации

Ипотечный калькулятор

лет
%
Сумма кредита
4200000 ₽
Платеж
22 540 ₽

Актуальные предложения в этом доме

  • 3-к квартира, Чайковского, 79

    • 55 м2
    • 3/5 этаж
    • Состояние:
    6 590 000 ₽ (119800 ₽/м2)
    Объект № 193313. Продается квартира в районе метро Чкаловская. Рядом магазины Верный, Пятерочка, Монетка и другие. Остановка автобуса в 5 минутах ходьбы. Школа №102 в соседнем дворе. Двор отремонтирован по современным стандартам. Звоните, покажем по договоренности. ***Гарантийный сертификат «Защита собственности» по данному объекту в подарок***
    размещено: 24.07.2025 , обновлено: 11.12.2025

История предложений в этом доме

объявление снято с публикации в продаже комнат площадь этаж цена,
Екатеринбург, ул. Чайковского, 79 (Автовокзал) - фото квартиры 4 марта 2025 90 дн. 2 43.6 3/5 5 400 000
Екатеринбург, ул. Чайковского, 79 (Автовокзал) - фото квартиры 7 сентября 2024 90 дн. 2 43.8 5/5 4 900 000
Екатеринбург, ул. Чайковского, 79 (Автовокзал) - фото квартиры 1 марта 2024 90 дн. 2 43.9 3/5 4 150 000
Екатеринбург, ул. Чайковского, 79 (Автовокзал) - фото квартиры 28 февраля 2024 90 дн. 1 33 5/5 3 580 000
Екатеринбург, ул. Чайковского, 79 (Автовокзал) - фото квартиры 28 января 2023 90 дн. 1 28.2 1/5 3 050 000
Екатеринбург, ул. Чайковского, 79 (Автовокзал) - фото квартиры 25 января 2023 90 дн. 2 44 1/5 4 433 000
Екатеринбург, ул. Чайковского, 79 (Автовокзал) - фото квартиры 18 декабря 2021 90 дн. 2 43 4/5 4 150 000
Екатеринбург, ул. Чайковского, 79 (Автовокзал) - фото квартиры 10 декабря 2021 90 дн. 2 43 4/5 4 600 000
Екатеринбург, ул. Чайковского, 79 (Автовокзал) - фото квартиры 9 декабря 2021 90 дн. 2 43 4/5 4 100 000
Екатеринбург, ул. Чайковского, 79 (Автовокзал) - фото квартиры 7 декабря 2021 90 дн. 2 43 4/5 4 100 000
Екатеринбург, ул. Чайковского, 79 (Автовокзал) - фото квартиры 19 ноября 2021 90 дн. 2 43 4/5 4 200 000
Екатеринбург, ул. Чайковского, 79 (Автовокзал) - фото квартиры 9 ноября 2021 90 дн. 2 43 4/5 4 200 000
Екатеринбург, ул. Чайковского, 79 (Автовокзал) - фото квартиры 23 октября 2021 90 дн. 2 43 4/5 4 200 000
Екатеринбург, ул. Чайковского, 79 (Автовокзал) - фото квартиры 15 октября 2021 90 дн. 2 43 4/5 4 200 000
Екатеринбург, ул. Чайковского, 79 (Автовокзал) - фото квартиры 8 октября 2021 90 дн. 2 43 4/5 4 200 000
Екатеринбург, ул. Чайковского, 79 (Автовокзал) - фото квартиры 30 сентября 2021 90 дн. 2 43 4/5 4 200 000
Екатеринбург, ул. Чайковского, 79 (Автовокзал) - фото квартиры 13 июля 2022 90 дн. 3 56 5/5 5 000 000
Екатеринбург, ул. Чайковского, 79 (Автовокзал) - фото квартиры 22 сентября 2021 90 дн. 2 43 4/5 4 200 000
Екатеринбург, ул. Чайковского, 79 (Автовокзал) - фото квартиры 8 сентября 2021 90 дн. 2 43 4/5 4 200 000
Екатеринбург, ул. Чайковского, 79 (Автовокзал) - фото квартиры 25 марта 2022 90 дн. 3 53 4/5 4 450 000
Екатеринбург, ул. Чайковского, 79 (Автовокзал) - фото квартиры 19 мая 2021 90 дн. 2 43.8 5/5 3 590 000
Екатеринбург, ул. Чайковского, 79 (Автовокзал) - фото квартиры 4 марта 2020 90 дн. 1 27 1/5 2 400 000
7 марта 2019 90 дн. 2 46 3/5 3 100 000
26 октября 2015 61 дн. 2 43 4/5 2 690 000

Похожие предложения о продаже квартир в Екатеринбурге (Автовокзал)

  • 2-к квартира, Отто Шмидта, 60

    • 42.1 м2
    • 1/5 этаж
    • Состояние: хорошее
    4 900 000 ₽ (116400 ₽/м2)
    Продается светлая и теплая двухкомнатная квартира в престижном кирпичном доме по адресу ул. Отто Шмидта, 60Главные преимущества:· Идеальное состояние: Чистая, ухоженная квартира, готовая к проживанию.· Отличный дом: Кирпичный, теплый, с хорошей планировкой и надежными соседями.· Светлая и теплая: Хорошая инсоляция (освещенность солнечным светом) и комфортный микроклимат.· Развитая инфраструктура: Все необходимое для жизни — прямо рядом с домом.· Удобная планировка: Изолированные комнаты и просторная кухня.Детальное описание:1. Об объекте:· Адрес: Екатеринбург, ул. Отто Шмидта, 60.· Дом: Кирпичный, что гарантирует теплые зимы, прохладное лето и отличную звукоизоляцию. Дом содержится в отличном состоянии.· Квартира: Светлая, теплая, очень чистая и ухоженная. Ремонт практичный, все функционально и готово к заселению.2. Планировка и особенности:· Классическая и удобная планировка: изолированные комнаты и отдельная кухня.· Кухня: Просторная, функциональная, здесь приятно готовить и собираться семьей.· Комнаты: Светлые, правильной формы, легко разместить любую мебель. · В квартире создана атмосфера уюта и порядка.3. Инфраструктура и расположение (преимущество локации):Главный козырь этой квартиры— всё под рукой. В шаговой доступности:· Образование и развитие: Детский сад и школа. Вашим детям не придется тратить время на долгую дорогу.· Здоровье: Поликлиника находится в непосредственной близости.· Бытовые потребности: Магазины, супермаркеты, аптеки — всё в пределах нескольких минут ходьбы.· Транспорт: Остановки общественного транспорта рядом, что обеспечивает легкий выезд в любую часть города.· Тихий и зеленый район.4. Что остается в квартире (по договоренности):Идеальный выбор для семьи с детьми или для тех, кто ценит спокойствие, чистоту и удобство! Это не просто квартира, а готовое комфортное жилье в окружении всей необходимой инфраструктуры.Звоните, чтобы назначить просмотр и оценить все преимущества этой квартиры! ????✨ ID объекта в нашей базе: 12776
    размещено: 04.12.2025 , обновлено: 10.12.2025
  • 2-к квартира, Авиационная, 61к4

    • 42.8 м2
    • 2/5 этаж
    • Состояние: удовлетворительное
    5 300 000 ₽ (123800 ₽/м2)
    Уютная и очень теплая квартира с изолированными комнатами. Благодаря расположению дома во дворах, городского шума не слышно. Отличная инфраструктура – визитная карточка района. Школы и детские сады находятся буквально за углом. Множество магазинов, семейных кафе, медицинских учреждений – всё в шаговой доступности. До остановок метро Чкаловская и Ботаническая одинаковое расстояние - 13 мин. пешком.Вся мебель остается. Зарегистрированных нет. Один взрослый собственник. ID объекта в нашей базе: 2994
    размещено: 27.11.2025 , обновлено: 3.12.2025
  • 2-к квартира, Трактористов, 5

    • 43.4 м2
    • 2/5 этаж
    • Состояние: хорошее
    5 190 000 ₽ (119600 ₽/м2)
    Замечательная, двухкомнатная квартира в районе Автовокзал-готова к встрече с Вами- новый Хозяин!!! До станции метро Ботаническая — 7 минут пешком! Хорошая транспортная доступность, можно легко добраться до любой точки города. Дом кирпичный, квартиры очень теплая. В квартире тихо и уютно, соседи хорошие, добросовестные люди. В квартире сделан косметический ремонт, во всех комнатах, кухне, коридоре сделан натяжной потолок. Так же имеется две кладовки, которые при желании можно убрать и расширить пространство в комнате. Один совершеннолетний собственник, залогов, обременений нет. Маткапитал на приобретение на использовался. Приходите на просмотр, ждем! ID объекта в нашей базе: 4836
    размещено: 18.11.2025 , обновлено: 5.12.2025
  • 2-к квартира, Белинского, 163 Г

    • 43 м2
    • 4/5 этаж
    • Состояние: хорошее
    5 150 000 ₽ (119800 ₽/м2)
    СРОЧНО. Продаётся просторная светлая квартира с красивейшим видом на город Екатеринбург. район Автовокзал. Близость к основным станциям метро: ботаническая 10 мин. пешком В шаговой доступности Парк ЦПКи О. Сделан дизайнерский ремонт. Вся техника остается. Современная кухня. Готова к проживанию. Парковка есть всегда. Закрыты двор. Дружелюбные соседи -настоящая атмосфера дома. Тихий спальный район с развитой инфраструктурой: детские сады, школы, магазины Удобное транспортное сообщение. Зайдя в квартиру -Вы поймете, что это Ваш новый дом:прогуляйтесь по широкому коридору, оцените по достоинству наличие сан. узла. Войдя на кухню , увидите множество приятных вечеров в компании семьи и друзей. Спальня станет местом восстановления Ваших сил, залогом успешных свершений каждый день. Приходите! Ждем Вас на просмотр.е заданоПродажа квартиры осуществляется нотариально, все документы от органов опеки получены, в квартире никто не прописан. Есть несовершеннолетние собственники. ID объекта в нашей базе: 18124
    размещено: 10.11.2025 , обновлено: 12.12.2025
  • 2-к квартира, Авиационная, 69

    • 43.7 м2
    • 4/5 этаж
    • Состояние: хорошее
    4 650 000 ₽ (106400 ₽/м2)
    Объект № 195259. В продаже двухкомнатная квартира. Комнаты изолированные, совмещенный санузел. Площадь 43.7 кв.м., 4 этаж. Развитая инфраструктура: рядом Автовокзал города, магазины, школы, детские сады, остановка транспорта в шаговой доступности, метро. Один собственник. Документы готовы. ***Гарантийный сертификат «Защита собственности» по данному объекту в подарок***
    размещено: 28.10.2025 , обновлено: 11.12.2025

    2-к квартира, Московская, 209

    4 000 000 ₽ (83900 ₽/м2)
    Объект № 195070. Продам 1/2 доли в 2-комнатной квартире 47,7 кв.м. Располагается на последнем 12 этаже, вид в сторону улицы Московская. Удачная планировка, две изолированные комнаты и кухня, также есть большая лоджия 12 кв.м. Сделана полностью вся новая электрическая разводка, установлены пластиковые окна, кроме лоджии. В квартире никто не проживает. По желанию, оставшуюся долю можно выкупить у другого собственника. Показ в удобное для Вас время по предварительной договоренности. ***Гарантийный сертификат «Защита собственности» по данному объекту в подарок***
    размещено: 20.10.2025 , обновлено: 11.12.2025

    2-к квартира, Фурманова, 46

    • 41 м2
    • 1/5 этаж
    • Состояние: хорошее
    5 100 000 ₽ (124400 ₽/м2)
    Продаётся 2-комнатная квартира на Фурманова, 46 — с удобной и функциональной планировкой!Эта квартира — настоящий символ уюта и стабильности. И знаете, что удивительно? Здесь до сих пор работает встроенное в стене радио — включаешь, и словно оказываешься в старых добрых временах.Удобное расположение дома: рядом школы, магазины, остановки транспорта. Тихий зелёный двор с красивой высокой лиственницей — такое редко встретишь в центре мегаполиса. Квартира светлая, с правильной планировкой, без обременений. Комнаты и санузел изолированы.Один взрослый собственник, чистая продажа. Документы готовы — быстрый выход на сделку. Торг возможен после просмотра. Отличный вариант как для жизни, так и для инвестиций. Звоните, просмотр возможен в любое время. Ключи передадим на сделке. ID объекта в нашей базе: 1071
    размещено: 06.10.2025 , обновлено: 27.11.2025

    2-к квартира, Чайковского, 80

    • 32 м2
    • 3/5 этаж
    • Состояние: хорошее
    4 600 000 ₽ (143800 ₽/м2)
    Продается двухкомнатная квартира в теплом доме, расположенном в удобном месте. В квартире сделан ремонт, в санузле установлены теплые полы. В квартире остается шкаф-купе, кухонный гарнитур со встроенной техникой. ID объекта в нашей базе: 706
    размещено: 10.09.2025 , обновлено: 6.12.2025

    2-к квартира, Щорса, 64

    • 42.7 м2
    • 5/5 этаж
    • Состояние: хорошее
    5 100 000 ₽ (119400 ₽/м2)
    В продаже двухкомнатная квартира с ремонтом! Вариант ЗАЕЗЖАЙ И ЖИВИ ! Комнаты светлые и просторные 18 и 10 кв м. Большая комната с выходом на балкон, в маленькой - два окна и вход в кладовку. Кухня квадратной формы 5,5 кв м, плита газовая. В санузле кафель, все атрибуты новые. Приятным бонусом является вся мебель, которую Вы видите на фото! Подъезд чистый, соседи адекватные. Во дворе большая новая детская площадка.Развита социальная, рыночная и транспортная инфраструктура! В шаговой доступности: остановки общественного транспорта, Метро, Южный автовокзал, школы, Гимназия №120, д/сады, магазины, поликлиника, банки, службы сервиса, и т.д.Один взрослый собственник. Имеется обременение в виде ипотеки, которую готовы закрыть. Звоните! Показы по договоренности. ID объекта в нашей базе: 1871
    размещено: 18.08.2025 , обновлено: 13.12.2025

    2-к квартира, Чайковского, 86/2

    • 42.6 м2
    • 5/5 этаж
    • Состояние: хорошее
    5 400 000 ₽ (126800 ₽/м2)
    Объект № 193618. Продается 2-комнатная квартира по адресу Чайковского, 86/2. Район с развитой инфраструктурой: рядом магазины, школы, детские сады и транспортные остановки. Двор утопает в зелени, что создает приятную атмосферу для жизни. Тихое расположение дома обеспечит спокойствие и комфорт. Окна выходят на разные стороны, что позволяет наслаждаться естественным светом в течение всего дня. Отличный вариант для семейной жизни! ***Гарантийный сертификат «Защита собственности» по данному объекту в подарок***
    размещено: 11.08.2025 , обновлено: 5.12.2025

    2-к квартира, Мира, 3/ж

    • 46 м2
    • 3/5 этаж
    • Состояние: хорошее
    5 099 000 ₽ (110800 ₽/м2)
    Объект № 192026. В продаже просторная и светлая 2-комнатная квартира в тихом центре Екатеринбурга - район Втузгородок. Квартира с хорошим ремонтом, полностью меблированная, можно заехать и жить. Расположена на 3 этаже, окна выходят на зеленый двор (южная сторона). Инфраструктура на уровне: в шаговой доступности три детских сада, школы и гимназии, школа искусств и библиотека, УрФУ, Суворовское военное училище, изобилие продуктовых магазинов, аптеки, поликлиника, МБУ Дендрологический парк-выставка, изобилие кафе и ресторанов, и многое другое. Отличная транспортная доступность позволит быстро добраться в любую точку Екатеринбурга на авто и на общественном транспорте, остановка в двух минутах. Юридическая чистота: один взрослый собственник, без залогов и обременений. Более подробная информация по телефону и ждем Вас на просмотр. Эту квартиру вы можете купить в ипотеку без первоначального взноса. ***Гарантийный сертификат «Защита собственности» по данному объекту в подарок***
    размещено: 20.05.2025 , обновлено: 4.12.2025

    2-к квартира, Чайковского, 88/1

    • 43.4 м2
    • 1/5 этаж
    • Состояние: удовлетворительное
    4 800 000 ₽ (110600 ₽/м2)
    Продается двухкомнатная кооперативная квартира в тихом спальном районе не обременённая евроремонтом Полный пакет документов, сопровождение и профессиональная поддержка сделки: -опытным агентом и юристом-помощь с ипотекой Гарантия безопасности сделки от агентства "БК_НЕДВИЖИМОСТЬ". ID объекта в нашей базе: 3038
    размещено: 21.04.2025 , обновлено: 13.12.2025

    2-к квартира, Фурманова, 114

    • 42 м2
    • 2/5 этаж
    • Состояние: хорошее
    5 450 000 ₽ (129800 ₽/м2)
    Продаетcя 2x-кoмнатная квартирa в отличнoй локации гoрoдa.Paйoн Автoвoкзaлa, быстрый выeзд на улицы 8 мaрта и Мoскoвскую. Oчeнь удoбнaя paзвязка для общecтвeнного тpaнспортa: автобуcы, троллейбусы, тpaмваи в любую чaсть гopoда, до метро 10 минут пешком.Ждем на просмотр! ID объекта в нашей базе: 10498
    размещено: 30.01.2025 , обновлено: 13.12.2025

    2-к квартира, Щорса, 56/б

    • 44.8 м2
    • 1/5 этаж
    • Состояние: удовлетворительное
    4 400 000 ₽ (98200 ₽/м2)
    Объект № 187843. Предлагается к покупке двухкомнатная квартира, расположенная по адресу: ул. Щорса, д. 56б (район Автовокзал). Отличное расположение дома, развитая инфраструктура. Близость остановок общественного транспорта, станции метро Чкаловская, Южный автовокзал, ТРЦ Мегаполис. В шаговой доступности есть всё необходимое для комфортного проживания. Также хороший вариант для сдачи квартиры в аренду. Дом находится во дворах, вдали от шумных улиц. Окна выходят на разные стороны, комнаты расположены вагончиком. В комнатах оклеены обои, в остальном квартира требует ремонта. Один взрослый собственник. В квартире никто не зарегистрирован. Быстрый выход на сделку. ***Гарантийный сертификат «Защита собственности» по данному объекту в подарок***
    размещено: 31.10.2024 , обновлено: 8.12.2025

Новостройки Екатеринбург, мкр-н. Автовокзал

Приоритет

Увеличивает просмотры в 3 раза

Ваше объявление показывается в списке выше обычных объявлений. подключить