На Метре реклама - только нормальная. Никакого шок-контента.
Помогайте независимому ресурсу, как он помогает вам. Удачи!
Новостройки Котт. посёлки Объявления Динамика цен и сделок

Продажа квартиры

  • опубликовано 14.05.2013 , обновлено 12.11.2025
  • 703
Город:Екатеринбург
Рынок:вторичный
Количество комнат:1
Из них изолированных:1
Планировка:«хрущевка»
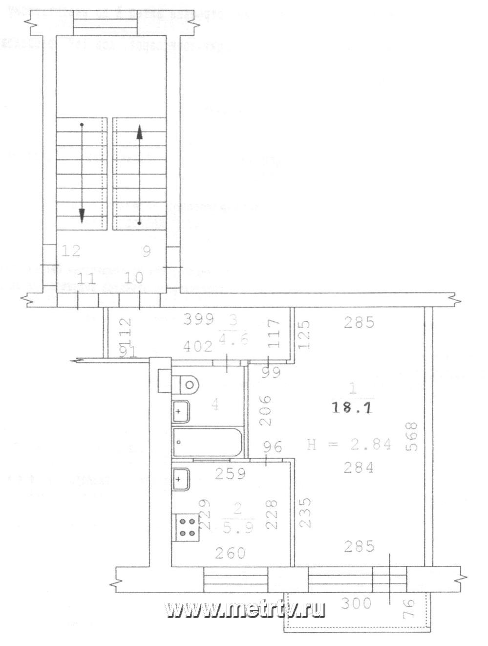
Общая площадь:31.6 м2
Жилая площадь:18.1 м2
Площадь кухни:6 м2
Этаж/Этажность дома:3 / 5
Санузел:совмещенный
Год постройки:1962
Стеклопакеты:есть
Перепланировка:нет
Балкон/лоджия:балкон
Состояние:хорошее
Цена:
2 300 000
Объявление снято с публикации
Условия продажи:«чистая» продажа
Ипотека:возможна
Объявление снято с публикации

Ипотечный калькулятор

лет
%
Сумма кредита
2300000 ₽
Платеж
22 540 ₽

Актуальные предложения в этом доме

  • 3-к квартира, Бакинских комиссаров, 169

    • 101.1 м2
    • 7/10 этаж
    • Состояние:
    9 599 000 ₽ (94900 ₽/м2)
    Большая трехкомнатная квартира с двумя санузлами. Дом 1999 года выпуска, спецпроект с закрытой территорией.✅Много лет в одной семье✅Лучшая планировка✅Просторные комнаты✅Окна на разные стороны (тихий зеленый двор)✅Три утепленные лоджии✅Свежий косметический ремонт✅Остается почти вся обстановка в квартире✅Своя большая кладовая на этажеИдеальный вариант для жизни с семьей, в шаговой доступности: ✅Школы и детские сады✅ТЦ Веер Молл, кинотеатр, рестораны✅Станция МЕТРО Проспект Космонавтов 15 мин ходьбы✅Банки, магазины, аптеки, поликлиники, больницы✅Автобус, трамвай, метро-любой вид транспорта. Без долгов и обременений. Готовы к быстрому выходу на сделку. Звоните! Всё покажем и обо всем договоримся! ID объекта в нашей базе: 14021
    размещено: 25.02.2026

История предложений в этом доме

объявление снято с публикации в продаже комнат площадь этаж цена,
Екатеринбург, ул. Бакинских комиссаров, 169 (Уралмаш) - фото квартиры 17 ноября 2025 90 дн. 1 31 4/5 2 550 000
Екатеринбург, ул. Бакинских комиссаров, 169 (Уралмаш) - фото квартиры 9 декабря 2021 90 дн. 1 31.3 1/5 2 690 000

Новостройки Екатеринбург, мкр-н. Уралмаш

Приоритет

Увеличивает просмотры в 3 раза

Ваше объявление показывается в списке выше обычных объявлений. подключить