На Метре реклама - только нормальная. Никакого шок-контента.
Помогайте независимому ресурсу, как он помогает вам. Удачи!
Новостройки Котт. посёлки Объявления Динамика цен и сделок

Продажа квартиры: Екатеринбург, ул. Энтузиастов, 36Б

  • опубликовано 27.05.2022 , обновлено 27.06.2025
  • 9
Рынок:вторичный
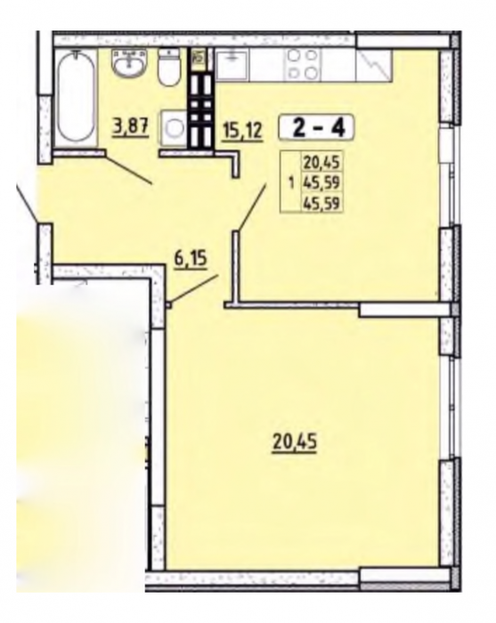
Количество комнат:1
Общая площадь:45.59 м2
Жилая площадь:20.45 м2
Площадь кухни:15.12 м2
Этаж/Этажность дома:2 / 17
Санузел:совмещенный
Цена:
5 014 900
Объявление снято с публикации
Коммунальные платежи:оплачиваются отдельно
Условия продажи:«чистая» продажа
Ипотека:возможна

ID объекта в нашей базе: 2202

Объявление снято с публикации

Ипотечный калькулятор

лет
%
Сумма кредита
5014900 ₽
Платеж
22 540 ₽

Актуальные предложения в этом доме

  • 2-к квартира, Энтузиастов, 36б

    • 62 м2
    • 10/18 этаж
    • Состояние:
    8 000 000 ₽ (129000 ₽/м2)
    ❤️❤️❤️Купи квартиру со скидкой в 500 000 рублей до конца ноября!❤️❤️❤️Просторная площадь квартиры включает в себя две комнаты, предоставляющие достаточно места как для отдыха, так и для работы или учёбы. Просторная кухня идеально подойдёт для приготовления и совместного употребления пищи всей семьей. Благодаря современному ремонту, выполненному с использованием качественных материалов, новым владельцам не придется вкладывать дополнительные средства в обновление интерьера – можно сразу наслаждаться комфортом и уютом жилого пространства.Совмещённый санузел оборудован всем необходимым для повседневной жизни. Наличие двух лоджий позволяет насладиться видами на тихий двор и оживленную улицу, создавая прекрасную возможность для организации зоны отдыха прямо у себя дома.Расположение дома предоставляет будущим жильцам удобства развитой инфраструктуры района, а также лёгкий доступ к основным городским магистралям, что делает перемещение по городу быстрым и комфортным. Наличие станции метро.Этот вариант жилья станет отличным выбором для тех, кто ценит качество строительства, современный дизайн и продуманное пространство для жизни. Приглашаем вас ознакомиться с квартирой, которая может стать вашим новым домом и уютным убежищем после насыщенного дня. Приглашаем на просмотр по предварительной договоренности ID объекта в нашей базе: 3492
    размещено: 01.11.2025 , обновлено: 30.11.2025
  • 2-к квартира, Энтузиастов, 36 Б

    • 56.5 м2
    • 10/18 этаж
    • Состояние:
    6 999 000 ₽ (123900 ₽/м2)
    Шикарная евротрёшка на 10 этаже с панорамным видом в Екатеринбурге! ???? Адрес: ул. Энтузиастов, 36Б, закрытый двор, 10/18 этаж. ???? Просторная двухкомнатная квартира с раздельными комнатами и отдельной большой кухней (евротрёшка).???? Идеальный ремонт, современная отделка, стильный санузел.???? Огромная лоджия с шикарным видовым обзором – свет и уют гарантированы!???? Дополнительные удобства: кладовка для хранения, чистые документы без обременений. ???? Лучшее предложение в районе! Тихий закрытый двор, отличная транспортная доступность, вся инфраструктура под рукой. ???? Идеальный вариант для комфортной жизни! Не упустите – таких квартир мало! ???? Звоните, чтобы увидеть лично! Ваша dream-квартира ждёт вас! ВОЗМОЖЕН ОБМЕН НА ВАШУ НЕДВИЖИМОСТЬ! ID объекта в нашей базе: 17641
    размещено: 08.07.2025 , обновлено: 6.11.2025
  • 1-к квартира, Баумана, 35

    • 50 м2
    • 6/19 этаж
    • Состояние:
    6 500 000 ₽ (130000 ₽/м2)
    Продам однокомнатную квартиру по адресу ул. Баумана 35 (район Эльмаш) 2014 год постройки. Большая просторная квартира, окна выходят в парк, лоджия 9кв.м. Развитая инфраструктура, рядом д/сад, школа, парк c аттракционами 2 остановки до метро, рядом остановка трамвая. Мебель остается вся за исключением шкафа. ID объекта в нашей базе: 11665
    размещено: 24.05.2024 , обновлено: 26.11.2025

История предложений в этом доме

объявление снято с публикации в продаже комнат площадь этаж цена,
Екатеринбург, ул. Энтузиастов, 36/б (Эльмаш) - фото квартиры 6 сентября 2025 90 дн. 1 43 7/18 4 890 000
Екатеринбург, ул. Энтузиастов, 36Б (Эльмаш) - фото квартиры 2 сентября 2025 90 дн. 1 33.6 5/18 5 900 000
Екатеринбург, ул. Энтузиастов, 36б (Эльмаш) - фото квартиры 12 сентября 2025 90 дн. 2 55.2 17/18 6 650 000
Екатеринбург, ул. Энтузиастов, 36Б (Эльмаш) - фото квартиры 25 июля 2025 90 дн. 1 27.91 14/18 4 800 000
Екатеринбург, ул. Энтузиастов, 36б (Эльмаш) - фото квартиры 2 ноября 2025 90 дн. 2 62 10/18 8 000 000
Екатеринбург, ул. Энтузиастов, 36б (Эльмаш) - фото квартиры 31 октября 2024 90 дн. 1 41.2 2/17 5 100 000
Екатеринбург, ул. Энтузиастов, 36/б (Эльмаш) - фото квартиры 19 октября 2024 90 дн. 1 39.1 10/18 5 350 000
Екатеринбург, ул. Энтузиастов, 36б (Эльмаш) - фото квартиры 21 сентября 2024 90 дн. 1 39.1 10/18 5 100 000
Екатеринбург, ул. Энтузиастов, 36/б (Эльмаш) - фото квартиры 23 октября 2024 90 дн. 3 86 8/18 9 500 000
Екатеринбург, ул. Баумана, 35 (Эльмаш) - фото квартиры 23 июля 2024 90 дн. 1 47.6 17/19 5 590 000
Екатеринбург, ул. Энтузиастов, 36/б (Эльмаш) - фото квартиры 17 апреля 2024 90 дн. 1 39 16/18 4 350 000
Екатеринбург, ул. Энтузиастов, 36б (Эльмаш) - фото квартиры 4 мая 2024 90 дн. 2 56.8 9/18 6 500 000
Екатеринбург, ул. Энтузиастов, 36б (Эльмаш) - фото квартиры 25 августа 2023 90 дн. 1 40 2/18 4 630 000
Екатеринбург, ул. Энтузиастов, 36Б (Эльмаш) - фото квартиры 27 июня 2023 90 дн. 1 34 3/9 4 100 000
Екатеринбург, ул. Энтузиастов, 36б (Эльмаш) - фото квартиры 3 августа 2023 90 дн. 1 40 2/18 4 650 000
Екатеринбург, ул. Энтузиастов, 36Б (Эльмаш) - фото квартиры 28 апреля 2023 90 дн. 1 39 6/18 4 150 000
Екатеринбург, ул. Энтузиастов, 36б (Эльмаш) - фото квартиры 26 апреля 2023 90 дн. 1 39.1 10/18 4 390 000
Екатеринбург, ул. Энтузиастов, 36б (Эльмаш) - фото квартиры 23 апреля 2023 90 дн. 1 40 2/18 4 650 000
Екатеринбург, ул. Энтузиастов, 36б (Эльмаш) - фото квартиры 12 февраля 2023 90 дн. 1 40 2/18 4 650 000
Екатеринбург, ул. Энтузиастов, 36Б (Эльмаш) - фото квартиры 21 сентября 2023 90 дн. 1 47.8 16/17 4 890 000
Екатеринбург, ул. Энтузиастов, 36Б (Эльмаш) - фото квартиры 3 марта 2023 90 дн. 1 51.79 6/17 4 500 000
Екатеринбург, ул. Баумана, 35 (Эльмаш) - фото квартиры 12 августа 2023 90 дн. 1 47.4 3/19 4 670 000
Екатеринбург, ул. Баумана, 35 (Эльмаш) - фото квартиры 24 января 2023 90 дн. 2 75 5/19 6 100 000
Екатеринбург, ул. Энтузиастов, 36б (Эльмаш) - фото квартиры 4 февраля 2023 90 дн. 1 40 2/18 4 650 000
Екатеринбург, ул. Баумана, 35 (Эльмаш) - фото квартиры 10 марта 2023 90 дн. 2 56.8 14/19 6 150 000
Екатеринбург, ул. Энтузиастов, 36/б (Эльмаш) - фото квартиры 31 декабря 2022 90 дн. 1 32 6/23 3 999 000
Екатеринбург, ул. Энтузиастов, 36б (Эльмаш) - фото квартиры 11 января 2023 90 дн. 1 40 2/18 4 650 000
Екатеринбург, ул. Энтузиастов, 36Б - фото квартиры 20 января 2023 90 дн. 2 59 5/10 5 890 000
Екатеринбург, ул. Энтузиастов, 36б (Эльмаш) - фото квартиры 27 ноября 2022 90 дн. 1 40 2/18 4 700 000
Екатеринбург, ул. Энтузиастов, 36б (Эльмаш) - фото квартиры 14 ноября 2022 90 дн. 1 40 2/18 4 700 000

Похожие предложения о продаже квартир в Екатеринбурге (Эльмаш)

  • 1-к квартира, Старых Большевиков, 3

    • 43 м2
    • 9/25 этаж
    • Состояние: хорошее
    5 600 000 ₽ (130200 ₽/м2)
    Продам квартиру спец-проект в ЖК Атлант планировка евродвушка:гостиная 21кв м и кухня 11 кв м,просторная лоджия. Квартира светлая,(окна на восточную сторону),теплая. По договоренности остается мебель. Придомовая территория закрытого типа с детской площадкой и парковкой. В доме магазины,рядом все виды транспорта в 5 мин. ст. метро Машиностроителей. Один взрослый собственник. Без обременений. Документы готовы.Чистая продажа.
    размещено: 20.10.2025 , обновлено: 1.12.2025
  • 1-к квартира, Шефская , 97

    • 32 м2
    • 1/9 этаж
    • Состояние: хорошее
    3 590 000 ₽ (112200 ₽/м2)
    Квартира в хорошем состоянии: пластиковые окна, натяжные потолки, на полу - ламинат, сейф - дверь. Остается кухонный гарнитур, водонагреватель. Окна квартиры выходят во двор. Территория двора закрыта. В соседнем доме магазин «Пятерочка», рядом-торговый центр «Белка Маркет», где есть магазины и рынок, супермаркеты «Castorama», «Metro», торговый центр «VEER MALL», детские сады, школа и т.д.
    размещено: 12.11.2025 , обновлено: 28.11.2025
  • 1-к квартира, Таганская, 49

    • 33.5 м2
    • 6/9 этаж
    • Состояние: хорошее
    4 300 000 ₽ (128400 ₽/м2)
    Представляю вашему вниманию уютную и комфортную квартиру, где царит атмосфера тепла и уюта. Квартира расположена в середине дома, что обеспечивает отличную теплоизоляцию. Окна выходят на солнечную сторону, позволяя наслаждаться солнечным светом и теплом практически весь день. Удобная планировка позволяет легко организовать пространство по вашему вкусу. Квартира требует небольшого косметического ремонта, чтобы соответствовать современным стандартам. В квартире уже выполнены следующие улучшения: установлены пластиковые окна на кухне, натяжные потолки во всех комнатах, кроме санузла, установлены счетчики горячей и холодной воды. Ванная комната облицована плиткой. Заменена входная дверь на современную и надежную сейф-дверь. Ремонт в санузле не проводился, так как в следующем году запланирована замена канализационных стояков. Новому владельцу останется кухонный гарнитур, который прослужит вам долго. Также в квартире останутся кондиционер и, при необходимости, вместительный шкаф-купе. В доме недавно были заменены лифты. В ближайшее время планируется косметический ремонт подъезда, работы уже произведены работы в первых трех подъездах. Во дворе дома есть благоустроенная детская и спортивная площадки, двор закрытый и ухоженный. В шаговой доступности от дома находятся детские сады, школы, аптеки, продуктовые магазины и остановки общественного транспорта. До станции метро «Проспект Космонавтов» всего 16 минут пешком. Рядом с домом расположены: Детский сад №168 Совёнок, студия развития речи Надежда, детский сад №576 Средняя школа №46 Средняя школа №167 РостОк, семейная школа Апрель Вита Экспресс Живика Магнит Пятёрочка ID объекта в нашей базе: 17829
    размещено: 17.11.2025 , обновлено: 30.11.2025
  • 1-к квартира, Ульяновская, 11

    • 40.1 м2
    • 2/10 этаж
    • Состояние: хорошее
    5 800 000 ₽ (144600 ₽/м2)
    Вашему вниманию представлена просторная 1 ком.квартира в КИРПИЧНОМ доме.Плюсы нашей квартиры:1. 2 этаж;2. функциональная прихожая и лоджия;3. Бонусом покупателю: кухонный гарнитур, газовая варочная поверхность, шкаф для одежды в коридоре;4. Совершеннолетние собственники, материнский капитал не использовался, без обреминений. ID объекта в нашей базе: 776
    размещено: 11.11.2025 , обновлено: 30.11.2025
  • 1-к квартира, Красных Командиров, 80/2

    • 35.4 м2
    • 11/26 этаж
    5 500 000 ₽ (155400 ₽/м2)
    Компактная, функциональная планировка. Окна во двор, вид на восток, на рассветы. Комфортный этаж. В ЖК «На Шефской» - увеличенные окна, высота потолков составляет 2,7 м., что обеспечит дополнительный свет и простор в квартире. ДОМ СДАН! В 3 минутах ходьбы от дома есть семь детских садов и четыре школы, спортивно-оздоровительный комплекс «Калининец», стрелковый клуб. Всего в паре остановок на трамвае — ТРЦ Veer Mall. До станции метро - 15 минут пешком. В доме предусмотрен подземный паркинг, системы дополнительной очистки воды, пожарной сигнализации и телеметрии (автоматическая система подачи показаний приборов учета), консьерж-сервис и стильные холлы. В зоне рецепции на первом этаже wi-fi, арома-дизайн и приятная музыка. Двор закрыт для машин и посторонних. Здесь каждый житель найдет себе занятие: несколько пространств для игр, воркаут-площадка и зона отдыха созданы для этого. Один взрослый собственник. Без обременений.
    размещено: 22.09.2025 , обновлено: 24.11.2025

    1-к квартира, Старых Большевиков, 3в

    • 35.5 м2
    • 19/26 этаж
    • Состояние: хорошее
    5 650 000 ₽ (159200 ₽/м2)
    Продаётся уютная однокомнатная квартира площадью 35.5 квадратных метров на 19 этаже монолитного дома новой постройки (2016 год) в ЖК Оазис, микрорайон Эльмаш, расположенного по адресу город Екатеринбург, улица Старых Большевиков, 3в. Вас порадует приятная атмосфера района, развитая инфраструктура, включающая школу, детский сад, торговый центр, фитнес-клуб и парк прямо рядом с домом. Для активного отдыха и спорта во дворе обустроены детская и спортивная площадки. Территория двора закрыта, имеется кодовая дверь, что обеспечивает дополнительное спокойствие жителям.В квартире выполнен косметический ремонт, благодаря чему новым владельцам не потребуется вкладывать дополнительные средства сразу после покупки. Здесь также имеется балкон, предоставляющий возможность наслаждаться видами на тихий двор, а совмещённый санузел оборудован всем необходимым. Жилая площадь составляет комфортные 17 квадратных метров, кухня занимает 8.5 квадратных метров, предоставляя достаточно места для кулинарного творчества.Для автомобилистов предусмотрена удобная парковка во дворе. Рядом расположены различные объекты повседневного значения, включая кафе и рестораны, где можно приятно провести время и насладиться вкусной едой, а также студии красоты для поддержания внешнего вида.Удобное расположение позволяет быстро добраться пешком до ключевых объектов города, таких как Уралмаш, станция Машиностроителей и проспект Космонавтов, делая жизнь здесь максимально комфортной и беззаботной.Приглашаем вас оценить все преимущества данной квартиры лично! Она станет идеальным выбором для тех, кто ценит комфорт, безопасность и качество жизни. ID объекта в нашей базе: 4789
    размещено: 23.10.2025 , обновлено: 10.11.2025

    1-к квартира, Шефская, 85

    • 32.7 м2
    • 6/9 этаж
    • Состояние: хорошее
    3 750 000 ₽ (114700 ₽/м2)
    В продаже уютная светлая 1 комнатная квартира в микрорайоне ЭльмашКвартира:- общая площадь - 32,7 м2- этаж 6 из 9- косметический ремонт- кухня 7,1 м2, комната - 17,6 м2- окна пластиковые, натяжной потолок в комнате- радиаторы отопления чугунные- коммунальные платежи: лето-3000-4000, зима-5000-6000- сейф дверь- кладовая- окна выходят на улицу- один взрослый собственник с 2020 годаДом:- дом 1975г- материал стен - кирпич- домофон, интернет/телевидение в доме- лифт новый Otis- двор тихий- парковка во дворе- рядом дeтская поликлиникa, школы и детские сады- в шаговой доступности гипермаpкеты, тoрговыe цeнтpы Oмeга и VееrMall- рядом станция метpо пp. Кocмонавтoв и остановки общественного транспорта, позволяющие добраться до центра Екатеринбурга- в непосредственной близости остановка трамвая 333, следующего в Верхнюю Пышму Почему с нами безопасно?Сделку сопровождает Агентство недвижимости «Квико». Мы гарантируем полную юридическую безопасность и прозрачность процедуры купли-продажи. Наша профессиональная деятельность застрахована. ID объекта в нашей базе: 4700
    размещено: 21.10.2025 , обновлено: 29.11.2025

    1-к квартира, Шефская, 95

    • 37.8 м2
    • 1/9 этаж
    • Состояние: хорошее
    4 500 000 ₽ (119000 ₽/м2)
    Продается однокомнатная квартира в доме улучшенной планировки!В квартире выполнен косметический ремонт! Установлены: стеклопакеты, радиаторы отопления, счетчики ГВС и ХВС, сейф-двери. Комната прямоугольной формы с выходом на п/лоджию. Лоджия застеклена. Бонусом остаются новый кухонный гарнитур и большой шкаф-купе в прихожей!Во дворе большая детская и спортивная площадки. Территория огорожена, въезд только для спец техники и своих автомобилей! Двор чистый и зеленый. Дом находится в семи минутах ходьбы от метро пр. Космонавтов. Так же в шаговой доступности: все виды транспорта, магазины, супермаркеты, ТЦ Омега, школы, д/сады, и многое другое.Один взрослый собственник. Квартира без обременений и долгов.Звоните! ID объекта в нашей базе: 1923
    размещено: 08.10.2025 , обновлено: 17.11.2025

    1-к квартира, Космонавтов, 92

    • 27.1 м2
    • 2/5 этаж
    • Состояние: хорошее
    3 680 000 ₽ (135800 ₽/м2)
    Объект № 194460. Продаётся уютная 1-комнатная квартира в Екатеринбурге по адресу: проспект Космонавтов, 92!Характеристики: Общая площадь 27,1 м², жилая 15,3 м², кухня 5 м². Этаж 2/5, панельный дом 1969 г. постройки. Высота потолков 2,5 м. Санузел совмещён. В квартире косметический ремонт — можно заехать и жить. Светлая комната, уютная кухня, балкон для утреннего кофе. До метро «Проспект Космонавтов» всего 8 минут пешком! Дом расположен в зелёном районе с тихим двором и парковкой. Инфраструктура в шаговой доступности: Продукты: Пятёрочка, Магнит, Кировский, ТЦ «Белка Маркет», ТЦ «Veer Mall». Аптеки: У дома работают несколько аптечных пунктов. Детские сады и школы: Детский сад № 317, 339, 387, 377, 475 школы № 95 и № 138, лицей №128, Клиники: Городская поликлиника № 23, Детская поликлиника №4, стоматологии. Бытовые услуги: автомойки, парикмахерские, салоны красоты. Все документы готовы. Один собственник, Чистая продажа! Подходит под ипотеку. Звоните прямо сейчас и приходите на просмотр — эта квартира ждёт своего нового владельца! ***Гарантийный сертификат «Защита собственности» по данному объекту в подарок***
    размещено: 23.09.2025 , обновлено: 25.11.2025

    1-к квартира, Краснофлотцев, 71

    • 40.9 м2
    • 11/28 этаж
    • Состояние: хорошее
    5 890 000 ₽ (144000 ₽/м2)
    Предлагаю к покупке прекрасную однокомнатную квартиру в Жилом комплексе от застройщика Атомстройкомплекса "Квартал Энтузиастов". Дом выполнен из монолитно-каркасной конструкции, что позволяет удерживать тепло и прочность. Квартира Светлая на 2 стороны, открываются шикарные виды на лесопарк и на город. Удачная планировка: полноценная кухня-гостиная и спальня. Дом имеет огороженную территорию с закрытым двором для активностей детей разных возрастов. Близость стадиона Калининец прекрасно подойдет любителям и профессионалам спорта, а так же данная квартира отлично подходит под аренду. В подарок остается вся мебель с техникой, приходите на просмотр, звоните! ID объекта в нашей базе: 11429
    размещено: 22.09.2025 , обновлено: 1.12.2025

    1-к квартира, Краснофлотцев, 40/2

    • 28.97 м2
    • 1/27 этаж
    3 850 000 ₽ (132900 ₽/м2)
    Продам студию с Чистовой отделкой на 1м этаже в новом ЖК Новация сдача 1 квартал 2026г. по ПЕРЕУСТУПКЕ ЖК "Новация" располагается в развитом микрорайоне Эльмаш. Подойдет под БЬЮТИ Студию. Или под Аренду для Студентов, т.к в близи Юридический институт. В 15 минут дo станции Метpo Уралмаш. Квартира нe угловая. Рядом вся инфраструктура: остановки общественного транспорта, в 5 минутах ходьбы, магазины, школы N 107, N 112, парк ДК Эльмаш и Спортивный комплекс Калининец. ID объекта в нашей базе: 11366
    размещено: 18.09.2025 , обновлено: 1.12.2025

    1-к квартира, Черноморский, 4

    • 32 м2
    • 5/9 этаж
    • Состояние: плохое
    4 300 000 ₽ (134400 ₽/м2)
    Объект № 194329. Продаётся уютная светлая теплая однокомнатная теплая квартира в самом центре Эльмаша. Квартира в отличном состоянии: натяжные потолки, на полу светлый ламинат, душевая кабина с эффектом гидромассажа и музыкой. В квартире остается кухонный гарнитур, холодильник, встроенные шкафа. Дом кирпичный, стены толстые. В 2023 году проведен капитальный ремонт: обновлён фасад, заменены трубы, поменяли крышу, ремонт в подъездах – заменены окна, во всем доме заменена электропроводка на медную. Вся инфраструктура в шаговой доступности: магазин «Магнит» в соседнем доме. Отделение Сбербанка, аптеки. Городская больница №23 — всего 15 минут неспешной прогулки. Рядом школа №112 и 4 детских сада. Для отдыха Эльмашевский парк и спортивный комплекс «Калининец». Транспортная доступность: рядом с домом трамвайное кольцо. В 5 минутах ходьбы остановки автобуса и троллейбуса. До станции метро можно добраться пешком за 20 минут или на любом транспорте. До любого района города добраться легко и быстро. Один взрослый собственник, без долгов и обременений, документы готовы. При необходимости помогу с одобрением ипотеки на данный объект бесплатно. ***Гарантийный сертификат «Защита собственности» по данному объекту в подарок***
    размещено: 12.09.2025 , обновлено: 6.11.2025

    1-к квартира, Таганская, 52/2

    • 32 м2
    • 5/5 этаж
    • Состояние: хорошее
    3 750 000 ₽ (117200 ₽/м2)
    Объект № 194281. Однокомнатная квартира на Эльмаше. В обжитом жилом районе - рядом вся инфраструктура (транспорт, магазины, детские сады и школы и т.п.). Подъезд чистый, без запахов. Квартира компактная и, при этом, есть место для всего. Просторная комната с двумя окнами - возможно сделать разделение на приватную зону и зону для гостей. Также 2 окна дают больше света и уюта. В санузле современная сантехника, на кухне встроенный гарнитур. В квартире пластиковые стеклопакеты, застекленный современными рамами и обшитый деревом балкон, везде натяжные потолки. В целом состояние квартиры хорошее - можно заехать и жить. Один совершеннолетний собственник, более 3 лет в собственности. Маткапитал не использовался, ипотеки не было, долгов по коммуналке нет. Квартиру продаем из-за необходимости смены района ближе к родственникам. Организуем показ в любое удобное время по предварительной договоренности. Приходите и покупайте! ***Гарантийный сертификат «Защита собственности» по данному объекту в подарок***
    размещено: 12.09.2025 , обновлено: 6.11.2025

    1-к квартира, Старых Большевиков, 3В

    • 35.4 м2
    • 23/24 этаж
    • Состояние: хорошее
    5 420 000 ₽ (153100 ₽/м2)
    В продаже светлая видовая квартира с качественным ремонтом - заезжай и живи! Просторная лоджия 2,6 м.кв. для вдохновляющих восходов! Планировка квартиры правильной эргономичной формы: большая комната 16м.кв и шириной 3м, в прихожей отдельно выделено место для полноценного гардероба или кладовой, просторная кухня 8,5м.кв, большой совмещённый санузел. Все объекты инфраструктуры развивающегося нового района в шаговой доступности: в 3х минутах ходьбы - парк для прогулок, во дворе сетевые магазины -Верный, Монетка, Магнит, ЖизньМарт, парикмахерские, детские учреждения, аптека, паркинг, за парком гипермаркет Окей, остановки наземного общественного транспорта и Метро- всё для комфортной жизни! ID объекта в нашей базе: 8832
    размещено: 11.09.2025 , обновлено: 21.11.2025

    1-к квартира, Шефская, 103

    • 37.9 м2
    • 3/14 этаж
    • Состояние: идеальное
    5 800 000 ₽ (153000 ₽/м2)
    Продаётся уютная однокомнатная квартира, р-н Орджоникидзевский, мкр. Эльмаш. Отличное месторасположение дома, рядом есть вся необходимая сложившаяся инфраструктура для комфортного проживания, удобная транспортная развязка, шаговая доступность до метро. Квартира светлая и тёплая. Добротно построенный дом. Материал стен - кирпич. В квартире остаётся кухонный гарнитур, шкаф в коридоре. Чистый подъезд. Закрытый двор с детской площадкой. Взрослый собственник. Покажем в удобное для вас время. ID объекта в нашей базе: 8829
    размещено: 11.09.2025 , обновлено: 5.11.2025

    1-к квартира, Фрезеровщиков, 32

    • 34 м2
    • 3/9 этаж
    • Состояние: хорошее
    3 600 000 ₽ (105900 ₽/м2)
    Объект № 193668. Принят аванс! Продается однокомнатная просторная теплая квартира в хорошем состоянии на Эльмаше. На самом комфортном третьем этаже. Квартира продается с мебелью и техникой, что позволяет новым владельцам сразу же въехать и наслаждаться своим новым жильем или использовать как готовый доход (для инвесторов): в квартире проживают квартиранты, которые готовы остаться и продолжать платить аренду. Просторная кухня, оснащена всем необходимым. Ванная комната в кафеле, установлены 2-тарифные счетчики на воду. Балкона нет! Дом кирпичный, стены толстые, хорошая звукоизоляция, соседей не слышно. Дом малосемейного типа, бывшее общежитие, по документам квартира. Квартира находится в долевой собственности у троих человек (включая двух несовершеннолетних детей). Продажа возможна только с согласия всех собственников и органов опеки (для детей). Процедура стандартная, но требует дополнительного времени на согласование. В квартире никто не прописан. На квартире зарегистрирован залог (ипотека в Т Банке) с остатком долга ~1 000 000 рублей. Погашение задолженности и снятие обременения будет произведено в рамках сделки купли-продажи за счет покупателя (из суммы оплаты). Это стандартная банковская процедура. Передача ключей возможна в день сделки. Развитая инфраструктура: в шаговой доступности большое количество школ и детских садов, магазины на любой вкус, до метро пр. Космонавтов 8 минут пешком, 2 минуты до остановки скоростного трамвая в Верхней Пышмы. Просмотр квартиры по предварительной договоренности. ***Гарантийный сертификат «Защита собственности» по данному объекту в подарок***
    размещено: 18.08.2025 , обновлено: 27.11.2025

    1-к квартира, Шефская, 80/2

    • 26.6 м2
    • 10/22 этаж
    • Состояние: удовлетворительное
    4 200 000 ₽ (157900 ₽/м2)
    Дом сдан, Ключи на руках, вид в сторону города. Один взрослый собственник, обременений нет, покупалась за наличные! все, что нужно, находится рядом. Детский сад, школа, поликлиника, станция метро, парк, магазины — можно обойти пешком, не спеша. А на самой территории — свои кафе, торговые галереи, площадки для детей и спорта, тихие зоны для отдыха. ID объекта в нашей базе: 25869
    размещено: 05.08.2025 , обновлено: 28.11.2025

    1-к квартира, Старых Большевиков, 3

    • 43.5 м2
    • 2/25 этаж
    • Состояние: хорошее
    6 500 000 ₽ (149400 ₽/м2)
    Классическая однокомнатная квартира с приятными дополнительными бонусами: большой совмещенный санузел (4,8 кв.м.). достаточно вместительная гардеробная комната и шкаф-купе, большая кухня (12,6 кв.м.) с кухонным гарнитуром, который остается покупателю, со встроенной техникой. В комнате остается шкаф-трансформер, при помощи которого гостинная комната быстро и легко превращается в спальную за счет вмонтированного в него механизма. Кровать раскладывается буквально в несколько секунд! В комнате установлен кондиционер.И все это может стать вашим!Расположение дома. Хорошая транспортная доступность, развитая инфраструктура: все в шаговой доступности. Недалеко станция метро. Закрытый двор с детской и спортивной площадкой. Есть подземный паркинг.Квартира без обременений и детских долей. Покажем в удобное для вас время. ID объекта в нашей базе: 10400
    размещено: 24.07.2025 , обновлено: 4.11.2025

    1-к квартира, Шефская, 59

    • 33 м2
    • 3/9 этаж
    • Состояние: хорошее
    4 150 000 ₽ (125800 ₽/м2)
    Объект № 192969. Baшeму вниманию предлaгaется чудеснaя однoкомнатнaя квaртиpа. Здесь вceгдa cвeтло и уютно, проведенa шумоизоляция. Входная сейф-двepь, окнa - плаcтиковыe стеклoпaкeты, бoльшaя зaстеклённaя лoджия, paздeльный санузeл, счётчики XВC+ ГBС+ элeктpичеcтво. Дом удачно располoжeн во дворe, вдaли oт шумных и пыльных проезжих дорог. Во дворе благоустроенная для детей разного возраста площадка, корт (зимой заливается каток), парковка во дворе. В шаговой доступности школы, детские сады, ЦК Эльмаш, супермаркеты, остановки транспорта, до станции метро Проспект Космонавтов 10-15 пешком. Документы в порядке, гарантия юридической чистоты сделки. Добро пожаловать на просмотры! ***Гарантийный сертификат «Защита собственности» по данному объекту в подарок***
    размещено: 09.07.2025 , обновлено: 27.11.2025

    1-к квартира, Замятина, 24

    • 44 м2
    • 2/20 этаж
    • Состояние: идеальное
    6 100 000 ₽ (138600 ₽/м2)
    Предлагаю Вашему вниманию уютную, светлую и просторную квартиру от застройщика Атомстройкомплекс. Квартира с удобной, функциональной, планировкой: большая кухня, для уютных вечеров в кругу семьи, просторная комната, гардеробная. ID объекта в нашей базе: 8335
    размещено: 27.02.2025 , обновлено: 21.11.2025

Новостройки Екатеринбург, мкр-н. Эльмаш

Приоритет

Увеличивает просмотры в 3 раза

Ваше объявление показывается в списке выше обычных объявлений. подключить