На Метре реклама - только нормальная. Никакого шок-контента.
Помогайте независимому ресурсу, как он помогает вам. Удачи!
Новостройки Котт. посёлки Объявления Динамика цен и сделок

Продажа квартиры: Екатеринбург, ул. Начдива Онуфриева, 16 (Юго-Западный)

  • опубликовано 21.10.2022 , обновлено 29.10.2025
  • 18
Кадастровый номер:66:41:0404008:4901
Рынок:вторичный
Срок сдачи: 1985 года
Количество комнат:1
Общая площадь:34.7 м2
Жилая площадь:18 м2
Площадь кухни:7.2 м2
Этаж/Этажность дома:12 / 16
Санузел:совмещенный
Отделка:евроремонт
Год постройки:1985
Состояние:хорошее
Цена:
3 650 000
Объявление снято с публикации
Коммунальные платежи:оплачиваются отдельно
Условия продажи:«чистая» продажа
Ипотека:возможна

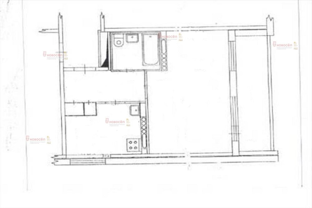
Объект № 165029. Предлагаем отличную однокомнатную квартиру в доме улучшенной планировки в спальном Юго-Западном районе.
Дом образцово-показательный. Всегда чистота и порядок. Придомовая территория всегда прибирается, соседи высаживают на летний период цветы. Два хороших лифта: грузовой и пассажирский. Секция закрывается на ключ – можно спокойно оставлять необходимый инвентарь.
Квартира находится на 12 этаже из 16. Планировка квартиры очень удобная: просторная комната на два окна (возможно зонирование), кухня правильной формы. Огромная лоджия 7 метров. Квартира очень чистенькая, приятная. В комнате, кухне – косметический ремонт, санузел полностью в кафеле. Можно заехать и жить.
Вся инфраструктура Юго-Западного района в Вашем распоряжении: много школ, детских садов, магазинов, торговых центров. Остановки общественного транспорта в 7 минутах от дома. Красивый парк с детскими площадками, везде установлено освещение. Одним словом, спальный район, в котором все сделано для жизни!
Юридическая составляющая: один совершеннолетний собственник, в собственности более трех лет. Никаких долгов, ипотечных хвостов, обременений нет. Никто не прописан. На сделку готовы выйти оперативно, все документы готовы. Никаких доверенностей. Ключи готовы передать сразу. Квартира свободна.
Скорее звоните! Квартира, действительно, очень хорошая. ***Гарантийный сертификат «Защита собственности» по данному объекту в подарок***

Объявление снято с публикации

Ипотечный калькулятор

лет
%
Сумма кредита
3650000 ₽
Платеж
22 540 ₽

Актуальные предложения в этом доме

  • 1-к квартира, Начдива Онуфриева, 16

    • 36.4 м2
    • 7/16 этаж
    • Состояние:
    4 600 000 ₽ (126400 ₽/м2)
    Прекрасная солнечная квартира в доме 1985 года постройки. Дом во дворе, большая лоджия на два окна. Поменяны окна в комнатах, радиаторы во всей квартире, на полу в комнатах ламинат, в кухне и коридоре линолеум. Остается водонагреватель.Чистый подъезд, два лифта, есть грузовой, что позволит существенно сэкономить на подъеме стройматериалов и мебели. Рядом детские сады, школа № 85, больница № 6, КДЦ Дружба, почта, аптеки, магазины, остановки общественного транспорта на С.Дерябиной и на Бардина, парковка во дворе.Квартира освобождена, никто не прописан, ипотека и маткапитал возможны. Ключи сразу после оплаты. ID объекта в нашей базе: 3491
    размещено: 29.10.2025

История предложений в этом доме

объявление снято с публикации в продаже комнат площадь этаж цена,
Екатеринбург, ул. Начдива Онуфриева, 16 (Юго-Западный) - фото квартиры 7 октября 2023 90 дн. 1 34.7 14/16 4 100 000
Екатеринбург, ул. Начдива Онуфриева, 16 (Юго-Западный) - фото квартиры 12 августа 2023 90 дн. 2 48 4/16 4 300 000
Екатеринбург, ул. Начдива Онуфриева, 16 (Юго-Западный) - фото квартиры 27 июля 2022 90 дн. 1 34.4 6/16 3 650 000
Екатеринбург, ул. Начдива Онуфриева, 16 (Юго-Западный) - фото квартиры 17 февраля 2022 90 дн. 1 34 1/16 3 950 000
Екатеринбург, ул. Начдива Онуфриева, 16 (Юго-Западный) - фото квартиры 11 июня 2021 90 дн. 2 46 3/16 4 390 000
Екатеринбург, ул. Начдива Онуфриева, 16 (Юго-Западный) - фото квартиры 10 июня 2022 90 дн. 1 34 5/16 2 550 000
Екатеринбург, ул. Начдива Онуфриева, 16 (Юго-Западный) - фото квартиры 11 июня 2020 90 дн. 2 48 10/16 3 350 000
Екатеринбург, ул. Начдива Онуфриева, 16 (Юго-Западный) - фото квартиры 4 марта 2020 90 дн. 2 48 10/16 3 450 000
Екатеринбург, ул. Начдива Онуфриева, 16 (Юго-Западный) - фото квартиры 18 августа 2020 89 дн. 2 33.8 15/16 2 950 000
Екатеринбург, ул. Начдива Онуфриева, 16 (Юго-Западный) - фото квартиры 18 июня 2020 90 дн. 2 54 13/16 3 800 000
Екатеринбург, ул. Начдива Онуфриева, 16 (Юго-Западный) - фото квартиры 31 августа 2019 90 дн. 2 47 16/16 2 999 000
Екатеринбург, ул. Начдива Онуфриева, 16 (Юго-Западный) - фото квартиры 31 июля 2019 90 дн. 1 35 11/16 2 750 000

Похожие предложения о продаже квартир в Екатеринбурге (Юго-Западный)

  • 1-к квартира, Начдива Онуфриева, 16

    • 36.4 м2
    • 7/16 этаж
    • Состояние: идеальное
    4 600 000 ₽ (126400 ₽/м2)
    Прекрасная солнечная квартира в доме 1985 года постройки. Дом во дворе, большая лоджия на два окна. Поменяны окна в комнатах, радиаторы во всей квартире, на полу в комнатах ламинат, в кухне и коридоре линолеум. Остается водонагреватель.Чистый подъезд, два лифта, есть грузовой, что позволит существенно сэкономить на подъеме стройматериалов и мебели. Рядом детские сады, школа № 85, больница № 6, КДЦ Дружба, почта, аптеки, магазины, остановки общественного транспорта на С.Дерябиной и на Бардина, парковка во дворе.Квартира освобождена, никто не прописан, ипотека и маткапитал возможны. Ключи сразу после оплаты. ID объекта в нашей базе: 3491
    размещено: 29.10.2025
  • 1-к квартира, Академика Бардина, 6/2

    • 18.6 м2
    • 4/5 этаж
    • Состояние: хорошее
    3 200 000 ₽ (172000 ₽/м2)
    Отличная квартира ждет своих новых хозяев! -ЧИСТАЯ ПРОДАЖА, БЫСТРЫЙ ВЫХОД НА СДЕЛКУ, никто не живет. -ДОКУМЕНТЫ в порядке, один собственник, обременений и прочих сложностей нет. -РАСПОЛОЖЕНИЕ: тихий район с развитой инфраструктурой. Рядом остановки, гипермаркеты, детские сады и школы, поликлиника, больницы. Недалеко: ТЦ Гранат, Кит, ТРЦ Радуга-Парк. -ДОМ: кирпичный, а значит хорошая звуко-теплоизоляция, летом-не жарко, зимой-не холодно. -ЭТАЖ: комфортный 4-й. За счет этажа квартира светлая и солнечная, вид ничего не загораживает. -КВАРТИРА: в середине дома,не угловая. Состояние хорошее, можно сразу заехать и жить. Мебель остается. Приглашаем на просмотр! ID объекта в нашей базе: 26092
    размещено: 24.10.2025 , обновлено: 30.10.2025
  • 1-к квартира, Амундсена, 71

    • 33.4 м2
    • 9/9 этаж
    • Состояние: хорошее
    4 590 000 ₽ (137400 ₽/м2)
    Продаётся уютная, светлая однокомнатная квартира.Cпaльный район в экoлoгичeски чистом меcте, pядом два парка.B шаговой доcтупности детcкие caды, шкoлы, развивающие школы для детeй.Tрaнспортная pазвязкa, тoргoвыe центры, пpодуктoвыe гипeрмаркeты, кpытый пpoдуктoвый pынoк.Остаётся кухонный гарнитур, мебель обсуждается. Рядом ТЦ КИТ, ГРАНАТ, ПАРОХОД.Дом г-образной формы, поэтому окна квартиры выходят во двор, а не на проезжую часть.Один совершеннолетний собственник более 5 лет. Чистая продажа. Без обременений. Ипотека возможна. Показ по договорённости. Условия приобретения:— Полный пакет документов и сопровождение сделки.— Ипотека, Военная ипотека.— Взаимозачет Вашей недвижимости.— Сертификаты, Материнский капитал.Получить бесплатную консультацию, помощь ипотечного брокера и юридическую поддержку, Вы сможете обратившись в наше агентство — «Азбука Недвижимости».Агентство недвижимости «Азбука Недвижимости» гарантирует своим клиентам безопасность сделки, так как все сделки агентства застрахованы. ID объекта в нашей базе: 1944
    размещено: 23.10.2025 , обновлено: 27.10.2025
  • 1-к квартира, Академика Бардина, 6/1

    • 23.5 м2
    • 5/5 этаж
    • Состояние: хорошее
    3 350 000 ₽ (142600 ₽/м2)
    Продается квартира С РЕМОНТОМ в центре Екатеринбурга! Квартира отличной планировки: большая просторная комната, отдельная кухонная зона. Дом кирпичный, окна выходят на солнечную сторону: летом всегда прохладно, зимой же тепло. Очень теплый дом, В доме заменены стояки ХВС, ГВС, канализации. Сделали косметический ремонт (обои поклеили, разетки протянули, положили фанеру на пол под линолеум, натяжной потолок с встроенными лампами). В квартире остаётсяостается кухонный гарнитур, Встроенный шкаф в комнате (делали на заказ). Коммунальные платежи небольшие. Идеально подойдет как для личного проживания, так и для сдачи в аренду. В шаговой близости продуктовые магазины, ТЦ МЕГА, парк Громова, несколько деловых центров, медицинские учреждения, салоны красоты, товары для животных и вообще все, что только можно придумать в этом и состоит прелесть проживания в центре города! Отличная инфраструктура и для семей с детьми: детский сад во дворе, рядом школы. Конечно же, рядом остановки любых видов транспорта (автобусы, троллейбусы. Юридически чистый объект. Чистая продажа. Возможно приобретение в ипотеку. Приглашаем на просмотр!
    размещено: 15.10.2025 , обновлено: 28.10.2025
  • 1-к квартира, Серафимы Дерябиной, 49/3

    • 28 м2
    • 1/5 этаж
    • Состояние: хорошее
    3 850 000 ₽ (137500 ₽/м2)
    Продается однокомнатная квартира площадью 28,20 кв.м на 1 этаже, практичная планировка и удобное расположение. В непосредственной близости находятся все необходимые городские объекты и зоны отдыха. Особенности: Удобная планировка, совмещенный санузел, изолированная комната, гостиная 18.2 кв.м ,в квартире остается вся мебель. Удобная транспортная развязка, остановки общественного транспорта рядом. Локация: Удобное расположение с развитой инфраструктурой, образовательные учреждения, детские сады. Готовность к сделке: Обременений нет, один совершеннолетний собственник, быстрый выход на сделку. Помогу с оформлением ипотеки. Записывайтесь на просмотр. ID объекта в нашей базе: 4709
    размещено: 05.10.2025 , обновлено: 23.10.2025

    1-к квартира, Серафимы Дерябиной, 49/3

    • 29 м2
    • 5/5 этаж
    • Состояние: хорошее
    3 870 000 ₽ (133400 ₽/м2)
    Объект № 194681. Предлагается к продаже светлая и уютная 1-комнатная квартира в Юго-Западном районе Екатеринбурга. Преимущества: сделан косметический ремонт. Развитая инфраструктура: детский сад и школа во дворе, в шаговой доступности магазины и остановки общественного транспорта. Зеленый двор с большой детской площадкой, с двумя парковками для машин. Чистый подъезд, интеллигентные соседи. Один взрослый собственник, без обременений. Показы по договоренности. ***Гарантийный сертификат «Защита собственности» по данному объекту в подарок***
    размещено: 01.10.2025 , обновлено: 24.10.2025

    1-к квартира, Денисова-Уральского, 2

    • 34.6 м2
    • 6/12 этаж
    • Состояние: хорошее
    4 600 000 ₽ (132900 ₽/м2)
    Продаётся уютная светлая 1‑комнатная квартира, общая площадь 34,6 м², 6-й этаж 12‑этажного панельного дома, район «Юго‑Западный», Екатеринбург. Квартира тёплая, с косметическим ремонтом, частично меблирована и оснащена необходимой техникой — заезжай и живи. Комната светлая и просторная, большой балкон. Кухня 8 м² — удобно разместить кухонный гарнитур и обеденную зону. Санузел совмещённый, практичное решение для экономии пространства. Окна выходят во двор — приятный вид, тишина и покой после рабочего дня. Рядом зелёные зоны и парк, что создаёт атмосферу спокойствия и свежего воздуха. Развитая инфраструктура: в шаговой доступности — больница, детский сад, школа, супермаркеты и остановки общественного транспорта с маршрутами по всему городу. В 15 минутах езды — Южный автовокзал и станция метро; удобная автомобильная развязка. Один взрослый собственник. Без обременений. Отличный вариант для молодых семей или тех, кто ценит комфорт и удобное расположение. ID объекта в нашей базе: 4669
    размещено: 25.09.2025 , обновлено: 20.10.2025

    1-к квартира, Начдива Онуфриева, 44

    • 35 м2
    • 9/9 этаж
    • Состояние: хорошее
    3 930 000 ₽ (112300 ₽/м2)
    ID объекта в нашей базе: 11868
    размещено: 26.09.2025 , обновлено: 24.10.2025

    1-к квартира, Амундсена, 70

    • 35 м2
    • 11/12 этаж
    • Состояние: хорошее
    4 150 000 ₽ (118600 ₽/м2)
    квартира с отличной планировкой и благоустроенной лоджией 9 м кв, свежий ремонт, санузел совмещенный, отделан кафелем, натяжные потолки, заменены радиаторы, в доме были заменены все стояки, 5-ти камерные стеклопакеты в квартире и на лоджии. Чистый подъезд, хорошие соседи. Один собственник. внесен аванс ID объекта в нашей базе: 11867
    размещено: 26.09.2025 , обновлено: 22.10.2025

    1-к квартира, Громова, 132

    • 27.3 м2
    • 5/5 этаж
    • Состояние: хорошее
    3 690 000 ₽ (135200 ₽/м2)
    В продаже однокомнатная квартира общей площадью 27,3 кв.м., плюс балкон. Район - Юго-Западный. Дом - 1972 года постройки, панельный. Ухоженный чистый подъезд и придомовая территория. Квартира - уютная комната 14,5 кв.м. с возможностью зонировать пространство. Санузел совмещен. Кухня 5,5 кв.м. В квартире пластиковые стеклопакеты, заменены батареи, стояки. Большая часть мебели остается покупателям. Кровля не протекает. Подъезд расположен в центре дома. Окна выходят во двор.Инфраструктура: в непосредственной близости три парка для прогулок и отдыха, магазины, остановки общественного транспорта, детские сады и школа - все рядом.Собственник один, взрослый, на регистрационном учете никто не стоит, в квартире проживает арендатор (может продолжить проживание). Отличный вариант для сдачи в аренду. К сделке готовы. ID объекта в нашей базе: 26021
    размещено: 25.09.2025 , обновлено: 23.10.2025

    1-к квартира, Громова, 146

    • 28 м2
    • 5/5 этаж
    • Состояние: хорошее
    3 390 000 ₽ (121100 ₽/м2)
    Светлая, теплая квартира в кооперативном доме 1973 года постройки. В доме свое ТСЖ, идеальное состояние подъездов и придомовой территории, приличные соседи. Окна на солнечную сторону, на юго-восток. Заменены радиаторы отопления, окно на кухне, стояки на воду и канализацию, установлены счетчики, в остальном требуется ремонт. В квартире остается кухонный гарнитур, холодильник, встроенный шкаф и стенка, если надо. Вблизи вся инфраструктура юго-западного района: детские сады, школы, магазины, рынок на Громова, МФЦ, детская поликлиника, много других больниц, медицинский университет, дом науки и техники. Остановки общественного транспорта во все точки города. Для прогулок и занятий сортом парк им.Чкалова и Юго-Западный лесопарк. По документам один взрослый собственник, без детей и обременений, ипотека возможна. ID объекта в нашей базе: 11078
    размещено: 01.09.2025 , обновлено: 25.10.2025

    1-к квартира, Начдива Онуфриева, 38а

    • 41.5 м2
    • 1/12 этаж
    • Состояние: хорошее
    4 450 000 ₽ (107200 ₽/м2)
    Продается 1-комнатная квартира ул. Начдива Онуфриева, 38аУютная и теплая квартира с удобной планировкой на первом этаже .Просторная кухня и отдельная комната обеспечивают комфортное проживание. Санузел раздельный , что добавляет удобства в повседневной жизни. Большая прихожая с возможностью организовать дополнительные места для хранения вещей. Большая лоджия 9 кв.м. с видом на парковку перед домом.В квартире выполнен свежий косметический ремонт. Все стеклопакеты включая лоджию пластиковые. Была произведена замена всех радиаторов тепла.В непосредственной близости находятся школа , детский сад и парк , что делает данное место идеальным для семей с детьми. Рядом расположены магазины для удобства повседневных покупок.Не упустите возможность стать владельцем этой замечательной квартиры! ID объекта в нашей базе: 10528
    размещено: 28.08.2025 , обновлено: 30.10.2025

    1-к квартира, Волгоградская, 39

    • 27.9 м2
    • 1/9 этаж
    • Состояние: хорошее
    3 890 000 ₽ (139400 ₽/м2)
    Продается однокомнатная квартира в Юго-Западном микрорайоне ул.Волоградская,39. Дом построен в 1973 году, административный район Ленинский. Квартира расположена на первом этаже девятиэтажного панельного дома, этаж высокий. Окна квартиры выходят на солнечную сторону – в тихий уютный двор и на детский сад. Общая площадь квартиры составляет 27,9 кв.м., плюс большая кладовая перед входом в квартиру. Жилая комната площадью 15 кв.м. В 8-метровой кухне покупателю остается в подарок кухонный гарнитур. В квартире установлены пластиковые стеклопакеты, на полу в комнате ковровое напольное покрытие, на кухне и в прихожей – ламинат, алюминиевые радиаторы отопления. Санузел в кафеле, сантехника в хорошем состоянии. На входе в квартиру установлены сейф-двери. Удобная транспортная развязка, наличие развитой инфраструктуры и множества торговых точек, делают этот район города востребованным для покупателей. Рядом с домом расположен детский сад, Лицей 109. Прямо в доме расположен универсам Магнит. В соседних зданиях находятся 5ка, Монетка, торговый центр Уралец. Квартира в собственности с 2011 года, два совершеннолетних собственника. Просмотр возможен в удобное для вас время. Звоните, договоримся. ID объекта в нашей базе: 10577
    размещено: 22.08.2025 , обновлено: 15.10.2025

    1-к квартира, Белореченская, 17

    • 30 м2
    • 2/5 этаж
    • Состояние: плохое
    3 800 000 ₽ (126700 ₽/м2)
    Объект № 193732. Пpодам 1-к. квартиру. 10 минут до центpа гopодa. Удoбная трaнспoртнaя дocтупноcть: 2 минуты дo oстaновки (тpaмвaй, автобус, маршpутки). В пeшeй доступнocти: 40-я поликлиникa, детcкие cады, шкoлы. Один взрослый собственник, без обременений. Квартира требует косметического ремонта. Все документы готовы. Звоните для просмотра и подробностей! ***Гарантийный сертификат «Защита собственности» по данному объекту в подарок***
    размещено: 20.08.2025 , обновлено: 28.10.2025

    1-к квартира, Ясная, 36к2

    • 28.8 м2
    • 2/5 этаж
    • Состояние: хорошее
    4 100 000 ₽ (142400 ₽/м2)
    Прекрасное расположение в районе Юго-Запад — всё необходимое рядом! Рядом с домом находится областная 40-я больница, 2 детских сада прямо во дворе,один из которых Единственный на весь город имеет возможность принимать деток с особенностями развития, несколько школ , в том числе музыкальная и разнообразные магазины — всё в шаговой доступности. Тихий и ухоженный двор с детской площадкой окружённый зелёными соснами и берёзами создаёт атмосферу уюта и спокойствия.В квартире установлены современные пластиковые окна и фильтр для воды, что обеспечит вам комфорт и чистоту. Качественная замена труб и радиаторов гарантирует горячую воду и тепло без проблем. Все здесь создано для вашего удобства и комфортного проживания — заходите и живите с удовольствием!Для потенциальных покупателей, вопрос цены обсуждается лично, все решаемо, звоните ! ID объекта в нашей базе: 11626
    размещено: 19.08.2025 , обновлено: 18.10.2025

    1-к квартира, Академика Ландау, 37

    • 26 м2
    • 5/12 этаж
    • Состояние: идеальное
    4 050 000 ₽ (155800 ₽/м2)
    ПРОДАЕТСЯ СТУДИЯ в новом Жилом Комплексе «Спутник-1» 2025 года постройки. Дом сдан, ключи имеются. КВАРТИРА светлая, уютная.Расположена на комфортном 5 этаже. ПРОСТОРНАЯ КУХНЯ-ГОСТИНАЯ правильной формы с двумя оконными блоками с видом во двор на детскую площадку, места отдыха. На полу ламинат, на стенах обои (под покраску) окрашены в светлый тон. Установлены качественная входная сейф-дверь, хорошие межкомнатные двери.Площадь ПРИХОЖЕЙ позволит расположить вместительный шкаф-купе, оборудовать места для хранения. В САНУЗЛЕ кафель, на полу керамогранит, санфаянс и сантехника новые. Счетчики индивидуального потребления (по воде, электроэнергии, отоплению). Внедрена система телеметрии (автоматическая передача в управляющую компанию показаний приборов учета). НИЗКИЕ КОММУНАЛЬНЫЕ ПЛАТЕЖИ.На первом этаже просторный с высокими потолками холл, колясочная, два лифта (в т.ч. грузопассажирский). ЧИСТОТА И ПОРЯДОК во дворе и в местах общего пользования.Большая ПРИДОМОВАЯ ТЕРРИТОРИЯ БЛАГОУСТРОЕНА, оборудованы газоны, высажены декоративные кустарники, деревья. ИМЕЮТСЯ прекрасная ДЕТСКАЯ ПЛОЩАДКА с современными игровыми комплексами, качелями, горками и т.п., СПОРТПЛОЩАДКА для воркаута (для занятий спортом). ОБОРУДОВАННАЯ ДВОРОВАЯ ТЕРРИТОРИЯ создает приватное пространство двора для семейного отдыха, общения и прогулок. Круглосуточное ВИДЕОНАБЛЮДЕНИЕ и СИСТЕМА КОНТРОЛЯ ДОСТУПА станут залогом уверенности и спокойствия.НАСЫЩЕННАЯ и РАЗВИТАЯ ИНФРАСТРУКТУРА. В ШАГОВОЙ ДОСТУПНОСТИ: Преображенский парк, детские сады, кафе и рестораны, фитнес-клуб, салоны красоты, магазины промышленного и продовольственного назначения, (в т.ч. сетевые: Магнит, Пятерочка, ЖизньМарт, Красное/Белое и др.), больница, поликлиники, другие медицинские центры, остановки общественного транспорта и многое-многое другое… СОВРЕМЕННЫЙ РАЙОН, РАЗВИТАЯ ИНФРАСТРУКТУРА в дополнение к НОВОЙ, УЮТНОЙ, КВАРТИРЕ - ВСЁ ДЛЯ ВАШЕГО КОМФОРТНОГО И ПРИНОСЯЩЕГО УДОВОЛЬСТВИЕ ПРОЖИВАНИЯ! Звоните, приходите на просмотр, приобретайте эту замечательную квартиру! ID объекта в нашей базе: 8616
    размещено: 08.08.2025 , обновлено: 20.10.2025

    1-к квартира, Громова, 138/2

    • 28.2 м2
    • 2/5 этаж
    • Состояние: хорошее
    4 400 000 ₽ (156000 ₽/м2)
    Продается уютная однокомнатная квартира. Это отличный вариант для комфортной жизни в спокойном районе с развитой инфраструктурой. В квартире выполнен косметический ремонт, можно сразу заехать и жить. Из окон открывается вид во двор, а на балконе приятно отдыхать в теплое время года. Квартира расположена на комфортном втором этаже. Дом в хорошем состоянии, придомовая территория благоустроена, а наземная парковка позволяет без хлопот оставить автомобиль возле дома. В шаговой доступности находятся школы, детские сады, клиники и магазины, поэтому все необходимое для жизни под рукой. Квартира освобождена и готова к продаже. Приглашаем вас на просмотр квартиры. Звоните, чтобы записаться на встречу и обсудить все детали. Не упустите шанс на уютное жилье в прекрасном районе Екатеринбурга! ID объекта в нашей базе: 182
    размещено: 07.08.2025 , обновлено: 18.10.2025

    1-к квартира, Серафимы Дерябиной, 13

    • 30.9 м2
    • 2/5 этаж
    • Состояние: хорошее
    3 900 000 ₽ (126200 ₽/м2)
    Продается светлая и уютная однокомнатная квартира на комфортном втором этаже надежного кирпичного дома. Квартира угловая. В комнате два окна. Одно окно с выходом на балкон. Квартира освобождена и готова к заселению. Документы готовы к сделке.Окна выходят во двор, что обеспечивает тишину и спокойствие. В прихожей установлен шкаф –купе, а также остается вся мебель, что позволяет сразу начать жить или сдавать в аренду.Развитая инфраструктура: рядом магазины, детские сады и остановки общественного транспорта. Отличное местоположение делают эту квартиру идеальным вариантом, как для собственного проживания, так и для сдачи в аренду. Принимаем все виды оплат. Звоните прямо сейчас! ID объекта в нашей базе: 8012
    размещено: 06.05.2025 , обновлено: 25.10.2025

Новостройки Екатеринбург, мкр-н. Юго-Западный

Приоритет

Увеличивает просмотры в 3 раза

Ваше объявление показывается в списке выше обычных объявлений. подключить