На Метре реклама - только нормальная. Никакого шок-контента.
Помогайте независимому ресурсу, как он помогает вам. Удачи!
Новостройки Котт. посёлки Объявления Динамика цен и сделок

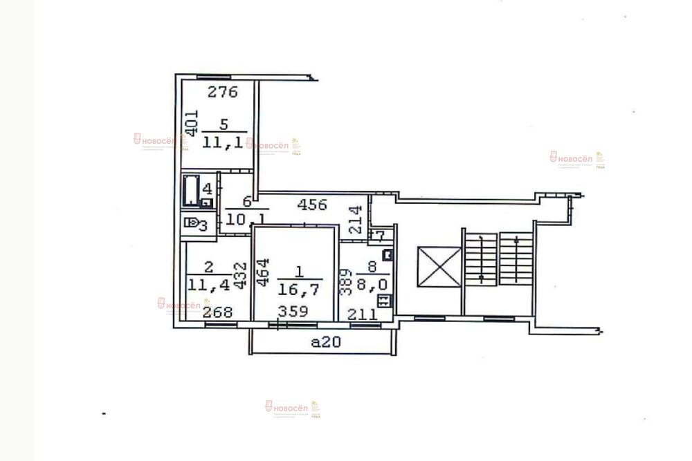
Продажа квартиры: г. Березовский, ул. Гагарина, 15/2 (городской округ Березовский)

  • опубликовано 3.11.2022 , обновлено 21.03.2025
  • 15
Кадастровый номер:66:35:0105010:2762
Рынок:вторичный
Срок сдачи: 1986 года
Количество комнат:3
Общая площадь:62 м2
Жилая площадь:39 м2
Площадь кухни:8 м2
Этаж/Этажность дома:5 / 9
Санузел:раздельный
Отделка:евроремонт
Год постройки:1986
Состояние:хорошее
Цена:
4 880 000
Объявление снято с публикации
Коммунальные платежи:оплачиваются отдельно
Ипотека:возможна

Объект № 165806. Продается теплая, светлая, уютная 3-комнатная квартира на 5 этаже S-62м2, окна на разные стороны. В квартире сделан хороший ремонт, поменяны радиаторы отопления, пластиковые окна (отличный вид из окна), натяжные потолки, на кухне и в комнате полы с подогревом, сейф- дверь, балкон застеклен.
Остается кухонный гарнитур, встроенная техника, шкафы-купе, бойлер.
Во дворе просторная детская площадка и вместительная парковка для автомобилей. Чистый и ухоженный подъезд, недавно сделан капитальный ремонт, новый лифт.
В шаговой доступности остановки общественного транспорта, магазины, аптеки, больница, школы, детский садик, отличный городской парк, лес с новой велодорожкой, ТЦ «Яблоко».
Ипотека возможна, торг при осмотре. ***Гарантийный сертификат «Защита собственности» по данному объекту в подарок***

Объявление снято с публикации

Ипотечный калькулятор

лет
%
Сумма кредита
4880000 ₽
Платеж
22 540 ₽

Актуальные предложения в этом доме

  • 3-к квартира, Гагарина, 15/2

    • 62.2 м2
    • 7/9 этаж
    6 700 000 ₽ (107700 ₽/м2)
    Продается уютная трехкомнатная квартира! Адрес: Гагарина, 15/2  Площадь: 62.2 Этаж: 7 из 9  Цена: 6 700 000 руб. Ищете идеальное жилье для своей семьи? У нас есть замечательное предложение! Просторная трехкомнатная квартира на седьмом этаже с отличной планировкой и всеми необходимыми удобствами. ✨ В квартире остаётся: • Современный кухонный гарнитур • Газовая варочная панель • Посудомойка для вашего удобства • Водонагреватель • Удобная кровать в спальне Теплый пол в ванной, туалете и коридоре создаст атмосферу уюта даже в холодное время года.  ???? Лоджия застеклена, что позволяет наслаждаться прекрасными видами и проводить время с комфортом. Эта квартира — идеальный выбор для тех, кто ценит комфорт, уют и удобное расположение. Не упустите возможность стать владельцем этого замечательного жилья! ???? Звоните прямо сейчас, чтобы записаться на просмотр! Ваш новый дом ждет вас!Номер объекта: #5/545906/6529
    размещено: 30.12.2025 , обновлено: 31.12.2025

История предложений в этом доме

объявление снято с публикации в продаже комнат площадь этаж цена,
г. Березовский, ул. Гагарина, 15/2 (городской округ Березовский) - фото квартиры 29 ноября 2024 90 дн. 3 63 7/9 5 600 000
г. Березовский, ул. Гагарина, 15/2 (городской округ Березовский) - фото квартиры 12 октября 2023 90 дн. 3 62.4 7/9 4 300 000
г. Березовский, ул. Гагарина, 15/2 (городской округ Березовский) - фото квартиры 10 сентября 2022 90 дн. 3 62.7 7/9 4 100 000
г. Березовский, ул. Гагарина, 15/2 (городской округ Березовский) - фото квартиры 19 ноября 2024 90 дн. 3 62.9 3/9 3 300 000
г. Березовский, ул. Гагарина, 15/2 (городской округ Березовский) - фото квартиры 2 марта 2022 90 дн. 3 62.8 5/9 4 400 000
г. Березовский, ул. Гагарина, 15/2 (городской округ Березовский) - фото квартиры 30 октября 2021 90 дн. 2 42.5 6/9 3 100 000
г. Березовский, ул. Гагарина, 15/2 (городской округ Березовский) - фото квартиры 26 октября 2021 90 дн. 3 63 1/9 3 690 000
г. Березовский, ул. Гагарина, 15/2 (городской округ Березовский) - фото квартиры 7 февраля 2021 90 дн. 3 62.7 1/9 3 380 000
г. Березовский, Гагарина, 15/2 - фото квартиры 9 июля 2019 90 дн. 2 43 9/9 2 450 000
16 ноября 2018 92 дн. 2 43 2/9 2 740 000
30 ноября 2018 90 дн. 2 45 1/9 2 600 000

Похожие предложения о продаже квартир в г. Березовский

  • 3-к квартира, Гагарина, 3

    • 61.2 м2
    • 4/5 этаж
    4 900 000 ₽ (80100 ₽/м2)
    О доме - многоквартирный дом - 1976 года постройки - 5 этажей, 3 квартиры на площадке - хорошие и спокойные соседи - детская площадка - "УК ЖКХ-Ходинг" О квартире - квартира светлая и уютная - ИЗОЛИРОВАННЫЕ КОМНАТЫ - большой совмещенный санузел - ОКНА ВЫХОДЯТ НА РАЗНЫЕ СТОРОНЫ (восток и запад). - застекленный балкон - В КВАРТИРЕ ОСТАЕТСЯ: КУХОННЫЙ ГАРНИТУР, ВОДОНАГРЕВАТЕЛЬ, ШКАФ О локации - Развитая инфраструктура - транспортная доступность - Гимназия №5, школа № 2 - детские сады № 12, №9, №4 - стоматология - аптеки, магазины, поликлиника, институт мозга, библиотека и т.д. Звоните и приходите на просмотр, готовы оперативно выйти на сделку! Ипотека возможна.Номер объекта: #5/545902/6529
    размещено: 17.12.2025 , обновлено: 25.12.2025
  • 3-к квартира, Максима Горького, 10

    • 55.3 м2
    • 4/4 этаж
    5 390 000 ₽ (97500 ₽/м2)
    Арт. 127483049 Продам трехкомнатную квартиру 55,3м2, в кирпичном доме г.Березовский. Квартира теплая,светлая, уютная. в квартире имеется 2 кладовые, большая гостинная. установлен новый современный кухонный гарнитур. В квартире сделан свежий ремонт, установлены пластиковые окна, установлены новые межкомнатные двери. Три взрослых собственника, без обременений. Юридическую чистоту сделки гарантирует Ориентир недвижимость. Появились вопросы ,звоните.
    размещено: 08.12.2025 , обновлено: 27.12.2025
  • 3-к квартира, Спортивная, 4

    • 60.1 м2
    • 4/9 этаж
    • Состояние: хорошее
    5 000 000 ₽ (83200 ₽/м2)
    Объект № 195627. Продается просторная 3-комнатная квартира, расположенная на 4 этаже 9-этажного дома. Идеальный вариант для семьи, ценящей комфорт и удобство расположения. Квартира отличается функциональной планировкой: раздельный санузел обеспечивает удобство для всех членов семьи, а кухня площадью 7,3 кв.м. позволит реализовать ваши кулинарные фантазии. Комнаты, площадью 19,4 кв.м, 9,7 кв.м и впечатляющие 17,7 кв.м, предлагают достаточно пространства для отдыха, работы и детских игр. Особое преимущество – наличие двух балконов, выходящих на разные стороны, позволяющих наслаждаться свежим воздухом и панорамными видами в любое время суток. Расположение дома – настоящее сокровище для тех, кто заботится о своем здоровье и благополучии. В шаговой доступности находится сосновый лес, где можно совершать прогулки, дышать свежим воздухом и наслаждаться красотой природы. Тропа здоровья станет идеальным местом для занятий спортом и поддержания физической формы. Не менее важным фактором является наличие развитой инфраструктуры: рядом расположены школы №55 и №9, спортивная и музыкальная школы, что делает данное предложение особенно привлекательным для семей с детьми. ТЦ Яблоко обеспечит всем необходимым для комфортной жизни. Квартира освобождена и готова к заселению новых владельцев. Не упустите возможность стать обладателем этого замечательного жилья! ***Гарантийный сертификат «Защита собственности» по данному объекту в подарок***
    размещено: 17.11.2025 , обновлено: 26.12.2025
  • 3-к квартира, Театральная, 32

    • 62 м2
    • 4/5 этаж
    • Состояние: хорошее
    5 500 000 ₽ (88700 ₽/м2)
    Объект № 194228. В продаже 3- квартира 62,7 кв.м., комнаты все изолированные. Кухня 8 кв.м., большая лоджия 5 кв.м. застеклена- стеклопакет. Двери в квартире хорошего качества. Санузел раздельный, есть кладовка 2 кв.м. Комнаты на разные стороны, окна комнат выходя во двор, а окна кухни и гостиной на улицу. В шаговой доступности магазины, новая школа, детский сад. Два взрослых собственника. Обременений нет. Долгов нет. Рассмотрим варианты обмена на 1-квартиру. ***Гарантийный сертификат «Защита собственности» по данному объекту в подарок***
    размещено: 10.09.2025 , обновлено: 27.12.2025
  • 3-к квартира, Академика Королева, 5

    • 58 м2
    • 3/5 этаж
    • Состояние: хорошее
    5 700 000 ₽ (98300 ₽/м2)
    Объект № 194195. Отличная 3-комнатная квартира 58,8 кв.м. в г. Березовском на ул. Академика Королева, д. 5. Удобный 3 этаж. Три изолированные светлые комнаты, отдельная гардеробная, что подойдет для комфортного проживания большой семьи. В квартире сделан современный ремонт: ламинат, качественные обои, натяжные потолки, пластиковые стеклопакеты, сейф-дверь, в кухне и санузле кафель - это позволяет сразу заехать и отмечать новоселье. Без обременений, без долей детей, квартира освобождена. Остались вопросы? Звоните! Записывайтесь на просмотр. ***Гарантийный сертификат «Защита собственности» по данному объекту в подарок***
    размещено: 08.09.2025 , обновлено: 10.11.2025

    3-к квартира, Исакова, 24

    • 62.9 м2
    • 3/5 этаж
    • Состояние: хорошее
    6 080 000 ₽ (96700 ₽/м2)
    Продается отличная квартира с косметическим ремонтом. Удачная планировка на разные стороны, комфортный этаж, чистый подъезд, дружные соседи, зеленый двор с детской площадкой. Все объекты инфраструктуры в шаговой доступности: аптеки, школа, магазины, остановки общественного транспорта- ВСЁ для комфортной жизни! ID объекта в нашей базе: 8812
    размещено: 08.09.2025 , обновлено: 9.11.2025

    3-к квартира, Виктора Чечвия, 2

    • 81.4 м2
    • 2/3 этаж
    • Состояние: хорошее
    5 400 000 ₽ (66300 ₽/м2)
    Продам отличную трехкомнатную квартируДом кирпичныйВ шаговой доступности от дома различные магазины, школа, детский сад, остановка общественного транспортаФото соответствует действительностиПросмотр в любое время по предварительной договоренностиДолгов и обременений нетЧистая продажа Быстрый выход на сделку ID объекта в нашей базе: 4574
    размещено: 27.08.2025 , обновлено: 12.11.2025

    3-к квартира, Гагарина, 16/1

    • 62 м2
    • 4/9 этаж
    • Состояние: хорошее
    5 900 000 ₽ (95200 ₽/м2)
    Объект № 193573. Продается трехкомнатная квартира в престижном районе города Березовский. В шаговой доступности детский сад с бассейном, новая современная школа, тропа здоровья. При продаже остается кухонный гарнитур, встроенный шкаф. ***Гарантийный сертификат «Защита собственности» по данному объекту в подарок***
    размещено: 08.08.2025 , обновлено: 26.12.2025

    3-к квартира, Мамина-Сибиряка, 3

    • 54 м2
    • 5/5 этаж
    • Состояние: плохое
    3 500 000 ₽ (64800 ₽/м2)
    Объект № 193107. Продаем 3 кв. S = 54,6 кв.м. по цене 1кв. Для молодых и смелых, для тех, кто хочет увеличить свою жилплощадь и реализовать новый ремонт под себя. Рядом сетевые магазины, автовокзал, детские сады и гимназия. ***Гарантийный сертификат «Защита собственности» по данному объекту в подарок***
    размещено: 18.07.2025 , обновлено: 28.12.2025

    3-к квартира, Шиловская, 19

    • 58 м2
    • 4/5 этаж
    • Состояние: удовлетворительное
    5 200 000 ₽ (89700 ₽/м2)
    Объект № 193113. Продаём 3-комнатную квартиру в кирпичном доме. Отличная локация - рядом есть всё, что нужно: магазины, остановка общественного транспорта, поликлиника. Тихий двор, всегда в наличии парковочные места. Один взрослый собственник, быстрый выход на сделку. ***Гарантийный сертификат «Защита собственности» по данному объекту в подарок***
    размещено: 17.07.2025 , обновлено: 18.11.2025

    3-к квартира, Гагарина, 11

    • 52 м2
    • 5/5 этаж
    • Состояние: удовлетворительное
    4 200 000 ₽ (80800 ₽/м2)
    Объект № 192548. Продаем или меняем (рассмотрим обмен на квартиру в Екатеринбурге с нашей доплатой, рассмотрим все предложения: вторичку, переуступку) 3-комнатную квартиру в г. Берёзовский, по ул.Гагарина, д.11. Площадь квартиры 52.7 кв. м, жилая 37.7 кв. м, кухня 6.1 кв. м. Квартира находится на 5 этаже 5-этажного панельного дома, построенного в 1980 году. Высота потолков 2.7 метра. Из окон открывается вид на тихий двор. Планировка включает три комнаты, кухню, раздельный санузел, балкон, выходящий во двор, с видом на детскую площадку и детский сад. Квартира без ремонта, что дает отличную возможность воплотить свои дизайнерские идеи и создать пространство по своему вкусу. Дом находится в хорошем состоянии, сделан капремонт в 2023 году, имеет наземную парковку, где всегда можно найти место для вашего автомобиля. Рядом с домом расположены школы, детские сады, клиники и магазины, что делает жизнь здесь максимально удобной и комфортной. Удобная транспортная доступность: остановки общественного транспорта в пешей доступности, что позволит легко добраться до Екатеринбурга или других населенных пунктов. Квартира продается в рамках стандартного договора купли-продажи. Обременений на объект нет, поэтому сделка пройдет быстро и без лишних хлопот. Ипотека возможна, что особенно актуально для молодых семей. Не упустите возможность приобрести жилье в отличном районе с развитой инфраструктурой! ***Гарантийный сертификат «Защита собственности» по данному объекту в подарок***
    размещено: 19.06.2025 , обновлено: 31.12.2025

    3-к квартира, Толбухина, 1

    • 56 м2
    • 1/4 этаж
    • Состояние: хорошее
    4 850 000 ₽ (86600 ₽/м2)
    Объект № 192395. Продается уютная 3-комнатная квартира в Берёзовском. Квартира на 1 этаже 4-этажного кирпичного дома. Это отличный вариант для семьи: просторные комнаты, удобная планировка и окна, выходящие как на улицу, так и во двор. Кухня площадью 5.5 кв. м оборудована всем необходимым. Санузел совмещенный, в хорошем состоянии. В квартире сделан косметический ремонт, что позволяет сразу заехать и жить. Дом построен из кирпича, что обеспечивает надежность и теплоизоляцию. Во дворе предусмотрена наземная парковка, где всегда найдется место для автомобиля. Дом и подъезд содержатся в чистоте и порядке. Район располагает всей необходимой инфраструктурой для комфортного проживания. В пешей доступности находятся школы и детские сады, что особенно удобно для семей с детьми. Также рядом есть магазины, где можно приобрести все нужное для быта. Квартира продается без обременений, документы готовы к сделке. Возможна покупка в ипотеку. Один взрослый собственник. Никто не прописан. Без обременений. Условия сделки обсуждаются индивидуально, что позволяет подобрать наиболее удобный вариант для покупателя. Если ищете уютное жилье в спокойном районе с развитой инфраструктурой, эта квартира — идеальный вариант. Звоните и записывайтесь на просмотр, чтобы оценить все преимущества своими глазами! ***Гарантийный сертификат «Защита собственности» по данному объекту в подарок***
    размещено: 12.06.2025 , обновлено: 18.11.2025

    3-к квартира, Спортивная, 4

    • 60 м2
    • 3/9 этаж
    • Состояние: хорошее
    5 100 000 ₽ (85000 ₽/м2)
    Объект № 191252. Светлая, просторная и очень уютная квартира. Хорошее состояние -можно заехать и жить. Их окон красивый вид на сосны. Отличное расположение - все в шаговой доступности, рядом остановка. Ждем Вас на просмотр! ***Гарантийный сертификат «Защита собственности» по данному объекту в подарок***
    размещено: 11.04.2025 , обновлено: 27.12.2025

    3-к квартира, Максима Горького, 2

    • 53.8 м2
    • 4/4 этаж
    • Состояние: хорошее
    4 230 000 ₽ (78600 ₽/м2)
    Уникальное предложение-квартира для большой семьи. Дом кирпичный, очень теплый, 1962 года постройки. Этаж на котором находится квартира 4 из 4, общая площадь 53.8 кв.м. Окна пластиковые, радиаторы чугунные, с регулятором подачи тепла. Проводка поменяна везде, разведены провода под натяжной потолок, а также заменен электросчетчик, стены выровнены и обшиты гипсокартоном, новые хорошие обои. На полу ламинат и линолеум. Требуется провести косметический ремонт в ванной, при этом можно уже сейчас заехать и жить! Горячая вода в квартире от газовой колонки круглый год. В квартире очень тепло, ходить можно босиком и зимой и летом. Рядом вся инфраструктура, учреждения образования и досуга для детей, автобусная остановка до Екатеринбурга. Нет одобренной ипотеки? Свяжитесь со мной, мы подберем для вас лучшую программу в одном из банков-партнеров.Если вы самостоятельно продаёте недвижимость, а покупателей всё нет - поможем разобраться с этой ситуацией! ID объекта в нашей базе: 16598
    размещено: 03.10.2024 , обновлено: 27.12.2025

Новостройки г. Березовский

Приоритет

Увеличивает просмотры в 3 раза

Ваше объявление показывается в списке выше обычных объявлений. подключить