На Метре реклама - только нормальная. Никакого шок-контента.
Помогайте независимому ресурсу, как он помогает вам. Удачи!
Средняя цена м² · Новостройки
176 954 ₽/м²
↑ 12% за 12 мес.
Средняя цена м² · Вторичка
139 363 ₽/м²
↑ 9,3% за 12 мес.
Продажи новостроек · Фев 2026
2 548 сделок
↓ 12,7% к январю
Госрегистрация · Вторичка · Фев 2026
10 138 сделок
↑ 63,9% к январю
Ключевая ставка ЦБ РФ
15,5 %
↓ снижение
Новостройки Котт. посёлки Объявления Динамика цен и сделок

Продажа квартиры: г. Березовский, ул. Гагарина, 15/2 (городской округ Березовский)

  • опубликовано 30.12.2025 , обновлено 11.03.2026
  • 40
Кадастровый номер:66:35:0105010:2806
Рынок:вторичный
Срок сдачи:4 квартал 1986 года
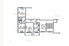
Количество комнат:3
Общая площадь:62.2 м2
Жилая площадь:40 м2
Площадь кухни:8 м2
Этаж/Этажность дома:7 / 9
Санузел:раздельный
Отделка:косметический
Год постройки:1986
Балкон/лоджия:балкон
Цена:
6 700 000
Объявление снято с публикации
Коммунальные платежи:оплачиваются отдельно

Продается уютная трехкомнатная квартира!

Адрес: Гагарина, 15/2 
Площадь: 62.2
Этаж: 7 из 9 
Цена: 6 700 000 руб.

Ищете идеальное жилье для своей семьи? У нас есть замечательное предложение! Просторная трехкомнатная квартира на седьмом этаже с отличной планировкой и всеми необходимыми удобствами.

✨ В квартире остаётся:
• Современный кухонный гарнитур
• Газовая варочная панель
• Посудомойка для вашего удобства
• Водонагреватель
• Удобная кровать в спальне

Теплый пол в ванной, туалете и коридоре создаст атмосферу уюта даже в холодное время года. 
Лоджия застеклена, что позволяет наслаждаться прекрасными видами и проводить время с комфортом.

Эта квартира — идеальный выбор для тех, кто ценит комфорт, уют и удобное расположение. Не упустите возможность стать владельцем этого замечательного жилья!

Звоните прямо сейчас, чтобы записаться на просмотр! Ваш новый дом ждет вас! Номер объекта: #5/545906/6529

Объявление снято с публикации

Ипотечный калькулятор

лет
%
Сумма кредита
6700000 ₽
Платеж
22 540 ₽

История предложений в этом доме

объявление снято с публикации в продаже комнат площадь этаж цена,
г. Березовский, ул. Гагарина, 15/2 (городской округ Березовский) - фото квартиры 29 ноября 2024 90 дн. 3 63 7/9 5 600 000
г. Березовский, ул. Гагарина, 15/2 (городской округ Березовский) - фото квартиры 12 октября 2023 90 дн. 3 62.4 7/9 4 300 000
г. Березовский, ул. Гагарина, 15/2 (городской округ Березовский) - фото квартиры 12 ноября 2022 90 дн. 3 62 5/9 4 880 000
г. Березовский, ул. Гагарина, 15/2 (городской округ Березовский) - фото квартиры 10 сентября 2022 90 дн. 3 62.7 7/9 4 100 000
г. Березовский, ул. Гагарина, 15/2 (городской округ Березовский) - фото квартиры 19 ноября 2024 90 дн. 3 62.9 3/9 3 300 000
г. Березовский, ул. Гагарина, 15/2 (городской округ Березовский) - фото квартиры 2 марта 2022 90 дн. 3 62.8 5/9 4 400 000
г. Березовский, ул. Гагарина, 15/2 (городской округ Березовский) - фото квартиры 30 октября 2021 90 дн. 2 42.5 6/9 3 100 000
г. Березовский, ул. Гагарина, 15/2 (городской округ Березовский) - фото квартиры 26 октября 2021 90 дн. 3 63 1/9 3 690 000
г. Березовский, ул. Гагарина, 15/2 (городской округ Березовский) - фото квартиры 7 февраля 2021 90 дн. 3 62.7 1/9 3 380 000
г. Березовский, Гагарина, 15/2 - фото квартиры 9 июля 2019 90 дн. 2 43 9/9 2 450 000
16 ноября 2018 92 дн. 2 43 2/9 2 740 000
30 ноября 2018 90 дн. 2 45 1/9 2 600 000

Похожие предложения о продаже квартир в г. Березовский

  • 3-к квартира, Виктора Чечвия, 2

    • 81.4 м2
    • 2/3 этаж
    • Состояние: хорошее
    5 250 000 ₽ (64500 ₽/м2)
    Продам отличную трехкомнатную квартируДом кирпичныйВ шаговой доступности от дома различные магазины, школа, детский сад, остановка общественного транспортаФото соответствует действительностиПросмотр в любое время по предварительной договоренностиДолгов и обременений нетЧистая продажа Быстрый выход на сделку ID объекта в нашей базе: 4574
    размещено: 14.02.2026 , обновлено: 10.03.2026
  • 3-к квартира, Загвозкина, 56

    • 66.76 м2
    • 3/16 этаж
    7 990 000 ₽ (119700 ₽/м2)
    Арт. 129414529 Продается уютная, светлая квартира в кирпичном доме ЖК Философия Идеалистов на Театральной, Планировка квартиры выполнена с изолированными комнатами, правильной формы. Большая Кухня гостиная 13.53 м2. Две лоджии. Окна квартиры выходят на солнечную сторону детской площадки. Дом сдан в 2025 году, ключи получены. Квартира находится на комфортном 3 этаже с шикарным видом на город. Отделка пред чистовая, выравнены стены, подготовлены для поклейки обоев, натяжные потолки установлены. Закрытая территория двора, самый центр г.Березовский, рядом находится Торговый центр, в шаговой доступности школы, детские сады, новая современная Аллея, Парк для прогулок и развлечений для детей. Без обременений, один совершеннолетний собственник. Быстрый выход на сделку.
    размещено: 02.02.2026 , обновлено: 11.03.2026
  • 3-к квартира, Красных Героев, 7

    • 50 м2
    • 5/5 этаж
    • Состояние: хорошее
    4 790 000 ₽ (95800 ₽/м2)
    В центре Березовского прямая и открытая продажа уютной теплой трехкомнатной семейной квартиры.Расположение в городе удобное рядом буквально все необходимое. В практически любое нужное учреждение, в магазин, школу и детский, спортивную секцию, на остановку транспорта можно дойти за 5-7 минут прогулочным шагом.Дом кирпичный, теплый и надежный, в подъездах чисто, соседи спокойные и приятные зрелые люди, по больше части среднего возраста.Все время проживания своими силами, с душой, делали ремонт. Окна все пластик, на полу в бОльшей части комнат качественный ламинат, выбирали добротные обои, сделали всю электрику. Санузел в идеальном состоянии. Квартира идеально подойдет семье с двумя детьми.Сама квартира в собственности с 2021 года, покупалась для проживания семьи, продается с целью расширения. Дети наделены долями, приказ опеки получим быстро, ипотеку на встречный вариант одобрили и подберем себе квартиру быстро.Абсолютная юридическая чистота, готовность к любым формам расчета.Покажем в удобное для Вас время по предварительной договоренности. ID объекта в нашей базе: 6602
    размещено: 29.01.2026 , обновлено: 2.03.2026
  • 3-к квартира, Гагарина, 10

    • 58 м2
    • 4/5 этаж
    • Состояние: хорошее
    5 400 000 ₽ (93100 ₽/м2)
    Объект № 196881. Продается уютная трехкомнатная квартира с качественной отделкой, расположенная по привлекательному адресу. Профессиональный ремонт с использованием современных материалов: на полу уложен ламинат, создающий атмосферу тепла и комфорта, стены тщательно выровнены, что позволяет реализовать любые дизайнерские решения, а в ванной комнате – стильный кафель, сочетающий эстетику и практичность. Общая площадь квартиры составляет 58,2 квадратных метра, что оптимально подходит для комфортного проживания семьи. Расположение на 4 этаже добавляет преимуществ, сочетая удобство доступа и отсутствие шума от первых этажей. Дом, в котором находится квартира, построен из кирпича, что гарантирует отличную тепло- и звукоизоляцию, обеспечивая спокойствие и уют в любое время года. Одним из ключевых преимуществ данного предложения является развитая инфраструктура района. В шаговой доступности расположены супермаркеты, обеспечивающие удобство совершения покупок, общеобразовательные школы №55 и №9, детский сад с бассейном №39, предлагающий широкий спектр образовательных и развивающих услуг для детей, поликлиника, обеспечивающая доступ к квалифицированной медицинской помощи, а также тропа здоровья для любителей активного образа жизни и прогулок на свежем воздухе. Данная квартира – это идеальный выбор для тех, кто ценит комфорт, качество и удобство местоположения. Не упустите возможность стать обладателем этого прекрасного жилья! ***Гарантийный сертификат «Защита собственности» по данному объекту в подарок***
    размещено: 26.01.2026 , обновлено: 13.03.2026
  • 3-к квартира, Красных Героев, 20/2

    • 66.7 м2
    • 10/10 этаж
    • Состояние: идеальное
    8 200 000 ₽ (122900 ₽/м2)
    В центре города Березовский в кирпичном, теплом доме на десятом видовом этаже продается просторная и светлая трехкомнатная квартира общей площадью 66,7 м 2 . Дом новый 2020 года постройки, соответственно закрытый двор, места общего пользования, да и сама квартира создают новый уровень качества жизни. В квартире расположены просторная кухня, два санузла, три жилые комнаты правильной формы, где каждый член семьи найдет своё уютное пространство. Сделан хороший ремонт: везде установлены натяжные потолки, на полу сделан ламинат, в санузлах кафель. Высокие потолки 2.8 м и широкие окна создают ощущение дополнительного пространства и света. Благодаря счетчикам на отопление, воду и электричество коммунальные платежи не обременяют своими размерами. При продаже оставим кухонный гарнитур и встроенные шкафы.Приобретая данный вариант, вам не понадобится тратить силы и время на ремонт, вы сделайте хорошее вложение в ликвидную недвижимость. Квартира подойдет для проживания семье с детьми и паре. Всё необходимое для комфортной жизни находится рядом с домом: медицинские и торговые центры, школа №33, садик №41, кинотеатр, школа искусств, пункты выдачи маркетплейсов, автобусные остановки. Возможно приобретение в ипотеку, использование для покупки материнского капитала. Приглашаем Вас на просмотр. Если хотите приобрести эту квартиру, но Вам необходимо продать свою недвижимость или одобрить ипотеку, обращайтесь по телефону, указанному в объявлении. ID объекта в нашей базе: 9026
    размещено: 17.10.2025 , обновлено: 5.02.2026

    3-к квартира, Красных Героев, 18

    • 76.6 м2
    • 10/10 этаж
    • Состояние: хорошее
    8 190 000 ₽ (106900 ₽/м2)
    Объект № 194501. Предлагаем вашему вниманию идеальный вариант – просторную и светлую 3-комнатную квартиру, расположенную на 10 этаже дома от надежного застройщика Брусника. Простор и свет: Квартира наполнена естественным светом благодаря большим окнам, выходящим в тихий и зеленый двор. Отличный вид с 10 этажа на спокойный двор. Две лоджии: Наслаждайтесь свежим воздухом и живописным видом с двух просторных лоджий – идеальное место для утреннего кофе или вечернего отдыха. Два санузла: Забудьте об очередях по утрам! Два полноценных санузла обеспечат максимальный комфорт для всей семьи. Гардеробная в спальне: Продуманное решение для хранения вещей – отдельная гардеробная в спальне позволит поддерживать идеальный порядок. Готова к проживанию: Мы оставляем вам кухонный гарнитур со встроенной техникой, диван, комод, вместительный шкаф-купе в прихожей. Вам останется только расставить личные вещи и наслаждаться новым домом! Закрытый двор: Безопасность и спокойствие для вас и детей. Современная детская площадка - просторная и безопасная зона для игр малышей. Развитая инфраструктура: В шаговой доступности есть все необходимое для комфортной жизни: магазины на любой вкус, общеобразовательная школа и детский сад. ***Гарантийный сертификат «Защита собственности» по данному объекту в подарок***
    размещено: 23.09.2025 , обновлено: 23.02.2026

    3-к квартира, Красных Героев, 16

    • 72.5 м2
    • 3/10 этаж
    • Состояние: хорошее
    8 500 000 ₽ (117200 ₽/м2)
    Объект № 194334. Предлагается к продаже эксклюзивная 3-комнатная квартира с дизайнерским ремонтом в доме от именитого застройщика Брусника, славящегося своими инновационными и качественными проектами. Эта квартира – воплощение комфорта и стиля, где продумана каждая деталь для удобства и эстетического наслаждения. Пространство квартиры грамотно спланировано и включает в себя две просторные лоджии, которые можно использовать как зоны отдыха или рабочие кабинеты, наслаждаясь свежим воздухом и прекрасным видом из окна. Кухонный гарнитур, выполненный по индивидуальному заказу, остаётся новым владельцам. Встроенная бытовая техника от ведущих мировых брендов значительно облегчит процесс приготовления пищи и сделает его более приятным. Особое внимание уделено безопасности и комфорту жильцов. Придомовая территория огорожена и находится под круглосуточным видеонаблюдением, что обеспечивает спокойствие и уверенность в безопасности вашей семьи. Мы готовы рассмотреть варианты обмена на 2-комнатную квартиру, что может стать отличным решением для тех, кто планирует расширение или улучшение жилищных условий. Не упустите свой шанс стать обладателем этой уникальной квартиры, сочетающей в себе безупречное качество, стильный дизайн и комфорт для всей семьи. ***Гарантийный сертификат «Защита собственности» по данному объекту в подарок***
    размещено: 12.09.2025 , обновлено: 12.03.2026

    3-к квартира, Гагарина, 16/1

    • 62 м2
    • 4/9 этаж
    • Состояние: хорошее
    6 200 000 ₽ (100000 ₽/м2)
    Объект № 193573. Продается трехкомнатная квартира в престижном районе города Березовский. В шаговой доступности детский сад с бассейном, новая современная школа, тропа здоровья. При продаже остается кухонный гарнитур, встроенный шкаф. ***Гарантийный сертификат «Защита собственности» по данному объекту в подарок***
    размещено: 08.08.2025 , обновлено: 11.03.2026

    3-к квартира, Академика Королёва, 8Д

    • 76 м2
    • 10/14 этаж
    • Состояние: хорошее
    8 360 000 ₽ (110000 ₽/м2)
    Объект № 193488. Продаётся светлая и просторная трёхкомнатная квартира в в ЖК «Березки», расположенном всего в 15 минутах езды от Екатеринбурга. Квартира находится в удобном месте с точки зрения транспортной доступности. Новый район поселка Новоберезовский, рядом транспортная артерия в Екатеринбург, максимально быстрый выезд на ЕКАД, что позволяет быстро добраться в Екатеринбург, Березовский, Верхнюю Пышму, Кольцово, до остановки общественного транспорта 10 минут. В 5 минутах ходьбы ДК Современник, две гимназии, детские сады, магазины, стадион Энергетик, бассейн Олимп. Нет проблем с парковкой! 14-этажный дом 2015 года постройки. Дом построен полностью из кирпича, очень теплый, с хорошей звукоизоляцией, малошумные лифты VEK (два лифта, один из них грузовой лифт). Вода в доме голубого цвета! 3-комнатная квартира площадью 76 квадратных метров, имеет выверенную планировку. В квартире имеются детская комната, мастер-спальня для взрослых, санузел, гардеробная комната, просторный холл, гостиная комната с системой домашнего кинотеатра и камина, полноценная кухня. Особенность планировки – окна выходят на разные стороны дома. Отделка из дорогих материалов. В квартире полностью заменена электрика. Пол по всей квартире звукоизолирован. Потолок везде подшивной. Межкомнатные двери – тонированный массив сосны. По квартире разведена кабельная компьютерная сеть, позволяющая с комфортом подключить оборудование. Спальня в стиле «прованс» с собственной лоджией. Детская комната зонирована на две независимые зоны, теплый пол по всей площади комнаты. Две независимые зоны освещения, три системы света. Ванная комната выполнена в восточном стиле, теплый пол, ванна из высококачественного толстого акрила, санфаянс – Италия, мебель - AQUATON, светильники ODEON LIGHTS. В гардеробной комнате встроенная полочная система хранения IKEA, трехуровневая обувница IKEA, установлен бойлер для подогрева горячей воды на 80 литров с нержавеющим баком. В гостиной центральная доминанта – полноразмерный электрокамин из настоящего кирпича, выполняет помимо декора функцию обогревателя и увлажнителя воздуха. Система 3D-пара похожа на реальное пламя, что отличить практически невозможно. В гостиной выполнена подготовка для установки домашнего кинотеатра системы 5.1, выполнена разводка качественным акустическим кабелем, в том числе и для тыловых колонок, установлено крепление под мультимедийный проектор, установлен встроенный в потолок моторизованный экран для проектора одного из ведущих производителей экранов SCREENMEDIA. Ширина экрана 2,3 метра. Кухня в прованском стиле с собственной лоджией. Гарнитур LORENA PREMIUM. Холодильник BOSCH. Варочная поверхность BOSCH. Духовой шкаф с грилем и конвекцией GORENJE. Встраиваемая стиральная машина WHIRPOOL с загрузкой на полноценные 7 кг, теплый пол. К квартире прилагается очень приятный и полезный бонус – подробности при показе. ***Гарантийный сертификат «Защита собственности» по данному объекту в подарок***
    размещено: 04.08.2025 , обновлено: 26.01.2026

    3-к квартира, Толбухина, 1

    • 56 м2
    • 1/4 этаж
    • Состояние: хорошее
    4 850 000 ₽ (86600 ₽/м2)
    Объект № 192395. Продается уютная 3-комнатная квартира в Берёзовском. Квартира на 1 этаже 4-этажного кирпичного дома. Это отличный вариант для семьи: просторные комнаты, удобная планировка и окна, выходящие как на улицу, так и во двор. Кухня площадью 5.5 кв. м оборудована всем необходимым. Санузел совмещенный, в хорошем состоянии. В квартире сделан косметический ремонт, что позволяет сразу заехать и жить. Дом построен из кирпича, что обеспечивает надежность и теплоизоляцию. Во дворе предусмотрена наземная парковка, где всегда найдется место для автомобиля. Дом и подъезд содержатся в чистоте и порядке. Район располагает всей необходимой инфраструктурой для комфортного проживания. В пешей доступности находятся школы и детские сады, что особенно удобно для семей с детьми. Также рядом есть магазины, где можно приобрести все нужное для быта. Квартира продается без обременений, документы готовы к сделке. Возможна покупка в ипотеку. Один взрослый собственник. Никто не прописан. Без обременений. Условия сделки обсуждаются индивидуально, что позволяет подобрать наиболее удобный вариант для покупателя. Если ищете уютное жилье в спокойном районе с развитой инфраструктурой, эта квартира — идеальный вариант. Звоните и записывайтесь на просмотр, чтобы оценить все преимущества своими глазами! ***Гарантийный сертификат «Защита собственности» по данному объекту в подарок***
    размещено: 12.06.2025 , обновлено: 27.02.2026

    3-к квартира, Спортивная, 4

    • 60 м2
    • 3/9 этаж
    • Состояние: хорошее
    5 100 000 ₽ (85000 ₽/м2)
    Объект № 191252. Светлая, просторная и очень уютная квартира. Хорошее состояние -можно заехать и жить. Их окон красивый вид на сосны. Отличное расположение - все в шаговой доступности, рядом остановка. Ждем Вас на просмотр! ***Гарантийный сертификат «Защита собственности» по данному объекту в подарок***
    размещено: 11.04.2025 , обновлено: 22.02.2026

Новостройки г. Березовский

Приоритет

Увеличивает просмотры в 3 раза

Ваше объявление показывается в списке выше обычных объявлений. подключить