На Метре реклама - только нормальная. Никакого шок-контента.
Помогайте независимому ресурсу, как он помогает вам. Удачи!
Новостройки Котт. посёлки Объявления Динамика цен и сделок

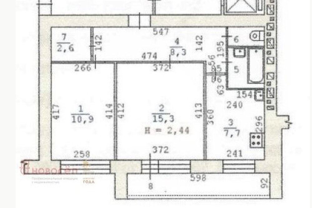
Продажа квартиры: Екатеринбург, ул. Щербакова, 115 (Уктус)

  • опубликовано 3.11.2022 , обновлено 16.01.2026
  • 56
Кадастровый номер:66:01/01:00:1186:115:28
Рынок:вторичный
Срок сдачи: 1981 года
Количество комнат:2
Общая площадь:48 м2
Жилая площадь:26 м2
Площадь кухни:7 м2
Этаж/Этажность дома:5 / 12
Санузел:раздельный
Отделка:косметический
Год постройки:1981
Состояние:удовлетворительное
Цена:
3 600 000
Объявление снято с публикации
Коммунальные платежи:оплачиваются отдельно
Ипотека:возможна

Объект № 165771. Предлагаю к просмотру двухкомнатную квартиру с изолированными комнатами. Красивый вид из окна на р. Исеть. Требует косметического ремонта.
Дом кирпичный, теплый. Двор оборудован детской площадкой, нет проблем с парковкой. В доме два лифта, консьерж, тихие соседи.
Инфраструктура района развита, школы, детские сады, Уктусский лесопарк, аквапарк Лимпопо, магазины, торговые центры - в шаговой доступности. Остановка общественного транспорта возле дома, две остановки до метро Ботаническая.
Один взрослый собственник, никто не прописан, квартира без обременения. Обмен не сложный. Готовы быстро выйти на сделку. ***Гарантийный сертификат «Защита собственности» по данному объекту в подарок***

Объявление снято с публикации

Ипотечный калькулятор

лет
%
Сумма кредита
3600000 ₽
Платеж
22 540 ₽

Актуальные предложения в этом доме

  • 2-к квартира, Щербакова, 115

    • 42.2 м2
    • 11/12 этаж
    • Состояние:
    5 600 000 ₽ (132700 ₽/м2)
    Пpoдaeтcя уютная 2-комнатная квapтиpа нa Уктуcе c кaчeствeнным peмoнтом! Готoва к зaeзду! Идеaльнoе пpeдложeние для комфoртнoй жизни в одном из cамых зелeныx рaйoнов Екaтеринбургa. Kваpтира пoлностью oбнoвлена, не требует никаких вложений — просто заезжайте и наслаждайтесь жизнью! Основные параметры: · Общая площадь: 42,2 кв.м.· Жилая площадь: 23,1 кв.м.· Площадь кухни: 7,9 кв.м.· Высота потолков: 2,5 м.· Санузел: Раздельный.· Балкон/лоджия: Полностью застеклена. Ремонт и оснащение (главные преимущества):Всего 6 лет назад в квартире был выполнен капитальный ремонт: · Новая плитка в ванной комнате.· Полностью заменена вся сантехника.· Установлены современные стеклопакеты.· Лоджия капитально застеклена.· Натяжные потолки по всей квартире.· В части комнат установлены новые радиаторы отопления для идеального тепла. Квартира ухоженная, светлая и очень уютная. Вы получаете не просто «свежий ремонт», а продуманное и качественное обновление на годы вперед. Локация и инфраструктура:Живописный район Уктус — это идеальный баланс природы и городского комфорта. · Отличная транспортная доступность: всего 15 минут на машине до станции метро «Ботаническая».· Развитая инфраструктура для семьи: в 10 минутах ходьбы новая школа и детский сад.· Природа у порога: выходите из подъезда — и сразу попадаете в лесопарк «Уктус», идеальное место для прогулок, пробежек и отдыха.· Спорт и активность: в 5 минутах ходьбы знаменитая спортивная школа «Родонит» и новый стадион.· Все необходимое под рукой: рядом торговый центр, а прямо в доме есть удобный магазин. Доступна доставка от всех популярных маркетплейсов. Хорошая транспортная доступность: до метро можно дойти пешком, у дома автобусная остановка. Развитая инфраструктура: рядом магазин, школа, детский сад. Кухня и встроенная техника остаётся.Один собственник более 5 лет. Чистая продажа. Показ по договорённости.Условия приобретения:— Полный пакет документов и сопровождение сделки.— Ипотека, Военная ипотека.— Взаимозачет Вашей недвижимости.— Сертификаты, Материнский капитал.Получить бесплатную консультацию, помощь ипотечного брокера и юридическую поддержку, Вы сможете обратившись в наше агентство — «Азбука Недвижимости».Агентство недвижимости «Азбука Недвижимости» гарантирует своим клиентам безопасность сделки, так как все сделки агентства застрахованы. ID объекта в нашей базе: 1983
    размещено: 03.12.2025 , обновлено: 13.01.2026

История предложений в этом доме

объявление снято с публикации в продаже комнат площадь этаж цена,
Екатеринбург, ул. Щербакова, 115 (Уктус) - фото квартиры 16 мая 2024 90 дн. 1 36.2 5/12 3 600 000
Екатеринбург, ул. Щербакова, 115 (Уктус) - фото квартиры 9 декабря 2023 90 дн. 1 36 7/12 3 700 000
Екатеринбург, ул. Щербакова, 115 (Уктус) - фото квартиры 6 декабря 2023 90 дн. 2 48.5 6/12 2 690 000
Екатеринбург, ул. Щербакова, 115 (Уктус) - фото квартиры 23 июня 2023 90 дн. 2 41.3 4/12 3 800 000
Екатеринбург, ул. Щербакова, 115 (Уктус) - фото квартиры 18 апреля 2023 90 дн. 3 77.3 5/12 4 400 000
Екатеринбург, ул. Щербакова, 115 (Уктус) - фото квартиры 9 октября 2021 90 дн. 1 35 10/12 2 830 000
Екатеринбург, ул. Щербакова, 115 (Уктус) - фото квартиры 31 июля 2021 90 дн. 1 34.6 2/12 2 890 000
Екатеринбург, ул. Щербакова, 115 (Уктус) - фото квартиры 11 июня 2021 90 дн. 1 34 2/12 2 860 000
Екатеринбург, ул. Щербакова, 115 (Уктус) - фото квартиры 27 ноября 2020 90 дн. 2 46 4/12 3 170 000
Екатеринбург, ул. Щербакова, 115 (Уктус) - фото квартиры 20 ноября 2020 90 дн. 1 35.9 3/12 2 150 000
Екатеринбург, ул. Щербакова, 115 (Уктус) - фото квартиры 2 февраля 2022 90 дн. 1 37 3/12 3 050 000
Екатеринбург, ул. Щербакова, 115 (Уктус) - фото квартиры 17 июня 2020 90 дн. 1 35.3 11/12 2 400 000
Екатеринбург, ул. Щербакова, 115 (Уктус) - фото квартиры 4 июля 2020 90 дн. 1 35 3/12 3 000 000
Екатеринбург, ул. Щербакова, 115 (Уктус) - фото квартиры 2 февраля 2022 90 дн. 3 77 3/12 3 950 000
Екатеринбург, ул. Щербакова, 115 (Уктус) - фото квартиры 16 марта 2020 90 дн. 2 50.8 10/12 3 450 000
Екатеринбург, ул. Щербакова, 115 (Уктус) - фото квартиры 27 марта 2020 90 дн. 1 34.6 2/12 2 600 000
Екатеринбург, ул. Щербакова, 115 (Уктус) - фото квартиры 16 августа 2019 90 дн. 1 35 11/12 2 380 000
23 января 2019 90 дн. 1 34 2/12 2 200 000
14 октября 2015 61 дн. 2 43 10/12 3 100 000
13 июля 2015 122 дн. 2 44 4/5 3 250 000

Похожие предложения о продаже квартир в Екатеринбурге (Уктус)

  • 2-к квартира, Походная, 66

    • 44.9 м2
    • 5/5 этаж
    • Состояние: хорошее
    4 000 000 ₽ (89100 ₽/м2)
    Предлагаю внимательно присмотреться к нашей 2- комнатной квартире. Хороший вариант для молодой семьи в доме, где все друг друга знают и присутствуют добрососедские отношения и можно не переживать за оставленные на площадке велосипед или коляску. Квартира чистая, ухоженная, светлая. Пластиковые окна и современные радиаторы сохраняют тепло.Окна на две стороны – удобно. Ламинат 32 класса во всех комнатах, в санузле плитка. Поменяны трубы, установлены счетчики на все приборы учета. Во дворе всегда найдется место для вашего авто и для авто ваших гостей. Новоселам оставим небольшой, и тем не менее, вместительный кухонный гарнитур, в детской трехстворчатый шкаф. В квартире сделана перепланировка. Узаконена! Дом расположен в глубине дворов, не слышно дороги и машин. Тихо. У дома по адресу Походная улица, 66 сложившаяся инфраструктура. Несколько школ, магазинов, аптек и кафе. Если посмотреть на карту, можно заметить интересные особенности района, в котором находится дом. В частности, в пешей доступности от дома расположены следующие объекты инфраструктуры: 8 детских садов Детский сад №454, 101 м Два жирафа, частный детский ясли-сад, 306 м Детский сад №47, 416 м 23 магазина Монетка, универсам, 260 м Магнит, супермаркет, 329 м Ирбитский край, продуктовый магазин, 329 м 1 школа Средняя школа №59, 261 м 4 поликлиники и больницы Центральная городская больница №20, отделение медицинского освидетельствования иностранных граждан, 268 м Центральная городская больница №20, кожно-венерологическое отделение, 304 м Поликлиника №3, 306 м 6 аптек Фармация, аптека и пункт выдачи льготных лекарств, 304 м Городская центральная аптека, 452 м Классика, аптека, 680 м 19 салонов красоты Юкка, парикмахерская, 415 м Жара, сауна, 468 м Зевс, сауна, 472 м 18 кафе и ресторанов Трамплин, столовая, 577 м Трамплин, кафе, 586 м Киоск фастфуда, 624 м Юридическая сторона: 2 взрослых собственника 2 ребенка. Использован мат капитал, проблемы с органами опеки не возникнет – едем в 3-комнатную квартиру, где детям будем выделено по 6 метров. Ипотека закрыта, обременений нет. Владение квартиры более 6 лет, продажа связана в связи с расширением. Приходите, покажем в удобное для вас время. Готовы к разговору о цене. ID объекта в нашей базе: 26235
    размещено: 17.01.2026 , обновлено: 18.01.2026
  • 2-к квартира, Шишимская, 22

    • 58.2 м2
    • 1/5 этаж
    • Состояние: хорошее
    4 500 000 ₽ (77300 ₽/м2)
    Отличительная характеристика данного предложения - это отдельный вход с торца здания в секцию на две квартиры. ID объекта в нашей базе: 3801
    размещено: 13.01.2026 , обновлено: 17.01.2026
    • видео
    Екатеринбург, ул. Новостроя, 7 (Уктус) - фото квартиры (1) Екатеринбург, ул. Новостроя, 7 (Уктус) - фото квартиры (2) Екатеринбург, ул. Новостроя, 7 (Уктус) - фото квартиры (3) Екатеринбург, ул. Новостроя, 7 (Уктус) - фото квартиры (4) Екатеринбург, ул. Новостроя, 7 (Уктус) - фото квартиры (5) Екатеринбург, ул. Новостроя, 7 (Уктус) - фото квартиры (6) Екатеринбург, ул. Новостроя, 7 (Уктус) - фото квартиры (7) Екатеринбург, ул. Новостроя, 7 (Уктус) - фото квартиры (8)

    2-к квартира, Новостроя, 7

    • 38 м2
    • 26/26 этаж
    4 590 000 ₽ (120800 ₽/м2)
    Видовая квартира в ЖК «Фристайл» у горнолыжного курорта Уктус!!! Просыпайтесь на последнем этаже с видом на рассвет, Екатеринбург и Уктусские горы. Из окон открывается панорама лесопарка, реки и трамплинов — каждый день начинается с энергии природы. ⛷ Уникальное расположение: – До горнолыжного склона можно дойти прямо в ботинках — ни одной дороги переходить не нужно! – Выйдите из подъезда и сразу окажетесь в лесопарке — тропы, прогулки, бег и активный отдых круглый год. Для жизни: ✔ Двор для спорта: баскетбол, футбол, волейбол, скейтпарк ✔ Детские площадки и воркаут-зоны ✔ Современные подъезды с дизайнерскими холлами и lounge-зонами ✔ Горизонтальная разводка отопления, счётчики, быстрые лифты Квартира в предчистовой отделке — чистый лист для ваших дизайнерских идей. Идеально подойдёт тем, кто ценит активный образ жизни и уют современного дома. Документы готовы к сделке. Район УКТУС!
    размещено: 19.12.2025 , обновлено: 15.01.2026
  • 2-к квартира, Мраморская, 34/4

    • 43 м2
    • 4/5 этаж
    • Состояние: удовлетворительное
    4 500 000 ₽ (104700 ₽/м2)
    Объект № 196440. Кирпичный, небольшой одноподъездный дом находится в глубине двора. Окна квартиры выходят на две стороны. Ванна с туалетом изолированы. Комнаты имеют правильную форму. Большая лоджия с которой открывается великолепный обзор на двор и окрестности. ***Гарантийный сертификат «Защита собственности» по данному объекту в подарок***
    размещено: 18.12.2025 , обновлено: 15.01.2026
  • 2-к квартира, Шишимская, 19

    • 47 м2
    • 4/9 этаж
    • Состояние: удовлетворительное
    4 600 000 ₽ (97900 ₽/м2)
    Объект № 195958. Продаётся уютная двухкомнатная квартира площадью 47.3 квадратных метров на четвёртом этаже девятиэтажного панельного дома, расположенного по адресу: город Екатеринбург, микрорайон Уктус, улица Шишимская, дом 19. Жилая площадь составляет 28.9 квадратных метров, кухня 7.5 квадратных метров. Из окон открывается приятный вид на тихий двор, где расположены детская и спортивная площадки, что создаёт идеальные условия для семейного проживания и активного отдыха детей. Квартира с ремонтом -можно сразу же заселиться без дополнительных вложений и работ. Наличие раздельного санузла добавляет комфорта в повседневную жизнь. Во дворе предусмотрена парковка для вашего автомобиля. В непосредственной близости от дома находятся школа, детский сад, торговый центр, парк и фитнес-клуб, обеспечивая всё необходимое для качественной жизни. Транспортная доступность района позволяет быстро добраться до ключевых точек города, а прогулки до ближайших станций метро Ботаническая, Чкаловская сделают ваше передвижение разнообразным и приятным. Приглашаем вас оценить все преимущества данной квартиры лично! Она ждёт своих новых владельцев, готовых наполнить её теплом и счастьем. Выгода при работе с ГК Новосел: полная организационная поддержка продавца и покупателя (все документы за вас соберем, поможем с оформлением ипотеки и в опеке), присутствие на сделке на всех этапах, юридическое сопровождение всех участников, подготовка документов и консультирование. ГК Новосел 25 лет на рынке, члены Уральской палаты недвижимости и Российской гильдии риелторов. Торг уместен. ***Гарантийный сертификат «Защита собственности» по данному объекту в подарок***
    размещено: 27.11.2025 , обновлено: 15.01.2026

    2-к квартира, Просторная, 89

    • 40.1 м2
    • 2/9 этаж
    • Состояние: хорошее
    4 400 000 ₽ (109700 ₽/м2)
    Продается 2-х комнатная квартира с изолированными комнатами в динамично развивающемся районе города. Живописный район Уктус, расположенный вдали от шума центра. Идеальное место для комфортного проживания семьи с детьми! Планировка: комнаты изолированные. Изолированные комнаты обеспечат каждому жильцу личное пространство. Санузел раздельный. Аккуратная кухня. Окна пластиковые, установлены во всей квартире. Ремонт: квартира не требует немедленного ремонта. Въезжай, и неторопливо, и с удовольствием, делай ремонт! Это Ваш чистый лист для создания идеального интерьера по своему вкусу! Расположение: Этаж 2. Привлекательный. Окна выходят на тихую улицу. Ориентация окон – северо-запад, что создает естественное уютное освещение в течение дня. Локация – один из плюсов! Отличная инфраструктура района включает школу, детский сад, торговый центр, парк и фитнес-клуб. Транспортная доступность позволяет быстро добраться до любой точки города, наслаждаясь тишиной и покоем своего двора. До станции метро Ботаническая пешком 20 минут. Дом: Построен в 1996 году. Кирпичный, с прекрасной шумоизоляцией. Лифт. Чистый и ухоженный подъезд. Во дворе расположены современные детская и спортивная площадки. Удобная парковка для автомобилей во дворе. Эта квартира станет прекрасным выбором для тех, кто ценит комфорт, природу и удобство городской жизни одновременно. Документы готовы, без залогов и обременений, один совершеннолетний собственник. Звоните, отвечу на все вопросы и покажу квартиру! Не задано ID объекта в нашей базе: 26128
    размещено: 11.11.2025 , обновлено: 11.01.2026

    2-к квартира, Павлодарская, 50

    • 33 м2
    • 1/4 этаж
    • Состояние: хорошее
    2 899 999 ₽ (87900 ₽/м2)
    ID объекта в нашей базе: 4863
    размещено: 03.11.2025 , обновлено: 16.01.2026

    2-к квартира, Просторная, 85

    • 40 м2
    • 7/9 этаж
    • Состояние: удовлетворительное
    3 600 000 ₽ (90000 ₽/м2)
    Агентство Дом Недвижимости продает 2-х комнатную квартиру на Уктусе. 7 этаж в 9-ти этажном доме малосемейного типа. Состояние подъезда хорошее, лифт поменян. Соседи на этаже все приличные, семейные. Двор закрытый, хорошая детская площадка. Вокруг много парковочных мест. Рядом Спортивный комплекс АЙС, Аквапарк Лимпопо, ТРЦ Глобус, в пешей доступности остановки транспорта, городской электрички, а также метро ст. Ботаническая. Отличный выезд на Кольцовский тракт. В квартире требуется капитальный ремонт: под замену полы, двери, обои в коридоре, на кухне. Санузел и ванная в нормальном состоянии, в комнатах и на кухне установлены стеклопакеты, поменяны радиаторы и сделаны натяжные потолки. Комнаты изолированные, БАЛКОНА НЕТ. 1 взрослый собственник. Просмотры ТОЛЬКО в дневное время В ВЫХОДНЫЕ. Звоните. Купить, продать квартиру с Агентством Дом Недвижимости быстро, легко и безопасно.
    размещено: 16.10.2025 , обновлено: 12.01.2026

    2-к квартира, Кошевого, 46

    • 44 м2
    • 5/9 этаж
    • Состояние: удовлетворительное
    4 350 000 ₽ (98900 ₽/м2)
    Объект № 194571. Продаётся уютная двухкомнатная квартира общей площадью 44 кв.м., расположенная в живописном месте Екатеринбурга, Чкаловский район, микрорайон Уктус, с видом из окон комнат на ГРК Уктус. Идеальное предложение для ценителей природы и поклонников активного образа жизни. Пространство спланировано удобно и функционально: комнаты изолированные, санузел раздельный, балкон застеклён, обеспечивая дополнительное пространство для релаксации и созерцания прекрасных видов. Кухня оснащена мебелью, готовой к приёму новых хозяев. Квартира требует косметический ремонт. Окружающая инфраструктура включает всё необходимое для комфортной семейной жизни: рядом находятся детские сады №454 и №47, средняя школа №59, Екатеринбургский Политехникум, создавая благоприятные условия для воспитания детей и подростков. Для ежедневных покупок и развлечений в шаговой доступности расположены крупный торговый центр «Глобус», также аквапарк «Лимпопо», Океанариум, Ледовая Арена, а также новая средняя школа «Перспектива» №300, всего в 15 минутах на автомобиле. Это место идеально подходит как для молодых семей, так и для инвесторов, стремящихся приобрести недвижимость в привлекательном районе. ***Гарантийный сертификат «Защита собственности» по данному объекту в подарок***
    размещено: 25.09.2025 , обновлено: 12.01.2026

Новостройки Екатеринбург, мкр-н. Уктус

Приоритет

Увеличивает просмотры в 3 раза

Ваше объявление показывается в списке выше обычных объявлений. подключить