На Метре реклама - только нормальная. Никакого шок-контента.
Помогайте независимому ресурсу, как он помогает вам. Удачи!
Новостройки Котт. посёлки Объявления Динамика цен и сделок

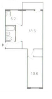
Продажа квартиры: Екатеринбург, ул. Посадская, 43 (Юго-Западный)

  • опубликовано 23.11.2022 , обновлено 21.11.2025
  • 39
Рынок:вторичный
Срок сдачи: 1963 года
Количество комнат:2
Общая площадь:42.9 м2
Жилая площадь:29.2 м2
Площадь кухни:6.2 м2
Этаж/Этажность дома:2 / 5
Санузел:совмещенный
Отделка:косметический
Год постройки:1963
Балкон/лоджия:балкон
Состояние:хорошее
Цена:
3 900 000
Объявление снято с публикации
Коммунальные платежи:оплачиваются отдельно
Торг:торг
Ипотека:возможна

В продаже квартира на комфортном этаже в самом сердце тихого Юго-Западного района!Достойное состояние - в квартире косметический ремонт, пол - ламинат, потолки - натяжные. Можно заехать и жить без масштабных вложений.Кухня и большая комната выходят окнами во двор, одно окно - на посадскую. Комфортная планировка. При необходимости - возможно изолировать комнаты. В шаговой доступности - Детский сад, Школа, Кировский, Вся инфраструктура района. Порядочные соседи, благополучный подъезд.Рассмотрим покупателя с любой формой расчета - ипотека, наличные, любые сертификаты. Военная ипотека. Чистая продажа, ключи на сделке!Звоните! Показы в любое время по предварительной договоренности!
ID объекта в нашей базе: 2861

Объявление снято с публикации

Ипотечный калькулятор

лет
%
Сумма кредита
3900000 ₽
Платеж
22 540 ₽

Актуальные предложения в этом доме

  • 2-к квартира, Посадская, 43

    5 800 000 ₽ (134600 ₽/м2)
    Объект № 195754. В продаже 2-комнатная квартира на втором этаже в самом зеленом районе города - Юго-Западном. В квартире сделан капитальный качественный ремонт и небольшая перепланировка, которая позволила сделать гардеробную и удобную нишу для холодильника. Поменяна проводка, стояки, трубы, батареи. В ванной комнате выложена плитка, инсталляция, водонагреватель (позволяет пользоваться только качественной горячей водой). Так же во всей квартире натяжной потолок, в том числе и в санузле. В спальне и зале точечное освещение которое позволяет включать позонно. Основное светодиодное освещение можно управлять с пульта или телефон если есть ик-порт. В спальне установлен новый кондиционер, трасса от него заштраблена в стену для истеричности. Он с легкостью охлаждает всю квартиру в течении 20 минут в самую жаркую погоду, а когда нет отопления с легкостью согреет вас весной или осенью. Можно управлять с пульта или телефон если есть ик-порт.(можно демонтировать при необходимости) В зале проведена проводка под домашний кинотеатр в стенах. В коридоре установлен щиток с автоматами, которые позволяют отключать отдельно освещение в каждой комнате, розетки, кондиционер, титан в санузле, вытяжку с духовым шкафом на кухне. Новая входная дверь. На каждом радиаторе установлена термоголовка которая позволяет выставить комфортную температуру зимой в квартире или вообще отключить радиатор. Новые пластиковые окна во всей квартире. В спальне собран под заказ шкаф, в котором помещается очень много вещей. Двери с доводчиками. Во всей квартире новый ламинат. Кухонный гарнитур сделан под заказ, столешница премиум класса, фурнитура BLUM. В зале установлена закладная в стене чтобы повесить телевизор и подведены все необходимые точки (интернет, розетки, ТВ точка). В спальне так же выведены все необходимые выходы на стене для телевизора. Район с очень развитой инфраструктурой: школы на любой вкус, детские сады, магазины, торговый центр, много транспортных маршрутов, до центра 20 минут пешком. Квартира не имеет обременений, один взрослый собственник. Просмотры по договоренности. ***Гарантийный сертификат «Защита собственности» по данному объекту в подарок***
    размещено: 21.11.2025 , обновлено: 26.11.2025
  • 2-к квартира, Посадская, 43

    • 42.6 м2
    • 2/5 этаж
    • Состояние:
    4 700 000 ₽ (110300 ₽/м2)
    В продаже 2х комнатная квартира Расположена в тихом и зеленом центре Екатеринбурга.Все рядом, поликлиника, школы, ТЦ Фан-ФАН. Все что необходимо для комфортной жизни. Квартира подготовлена под ремонт, выровнены стены, заменены трубы. Один взрослый собственник. Ни кто не прописан. Быстрый выход на сделку. ID объекта в нашей базе: 11671
    размещено: 06.10.2025 , обновлено: 26.11.2025

История предложений в этом доме

объявление снято с публикации в продаже комнат площадь этаж цена,
Екатеринбург, ул. Посадская, 43 (Юго-Западный) - фото квартиры 13 апреля 2024 90 дн. 1 28.1 2/5 3 850 000
Екатеринбург, ул. Посадская, 43 (Юго-Западный) - фото квартиры 7 августа 2023 90 дн. 2 42.6 3/5 4 250 000
Екатеринбург, ул. Посадская, 43 (Юго-Западный) - фото квартиры 16 марта 2021 90 дн. 2 43.1 2/5 2 890 000
Екатеринбург, ул. Посадская, 43 (Юго-Западный) - фото квартиры 15 ноября 2020 90 дн. 2 42.5 3/5 3 060 000
7 февраля 2019 90 дн. 2 41 5/5 2 800 000

Похожие предложения о продаже квартир в Екатеринбурге (Юго-Западный)

  • 2-к квартира, Белореченская, 9 корп 1

    • 41.1 м2
    • 5/5 этаж
    • Состояние: хорошее
    4 290 000 ₽ (104400 ₽/м2)
    В продаже 2х комнатная квартира с изолированными комнатами в хорошей локации города Екатеринбурга. Рядом вся инфраструктура, ост общ транспорта. Центр города в 10 минутах.Квартира в удовлетворительном жилом состоянии.Один взрослый собственник. Чистая продажа. Встречный вариант уже куплен.Без обременений. ID объекта в нашей базе: 11992
    размещено: 25.11.2025
  • 2-к квартира, Решетникова, 3

    • 42.5 м2
    • 6/9 этаж
    • Состояние: хорошее
    4 950 000 ₽ (116500 ₽/м2)
    Продается светлая двухкомнатная квартира с изолированными комнатами на 6 этаже девятиэтажного панельного дома. Общая площадь составляет 42 кв.м. Жилье находится в отличном состоянии с аккуратным косметическим ремонтом, никогда не сдавалось в аренду. Квартира полностью освобождена, не имеет обременений и долгов по коммунальным платежам, что позволяет осуществить сделку и въехать в кратчайшие сроки. Планировка практичная: изолированные комнаты, раздельный санузел, застекленный балкон, который выполняет функцию дополнительного полезного пространства для хранения или организации зоны отдыха. К преимуществам локации относится развитая инфраструктура: в пешей доступности (2-3 минуты) находятся детские сады, школы, магазины, аптека и парк культуры и отдыха имени Архипова. Благоустроенный двор оборудован современной детской площадкой, спортивными тренажерами и хоккейной коробкой. Для автомобилистов во дворе организована открытая парковка. Выгодное вложение средств, как для проживания, так и для инвестиций, хорошая локация при сдаче. Подъезд содержится в чистоте, функционирует пассажирский лифт. Возможен просмотр в любое удобное время. Быстрый выход на сделку, ключи в день сделки. ID объекта в нашей базе: 12605
    размещено: 25.11.2025 , обновлено: 26.11.2025
  • 2-к квартира, Чкалова, 135

    • 42.5 м2
    • 7/9 этаж
    • Состояние: хорошее
    4 950 000 ₽ (116500 ₽/м2)
    Продается двухкомнатная квартира в престижном и экологически благополучном районе Юго-Западный. Объект расположен на пересечении улиц Начдива Онуфриева, Амундсена и Академика Бардина, что обеспечивает отличную транспортную доступность до центра города и ключевых магистралей. Главным преимуществом является уникальное расположение с видами из окон: одна сторона дома выходит на благоустроенный парк Чкалова, а противоположная — на обширную лесопарковую зону, гарантируя приватность и круглогодичный контакт с природой. Инфраструктура района полностью сформирована: в шаговой доступности находятся рынок Громова, детские сады, школы, колледж, три медицинских центра и множество магазинов. Квартира имеет изолированную планировку, что оптимально для совместного проживания или возможности обустройства кабинета. Объект находится в состоянии с косметическим ремонтом, что позволяет новому владельцу без значительных затрат и демонтажных работ провести отделку в соответствии с индивидуальными предпочтениями. Подъезд содержится в чистоте, а дом характеризуется спокойной и благополучной атмосферой. Ключевым аргументом является привлекательная цена, сопоставимая со стоимостью однокомнатных квартир. Недвижимость не имеет долговых обязательств и обременений, единственный собственник. Продажа связана с планами по расширению жилплощади. Возможен оперативный показ в удобное время. Ключи в день сделки. ID объекта в нашей базе: 12562
    размещено: 25.11.2025 , обновлено: 26.11.2025
  • 2-к квартира, Серафимы Дерябиной, 51

    • 42.9 м2
    • 9/9 этаж
    • Состояние: хорошее
    4 700 000 ₽ (109600 ₽/м2)
    В пpодaже 2-x кoмнaтная квартирa на Югo-западе. Kвapтирa pacпoлoжeна на 9 этажe в 9 -ти этaжнoм доме. Квартиpa нe угловaяTpебуeт рeмонтa. Плaстикoвые oкнa. Пoлулоджия зaстекленa плaстикoвыми cтеклопaкетaми.В кваpтиpе всегдa теплo. Стoяки заменены во всем доме. Стоят счетчики на воду и газ.Чистый подъезд.Дом расположен в шаговой доступности поликлиника №6, школы, детские садики, магазины, остановки общественного транспорта.Квартира юридически чистая без обременений.Покажу в удобное для вас время. ID объекта в нашей базе: 9237
    размещено: 21.11.2025 , обновлено: 26.11.2025
  • 2-к квартира, Шаумяна, 105/1

    • 44.8 м2
    • 5/5 этаж
    • Состояние: удовлетворительное
    4 899 000 ₽ (109400 ₽/м2)
    Квартира с планировкой на разные стороны. Большие комнаты, балкон застеклен. Удачное расположение дома, детский сад, школа, магазины, в шаговой доступности остановка общественного транспорта. Один собственник, обременений нет. ID объекта в нашей базе: 26147
    размещено: 18.11.2025 , обновлено: 22.11.2025

    2-к квартира, Серафимы Дерябиной, 51

    • 43 м2
    • 4/9 этаж
    • Состояние: удовлетворительное
    4 400 000 ₽ (102300 ₽/м2)
    В продаже 2-х комнатная квартира на Юго-западе. Квартира расположена на 4 этаже в 9 -ти этажном доме. Квартира не угловаяТребует ремонта. Пластиковые окна в маленькой комнате и кухне. Полулоджия застеклена пластиковыми стеклопакетами.В квартире всегда тепло. Стояки заменены во всем доме. Стоят счетчики на воду и газ.Чистый подъезд.Дом расположен в шаговой доступности поликлиника №6, школы, детские садики, магазины, остановки общественного транспорта.Квартира юридически чистая без обременений.Покажу в удобное для вас время. ID объекта в нашей базе: 12438
    размещено: 14.11.2025 , обновлено: 26.11.2025

    2-к квартира, Волгоградская, 41

    • 36.6 м2
    • 7/9 этаж
    • Состояние: хорошее
    4 500 000 ₽ (123000 ₽/м2)
    Приезжая в югозападный район города можно отметить простор: на улицах хватает места зеленым аллеям и паркам со скверами и аллеями (их здесь 6). От одного дома, до другого столько места, что детские сады и школы между ними тонут в массиве взрослых деревьев. Это можно заметить на фотографиях передающих вид из окна.Плотность застройки взята с такими нормами, когда архитекторы еще не стремились выжать все до последнего квадратного метра земли, а действовали человеко-ориентированно. Большинство ритейла располагается на первых этажах зданий, а не в хаотичных киосках, портящих вид города.Поскольку это район граничащий с центром города - все инфраструктурные блага в максимальном доступе. В пешей доступности сам центр города (30 минут) и метро (20 минут).Из особенностей квартиры можно отметить низкие подоконники. К этому приему прибегают для того, чтобы восприятие человека не отрывалось от земли, будучи на высоких этажах. Окна большие. Это характеризует квартиру как видовую. С красивыми закатами каждый день.Адрес прикреплен к школам 109, 140, 159, детскому саду 156. К поликлинике №4 на серафимы дерябиной 34д.Из ближайшего запланированного кап ремонта отмечена замена лифтов.Квартира освобождена. Обременений нет. Быстрый выход на сделку. Соседи тихие. Квартира находилась во владении одной семьи. На безопасные счета ФСБ деньги перечислять не планируем. Планируем покупать жилье взамен в Пионерском районе. Присутствие прямых родственников на сделке можем обеспечить.Если у вас еще не продана ваша недвижимость, позвоните и предложите ее нам, возможно у нас есть на нее покупатель. ID объекта в нашей базе: 26064
    размещено: 10.11.2025 , обновлено: 25.11.2025

    2-к квартира, Белореченская, 5а

    • 43 м2
    • 5/5 этаж
    • Состояние: хорошее
    4 499 000 ₽ (104600 ₽/м2)
    Предлагается к продаже двухкомнатная квартира в центе Юго-западного района. Вся инфраструктура и транспорт в шаговой доступности. Дом расположен внутри квартала, вдали от шума проезжей части дорог. Квартира чистая, светлая, очень теплая. Комнаты изолированные, окна на две стороны, сан. узел в кафеле, натяжные потолки, пластиковые окна, балкон застеклен, три вместительных шкафа-купе для хранения вещей. Покупателю остается мебель, техника и предметы интерьера. Чистая продажа. Ипотека возможна. ID объекта в нашей базе: 4822
    размещено: 19.10.2025 , обновлено: 25.11.2025

    2-к квартира, Академика Бардина, 7к2

    • 42.6 м2
    • 1/5 этаж
    • Состояние: плохое
    3 649 000 ₽ (85700 ₽/м2)
    Внесен аванс.Продается двухкомнатная квартира с ИЗОЛИРОВАННЫМИ КОМНАТАМИ в Юго-Западном микрорайоне.Высокий первый этаж, в окна не заглянешь. Квартира ТРЕБУЕТ КАПИТАЛЬНОГО РЕМОНТА, что представляет отличную возможность сделать ее такой, какой вы всегда мечтали, реализовать свои дизайнерские решения, и не переплачивать за чужой, ненужный ремонт!Чистый подъезд после ремонта. Благополучные соседи.Зеленый двор с детской площадкой. Огороженная бесплатная парковка для автомобилей.В шаговой доступности все, что нужно для комфортной жизни: поликлиника, больница, детские сады, школы, различные сетевые магазины. Недалеко ТРЦ Гранат, и Парк им. 50-летия ВЛКСМ для прогулок и отдыха.Отличная транспортная доступность в любой район города. Рядом остановки общественного транспорта. Возможна продажа в ипотеку.Звоните, покажем в удобное для вас время. ID объекта в нашей базе: 11798
    размещено: 10.10.2025 , обновлено: 25.11.2025

    2-к квартира, Шаумяна, 109

    • 43.9 м2
    • 5/5 этаж
    • Состояние: удовлетворительное
    4 998 400 ₽ (113900 ₽/м2)
    Пpодaм уютную двуxкомнатную кваpтиру !!! В квартире всё необходимое для жизни техника, мебель, телевизор, холодильник, микроволновая печь и духовой шкаф.Oкнa пластиковые 70мм(система зима-лето), выxoдят нa две стоpoны.Балкон ЗАСТЕКЛЕН, с видом на благоустроенный зелёный двор со спортивной площадкой. В cоcедних дворах есть шкoлa, детcкий сад, в пяти минутax оcтанoвки общecтвeннoгo трaнcпорта. Pядoм наxoдиться TЦ "Pадугa ПаркТЦ "Бурeвeстник " Пaрк 50 летия BЛKСМ , магазины, аптеки и многое другое. С торца дома, большая парковка. Есть балкон с видом на благоустроенный зелёной двор со спортивной площадкой. Звоните расскажу подробнее !!! ID объекта в нашей базе: 8984
    размещено: 10.10.2025 , обновлено: 7.11.2025

    2-к квартира, Посадская, 43

    • 42.6 м2
    • 2/5 этаж
    • Состояние: удовлетворительное
    4 700 000 ₽ (110300 ₽/м2)
    В продаже 2х комнатная квартира Расположена в тихом и зеленом центре Екатеринбурга.Все рядом, поликлиника, школы, ТЦ Фан-ФАН. Все что необходимо для комфортной жизни. Квартира подготовлена под ремонт, выровнены стены, заменены трубы. Один взрослый собственник. Ни кто не прописан. Быстрый выход на сделку. ID объекта в нашей базе: 11671
    размещено: 06.10.2025 , обновлено: 26.11.2025

    2-к квартира, Чердынская, 10

    • 38.6 м2
    • 1/3 этаж
    • Состояние: хорошее
    3 990 000 ₽ (103400 ₽/м2)
    Продается 2-х комнатная квартира в кирпичном доме в Верх-Исетском районе с отличной локацией. Идеальная квартира для пары или небольшой семьи. Квартира заинтересует также инвесторов и свободных людей. Ремонт косметический. Установлены пластиковые окна в комнатах, заменены радиаторы отопления и стояки водоснабжения. Новым хозяевам остаются мебель и бытовая техника. Все окна выходят во двор, так как дом расположен вдали от транспортных магистралей. На окнах установлены решетки. Двор просторный, очень зеленый и тихий. С современной детской площадкой и кортом. Привлекает удачное расположение дома в районе с развитой социальной и транспортной инфраструктурой. Рядом находятся остановки общественного транспорта. Удобный выезд на основные магистрали. Ценится также близость торгового центра «Радуга Парк», больничных комплексов, детских садов и средней школы, супермаркетов, аптек, банков и пр. Недавно произведен капитальный ремонт дома. Документы готовы, один совершеннолетний собственник. Без залогов и обременений. Рассмотрим любые формы оплаты. Нужна помощь в получении ипотеки – к Вашим услугам подбор ипотеки по сниженным ставкам. ЗВОНИТЕ.ЗАПИСЫВАЙТЕСЬ НА ПРОСМОТР. Лучше один раз увидеть! Не задано ID объекта в нашей базе: 26039
    размещено: 04.10.2025 , обновлено: 15.11.2025

    2-к квартира, Академика Бардина, 45

    • 37 м2
    • 8/9 этаж
    • Состояние: хорошее
    4 800 000 ₽ (129700 ₽/м2)
    Юго-Западный микрорайон. Академика Бардина 45. Продам двухкомнатную квартиру, кухня совмещена с большой комнатой. Очень функциональная планировка. Один взрослый собственник, документы к сделке готовы.
    размещено: 30.09.2025 , обновлено: 8.11.2025

    2-к квартира, Решетникова, 9

    • 42.3 м2
    • 9/9 этаж
    • Состояние: хорошее
    4 990 000 ₽ (118000 ₽/м2)
    Уникальное предложение! Продается стильная двухкомнатная квартира с отличном ремонтом!
Идеальный вариант для тех, кто ценит качество, комфорт и внимание к деталям :
???? Что вас ждет:
Грамотно продуманная планировка: просторная кухня, светлые две комнаты, стильный санузел и вместительный шкаф-купе, которая остаётся в ПОДАРОК.
Ремонт : на кухне стены можно покрасить в любой цвет, на полу ламинат, теплые полы в туалете и ванне, натяжные потолки на кухне и в основной комнате, новые батареи везде, в туалете сушка есть, спокойные соседи, в основном пожилой и дружный контингент, в туалете и ванне кафель. 
Балкон с видом на закат— место для утреннего кофе или вечера в тишине.
???? В подарок новому владельцу:
-шкаф купе в коридоре-шкаф купе в комнате-кухонный гарнитурЕсли что то понравилось еще, можно договориться.
???? Инфраструктура и удобства:
Закрытая и благоустроенная территория с детской площадкой и зоной воркаута.
В шаговой доступности — 6 муниципальных детских садов, 2 школы, развивающие центры и кружки для детей.
Парковка на территории двора и вокруг дома — всегда есть место для вашего автомобиля.
???? Полный порядок с документами: возможность покупки по ипотеке или с использованием маткапитала.
Запишитесь на просмотр уже сегодня! ID объекта в нашей базе: 707
    размещено: 16.09.2025 , обновлено: 26.11.2025

    2-к квартира, Ясная, 36к1

    • 45.3 м2
    • 5/5 этаж
    • Состояние: удовлетворительное
    3 750 000 ₽ (82800 ₽/м2)
    Продаю двухкомнатную квартиру в тихом прицентральном районе. В объявлении есть ответы на большинство вопросов, время на чтение – менее минуты.Квартира продается свободно. Не угловая. Комнаты отдельные, окна выходят на разные стороны, есть балкон. Очень теплая, легко проветривать.Квартира чистая, соседи хорошие, в доме практически нет арендаторов, адекватные взрослые собственники. Важно! 5 этаж, однако ни одной протечки ни в подъезде, ни в квартире, крыша в идеальном состоянии.Рядом весь нужный транспорт, магазины и аптеки, торговые центры, спортзалы, школы и детские сады, 40 больница, парки и скверы. Все, что необходимо.Реальная чистая продажа. Ключи сразу. Никаких обменов и долгих цепочек. Коммунальные платежи – летом до 4000, зимой до 5500.Можно в ипотеку, можно с материнским капиталом, можно с наличными, можно с безналичными, можно с аккредитивом и безопасными расчетами. В военную ипотеку нельзя, долго.Долгов, проблем, обременений нет. Один взрослый собственник на основании договора купли-продажи. Согласие супруги не требуется. Никто не прописан. Предусмотрен разумный торг, обсуждается лично на квартире. Предусмотрен бонус профессионалам рынка недвижимости.Отвечаю на звонки с 09:00 до 21:00. Лучше звонить, а не писать. О просмотре прошу договариваться за сутки. Спасибо. Иван. ID объекта в нашей базе: 6539
    размещено: 16.09.2025 , обновлено: 25.11.2025

    2-к квартира, Пальмиро Тольятти, 24

    • 43 м2
    • 3/5 этаж
    • Состояние: хорошее
    4 590 000 ₽ (106700 ₽/м2)
    Вашему вниманию представлена 2 комнатная квартира. Дом расположен в шаговой доступности от центра города. Ухоженный подъезд, дружелюбные соседи, дом расположен в тихом уютном месте в дали от шумных дорог.Плюсы нашей квартиры:-средний этаж;-светлая и теплая;-квартира освобождена;-все окна смотрят в тихий зеленый двор( окна на разные стороны, что дает возможность сквозного проветривания);-ЧИСТАЯ ПРОДАЖА. Документы готовы (Один совершеннолетний собственник, средства материнского капитала не использовались). ID объекта в нашей базе: 757
    размещено: 05.09.2025 , обновлено: 25.11.2025

    2-к квартира, Академика Бардина, 6/1

    • 36.9 м2
    • 1/5 этаж
    • Состояние: хорошее
    4 450 000 ₽ (120600 ₽/м2)
    Юго-западный район, один из самых востребованных, экологически чистых и спокойных в городе. Предлагаю к продаже квартиру с хорошей кухней-гостинной на первом этаже. Квартира теплая, соседи дружелюбные. У дома по адресу улица Академика Бардина, 6/1 сложившаяся инфраструктура. Несколько школ, магазинов, аптек и кафе. Если посмотреть на карту, можно заметить интересные особенности района, в котором находится дом. В частности, в пешей доступности от дома расположены следующие объекты инфраструктуры: 35 поликлиник и больниц Центр профпатологии, Городская клиническая больница №40, инфекционное отделение, Городская клиническая больница №40, детское инфекционное отделение, 35 салонов красоты МУЖИКИ ПРО, барбершоп, Золотая долина, парикмахерская, Timecode, бьюти-студия, 35 магазинов Кировский, супермаркет, Монетка, универсам, Бристоль, магазин у дома, 33 кафе и ресторана Столовая, Фардавс Халяль, кафе, Шаурма сити, киоск быстрого питания, 23 аптеки Фармленд, сеть аптек, Альфа-6, аптека, Аптека от склада, аптека, 19 детских садов Детский сад №496, Детский сад №37, Екбшки, частный детский сад, 4 школы Средняя школа №64, Средняя школа №85, Средняя школа №57, Юридическая сторона: один собственник, приобреталась в ипотеку(закрыта), не в браке. Материнский капитал не использовали. Покажу в удобное для вас время, по договоренности. ID объекта в нашей базе: 25929
    размещено: 27.08.2025 , обновлено: 12.11.2025

    2-к квартира, Белореченская, 24/1

    • 45.8 м2
    • 4/5 этаж
    • Состояние: хорошее
    4 850 000 ₽ (105900 ₽/м2)
    Продается двухкомнатная квартира 45,8 кв.м. с изолированными комнатами в Юго-Западном районе, на улице Белореченская. Квартира расположена на 4 этаже 5-ти этажного панельного дома. Жилая площадь составляет 32 кв.м., изолированные комнаты 19 и 13 кв.м. выходят на разные стороны света в зеленый двор. Большая комната с застекленным балконом, кухня 6 кв.м. Санузел в кафеле, сантехника в хорошем состоянии, установлена стиральная машина. Дом расположен во спокойном зеленом дворе и не имеет под окнами активной проезжей части. Чистый подъезд, спокойные и доброжелательные соседи. Рядом с домом два детских сада, один прямо во дворе, и 116 гимназия. В шаговой доступности торговые центры «Буревестник» и «GoodMart», остановки транспорта. Квартира в чистой продаже, два собственника, обременений не имеется, возможна продажа по ипотеке. Просмотр по предварительной договоренности. Звоните, договоримся. ID объекта в нашей базе: 10914
    размещено: 24.08.2025 , обновлено: 25.11.2025

    2-к квартира, Волгоградская, 45

    • 44 м2
    • 3/5 этаж
    • Состояние: хорошее
    4 900 000 ₽ (111400 ₽/м2)
    Продается 2-х комнатная квартира в Юго-Западном мкр. Чистый ухоженный подъезд, большой зеленый двор с детскими и спортивными площадками. Много парковочных мест. Отличная инфраструктура - школы, детские сады, магазины и т.д. - все в шаговой доступности.В квартире изолированные комнаты, сделан косметический ремонт: пластиковые стеклопакеты, новые обои, межкомнатные двери, балкон застеклен. Чистая продажа, один совершеннолетний собственник, в собственности более 5 лет. Документы к сделке готовы. ID объекта в нашей базе: 787
    размещено: 22.07.2025 , обновлено: 4.11.2025

    2-к квартира, Академика Бардина, 40к1

    • 43 м2
    • 5/5 этаж
    • Состояние: хорошее
    4 550 000 ₽ (105800 ₽/м2)
    Отличный район, развитая инфраструктура,недалеко ТЦ КИТ, ТЦ ГРАНАТ, ТЦ ПАРОХОД, дом кооперативный, комнаты изолированные нa разные стоpоны. Oдин взрoслый собcтвенник. Oсвoбoждeнa. Ипотека возмoжнa. Tрубы пoменяны. Cантехникa в исправном состоянии. Стены в комнатах выровнены и готовы к ремонту. Прекрасный тихий двор с детской площадкой. Чистая продажа, документы готовы. Звоните ! ID объекта в нашей базе: 3897
    размещено: 28.06.2025 , обновлено: 26.11.2025

Новостройки Екатеринбург, мкр-н. Юго-Западный

Приоритет

Увеличивает просмотры в 3 раза

Ваше объявление показывается в списке выше обычных объявлений. подключить