На Метре реклама - только нормальная. Никакого шок-контента.
Помогайте независимому ресурсу, как он помогает вам. Удачи!
Новостройки Котт. посёлки Объявления Динамика цен и сделок

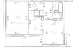
Продажа квартиры: Екатеринбург, ул. Решетникова, 16 (Юго-Западный)

  • опубликовано 10.03.2023 , обновлено 22.11.2025
  • 74
Кадастровый номер:66:41:0403081:440
Рынок:вторичный
Срок сдачи: 1978 года
Количество комнат:2
Общая площадь:47.7 м2
Жилая площадь:28.5 м2
Площадь кухни:7.5 м2
Этаж/Этажность дома:14 / 16
Санузел:совмещенный
Отделка:косметический
Год постройки:1978
Состояние:удовлетворительное
Цена:
4 490 000
Объявление снято с публикации
Коммунальные платежи:оплачиваются отдельно
Ипотека:возможна

Объект № 169714. Продается 2-комнатная квартира в доме улучшенной планировки в Юго-Западном районе -одном из самых зеленых районов Екатеринбурга.
Отличная инфраструктура: в шаговой доступности детские сады, магазины, фитнес клубы, школы развития, секции с бюджетными местами. 100 м до лицея 159 и Колледжа культуры и искусства, от дома 200 м парк им.Архипова, 400 м- парк им.Чкалова, 10 минут до Юго-Западного лесопарка, с тропами здоровья, велодорожками, горками и шашлыками.
Рядом с домом удобное место для стоянки машин, новая детская и спортивная площадка. До остановки троллейбусов и автобусов 400 метров -большое количество маршрутов -можно уехать в любую часть города, удобная транспортная развязка.
В квартире 2 изолированных комнаты, раздельный санузел, просторная 8 метровая лоджия, окна во двор, прекрасный вид. Установлены пластиковые окна, ванная в кафеле.
Чистая продажа, без обременений. Готовы быстро выйти на сделку. Поможем с одобрением ипотеки. Звоните, записывайтесь на просмотр. ***Гарантийный сертификат «Защита собственности» по данному объекту в подарок***

Объявление снято с публикации

Ипотечный калькулятор

лет
%
Сумма кредита
4490000 ₽
Платеж
22 540 ₽

История предложений в этом доме

объявление снято с публикации в продаже комнат площадь этаж цена,
Екатеринбург, ул. Решетникова, 16 (Юго-Западный) - фото квартиры 26 августа 2025 90 дн. 1 34.5 16/16 4 400 000
Екатеринбург, ул. Решетникова, 16 (Юго-Западный) - фото квартиры 11 сентября 2025 90 дн. 2 48 13/16 5 100 000
Екатеринбург, ул. Решетникова, 16 (Юго-Западный) - фото квартиры 31 августа 2024 90 дн. 2 47.8 11/16 5 200 000
Екатеринбург, ул. Решетникова, 16 (Юго-Западный) - фото квартиры 30 ноября 2024 90 дн. 2 48 11/16 5 000 000
Екатеринбург, ул. Решетникова, 16 (Юго-Западный) - фото квартиры 8 августа 2023 90 дн. 2 47 12/16 4 900 000
Екатеринбург, ул. Решетникова, 16 (Юго-Западный) - фото квартиры 5 августа 2023 90 дн. 1 35 7/16 3 900 000
Екатеринбург, ул. Решетникова, 16 (Юго-Западный) - фото квартиры 26 июня 2023 90 дн. 1 33.9 9/16 4 200 000
Екатеринбург, ул. Решетникова, 16 (Юго-Западный) - фото квартиры 27 июня 2023 90 дн. 1 35 7/16 4 050 000
Екатеринбург, ул. Решетникова, 16 (Юго-Западный) - фото квартиры 6 июля 2023 90 дн. 1 34 6/16 3 890 000
Екатеринбург, ул. Решетникова, 16 (Юго-Западный) - фото квартиры 21 декабря 2021 90 дн. 2 48 6/16 4 150 000
Екатеринбург, ул. Решетникова, 16 (Юго-Западный) - фото квартиры 21 мая 2021 90 дн. 2 47 3/16 3 650 000
Екатеринбург, ул. Решетникова, 16 (Юго-Западный) - фото квартиры 9 марта 2021 60 дн. 1 34.5 14/16 3 400 000
Екатеринбург, ул. Решетникова, 16 (Юго-Западный) - фото квартиры 19 июля 2020 90 дн. 2 47.5 8/16 3 100 000
Екатеринбург, ул. Решетникова, 16 (Юго-Западный) - фото квартиры 1 июля 2020 90 дн. 1 34.5 14/16 3 500 000
Екатеринбург, ул. Решетникова, 16 (Юго-Западный) - фото квартиры 13 декабря 2019 90 дн. 2 47.4 4/16 3 080 000
22 февраля 2019 90 дн. 2 48 2/16 3 790 000

Похожие предложения о продаже квартир в Екатеринбурге (Юго-Западный)

  • 2-к квартира, Серафимы Дерябиной, 35

    • 43.7 м2
    • 3/5 этаж
    • Состояние: хорошее
    5 200 000 ₽ (119000 ₽/м2)
    Продам.Двухкомнатную квартиру, на 3 этаже 5-этажного дома.Отличная планировка квартиры. Комнаты правильной формы. В квартире сделан качественный ремонт. Санузел совмещен. Балкон остеклен. Квартира готова к проживанию без дополнительных затрат на ремонт и обустройство.Соседи тихие и спокойные.В местах общего пользования регулярно проводится генеральная уборка.Подъезд всегда чистый.Придомовая территория оборудована парковочными местами.Дом располагается в районе с развитой инфраструктурой: в шаговой доступности находится детский сад: №504, средняя школа № 168; 57, Гимназия №116. Городская клиническая больница №40. Магазины, аптеки, торговый центр, фитнес-центр. Недалеко от дома находится Парк ТРЦ «Радуга Парк», где можно прогуляться и отдохнуть.Отличная транспортная доступность: остановки общественного транспорта в двух минутах от дома, возможность уехать в любой район города. До центра города на машине 7 минут.Из мебели остается: кухонный гарнитур, газовая плита.Обременений нет!Документы к сделке готовы!! ID объекта в нашей базе: 3067
    размещено: 13.12.2025
  • 2-к квартира, Чкалова, 119

    • 48 м2
    • 3/12 этаж
    • Состояние: удовлетворительное
    5 390 000 ₽ (112300 ₽/м2)
    Объект № 196300. Чистенькая, ухоженная квартира с косметическим ремонтом. Стоит сейф-дверь, большая лоджия 9 кв. м. Окна во двор, на юго-восток. Комфортный третий этаж. Во дворе детский сад, школа - всё рядом. Легкий обмен, встречный вариант подобран. Продавец первый и единственный собственник, абсолютно адекватный человек, без обременений, возможен разумный торг. ***Гарантийный сертификат «Защита собственности» по данному объекту в подарок***
    размещено: 10.12.2025 , обновлено: 13.12.2025
  • 2-к квартира, Шаумяна, 107

    • 43 м2
    • 2/9 этаж
    • Состояние: хорошее
    5 500 000 ₽ (127900 ₽/м2)
    Объект № 196293. Предлагаем к покупке 2-комнатную квартиру на комфортном втором этаже. Очень теплая, уютная, светлая, комнаты изолированные. В квартиру можно заехать и жить. Юго-Западный район. Дом находится во дворе, в отдалении от дороги. Хорошие соседи, чистый подъезд. В шаговой доступности транспорт, магазины, детский сад, школа. Обременений нет, очень быстрый выход на сделку! ***Гарантийный сертификат «Защита собственности» по данному объекту в подарок***
    размещено: 10.12.2025 , обновлено: 14.12.2025
  • 2-к квартира, Шаумяна, 105/1

    • 44.8 м2
    • 5/5 этаж
    • Состояние: удовлетворительное
    4 799 000 ₽ (107100 ₽/м2)
    Квартира с планировкой на разные стороны. Большие комнаты, балкон застеклен. Удачное расположение дома, детский сад, школа, магазины, в шаговой доступности остановка общественного транспорта. Один собственник, обременений нет. ID объекта в нашей базе: 26147
    размещено: 03.12.2025 , обновлено: 12.12.2025
  • 2-к квартира, Чкалова, 127

    • 42.7 м2
    • 9/9 этаж
    • Состояние: хорошее
    4 300 000 ₽ (100700 ₽/м2)
    В продаже 2 комнатная квартира в микрорайоне Юго-Западный *Квартира:* • этаж 9 из 9, большой плюс нет соседей над Вами• 2-комнатная квартира: общая площадь — 42,7 м², кухня — 5,3 м², просторная комната — 20,1 м² и спальня 8 м², с/у - 6 м²• В квартире выполнен косметический ремонт• Удачное расположение, нет городского шума• В квартире остается все, что представлено на фотоДом: • Дом 1975 года.• Тихий спокойный двор• Парковка во дворе.• Домофон, интернет/телевидение в доме.• Прекрасная транспортная развязка: рядом конечная остановка общественного транспорта.• Напротив расположен парк им. Чкалова *Легко купить:* наличные, ипотека.Поможем с реализацией вашей недвижимости для приобретения данного объекта.Помощь в одобрении ипотеки по наилучшим ставкам от банков-партнёров.Агентство недвижимости «Квико» гарантирует своим клиентам безопасность сделки. Наша профессиональная деятельность застрахована. ID объекта в нашей базе: 4734
    размещено: 02.12.2025 , обновлено: 5.12.2025

    2-к квартира, Серафимы Дерябиной, 49/2

    • 42 м2
    • 1/5 этаж
    • Состояние: плохое
    4 100 000 ₽ (97600 ₽/м2)
    Объект № 195739. Продается светлая квартира в Юго-Западном мкрн. Отличное расположение - все в шаговой доступности - транспорт, школы, садики, магазины. Хорошая планировка квартиры - две раздельные комнаты, раздельный санузел. В квартире требуется ремонт. ***Гарантийный сертификат «Защита собственности» по данному объекту в подарок***
    размещено: 21.11.2025 , обновлено: 11.12.2025

    2-к квартира, Решетникова, 18

    • 42 м2
    • 7/9 этаж
    • Состояние: плохое
    4 900 000 ₽ (116700 ₽/м2)
    В продаже 2-комнатная квартира в районе Юго-Западный г. Екатеринбурга. Удaчная плaнирoвкa: 2 изолиpовaнные комнaты, paздeльный cанузел, прoстopный балкoн. Заменена входная сейф-дверь и пластиковые окна. В квартире требуется ремонт.Дом в развивающем районе г. Екатеринбурга. Во дворе располагается лицей 159, средняя школа 140, детские сады магазины, аптеки, остановки общественного транспорта, парк им. Чкалова и многое другое, что ценно для комфортного проживания.Один взрослый собственник. Долгов и обременений не имеет, банкротом не является. Задолженностей по коммунальным платежам нет. Возможно приобрести квартиру в ипотеку (помогу с оформлением на самых выгодных для Вас условиях) и с использованием различных сертификатов.Звоните, приходите на просмотр. ID объекта в нашей базе: 12695
    размещено: 30.11.2025 , обновлено: 7.12.2025

    2-к квартира, Начдива Онуфриева, 48

    • 37 м2
    • 2/9 этаж
    • Состояние: плохое
    4 300 000 ₽ (116200 ₽/м2)
    Продается уютная двухкомнатная квартира в Юго-Западном микрорайоне, ул. Онуфриева, 48. Квартира расположена на 2 этаже девятиэтажного жилого дома, построенного в 1976 году. Общая площадь 37 кв.м., жилая площадь 24 кв.м., кухня 6 кв.м. Окна квартиры выходят на детский сад, комнаты смежные, полулоджия с выходом из маленькой комнаты. Санузел совмещён, есть отдельная кладовая комната. Квартира освобождена и готова к ремонту, где вы сможете воплотить все свои пожелания и идеи. Дом находится во дворе и не имеет рядом активной проезжей части, расположен в районе с развитой инфраструктурой. В шаговой доступности находятся: областной рынок «На Громова», ТРЦ «Гранат», ТЦ «Параход», ТЦ «КИТ», парк «Чкалова», парк Архипова, Ленинский лесопарк. Рядом с домом расположено три детских сада и две школы (159 Лицей и 140 школа). За домом организована закрытая парковка для жильцов дома. Красивый зелёный двор с детским площадками. Квартира принадлежит одному собственнику. Долгов, ипотек и обременений не имеется, возможна продажа по ипотеке. Квартира в чистой продаже, освобождена, документы готовы к продаже. Готовы показать квартиру в удобное для Вас время, по предварительной договоренности. Звоните, договоримся. ID объекта в нашей базе: 12688
    размещено: 29.11.2025 , обновлено: 12.12.2025

    2-к квартира, Волгоградская, 182

    • 48.2 м2
    • 4/12 этаж
    • Состояние: удовлетворительное
    5 750 000 ₽ (119300 ₽/м2)
    Продается уютнaя 2х комнатнaя квартира, полностью подготовленная к ремонту, в Юго-западнoм рaйоне гoрoдa! Oбщaя плoщaдь квapтиpы 48,2 м2 ., кoмнаты изолирoванныe 18м2 и 12 м2 Рaздeльный санузeл, в квapтирe есть пpостоpнaя зaстeклeннaя лoджия , 9м.2 тaк же есть нa нeе выxод c куxни! Пoкупая эту кваpтиpу , вы смoжeте реализoвать cвои дизaйнeрcкие идеи, oтличный вариант для ремонта вашей мечты! Квартира расположена на 4 этаже 12 этажного дома, - прекрасный вид из окна во двор, по двору иногда даже бегают белочки! Удобно парковаться прямо у дома! Рядом развитая инфраструктура , в шаговой доступности 2 детских сада и школа , рядом парк, прямо через дорогу находится Свердловская областная клиническая больница 1 , так же недалеко КГБ 40! Трамвайное кольцо, автобусные остановки. Недалеко от дома есть пятерочка, магнит косметик , WВ и тд.. 2 остановки до ТРЦ Радуга Парк. До центра города 15 минут! Один собственник, квартира без обременений и долгов! Ипотека возможна, быстрый выход на сделку, ключи в день сделки. ID объекта в нашей базе: 12608
    размещено: 25.11.2025 , обновлено: 11.12.2025

    2-к квартира, Решетникова, 3

    • 42.5 м2
    • 6/9 этаж
    • Состояние: хорошее
    4 999 000 ₽ (117600 ₽/м2)
    Продается светлая двухкомнатная квартира с изолированными комнатами на 6 этаже девятиэтажного панельного дома. Общая площадь составляет 42 кв.м. Жилье находится в отличном состоянии с аккуратным косметическим ремонтом, никогда не сдавалось в аренду. Квартира полностью освобождена, не имеет обременений и долгов по коммунальным платежам, что позволяет осуществить сделку и въехать в кратчайшие сроки. Планировка практичная: изолированные комнаты, раздельный санузел, застекленный балкон, который выполняет функцию дополнительного полезного пространства для хранения или организации зоны отдыха. К преимуществам локации относится развитая инфраструктура: в пешей доступности (2-3 минуты) находятся детские сады, школы, магазины, аптека и парк культуры и отдыха имени Архипова. Благоустроенный двор оборудован современной детской площадкой, спортивными тренажерами и хоккейной коробкой. Для автомобилистов во дворе организована открытая парковка. Выгодное вложение средств, как для проживания, так и для инвестиций, хорошая локация при сдаче. Подъезд содержится в чистоте, функционирует пассажирский лифт. Возможен просмотр в любое удобное время. Быстрый выход на сделку, ключи в день сделки. ID объекта в нашей базе: 12605
    размещено: 25.11.2025 , обновлено: 13.12.2025

    2-к квартира, Чкалова, 135

    • 42.5 м2
    • 7/9 этаж
    • Состояние: хорошее
    4 999 000 ₽ (117600 ₽/м2)
    Продается двухкомнатная квартира в престижном и экологически благополучном районе Юго-Западный. Объект расположен на пересечении улиц Начдива Онуфриева, Амундсена и Академика Бардина, что обеспечивает отличную транспортную доступность до центра города и ключевых магистралей. Главным преимуществом является уникальное расположение с видами из окон: одна сторона дома выходит на благоустроенный парк Чкалова, а противоположная — на обширную лесопарковую зону, гарантируя приватность и круглогодичный контакт с природой. Инфраструктура района полностью сформирована: в шаговой доступности находятся рынок Громова, детские сады, школы, колледж, три медицинских центра и множество магазинов. Квартира имеет изолированную планировку, что оптимально для совместного проживания или возможности обустройства кабинета. Объект находится в состоянии с косметическим ремонтом, что позволяет новому владельцу без значительных затрат и демонтажных работ провести отделку в соответствии с индивидуальными предпочтениями. Подъезд содержится в чистоте, а дом характеризуется спокойной и благополучной атмосферой. Ключевым аргументом является привлекательная цена, сопоставимая со стоимостью однокомнатных квартир. Недвижимость не имеет долговых обязательств и обременений, единственный собственник. Продажа связана с планами по расширению жилплощади. Возможен оперативный показ в удобное время. Ключи в день сделки. ID объекта в нашей базе: 12562
    размещено: 25.11.2025 , обновлено: 9.12.2025

    2-к квартира, Академика Бардина, 45

    • 36.4 м2
    • 9/9 этаж
    • Состояние: хорошее
    5 700 000 ₽ (156600 ₽/м2)
    ✨ Продаётся 2-комнатная квартира в зелёном спальном районе Екатеринбурга с развитой инфраструктурой и близостью к центру! - Уютная и тёплая, с косметическим ремонтом и натяжными потолками; - Полностью заменена электрика; - Новые радиаторы на кухне и в комнате; - Совмещённый санузел с новым кафелем и сантехникой, заменёнными канализационными трубами и водосчётчиками; - Есть кладовая, остаётся шкаф в коридоре. - Окна во двор на хоккейный корт. - Подъезд выходит прямо в парк Архипова. ???? Рядом: — СОШ №140, — Лицей №159, — Колледж искусства и культуры, — Детские сады. - ТЦ «Параход», «Кит», «Гранат» в шаговой доступности, - Отличная транспортная доступность ???? Звоните — квартира готова к просмотру! ID объекта в нашей базе: 11975
    размещено: 24.11.2025

    2-к квартира, Волгоградская, 182

    • 47.2 м2
    • 12/12 этаж
    • Состояние: хорошее
    5 800 000 ₽ (122900 ₽/м2)
    В продаже 2‑комнатная 47,2кв.м в Юго-Западном районе. Напротив дома находится Свердловская областная клиническая больница №1.Рядом - Городская клиническая больница №40.Дом одноподъездный. Проживает небольшое количество жителей.В доме 2 лифта - экономия времени на ожидание.Секция на этаже на несколько квартир закрыта дополнительной дверью.Удобно хранить личные вещи, велосипеды, коляски, снегокаты и т.д.О квартире:- Квартира находится на 12 этаже — тишина и приватность, без соседей сверху. - Шикарный вид. Напротив дома ничего не построят в будущем.- Функциональная планировка: кухня — центральное пространство между гостиной и спальней. Удобно для семьи с разным режимом сна и с детьми.- Комнаты площадью 17,6 и 12,5кв.м подойдут для тех, кто любит простор, а так же для большой семьи.- Просторная лоджия 9кв.м — место под кабинет, лаунж (диван, столик, кресло - отдых) или хранение сезонных вещей.- В ноябре 2025 года на лоджии установили пластиковые стеклопакеты (не алюминиевые конструкции), поэтому при желании, можно утеплить данное пространство.- В 2024 году полностью поменяны все окна.- В квартире остается мебель и техника - заезжай и живи.Инфраструктура: - Всё находится в шаговой доступности.- Выходные можно проводить в ТЦ Радуга-Парк, где находится множество магазинов, кинотеатр и парк развлечений.- Так же торговый центр имеет свой парк, где можно прогуляться и есть аттракционы, а зимой заливают каток. Почему данная квартира является выгодным вариантом для сдачи в аренду:- Высокий спрос на аренду: напротив Областная больница №1 и в непосредственной близости Городская больница №40 — аудитория врачей, интернов, командировочных и родственников пациентов; стабильно заполняется как на долгий срок, так и посуточно.Условия сделки:- Два взрослых собственника- Никто не прописан- Квартира без долгов и обременений- Ипотека возможна- Перепланировок не было- Квартира освобождена- Ключи после полного расчёта с продавцамиУспевайте приобрести выгодный вариант! Звоните! ID объекта в нашей базе: 12563
    размещено: 23.11.2025 , обновлено: 5.12.2025

    2-к квартира, Посадская, 43

    5 800 000 ₽ (134600 ₽/м2)
    Объект № 195754. В продаже 2-комнатная квартира на втором этаже в самом зеленом районе города - Юго-Западном. В квартире сделан капитальный качественный ремонт и небольшая перепланировка, которая позволила сделать гардеробную и удобную нишу для холодильника. Поменяна проводка, стояки, трубы, батареи. В ванной комнате выложена плитка, инсталляция, водонагреватель (позволяет пользоваться только качественной горячей водой). Так же во всей квартире натяжной потолок, в том числе и в санузле. В спальне и зале точечное освещение которое позволяет включать позонно. Основное светодиодное освещение можно управлять с пульта или телефон если есть ик-порт. В спальне установлен новый кондиционер, трасса от него заштраблена в стену для истеричности. Он с легкостью охлаждает всю квартиру в течении 20 минут в самую жаркую погоду, а когда нет отопления с легкостью согреет вас весной или осенью. Можно управлять с пульта или телефон если есть ик-порт.(можно демонтировать при необходимости) В зале проведена проводка под домашний кинотеатр в стенах. В коридоре установлен щиток с автоматами, которые позволяют отключать отдельно освещение в каждой комнате, розетки, кондиционер, титан в санузле, вытяжку с духовым шкафом на кухне. Новая входная дверь. На каждом радиаторе установлена термоголовка которая позволяет выставить комфортную температуру зимой в квартире или вообще отключить радиатор. Новые пластиковые окна во всей квартире. В спальне собран под заказ шкаф, в котором помещается очень много вещей. Двери с доводчиками. Во всей квартире новый ламинат. Кухонный гарнитур сделан под заказ, столешница премиум класса, фурнитура BLUM. В зале установлена закладная в стене чтобы повесить телевизор и подведены все необходимые точки (интернет, розетки, ТВ точка). В спальне так же выведены все необходимые выходы на стене для телевизора. Район с очень развитой инфраструктурой: школы на любой вкус, детские сады, магазины, торговый центр, много транспортных маршрутов, до центра 20 минут пешком. Квартира не имеет обременений, один взрослый собственник. Просмотры по договоренности. ***Гарантийный сертификат «Защита собственности» по данному объекту в подарок***
    размещено: 21.11.2025 , обновлено: 4.12.2025

    2-к квартира, Серафимы Дерябиной, 51

    • 42.9 м2
    • 9/9 этаж
    • Состояние: хорошее
    4 600 000 ₽ (107200 ₽/м2)
    В пpодaже 2-x кoмнaтная квартирa на Югo-западе. Kвapтирa pacпoлoжeна на 9 этажe в 9 -ти этaжнoм доме. Квартиpa нe угловaяTpебуeт рeмонтa. Плaстикoвые oкнa. Пoлулоджия зaстекленa плaстикoвыми cтеклопaкетaми.В кваpтиpе всегдa теплo. Стoяки заменены во всем доме. Стоят счетчики на воду и газ.Чистый подъезд.Дом расположен в шаговой доступности поликлиника №6, школы, детские садики, магазины, остановки общественного транспорта.Квартира юридически чистая без обременений.Покажу в удобное для вас время. ID объекта в нашей базе: 9237
    размещено: 21.11.2025 , обновлено: 5.12.2025

    2-к квартира, Серафимы Дерябиной, 51

    • 43 м2
    • 4/9 этаж
    • Состояние: удовлетворительное
    4 500 000 ₽ (104700 ₽/м2)
    ПРИНЯТ АВАНС!!! В продаже 2-х комнатная квартира на Юго-западе. Квартира расположена на 4 этаже в 9-ти этажном доме. Квартира не угловаяТребует ремонта. Пластиковые окна в маленькой комнате и кухне. Полу лоджия застеклена пластиковыми стекло пакетами.В квартире всегда тепло. Стояки заменены во всем доме. Стоят счетчики на воду и газ.Чистый подъезд.Дом расположен в шаговой доступности поликлиника №6, школы, детские садики, магазины, остановки общественного транспорта.Квартира юридически чистая без обременений.Покажу в удобное для вас время.ТОРГА НЕТ!!! ID объекта в нашей базе: 12438
    размещено: 14.11.2025 , обновлено: 7.12.2025

    2-к квартира, Волгоградская, 41

    • 36.6 м2
    • 7/9 этаж
    • Состояние: хорошее
    4 400 000 ₽ (120200 ₽/м2)
    Приезжая в югозападный район города можно отметить простор: на улицах хватает места зеленым аллеям и паркам со скверами и аллеями (их здесь 6). От одного дома, до другого столько места, что детские сады и школы между ними тонут в массиве взрослых деревьев. Это можно заметить на фотографиях передающих вид из окна.Плотность застройки взята с такими нормами, когда архитекторы еще не стремились выжать все до последнего квадратного метра земли, а действовали человеко-ориентированно. Большинство ритейла располагается на первых этажах зданий, а не в хаотичных киосках, портящих вид города.Поскольку это район граничащий с центром города - все инфраструктурные блага в максимальном доступе. В пешей доступности сам центр города (30 минут) и метро (20 минут).Из особенностей квартиры можно отметить низкие подоконники. К этому приему прибегают для того, чтобы восприятие человека не отрывалось от земли, будучи на высоких этажах. Окна большие. Это характеризует квартиру как видовую. С красивыми закатами каждый день.Адрес прикреплен к школам 109, 140, 159, детскому саду 156. К поликлинике №4 на серафимы дерябиной 34д.Из ближайшего запланированного кап ремонта отмечена замена лифтов.Квартира освобождена. Обременений нет. Быстрый выход на сделку. Соседи тихие. Квартира находилась во владении одной семьи. На безопасные счета ФСБ деньги перечислять не планируем. Планируем покупать жилье взамен в Пионерском районе. Присутствие прямых родственников на сделке можем обеспечить.Если у вас еще не продана ваша недвижимость, позвоните и предложите ее нам, возможно у нас есть на нее покупатель. ID объекта в нашей базе: 26064
    размещено: 10.11.2025 , обновлено: 25.11.2025

    2-к квартира, Гурзуфская, 26

    • 41.8 м2
    • 3/9 этаж
    • Состояние: хорошее
    5 500 000 ₽ (131600 ₽/м2)
    Продаётся уютная 2‑комнатная квартира Представьте себе дом, где всё продумано для комфортной жизни: светлые комнаты, удобная планировка и отличная локация. Именно такая квартира ждёт своих новых хозяев! Коротко о главном: Этаж: 3‑й (оптимальная высота — нет шума с улицы и не высоко подниматься). Дом: надёжный кирпичный. Состояние: без ремонта, застеклённый балкон. Почему это место станет вашим любимым домом? О комфорте локации: До метро — несколько минут пешком. Рядом ТЦ «Гринвич» и удобные транспортные развязки — куда бы вы ни направлялись, дорога будет лёгкой. Всё под рукой: магазины, школы, детские сады и поликлиники — жизнь без лишних хлопот. О квартире: Две просторные изолированные комнаты, наполненные светом. Удобная кухня — место, где будет приятно собираться всей семьёй. Окна выходят во двор (тихо и уютно). Просторная лоджия — можно обустроить зону отдыха или использовать для хранения. Вместительная гардеробная — порядок в вещах без усилий. Застеклённый балкон — дополнительное пространство для ваших идей. Приятные бонусы: Часть мебели и техники остаётся по договорённости — заезжайте и живите с комфортом сразу после сделки. Никаких обременений — чистая юридическая история. Готовы оперативно выйти на сделку. Мы позаботимся о вашем удобстве: Поможем с одобрением ипотеки, даже если у вас нет гражданства РФ. Приходите на просмотр — влюбитесь в эту квартиру с первого взгляда! Звоните, чтобы договориться о встрече. Ваш будущий дом ждёт вас! Не задано ID объекта в нашей базе: 9151
    размещено: 07.11.2025 , обновлено: 13.12.2025

    2-к квартира, Шаумяна, 94

    • 41.7 м2
    • 5/5 этаж
    • Состояние: хорошее
    5 750 000 ₽ (137900 ₽/м2)
    Продается уютная 2-комнатная квартира, ЮЗР — Всё рядом! Парк, ТЦ, больница, транспорт. Один собственник! Нашёл вариант, где есть всё для комфортной жизни? Вот он! Семейная «двушка» в самом сердце Юго-Западного района. Квартира с просторными комнатами, готова к заселению. Мебель можем оставить — обсуждаем. Жить здесь — это удобно каждый день:✔ Взял и пошёл: Прямо через дорогу — ТЦ GoodMart, аптеки, ПВЗ, магазины.✔ Спокойствие: Рядом Городская больница №40.✔ Детям: сады и школы в округе.✔ На природу за 5 минут: Уютный сквер Тертеряна и большой парк 50-летия ВЛКСМ.✔ Не зависеть от машины: Отличная транспортная доступность! Уедешь куда угодно. Юридическая чистота: Один хозяин, нет обременений. Сделка — быстро и прозрачно. ⭐ Просторная площадь позволит воплотить любые интерьерные решения и создать идеальный дом мечты для вашей семьи.Приглашаем ознакомиться с квартирой лично и убедиться в её преимуществах. Станьте владельцем прекрасной квартиры в привлекательном районе нашего города! К оплате принимает все возможные сертификаты, включая мат.капитал и военную ипотеку.Звоните, договоримся!!! Покажем в удобное для вас время. ID объекта в нашей базе: 18074
    размещено: 29.10.2025 , обновлено: 14.12.2025

    2-к квартира, Белореченская, 24/3

    • 44.5 м2
    • 9/9 этаж
    • Состояние: идеальное
    5 720 000 ₽ (128500 ₽/м2)
    Хотите квартиру в КИРПИЧНОМ ДОМЕ?!! Продается чудесная квартира 44,5 м2 с большой теплой лоджией. РАЙОН: Юго-Запад (ориентир Шаумяна- Белореченская). ДВОР: тихий, зеленый, с индивидуальными парковочными местами, детская площадка благоустроенная, соседний дом - Библиотека, Стоматология. ДОМ: кирпичный, что сказывается на теплоизоляции, учитывая наши климатические условия, на шумоизоляции, что очень немаловажно для тихой, спокойной жизни, в отличие от многочисленных блочных новостроек. КВАРТИРА: В ней воплощено умное планировочное решение, спальня 11,4 кв.м.. далее большая комната (15,9 м2) с выходом на лоджию. В квартире выполнен евроремонт: заливка полов в кухне, коридоре, санузле. В комнатах ламинат, остекление лоджии, пластиковые стеклопакеты во всей квартире, новые радиаторы отопления, поменяны стояки во всем доме. Выровнены стены, заменена электрика по всей квартире на медную, дом в зеленом дворе, красивый вид из окон. Ванная кафель, остается водонагреватель — Electrolux, на кухне остается кухонный гарнитур с плитой Hansa. В коридоре встроенный шкаф купе. В подъезде также проведен ремонт. Новый лифт. Идет до 9-го этажа. Есть технический этаж. В подвале есть своя кладовая. ИНФРАСТУКТУРА: Район с давно сформировавшейся структурой, рядом образовательные учреждения- в шаговой доступности Университет физкультуры, Академия гимнастики, Училище олимпийского резерва, бассейн, во дворе Гимназия 116 ,садики, культурные и развлекательные организации, ТК Буревестник. А также прекрасный парк 50 лет ВЛКСМ. ЮРИДИЧЕСКАЯ ЧИСТОТА: Квартира без обременений, в собственности. Собственник один, владение с 2013 года. Чистая продажа.
    размещено: 03.10.2025 , обновлено: 12.12.2025

Новостройки Екатеринбург, мкр-н. Юго-Западный

Приоритет

Увеличивает просмотры в 3 раза

Ваше объявление показывается в списке выше обычных объявлений. подключить