Top.Mail.Ru
На Метре реклама - только нормальная. Никакого шок-контента.
Помогайте независимому ресурсу, как он помогает вам. Удачи!
Средняя цена м² · Новостройки
177 600 ₽/м²
↑ 7,44% за 12 мес.
Средняя цена м² · Вторичка
141 611 ₽/м²
↑ 11,2% за 12 мес.
Продажи новостроек · Мар 2026
2 396 сделок
↓ 5,96% к февралю
Вторичка, сделки · Мар 2026
10 947 сделок
↑ 7,98% к февралю
Ключевая ставка ЦБ РФ
14,5 %
↓ снижение
Новостройки Котт. посёлки Объявления Динамика цен и сделок

Продажа квартиры: Екатеринбург, ул. Анны Бычковой, 20 (Синие Камни)

  • опубликовано 5.05.2023 , обновлено 27.04.2026
  • 28
Кадастровый номер:66
Рынок:вторичный
Срок сдачи: 1988 года
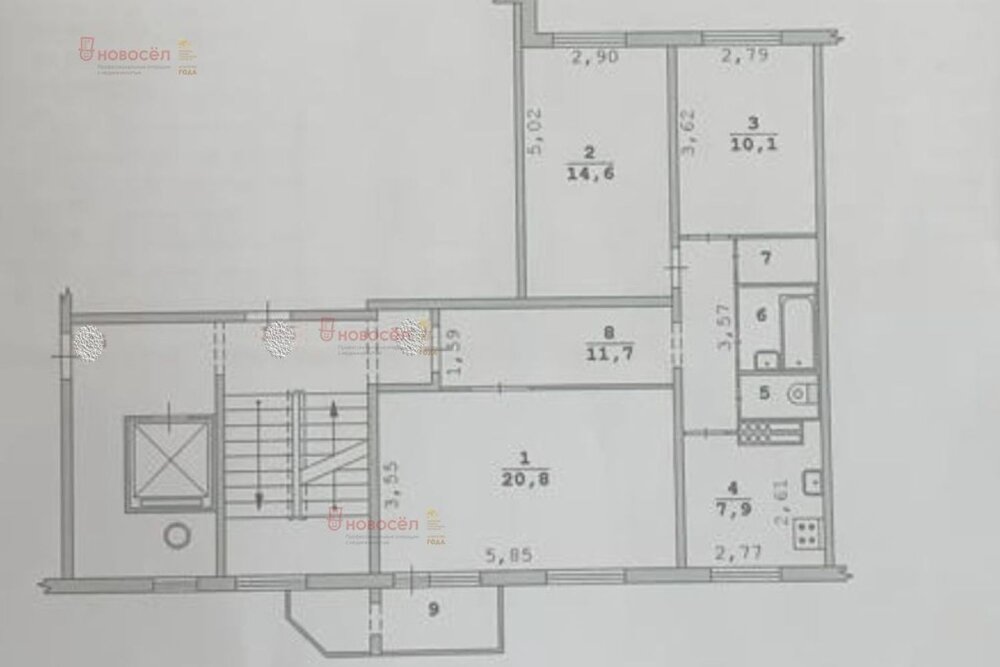
Количество комнат:3
Общая площадь:70 м2
Жилая площадь:46 м2
Площадь кухни:8 м2
Этаж/Этажность дома:6 / 9
Санузел:раздельный
Отделка:евроремонт
Год постройки:1988
Цена:
5 850 000
Объявление снято с публикации
Коммунальные платежи:оплачиваются отдельно
Ипотека:возможна

Объект № 171805. Продам 3-комнатную квартиру в районе Синие Камни. В квартире только что сделан качественный ремонт, новые коммуникации.
Есть кухонный гарнитур, Вам осталось только расставить мебель и можно заезжать.
Документы готовы к сделке, один собственник совершеннолетний.
Показ в удобное время по предварительной договорённости. ***Гарантийный сертификат «Защита собственности» по данному объекту в подарок***

Объявление снято с публикации

Ипотечный калькулятор

лет
%
Сумма кредита
5850000 ₽
Платеж
22 540 ₽

Актуальные предложения в этом доме

  • 3-к квартира, Анны Бычковой, 20

    • 69.1 м2
    • 1/7 этаж
    • Состояние:
    7 650 000 ₽ (110700 ₽/м2)
    В связи с переездом, ждёт новых собственников, просторная 3х-комнатная квартира, общей площадью 69,1 кв.м. по адресу: ул. Анны Бычковой д. 20 , в районе Синие Камни. Предлагаем вам не просто квартиру, а пространство с душой и прекрасной энергетикой. Это не просто метры, но и максимально удобная и функциональная планировка. Просторная кухня-гостиная 20,7 кв.м., две изолированные комнаты 14,6 кв.м и 12,5 кв.м., где можно организовать спальню, кабинет или детскую. Необычное дизайнерское решение – ванная комната с окном. В 2021 году сделан капитальный ремонт, с использованием качественных материалов. Вариант ЗАЕЖАЙ и ЖИВИ, для тех, кто не планирует вкладывать дополнительные средства на ремонт. Высокий первый этаж, комфортная температура в любое время года. Окна выходят на две стороны света, достаточно света и воздуха. При отсутствии лоджии, для новых собственник предусмотрен БОНУС в виде дополнительного и единоличного использования, где можно хранить велосипед, коляску, санки, сноуборд и колёса вашего автомобиля. Зелёный ухоженный двор в летний период. Всегда найдётся место для парковки вашего автомобиля. Вся развитая инфраструктура района в пешей доступности – детские сады, общеобразовательные и медицинские учреждения, магазины, остановка общественного транспорта – автобусы, ( добавлен новый маршрут до метро Ботаническая - 20 мин). ТРК КомсоМОЛЛ , где открылись гигантские термы «Баденлэнд».К концу 2026 года планируется завершение строительства одной из самых масштабных дорожных развязок города — в районе концерна «Калина». - Гимназия №210 «Корифей» - СОШ №93, СОШ № 4 - Детский сад №62, Детский сад №302 «Жемчужинка» - Екатеринбургская детская школа искусств №1 - ДЮСШ Старт 1 взрослый собственник. Рассмотрим любую форму оплаты. Записывайтесь на просмотры. ID объекта в нашей базе: 10103
    размещено: 27.04.2026

История предложений в этом доме

объявление снято с публикации в продаже комнат площадь этаж цена,
Екатеринбург, ул. Анны Бычковой, 20 (Синие Камни) - фото квартиры 6 мая 2023 90 дн. 3 70 6/9 5 790 000
Екатеринбург, ул. Анны Бычковой, 20 (Синие Камни) - фото квартиры 7 октября 2022 90 дн. 3 77.3 4/9 5 450 000
Екатеринбург, ул. Анны Бычковой, 20 (Синие Камни) - фото квартиры 25 мая 2022 90 дн. 2 50.6 3/9 3 500 000
Екатеринбург, ул. Анны Бычковой, 20 (Синие Камни) - фото квартиры 23 августа 2022 90 дн. 3 77 1/9 4 750 000
Екатеринбург, ул. Анны Бычковой, 20 (Синие Камни) - фото квартиры 24 марта 2020 90 дн. 3 77 1/9 3 200 000
Екатеринбург, ул. Анны Бычковой, 20 (Синие Камни) - фото квартиры 30 мая 2020 90 дн. 3 77 4/7 4 190 000
Екатеринбург, ул. Анны Бычковой, 20 (Синие Камни) - фото квартиры 10 декабря 2019 90 дн. 2 50 3/9 3 000 000
17 мая 2017 89 дн. 3 78 3/9 3 960 000

Похожие предложения о продаже квартир в Екатеринбурге (Синие Камни)

  • 3-к квартира, Анны Бычковой, 10

    • 70.6 м2
    • 9/9 этаж
    • Состояние: удовлетворительное
    5 500 000 ₽ (77900 ₽/м2)
    Продам просторную 3х комнатную квартиру на 9 этаже, с прекрасным видом на город! Во дворе находится Гимназия №210 (Корифей), через дорогу ТРЦ КомсоМолл. В квартире 2 совершеннолетних собственника. Требуется ремонт. ID объекта в нашей базе: 25860
    размещено: 08.04.2026 , обновлено: 24.04.2026
  • 3-к квартира, Хрустальная, 37

    • 58.2 м2
    • 2/5 этаж
    • Состояние: удовлетворительное
    5 500 000 ₽ (94500 ₽/м2)
    Продается просторная трехкомнатная квартира в районе с развитой инфраструктурой по адресу ул. Хрустальная, 37. Квартира очень теплая и светлая: окна выходят на солнечную сторону, в комнатах всегда хорошее естественное освещение.Планировка удобная: комнаты изолированные, кухня, санузел раздельный. Квартира требует косметического ремонта, что позволит новому владельцу сделать дизайн на свой вкус.Отличное расположение: рядом с домом находятся детский сад, школа, продуктовые магазины и остановки общественного транспорта. Выезд на основные магистрали удобный. Все необходимое для комфортной жизни — в шаговой доступности! ID объекта в нашей базе: 14517
    размещено: 19.03.2026 , обновлено: 20.04.2026
  • 3-к квартира, Сергея Есенина, 12

    • 63 м2
    • 8/9 этаж
    • Состояние: хорошее
    6 500 000 ₽ (103200 ₽/м2)
    Есть возможность купить квартиру в ипотеку под 12.25%Продаётся уютная трехкомнатная квартира с ремонтом, квартира готова к проживанию. Три изолированных комнаты, раздельный сан узел, газ. Из окон вид во двор, есть детская и спортивная площадки. Рядом с домом расположены необходимые объекты инфраструктуры: школа, детский сад «Жемчужинка», детская поликлиника №13, торговый центр, парк и фитнес-клуб, благодаря чему вся необходимая инфраструктура находится под рукой. Срочная продажа, ТОРГ!!!!! ID объекта в нашей базе: 18369
    размещено: 29.01.2026 , обновлено: 27.04.2026
  • 3-к квартира, Хрустальная, 31

    • 71 м2
    • 7/7 этаж
    • Состояние: удовлетворительное
    6 700 000 ₽ (94400 ₽/м2)
    Продам 3‑комнатную квартиру . Светлая, видовая квартира, готова к дальнейшему ремонту — отличная база для комфортного жилья.Основные преимущества⦁ Солнечный свет в квартире весь день: восходы в спальне, детской и кухне; закаты в гостиной. Лучшие виды на закаты и салюты.⦁ Тихий зелёный двор, две квартиры на этаже, адекватные соседи.⦁ Лифт недавно заменён (до 6 этажа), подъезд закрыт для посторонних; убраны лестницы на чердак и лифтовую.⦁ Два балкона, можно утеплить и сделать тёплыми зоны.⦁ Кладовка (есть возможность увеличить ванную).⦁ Убрана ненесущая стена между гостиной и коридором для сквозного света; убрана антресоль над кухней.Инженерия и состояние⦁ Современные электрические счётчики.⦁ Полная замена подающей и обратной трубы в ванной и туалете (металл → пластик) — стояк можно полностью перекрывать, не ожидая капремонта дома.⦁ Полностью заменены трубы отопления по всей квартире, установлены биметаллические радиаторы; на кухне убрана петля отопления вокруг окна.⦁ Газовая труба заглушена и согласована с газовой службой — при проектировании кухни можно вывести под гарнитур (этаж последний).⦁ Две вентиляции на кухне, одна подготовлена под вытяжку.⦁ В двух комнатах старый паркет заменён на пенополистирол‑бетон; в остальных проведена подготовка под заливку пола; в спальне выполнена шумоизоляция.⦁ Два окна (детская, спальня) — пятикамерный профиль Rehau с итальянской фурнитурой и скрытыми петлями; остальные окна — пластиковые с трёхкамерным пакетом.⦁ Новая сейф‑дверь.Инфраструктура⦁ По прописке — гимназия «Корифей», в районе 2 детских сада, детская и взрослая поликлиники.⦁ Магазины у дома: Монетка, Пятёрочка, Кировский, Магнит; пункты выдачи Ozon, Wildberries, Яндекс.⦁ Близко остановки: городская электричка, автобусы 54, 054, 76, 71; в шаговой доступности паркинги и гаражи.⦁ В районе строится термальный комплекс «Баден‑Баден», скоро завершат развязку на Калине — улучшение транспортной доступности.Юридическая информация⦁ Два взрослых собственника, долгов по коммуналке нет, готовы к быстрой сделке.⦁ Продажа в связи с переездом в другой город.Готовы организовать показ и ответить на вопросы . ID объекта в нашей базе: 4538
    размещено: 14.11.2025 , обновлено: 25.04.2026
  • 3-к квартира, Есенина, 4

    • 72 м2
    • 1/16 этаж
    • Состояние: хорошее
    6 600 000 ₽ (91700 ₽/м2)
    Объект № 174305. Срочно продается интересный вариант классной квартиры в самом центре мкр. Синие Камни! Квартира без обременений и долгов, можно хоть завтра на сделку! С положительной энергетикой, уютная, теплая и светлая. Окна выходят обе стороны. Квартира очень (!) просторная: кухня 9 кв.м., комнаты 19 и 15 кв.м,10кв.м. огромный коридор, кладовка! Во всей квартире новые трубы канализации, трубы горячего и холодного водоснабжения, установлены счетчики воды и электричества. Отличный вариант для переезда семьи с детьми из тесной квартиры. Косметический ремонт, все сделано с душой. Заезжай и живи, для жизни есть все! Замечательное место - все рядом: остановки общественного транспорта, торговые центры, магазины, школы, детские садики. Документы к продаже готовы полностью. Ипотеку приветствуем! Чистая продажа - не обмен, ключи на сделке. ***Гарантийный сертификат «Защита собственности» по данному объекту в подарок***
    размещено: 26.07.2023 , обновлено: 22.04.2026

Приоритет

Увеличивает просмотры в 3 раза

Ваше объявление показывается в списке выше обычных объявлений. подключить