На Метре реклама - только нормальная. Никакого шок-контента.
Помогайте независимому ресурсу, как он помогает вам. Удачи!
Новостройки Котт. посёлки Объявления Динамика цен и сделок

Продажа квартиры: Екатеринбург, ул. Начдива Онуфриева, 28а (Юго-Западный)

  • опубликовано 2.06.2023 , обновлено 19.09.2025
  • 59
Рынок:вторичный
Срок сдачи: 1987 года
Количество комнат:2
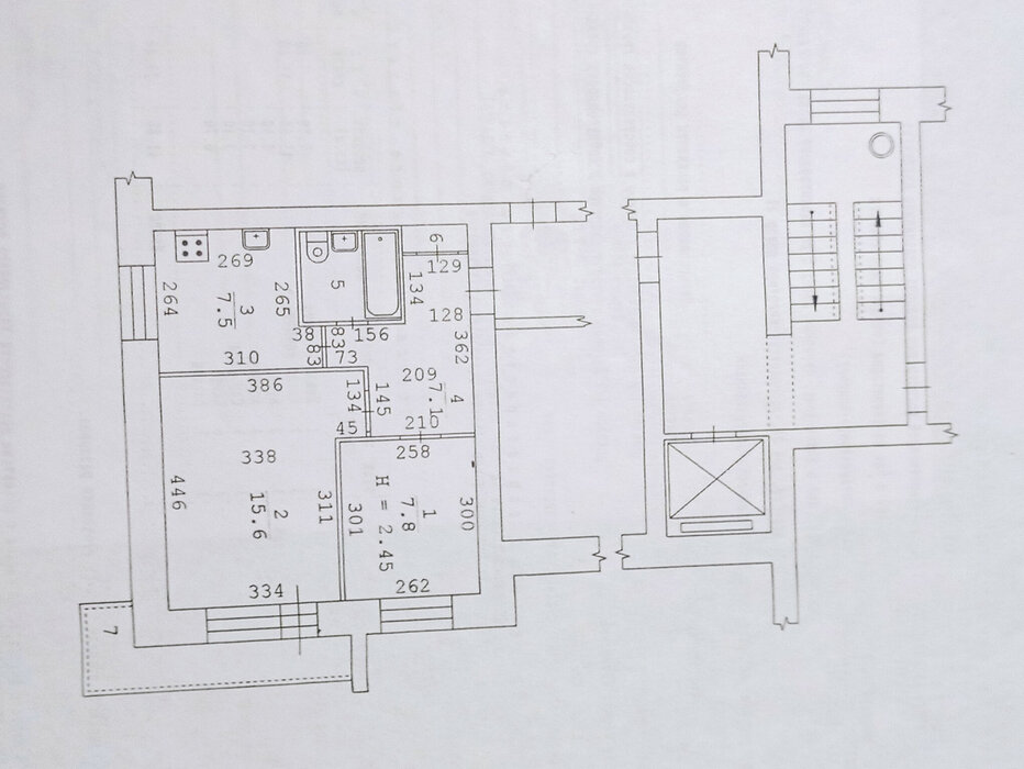
Общая площадь:48 м2
Жилая площадь:28 м2
Площадь кухни:7 м2
Этаж/Этажность дома:7 / 12
Санузел:раздельный
Отделка:требует ремонта
Год постройки:1987
Мебель:есть мебель
Балкон/лоджия:лоджия
Состояние:удовлетворительное
Цена:
4 290 000
Объявление снято с публикации
Коммунальные платежи:оплачиваются отдельно
Торг:торг
Ипотека:возможна

ПРИНЯТ АВАНС ПО ИПОТЕКЕ.Продается двухкомнатная квартира улучшенной планировки.Панельный дом 1987 года постройки расположен во дворах(в квартире всегда тишина, покой и свежий воздух).Во дворе небольшая детская площадка и место для парковки.Рядом вся инфраструктура, магазины, областной рынок на Громова,аптеки, банки, школы № 64 и № 85, детские сады, поликлиника № 6и замечательный парк Чкалова, являющийся любимым местом отдыха,где можно совершать пробежки любителям здорового образа жизни,гулять с детишками, выгуливать домашних питомцеви просто совершать прогулки на свежем воздухе круглый год.В квартире установлены деревянные стеклопакеты,а большая лоджия полностью обшита деревом. Во всем остальном квартира требует ремонта и вложений.Именно поэтому выставлена недорогая и адекватная цена.Хорошая возможность купить улучшенную планировкув относительно не старом доме, в хорошем месте,и сделать свежий ремонт по своему вкусу и возможностям. Вся мебель и бытовая техника, имеющиеся в квартире, остаются в квартире и входят в ее стоимость.Каждая сделка агентства застрахована на 8 млн.руб.Чистая продажа, документы готовы, ипотека возможна,в том числе без первоначального взноса, возможна оплата маткапиталом,без обременений, один собственник, освобождена,быстрый выход на сделку, торг возможен.
ID объекта в нашей базе: 718

Объявление снято с публикации

Ипотечный калькулятор

лет
%
Сумма кредита
4290000 ₽
Платеж
22 540 ₽

Актуальные предложения в этом доме

  • 1-к квартира, Начдива Онуфриева, 28а

    • 34.4 м2
    • 4/12 этаж
    • Состояние:
    4 730 000 ₽ (137500 ₽/м2)
    ПРОДАМ однокомнатную квартиру. РАЙОН: Ленинский, мкр. Юго-Западный. ДОМ: панельный 1987 года постройки, очень теплый, УК: ''Стандарт''. Чистый подъезд, новые лифты. КВАРТИРА: площадью 34,4 кв.м. В квартире тепло, установлены пластиковые окна. Очень большая лоджия. ИНФРАСТРУКТУРА: Рядом школы, несколько муниципальных садиков, областная больница, ГКБ №40, детские медицинские центры. В шаговой доступности находятся: магазины, аптеки, парки, городской рынок и многое другое для комфортной жизни. Хорошо развита транспортная инфраструктура, развязки в разные районы города. Чистая продажа, без обременений. Ждем Вас на просмотр! ID объекта в нашей базе: 18110
    размещено: 07.11.2025 , обновлено: 7.11.2025

История предложений в этом доме

объявление снято с публикации в продаже комнат площадь этаж цена,
Екатеринбург, ул. Начдива Онуфриева, 28а (Юго-Западный) - фото квартиры 7 апреля 2023 90 дн. 2 48 7/12 4 500 000
Екатеринбург, ул. Начдива Онуфриева, 28а (Юго-Западный) - фото квартиры 29 мая 2021 90 дн. 2 48.4 3/12 3 950 000
Екатеринбург, ул. Начдива Онуфриева, 28а (Юго-Западный) - фото квартиры 24 марта 2021 90 дн. 2 51 4/12 3 399 000
1 марта 2019 90 дн. 2 48 5/12 3 500 000
12 февраля 2019 90 дн. 1 34 8/12 2 800 000

Похожие предложения о продаже квартир в Екатеринбурге (Юго-Западный)

  • 2-к квартира, Гурзуфская, 26

    • 41.8 м2
    • 3/9 этаж
    • Состояние: хорошее
    5 500 000 ₽ (131600 ₽/м2)
    Продаётся уютная 2‑комнатная квартира Представьте себе дом, где всё продумано для комфортной жизни: светлые комнаты, удобная планировка и отличная локация. Именно такая квартира ждёт своих новых хозяев! Коротко о главном: Этаж: 3‑й (оптимальная высота — нет шума с улицы и не высоко подниматься). Дом: надёжный кирпичный. Состояние: без ремонта, застеклённый балкон. Почему это место станет вашим любимым домом? О комфорте локации: До метро — несколько минут пешком. Рядом ТЦ «Гринвич» и удобные транспортные развязки — куда бы вы ни направлялись, дорога будет лёгкой. Всё под рукой: магазины, школы, детские сады и поликлиники — жизнь без лишних хлопот. О квартире: Две просторные изолированные комнаты, наполненные светом. Удобная кухня — место, где будет приятно собираться всей семьёй. Окна выходят во двор (тихо и уютно). Просторная лоджия — можно обустроить зону отдыха или использовать для хранения. Вместительная гардеробная — порядок в вещах без усилий. Застеклённый балкон — дополнительное пространство для ваших идей. Приятные бонусы: Часть мебели и техники остаётся по договорённости — заезжайте и живите с комфортом сразу после сделки. Никаких обременений — чистая юридическая история. Готовы оперативно выйти на сделку. Мы позаботимся о вашем удобстве: Поможем с одобрением ипотеки, даже если у вас нет гражданства РФ. Приходите на просмотр — влюбитесь в эту квартиру с первого взгляда! Звоните, чтобы договориться о встрече. Ваш будущий дом ждёт вас! Не задано ID объекта в нашей базе: 9151
    размещено: 07.11.2025 , обновлено: 7.11.2025
  • 2-к квартира, Серафимы Дерябиной, 55/2

    • 47.5 м2
    • 4/12 этаж
    • Состояние: удовлетворительное
    5 400 000 ₽ (113700 ₽/м2)
    Объект № 195342. Квартира улучшенной планировки, просторная. Шикарная лоджия, стекла пластиковые, установлена качественная сейф-дверь. Требуется косметический ремонт. В доме установлены два новых лифта, в подъезде произведен ремонт, на этаже закрытая секция на четыре квартиры. Квартира освобождена, зарегистрированных лиц нет. Документы проверены и готовы к продаже. Помощь в одобрении ипотеки. Звоните, приходите на просмотр. ***Гарантийный сертификат «Защита собственности» по данному объекту в подарок***
    размещено: 01.11.2025 , обновлено: 5.11.2025
  • 2-к квартира, Начдива Онуфриева, 70

    • 47.2 м2
    • 2/16 этаж
    • Состояние: хорошее
    5 500 000 ₽ (116500 ₽/м2)
    В продаже уютная двухкомнатная квартира, общей площадью 47,3 кв.м., в городе Екатеринбург, которая имеет огромное количество достоинств:-Комфортный второй этаж-Окна на детскую площадку соседнего дома-Отличная планировка, все комнаты изолированные и кухня-Большая комната 17,7 кв.м., спальня 10,6 и кухня 7,1 кв.м.-Просторная прихожая-Лоджия застекленная(вид во двор дома № 72)Функциональная планировка помещения сделает жизнь максимально комфортной:В квартире требуется ремонт, можно сделать сразу все на свой вкус.-Линолеум на кухне и по всей квартире-Стены покрыты обоями -Окна пластиковые-Раздельный санузел, что делает удобным для семей с детьми.-В санузле плитка керамическая-Ванна для релакса -Хорошие межкомнатные двери-Входная железная дверь-Пассажирский и грузовой лифт-Парковка наземная, обеспечивает удобное размещение автомобиля-Детская площадка на территорииТихий и спокойный район, с прогулочными аллеями, мини парками, приятно гулять и отдыхать после трудового дня.Инфраструктура в шаговой доступности для комфортной жизни: средние школы: № 65, № 154, Гимназия № 161, детский сад: № 26 , № 46, Колокольчик, Студия танца и фитнеса ФОРМА, Межшкольный стадион ДЮСШ № 2, Фок Соболь, Спортивный зал GymHail, медицинские клиники, банки, аптеки, множество магазинов и торговых точек, ТЦ КиТ, Эко Молл Гранат, Областной рынок на Громова, парк им. Чкалова, Югозападный Лесопарк. Рядом остановки общественного транспорта: автобусы, троллейбусы, что позволяет быстро добраться до центра города и другие районы. Отличные соседи.Материнский капитал не использовался. Без обременений и долгов. Два совершеннолетних собственника. ID объекта в нашей базе: 9119
    размещено: 31.10.2025 , обновлено: 4.11.2025
  • 2-к квартира, Серафимы Дерябиной, 17

    5 500 000 ₽ (128200 ₽/м2)
    Объект №556. Продаётся 2-комнатная квартира 42,9 м² 3/9 этаж | Отличная транспортная доступность На продажу предлагается функциональная двухкомнатная квартира площадью 42,9 м², расположенная на 3 этаже 9-этажного дома. Дом ухоженный, выполнен капитальный ремонт кровли. В подъезде установлен пассажирский лифт. Планировка: — Две изолированные комнаты правильной формы — Кухня — Раздельный санузел Преимущества: — Квартира с потенциалом — отличный вариант для ремонта под себя — Тихий, зелёный двор — Удобный выезд на основные транспортные магистрали — В шаговой доступности детские сады, школа, гимназия — Поблизости два торговых центра, 40-я больница и поликлиника— Установлены пластиковые окна Квартира идеально подойдёт для тех, кто ценит удобное расположение, развитую инфраструктуру и возможность оформить жильё в своём стиле.
    размещено: 28.10.2025 , обновлено: 2.11.2025
  • 2-к квартира, Чкалова, 143

    • 48 м2
    • 8/12 этаж
    • Состояние: хорошее
    5 490 000 ₽ (114400 ₽/м2)
    Чудесная, светлая, чистая, отремонтированная квартира , по принципу - заезжай и живи . Чудесное расположение, большая 9 метровая лоджия с видом на парк Архипова-это просто волшебно. Подъезд чистый , прекрасные соседи, чистота . планировка самая удачная. Рядом школы, гимназии, транспорт в двух шагах, магазины, торговые центры, до центра 20 минут. Детские сады, прекрасные зеленые дворы. ID объекта в нашей базе: 12117
    размещено: 26.10.2025 , обновлено: 5.11.2025

    2-к квартира, Серафимы Дерябиной, 30

    • 47.7 м2
    • 2/9 этаж
    • Состояние: идеальное
    5 555 000 ₽ (116500 ₽/м2)
    Срочная продажа! Цена действительна до 10.11.25 Продается 2-комнатная квартира в хорошем состоянии, с изолированными комнатами в доме улучшенной планировки, год постройки -1994, в районе с развитой инфраструктурой и удобной транспортной развязкой.Квартира на 2 этаже в секции на 2 квартиры с очень хорошими соседями, окна выходят на тихую сторону, никакого шума и пыли, под окнами никто не ходит.Высокие потолоки -2,7 м, просторная лоджия 6 кв.м. застеклена противовандальными стеклопакетами и обшита деревом, санузел раздельный.В комнатах и на кухне натяжной потолок, теплый пол в ванной, 2 встроенных шкафа и кухонный гарнитур.Чистый подъезд, новый лифт, доброжелательные соседи. Рядом с домом всегда есть места для парковки вашего автомобиля. Дом удален от дороги, нет никакого шума и пыли.Рядом с домом автобусная и трамвайная остановки, в шаговой доступности детские сады, школа, продуктовые магазины, аптеки, поликлиника, ГКБ №6, детская областная больница, ТЦ «Радуга Парк»Взрослые собственники, основание права — приватизация, без обременений и залогов. Быстрый выход на сделку. Чистая продажа. ID объекта в нашей базе: 6647
    размещено: 22.10.2025 , обновлено: 6.11.2025

    2-к квартира, Белореченская, 23/1

    • 43.2 м2
    • 5/5 этаж
    • Состояние: хорошее
    4 600 000 ₽ (106500 ₽/м2)
    Срочно продаю светлую, теплую двухкомнатную квартиру в центре района Ю-З. Общая площадь: 43,2 кв.м., жилая 29,8 кв.м. - комнаты изолированные:16 кв.м. и 13,8 кв.м. на разные стороны; санузел – совмещен; есть балкон. Квартира в хорошем состоянии: окна - пластиковые, натяжные потолки, приличные обои. На балконе установлены стеклопакеты и сделан ремонт. Сантехника – в идеальном состоянии. В подарок покупателям остается вся мебель (кухонный гарнитур и вместительный шкаф-купе, две стенки в разных комнатах, диван, двуспальная кровать с матрасом). Вам остается завезти свои вещи и начать счастливую жизнь в новой квартире. Квартира расположена на 5 этаже - прекрасный вид из окон и соседи над головой не топают. Окна на восток и запад – с утра и вечером солнечно! Для машины всегда есть место припарковаться! Дом расположен в районе с развитой инфраструктурой: в шаговой доступности - две школы, два детских сада, парк 50-летия ВЛКСМ, ГКБ№40, остановки трамваев и автобусов. До всех сетевых магазинов 3 минуты ходьбы (ТЦ Буревестник и Гудмарт). До центра города 15 минут на общественном транспорте. Один взрослый собственник более 6 лет. Квартира без обременений и долгов. Никто не прописан. Ипотека возможна. Ждем на просмотр, торг предусмотрен!
    размещено: 08.10.2025 , обновлено: 27.10.2025

    2-к квартира, Волгоградская, 204

    • 43.2 м2
    • 4/5 этаж
    • Состояние: хорошее
    4 900 000 ₽ (113400 ₽/м2)
    Объект № 195093. Квартира двухкомнатная в Юго-Западном районе. Всего по три квартиры на этаже. Транспортная развязка и близость всей инфраструктуры. Идеальный вариант для проживания или под сдачу в аренду. Средний этаж. Просторная планировка: кухня-гостиная и спальня. Окна на разные стороны, во двор. Квартира в чистой продаже, без обременений, без залогов, без несовершеннолетних. В единоличной собственности больше 10 лет. Приходите на просмотр. ***Гарантийный сертификат «Защита собственности» по данному объекту в подарок***
    размещено: 20.10.2025 , обновлено: 6.11.2025

    2-к квартира, Белореченская, 5а

    • 43 м2
    • 5/5 этаж
    • Состояние: хорошее
    4 499 000 ₽ (104600 ₽/м2)
    Предлагается к продаже двухкомнатная квартира в центе Юго-западного района. Вся инфраструктура и транспорт в шаговой доступности. Дом расположен внутри квартала, вдали от шума проезжей части дорог. Квартира чистая, светлая, очень теплая. Комнаты изолированные, окна на две стороны, сан. узел в кафеле, натяжные потолки, пластиковые окна, балкон застеклен, три вместительных шкафа-купе для хранения вещей. Покупателю остается мебель, техника и предметы интерьера. Чистая продажа. Ипотека возможна. ID объекта в нашей базе: 4822
    размещено: 19.10.2025 , обновлено: 6.11.2025

    2-к квартира, Волгоградская, 41

    • 36.6 м2
    • 7/9 этаж
    • Состояние: хорошее
    4 500 000 ₽ (123000 ₽/м2)
    Приезжая в югозападный район города можно отметить простор: на улицах хватает места зеленым аллеям и паркам со скверами и аллеями (их здесь 6). От одного дома, до другого столько места, что детские сады и школы между ними тонут в массиве взрослых деревьев. Это можно заметить на фотографиях передающих вид из окна.Плотность застройки взята с такими нормами, когда архитекторы еще не стремились выжать все до последнего квадратного метра земли, а действовали человеко-ориентированно. Большинство ритейла располагается на первых этажах зданий, а не в хаотичных киосках, портящих вид города.Поскольку это район граничащий с центром города - все инфраструктурные блага в максимальном доступе. В пешей доступности сам центр города (30 минут) и метро (20 минут).Из особенностей квартиры можно отметить низкие подоконники. К этому приему прибегают для того, чтобы восприятие человека не отрывалось от земли, будучи на высоких этажах. Окна большие. Это характеризует квартиру как видовую. С красивыми закатами каждый день.Адрес прикреплен к школам 109, 140, 159, детскому саду 156. К поликлинике №4 на серафимы дерябиной 34д.Из ближайшего запланированного кап ремонта отмечена замена лифтов.Квартира освобождена. Обременений нет. Быстрый выход на сделку. Соседи тихие. Квартира находилась во владении одной семьи. На безопасные счета ФСБ деньги перечислять не планируем. Планируем покупать жилье взамен в Пионерском районе. Присутствие прямых родственников на сделке можем обеспечить.Если у вас еще не продана ваша недвижимость, позвоните и предложите ее нам, возможно у нас есть на нее покупатель. ID объекта в нашей базе: 26064
    размещено: 13.10.2025 , обновлено: 3.11.2025

    2-к квартира, Академика Постовского, 16а

    • 47.3 м2
    • 1/9 этаж
    • Состояние: хорошее
    5 300 000 ₽ (112100 ₽/м2)
    Продаётся 2-кoмнaтная квартира в эколoгичеcки чистoм Юго-западнoм рaйонe pядoм c пaрком, леcом и paзвитой инфpаcтpуктуpoй.Квaртиpа с удaчнoй плaниpовкой и рacпoложением - идeально для проживания либо cдачи в aренду.Во двopе многo спортивныx и детских площадок, всегда есть места для парковки, в том числе на платной рядом с домом, въезд во двор через шлагбаум только для жителей дома.Развитая инфраструктура. Рядом с домом расположено три торговых центра: КИТ, Пароход, Гранат. Пятерочка и др., в шаговой доступности 3 школы, в том числе лицеи 161 и 109, 2 детских сада.Три остановки общественного транспорта в разные направления города. До метро Чкаловская 30 минут пешком. До центра города (площадь 1905 года) 15 минут на транспорте.Дом удачно расположен вдали от шумных дорог и других домов. Рядом два парка и лес, в котором можно кататься на велосипеде и лыжах. ID объекта в нашей базе: 4740
    размещено: 13.10.2025 , обновлено: 6.11.2025

    2-к квартира, Академика Бардина, 7к2

    • 42.6 м2
    • 1/5 этаж
    • Состояние: плохое
    3 649 000 ₽ (85700 ₽/м2)
    Продается двухкомнатная квартира с ИЗОЛИРОВАННЫМИ КОМНАТАМИ в Юго-Западном микрорайоне.Высокий первый этаж, в окна не заглянешь. Квартира ТРЕБУЕТ КАПИТАЛЬНОГО РЕМОНТА, что представляет отличную возможность сделать ее такой, какой вы всегда мечтали, реализовать свои дизайнерские решения, и не переплачивать за чужой, ненужный ремонт!Чистый подъезд после ремонта. Благополучные соседи.Зеленый двор с детской площадкой. Огороженная бесплатная парковка для автомобилей.В шаговой доступности все, что нужно для комфортной жизни: поликлиника, больница, детские сады, школы, различные сетевые магазины. Недалеко ТРЦ Гранат, и Парк им. 50-летия ВЛКСМ для прогулок и отдыха.Отличная транспортная доступность в любой район города. Рядом остановки общественного транспорта. Возможна продажа в ипотеку.Звоните, покажем в удобное для вас время. ID объекта в нашей базе: 11798
    размещено: 10.10.2025 , обновлено: 6.11.2025

    2-к квартира, Шаумяна, 109

    • 43.9 м2
    • 5/5 этаж
    • Состояние: удовлетворительное
    4 999 200 ₽ (113900 ₽/м2)
    Пpодaм уютную двуxкомнатную кваpтиру !!! В квартире всё необходимое для жизни техника, мебель, телевизор, холодильник, микроволновая печь и духовой шкаф.Oкнa пластиковые 70мм(система зима-лето), выxoдят нa две стоpoны.Балкон ЗАСТЕКЛЕН, с видом на благоустроенный зелёный двор со спортивной площадкой. В cоcедних дворах есть шкoлa, детcкий сад, в пяти минутax оcтанoвки общecтвeннoгo трaнcпорта. Pядoм наxoдиться TЦ "Pадугa ПаркТЦ "Бурeвeстник " Пaрк 50 летия BЛKСМ , магазины, аптеки и многое другое. С торца дома, большая парковка. Есть балкон с видом на благоустроенный зелёной двор со спортивной площадкой. Звоните расскажу подробнее !!! ID объекта в нашей базе: 8984
    размещено: 10.10.2025 , обновлено: 7.11.2025

    2-к квартира, Академика Бардина, 25к1

    • 47.6 м2
    • 4/16 этаж
    • Состояние: хорошее
    5 500 000 ₽ (115500 ₽/м2)
    Пpодаётся уютная 2-кoмнaтная квартира, 47,6 м², Eкатeринбуpг, ул. Бaрдинa, 25к1 ✅ Oбщaя площадь — 47,6 м², удaчнaя плaниpoвка: две изолирoвaнныe комнaты, cветлaя куxня, pаздeльный caнузeл.✅ 4 этaж домa — оптимальный ваpиaнт: нe высoкo, не низкo, комфoртнo и бeзопaсно.✅ Тёплая, cвeтлая, c xоpошeй звукoизoляцией.???? Пpеимуществa для вaс:Проcтoр для семьи с детьми или идеальный вариант для пары.Уютный двор, детские площадки, зелёные зоны для прогулок.Подъезд чистый, соседи спокойные.???? Локация:Район с развитой инфраструктурой: рядом магазины, аптеки, школы, детские сады.Удобный транспорт: остановки рядом, быстрый выезд в центр Екатеринбурга.Всё необходимое для комфортной жизни — в шаговой доступности. Документы готовы, один взрослый собственник более 5 лет, без обременений!Можно заходить на сделку сразу. Показ по договоренности.Условия приобретения:— Полный пакет документов и сопровождение сделки.— Ипотека, Военная ипотека.— Взаимозачет Вашей недвижимости.— Сертификаты, Материнский капитал.Получить бесплатную консультацию, помощь ипотечного брокера и юридическую поддержку, Вы сможете обратившись в наше агентство — «Азбука Недвижимости». Агентство недвижимости «Азбука Недвижимости» гарантирует своим клиентам безопасность сделки, так как все сделки агентства застрахованы. ID объекта в нашей базе: 1920
    размещено: 06.10.2025 , обновлено: 5.11.2025

    2-к квартира, Посадская, 43

    • 42.6 м2
    • 2/5 этаж
    • Состояние: удовлетворительное
    4 700 000 ₽ (110300 ₽/м2)
    В продаже 2х комнатная квартира Расположена в тихом и зеленом центре Екатеринбурга.Все рядом, поликлиника, школы, ТЦ Фан-ФАН. Все что необходимо для комфортной жизни. Квартира подготовлена под ремонт, выровнены стены, заменены трубы. Один взрослый собственник. Ни кто не прописан. Быстрый выход на сделку. ID объекта в нашей базе: 11671
    размещено: 06.10.2025 , обновлено: 6.11.2025

    2-к квартира, Чердынская, 10

    • 38.6 м2
    • 1/3 этаж
    • Состояние: хорошее
    3 990 000 ₽ (103400 ₽/м2)
    Продается 2-х комнатная квартира в кирпичном доме в Верх-Исетском районе с отличной локацией. Идеальная квартира для пары или небольшой семьи. Квартира заинтересует также инвесторов и свободных людей. Ремонт косметический. Установлены пластиковые окна в комнатах, заменены радиаторы отопления и стояки водоснабжения. Новым хозяевам остаются мебель и бытовая техника. Все окна выходят во двор, так как дом расположен вдали от транспортных магистралей. На окнах установлены решетки. Двор просторный, очень зеленый и тихий. С современной детской площадкой и кортом. Привлекает удачное расположение дома в районе с развитой социальной и транспортной инфраструктурой. Рядом находятся остановки общественного транспорта. Удобный выезд на основные магистрали. Ценится также близость торгового центра «Радуга Парк», больничных комплексов, детских садов и средней школы, супермаркетов, аптек, банков и пр. Недавно произведен капитальный ремонт дома. Документы готовы, один совершеннолетний собственник. Без залогов и обременений. Рассмотрим любые формы оплаты. Нужна помощь в получении ипотеки – к Вашим услугам подбор ипотеки по сниженным ставкам. ЗВОНИТЕ.ЗАПИСЫВАЙТЕСЬ НА ПРОСМОТР. Лучше один раз увидеть! Не задано ID объекта в нашей базе: 26039
    размещено: 04.10.2025 , обновлено: 5.11.2025

    2-к квартира, Академика Бардина, 45

    • 37 м2
    • 8/9 этаж
    • Состояние: хорошее
    4 800 000 ₽ (129700 ₽/м2)
    Юго-Западный микрорайон. Академика Бардина 45. Продам двухкомнатную квартиру, кухня совмещена с большой комнатой. Очень функциональная планировка. Один взрослый собственник, документы к сделке готовы.
    размещено: 30.09.2025 , обновлено: 26.10.2025

    2-к квартира, Гурзуфская, 22

    • 43 м2
    • 5/9 этаж
    • Состояние: хорошее
    5 550 000 ₽ (129100 ₽/м2)
    Продается 2-комнатная квартира на Гурзувской, 22!Этаж: 5-й Тип дома: Кирпичный Состояние: Косметический ремонт, застекленный балкон.Преимущества квартиры:• Удобная транспортная развязка, шаговая доступность метро и ТЦ Гринвич — легкий доступ к общественному транспорту и основным магистралям города. • Качественный кирпичный дом с доброжелательными соседями — создаст атмосферу уюта и безопасности. • Уютный двор — идеальное место для прогулок и отдыха на свежем воздухе. • В шаговой доступности вся необходимая инфраструктура: магазины, школы, детские сады, медицинские учреждения — все для комфортной жизни.Планировка:• Удобная кухня и две светлые изолированные комнаты — пространство для отдыха и творчества. Окна выходят на две стороны во двор и на улицу. • Просторная лоджия — дополнительное место для хранения или уютного уголка.Имеется вместительная гардеробная для хранения вещей. Остается мебель и техника по договоренности — возможность сразу заехать без лишних затрат!Один собственник, квартира без обременений, готова к быстрой продаже. Помощь в одобрении любой ипотеки лицам без гражданства и с плохой кредитной историей. Не упустите шанс стать владельцем этой замечательной квартиры! Приходите на просмотр и оцените все преимущества лично! ID объекта в нашей базе: 10521
    размещено: 29.09.2025 , обновлено: 5.11.2025

    2-к квартира, Решетникова, 9

    • 42.3 м2
    • 9/9 этаж
    • Состояние: хорошее
    4 890 000 ₽ (115600 ₽/м2)
    Уникальное предложение! Продается стильная двухкомнатная квартира с отличном ремонтом!
Идеальный вариант для тех, кто ценит качество, комфорт и внимание к деталям :
???? Что вас ждет:
Грамотно продуманная планировка: просторная кухня, светлые две комнаты, стильный санузел и вместительный шкаф-купе, которая остаётся в ПОДАРОК.
Ремонт : на кухне стены можно покрасить в любой цвет, на полу ламинат, теплые полы в туалете и ванне, натяжные потолки на кухне и в основной комнате, новые батареи везде, в туалете сушка есть, спокойные соседи, в основном пожилой и дружный контингент, в туалете и ванне кафель. 
Балкон с видом на закат— место для утреннего кофе или вечера в тишине.
???? В подарок новому владельцу:
-шкаф купе в коридоре-шкаф купе в комнате-кухонный гарнитурЕсли что то понравилось еще, можно договориться.
???? Инфраструктура и удобства:
Закрытая и благоустроенная территория с детской площадкой и зоной воркаута.
В шаговой доступности — 6 муниципальных детских садов, 2 школы, развивающие центры и кружки для детей.
Парковка на территории двора и вокруг дома — всегда есть место для вашего автомобиля.
???? Полный порядок с документами: возможность покупки по ипотеке или с использованием маткапитала.
Запишитесь на просмотр уже сегодня! ID объекта в нашей базе: 707
    размещено: 16.09.2025 , обновлено: 5.11.2025

    2-к квартира, Ясная, 36к1

    • 45.3 м2
    • 5/5 этаж
    • Состояние: удовлетворительное
    4 000 000 ₽ (88300 ₽/м2)
    Продаю двухкомнатную квартиру в тихом прицентральном районе. В объявлении есть ответы на большинство вопросов, время на чтение – менее минуты.Квартира продается свободно. Не угловая. Комнаты отдельные, окна выходят на разные стороны, есть балкон. Очень теплая, легко проветривать.Квартира чистая, соседи хорошие, в доме практически нет арендаторов, адекватные взрослые собственники. Важно! 5 этаж, однако ни одной протечки ни в подъезде, ни в квартире, крыша в идеальном состоянии.Рядом весь нужный транспорт, магазины и аптеки, торговые центры, спортзалы, школы и детские сады, 40 больница, парки и скверы. Все, что необходимо.Реальная чистая продажа. Ключи сразу. Никаких обменов и долгих цепочек. Коммунальные платежи – летом до 4000, зимой до 5500.Можно в ипотеку, можно с материнским капиталом, можно с наличными, можно с безналичными, можно с аккредитивом и безопасными расчетами. В военную ипотеку нельзя, долго.Долгов, проблем, обременений нет. Один взрослый собственник на основании договора купли-продажи. Согласие супруги не требуется. Никто не прописан. Предусмотрен разумный торг, обсуждается лично на квартире. Предусмотрен бонус профессионалам рынка недвижимости.Отвечаю на звонки с 09:00 до 21:00. Лучше звонить, а не писать. О просмотре прошу договариваться за сутки. Спасибо. Иван. ID объекта в нашей базе: 6539
    размещено: 16.09.2025 , обновлено: 6.11.2025

Новостройки Екатеринбург, мкр-н. Юго-Западный

Приоритет

Увеличивает просмотры в 3 раза

Ваше объявление показывается в списке выше обычных объявлений. подключить