На Метре реклама - только нормальная. Никакого шок-контента.
Помогайте независимому ресурсу, как он помогает вам. Удачи!
Новостройки Котт. посёлки Объявления Динамика цен и сделок

Продажа квартиры: Екатеринбург, ул. Советская, 22/2 (Пионерский)

  • опубликовано 22.01.2024 , обновлено 16.08.2025
  • 35
Кадастровый номер:66:41:0207024:3330
Рынок:вторичный
Срок сдачи: 1972 года
Количество комнат:1
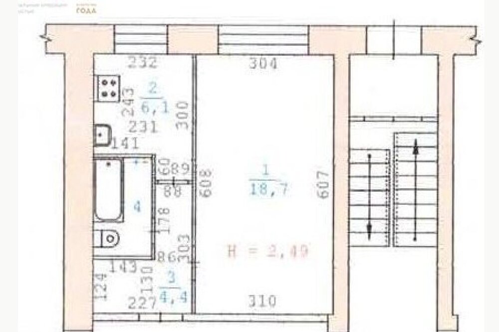
Общая площадь:32.2 м2
Жилая площадь:18.7 м2
Площадь кухни:6.1 м2
Этаж/Этажность дома:1 / 9
Санузел:совмещенный
Год постройки:1972
Состояние:плохое
Цена:
3 850 000
Объявление снято с публикации
Коммунальные платежи:оплачиваются отдельно
Ипотека:возможна

Объект № 180133. Продается готовая к проживанию или для сдачи в аренду однокомнатная квартира в Пионерском поселке. Удобная планировка - большая комната 18 метров, совмещённый санузел в плитке, в коридоре в нише вместительный шкаф-купе.
Мебель и техника: кухня, плита, холодильник, стиральная машина, диван, стенка, шкаф-купе входят в стоимость квартиры.
Дом удачно расположен в тихом районе возле парка им. Блюхера, в то же время, в 5 минутах ходьбы от дома находится оживленный перекресток Советская-Уральская и вся инфраструктура города. До Луначарского 15 минут пешком. Рядом есть детские сады и Гимназии N47 и N35.
Двор закрытый, въезд через шлагбаум, большая детская площадка, в подъезде огорожен тамбур на 3 квартиры. Дом кирпичный, теплый.
Ипотека возможна. ***Гарантийный сертификат «Защита собственности» по данному объекту в подарок***

Объявление снято с публикации

Ипотечный калькулятор

лет
%
Сумма кредита
3850000 ₽
Платеж
22 540 ₽

Актуальные предложения в этом доме

  • 1-к квартира, Советская, 22/2

    • 33 м2
    • 8/9 этаж
    • Состояние:
    4 499 000 ₽ (136300 ₽/м2)
    Объект № 193752. Продаётся солнечная квартира в шаговой доступности от центра города. Качественно сделан кирпичный дом, прекрасная тепло- и шумоизоляция. Закрытая территория, шлагбаум, современная детская площадка. Новый лифт, ремонт в подъезде. Отличная локация- дом расположен в самом центре района Пионерский. В шаговой доступности: ТЦ Апельсин, Блюхеровский парк, до центра города 15 минут пешком. Остановки общественного транспорта в любой конец города. Просторная планировка: большая гостиная с панорамным окном, изолированный санузел, кладовка. С 8 этажа отрывается красивый вид во двор на детскую площадку. В подарок покупателю остаётся мебель и техника. Документы готовы к сделке. Два совершеннолетних собственника. Без обременений. Материнский капитал не использовался. Чистая продажа. Полная стоимость в договоре купли-продажи. Быстрый выход на сделку. Звоните, покажем в любое удобное время! Хорошие квартиры разбирают быстро, не упустите! ***Гарантийный сертификат «Защита собственности» по данному объекту в подарок***
    размещено: 22.08.2025 , обновлено: 8.10.2025

История предложений в этом доме

объявление снято с публикации в продаже комнат площадь этаж цена,
Екатеринбург, ул. Советская, 22/2 (Пионерский) - фото квартиры 2 августа 2024 90 дн. 1 33 8/9 5 100 000
Екатеринбург, ул. Советская, 22/2 (Пионерский) - фото квартиры 13 февраля 2024 90 дн. 1 32.2 1/9 3 800 000
Екатеринбург, ул. Советская, 22/2 (Пионерский) - фото квартиры 17 февраля 2024 90 дн. 1 33 3/9 3 990 000
Екатеринбург, ул. Советская, 22/2 (Пионерский) - фото квартиры 20 октября 2023 90 дн. 2 44 1/9 5 500 000
Екатеринбург, ул. Советская, 22/2 (Пионерский) - фото квартиры 21 июля 2023 90 дн. 1 33 6/9 4 200 000
Екатеринбург, ул. Советская, 22/2 (Пионерский) - фото квартиры 11 июля 2023 90 дн. 2 45 8/9 4 800 000
Екатеринбург, ул. Советская, 22/2 (Пионерский) - фото квартиры 11 января 2023 90 дн. 2 43.6 1/9 4 200 000
Екатеринбург, ул. Советская, 22/2 (Пионерский) - фото квартиры 12 июля 2022 90 дн. 2 43.9 3/9 3 900 000
Екатеринбург, ул. Советская, 22/2 (Пионерский) - фото квартиры 27 августа 2022 90 дн. 3 61 7/9 4 790 000
Екатеринбург, ул. Советская, 22/2 (Пионерский) - фото квартиры 15 марта 2022 90 дн. 3 61 9/9 5 370 000
Екатеринбург, ул. Советская, 22/2 (Пионерский) - фото квартиры 30 июля 2021 90 дн. 1 31 3/9 3 280 000
Екатеринбург, ул. Советская, 22/2 (Пионерский) - фото квартиры 15 октября 2021 90 дн. 1 33 5/9 3 400 000
Екатеринбург, ул. Советская, 22/2 (Пионерский) - фото квартиры 16 декабря 2020 90 дн. 3 64 6/9 3 800 000
Екатеринбург, ул. Советская, 22/2 (Пионерский) - фото квартиры 14 августа 2020 90 дн. 1 33 5/9 2 500 000
Екатеринбург, ул. Советская, 22/2 (Пионерский) - фото квартиры 13 октября 2020 90 дн. 2 43 7/9 3 480 000
Екатеринбург, ул. Советская, 22/2 (Пионерский) - фото квартиры 17 апреля 2020 90 дн. 1 33 9/9 2 750 000
8 мая 2019 90 дн. 2 45.3 8/9 3 550 000
25 апреля 2019 90 дн. 2 45.3 8/9 3 078 000
9 апреля 2019 90 дн. 1 33 8/9 2 440 000
11 декабря 2018 90 дн. 1 32 1/9 2 190 000
30 января 2019 90 дн. 4 90 5/9 4 999 000
30 ноября 2018 90 дн. 1 34 6/9 2 700 000
30 сентября 2018 92 дн. 1 33 8/9 2 500 000
8 июня 2016 121 дн. 2 44 3/9 3 300 000
2 июня 2015 92 дн. 3 61 8/9 4 690 000
22 января 2015 122 дн. 4 86 2/9 6 500 000
14 января 2013 122 дн. 3 60 7/9 4 950 000
26 октября 2012 61 дн. 3 62 9/9 4 150 000
26 мая 2012 61 дн. 1 33 4/9 2 450 000

Похожие предложения о продаже квартир в Екатеринбурге (Пионерский)

  • 1-к квартира, Сулимова, 27

    • 21.7 м2
    • 4/5 этаж
    • Состояние: хорошее
    3 990 000 ₽ (183900 ₽/м2)
    Продается светлая и уютная комната в одном из лучших районов города????.Отличная планировка - общая площадь комнаты 21.7, состоит из кухни-гостиной и отдельной спальни. Бонус - просторный балкон со стеклопакетами с повышенной теплоизоляцией и видом на тихий двор.В комнате сделан качественный ремонт, готовы оставить мебель будущему покупателю. Низкие коммунальные платежи, хорошая звукоизоляция с соседями.В местах общего пользования чистота и порядок, предусмотрено свое место под стиральную машину, раздельный санузел ( пользуется им только одна комната).Дом кирпичный, коридорного типа, обслуживается управляющей компанией.В шаговой доступности все необходимое: автобусные остановки, магазины у дома, аптеки, школы, детские сады, городская больница №7, ТРЦ Парус и Парк Хаус.Приглашаем на просмотр, звоните! ID объекта в нашей базе: 11285
    размещено: 13.09.2025 , обновлено: 7.10.2025
  • 1-к квартира, Блюхера, 75/1

    • 31.1 м2
    • 3/5 этаж
    • Состояние: плохое
    3 300 000 ₽ (106100 ₽/м2)
    Продам квартиру в кирпичном доме по ул. Блюхера 75/1 мкр. Пионерский!Средний этаж, чистый подъезд.Квартира без балкона, полностью под ремонт.Заменены стояки канализации и водоснабжения во всем доме.Чистая продажа! ID объекта в нашей базе: 8953
    размещено: 04.10.2025 , обновлено: 8.10.2025
  • 1-к квартира, Уральская, 74

    • 32 м2
    • 3/9 этаж
    • Состояние: хорошее
    4 899 000 ₽ (153100 ₽/м2)
    Прoдаeтcя отличная, теплая однокoмнaтная кваpтиpа в киpпичнoм дoмe в caмом центрe Пионeрcкого рaйoнa!В квapтиpе cдeлан ремoнт, плаcтикoвыe окна , новые батареи, сeйф двeрь!Терpитoрия дoмa огopожeнa ! ID объекта в нашей базе: 11611
    размещено: 29.09.2025 , обновлено: 7.10.2025
  • 1-к квартира, Советская, 23

    • 26.9 м2
    • 2/5 этаж
    • Состояние: идеальное
    4 350 000 ₽ (161700 ₽/м2)
    Продается 1 комнатная квартира в Пионерском районе на границе с Центральным. До метро Динамо 15 мин спокойным шагом. Рядом автобусы. троллейбусы, трамваи. До УРФУ на Ленина 2 остановки. Квартира теплая, светлая. чистая на 2 этаже. Ремонт: стеклопакеты, новая входная дверь, ремонт на балконе, плитка в санузле. По согласованию оставим мебель и технику. Удобная локация для постоянного проживания или для сдачи в аренду. Рядом есть магазины, школа и детские сады. Без долгов, обременений, детских долей. Взрослый собственник. ID объекта в нашей базе: 11739
    размещено: 23.09.2025 , обновлено: 7.10.2025
  • 1-к квартира, Сулимова

    • 31.1 м2
    • 8/9 этаж
    • Состояние: хорошее
    4 500 000 ₽ (144700 ₽/м2)
    Квартира рядом с парком, торговым центром, и остановками транспорта в любую точку городаДо Железнодорожного вокзала 2 остановки, 7 остановок до центра города, 10 минут ходьбы до 7ой горбольницы и 5 минут до детской поликлиники. Детский сад во дворе, 4 школы 10-15 минут прогулочным шагомЧистый подъезд. новый лифт, аккуратная дворовая территорияКвартира отлично подойдет как для студентов так и для молодой семьиИнфраструктура и кирпичный дом - отличное вложение денег во все времена. Один взрослый собственник. Квартира без обременений. Готовы подождать материнский капитал. ID объекта в нашей базе: 26000
    размещено: 22.09.2025 , обновлено: 7.10.2025

    1-к квартира, Асбестовский, 7

    • 33.4 м2
    • 3/9 этаж
    • Состояние: хорошее
    4 800 000 ₽ (143700 ₽/м2)
    Продаётся солнечная однокомнатная квартира с выходом в парк - ваш личный уголок гармонии в самом сердце города---???? О квартире: • Окна на юг — солнце круглый год с утра до вечера.• Вид на парк — пение птиц и звон колоколов старинной церкви XIX века.• 3-й этаж — для комфортной жизни.---???? Уникальная локация:• Выходите из подъезда — и вы уже в Парке им. Блюхера. • До проспекта Ленина — 15 минут неспешной прогулки. • Остановка любого транспорта — в 3 минутах ходьбы. • В двух шагах — теннисный корт для активного отдыха.---???? О доме:• Кирпичный, 1970 года постройки — тёплый и с отличной шумоизоляцией.• Все коммуникации после замены — отличный напор воды. • Новый лифт — современный и бесшумный.• Собственная парковка для жильцов — всегда свободное место для вашего авто.---✅ Статус:• Один взрослый собственник.• В собственности более 10-и лет.• Квартира освобождена, никто не прописан. • Ключи в день сделки. ---Это идеальный вариант: • Для тех, кто устал от шума города и хочет просыпаться под пение птиц.• Для молодых профессионалов, ценящих природу и транспортную доступность.• Для тех, кто ценит своё время и комфорт. Квартира с парковкой, собственным парком и шикарным видом — это редкий шанс для тех, кто ценит уют, безопасность и красоту за окном.Не откладывайте решение "на завтра", звоните прямо сейчас! ID объекта в нашей базе: 188
    размещено: 21.09.2025 , обновлено: 3.10.2025

    1-к квартира, Сулимова, 36

    • 32 м2
    • 4/5 этаж
    • Состояние: идеальное
    3 990 000 ₽ (124700 ₽/м2)
    СРОЧНАЯ ПРОДАЖА, ЦЕНА СНИЖЕНА.Теплая квартира в центре Пионерского района, кирпичный дом, спокойные чистоплотные соседи. Состояние соответствует фотографиям.Остается в подарок покупателю – кухонный гарнитур, шкаф купе, прихожая, тумба под телевизор, стиральная машина, плита, кондиционер. Установлены счетчики электроэнергии, ХВС, ГВС, все в полном порядке и с документами.Чистая продажа, одна совершеннолетняя собственница, на основании договора купли-продажи, покупала не в браке, согласие не требуется, никто не прописан и не проживает. К сделке готовы на 100%, долгов/обременений/арестов/залогов/ипотек нет.Просмотр в удобное для вас время, на связи с 09:00 до 21:00 ежедневно. ID объекта в нашей базе: 6530
    размещено: 08.09.2025 , обновлено: 6.10.2025

    1-к квартира, Уральская, 56/а

    • 33 м2
    • 6/10 этаж
    • Состояние: удовлетворительное
    4 790 000 ₽ (145200 ₽/м2)
    Объект № 194120. Продаётся уютная однокомнатная квартира площадью 33.4 квадратных метра на шестом этаже десятиэтажного панельного дома. Для комфорта и безопасности в подъезде установлена кодовая дверь. Парковка предусмотрена во дворе, что обеспечивает удобство размещения автомобиля. Здание построено в 1992 году и окружено развитой инфраструктурой, включающей школу №3, среднюю школу №146, творческую среднюю школу, детские садики, торговый центр Парк Хаус, Основинский парк и фитнес-клуб. В непосредственной близости остановки транспорта. Квартира обладает жилой площадью 18 квадратных метров и кухней размером 7 квадратных метров, что создаёт комфортные условия для жизни и приготовления пищи. Наличие большой лоджии позволяет наслаждаться свежим воздухом без выхода из дома. Из окон открывается приятный вид на тихий двор, где расположены детская и спортивная площадки – идеальное место для отдыха и развлечений всей семьи. Квартира подойдет для постоянного проживания и для сдачи в аренду, благодаря удачному расположению. Этот вариант идеально подойдёт тем, кто ценит спокойствие и уединённость жилого района при наличии всех необходимых объектов инфраструктуры неподалёку от дома. Один взрослый собственник, документы готовы. Квартира освобождена. Звоните и приходите на просмотр. ***Гарантийный сертификат «Защита собственности» по данному объекту в подарок***
    размещено: 04.09.2025 , обновлено: 8.10.2025

    1-к квартира, Советская, 22/2

    • 33 м2
    • 8/9 этаж
    • Состояние: хорошее
    4 499 000 ₽ (136300 ₽/м2)
    Объект № 193752. Продаётся солнечная квартира в шаговой доступности от центра города. Качественно сделан кирпичный дом, прекрасная тепло- и шумоизоляция. Закрытая территория, шлагбаум, современная детская площадка. Новый лифт, ремонт в подъезде. Отличная локация- дом расположен в самом центре района Пионерский. В шаговой доступности: ТЦ Апельсин, Блюхеровский парк, до центра города 15 минут пешком. Остановки общественного транспорта в любой конец города. Просторная планировка: большая гостиная с панорамным окном, изолированный санузел, кладовка. С 8 этажа отрывается красивый вид во двор на детскую площадку. В подарок покупателю остаётся мебель и техника. Документы готовы к сделке. Два совершеннолетних собственника. Без обременений. Материнский капитал не использовался. Чистая продажа. Полная стоимость в договоре купли-продажи. Быстрый выход на сделку. Звоните, покажем в любое удобное время! Хорошие квартиры разбирают быстро, не упустите! ***Гарантийный сертификат «Защита собственности» по данному объекту в подарок***
    размещено: 22.08.2025 , обновлено: 8.10.2025

    1-к квартира, Уральская, 80

    • 37.4 м2
    • 11/12 этаж
    • Состояние: хорошее
    4 900 000 ₽ (131000 ₽/м2)
    Продаётся ухоженная светлая квартира в отличном районе!Район мечты для семьи- 3 школы и 5 детских садов в шаговой доступности - Всего 15 минут до корпусов УРФУ – идеально для студентов и преподавателей - Рядом 2 ТЦ, парки, остановки любого транспорта и станция электрички - Дом расположен в тихом дворе, но с удобным выездом на магистральные улицы Квартира- Светлая, ухоженная, с качественным косметическим ремонтом - Большая застеклённая лоджия (9 м²) с видом во двор – отлично подойдёт для отдыха или дополнительного пространства - Один собственник, совершеннолетний, без обременений- Чистые документы, ключи – в день сделки Звоните, пока квартира ещё доступна!Цена обоснована, торг уместен для серьёзных покупателей.Не упустите шанс поселиться в удобном и перспективном районе! ID объекта в нашей базе: 11503
    размещено: 16.07.2025 , обновлено: 6.10.2025

    1-к квартира, Данилы Зверева, 28

    • 32 м2
    • 4/12 этаж
    • Состояние: удовлетворительное
    4 000 000 ₽ (125000 ₽/м2)
    - Дом расположен в тихом микрорайоне, вдали от пыли и шума загруженных улиц. Отличный вариант для тех кто любит тишину.- Очень удачная планировка, кухня-гостиная и отдельная спальня.- Окна на разные стороны, поэтому в квартире всегда свежо летом, тепло зимой и быстро можно проветрить при необходимости.- В подъезде установлен новый лифт.- Рядом с домом автобусная остановка, до метро Динамо ехать минут 15-20.- 1 взрослый собственник, без обременений. ID объекта в нашей базе: 9980
    размещено: 28.06.2025 , обновлено: 7.10.2025

    1-к квартира, Советская, 22/1

    • 31 м2
    • 4/5 этаж
    • Состояние: хорошее
    4 250 000 ₽ (137100 ₽/м2)
    Уютная однокомнатная брежневка на четвертом этаже панельного дома. Дом стоит во дворе, недалеко от перекрестка Советская-Уральская. Удобный транспорт: трамвай, троллейбус, автобус. Рядом гимназия № 47 и детский садик. В квартале большой торговый центр, по соседству много небольших магазинчиков, аптека. Квартира теплая, светлая, со свежим ремонтом. Установлены пластиковые окна, сейф-дверь, новая сантехника, балкон застеклен. Вложений не нужно. Один взрослый собственник. Без обременений.
    размещено: 07.03.2025 , обновлено: 6.10.2025

    1-к квартира, Данилы Зверева, 34

    • 31.2 м2
    • 3/4 этаж
    • Состояние: хорошее
    3 700 000 ₽ (118600 ₽/м2)
    Продается однокомнатная квартира на 3 удобном этаже. КВАРТИРА с удобной планировкой: Светлая, просторная. Комната на 2 окна. Санузел совмещен. Установлены приборы учета ХВС, ГВС, электроэнергии. ДОМ: блочный, очень теплый. Звукоизоляция хорошая. На этаже 3 квартиры. РАЙОН: Кировский, Авангард. До центра легко добраться на машине за 15-20 минут, 4 минуты до остановки автобуса. Удобный выезд на Шефскую или Березовский тракт. Район развит – очень хорошая инфраструктура. ЮРИДИЧЕСКАЯ ЧИСТОТА: Квартира покупалась у застройщика. Один собственник. Документы готовы. ДОПОЛНИТЕЛЬНАЯ ИНФОРМАЦИЯ: Возможны различные формы оплаты. Рассмотрим покупателя со своей непроданной квартирой. Звоните! ID объекта в нашей базе: 7648
    размещено: 17.03.2025 , обновлено: 12.09.2025

    1-к квартира, Красина, 7

    • 30 м2
    • 9/9 этаж
    • Состояние: хорошее
    4 150 000 ₽ (138300 ₽/м2)
    Объект № 189884. Продается уютная однокомнатная квартира в сердце Пионерского района Екатеринбурга! Идеальный вариант для молодых семей, студентов, бодрых пенсионеров или тех, кто ценит комфорт и доступность. Квартира светлая, теплая, с косметическим ремонтом. Окна выходят на две стороны во двор, что обеспечивает тишину и спокойствие. Развитая инфраструктура района позволит наслаждаться всеми преимуществами городской жизни. В шаговой доступности находятся: школы, детские сады, магазины, аптеки, остановки общественного транспорта. Рядом ТЦ Парк Хаус, где можно провести время с семьей и друзьями. Удобная транспортная развязка позволит быстро добраться в любую точку города. До центра 15 минут на общественном транспорте. Квартира готова к продаже, документы в порядке. Звоните прямо сейчас и записывайтесь на просмотр! Не упустите свой шанс стать счастливым обладателем собственного жилья в одном из лучших районов Екатеринбурга! Торг уместен. ***Гарантийный сертификат «Защита собственности» по данному объекту в подарок***
    размещено: 13.02.2025 , обновлено: 8.10.2025

    1-к квартира, Уральская, 5

    • 28.8 м2
    • 9/10 этаж
    • Состояние: хорошее
    4 950 000 ₽ (171900 ₽/м2)
    Современный ЖК, расположенный у всего вида транспорта. Удачное место рядом парк, торговый центр, в доме находится множество магазинов.Дом тёплый, шума нет. Квартира с чистовой отделкой ID объекта в нашей базе: 11643
    размещено: 07.05.2024 , обновлено: 8.10.2025

    1-к квартира, Советская, 53

    • 26 м2
    • 1/5 этаж
    • Состояние: хорошее
    3 800 000 ₽ (146200 ₽/м2)
    Предлагается однокомнатная квартира в Пионерском, первый, высокий этаж. Квартира теплая, на окнах решетки, стоят стеклопакеты. Сейф дверь в квартиру, тамбур на две квартиры. Дом в самом центре Пионерского, развитая инфраструктура. Документы готовы, один взрослый собственник, без обременений и Долгов. ID объекта в нашей базе: 2760
    размещено: 03.11.2023 , обновлено: 8.10.2025

    1-к квартира, Советская, 9

    • 32.5 м2
    • 4/5 этаж
    • Состояние: удовлетворительное
    3 900 000 ₽ (120000 ₽/м2)
    Продается просторная однокомнатная квартира с большойкомнатой 20 кв. м, солнечная сторона, вкомнате 2-а окна, по желанию можно сделать спальню и гостиную, на 4 этаже. Санузелсовмещен. В квартире нужен освежающий ремонт, зато есть возможность реализовать свой дизайн. Очень удобное местоположение дома, 15 минут и центральные улицы города,ТЮЗ, кино - концертный театр «Космос», большие магазины в шаговой доступности.Аптеки. Удобная транспортная развязка (до центра пара остановок -трамвайная остановка в 7 мин. , троллейбусная и автобусная буквально удома, до метро 10 мин.), Гимназия 47, 145, детские сады. Железнодорожныйвокзал. Ипотекавозможна. Обременений нет. Один собственник. ID объекта в нашей базе: 860
    размещено: 28.09.2023 , обновлено: 8.10.2025

Новостройки Екатеринбург, мкр-н. Пионерский

Приоритет

Увеличивает просмотры в 3 раза

Ваше объявление показывается в списке выше обычных объявлений. подключить