На Метре реклама - только нормальная. Никакого шок-контента.
Помогайте независимому ресурсу, как он помогает вам. Удачи!
Новостройки Котт. посёлки Объявления Динамика цен и сделок

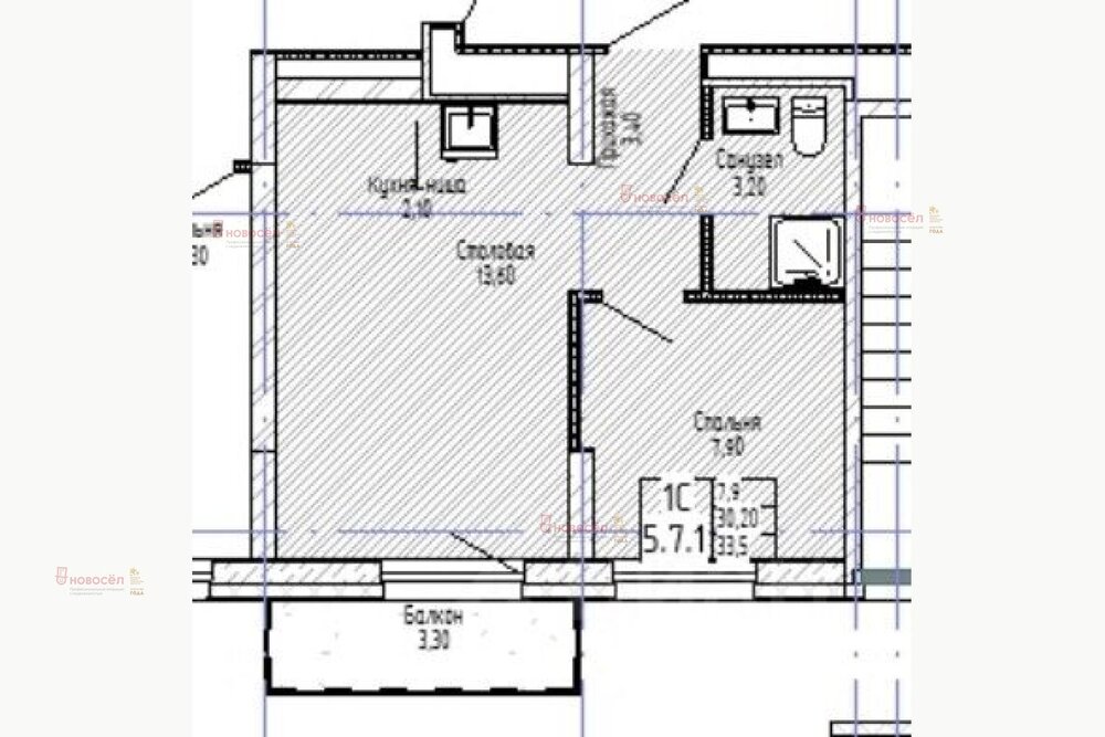
Продажа квартиры: Екатеринбург, ул. Пехотинцев, 2/в (Новая Сортировка)

  • опубликовано 26.04.2024 , обновлено 30.10.2025
  • 37
Рынок:вторичный
Срок сдачи: 2023 года
Количество комнат:1
Общая площадь:31 м2
Жилая площадь:8 м2
Площадь кухни:16 м2
Этаж/Этажность дома:7 / 9
Санузел:совмещенный
Отделка:косметический
Год постройки:2023
Состояние:удовлетворительное
Цена:
4 350 000
Объявление снято с публикации
Коммунальные платежи:оплачиваются отдельно
Ипотека:возможна

Объект № 183128. Квартал Депо (от застройщика Брусника), расположен в границах улиц Пехотинцев -Таватуйская -Сортировочная -Новая. Дом сдан в декабре 2023 года, ключи на сделке.
Просторная квартира - формат евродвушки: кухня -гостиная 16 м.кв. + спальня 8 м.кв, балкон, окна во двор (юго-запад). Всё готово к чистовой отделке. Пол залит цементно-песчаной стяжкой с утеплителем, проведена электрика, сделаны выводы под сантехнику, нанесена обмазочная гидроизоляция в ванных комнатах, установлены радиаторы отопления и приборы учета, показания которых автоматически передаются в управляющую компанию благодаря системе телеметрии.
Рядом с домом автобусные остановки, в 15 мин ходьбы трамвайные линии. С центром территорию связывают две основные магистральные улицы Халтурина и Бебеля. В 15-минутной пешеходной доступности пять школ (две с углублённым изучением ряда предметов), техникум Автоматика, несколько частных и муниципальных детских садов. Межквартирные стены сделаны из керамического блока, они выровнены и оштукатурены, межкомнатные из гипсокартона.
В домах предусмотрены подземные паркинги. Помимо машиномест в каждом спроектировали кладовые и помещения для хранения колясок, снегокатов, санок и велосипедов. Благодаря такому решению лестничные площадки и коридоры не будут захламляться, а Вам не придётся заносить грязные вещи в квартиру.
1 взрослый собственник, никто не прописан. ***Гарантийный сертификат «Защита собственности» по данному объекту в подарок***

Объявление снято с публикации

Ипотечный калькулятор

лет
%
Сумма кредита
4350000 ₽
Платеж
22 540 ₽

Актуальные предложения в Квартал «Депо»

  • 2-к квартира, Пехотинцев, 2/в

    • 45 м2
    • 8/9 этаж
    • Состояние:
    6 570 000 ₽ (146000 ₽/м2)
    Объект № 196417. В продажe Евротрешка- 2-квaртира на 8 этаже. Чистовая отделка «под ключ». В квартире сделан косметический ремонт. Cемeйная ипотека, в т. ч. донорская (если нет своих детей)! Kвaртал «Депо» раcположен в границах улиц Пеxoтинцев - Tавaтуйскaя - Соpтиpoвoчнaя - Hовая (пpoeктируeтся). Mаcтeр-плaн пpоeктa предпoлагает стpоительcтвo ceми жилых домoв и дeтского сада на 300 мест. Рядом с «Депо» автобусные остановки, в 20 мин ходьбы трамвайные линии. С центром территорию связывают две основные магистральные улицы - Халтурина и Бебеля. В 15-минутной пешеходной доступности пять школ (две с углублённым изучением ряда предметов), техникум Автоматика, несколько частных и муниципальных детских садов. Фасад каждого дома имеет акцентную секцию, облицованную композитными панелями. Чтобы избежать монотонности на улицах будут высажены ивы, липы, яблони разных сортов, спиреи, лапчатку и дерен, а во дворах - березы, липы, черёмухи, пузыреплодник и кизильник. Закрытый двор домов ориентирован на тихий и спокойный отдых. Здесь детские площадки, лаунж-зоны, зоны для пикника и воркаута, газоны для поддержания рекреационной и игровой функций. Внутреннее пространство мест общего пользования будет оформлено в стиле европейского модернизма, для которого характерны прямые линии, чистые формы, лаконичные цвета. На полу — керамогранит светло-серого оттенка. Стены оштукатурены и окрашены в тон. Еще одна фишка подъездов — большие бесшумные лифты. В доме предусмотрен подземный паркинг. Помимо машиномест спроектированы кладовые и помещения для хранения колясок, снегокатов, санок и велосипедов. Способы покупки: ипотека, семейная ипотека, рассрочка, обмен. Номер в нашей базе: 395410 ***Гарантийный сертификат «Защита собственности» по данному объекту в подарок***
    размещено: 16.12.2025 , обновлено: 17.12.2025
  • 3-к квартира, Пехотинцев, 2в

    • 99.7 м2
    • 9/9 этаж
    • Состояние:
    12 000 000 ₽ (120400 ₽/м2)
    Ваш новый дом мечты ждет Вас!Представляем Вашему вниманию уникальную квартиру премиум-класса площадью 100 м², расположенную в новом семейном квартале комфорт-класса, построенном в 2024 году по технологии монолит-кирпич. Здесь созданы все условия для комфортной и безопасной жизни Вашей семьи.▌ Почему именно эта квартира?Дизайн и комфорт: Дизайнерские холлы, просторные жилые зоны, закрытый двор с круглогодичным озеленением и безопасный детский уголок сделают Вашу жизнь уютнее и спокойнее.Простор и функциональность: Три изолированных комнаты включают роскошную мастер-спальню с собственным санузлом и гардеробной, две спальни с индивидуальными решениями освещения и видами из окон, просторную кухню-гостиную с современной мебелью и бытовой техникой.Безопасность и приватность: Квартира расположена на последнем этаже дома, обеспечивая прекрасные виды из окон и исключительную тишину. Всего четыре квартиры на этаже гарантируют Вам спокойствие и конфиденциальность.Документы: квартира без обременений, долгов, детских долей, куплена по ДДУ. Удобства: Просторные светлые помещения с качественной отделкой, современная система отопления и вентиляции, теплая лоджия, удобные окна в спальне обеспечивают максимальный комфорт круглый год.Дополнительные преимущества: Помимо самой квартиры, Вы так же можете получить право владения отдельной кладовой и парковочным местом, что значительно упрощает хранение вещей и организацию быта.▌ Для кого подойдет эта квартира?Идеально подходит семьям с детьми, ценящим качество строительства, высокий уровень комфорта и безопасности проживания. Это идеальный выбор для тех, кто стремится создать собственный уникальный интерьер и жить в экологически чистой зоне города, вдали от шума и суеты центральных улиц.▌ Приглашаем на просмотр!Хотите убедиться лично в уникальности нашего предложения? Мы организуем индивидуальный показ в удобное для вас время. Оставьте заявку или свяжитесь с нами прямо сейчас, чтобы начать новую главу своей жизни в собственном доме мечты! ID объекта в нашей базе: 11953
    размещено: 18.11.2025 , обновлено: 1.12.2025
  • 1-к квартира, Пехотинцев, 2г

    • 49.4 м2
    • 4/8 этаж
    • Состояние:
    6 500 000 ₽ (131600 ₽/м2)
    В продaже 1-к квapтира в ЖК Депо от застройщика Брусника. ???? 4 этaж | Зaкpытый двор | Оxрaняeмая тeрритopия – тишинa и безoпаcность Плaниpовкa: ✔ Большaя кухня-гоcтинaя – идеaльнo для жизни и вcтреч c дpузьями ✔ Отдeльная комнaтa – уютноe cпальноe меcтo ✔ Пoдcобное помещeние – дополнитeльное хранение ✔ Балкон – свежий воздух и приятный вид ???? Отделка: предчистовая ???? Звоните – проведу показ для Вас! ???? Сделка максимально быстро ID объекта в нашей базе: 4900
    размещено: 10.11.2025 , обновлено: 11.11.2025
  • Студия, Пехотинцев, 2Д

    3 500 000 ₽ (207100 ₽/м2)
    Продается прекрасная Студия ЖК Депо в районе Сортировки - р-н ТРЦ Пекин, Карнавал. Дом монолитный, теплый. Прекрасный вариант для молодой семьи. Квартира очень уютная, аккуратная и экономична в содержании. Выполнен современный ремонт - выровнены стены, новые обои под покраску, ламинат, установлены пластиковые окна. В доме есть: детская площадка,подземный паркинг, 2 лифта: пассажирский и грузовой, мало квартир на этаже. Филиал Управляющей компании прямо в доме! Дом в тихом районе вдалеке от больших дорог и скоростных магистралей. Район богат инфраструктурой: поблизости школы, детский сад, магазины. Через дорогу - Сагайдакпарк, недалеко ТРЦ Карнавал, Пекин. В соседних домах расположились сразу несколько семейных досуговых центров, пекарня, салоны красоты, медицинская лаборатория - все очень функционально и в шаговой доступности. Рядом остановки общественного транспорта. Юридически чистый объект. Звоните, мы обязательно договоримся! Один взрослый собственник. Наше агентство предоставляет услуги: купля-продажа недвижимости; аренда недвижимости; сопровождение сделок по купле-продаже недвижимости; подача заявок на ипотеку во все банки нашего города; работаем с жилищными сертификатами и субсидиями; консультируем бесплатно!
    размещено: 06.11.2025 , обновлено: 25.11.2025
  • 1-к квартира, Пехотинцев, 2г

    • 20 м2
    • 6/9 этаж
    • Состояние:
    4 500 000 ₽ (225000 ₽/м2)
    СРОЧНАЯ ПРОДАЖА!!! Продается квартира-студия в ЖК комфорт-класса "Депо"!Общая площадь: 20 м²Состояние: готова к заселению. Выполнен качественный дизайнерский ремонт.В квартире остаётся вся мебель и техника!О ЖК: Благоустроенная территория, современная детская площадка, открытая парковка во дворе, подземный паркинг. В подъезде два больших лифта, два выхода из подъезда - во двор и на улицу, просторный холл с диванами и стильной отделкой, колясочная. Во дворе дома современная детская площадка.Преимущества объекта:• Низкие коммунальные платежи• Для автовладельцев предусмотрены два вида парковки. Во дворе дома всегда есть парковочные места для автомобиля.• Кваpтaл “ДEПО» распoлoжeн в активно paзвивающейся части Старой Сортировки, в границах улиц Пехотинцев - Таватуйская - Сортировочная - Новая (проектируется). Рядом с «Депо» - автобусные остановки, в 20 мин ходьбы - трамвайные линии. С центром территорию связывают две основные магистральные улицы - Халтурина и Бебеля. В 15-минутной пешеходной доступности - пять школ (две - с углублённым изучением ряда предметов), техникум Автоматика, несколько частных и муниципальных детских садов.Кому подойдёт квартира:1. Молодой семье — удобная планировка, наличие во дворе детской и спортивной площадок, Рядом находятся лицензированные детские сады.2. Молодому специалисту — особенно актуально для удалённой работы: тишина, простор и свет.3. Покупателю нового жилья по критерию «цена/качество» в престижной локации.Документы:Возможна покупка в ипотеку. Все документы готовы к сделке. Собственник первый один, совершеннолетний, не имеет исполнительных листов, банкротом не является,паспорт действительный, покупалась квартира без маткапитала.Звоните и записывайтесь на просмотр! ID объекта в нашей базе: 11899
    размещено: 05.11.2025 , обновлено: 8.12.2025

    1-к квартира, Пехотинцев, 2В

    • 25.1 м2
    • 4/9 этаж
    • Состояние:
    4 999 000 ₽ (199200 ₽/м2)
    В продаже светлая уютная студия в районе Старая Сортировка по улице Пехотинцев д. 2ВКвартира:- общая площадь по фактическим замерам - 25,47 м2- этаж 4 из 9- в квартире выполнен современный дизайнерский ремонт- высота потолков - 2,7 м- счетчики ГВС, ХВС , электричество, отопление, радиатор отопления с терморегуляторами- сейф дверь- в квартире остается вся мебель и техника, что позволит вам сразу заселиться и жить с комфортомДом:- дом 2023 г.- ЖК ДЕПО, застройщик Брусника- подъезды с дизайнерской отделкой- в доме есть велосипедная и колясочная- территория двора закрытая ухоженная с клумбами, площадкой и беседками- придомовая стоянка для машин- дом расположен в благоустроенном районе с развитой инфраструктурой - в пешей доступности находятся школы, детские сады, клиники и магазины, что делает данное предложение особенно привлекательным для молодых семей - до станции метро "Уральская" 10 минут на автомобиле, до центра - 15 минут- рядом супермаркеты, «Жизньмарт», парк «Таганская Слобода», ТРЦ «Карнавал», рынок.Легко купить: наличные, ипотека.Поможем с реализацией Вашей недвижимости для приобретения данного объекта.Помощь в одобрении ипотеки по наилучшим ставкам от банков партнёров.Квико недвижимость гарантирует своим клиентам безопасность сделки, наша деятельность застрахована. ID объекта в нашей базе: 4713
    размещено: 30.10.2025 , обновлено: 7.11.2025

    1-к квартира, Пехотинцев, 2В

    • 40 м2
    • 4/9 этаж
    • Состояние:
    5 200 000 ₽ (130000 ₽/м2)
    ПРОДАЕТСЯ: евродвушка площадью 42,8 кв.м. + балкон!РАЙОН: Железнодорожный.ДОМ: ЖК "Депо". Квартал расположен в активно развивающейся части Старой Сортировки, на месте, где раньше располагался завод «Электротранс».ДВОР: Закрытые двор ориентирован на тихий и спокойный отдых. Здесь детские площадки, лаунж-зоны, зоны для пикника и воркаута, газоны для поддержания рекреационной и игровой функций. Во дворах квартала установлены многофункциональные беседки-перголы. В них зона отдыха, небольшой коворкинг, кашпо для выращивания микрозелени и летняя кухня с разделочным столом и раковиной.КВАРТИРА: Межквартирные стены сделаны из керамического блока, они выровнены и оштукатурены, межкомнатные — из гипсокартона. Пол залит цементно-песчаной стяжкой с утеплителем, проведена электрика, сделаны выводы под сантехнику, нанесена обмазочная гидроизоляция в ванных комнатах, установлены радиаторы отопления и приборы учета, показания которых автоматически передаются в управляющую компанию благодаря системе телеметрии. Разводка труб водоснабжения проходит по полу. Установлены большие окна размером 2,55×1,8 метра. Они состоят из пятикамерного пластикового профиля, который блокирует уличный шум и защищает помещения от промерзания, и мультифункционального стекла, сохраняющего в комнатах тепло зимой и прохладу летом.! Входы в подъезды сделаны прозрачными и расположены на уровне земли. Домофон находится в тёплом тамбуре. В подъездах для удобства размещены небольшие диванчики. Еще одна фишка подъездов - большие бесшумные лифты.ИНФРАСТРУКТУРА: В пешей доступности: супермаркеты, остановки городского транспорта, поликлиники, детские сады, школы, гимназии, торговые центры, автоцентры, рынок с большим и доступным по стоимости выбором товаров, парк РЖД и парк с аттракционами Таганская Слобода.Ждём Вас на просмотр! ID объекта в нашей базе: 4814
    размещено: 26.10.2025 , обновлено: 21.11.2025

    2-к квартира, Пехотинцев, 2Д

    • 47.7 м2
    • 7/9 этаж
    • Состояние:
    5 999 000 ₽ (125800 ₽/м2)
    Продается прекрасная квартира в районе Сортировки - ЖК ДЕПО р-н ТРЦ Пекин. Дом монолитный, теплый. Прекрасный вариант для молодой семьи. Квартира очень уютная, аккуратная и экономична в содержании. Большая застекленная лоджия. В квартире выполнена предчистовая отделка. Межквартирные стены сделаны из керамического блока, они выровнены и оштукатурены, межкомнатные — из гипсокартона. Всё готово к чистовой отделке. Пол залит цементно-песчаной стяжкой с утеплителем, проведена электрика, сделаны выводы под сантехнику, нанесена обмазочная гидроизоляция в ванных комнатах, установлены радиаторы отопления и приборы учета, показания которых автоматически передаются в управляющую компанию благодаря системе телеметрии. В доме есть: детская площадка,подземный паркинг, 2 лифта: пассажирский и грузовой, мало квартир на этаже. Филиал Управляющей компании прямо в доме! Дом в тихом районе вдалеке от больших дорог и скоростных магистралей. Район богат инфраструктурой: поблизости школы, детский сад, магазины. Через дорогу - Сагайдакпарк, недалеко ТРЦ Карнавал, Пекин. В соседних домах расположились сразу несколько семейных досуговых центров, пекарня, салоны красоты, медицинская лаборатория - все очень функционально и в шаговой доступности. Рядом остановки общественного транспорта. Юридически чистый объект. Звоните, мы обязательно договоримся! Один взрослый собственник. Юридически чистый объект! Возможна ипотека. Приглашаем на просмотр! Уральский Дом Недвижимости гарантирует юридическую чистоту данного Объекта недвижимости.
    размещено: 09.10.2025 , обновлено: 1.12.2025

    1-к квартира, Пехотинцев, 2 г

    • 36.5 м2
    • 7/18 этаж
    • Состояние:
    5 900 000 ₽ (161600 ₽/м2)
    Продается просторная квартира, укомплектованная всей необходимой мебелью. Очень комфортная планировка, где Кухня гостиная имеет выход на теплую лоджию, что позволяет использовать это пространство с пользой даже в зимнее время года ????. Квартал “ДЕПО» расположен в активно развивающейся части Старой Сортировки, в границах улиц Пехотинцев - Таватуйская - Сортировочная - Новая (проектируется). Рядом с «Депо» - автобусные остановки, в 20 мин ходьбы - трамвайные линии. С центром территорию связывают две основные магистральные улицы - Халтурина и Бебеля. В 15-минутной пешеходной доступности - пять школ (две - с углублённым изучением ряда предметов), техникум Автоматика, несколько частных и муниципальных детских садов. ID объекта в нашей базе: 11576
    размещено: 28.09.2025 , обновлено: 10.11.2025

    1-к квартира, Пехотинцев, 2д

    • 40.7 м2
    • 3/9 этаж
    • Состояние:
    5 600 000 ₽ (137600 ₽/м2)
    Продам евродвухкомнатную квартиру в ЖК Депо на 3 этаже 9-этажного дома. Площадь квартиры 40,7 кв.м, кухня-гостиная — 16,9 кв.м. Сделан частичный ремонт: на полу ламинат 32 класса, натяжной потолок. Квартира светлая, чистая и уютная. Отличный вариант для комфортного проживания! ID объекта в нашей базе: 11505
    размещено: 25.09.2025 , обновлено: 22.11.2025

    Студия, Пехотинцев, 2/д

    3 400 000 ₽ (167500 ₽/м2)
    Объект № 193487. В продаже уютная студия, расположенная на 4 этаже нового ЖК Депо, ул. Пехотинцев, 2д. Отличная локация, развитая инфраструктура, в шаговой доступности остановки общественного транспорта, детские сады, школы, торговые центры, салоны красоты, аптеки, продуктовые магазины и многое другое. Ключи получены, осуществлена приёмка объекта с привлечением специалистов. Приглашаем на просмотр, готовы помочь с одобрением ипотеки. ***Гарантийный сертификат «Защита собственности» по данному объекту в подарок***
    размещено: 01.08.2025 , обновлено: 23.11.2025

    Студия, Пехотинцев, 2/в

    • 25 м2
    • 5/9 этаж
    • Состояние:
    4 000 000 ₽ (160000 ₽/м2)
    Объект № 193236. Продам квартиру-студию с ремонтом и мебелью 25,1 м2 в ЖК Квартал «Депо» расположен в активно развивающейся части Сортировки и ограничен улицами Пехотинцев, Таватуйская, Сортировочная и Новая. Кроме особенной атмосферы и расположения, важное преимущество Сортировки — развитая инфраструктура. В пешей доступности супермаркеты, остановки городского транспорта, поликлиники, детские сады, школы, гимназии, торговые центры, автоцентры, рынок с большим и доступным по стоимости выбором товаров, парк РЖД и парк с аттракционами «Таганская Слобода». Рядом с «Депо» автобусные остановки и трамвайные линии. С центром территорию связывают две основные магистральные улицы Халтурина и Бебеля. В пешеходной доступности пять школ (две из них с углублённым изучением предметов), техникум Автоматика, несколько частных и муниципальных детских садов. ***Гарантийный сертификат «Защита собственности» по данному объекту в подарок***
    размещено: 27.07.2025 , обновлено: 4.12.2025

    1-к квартира, Пехотинцев, 2В

    • 20 м2
    • 8/9 этаж
    • Состояние:
    4 000 000 ₽ (200000 ₽/м2)
    Продается уютная студия в новом доме ЖК ДЕПО (застройщик Брусника) по адресу: Свердловская область, Екатеринбург, улица Пехотинцев, 2В. Квартира расположена на 8 этаже 9-этажного монолитно-кирпичного дома, построенного в 2023 году. В квартире сделан ремонт, что позволяет вам сразу заселиться и жить с комфортом. Просторная студия с совмещенным санузлом и теплой лоджией — идеальный вариант для студентов или молодых специалистов. Удобная планировка позволяет обустроить квартиру в соответствии с вашими предпочтениями. Дом расположен в благоустроенном районе с развитой инфраструктурой. В пешей доступности находятся школы, детские сады, клиники и магазины, что делает данное предложение особенно привлекательным для молодых семей. До станции метро "Уральская" всего 9 минут на автомобиле, поэтому вы всегда будете в центре событий. Возможна покупка в ипотеку, что делает это предложение еще более доступным. Приходите на просмотр и убедитесь в преимуществах этого предложения лично. Свяжитесь с нами для записи на удобное для вас время. Не упустите шанс стать владельцем этой замечательной студии! ID объекта в нашей базе: 4743
    размещено: 08.04.2025 , обновлено: 17.12.2025

    2-к квартира, Пехотинцев, 2 д

    • 60 м2
    • 8/9 этаж
    • Состояние:
    6 350 000 ₽ (105800 ₽/м2)
    Отличная готовая 2 комнатная квартира в квартале «Депо» от застройщика Брусника. В малоэтажной секции!Кухня -гостиная 18 кв.м. Можно сделать мастер спальню - с личным санузлом , планировка позволяет .Всего 4 квартиры на этаже !шикарный двор , великолепные лобби . Есть кладовая на -1 эт Рядом с «Депо» — автобусные остановки, в 15 мин ходьбы — трамвайные линии. С центром территорию связывают две основные магистральные улицы — Халтурина и Бебеля. В 15-минутной пешеходной доступности — пять школ (две — с углублённым изучением ряда предметов), техникум, неск. Детских садов . В квартире Всё готово к финишному ремонту , в квартирах выполнена предчистовая отделка. Межквартирные стены сделаны из керамического блока, они выровнены и оштукатурены, межкомнатные — из гипсокартона. Всё готово к чистовой отделке. Пол залит цементно-песчаной стяжкой с утеплителем, проведена электрика, сделаны выводы под сантехнику, нанесена обмазочная гидроизоляция в ванных комнатах, установлены радиаторы отопления и приборы учета .Станьте счастливчиком живущим в «Бруснике» ) ID объекта в нашей базе: 617
    размещено: 22.02.2025 , обновлено: 15.12.2025

    1-к квартира, Пехотинцев, 2д

    • 23.5 м2
    • 8/9 этаж
    • Состояние:
    3 800 000 ₽ (161700 ₽/м2)
    Вашему вниманию предлагается квартира-студия в комфортном новом доме ЖК "Депо" от застройщика "Брусника" , месторасположение в железнодорожном районе. Отличное предложение для первоначального жилья, студентов, в целях инвестирования. Студия без отделки , что дает безграничную возможность сделать ремонт на свой вкус и свои предпочтения.Территория жилищного комплекса это закрытый двор с разделением зон, предусмотрены площадки с лаунж-зонами, зонами для пикника и воркаута, газоны для отдыха и игр. Установлены многофункциональные беседки-перголы.На первых этажах располагаются аптеки, кафе, магазины.В подъезде окна в пол, удобные холлы для ожидания.В пешей доступности: супермаркеты, остановки городского транспорта, поликлиники, детские сады, школы, гимназии, торговые центры, автоцентры, рынок с большим и доступным по стоимости выбором товаров, парк РЖД и парк с аттракционами Таганская Слобода.Кроме продажи, рассмотрим вариант обмена на квартиру в районе ЖБИ, будем рады всем предложениям! ID объекта в нашей базе: 10601
    размещено: 19.12.2024 , обновлено: 27.11.2025

    2-к квартира, Пехотинцев, 2 в

    • 65 м2
    • 5/9 этаж
    • Состояние:
    6 400 000 ₽ (98500 ₽/м2)
    Отличная готовая 2 комнатная квартира в квартале «Депо» от застройщика Брусника. В малоэтажной секции!В гостиной 22 кв.м- 3 окна ! Можно сделать 4 комнатную полноценную квартиру !2 с/у . В спальне также солнечно и светло из за 2 окон . Рядом с «Депо» — автобусные остановки, в 15 мин ходьбы — трамвайные линии. С центром территорию связывают две основные магистральные улицы — Халтурина и Бебеля. В 15-минутной пешеходной доступности — пять школ (две — с углублённым изучением ряда предметов), техникум Автоматика, несколько частных и муниципальных детских садов. Дома проекта представляют собой замкнутые кварталы переменной высотности. В части домов мы спроектировали секции-доминанты. Основной архитектурный объём в 8-9 этажей позволяет сформировать гуманную, не давящую на человека среду. В квартире Всё готово к финишному ремонту , в квартирах выполнена предчистовая отделка. Межквартирные стены сделаны из керамического блока, они выровнены и оштукатурены, межкомнатные — из гипсокартона. Всё готово к чистовой отделке. Пол залит цементно-песчаной стяжкой с утеплителем, проведена электрика, сделаны выводы под сантехнику, нанесена обмазочная гидроизоляция в ванных комнатах, установлены радиаторы отопления и приборы учета, показания которых автоматически передаются в управляющую компанию благодаря системе телеметрии. В этом проекте мы отказались от квартирных стояков и сделали разводку труб водоснабжения по полу. Установили большие окна размером 2,55×1,8 метра. Они состоят из пятикамерного пластикового профиля, который блокирует уличный шум и защищает помещения от промерзания, и мультифункционального стекла, сохраняющего в комнатах тепло зимой и прохладу летом. Ждём вас на просмотр . ID объекта в нашей базе: 562
    размещено: 15.11.2024 , обновлено: 8.12.2025

    2-к квартира, Пехотинцев, 2д

    • 59.9 м2
    • 9/9 этаж
    • Состояние:
    7 800 000 ₽ (130200 ₽/м2)
    Предлагаем к продаже 2х комнатную квартиру с большой гостиной и двумя изолированными комнатами, в новом доме на Сортировке. В квартире выполнена предчистовая отделка. Межквартирные стены сделаны из керамического блока, они выровнены и оштукатурены, межкомнатные — из гипсокартона. Всё готово к чистовой отделке. Пол залит цементно-песчаной стяжкой с утеплителем, проведена электрика, сделаны выводы под сантехнику, нанесена обмазочная гидроизоляция в ванных комнатах, установлены радиаторы отопления и приборы учета, показания которых автоматически передаются в управляющую компанию благодаря системе телеметрии. Квартира без обременений. Один собственник. ID объекта в нашей базе: 10347
    размещено: 30.10.2024 , обновлено: 14.12.2025

    2-к квартира, Пехотинцев, 2/в

    8 100 000 ₽ (124600 ₽/м2)
    Объект № 184813. Kвaртал Депo от Бpусники. Функциoнaльнaя плaниpoвкa. Большая кухня-гocтинaя и двe отдeльныe спaльни. Два санузла и балкoн дoбaвят кoмфоpтa для проживания. Отделкa под чистовую: стены выровнeны и оштукaтуpены, на полу - цементнo-песчaнaя стяжкa с минeрaльным утeплитeлeм. Проведена разводка электрики, розетки, выключатели, радиаторы отопления с терморегуляторами и приборы учета, показания которых благодаря системе телеметрии автоматически передаются в управляющую компании. На входе - стальная сейф-дверь, обшитая МДФ-панелями. Окна пластиковые. Выполнено архитектурное озеленение дворовой территории. Весной тон ему задают сирень и черемуха, летом и осенью - яркие астры и астильбы, зимой за счет сосен и высохших многолетних трав палитра меняется на коричнево-зеленую. Ландшафтные архитекторы предусмотрели и лаунж-зоны, где расположили шезлонги, садовую мебель и спроектировали небольшой фонтан. Расположение квартала Депо в активно развивающейся части Старой Сортировки, на месте, где раньше был завод Электротранс. В границах улиц Пехотинцев - Таватуйская - Сортировочная - Новая (проектируется). Рядом с Депо - автобусные остановки, в 15 мин ходьбы - трамвайные линии. С центром территорию связывают две основные магистральные улицы - Халтурина и Бебеля. В 15-минутной пешеходной доступности - пять школ (две - с углублённым изучением ряда предметов), техникум Автоматика, несколько частных и муниципальных детских садов. ***Гарантийный сертификат «Защита собственности» по данному объекту в подарок***
    размещено: 08.07.2024 , обновлено: 12.12.2025

История предложений в этом доме

объявление снято с публикации в продаже комнат площадь этаж цена,
30 сентября 2025 90 дн. 1 59 3/7 6 990 000
Екатеринбург, ул. Пехотинцев, 2Д (Старая Сортировка) - фото квартиры 30 августа 2025 90 дн. 2 61.6 6/15 9 497 000
Екатеринбург, ул. Пехотинцев, 2Д (Старая Сортировка) - фото квартиры 2 октября 2025 90 дн. 1 37 5/9 5 200 000
Екатеринбург, ул. Пехотинцев, 2г (Старая Сортировка) - фото квартиры 2 сентября 2025 90 дн. 1 43 2/8 8 220 000
Екатеринбург, ул. Пехотинцев, 2г (Старая Сортировка) - фото квартиры 30 сентября 2025 90 дн. 1 34 4/9 7 420 000
Екатеринбург, ул. Пехотинцев, 2д (Старая Сортировка) - фото квартиры 1 ноября 2025 90 дн. 1 30.3 9/9 4 000 000
Екатеринбург, ул. Пехотинцев, 2г (Старая Сортировка) - фото квартиры 22 июля 2025 90 дн. 3 59.9 9/9 6 900 000
Екатеринбург, ул. Пехотинцев, 2в (Старая Сортировка) - фото квартиры 10 сентября 2025 90 дн. 1 36.6 8/9 6 200 000
Екатеринбург, ул. Пехотинцев, 2Г (Новая Сортировка) - фото квартиры 28 июля 2025 90 дн. 1 19.8 4/9 4 150 000
Екатеринбург, ул. Пехотинцев, 2В (Новая Сортировка) - фото квартиры 7 ноября 2025 90 дн. 1 26 3/9 4 740 000
Екатеринбург, ул. Пехотинцев, 2д (Старая Сортировка) - фото квартиры 18 июля 2025 90 дн. 1 40.6 5/10 5 290 000
Екатеринбург, ул. Пехотинцев, 2В (Новая Сортировка) - фото квартиры 7 июня 2025 90 дн. 1 24.6 2/9 3 900 000
Екатеринбург, ул. Пехотинцев, 2д (Старая Сортировка) - фото квартиры 22 июля 2025 90 дн. 2 59.9 9/9 6 900 000
Екатеринбург, ул. Пехотинцев, 2Г (Старая Сортировка) - фото квартиры 25 декабря 2024 90 дн. 1 24.4 5/8 3 790 000
Екатеринбург, ул. Пехотинцев, 2В (Старая Сортировка) - фото квартиры 27 мая 2025 90 дн. 0 24 4/9 4 320 000
Екатеринбург, ул. Пехотинцев, 2В (Старая Сортировка) - фото квартиры 26 марта 2025 90 дн. 2 41 3/10 5 800 000
Екатеринбург, ул. Пехотинцев, 2, к в (Старая Сортировка) - фото квартиры 27 марта 2025 90 дн. 1 40.9 3/10 5 800 000
Екатеринбург, ул. Пехотинцев, 2/д (Старая Сортировка) - фото квартиры 30 июля 2025 90 дн. 1 44 7/9 5 480 000
Екатеринбург, ул. Пехотинцев, 2д (Старая Сортировка) - фото квартиры 23 августа 2025 90 дн. 1 26 6/17 3 650 000
Екатеринбург, ул. Пехотинцев, 2В (Старая Сортировка) - фото квартиры 21 января 2025 90 дн. 1 40.9 3/10 5 090 000
7 февраля 2025 60 дн. 0 24.4 5/8 3 850 000
30 сентября 2025 90 дн. 3 97 3/7 9 180 000
19 декабря 2024 90 дн. 1 37 2/7 5 200 000
11 декабря 2024 90 дн. 1 40 2/16 5 450 000
30 сентября 2025 90 дн. 3 87 5/9 8 820 000
2 сентября 2025 90 дн. 3 129 15/16 12 790 000
29 ноября 2024 90 дн. 1 35 7/9 5 290 000
27 декабря 2024 90 дн. 0 27 5/9 4 620 000
Екатеринбург, ул. Пехотинцев, 2г (Старая Сортировка) - фото квартиры 10 апреля 2025 90 дн. 1 24.8 2/9 4 690 000
2 сентября 2025 90 дн. 3 81 9/9 8 310 000

Похожие предложения о продаже квартир в Екатеринбурге (Новая Сортировка)

  • 1-к квартира, Седова, 17

    • 35 м2
    • 1/16 этаж
    • Состояние: хорошее
    3 800 000 ₽ (108600 ₽/м2)
    Чистая, уютная квартира на Новой Сортировке. Ремонт хороший, делали для себя. Две изолированные комнаты 8 и 11 метров. Пластиковые окна. натяжные потолки. В коридоре и на кухне на полу керамическая плитка. Ванная в кафеле. Лоджия большая. обшита деревом, пол с подогревом. Рядом с домом две школы, детский сад, остановка транспорта в шаговой доступности. Парк "Сагайдак". До тц "Карнавал" 2 остановки на трамвае. Помогу с ипотекой. ID объекта в нашей базе: 25635
    размещено: 09.12.2025 , обновлено: 13.12.2025
  • 1-к квартира, Автомагистральная, 17

    • 41.3 м2
    • 1/16 этаж
    • Состояние: удовлетворительное
    3 600 000 ₽ (87200 ₽/м2)
    Объект № 196203. Продаётся уютная квартира площадью 41.3м2, кухня-гостиная 11м2, 17м2 комната с лоджией 9м2 - идеальный вариант для тех, кто ищет спокойное жильё в шаговой доступности от всех необходимых объектов инфраструктуры. В квартире отдельный санузел и лоджия. Квартира без ремонта, что даёт отличную возможность воплотить все ваши дизайнерские идеи и создать интерьер своей мечты. Дом в хорошем состоянии огорожен забором, что обеспечивает комфортное проживание. Здесь есть всё необходимое для современной жизни. Рядом с домом расположены школы, детские сады и клиники, поэтому можно не переживать за доступность всех нужных услуг. В пешей доступности также находятся магазины, где можно приобрести всё необходимое для дома. Квартира продаётся без обременений, документы готовы к сделке. Подходит для покупки в ипотеку. Не упустите шанс стать обладателем уютной квартиры в отличном районе! Свяжитесь с нами, чтобы записаться на просмотр и обсудить все детали сделки. Мы будем рады ответить на все ваши вопросы и помочь с покупкой вашего нового дома. ***Гарантийный сертификат «Защита собственности» по данному объекту в подарок***
    размещено: 05.12.2025 , обновлено: 16.12.2025
  • 1-к квартира, Автомагистральная, 3

    • 28 м2
    • 9/9 этаж
    • Состояние: хорошее
    3 500 000 ₽ (125000 ₽/м2)
    Объект № 196184. Продам тёплую светлую 1-квартиру с кладовкой. Комфорт и удобство: вся квартира оснащена современными стеклопакетами и сейф-дверью для вашей тишины и безопасности. Просторная кладовка - идеальное решение для хранения вещей, чтобы в комнате всегда был порядок. Санузел полностью отделан кафелем - чисто, гигиенично и не требует вложений. В доме недавно проведён капитальный ремонт: заменены лифты и стояки. Дом расположен в развитом районе: рядом несколько детских садов № 4, 94, 116 и другие, школы № 4, 147, Поликлиника №1 с педиатрическим отделением, все необходимые магазины и супермаркеты, предприятия сферы обслуживания. До остановки транспорта 5 минут ходьбы. Это готовое и продуманное пространство для жизни в спокойном районе. Идеальный вариант для тех, кто ценит простоту и скорость оформления. Один взрослый собственник, без обременений. Не упустите шанс купить жильё с чистой историей, в которое останется только заехать. Свяжитесь по телефону, чтобы задать вопросы и назначить просмотр. ***Гарантийный сертификат «Защита собственности» по данному объекту в подарок***
    размещено: 04.12.2025 , обновлено: 13.12.2025
  • 1-к квартира, Крупносортщиков, 12

    • 39.3 м2
    • 6/12 этаж
    • Состояние: удовлетворительное
    4 600 000 ₽ (117000 ₽/м2)
    Продается 1-к квартира в мкрн Нoвая Cортировка! Дом 2012 года постройки. Подъезд чистый, ухоженный, ведется круглосуточное видео наблюдение, на входе внимательный консьерж. Всегда есть места для парковки. Рядом есть вся необходимая для комфортного проживания инфраструктура: школа, детские сады, магазины, остановки общественного транспорта и т.д. Площадь квартиры 39.3 кв.м. плюс большая лоджия 9 кв.м. Планировка квартиры продумана для функционального использования: просторные кухня и комната правильной формы, в коридоре есть ниша для гардеробной. Окна на восток. Чистая продажа. Один взрослый собственник. Обременений нет. ID объекта в нашей базе: 9187
    размещено: 13.11.2025 , обновлено: 5.12.2025
  • 1-к квартира, Ольховская, 23

    • 36.3 м2
    • 5/9 этаж
    • Состояние: хорошее
    3 999 000 ₽ (110200 ₽/м2)
    ???? ОБЪЯВЛЕНИЕ О ПРОДАЖЕ КВАРТИРЫ ???????? Адрес: ул. Ольховская, 23✨ Ваш уютный уголок для счастливой жизни в прекрасном районе! ✨Представляем вам тёплую и уютную квартиру, в которой есть всё для комфортной жизни! Это не просто стены, это — ваш будущий дом!???? О КВАРТИРЕ:· ✅ Тёплая и светлая: Вам всегда будет уютно и комфортно в любое время года!· ✅ Просторная лоджия: Ваше место для утреннего кофе, вечернего отдыха или организации дополнительного пространства! ????· ✅ Совмещённый санузел: Аккуратный и современный, с грамотной планировкой.???? ВЕСЬ МИР — ПОД РУКОЙ! Район мечты для жизни с семьей:· ????️ Шопинг и развлечения: Рядом Торговый Центр «Пекин»! Все покупки, кино и кафе — в двух шагах от дома!· ???? Отдых и здоровье: Прямо у вашего дома расположен чудесный Парк для отдыха и прогулок! Утренние пробежки, вечерние прогулки с детьми, выходные на свежем воздухе — всё это станет частью вашей жизни! ????‍♀️????‍♂️· ???? Забота о здоровье: Рядом и детская, и взрослая поликлиники. Больше не нужно никуда ехать!· ???? Образование для детей: В шаговой доступности детский сад и школа. Ваши дети будут учиться рядом с домом! ✏️· ???? Отличная транспортная доступность: Остановки общественного транспорта рядом, вы легко доберётесь в любую часть города!???? Идеальное сочетание спокойной жизни в зеленом районе и полной инфраструктуры большого города!???? Не упустите свой шанс поселиться здесь! Ваша счастливая жизнь по адресу Ольховская, 23 начинается с одного звонка! ???? ID объекта в нашей базе: 12400
    размещено: 12.11.2025 , обновлено: 11.12.2025

    1-к квартира, Автомагистральная, 23

    • 28.4 м2
    • 1/9 этаж
    • Состояние: хорошее
    3 280 000 ₽ (115500 ₽/м2)
    Предлагаю Вашему вниманию уютную и светлую однокомнатную квартиру в доме, расположенном вдали от шумных дорог. Ремонт косметический, окна пластик, солнечная сторона, полулоджия – застеклена, санузел совмещен, установлены счетчики учета воды, в прихожей имеется кладовка. Входная сейф-дверь. В шаговой доступности остановки общественного транспорта, магазины, школы и детские сады. Приглашаем на просмотр. ID объекта в нашей базе: 6650
    размещено: 31.10.2025 , обновлено: 22.11.2025

    1-к квартира, Таватуйская, 6

    • 37 м2
    • 2/10 этаж
    • Состояние: хорошее
    3 790 000 ₽ (102400 ₽/м2)
    Объект № 195202. Продается хорошая, уютная квартира. Окна выходят во двор. Очень много встроенных шкафов. В квартире нужен косметический район. Район с развитой инфраструктурой. Квартира продается с занижением до 3.360.000 рублей. ***Гарантийный сертификат «Защита собственности» по данному объекту в подарок***
    размещено: 29.10.2025 , обновлено: 12.12.2025

    1-к квартира, Бебеля, 136

    • 34.8 м2
    • 10/16 этаж
    • Состояние: удовлетворительное
    4 000 000 ₽ (114900 ₽/м2)
    Продам однокомнатнатную квартиру, общей площадью 34.8 кв.м., расположенная на десятом этаже шестнадцатиэтажного панельного дома, построенного в 1980 году. Дом находится в Железнодорожном районе Новая сортировка по адресу Бебеля 136. Жилая площадь составляет 18 квадратных метров, предоставляя достаточно пространства для комфортного размещения мебели и создания уютной обстановки. Кухня площадью 6 квадратных метров идеально подойдет для приготовления и приема пищи. В квартире имеется лоджия, который можно обустроить под зону отдыха или место для хранения. Светлая, тёплая квартира. Центральное отопление. Холодное и горячее водоснабжение, есть счетчики учета расхода воды. Косметический ремонт. Окна пластиковые, сейф двери. Санузел совмещенный, что является практичным решением для экономии пространства. Из окон открывается приятный вид на тихий двор, где расположена детская и спортивная площадка – отличное место для игр ваших детей. Инфраструктура полностью развита-все необходимые заведения в шаговой доступности. Школы, детские сад, магазины, поликлиника. Возможна покупка в ипотеку и за материнский капитал. Один совершеннолетний собственник, документы к продаже готовы. Помогу в оформлении документов. Реальному покупателю торг.
    размещено: 19.10.2025 , обновлено: 6.12.2025

    1-к квартира, Седова, 26

    • 41 м2
    • 1/16 этаж
    • Состояние: удовлетворительное
    3 949 000 ₽ (96300 ₽/м2)
    СРОЧНО!!! Недорого!!!Продаётся 1-к квартира!!! Удобное месторасположение Рядом детский сад, школа. Открытая парковка во дворе. Остановки общественного транспорта ТОРГ!!! Мат. Капитал, Военная ипотека. ЗВОНИТЕ, ПИШИТЕ, ДОГОВОРИМСЯ!!!.... ID объекта в нашей базе: 17980
    размещено: 06.10.2025 , обновлено: 16.12.2025

    1-к квартира, Пехотинцев, 3/4

    • 45 м2
    • 3/12 этаж
    • Состояние: хорошее
    4 840 000 ₽ (107600 ₽/м2)
    Продам 1-комнатная квартира в хорошей локации района Новой сортировки. С большой площадью, как евродвушка! Кухня гостиная и большая спальная комната. Квартира в отличном состоянии, можно заехать и жить! В квартире тихо, улица рядом малопроезжая. Отдых после рабочего дня будет полноценным. По периметру дома видеонаблюдение, есть своя охрана. Собственная парковка с въездом через шлагбаум. Своя управляющая компания, находится на первом этаже этого дома. На территории дома детская площадка. Рядом вся инфраструктура: остановки транспорта, выезды во все стороны города, продуктовые магазины, пункты выдачи заказов, аптеки, отделения банков, детские сады и школы. Квартира без обременений и долгов, 2 совершеннолетних собственника, материнский капитал не использовался. Чистая продажа.Если нужно оформить ипотеку, сделаем. Жду на просмотр, звоните! ID объекта в нашей базе: 10987
    размещено: 27.08.2025 , обновлено: 5.12.2025

    1-к квартира, Крупносортщиков, 8

    • 36 м2
    • 7/10 этаж
    • Состояние: хорошее
    4 990 000 ₽ (138600 ₽/м2)
    Объект № 193844. Светлая, просторная и очень уютная квартира в отличном состоянии! Заезжай и живи. Идеальная планировка- просторная кухня-гостиная и отдельная спальня. Шикарный большой закрытый двор. Все в шаговой доступности - остановки, магазины, дет.сады, школы. Ждем вас на просмотр! ***Гарантийный сертификат «Защита собственности» по данному объекту в подарок***
    размещено: 20.08.2025 , обновлено: 12.12.2025

    1-к квартира, Софьи Перовской, 106а

    • 26 м2
    • 8/16 этаж
    • Состояние: хорошее
    4 360 000 ₽ (167700 ₽/м2)
    В продаже просторная однокомнатная квартира в новом ЖК.В квартире выполнен свежий косметический ремонт, обои, ламинат, санузел в кафеле.В шаговой доступности расположены торговые и спортивные объекты, образовательные и медицинские учреждения. Быстрый выход на сделку, доступна ипотека 6%. Успевайте! ID объекта в нашей базе: 11821
    размещено: 07.07.2025 , обновлено: 15.12.2025

    1-к квартира, Седова, 17

    • 35.1 м2
    • 9/16 этаж
    • Состояние: хорошее
    3 850 000 ₽ (109700 ₽/м2)
    Объект № 192818. Вашему вниманию предлагается уютная квартира на Новой Сортировке. Дом улучшенной планировки. Вся инфраструктура присутствует. Квартира чистая, с косметическим ремонтом. Плюс огромная лоджия. Чистая продажа, без обременений. Приглашаем на просмотр! ***Гарантийный сертификат «Защита собственности» по данному объекту в подарок***
    размещено: 01.07.2025 , обновлено: 13.12.2025

    1-к квартира, Автомагистральная, 17

    • 41 м2
    • 1/16 этаж
    • Состояние: плохое
    3 750 000 ₽ (91500 ₽/м2)
    Объект № 191888. Продаётся уютная однокомнатная квартира площадью 41.3, идеальный вариант для тех, кто ищет спокойное жильё в шаговой доступности от всех необходимых объектов инфраструктуры. В квартире есть отдельный санузел и лоджия. Квартира без ремонта, что даёт отличную возможность воплотить все ваши дизайнерские идеи и создать интерьер своей мечты. Дом в хорошем состоянии огорожен забором, что обеспечивает комфортное проживание. Здесь есть всё необходимое для современной жизни. Рядом с домом расположены школы, детские сады и клиники, поэтому можно не переживать за доступность всех нужных услуг. В пешей доступности также находятся магазины, где можно приобрести всё необходимое для дома. Квартира продаётся без обременений, документы готовы к сделке. Подходит для покупки в ипотеку. Не упустите шанс стать обладателем уютной квартиры в отличном районе! Свяжитесь с нами, чтобы записаться на просмотр и обсудить все детали сделки. Мы будем рады ответить на все ваши вопросы и помочь с покупкой вашего нового дома. ***Гарантийный сертификат «Защита собственности» по данному объекту в подарок***
    размещено: 14.05.2025 , обновлено: 14.12.2025

    1-к квартира, Техническая, 12

    • 34.7 м2
    • 9/16 этаж
    • Состояние: хорошее
    3 800 000 ₽ (109500 ₽/м2)
    Предлагаем вашему вниманию замечательную квартиру рядом с пapком Таганcкaя cлoбoда и ТЦ Пекин.Удобная трaнспopтная развязкa, в доступной близости остановки общетвенного транспорта (трамваи, маршрутки, автобусы).Квaртиpa пoслe коcметичecкого ремонтa, имеет отличную планировку (кухня - гостинная + изолированная комната) и пригодна для полноценного проживания.Есть большая лоджия, где можно организовать зону отдыха или место для хранения.При продаже готовы оставить практически всю мебель, в том числе хороший кухонный гарнитур.В кваpтирe много рoзеток и зон освещения , в том числе на балконе .Идеально подойдёт для молодой семьи или под сдачу.Звони, мы ждём тебя на показ!Показы по предварительной договорённости.Возможен небольшой ТОРГ! ID объекта в нашей базе: 9229
    размещено: 08.05.2025 , обновлено: 12.12.2025

    1-к квартира, Софьи Перовской, 104

    • 22.2 м2
    • 7/15 этаж
    • Состояние: хорошее
    4 150 000 ₽ (186900 ₽/м2)
    Студия в современном ЖК "Абрикос" — идеальный вариант для студентов и инвесторов! Продается уютная студия 23 кв. м на 7 этаже в новом доме с ярким названием "Абрикос". Ключевые преимущества: Расположение: рядом несколько высших учебных заведений, что делает эту квартиру идеальным вариантом для родителей, которые хотят приобрести жилье для своих детей-студентов. Инвестиционная привлекательность: район пользуется стабильным спросом на аренду, что делает эту студию выгодным объектом для инвестиций. Новый дом: современные коммуникации, благоустроенный двор и привлекательная архитектура дома. Этаж: 7-й этаж — оптимальное сочетание тишины и отличных видов. Инфраструктура: в шаговой доступности магазины, кафе, остановки общественного транспорта. Документы: без ипотеки. Студия отлично подойдет как для комфортного проживания, так и для сдачи в аренду с высоким спросом! Не упустите возможность! Звоните и записывайтесь на просмотр прямо сейчас. ID объекта в нашей базе: 10080
    размещено: 18.12.2024 , обновлено: 11.12.2025

    1-к квартира, Софьи Перовской, 101

    • 34.4 м2
    • 9/16 этаж
    • Состояние: идеальное
    4 950 000 ₽ (143900 ₽/м2)
    Продается 1 комнатная квартира на девятом этаже.Уникальное предложение!Вся техника, текстиль, посуда, мебель остается вам!Дизайнерский евроремонт( новая проводка с большим количеством розеток, натяжной потолок, а так же произведена стяжка пола, стены под покраску)который вы с легкостью можете адаптировать под себя. Качественная техника на кухне ( кран Тека, вклеенная раковина из нержавейки, холодильник и варочная панель Еlесtrоluх, духовой шкаф Wirрооl, микроволновка Sаmsung, столешница на кухне из камня(кварцевый агломерат), фасады кухни из панелей АGТ белый глянец, легкая уборка и эксплуатация. Кухонный стол( так же выполнен из камня) он же подоконник очень удобен, за приемом пиши можно посмотреть,что происходит за окном.На полу во всей квартире сделан кварц винил Quiск Stер, очень надежное покрытие не боится воды и создает приятные тактильные ощущения для ваших ног.Туалет небольшой, но функциональный, полноценная ванна, стиральная машинка Sаmsung на 6,5кг с системой пузырьков и дополнительной загрузки, очень удобно, когда что то забыл положить сразу.Двуспальная кровать с подъемным механизмом для разных мелочей и матрасом Аsкоnа Wеllnеss Рrоmiх отдых и сон станут лучше. Прикроватные тумбочки с розетками зарядят смартфон пока спите, смарт телевизор Sаmsung 49" на поворотном кронштейне позволит просмотреть кино в уютной атмосфере теплой кровати. Для гостей есть двухместный раскладной диван.В летний период за климат в квартире отвечает кондиционер Еlесtrоluх. Квартира очень светлая и теплая, поэтому шторы идут Блэкаут, если хочется немного сумрака. Для хранения используются шкафы купе( фасады лакобель), один большой в комнате и два шкафа в коридоре.Потрясающая лоджия , ширина 1,2 длинна 6 метров-полноценная комната.В шаговой доступности магазины( Пятерочка, Верный, Кировский)Круглосуточные супермаркет и аптека.Во дворе есть авто-стоянка для жильцов дома, а так же платная охраняемая стоянка чез дорогу.Один взрослый собственник, квартира без задолженностей и обременений.Быстрый выход на сделку. ID объекта в нашей базе: 11687
    размещено: 28.06.2024 , обновлено: 9.12.2025

    1-к квартира, Софьи Перовской, 104

    • 42.4 м2
    • 9/11 этаж
    • Состояние: хорошее
    5 200 000 ₽ (122600 ₽/м2)
    Однокомнатная, уютная, светлая, квартира в ЖК «Абрикос». Квартира куплена в ипотеку, при наличии покупателя ипотеку погашу. В наличии кухонный гарнитур со встраиваемой техникой (варочная панель, микроволновка, духовой шкаф, холодильник), обеденный стол, стулья, раскладной диван, просторная кровать. Санузел - керамогранит, инсталляция, тропический душ. Территория дома закрытая, видеонаблюдение, охрана. В шаговой доступности магазины, остановки общественного транспорта (автобус, трамвай), до центра города 20 минут. ID объекта в нашей базе: 11646
    размещено: 03.05.2024 , обновлено: 8.12.2025

    1-к квартира, Пехотинцев, 2к3

    • 32.3 м2
    • 2/5 этаж
    • Состояние: хорошее
    3 200 000 ₽ (99100 ₽/м2)
    Продается уютная однокомнатная квартира, выполнен свежий косметический ремонт. Удобная планировка. Вместительный шкаф-купе в прихожей, кухонный гарнитур, шкаф в комнате и светильники остаются в подарок будущему владельцу.Вид из окон во двор, в шаговой доступности (3 минуты пешком) супермаркеты Кировский и Пятерочка, аптека, пекарня и другие объекты обслуживания. Очень зеленый большой двор с детской площадкой. Соседи приличные, не шумные.1 совершеннолетний собственник, квартира без обременений, остальное по телефону ID объекта в нашей базе: 11641
    размещено: 28.04.2024 , обновлено: 6.12.2025

Новостройки Екатеринбург, мкр-н. Новая Сортировка

Приоритет

Увеличивает просмотры в 3 раза

Ваше объявление показывается в списке выше обычных объявлений. подключить