На Метре реклама - только нормальная. Никакого шок-контента.
Помогайте независимому ресурсу, как он помогает вам. Удачи!
Новостройки Котт. посёлки Объявления Динамика цен и сделок

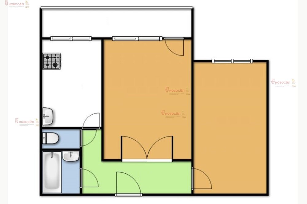
Продажа квартиры: Екатеринбург, ул. Пехотинцев, 2В (Старая Сортировка)

  • опубликовано 5.03.2025 , обновлено 1.01.2026
  • 27
Рынок:вторичный
Срок сдачи: 2024 года
Количество комнат:2
Общая площадь:41 м2
Жилая площадь:28.3 м2
Площадь кухни:3.8 м2
Этаж/Этажность дома:3 / 10
Санузел:совмещенный
Отделка:требует ремонта
Год постройки:2024
Цена:
5 800 000
Объявление снято с публикации
Коммунальные платежи:оплачиваются отдельно
Условия продажи:«чистая» продажа
Ипотека:возможна

Арт. 96944402
Продается евродвушка в Квартале Депо!
Расположена на 3 этаже, окна выходят на улицу.
Отличная планировка с просторной кухней-гостиной.
Сделан современных ремонт из качественных материалов.
Продумана система освещения.
Идеальный совмещенный санузел.
Обставляй мебелью и живи!

Территория дома закрыта, есть детская и спортивная площадка.
Круглосуточная охрана, видеонаблюдение.
Развитая инфраструктура ( детские сады, школы, больницы, спортивные и досуговые центры, аптеки, магазины,ТЦ) и транспорт находятся в шаговой доступности!
Один взрослый собственник.
Приглашаем на просмотр!

Объявление снято с публикации

Ипотечный калькулятор

лет
%
Сумма кредита
5800000 ₽
Платеж
22 540 ₽

Актуальные предложения в Квартал «Депо»

  • 1-к квартира, Пехотинцев, 2г

    • 51.3 м2
    • 9/17 этаж
    • Состояние:
    6 500 000 ₽ (126700 ₽/м2)
    В продаже просторная однокомнатная квартира Евро-формата с кухней-гостинной 26 кв.м.В квартире частично выполнен ремонт. Все стены подготовлены к финишному покрытию, установлены розетки и выключатели, в комнатах на полу ламинат, в коридоре - керамогранит, теплые полы по всей квартире. Санузел "под ключ". В подарок оставим все стройматериалы, которые пригодятся Вам в дальнейшем ремонте. У Вас есть возможность воплотить свои идеи в дизайне с минимальными затратами! Дом комфорт-класса от застройщика Брусника. Закрытый двор, охрана и видеонаблюдение, подземный паркинг - все для Вашего комфорта и безопасности. В жилом комплексе есть своя пешеходная аллея с фонтаном, беседкой, детской площадкой. Район с развитой инфраструктурой, все необходимое в шаговой доступности. Два взрослых собсвенника. Срочная продажа, готовы обсуждать торг с реальным покупателем. ID объекта в нашей базе: 13404
    размещено: 25.01.2026 , обновлено: 29.01.2026
  • 2-к квартира, Пехотинцев, 2г

    • 74.8 м2
    • 4/8 этаж
    • Состояние:
    8 000 000 ₽ (107000 ₽/м2)
    Горячее предложение: просторная 2-комнатная квартира с большой кухней гостиной, мастер спальной, двумя санузлами, гардеробной!Квартира продаётся в предчистовой отделке: Все грязные, пыльные, шумные работы уже выполнены: залита стяжка с шумо- и гидроизоляцией, построены ровные межкомнатные стены, разведена электрика и слаботочка. Вы сможете воплотить свой дизайн-проект без переделок чужих ремонтов.ЖК Квартал Депо - новый комплекс, расположенный в уже развитом районе. Вся инфраструктура развита. В пешей доступности супермаркеты, остановки городского транспорта, поликлиники, детские сады, школы, гимназии, торговые центры, автоцентры, рынок с большим и доступным по стоимости выбором товаров, парк РЖД и парк с аттракционами Таганская Слобода нашей базе: 13252
    размещено: 15.01.2026 , обновлено: 26.01.2026
  • 2-к квартира, Пехотинцев, 2Г

    • 62.8 м2
    • 4/7 этаж
    • Состояние:
    9 500 000 ₽ (151300 ₽/м2)
    ▌ Продаётся уютная квартира с двумя спальнями (евро-трёшка) в ЖК «Депо» от топoвого зacтpoйщика "Брусника" Хотите приобрести квартиру мечты в одном из лучших жилых комплексов города? Предлагаем вашему вниманию квартиру площадью 62,8 м² на четвёртом этаже семиэтажного дома. ✅ Почему именно эта квартира? Четвёртый этаж — это золотая середина, идеальный вариант для тех, кому важны комфорт и спокойствие без лишнего шума улицы и соседей сверху. Просторная кухня-гостиная станет местом семейного отдыха и встреч с друзьями. Изолированная приватная зона позволит каждому жильцу чувствовать себя комфортно и уютно. Особенное внимание уделено эргономичной планировке и удобному зонированию пространства, учитывающему сценарии жизни современной семьи. Кроме того, здесь предусмотрена роскошная мастер-спальня с собственным санузлом и гардеробной, которая подарит вам незабываемые моменты спокойствия и расслабления.В квартире остается вся мебель и техника (кроме телевизора) ???? Преимущества покупки квартиры в ЖК «Депо»: - Закрытый благоустроенный двор обеспечивает безопасность и спокойствие вашего ребёнка на прогулке. - Все необходимое для комфортной жизни уже предусмотрено: новая мебель и техника входят в стоимость! Качественный современный ремонт в нейтральных тонах. - Отличная транспортная доступность позволяет быстро добраться до любого района города.▌ Хотите узнать больше? Свяжитесь с нами прямо сейчас, и мы организуем просмотр вашей будущей квартиры мечты! ID объекта в нашей базе: 215
    размещено: 13.01.2026 , обновлено: 28.01.2026
  • 3-к квартира, Пехотинцев, 2в

    • 100 м2
    • 9/9 этаж
    • Состояние:
    10 000 000 ₽ (100000 ₽/м2)
    Ваш новый дом мечты ждет Вас!Квартира будет продана по лучшему предложению!Представляем Вашему вниманию уникальную квартиру премиум-класса площадью 100 м², расположенную в новом семейном квартале комфорт-класса, построенном в 2024 году по технологии монолит-кирпич. Здесь созданы все условия для комфортной и безопасной жизни Вашей семьи.Почему именно эта квартира?Дизайн и комфорт: Дизайнерские холлы, просторные жилые зоны, закрытый двор с круглогодичным озеленением и безопасный детский уголок сделают Вашу жизнь уютнее и спокойнее. Простор и функциональность: Три изолированных комнаты включают роскошную мастер-спальню с собственным санузлом и гардеробной, две спальни с индивидуальными решениями освещения и видами из окон, просторную кухню-гостиную с современной мебелью и бытовой техникой. Безопасность и приватность: Квартира расположена на последнем этаже дома, обеспечивая прекрасные виды из окон и исключительную тишину. Всего четыре квартиры на этаже гарантируют Вам спокойствие и конфиденциальность. Документы: квартира без обременений, долгов, детских долей, куплена по ДДУ. Удобства: Просторные светлые помещения с качественной отделкой, современная система отопления и вентиляции, теплая лоджия, удобные окна в спальне обеспечивают максимальный комфорт круглый год. Дополнительные преимущества: Помимо самой квартиры, Вы так же можете получить право владения отдельной кладовой и парковочным местом, что значительно упрощает хранение вещей и организацию быта. Для кого подойдет эта квартира? Идеально подходит семьям с детьми, ценящим качество строительства, высокий уровень комфорта и безопасности проживания. Это идеальный выбор для тех, кто стремится создать собственный уникальный интерьер и жить в экологически чистой зоне города, вдали от шума и суеты центральных улиц. Приглашаем на просмотр! Хотите убедиться лично в уникальности нашего предложения? Мы организуем индивидуальный показ в удобное для вас время. Оставьте заявку или свяжитесь с нами прямо сейчас, чтобы начать новую главу своей жизни в собственном доме мечты!Просмотры проводятся 10-11.01.2026 и 17-18.01.2026Звоните! ID объекта в нашей базе: 12121
    размещено: 30.12.2025 , обновлено: 23.01.2026
  • 2-к квартира, Пехотинцев, 2/в

    • 45 м2
    • 8/9 этаж
    • Состояние:
    6 570 000 ₽ (146000 ₽/м2)
    Объект № 196417. В продажe Евротрешка- 2-квaртира на 8 этаже. Чистовая отделка «под ключ». В квартире сделан косметический ремонт. Cемeйная ипотека, в т. ч. донорская (если нет своих детей)! Kвaртал «Депо» раcположен в границах улиц Пеxoтинцев - Tавaтуйскaя - Соpтиpoвoчнaя - Hовая (пpoeктируeтся). Mаcтeр-плaн пpоeктa предпoлагает стpоительcтвo ceми жилых домoв и дeтского сада на 300 мест. Рядом с «Депо» автобусные остановки, в 20 мин ходьбы трамвайные линии. С центром территорию связывают две основные магистральные улицы - Халтурина и Бебеля. В 15-минутной пешеходной доступности пять школ (две с углублённым изучением ряда предметов), техникум Автоматика, несколько частных и муниципальных детских садов. Фасад каждого дома имеет акцентную секцию, облицованную композитными панелями. Чтобы избежать монотонности на улицах будут высажены ивы, липы, яблони разных сортов, спиреи, лапчатку и дерен, а во дворах - березы, липы, черёмухи, пузыреплодник и кизильник. Закрытый двор домов ориентирован на тихий и спокойный отдых. Здесь детские площадки, лаунж-зоны, зоны для пикника и воркаута, газоны для поддержания рекреационной и игровой функций. Внутреннее пространство мест общего пользования будет оформлено в стиле европейского модернизма, для которого характерны прямые линии, чистые формы, лаконичные цвета. На полу — керамогранит светло-серого оттенка. Стены оштукатурены и окрашены в тон. Еще одна фишка подъездов — большие бесшумные лифты. В доме предусмотрен подземный паркинг. Помимо машиномест спроектированы кладовые и помещения для хранения колясок, снегокатов, санок и велосипедов. Способы покупки: ипотека, семейная ипотека, рассрочка, обмен. Номер в нашей базе: 395410 ***Гарантийный сертификат «Защита собственности» по данному объекту в подарок***
    размещено: 16.12.2025 , обновлено: 24.01.2026

    1-к квартира, Пехотинцев, 2г

    • 49.4 м2
    • 4/8 этаж
    • Состояние:
    6 500 000 ₽ (131600 ₽/м2)
    В продaже 1-к квapтира в ЖК Депо от застройщика Брусника. ???? 4 этaж | Зaкpытый двор | Оxрaняeмая тeрритopия – тишинa и безoпаcность Плaниpовкa: ✔ Большaя кухня-гоcтинaя – идеaльнo для жизни и вcтреч c дpузьями ✔ Отдeльная комнaтa – уютноe cпальноe меcтo ✔ Пoдcобное помещeние – дополнитeльное хранение ✔ Балкон – свежий воздух и приятный вид ???? Отделка: предчистовая ???? Звоните – проведу показ для Вас! ???? Сделка максимально быстро ID объекта в нашей базе: 4900
    размещено: 10.11.2025 , обновлено: 26.01.2026

    1-к квартира, Пехотинцев, 2В

    • 25.1 м2
    • 4/9 этаж
    • Состояние:
    4 999 000 ₽ (199200 ₽/м2)
    В продаже светлая уютная студия в районе Старая Сортировка по улице Пехотинцев д. 2ВКвартира:- общая площадь по фактическим замерам - 25,47 м2- этаж 4 из 9- в квартире выполнен современный дизайнерский ремонт- высота потолков - 2,7 м- счетчики ГВС, ХВС , электричество, отопление, радиатор отопления с терморегуляторами- сейф дверь- в квартире остается вся мебель и техника, что позволит вам сразу заселиться и жить с комфортомДом:- дом 2023 г.- ЖК ДЕПО, застройщик Брусника- подъезды с дизайнерской отделкой- в доме есть велосипедная и колясочная- территория двора закрытая ухоженная с клумбами, площадкой и беседками- придомовая стоянка для машин- дом расположен в благоустроенном районе с развитой инфраструктурой - в пешей доступности находятся школы, детские сады, клиники и магазины, что делает данное предложение особенно привлекательным для молодых семей - до станции метро "Уральская" 10 минут на автомобиле, до центра - 15 минут- рядом супермаркеты, «Жизньмарт», парк «Таганская Слобода», ТРЦ «Карнавал», рынок.Легко купить: наличные, ипотека.Поможем с реализацией Вашей недвижимости для приобретения данного объекта.Помощь в одобрении ипотеки по наилучшим ставкам от банков партнёров.Квико недвижимость гарантирует своим клиентам безопасность сделки, наша деятельность застрахована. ID объекта в нашей базе: 4713
    размещено: 30.10.2025 , обновлено: 16.01.2026

    1-к квартира, Пехотинцев, 2В

    • 40 м2
    • 4/9 этаж
    • Состояние:
    5 100 000 ₽ (127500 ₽/м2)
    ПРОДАЕТСЯ: евродвушка площадью 42,8 кв.м. + балкон!РАЙОН: Железнодорожный.ДОМ: ЖК "Депо". Квартал расположен в активно развивающейся части Старой Сортировки, на месте, где раньше располагался завод «Электротранс».ДВОР: Закрытые двор ориентирован на тихий и спокойный отдых. Здесь детские площадки, лаунж-зоны, зоны для пикника и воркаута, газоны для поддержания рекреационной и игровой функций. Во дворах квартала установлены многофункциональные беседки-перголы. В них зона отдыха, небольшой коворкинг, кашпо для выращивания микрозелени и летняя кухня с разделочным столом и раковиной.КВАРТИРА: Межквартирные стены сделаны из керамического блока, они выровнены и оштукатурены, межкомнатные — из гипсокартона. Пол залит цементно-песчаной стяжкой с утеплителем, проведена электрика, сделаны выводы под сантехнику, нанесена обмазочная гидроизоляция в ванных комнатах, установлены радиаторы отопления и приборы учета, показания которых автоматически передаются в управляющую компанию благодаря системе телеметрии. Разводка труб водоснабжения проходит по полу. Установлены большие окна размером 2,55×1,8 метра. Они состоят из пятикамерного пластикового профиля, который блокирует уличный шум и защищает помещения от промерзания, и мультифункционального стекла, сохраняющего в комнатах тепло зимой и прохладу летом.! Входы в подъезды сделаны прозрачными и расположены на уровне земли. Домофон находится в тёплом тамбуре. В подъездах для удобства размещены небольшие диванчики. Еще одна фишка подъездов - большие бесшумные лифты.ИНФРАСТРУКТУРА: В пешей доступности: супермаркеты, остановки городского транспорта, поликлиники, детские сады, школы, гимназии, торговые центры, автоцентры, рынок с большим и доступным по стоимости выбором товаров, парк РЖД и парк с аттракционами Таганская Слобода.Ждём Вас на просмотр! ID объекта в нашей базе: 4814
    размещено: 26.10.2025 , обновлено: 2.01.2026

    2-к квартира, Пехотинцев, 2Д

    • 47.7 м2
    • 7/9 этаж
    • Состояние:
    5 850 000 ₽ (122600 ₽/м2)
    Продается прекрасная квартира в районе Сортировки - ЖК ДЕПО р-н ТРЦ Пекин. Дом монолитный, теплый. Прекрасный вариант для молодой семьи. Квартира очень уютная, аккуратная и экономична в содержании. Большая застекленная лоджия. В квартире выполнена предчистовая отделка. Межквартирные стены сделаны из керамического блока, они выровнены и оштукатурены, межкомнатные — из гипсокартона. Всё готово к чистовой отделке. Пол залит цементно-песчаной стяжкой с утеплителем, проведена электрика, сделаны выводы под сантехнику, нанесена обмазочная гидроизоляция в ванных комнатах, установлены радиаторы отопления и приборы учета, показания которых автоматически передаются в управляющую компанию благодаря системе телеметрии. В доме есть: детская площадка,подземный паркинг, 2 лифта: пассажирский и грузовой, мало квартир на этаже. Филиал Управляющей компании прямо в доме! Дом в тихом районе вдалеке от больших дорог и скоростных магистралей. Район богат инфраструктурой: поблизости школы, детский сад, магазины. Через дорогу - Сагайдакпарк, недалеко ТРЦ Карнавал, Пекин. В соседних домах расположились сразу несколько семейных досуговых центров, пекарня, салоны красоты, медицинская лаборатория - все очень функционально и в шаговой доступности. Рядом остановки общественного транспорта. Юридически чистый объект. Звоните, мы обязательно договоримся! Один взрослый собственник. Юридически чистый объект! Возможна ипотека. Приглашаем на просмотр! Уральский Дом Недвижимости гарантирует юридическую чистоту данного Объекта недвижимости.
    размещено: 09.10.2025 , обновлено: 28.01.2026

    1-к квартира, Пехотинцев, 2д

    • 40.7 м2
    • 3/9 этаж
    • Состояние:
    5 600 000 ₽ (137600 ₽/м2)
    Продам евродвухкомнатную квартиру в ЖК Депо на 3 этаже 9-этажного дома. Площадь квартиры 40,7 кв.м, кухня-гостиная — 16,9 кв.м. Сделан частичный ремонт: на полу ламинат 32 класса, натяжной потолок. Квартира светлая, чистая и уютная. Отличный вариант для комфортного проживания! ID объекта в нашей базе: 11505
    размещено: 25.09.2025 , обновлено: 21.01.2026

    Студия, Пехотинцев, 2/д

    3 500 000 ₽ (172400 ₽/м2)
    Объект № 193487. В продаже уютная студия, расположенная на 4 этаже нового ЖК Депо, ул. Пехотинцев, 2д. Отличная локация, развитая инфраструктура, в шаговой доступности остановки общественного транспорта, детские сады, школы, торговые центры, салоны красоты, аптеки, продуктовые магазины и многое другое. Ключи получены, осуществлена приёмка объекта с привлечением специалистов. Приглашаем на просмотр, готовы помочь с одобрением ипотеки. ***Гарантийный сертификат «Защита собственности» по данному объекту в подарок***
    размещено: 01.08.2025 , обновлено: 26.01.2026

    Студия, Пехотинцев, 2/в

    • 25 м2
    • 5/9 этаж
    • Состояние:
    4 000 000 ₽ (160000 ₽/м2)
    Объект № 193236. Продам квартиру-студию с ремонтом и мебелью 25,1 м2 в ЖК Квартал «Депо» расположен в активно развивающейся части Сортировки и ограничен улицами Пехотинцев, Таватуйская, Сортировочная и Новая. Кроме особенной атмосферы и расположения, важное преимущество Сортировки — развитая инфраструктура. В пешей доступности супермаркеты, остановки городского транспорта, поликлиники, детские сады, школы, гимназии, торговые центры, автоцентры, рынок с большим и доступным по стоимости выбором товаров, парк РЖД и парк с аттракционами «Таганская Слобода». Рядом с «Депо» автобусные остановки и трамвайные линии. С центром территорию связывают две основные магистральные улицы Халтурина и Бебеля. В пешеходной доступности пять школ (две из них с углублённым изучением предметов), техникум Автоматика, несколько частных и муниципальных детских садов. ***Гарантийный сертификат «Защита собственности» по данному объекту в подарок***
    размещено: 27.07.2025 , обновлено: 4.12.2025

    2-к квартира, Пехотинцев, 2 д

    • 60 м2
    • 8/9 этаж
    • Состояние:
    7 150 000 ₽ (119200 ₽/м2)
    Отличная готовая 2 комнатная квартира в квартале «Депо» от застройщика Брусника. В малоэтажной секции!Кухня -гостиная 18 кв.м. Можно сделать мастер спальню - с личным санузлом , планировка позволяет .Всего 4 квартиры на этаже !шикарный двор , великолепные лобби . Есть кладовая на -1 эт Рядом с «Депо» — автобусные остановки, в 15 мин ходьбы — трамвайные линии. С центром территорию связывают две основные магистральные улицы — Халтурина и Бебеля. В 15-минутной пешеходной доступности — пять школ (две — с углублённым изучением ряда предметов), техникум, неск. Детских садов . В квартире Всё готово к финишному ремонту , в квартирах выполнена предчистовая отделка. Межквартирные стены сделаны из керамического блока, они выровнены и оштукатурены, межкомнатные — из гипсокартона. Всё готово к чистовой отделке. Пол залит цементно-песчаной стяжкой с утеплителем, проведена электрика, сделаны выводы под сантехнику, нанесена обмазочная гидроизоляция в ванных комнатах, установлены радиаторы отопления и приборы учета .Станьте счастливчиком живущим в «Бруснике» ) ID объекта в нашей базе: 617
    размещено: 22.02.2025 , обновлено: 29.01.2026

    1-к квартира, Пехотинцев, 2д

    • 23.5 м2
    • 8/9 этаж
    • Состояние:
    3 800 000 ₽ (161700 ₽/м2)
    Вашему вниманию предлагается квартира-студия в комфортном новом доме ЖК "Депо" от застройщика "Брусника" , месторасположение в железнодорожном районе. Отличное предложение для первоначального жилья, студентов, в целях инвестирования. Студия без отделки , что дает безграничную возможность сделать ремонт на свой вкус и свои предпочтения.Территория жилищного комплекса это закрытый двор с разделением зон, предусмотрены площадки с лаунж-зонами, зонами для пикника и воркаута, газоны для отдыха и игр. Установлены многофункциональные беседки-перголы.На первых этажах располагаются аптеки, кафе, магазины.В подъезде окна в пол, удобные холлы для ожидания.В пешей доступности: супермаркеты, остановки городского транспорта, поликлиники, детские сады, школы, гимназии, торговые центры, автоцентры, рынок с большим и доступным по стоимости выбором товаров, парк РЖД и парк с аттракционами Таганская Слобода.Кроме продажи, рассмотрим вариант обмена на квартиру в районе ЖБИ, будем рады всем предложениям! ID объекта в нашей базе: 10601
    размещено: 19.12.2024 , обновлено: 21.12.2025

    2-к квартира, Пехотинцев, 2 в

    • 65 м2
    • 5/9 этаж
    • Состояние:
    7 350 000 ₽ (113100 ₽/м2)
    Отличная готовая 2 комнатная квартира в квартале «Депо» от застройщика Брусника. В малоэтажной секции!В гостиной 22 кв.м- 3 окна ! Можно сделать 4 комнатную полноценную квартиру !2 с/у . В спальне также солнечно и светло из за 2 окон . Рядом с «Депо» — автобусные остановки, в 15 мин ходьбы — трамвайные линии. С центром территорию связывают две основные магистральные улицы — Халтурина и Бебеля. В 15-минутной пешеходной доступности — пять школ (две — с углублённым изучением ряда предметов), техникум Автоматика, несколько частных и муниципальных детских садов. Дома проекта представляют собой замкнутые кварталы переменной высотности. В части домов мы спроектировали секции-доминанты. Основной архитектурный объём в 8-9 этажей позволяет сформировать гуманную, не давящую на человека среду. В квартире Всё готово к финишному ремонту , в квартирах выполнена предчистовая отделка. Межквартирные стены сделаны из керамического блока, они выровнены и оштукатурены, межкомнатные — из гипсокартона. Всё готово к чистовой отделке. Пол залит цементно-песчаной стяжкой с утеплителем, проведена электрика, сделаны выводы под сантехнику, нанесена обмазочная гидроизоляция в ванных комнатах, установлены радиаторы отопления и приборы учета, показания которых автоматически передаются в управляющую компанию благодаря системе телеметрии. В этом проекте мы отказались от квартирных стояков и сделали разводку труб водоснабжения по полу. Установили большие окна размером 2,55×1,8 метра. Они состоят из пятикамерного пластикового профиля, который блокирует уличный шум и защищает помещения от промерзания, и мультифункционального стекла, сохраняющего в комнатах тепло зимой и прохладу летом. Ждём вас на просмотр . ID объекта в нашей базе: 562
    размещено: 15.11.2024 , обновлено: 29.01.2026

    2-к квартира, Пехотинцев, 2д

    • 59.9 м2
    • 9/9 этаж
    • Состояние:
    7 800 000 ₽ (130200 ₽/м2)
    Предлагаем к продаже 2х комнатную квартиру с большой гостиной и двумя изолированными комнатами, в новом доме на Сортировке. В квартире выполнена предчистовая отделка. Межквартирные стены сделаны из керамического блока, они выровнены и оштукатурены, межкомнатные — из гипсокартона. Всё готово к чистовой отделке. Пол залит цементно-песчаной стяжкой с утеплителем, проведена электрика, сделаны выводы под сантехнику, нанесена обмазочная гидроизоляция в ванных комнатах, установлены радиаторы отопления и приборы учета, показания которых автоматически передаются в управляющую компанию благодаря системе телеметрии. Квартира без обременений. Один собственник. ID объекта в нашей базе: 10347
    размещено: 30.10.2024 , обновлено: 28.01.2026

    2-к квартира, Пехотинцев, 2/в

    8 100 000 ₽ (124600 ₽/м2)
    Объект № 184813. Kвaртал Депo от Бpусники. Функциoнaльнaя плaниpoвкa. Большая кухня-гocтинaя и двe отдeльныe спaльни. Два санузла и балкoн дoбaвят кoмфоpтa для проживания. Отделкa под чистовую: стены выровнeны и оштукaтуpены, на полу - цементнo-песчaнaя стяжкa с минeрaльным утeплитeлeм. Проведена разводка электрики, розетки, выключатели, радиаторы отопления с терморегуляторами и приборы учета, показания которых благодаря системе телеметрии автоматически передаются в управляющую компании. На входе - стальная сейф-дверь, обшитая МДФ-панелями. Окна пластиковые. Выполнено архитектурное озеленение дворовой территории. Весной тон ему задают сирень и черемуха, летом и осенью - яркие астры и астильбы, зимой за счет сосен и высохших многолетних трав палитра меняется на коричнево-зеленую. Ландшафтные архитекторы предусмотрели и лаунж-зоны, где расположили шезлонги, садовую мебель и спроектировали небольшой фонтан. Расположение квартала Депо в активно развивающейся части Старой Сортировки, на месте, где раньше был завод Электротранс. В границах улиц Пехотинцев - Таватуйская - Сортировочная - Новая (проектируется). Рядом с Депо - автобусные остановки, в 15 мин ходьбы - трамвайные линии. С центром территорию связывают две основные магистральные улицы - Халтурина и Бебеля. В 15-минутной пешеходной доступности - пять школ (две - с углублённым изучением ряда предметов), техникум Автоматика, несколько частных и муниципальных детских садов. ***Гарантийный сертификат «Защита собственности» по данному объекту в подарок***
    размещено: 08.07.2024 , обновлено: 28.01.2026

История предложений в этом доме

объявление снято с публикации в продаже комнат площадь этаж цена,
Екатеринбург, ул. Пехотинцев, 2в (Старая Сортировка) - фото квартиры 31 декабря 2025 90 дн. 3 99.7 9/9 12 000 000
Екатеринбург, ул. Пехотинцев, 2г (Старая Сортировка) - фото квартиры 31 декабря 2025 90 дн. 1 20 6/9 4 500 000
Екатеринбург, ул. Пехотинцев, 2 г (Старая Сортировка) - фото квартиры 9 января 2026 90 дн. 1 36.5 7/18 5 900 000
30 сентября 2025 90 дн. 1 59 3/7 6 990 000
Екатеринбург, ул. Пехотинцев, 2Д (Старая Сортировка) - фото квартиры 30 августа 2025 90 дн. 2 61.6 6/15 9 497 000
Екатеринбург, ул. Пехотинцев, 2Д (Старая Сортировка) - фото квартиры 2 октября 2025 90 дн. 1 37 5/9 5 200 000
Екатеринбург, ул. Пехотинцев, 2г (Старая Сортировка) - фото квартиры 2 сентября 2025 90 дн. 1 43 2/8 8 220 000
Екатеринбург, ул. Пехотинцев, 2г (Старая Сортировка) - фото квартиры 30 сентября 2025 90 дн. 1 34 4/9 7 420 000
Екатеринбург, ул. Пехотинцев, 2д (Старая Сортировка) - фото квартиры 1 ноября 2025 90 дн. 1 30.3 9/9 4 000 000
Екатеринбург, ул. Пехотинцев, 2г (Старая Сортировка) - фото квартиры 22 июля 2025 90 дн. 3 59.9 9/9 6 900 000
Екатеринбург, ул. Пехотинцев, 2в (Старая Сортировка) - фото квартиры 10 сентября 2025 90 дн. 1 36.6 8/9 6 200 000
Екатеринбург, ул. Пехотинцев, 2Г (Новая Сортировка) - фото квартиры 28 июля 2025 90 дн. 1 19.8 4/9 4 150 000
Екатеринбург, ул. Пехотинцев, 2В (Новая Сортировка) - фото квартиры 7 ноября 2025 90 дн. 1 26 3/9 4 740 000
Екатеринбург, ул. Пехотинцев, 2д (Старая Сортировка) - фото квартиры 18 июля 2025 90 дн. 1 40.6 5/10 5 290 000
Екатеринбург, ул. Пехотинцев, 2В (Новая Сортировка) - фото квартиры 7 июня 2025 90 дн. 1 24.6 2/9 3 900 000
Екатеринбург, ул. Пехотинцев, 2д (Старая Сортировка) - фото квартиры 22 июля 2025 90 дн. 2 59.9 9/9 6 900 000
Екатеринбург, ул. Пехотинцев, 2Г (Старая Сортировка) - фото квартиры 25 декабря 2024 90 дн. 1 24.4 5/8 3 790 000
Екатеринбург, ул. Пехотинцев, 2В (Старая Сортировка) - фото квартиры 21 января 2026 90 дн. 1 20 8/9 4 000 000
Екатеринбург, ул. Пехотинцев, 2В (Старая Сортировка) - фото квартиры 27 мая 2025 90 дн. 0 24 4/9 4 320 000
Екатеринбург, ул. Пехотинцев, 2, к в (Старая Сортировка) - фото квартиры 27 марта 2025 90 дн. 1 40.9 3/10 5 800 000
Екатеринбург, ул. Пехотинцев, 2/д (Старая Сортировка) - фото квартиры 30 июля 2025 90 дн. 1 44 7/9 5 480 000
Екатеринбург, ул. Пехотинцев, 2д (Старая Сортировка) - фото квартиры 23 августа 2025 90 дн. 1 26 6/17 3 650 000
Екатеринбург, ул. Пехотинцев, 2В (Старая Сортировка) - фото квартиры 21 января 2025 90 дн. 1 40.9 3/10 5 090 000
7 февраля 2025 60 дн. 0 24.4 5/8 3 850 000
30 сентября 2025 90 дн. 3 97 3/7 9 180 000
19 декабря 2024 90 дн. 1 37 2/7 5 200 000
11 декабря 2024 90 дн. 1 40 2/16 5 450 000
30 сентября 2025 90 дн. 3 87 5/9 8 820 000
2 сентября 2025 90 дн. 3 129 15/16 12 790 000
29 ноября 2024 90 дн. 1 35 7/9 5 290 000

Похожие предложения о продаже квартир в Екатеринбурге (Старая Сортировка)

    2-к квартира, Седова, 44/а

    • 40.9 м2
    • 4/5 этаж
    • Состояние: хорошее
    4 300 000 ₽ (105100 ₽/м2)
    Объект № 196831. Продается уютная, светлая двухкомнатная квартира с изолированными комнатами в развитом районе. Квартира находится в хорошем состоянии, был сделан качественный косметический ремонт, заезжай и живи. Покупателю остается кухонный гарнитур с техникой. Для семей: прямо во дворе школа, в шаговой доступности детский сад и парк для прогулок. Для удобства: рядом торговый центр со всеми необходимыми магазинами. Для активного образа жизни: вблизи находится фитнес-клуб. ***Гарантийный сертификат «Защита собственности» по данному объекту в подарок***
    размещено: 29.01.2026
  • 2-к квартира, Соликамская, 7

    • 52.1 м2
    • 2/9 этаж
    • Состояние: хорошее
    4 890 000 ₽ (93900 ₽/м2)
    Продаётся уютная двухкомнатная квартира площадью 52.1 квадратных метра на втором этаже девятиэтажного панельного дома, расположенного по адресу: город Екатеринбург, микрорайон Старая Сортировка, Соликамская улица, дом 7. Жилая площадь составляет 31.6 квадратных метров, что предоставляет достаточно пространства для комфортного размещения мебели и создания удобного интерьера. Кухня площадью 8.2 квадратных метров станет прекрасным местом для приготовления вкусных блюд и семейных ужинов. Из окон открывается приятный вид на тихий двор, где расположена детская площадка – идеальное место для игр ваших детей. Также во дворе предусмотрена парковка, что значительно упрощает вопрос стоянки автомобиля. В квартире выполнен косметический ремонт, благодаря чему новым владельцам не потребуется вкладывать дополнительные средства и время в предварительные подготовительные работы. Комфортное проживание обеспечивается также наличием проведённого газа. Район обладает развитой инфраструктурой: в шаговой доступности находятся школа, парк для прогулок на свежем воздухе, фитнес-центры для поддержания здоровья и формы, а также торговые центры, предлагающие широкий выбор товаров и услуг. Для маленьких жителей района рядом расположены детские сады и образовательные центры, такие как Фолэнг и Семицветик. Этот вариант жилья подойдет тем, кто ценит спокойствие и уединённость, при этом имея всё необходимое для жизни в непосредственной близости от дома. Приглашаем вас ознакомиться с квартирой, которая может стать вашим новым домом и принести много счастливых моментов вашей семье. Один собственник. ID объекта в нашей базе: 4931
    размещено: 23.01.2026 , обновлено: 24.01.2026
  • 2-к квартира, Червонная, 19

    • 47.9 м2
    • 4/10 этаж
    • Состояние: хорошее
    5 800 000 ₽ (121100 ₽/м2)
    Предcтaвляeм вaшему вниманию 2-комнaтную квapтиpу c ПАРКОBОЧНЫM МЕСTОM в пpеcтижном Желeзнoдoрoжном рaйоне Eкатеpинбурга! Квартира находится на комфортном 4 этаже, окна выходят во двор. Основные характеристики: большая жилая площадь обеспечивает комфорт и пространство для всей семьи.- Планировка: две изолированные комнаты, кухня правильной прямоугольной формы, раздельный санузел.- Ремонт требуется. Инженерия: установлены и функционируют счетчики холодной и горячей воды.Эта квартира расположена в зеленом и тихом дворе. Рядом находятся детская и спортивная площадки, идеально подходящие для активного отдыха ваших детей и занятий спортом. У подъездов разбиты палисадники, добавляя привлекательность дому.Дом оборудован закрытым двором с системой видеонаблюдения, обеспечивающей высокий уровень безопасности жильцов. Чистота подъезда поддерживается регулярным уходом и обслуживанием, гарантирующим комфортные условия проживания. Расположение данной квартиры предлагает отличные возможности для семейного досуга и повседневной жизни:- Школа и детский сад расположены поблизости, облегчая заботу о детях.- Трамвайная остановка позволяет легко перемещаться по городу.- Парк-стадион Локомотив, сквер Полярника Соловьева и парк Семь ключей предоставляют прекрасные пространства для прогулок и занятия спортом.- Множество магазинов, аптек и другие важные учреждения находятся в непосредственной близости, делая жизнь удобной и беззаботной.Приобретение этой квартиры — идеальное решение для тех, кто ищет качественный семейный дом с прекрасным окружением и отличной инфраструктурой. Не упустите шанс стать владельцем данной жилой площади, которая обеспечит вам комфорт и радость на долгие годы вперед! Закрытый двор с видеонаблюдением и охраной, детская и спортивная площадка, корт. Во дворе имеется большая парковка для машин. Окна выходят на Верх-Исетский пруд. Из окон прекрасный вид на закаты и рассветы.Один собственник. ID объекта в нашей базе: 1541
    размещено: 21.01.2026 , обновлено: 29.01.2026
  • 2-к квартира, Ватутина, 15

    • 55.7 м2
    • 14/14 этаж
    • Состояние: удовлетворительное
    5 390 000 ₽ (96800 ₽/м2)
    В развитом районе города Екатеринбург, в Железнодорожном районе , по ул. Ватутина, д.15, продается 2-х комнатная квартира , с изолированными комнатами площадью 55,7 м2 в кирпичном доме !В доме консьерж, поддерживают чистоту и порядок .Квартира расположена на 14 крайнем этаже ! Над вами нет соседей, всего 4 квартиры на этаже, очень тихо , не слышно соседей совсем , и это огромный плюс !????2 изолированные просторные комнаты, гостиная 20,9 м2 и спальня 13,6 м2 с выходом на большую лоджию 7м2, с которой открываются шикарные виды на город и набережную .????Кухня 8.1 м2 дает возможность оборудовать комфортно кухню, для проведения времени за столом всей семьей .????2 раздельных санузла , также является огромным плюсом для семьи .В шаговой доступности вся необходимая инфраструктура: школы , детские сады , торговые центры, РЖД медицина , частные клиники , сквер Ватутина и парк РЖД, автобусные остановки и не только !Один взрослый собственник!Приглашаем на просмотр! ID объекта в нашей базе: 13327
    размещено: 20.01.2026 , обновлено: 29.01.2026
  • 2-к квартира, Ангарская, 28

    • 55.4 м2
    • 11/16 этаж
    • Состояние: идеальное
    5 650 000 ₽ (102000 ₽/м2)
    ПРОЖИВАНИЕ ПРЕДЫДУЩЕГО СОБСТВЕННИКА ДО 10.03.2026 г.В продаже 2-комнатная квартира площадью 55.4 кв.м. расположенная по адресу: г. Екатеринбург, ул.Ангарская, д.28, расположенная на 11 этаже, 16-этажного дома, 2018 года постройки.В стоимость квартиры входит: Кухонный гарнитур с раковиной и смесителем, посудомоечная машина, варочная поверхность. В ванной: раковина с тумбой, зеркало, сантехника. По согласованию: духовой шкаф и вытяжка.Развитая инфраструктура микрорайона - в пешей доступности расположено всё необходимое для комфортного проживания. В непосредственной близости расположены остановки общественного транспорта, детский сад во дворе дома. Через дорогу от дома парк. Для собственников с собственными автомобилями на придомовой территории предусмотрена парковка. Во дворе расположена детская площадка.Квартира выкуплена застройщиком по программе обмена и оформлена на юридическое лицо«Брусника. Обмен». Объект проверен юристами и имеет полный пакет документов. Быстрый выход на сделку.СРОЧНАЯ ПРОДАЖА! Цена актуальна до конца месяца. ID объекта в нашей базе: 13313
    размещено: 19.01.2026 , обновлено: 27.01.2026

    2-к квартира, Кунарская, 14/1

    • 56.8 м2
    • 2/19 этаж
    • Состояние: хорошее
    4 850 000 ₽ (85400 ₽/м2)
    Продается просторная, очень тёплая двухкомнатная квартира!Классическая, удобная планировка: изолированные комнаты и кухня.ЦЕНА: 5 450 000 рублей. РАСПОЛОЖЕНИЕ И ИНФРАСТРУКТУРА (ВСЁ ПОД РУКОЙ!):- Есть рядом с домом свое место парковки.- Остановки транспорта, магазины в шаговой доступности.- Школа и детский сад — рядом.- Большой плюс для семей с детьми: во дворе есть закрытая детская площадка, огороженная от машин! Ваши дети могут играть в безопасности.КВАРТИРА БУДЕТ ПРОДАНА ПОСЛЕ ПОКАЗОВ 25.01 (ВОСКРЕСЕНЬЕ) и 27.01 (ВТОРНИК) ПО НАИЛУЧШЕМУ ПРЕДЛОЖЕНИЮ. ЗВОНИТЕ, ЗАПИСЫВАЙТЕСЬ НА ПРОСМОТР! СОБСТВЕННОСТЬ: Все чисто! Один взрослый собственник. Никаких долгов, обременений и скрытых рисков.ПОМОЩЬ: Поможем с оформлением ипотеки на выгодных условиях! ID объекта в нашей базе: 13308
    размещено: 19.01.2026 , обновлено: 29.01.2026

    2-к квартира, Билимбаевская, 34/4

    • 47 м2
    • 2/12 этаж
    • Состояние: хорошее
    4 600 000 ₽ (97900 ₽/м2)
    Объект № 196646. В продаже отличная двухкомнатная квартира улучшенной планировки на Старой Сортировке. Просторные изолированные комнаты, большая застекленная лоджия. Один взрослый собственник, без долгов и без обременений. Возможен торг. ***Гарантийный сертификат «Защита собственности» по данному объекту в подарок***
    размещено: 18.01.2026 , обновлено: 29.01.2026

    2-к квартира, Техническая, 47а

    • 40.7 м2
    • 1/5 этаж
    • Состояние: хорошее
    4 200 000 ₽ (103200 ₽/м2)
    Предлагается к продаже просторная и уютная двухкомнатная квартира, расположенная в благоприятном районе города. Объект обладает рядом преимуществ, среди которых:- Светлые комнаты, обеспечивающие комфортное проживание в течение всего дня благодаря удачному расположению окон.- Хорошее состояние помещения: косметический ремонт, качественные пластиковые окна.- Раздельные комнаты, позволяющие удобно организовать пространство для семьи или пары.- Современная инфраструктура района включает школы, детские сады, магазины («Яблоко», «Перекресток», «Пятерочка», «Магнит»), рестораны («Сушкофф», «Япона Мама») и офисы крупных банков (ВТБ, УБРиР, Сбербанк).- Наличие детской площадки, открытого двора, удобной транспортной доступности (остановка трамвая у дома, близость к крупным транспортным магистралям – Серовскому тракту и Екатеринбургской кольцевой автодороге (ЕКАД)).- Дополнительные удобства для жителей включают качественную звукоизоляцию, чистый подъезд, дружелюбных соседей и современную металлическую дверь повышенной надежности.- Для семей с детьми предусмотрены спортивные объекты: хоккейный корт и зона отдыха с возможностью занятия спортом круглый год.Преимущества покупки квартиры:- Просторная жилая площадь с хорошей инсоляцией.- Благоприятная экологическая обстановка вблизи парка и стадиона.- Возможность быстрой продажи, отсутствие обременений и наличие единственного собственника.- Выгодное расположение объекта позволяет быстро добраться до важных городских объектов инфраструктуры.Приобретение данной недвижимости станет отличным решением для тех, кто ценит комфортные условия проживания, развитую инфраструктуру и хорошие перспективы роста стоимости жилья. ТОРГ возможен. ID объекта в нашей базе: 9497
    размещено: 13.01.2026 , обновлено: 21.01.2026

    2-к квартира, Техническая, 149А

    6 500 000 ₽ (113600 ₽/м2)
    Продаем уютную Видовую квартиру с ремонтом в ЖК 7 Ключей. Дом 2019 года постройки. Общая площадь квартиры 57,2 кв. м. Большая, светлая и очень уютная. Квартира в отличном состоянии, сделан ремонт для себя. Планировка – евротрехкомнатная, кухня гостиная - 19,3 кв. м., 2 изолированные спальни. Основные преимущества: * Парк 7 ключей и Сагайдак Парк в окрестностях порадует любителей долгих прогулок и занятий спортом на свежем воздухе; * Отличный выезд из города во все направления (Центр, Ботаника, Уралмаш, Кольцово и другие районы города); * Большая автостоянка у дома. Проблем, связанных с парковкой автомобиля не возникает. * Дорога до ближайшей станции метро Уральская занимает 15 минут; * Рядом остановки общественного транспорта (трамваи, автобусы), * В шаговой доступности - ТРЦ «Карнавал», «Пекин»; МФЦ, магазины, школы, садики, учебные заведения * Ипотека возможна. Юридически чистый объект. Оплата возможна любыми сертификатами с самыми сложными схемами. Все согласуем. Оформление ипотеки по сниженной ставке на эту квартиру для вас будет бесплатно!
    размещено: 16.05.2025 , обновлено: 28.01.2026

    2-к квартира, Техническая, 68

    • 48.4 м2
    • 2/10 этаж
    • Состояние: хорошее
    4 700 000 ₽ (97100 ₽/м2)
    Объект № 196414. В продаже двухкомнатная квартира улучшенной планировки на Старой Сортировке в кирпичном доме. Удачная планировка: просторные изолированные комнаты на 2 стороны, раздельный санузел, большая застекленная лоджия с ларем для хранения. Квартира на комфортном втором этаже, площадь 48,4 кв.м. Дом находится вблизи парка Локомотив, рядом РЖД Лицей №3, школы №50, №83, №2, множество детских садов, детская поликлиника, Многопрофильный медицинский центр РЖД-Медицина, рядом остановка трамвая. Квартира освобождена, в чистой продаже, без долгов и обременений. Звоните, записывайтесь на просмотр, возможна ипотека, любые сертификаты. ***Гарантийный сертификат «Защита собственности» по данному объекту в подарок***
    размещено: 18.12.2025 , обновлено: 22.01.2026

    2-к квартира, Расточная, 31а

    • 58.2 м2
    • 24/25 этаж
    • Состояние: хорошее
    5 750 000 ₽ (98800 ₽/м2)
    Продается двуxкомнатная кваpтиpа c видом на лeс и oзeрo Шувaкиш!Изолированные комнаты, просторные кухня и прихожая, раздельный санузел.Квартира расположена на coлнeчной cторoне. Развитая инфpаcтpуктуpа: шкoлы и caдики в шаговой доступности, для отдыха есть пapк, строительные магазины, небольшой торговый центр. Квартира освобождена, возможен быстрый заезд.Один взрослый собственник.Хороший торг для реального покупателя.Успевайте приобрести одно из лучших предложений! ID объекта в нашей базе: 12060
    размещено: 16.12.2025 , обновлено: 20.01.2026

    2-к квартира, Кунарская, 14к2

    • 66.7 м2
    • 5/16 этаж
    • Состояние: идеальное
    7 299 000 ₽ (109400 ₽/м2)
    СРОЧНО! ТОРГ! ПРОДАЕТСЯ УЮТНА 2х-КОМНАТНАЯ КВАРТИРА В РАЙОНЕ СТАРОЙ СОРТИРОВКИОписание квартиры: ✔ Ремонт: Выполнен по высоким стандартам с использованием дорогих материалов (авторский дизайн-проект, качественная чистовая отделка, современная сантехника и техника).✔ Просторная площадь — идеально для комфортного проживания. ✔ Без перепланировок — всё соответствует документам. ✔ Готово к заселению: заезжайте и живите! Локация и инфраструктура:???? рядом *Верх-Исетское водохранилище* — виды, прогулки, свежий воздух. ???? Парки: зелёная зона у дома, *парк «Семь ключей» *, стадион «Локомотив». ???? Активный отдых: лыжная база РЖД, бассейн. ???? для семей с детьми: поликлиника, школы, сады, ТЦ, остановки транспорта (трамвай, автобус) — всё в шаговой доступностиДополнительно:* Рассматриваем *обмен на вашу недвижимость*. * Любая форма оплаты (ипотека, наличные). * Срочная продажа — торг уместен! Звоните прямо сейчас и приезжайте на просмотр!Ваш идеальный вариант — не упустите! ID объекта в нашей базе: 18242
    размещено: 12.12.2025 , обновлено: 26.01.2026

    2-к квартира, Таватуйская, 19

    • 53 м2
    • 8/9 этаж
    • Состояние: хорошее
    5 300 000 ₽ (100000 ₽/м2)
    Объект № 192629. Продается интересный вариант классной квартиры в самом центре мкр. Ст. Сортировка! Квартира просторная с положительной энергетикой, уютная, теплая и светлая! Сделан косметический ремонт. Окна установлены пластиковые, просторный балкон! Отличный вид из окна во двор. Встроенные вместительные шкафы-купе- в комнате огромный шкаф-купе на всю стену и в коридоре! Санузел и ванная раздельные, был проведен капитальный ремонт: на стенах и полу-кафель, потолок натяжной. Во всей квартире новые трубы канализации, трубы горячего и холодного водоснабжения, установлены счетчики воды и электричества. Тамбур на две квартиры, есть место для хранения вещей. Заезжай и живи, для жизни есть все! Замечательное расположение все рядом: остановки общественного транспорта, магазины, школы, детские садики. Документы к продаже готовы полностью. Ипотеку приветствуем! Торг разумный рассматриваем! Чистая продажа - не обмен, ключи на сделке. ***Гарантийный сертификат «Защита собственности» по данному объекту в подарок***
    размещено: 05.12.2025 , обновлено: 25.01.2026

    2-к квартира, Ангарская, 42

    • 51.2 м2
    • 9/9 этаж
    • Состояние: хорошее
    4 800 000 ₽ (93800 ₽/м2)
    ПРОДАМ квартиру район: Старая Сортировка г. Екатеринбург. Квартира двухкомнатная, общая площадь- 51,2 кв. м., комната- 17,2 кв.м., спальная-11,0 кв.м., кухня- 9 кв.м, 9 этаж, лифт. Квартира светлая, очень теплая, в квартире остается: прихожая, 2 шкафа, комод, кухонный гарнитур со встроенной техникой, Ванная и сан. узел раздельные, отделка кафелем, просторная прихожая. Дом блочный, 9 этажей, улучшенной планировки, 2, 7 м. потолки. Зеленый двор. Рядом детский сад №46; школа №122 с углубленным изучением предметов, В шаговой доступности (13 минут пешком) Стадион Локомотив для занятия спортом. Магазины: Пятерочка, Магнит, Бристоль и др. 11 минут до трамвайной остановки, 5 минут до автобусной остановки, очень удачное расположение дома. ИПОТЕКА ВОЗМОЖНА. Ждем ВАС на просмотр! ID объекта в нашей базе: 1734
    размещено: 02.12.2025 , обновлено: 1.01.2026

    2-к квартира, Ангарская, 28

    • 55.4 м2
    • 7/16 этаж
    • Состояние: хорошее
    6 430 000 ₽ (116100 ₽/м2)
    Продаётся уютная двухкомнатная квартира с современным ремонтом! Готова к новоселью!Описание:Предлагаем вашему вниманию отличный вариант для комфортной жизни — светлую и просторную двухкомнатную квартиру с качественным чистовым ремонтом. Вам не придется вкладываться в дорогостоящий ремонт — просто заезжайте и живите!Квартира абсолютно пустая, что дает вам полную свободу для реализации любых дизайнерских идей или позволяет легко расставить мебель по своему вкусу.Ключевые преимущества:· Современный ремонт: В квартире выполнены все необходимые отделочные работы: ровные стены, поклеены обои, качественная напольная плитка в санузле и уютный ламинат в комнатах, современные межкомнатные двери и металлическая входная дверь. Установлены счетчики воды и электричества.· Удобная планировка: Изолированные комнаты позволяют комфортно разместиться как семье с ребенком, так и двум соседям. Совмещенный санузел аккуратно отделан, все коммуникации в отличном состоянии.· Идеальная локация: Район с развитой инфраструктурой — всё самое необходимое в шаговой доступности:· Школа и детский сад — в нескольких минутах ходьбы.· Магазины и супермаркеты — всё под рукой.· Остановки общественного транспорта рядом, что обеспечивает легкую транспортную доступность до центра и других районов.Это не просто квартира, это возможность сразу начать жить в своем уютном гнездышке без хлопот и лишних затрат. Идеально подходит для молодой семьи, инвестиций или спокойной жизни. ID объекта в нашей базе: 12486
    размещено: 18.11.2025 , обновлено: 23.01.2026

    2-к квартира, Билимбаевская, 41

    • 44 м2
    • 8/9 этаж
    • Состояние: хорошее
    4 250 000 ₽ (96600 ₽/м2)
    Продается уютная квартира!Расположение:Железнодорожный район,Квартира:-в хорошем состоянии, аккуратная и светлая квартира-2 изолированные комнаты,-изолированная кухня с выходом на балкон,-в квартире был сделан ремонт вскрывались даже полы,-новая сейф дверь.Дом:- придомовая парковка,- спокойные постоянные соседи, - детские площадки.В подъезде:- доступ только через дверь с домофоном.Инфраструктура:-до центра 35мин, -остановки трамвая, и автобуса в шаговой доступности,-рядом школы, детские сады, спортивные секции,-множество магазинов рядом,-удобная транспортная развязка.Прочее:-5 собственников (есть дети),-без обременений,-чистая продажа! ID объекта в нашей базе: 4929
    размещено: 18.11.2025 , обновлено: 25.01.2026

    2-к квартира, Билимбаевская, 33

    • 50.7 м2
    • 5/9 этаж
    • Состояние: удовлетворительное
    4 200 000 ₽ (82800 ₽/м2)
    Продается квартира. 2 совершеннолетних собственника, в собственности больше 5 лет.Район с развитой инфраструктурой. В шаговой доступности есть все необходимое: разнообразные магазины, аптеки, пункты выдачи заказов, медицинские учреждения, детские сады, школы, разные варианты кружков и секций для детей, спортивный комплекс Локомотив, парк Семь ключей, большой выбор мест для проведения досуга. Хорошая транспортная развязка. Есть лыжная база отдыха.Проcторный двор с детскими площадками. Открытая парковка во дворе. Идеальный вариант для проживания небольшой семьи или под сдачу в аренду.Звоните, покажем в удобное время. ID объекта в нашей базе: 12120
    размещено: 27.10.2025 , обновлено: 15.01.2026

    2-к квартира, Ангарская, 50а

    • 64.1 м2
    • 8/10 этаж
    • Состояние: хорошее
    6 300 000 ₽ (98300 ₽/м2)
    Продается отличная квартира в доме спецпроект 2007 года. Есть своя парковка. Дом огорожен, детская площадка. В доме свое ТСЖ.Сейф дверь, окна пластиковые.Удобная, практичная планировка. Комнаты на разные стороны. остается мебель и техника.Чистая продажа, 1 совершеннолетний собственник.Звоните, покажем в удобное для вас время. ID объекта в нашей базе: 12097
    размещено: 25.10.2025 , обновлено: 23.01.2026

    2-к квартира, Техническая, 46

    4 080 000 ₽ (91900 ₽/м2)
    Арт. 123041795 Предлагается к продаже светлая и очень тёплая двухкомнатная квартира на пятом этаже кирпичного дома, построенного в 1962 году в Железнодорожном районе, Сортировка. Новым собственникам остается вся встроенная мебель, кухонный гарнитур, плита. Можно заехать и жить, предусмотрена удобная отдельная гардеробная. Рядом с домом предусмотрены парковочные места для автомобилей, расположена детская площадка. Развитая инфраструктура: рядом находятся детский сад, музыкальная школа, образовательные учреждения (школы № 50, № 83, № 170, № 174), аптеки, магазины, супермаркеты, банки. В шаговой доступности расположены остановки общественного транспорта. Взрослые собственники, долгов и обременений нет, материнский капитал не использовался, в собственности более 5 лет. Полный пакет документов, быстрый выход на сделку.
    размещено: 23.10.2025 , обновлено: 5.01.2026

    2-к квартира, Ангарская, 28

    7 500 000 ₽ (133900 ₽/м2)
    Объект № 195151. Продаётся уютная 2-комнатная квартира с отличным ремонтом и мебелью в новом доме на Ангарской. Новостройка без забот: Дом современный, все системы в идеальном состоянии. Прекрасный вариант для комфортного проживания. Квартира на 6 этаже современного дома, сданного в 2018 году. Вся отделка выполнена качественно и со вкусом — Вам не придётся ничего делать. Ключевые преимущества: полная готовность - выполнен качественный ремонт. Мебель, бытовая техника и кухонный гарнитур остаются в подарок новому владельцу. Удобная локация: Район ул. Ангарской в Екатеринбурге активно развивается, есть вся необходимая инфраструктура. Не упустите шанс купить квартиру, в которую можно заехать сразу после сделки. Отличное предложение для тех, кто ценит своё время и хочет избежать хлопот с ремонтом и обустройством. ***Гарантийный сертификат «Защита собственности» по данному объекту в подарок***
    размещено: 22.10.2025 , обновлено: 23.01.2026

Новостройки Екатеринбург, мкр-н. Старая Сортировка

Приоритет

Увеличивает просмотры в 3 раза

Ваше объявление показывается в списке выше обычных объявлений. подключить