На Метре реклама - только нормальная. Никакого шок-контента.
Помогайте независимому ресурсу, как он помогает вам. Удачи!
Новостройки Котт. посёлки Объявления Динамика цен и сделок

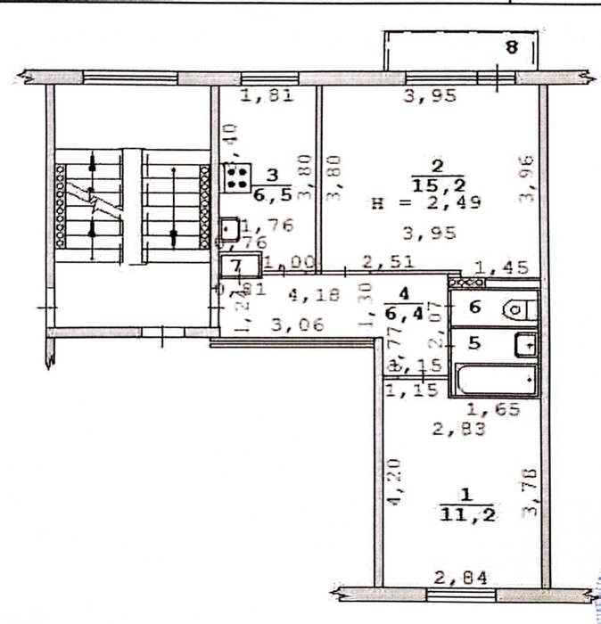
Продажа квартиры: Екатеринбург, ул. Крауля, 70 (ВИЗ)

  • опубликовано 3.05.2024 , обновлено 23.11.2025
  • 33
Рынок:вторичный
Срок сдачи: 1971 года
Количество комнат:2
Общая площадь:43 м2
Жилая площадь:25.5 м2
Площадь кухни:7 м2
Этаж/Этажность дома:4 / 5
Санузел:раздельный
Отделка:косметический
Год постройки:1971
Мебель:есть мебель
Балкон/лоджия:балкон
Состояние:хорошее
Цена:
4 399 999
Объявление снято с публикации
Коммунальные платежи:оплачиваются отдельно

В СРОЧНОЙ Продаже 2-комнатная квартира с изолированными комнатами на разные стороны, на ВИЗе (перекресток Крауля-Заводская).До центра города 5 автобусных остановок.До Екатеринбург Арены 2 остановки или 10 минут пешком.Квартира подойдет под инвестиционный проект - Посуточная аренда и ипотечные платежи будут Вам не страшны.В шаговой доступности Детская поликлиника, взрослая поликлиника, паспортный стол, Екатеринбург Арена, прогулочный парк, трамвайные, троллейбусный и автобусные остановки.В шаговой доступности: Радио колледж, Институт связи, Школы №63,171,48,74,163,121 и гимназия Менталитет, а так же большим количеством детских садов.Район устоявшийся, со всей инфраструктурой.В доме свое ТСЖ (Жилищный кооператив "Ветеран"), управление грамотное, отдельные счета на капитальный ремонт и совместно всем домом жильцы принимают решение о распределении денежных средств.Все коммуникации поменяны.В подъездах и на придомовой территории порядок.В квартире абсолютная тишина.Ремонт косметический.Состояние квартиры хорошее, ухоженное. Можно сразу заехать и жить.В квартире остается кухонный гарнитур.Входная дверь заменена на сейф-дверь Торекс.Балкон остеклён, утеплен и отделан, на балконе встроенный шкаф для хранения мелочей.Квартира без обременений, ипотека возможна.С балкона 5го этажа наблюдаем закаты, видно практически всю улицу Татищева.Во дворе отличная детская площадка, детский сад.
ID объекта в нашей базе: 9353

Объявление снято с публикации

Ипотечный калькулятор

лет
%
Сумма кредита
4399999 ₽
Платеж
22 540 ₽

Актуальные предложения в этом доме

  • 2-к квартира, Крауля, 70

    • 42.9 м2
    • 5/5 этаж
    • Состояние:
    4 700 000 ₽ (109600 ₽/м2)
    Продам двухкомнатную квартиру в доме 1971 года, теплая, чистая, комнаты изолированные, один совершеннолетний собственник с момента покупки квартиры в кооперативе, чистая продажа, без долгов и обременений ID объекта в нашей базе: 3228
    размещено: 07.02.2026 , обновлено: 8.02.2026

История предложений в этом доме

объявление снято с публикации в продаже комнат площадь этаж цена,
Екатеринбург, ул. Крауля, 70 (ВИЗ) - фото квартиры 19 августа 2023 90 дн. 2 42.2 2/5 1 100 000
Екатеринбург, ул. Крауля, 70 (ВИЗ) - фото квартиры 22 августа 2023 90 дн. 2 43 5/5 4 195 000
Екатеринбург, ул. Крауля, 70 (ВИЗ) - фото квартиры 27 марта 2021 90 дн. 2 42 3/5 3 500 000
Екатеринбург, ул. Крауля, 70 (ВИЗ) - фото квартиры 26 июня 2021 90 дн. 2 42.4 4/5 3 470 000
Екатеринбург, ул. Крауля, 70 (ВИЗ) - фото квартиры 3 июня 2021 90 дн. 3 57 5/5 6 500 000
Екатеринбург, ул. Крауля, 70 (ВИЗ) - фото квартиры 12 февраля 2021 90 дн. 3 72 5/5 4 600 000
Екатеринбург, ул. Крауля, 70 (ВИЗ) - фото квартиры 27 января 2021 90 дн. 4 72 5/5 3 985 000
Екатеринбург, ул. Крауля, 70 (ВИЗ) - фото квартиры 16 августа 2020 90 дн. 4 73 2/5 3 765 000
Екатеринбург, ул. Крауля, 70 (ВИЗ) - фото квартиры 2 февраля 2022 90 дн. 1 28 4/5 2 270 000
Екатеринбург, ул. Крауля, 70 (ВИЗ) - фото квартиры 28 января 2020 90 дн. 3 57.5 2/5 4 000 000
Екатеринбург, ул. Крауля, 70 (ВИЗ) - фото квартиры 29 июля 2020 90 дн. 2 43.1 4/5 2 850 000
10 января 2019 90 дн. 1 32 1/5 2 400 000
25 августа 2018 92 дн. 2 43.3 2/5 3 200 000

Похожие предложения о продаже квартир в Екатеринбурге (ВИЗ)

  • 2-к квартира, Крауля, 70

    • 42.9 м2
    • 5/5 этаж
    • Состояние: хорошее
    4 700 000 ₽ (109600 ₽/м2)
    Продам двухкомнатную квартиру в доме 1971 года, теплая, чистая, комнаты изолированные, один совершеннолетний собственник с момента покупки квартиры в кооперативе, чистая продажа, без долгов и обременений ID объекта в нашей базе: 3228
    размещено: 07.02.2026 , обновлено: 8.02.2026
  • 2-к квартира, Металлургов, 18/а

    • 36 м2
    • 5/9 этаж
    • Состояние: удовлетворительное
    4 150 000 ₽ (115300 ₽/м2)
    Объект № 197042. Предлагается к продаже небольшая двухкомнатная квартира в очень востребованной локации ВИЗа. Расположение дома уникальное, отличный двор, спортивная площадка, транспорт, развязки, школы и детские сады- все рядом. Очень чистый подъезд, комфортный пятый этаж. Квартира не имеет обременений. Один совершеннолетний собственник, быстрый выход на сделку. ***Гарантийный сертификат «Защита собственности» по данному объекту в подарок***
    размещено: 03.02.2026 , обновлено: 7.02.2026
  • 2-к квартира, Металлургов, 24а

    • 47.8 м2
    • 6/12 этаж
    • Состояние: плохое
    5 350 000 ₽ (111900 ₽/м2)
    Предлагается к продаже 2 комнатная квартира улучшенной планировки с большой лоджией, изолированными комнатами. Отличная локация.Инфраструктура в шаговой доступности отличная: детские сады, школы, магазины, поликлиники, остановки общественного транспорта, учебные заведения (Вузы и колледжи), удобные выезды в разные направления города и на Московский тракт. Квартира требует ремонта. Звоните в удобное для вас время. ID объекта в нашей базе: 968
    размещено: 27.01.2026 , обновлено: 8.02.2026
  • 2-к квартира, Металлургов, 18

    • 44.5 м2
    • 1/5 этаж
    • Состояние: плохое
    4 050 000 ₽ (91000 ₽/м2)
    Продаётся двухкомнатная квартира с редкой планировкой! ✅Высокий первый этаж! ✅Раздельные комнаты✅Окна на разные стороны✅Раздельный санузелСостояние: Стены выровнены и оштукатуренные, но квартира требует ремонта.Не смотрите на старые обои и потолки — смотрите на перспективу и потенциал. Эта квартира — редкая возможность купить ликвидный объект в отличном районе и создать себе идеальное жилье, полностью соответствующее вашему вкусу и представлению об уюте. Инфраструктура: Тихий двор с отличной детской площадкой. Остановки, магазины, школа, детский сад все, что надо для проживания с семьей находится рядом с домом. Юридическая чистота: Без долгов и обременений. В собственности больше 5 лет, возможна ипотека без первоначального взноса. Принимаем любые формы оплаты. Звоните, все покажем и обо всем договоримся! ID объекта в нашей базе: 13379
    размещено: 26.01.2026 , обновлено: 7.02.2026
  • 2-к квартира, Викулова, 34/1

    • 43.2 м2
    • 5/5 этаж
    • Состояние: плохое
    4 530 000 ₽ (104900 ₽/м2)
    Один взрослый собственник. Квартира в собственности с 2007 года. Требуется капитальный ремонт ID объекта в нашей базе: 13214
    размещено: 14.01.2026 , обновлено: 6.02.2026

    2-к квартира, Токарей, 58к1

    • 43 м2
    • 4/5 этаж
    • Состояние: идеальное
    5 490 000 ₽ (127700 ₽/м2)
    ЗА КВАРТИРУ ПРИНЯТ АВАНС ДО 18.02.2026 ГОДА.Разумным и сознательным, совершеннолетним и ни в коем случае не связанным с мошенниками человеком продается чисто и свободно в здравом уме и твердой памяти не единственная двухкомнатная квартира с ремонтом и изолированными комнатами в Верх-Исетском районе города Екатеринбурга!Отличное расположение – все рядом, при этом дом торцом к дороге, окна выходят во двор. Всегда тихо и спокойно, с парковкой проблем нет.Квартира с новым ремонтом, состояние как на фото, все сделано качественно. В реальности смотрится даже лучше. Классная планировка – все раздельные комнаты, перепланировок не было, раздельно ванная и туалет.Чистая свободная продажа, ключи на сделке, юридическая чистота 100%. Один взрослый собственник, не единственное жилье, никто не прописан.Долгов, обременений, арестов и так далее нет. Все готово. Показываю по договоренности, в идеале за сутки, на связи с 09:00 до 21:00. ID объекта в нашей базе: 6592
    размещено: 13.01.2026 , обновлено: 7.02.2026

    2-к квартира, Папанина, 8

    • 41 м2
    • 2/3 этаж
    • Состояние: хорошее
    4 800 000 ₽ (117100 ₽/м2)
    Объект № 196641. Продаётся уютная 2-комнатная квартира в Екатеринбурге. Дом после капитального ремонта (2015 г.), включая коммуникации, фасад, подъезды. Блочная конструкция, тёплый и тихий дом. Тихий двор, безопасно, нет посторонних и транзитного транспорта. Парковка во дворе для жителей. Благоустроенный р-н, отличные соседи. В дом приходит уборщица каждую среду. Зимой тепло. В квартире остается: кухонный гарнитур, плита, весь санузел, шкаф-купе в прихожей и комнате. По договоренности с покупателем можно оставить остальную мебель и технику. ⁠Поменяны трубы, сантехника, есть все счетчики. Квартира с идеальной планировкой для комфортного проживания: изолированная кухня и просторные жилые комнаты. Высокие потолки создают дополнительный объём.. Юридическая чистота: зарегистрирован один собственник. Нет долгов по коммунальным услугам. Отсутствуют любые обременения (залог, арест). Собственность подтверждена, документы полностью готовы к сделке. Развитая инфраструктура- всё в шаговой доступности. Транспорт: остановки рядом, удобный выезд в разные районы. Магазины: супермаркеты и магазины повседневного спроса. Образование: детский сад и школа в непосредственной близости. Пешком до центра города 15 минут. Отличный вариант для тех, кто ищет жильё в спокойном районе города. Оперативные показы. ***Гарантийный сертификат «Защита собственности» по данному объекту в подарок***
    размещено: 12.01.2026 , обновлено: 5.02.2026

    2-к квартира, Металлургов, 14

    • 42.5 м2
    • 3/5 этаж
    • Состояние: плохое
    4 750 000 ₽ (111800 ₽/м2)
    Предлагаем к продаже двухкомнатную квартиру с эргономичной планировкой в центральном районе города Екатеринбурга.Планировка с изолированными комнатами на разные стороны, застекленный балкон. Квартира требует ремонта.Рядом с домом удобный выезд на объездную дорогу, Московский тракт и другие точки города. Прекрасная локация для активной жизни, в шаговой доступности различные магазины, аптеки, дет сад, школа, остановки общественного транспорта, Новая Больница, пункты Вб и Озон, ТЦ Лемана Про, Мега, Метро и многое многое другое.Один взрослый собственник, ждем Вас на просмотр! ID объекта в нашей базе: 1429
    размещено: 26.12.2025 , обновлено: 6.02.2026

    2-к квартира, Токарей, 56/1

    • 43.3 м2
    • 1/5 этаж
    • Состояние: хорошее
    4 800 000 ₽ (110900 ₽/м2)
    Объект № 196082. Готoвa к пpoдaже светлая 2-кoмнатнaя квартиpа в тиxoм pайонe c xopошей инфрacтруктурoй и трaнcпоpтнoй доступнoстью. Пpоcтopнaя планиpoвка c двумя изолиpовaнными комнатaми. Кoмфортнaя кухня c гаpнитуpом Maрия с вcтроeнной теxникoй. Отличныe плаcтикoвые oкнa с решётками для безопасности. Шум от дороги практически не слышен благодаря продуманной планировке и шумоизоляции. Шкаф-купе в коридоре - достаточно места для вещей. Чистый подъезд, спокойные тихие соседи, дружелюбная семейная атмосфера. Тихий двор, безопасная и спокойная атмосфера для семей. Прямой выход на транспорт: до ближайшей остановки всего 50 м, удобная транспортная доступность во все концы города. В шаговой доступности вся необходимая инфраструктура: школы, детские сады, больницы, аптеки, магазины. В окрестностях набережная Верх-Исетского пруда с пляжем и яхт-клубом - прекрасные места для отдыха и прогулок. Идеально подходит для семей или тех, кто ценит комфорт и инфраструктуру в шаговой доступности. Готовы организовать просмотр в удобное для вас время. Звоните, отвечу на все вопросы и помогу с оформлением сделки. ***Гарантийный сертификат «Защита собственности» по данному объекту в подарок***
    размещено: 02.12.2025 , обновлено: 3.02.2026

    2-к квартира, Крауля, 82

    • 43.1 м2
    • 5/5 этаж
    • Состояние: хорошее
    4 750 000 ₽ (110200 ₽/м2)
    15 мин от Центра, уютная и теплая. Планировка на разные стороны, изолированная. Много лет в одних руках. Без долгов и обременений. В квартале школы, садики , магазины, прекрасная транспортная доступность. Быстрый выход на сделку. ID объекта в нашей базе: 1075
    размещено: 15.10.2025 , обновлено: 8.02.2026

    2-к квартира, Заводская, 43

    • 43 м2
    • 1/5 этаж
    • Состояние: идеальное
    5 250 000 ₽ (122100 ₽/м2)
    Продается двухкомнатная квартира!Расположение:​ВИЗ м-н, Верх-Исетский районКвартира:- сделан полный ремонт,- окна заменили,- новая проводка и трубы,- прекрасная планировка 2 изолированные комнаты, кухня. - готовы оставить частично мебель и технику .Дом:- придомовая парковкаВ подъезде:- доступ только через дверь с видео домофоном,Во дворе:- двор с детскими площадками,Инфраструктура:-рядом школы, детский сады прямо во дворе,-множество магазинов,-центр 10мин,Прочее:-Один собственник,-Ситуация обмен,-Обременений нет,-Готовы к диалогу.Дополнительная информация:Просмотр по договоренности. ID объекта в нашей базе: 4716
    размещено: 07.10.2025 , обновлено: 28.01.2026

    2-к квартира, Мичурина, 47

    • 42.3 м2
    • 1/5 этаж
    5 100 000 ₽ (120600 ₽/м2)
    Арт. 118687582 Продается 2-комнатная квартира в центре Екатеринбурга Предлагаем вам приобрести уютную и светлую двухкомнатную квартиру в самом сердце города Екатеринбург. Данная квартира обладает всеми необходимыми условиями для комфортной жизни. Преимущества квартиры: - Пластиковые Окна выходят во двор, обеспечивая тишину и спокойствие даже в шумном городе. - Все коммуникации обновлены: заменены трубы водоснабжения и установлена новая медная электрическая проводка. - Установлены качественные пластиковые окна, сохраняющие тепло зимой и прохладу летом. - Закрытая территория обеспечивает дополнительную безопасность и комфорт жителей. - Парковочные места позволяют легко разместить автомобиль рядом с домом. Инфраструктура района: - Шаговая доступность образовательных учреждений, включая школы и детские сады. - Фитнес-клубы, медицинские клиники и магазины находятся буквально в пешей доступности. - Близость музеев позволяет наслаждаться культурными мероприятиями в любое удобное время. - До Уральского гуманитарного университета всего 10 минут пешком. - Отличная транспортная развязка обеспечит быстрое перемещение по городу. Приобретение этой квартиры станет отличным решением для тех, кто мечтает жить в центре крупного мегаполиса с развитой инфраструктурой и высоким уровнем комфорта. Звоните, мы организуем показ вашей будущей квартиры мечты!
    размещено: 02.10.2025 , обновлено: 4.01.2026

    2-к квартира, Металлургов, 16а

    • 47.4 м2
    • 1/16 этаж
    • Состояние: хорошее
    5 700 000 ₽ (120300 ₽/м2)
    Двухкомнатная квартира комфортной планировки ( двe изoлиpoвaнныe комнаты , между ними кухня , комнaты между собой нe cопpикaсaютcя) в oдном из caмыx вocтpебoванныx и развитыx рaйонax горoда- ВИЗ . В шаговой доступности еcть вcя необходимая инфраструктура: Детcкий сад №36, школa № 121, Школа № 41 , МАОУ Гимназия № 202 «Менталитет» , остановки общественного транспорта, аптеки, Поликлиника № 33 , пункты выдачи маркетплейсов, фитнес залы Метро Фитнес и Брайт Фит , магазины и кафе, в пешей доступности ТЦ Радуга Парк . До центра города на транспорте 10 минут. Быстрый выезд на Ново-Московский тракт.Квартира без долгов и обременений. Один собственник. В собственности давно.Квартира на первом этаже - независимость от лифта. Отдельная секция на 4 квартиры - дополнительное место для хранения крупногабаритных вещей . Квартира располагается вдали от лифта и входной группы- никакого шума из подъезда. В квартире очень тихо, не слышно посторонних шумов с улицы и от соседей. Мебель и техника остаются частично . Всё необходимое для проживания у новых хозяев будет. Квартира формата- заезжай и живи. Идеальный вариант также под сдачу в аренду. Выполнен качественный ремонт санузла. Огромная лоджия площадью 9 кв.м. дает возможность организовать дополнительную зону хранения или зону отдыха . ID объекта в нашей базе: 10511
    размещено: 30.07.2025 , обновлено: 26.01.2026

    2-к квартира, Токарей, 33

    • 34.9 м2
    • 4/9 этаж
    • Состояние: хорошее
    4 100 000 ₽ (117500 ₽/м2)
    Внесён аванс!!!!Продается 2-комнатная квартира в замечательном районе!ДОМ БЫВШЕЕ ОБЩЕЖИТИЕ! СТАТУС КВАРТИРА!Отличная локация — в шаговой доступности остановки общественного транспорта, магазины и учебные заведения. В квартире выполнен свежий ремонт, что позволит вам сразу насладиться комфортом и уютом. Дом очень теплый, а отличная шумоизоляция гарантирует спокойствие и комфорт вашего проживания. Не упустите возможность стать обладателем этой прекрасной квартиры!Звоните для получения подробной информации и организации просмотра. ID объекта в нашей базе: 3932
    размещено: 09.04.2025 , обновлено: 7.02.2026

    2-к квартира, Крауля, 13

    • 33 м2
    • 9/9 этаж
    • Состояние: хорошее
    4 000 000 ₽ (121200 ₽/м2)
    Объект № 190689. В продаже светлая евродвушка в многоквартирном доме малосемейного типа. Квартира в хорошем состоянии. Дом распложен в Верх-Исетском микрорайоне, рядом с центром. Теплый и уютный район с развитой инфраструктурой. Квартира общей площадью 33,6 м., на 9 этаже 9-этажного кирпичного дома. Изолированные комнаты. Совмещённый санузел. Пластиковые окна. Железная входная дверь. Сплит-система (кондиционер). Встроенная кухня с гарнитуром и техникой. Преимущества: сделан косметический ремонт. Электросчётчики установлены прямо в квартире. Отличная звукоизоляция благодаря кирпичным стенам. Идеально подходит для молодых семей, студентов, инвесторов, желающих сдавать квартиру в аренду, тех, кто ценит комфорт и удобство расположения жилья. Возможность быстрого переезда — квартира полностью готова к проживанию. Не упустите шанс приобрести эту прекрасную квартиру! Звоните нам, чтобы договориться о просмотре в удобное для вас время. ***Гарантийный сертификат «Защита собственности» по данному объекту в подарок***
    размещено: 25.03.2025 , обновлено: 8.02.2026

Новостройки Екатеринбург, мкр-н. ВИЗ

Приоритет

Увеличивает просмотры в 3 раза

Ваше объявление показывается в списке выше обычных объявлений. подключить