На Метре реклама - только нормальная. Никакого шок-контента.
Помогайте независимому ресурсу, как он помогает вам. Удачи!
Новостройки Котт. посёлки Объявления Динамика цен и сделок

Продажа квартиры: Екатеринбург, ул. Восточная, 25 (Шарташский рынок)

  • опубликовано 22.11.2024 , обновлено 19.09.2025
  • 23
Кадастровый номер:66:41:0206032:3912
Рынок:вторичный
Срок сдачи: 1928 года
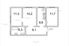
Количество комнат:3
Общая площадь:61 м2
Жилая площадь:30 м2
Площадь кухни:9 м2
Этаж/Этажность дома:3 / 4
Санузел:совмещенный
Отделка:евроремонт
Год постройки:1928
Состояние:хорошее
Цена:
6 350 000
Объявление снято с публикации
Коммунальные платежи:оплачиваются отдельно

Объект № 188341. Продается 3-комнатная квартира в полнометражном доме на Восточной 25. Это здание прославилось, благодаря картине екатеринбургского художника Германа Метелёва «Осень» 1981 г
Дом очень эффектный: яркий фасад, помпезные колонны, причудливые окна, парадная центральная вставка с «беседкой» на крыше. Дом начал строиться в 1946 г для военной элиты. Его левую часть проектировали и строили пленные японцы, правую - пленные немцы. Есть справка о времени строительства.
Очень удобная планировка: просторная кухня, окно в ванной, высокие потолки. Помпезный подъезд. 3 метровые потолки. Зеленый уютный двор.
Из квартиры можно сделать великолепное место жительства для семьи, которые любят высокие потолки и уютную атмосферу старого фонда.
Без обременений, опек, ипотек, хвостов и перепланировок. ***Гарантийный сертификат «Защита собственности» по данному объекту в подарок***

Объявление снято с публикации

Ипотечный калькулятор

лет
%
Сумма кредита
6350000 ₽
Платеж
22 540 ₽

Актуальные предложения в этом доме

  • 3-к квартира, Восточная, 25

    • 61 м2
    • 3/4 этаж
    • Состояние:
    6 149 000 ₽ (100800 ₽/м2)
    Объект № 190411. Самая лучшая трёшка района. Для любителей высоких потолков, помпезных парадных и стиля Олд мани. В советские времена здесь жила только элита. Дом очень эффектный: яркий фасад, колонны, причудливые окна, парадная центральная вставка с «беседкой» на крыше. Двор большой и закрытый с автоматическими воротами на пульте и калиткой, никто посторонний не зайдет на территорию. Во дворе оборудованы парковочные места для жителей. Очень удобная планировка: просторная кухня, окно в ванной, высокие потолки. Без обременений, опек, ипотек, хвостов и перепланировок. Доступная цена за кв.м., помощь в одобрении под низкую ставку. Выгодный арендный бизнес, возможно приобретение с действующими арендаторами. ***Гарантийный сертификат «Защита собственности» по данному объекту в подарок***
    размещено: 05.03.2025 , обновлено: 31.10.2025

История предложений в этом доме

объявление снято с публикации в продаже комнат площадь этаж цена,
Екатеринбург, ул. Восточная, 25 (Шарташский рынок) - фото квартиры 3 декабря 2021 90 дн. 2 50 2/4 3 900 000
Екатеринбург, ул. Восточная, 25 (Шарташский рынок) - фото квартиры 22 мая 2021 90 дн. 2 49.5 4/4 3 600 000
Екатеринбург, ул. Восточная, 25 (Шарташский рынок) - фото квартиры 7 ноября 2020 90 дн. 2 49 4/4 3 600 000
Екатеринбург, ул. Восточная, 25 (Шарташский рынок) - фото квартиры 1 декабря 2021 90 дн. 3 67.5 3/4 5 000 000
Екатеринбург, ул. Восточная, 25 (Шарташский рынок) - фото квартиры 19 июня 2020 90 дн. 2 49.5 4/4 3 375 000
24 сентября 2017 62 дн. 4 106 2/4 5 800 000
23 сентября 2016 62 дн. 3 60.9 2/4 3 600 000
3 июля 2016 61 дн. 3 61 2/4 3 700 000

Похожие предложения о продаже квартир в Екатеринбурге (Шарташский рынок)

  • 3-к квартира, Куйбышева, 108

    • 61.1 м2
    • 6/9 этаж
    • Состояние: хорошее
    5 900 000 ₽ (96600 ₽/м2)
    Уютная, светлая и теплая квартира в самой середине дома, с хорошим ремонтом и двумя лоджиями на обе стороны.В собственности 8 лет. Евроремонт 2012: перестелены полы, пол на кухне и в прихожей с электроподогревом, заменена электропроводка, батареи, стеклопакеты в комнатах и на лоджиях, импортные натяжные потолки, ламинат в комнатах и на лождиях, моющиеся обои, шпонированные двери, вся сантехника в идеальном состоянии, встроенная кухня с техникой (посудомойка, электрический духовой шкаф, газовая панель, вытяжка) и большой встроенный шкаф в коридоре. Также по договоренности можем оставить остальную мебель, технику, шторы, люстры - все для комфортного проживания.Заезжай и живи! ID объекта в нашей базе: 11896
    размещено: 30.10.2025 , обновлено: 31.10.2025
  • 3-к квартира, Куйбышева, 171

    • 58.7 м2
    • 3/5 этаж
    • Состояние: хорошее
    4 750 000 ₽ (80900 ₽/м2)
    Продаётся трёхкомнатная квартира в тёплом доме. Большая кухня, раздельный санузел, удобное расположение, близость к центру. Рядом садик и школа. магазины. Шарташский рынок. ID объекта в нашей базе: 1832
    размещено: 14.05.2025 , обновлено: 24.10.2025
  • 3-к квартира, Восточная, 25

    • 61 м2
    • 3/4 этаж
    • Состояние: хорошее
    6 149 000 ₽ (100800 ₽/м2)
    Объект № 190411. Самая лучшая трёшка района. Для любителей высоких потолков, помпезных парадных и стиля Олд мани. В советские времена здесь жила только элита. Дом очень эффектный: яркий фасад, колонны, причудливые окна, парадная центральная вставка с «беседкой» на крыше. Двор большой и закрытый с автоматическими воротами на пульте и калиткой, никто посторонний не зайдет на территорию. Во дворе оборудованы парковочные места для жителей. Очень удобная планировка: просторная кухня, окно в ванной, высокие потолки. Без обременений, опек, ипотек, хвостов и перепланировок. Доступная цена за кв.м., помощь в одобрении под низкую ставку. Выгодный арендный бизнес, возможно приобретение с действующими арендаторами. ***Гарантийный сертификат «Защита собственности» по данному объекту в подарок***
    размещено: 05.03.2025 , обновлено: 31.10.2025

Новостройки Екатеринбург, мкр-н. Шарташский рынок

Приоритет

Увеличивает просмотры в 3 раза

Ваше объявление показывается в списке выше обычных объявлений. подключить